
DURAflex đăng vào lúc 18/12/2025 - 09:53
Sở hữu một ngôi nhà khang trang, ấm cúng tại vùng quê với chi phí vừa phải là mong ước của không ít gia đình trẻ. Với ngân sách 500 triệu đồng, hoàn toàn có thể xây dựng được một tổ ấm đẹp và tiện nghi nếu bạn có kế hoạch thông minh và áp dụng những kinh nghiệm xây nhà hiệu quả. Bài viết này DURAflex sẽ chia sẻ những bí quyết vàng giúp bạn hiện thực hóa giấc mơ xây nhà 500 triệu ở nông thôn vừa đẹp, vừa tiết kiệm ngân sách một cách tối ưu.
Với ngân sách 500 triệu, bạn hoàn toàn có thể xây dựng được một ngôi nhà đẹp, đầy đủ tiện nghi ở nông thôn. Tuy nhiên, cần phải có sự chuẩn bị kỹ càng và quản lý chi phí một cách hợp lý để đảm bảo chất lượng thi công và tiết kiệm. Với mức chi phí này, gia chủ hoàn toàn có thể xây dựng một căn nhà cấp 4 hiện đại, diện tích từ 60-100m², phù hợp cho gia đình 3-5 người, bao gồm phòng khách, bếp, 2-3 phòng ngủ và nhà vệ sinh.
Tuy nhiên, để tối ưu chi phí, nên lựa chọn thiết kế đơn giản, hạn chế các chi tiết cầu kỳ, đồng thời sử dụng vật liệu có giá thành hợp lý nhưng đảm bảo độ bền. Các kiểu nhà phổ biến như nhà cấp 4 chữ L mái thái, mái bằng hoặc có gác lửng đều nằm trong khả năng thi công với ngân sách 500 triệu. Việc lựa chọn đơn vị thi công uy tín và lên kế hoạch thi công cụ thể sẽ giúp hạn chế phát sinh, đảm bảo chất lượng và tính thẩm mỹ cho ngôi nhà.

Bạn hoàn toàn có thể xây nhà 500 triệu ở nông thôn mà vẫn đầy đủ tiện nghi nếu biết cách quản lý ngân sách (Nguồn: Internet)
>> Xem thêm:
Dưới đây là những mẫu xây nhà 500 triệu ở nông thôn được nhiều chuyên gia đánh giá cao, đáp ứng tốt nhu cầu sinh hoạt cũng như tính thẩm mỹ, đồng thời tối ưu chi phí thi công hiệu quả mà các gia chủ có thể tham khảo:
Mẫu xây nhà cấp 4 mái Thái 500 triệu ở nông thôn là lựa chọn hàng đầu nhờ thiết kế thanh thoát, khả năng chống nóng tốt và phù hợp với điều kiện khí hậu Việt Nam. Với kết cấu đơn giản, mẫu nhà này vẫn đảm bảo không gian sinh hoạt tiện nghi cho gia đình từ 3 - 4 người. Kiểu nhà mái Thái còn giúp ngôi nhà trở nên cao ráo, sang trọng và thoáng đãng hơn.

Mẫu nhà mái Thái 1 tầng 500 triệu ở nông thôn đẹp, tiện nghi, sang trọng (Nguồn: Internet)

Mẫu nhà cấp 4 mái Thái 3 phòng ngủ 500 triệu ở nông thôn đơn giản, thiết kế thanh thoát (Nguồn: Internet)
>> Xem thêm:
Mẫu nhà 500 triệu mái lệch ở nông thôn là một lựa chọn hiện đại, phù hợp với các gia đình trẻ yêu thích sự mới lạ và cá tính trong thiết kế. Với ngân sách 500 triệu, diện tích sẽ dao động từ 70 đến 100m² cho phép bố trí không gian sống hợp lý và tiện nghi, bao gồm 2 phòng ngủ, phòng khách liền bếp. Ngoài ra, bạn cũng có thể tận dụng diện tích để thiết kế sân trước hoặc một khoảng vườn nhỏ, tạo điểm nhấn xanh mát cho ngôi nhà.

Mẫu nhà cấp 4 500 triệu ở nông thôn thiết kế mái lệch độc đáo, cá tính (Nguồn: Internet)

Mẫu nhà mái lệch 500 triệu kiểu dáng hiện đại, mới lạ (Nguồn: Internet)
>> Đọc thêm:
Mẫu xây nhà 500 triệu ở nông thôn mái bằng là kiểu thiết kế hiện đại với phần mái được đổ bê tông cốt thép chắc chắn, giúp tăng khả năng chịu lực và chống chọi hiệu quả với thời tiết khắc nghiệt. Một trong những ưu điểm nổi bật của mẫu nhà này là có thể tận dụng phần mái để làm sân thượng, khu phơi đồ hoặc không gian sinh hoạt ngoài trời.

Mẫu nhà 500 triệu nông thôn mái bằng để tận dụng phần mái làm sân thượng (Nguồn: Internet)

Mẫu nhà cấp 4 mái bằng 500 triệu ở nông thôn là lựa chọn thông minh (Nguồn: Internet)

Mẫu nhà cấp 4 mái bằng chữ L hiện đại, sang trọng ở nông thôn (Nguồn: Ảnh được tạo bởi AI)
>> Xem thêm:
Mẫu nhà 500 triệu mái tôn đẹp là lựa chọn lý tưởng cho những gia đình muốn sở hữu không gian sống tiện nghi với chi phí hợp lý. Mái tôn giúp tiết kiệm đáng kể chi phí xây dựng, đặc biệt phù hợp với điều kiện ở nông thôn. Bên cạnh đó, các loại tôn hiện đại ngày nay được sản xuất với tính năng chống nóng, chống ồn, mang lại sự thoải mái cho người ở. Với thiết kế đơn giản, màu sắc đa dạng và dễ thi công, mẫu nhà mái tôn không chỉ tiết kiệm mà vẫn đảm bảo tính thẩm mỹ và độ bền theo thời gian.

Mẫu nhà 500 triệu mái tôn ở nông thôn đẹp giúp tiết kiệm chi phí đáng kể (Nguồn: Internet)

Mẫu nhà cấp 4 chữ L mái tôn thiết kế thông minh, giá rẻ, phù hợp khu vực nông thôn (Nguồn: Internet)
>> Xem thêm:
Mẫu nhà gác lửng 500 triệu ở nông thôn là giải pháp tối ưu diện tích mặt sàn trong điều kiện quỹ đất hạn chế. Thiết kế gác lửng không chỉ tạo thêm không gian sử dụng mà còn mang lại điểm nhấn hiện đại cho ngôi nhà. Đây là kiểu nhà rất được ưa chuộng tại các vùng nông thôn hiện nay nhờ tính linh hoạt trong bố trí công năng và chi phí xây dựng hợp lý.

Mẫu nhà gác lửng 500 triệu ở nông thôn đẹp, hiện đại, tối ưu không gian (Nguồn: Internet)

Mẫu nhà gác lửng 2 phòng ngủ giá 500 triệu ở nông thôn kiểu dáng đơn giản, hiện đại (Nguồn: Internet)
>> Xem thêm:
Nhà sàn bê tông là một lựa chọn lý tưởng cho những khu vực có địa hình thấp, dễ bị ngập nước hoặc cần giải pháp thoát nước tốt. Với chi phí 500 triệu, bạn có thể xây dựng một ngôi nhà sàn bê tông kiên cố, bền vững theo thời gian. Đặc biệt, việc sử dụng tấm xi măng DURAflex Low Carbon để ốp tường trang trí, vách ngăn phòng giúp gia tăng độ bền của công trình, đồng thời bảo vệ sức khỏe gia đình nhờ vào chất liệu thân thiện với môi trường và khả năng chống ẩm mốc và chống nóng tường nhà hiệu quả.
>> Để nhận được tư vấn và bảng giá chi tiết vật liệu tấm xi măng DURAflex Low Carbon làm sàn - tường - vách khi xây nhà 500 triệu ở nông thôn vui lòng bấm:

Mẫu nhà sàn bê tông 500 triệu bền đẹp, thiết kế độc đáo (Nguồn: Internet)

Mẫu nhà sàn bê tông 500 triệu ở nông thôn đơn giản, tiết kiệm chi phí (Nguồn: Internet)
>> Xem thêm:
Mẫu nhà cấp 4 nông thôn 3 phòng ngủ dưới 500 triệu là lựa chọn lý tưởng cho các gia đình có từ 4 đến 6 thành viên. Thiết kế thường theo kiểu nhà cấp 4 mái Nhật hoặc nhà cấp 4 mái bằng, giúp tối ưu chi phí vật tư và nhân công. Với cách bố trí thông minh, các phòng ngủ được phân chia hợp lý, đảm bảo sự riêng tư nhưng vẫn thuận tiện trong sinh hoạt. Không gian bếp và phòng khách thường được thiết kế liền kề, tạo sự thoáng đãng và tiết kiệm diện tích. Các vật liệu xây dựng chất lượng cao như tấm cemboard DURAflex Low Carbon, tấm xi măng giả gỗ DURAwood Low Carbon thường được ứng dụng làm tấm lót sàn, lót mái chống nóng để đảm bảo chất lượng mà vẫn tiết kiệm ngân sách.

Mẫu nhà cấp 4 mái Nhật 3 phòng ngủ 500 triệu ở nông thôn đẹp, đầy đủ tiện nghi, xu hướng 2026 (Nguồn: Internet)

Mẫu nhà cấp 4 3 phòng ngủ 500 triệu mái Thái ở nông thôn thiết kế tối giản (Nguồn: Internet)
>> Xem thêm:
Mẫu xây nhà 500 triệu ở nông thôn cấp 4 là lựa chọn lý tưởng cho những gia đình muốn sở hữu không gian sống tiện nghi, thoải mái trong điều kiện tài chính vừa phải. Với thiết kế đơn giản, tiết kiệm nhưng vẫn đảm bảo đầy đủ công năng sử dụng, nhà cấp 4 mang đến sự phù hợp cao với nhu cầu sinh hoạt tại các vùng quê. Đây cũng là kiểu nhà được ưa chuộng nhờ chi phí xây dựng hợp lý, thời gian thi công nhanh chóng và khả năng linh hoạt trong thiết kế theo sở thích cá nhân hoặc đặc điểm khu đất.

Mẫu nhà cấp 4 nông thôn 500 triệu đơn giản, hiện đại, tiện nghi (Nguồn: Internet)

Mẫu nhà 500 triệu ở nông thôn với chi phí thi công hợp lý (Nguồn: Internet)
>> Đọc thêm:
Nhà cấp 4 chữ L luôn nằm trong danh sách các mẫu nhà được yêu thích tại nông thôn nhờ thiết kế linh hoạt và phù hợp với lối sống gia đình Việt. Với chi phí khoảng 500 triệu đồng, mẫu nhà này thường có diện tích xây dựng từ 80 - 100m², đáp ứng đầy đủ các phòng chức năng gồm phòng khách, bếp, phòng thờ và 2 - 3 phòng ngủ. Kiểu dáng nhà chữ L giúp tạo khoảng sân trước hoặc bên hông, thích hợp làm chỗ để xe hoặc không gian sinh hoạt ngoài trời. Trong đó, mẫu nhà cấp 4 chữ L giá 500 triệu ở nông thôn với hệ mái Thái hoặc mái Nhật thường được lựa chọn nhằm tăng tính thẩm mỹ và khả năng chống nóng hiệu quả, rất phù hợp với điều kiện khí hậu nông thôn.

Mẫu nhà mái Nhật cấp 4 chữ L giá 500 triệu ở nông thôn được nhiều gia đình Việt ưa chuộng (Nguồn: Internet)

Mẫu nhà cấp 4 đẹp 5x20 chữ L giá 500 triệu ở nông thôn nhỏ gọn (Nguồn: Internet)

Mẫu nhà cấp 4 chữ L giá 500 triệu ở nông thôn đơn giản, đẹp (Nguồn: Internet)

Mẫu nhà cấp 4 mái ngói thiết kế chữ L ở nông thôn giá 500 triệu (Nguồn: Internet)

Mẫu nhà cấp 4 ở nông thôn thiết kế chữ L giá 500 triệu đẹp, ấn tượng (Nguồn: Internet)

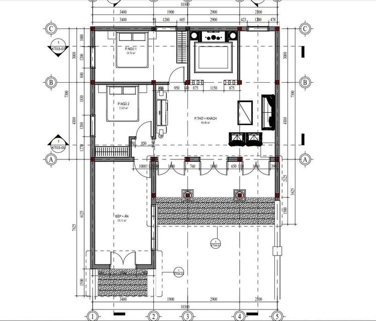
Bản vẽ nhà cấp 4 chữ L giá 500 triệu ở nông thôn (Nguồn: Internet)
>> Xem thêm:
Nếu gia đình bạn yêu thích sự đơn giản, tinh tế và tiện nghi thì mẫu nhà 1 tầng đẹp giá rẻ trong tầm 500 triệu là gợi ý đáng tham khảo. Thiết kế hiện đại với đường nét vuông vức, sử dụng màu sơn sáng và các mảng kính lớn giúp ngôi nhà trông rộng rãi và sáng sủa hơn. Bố cục công năng thường gồm 2 phòng ngủ, phòng khách liền bếp, nhà vệ sinh chung, đảm bảo đáp ứng đầy đủ nhu cầu sinh hoạt. Nhờ áp dụng các giải pháp thi công tiết kiệm và sử dụng vật liệu thân thiện với môi trường như tấm bê tông siêu nhẹ DURAflex Low Carbon, mẫu nhà này không chỉ tiết kiệm chi phí mà còn mang lại không gian sống gần gũi, thoải mái và dễ bảo trì trong dài hạn.

Mẫu nhà cấp 4 giá 500 triệu đẹp, giá rẻ, tiện nghi (Nguồn: Internet)

Mẫu xây nhà 500 triệu ở nông thôn 1 tầng mái bằng đẹp, thiết kế tinh tế (Nguồn: Internet)
>> Đọc thêm:
Mẫu xây nhà 2 tầng 500 triệu ở nông thôn là lựa chọn lý tưởng cho những gia đình có nhu cầu sử dụng không gian rộng rãi và có thể tận dụng diện tích đất ở nông thôn. Với ngân sách 500 triệu đồng, bạn hoàn toàn có thể xây dựng một mẫu nhà 2 tầng đẹp ở nông thôn với thiết kế đơn giản, hiện đại và đầy đủ tiện nghi. Bên cạnh đó, bạn cũng có thể tối ưu hóa không gian bằng cách bố trí các phòng hợp lý, nhằm mang lại sự thoải mái cho cả gia đình. Mẫu nhà 2 tầng này không chỉ đẹp mắt mà còn giúp gia đình bạn có thêm không gian sống và sinh hoạt tiện lợi.

Mẫu nhà 2 tầng đẹp 500 triệu ở nông thôn tiết kiệm ngân sách, đơn giản (Nguồn: Internet)

Mẫu xây nhà mái Nhật 2 tầng 500 triệu ở nông thôn đẹp giá rẻ (Nguồn: Internet)

Mẫu 8x12m nhà mái Nhật 2 tầng 500 triệu ở nông thôn đẹp, hiện đại, sang trọng (Nguồn: Internet)
>> Xem thêm:
Xây nhà 500 triệu 100m2 ở nông thôn mang đến một không gian rộng rãi và thoải mái cho các gia đình. Cụ thể, bạn có thể xây dựng một ngôi nhà một tầng hoặc hai tầng tùy theo nhu cầu và sở thích. Mẫu nhà này thích hợp với các gia đình ít người hoặc gia đình có diện tích đất rộng. Ngoài ra, sự kết hợp giữa không gian xanh, thiết kế sân vườn và các khu vực sinh hoạt chính sẽ tạo ra một môi trường sống lý tưởng và thư giãn cho gia đình bạn.

Xây nhà 500 triệu 100m2 ở nông thôn với thiết kế mái bằng hiện đại, tiện lợi (Nguồn: Internet)

Xây nhà vườn cấp 4 nông thôn 500 triệu 100m2 rộng rãi, phù hợp gia đình có 3 - 4 thành viên (Nguồn: Internet)
>> Xem thêm:
Với chi phí chỉ khoảng 500 triệu, bạn vẫn có thể sở hữu một ngôi nhà mang đậm phong cách châu Âu, sang trọng không kém gì những căn nhà tiền tỷ. Thiết kế sử dụng mái vòm, mái bằng hoặc các chi tiết đối xứng thanh lịch, kết hợp với gam màu trung tính và nội thất tối giản, tạo nên không gian vừa hiện đại vừa trang nhã. Dù ở nông thôn hay thành thị, mẫu nhà này vẫn mang lại vẻ đẹp khác biệt, tinh tế và đẳng cấp cho gia đình yêu thích sự xa hoa mà vẫn tiết kiệm chi phí.

Mẫu nhà 500 triệu ở nông thôn phong cách châu Âu tạo sự tinh tế và khác biệt (Nguồn: Internet)
>> Xem thêm:
Mẫu nhà 500 triệu ở nông thôn thường mang đến một thiết kế đơn giản nhưng vẫn đảm bảo tính thẩm mỹ và công năng. Với mức ngân sách hạn chế, việc lựa chọn vật liệu xây dựng hợp lý là yếu tố quan trọng, giúp cân đối giữa độ bền và chi phí. Diện tích xây dựng của những ngôi nhà này thường dao động từ 70 - 120m2, đáp ứng nhu cầu sinh hoạt của gia đình từ 3 - 5 thành viên. Ngoài ra, không gian sân vườn rộng rãi là một đặc điểm nổi bật, giúp không gian sống trở nên thoáng đãng và gần gũi với thiên nhiên.
Trước xu hướng dịch chuyển về nông thôn để tận hưởng cuộc sống yên bình, việc xây nhà với ngân sách 500 triệu đang trở thành lựa chọn tối ưu cho nhiều gia đình. Theo các kiến trúc sư, mô hình này không chỉ khả thi mà còn mang đến nhiều lợi ích thiết thực, phù hợp với nhu cầu sử dụng lâu dài:

Mẫu nhà 500 triệu ở nông thôn có không gian sống rộng rãi, gần gũi với thiên nhiên (Nguồn: Internet)
>> Xem thêm:
Tuy việc xây nhà 500 triệu ở nông thôn mang lại nhiều lợi ích về chi phí và không gian sống yên bình, nhưng bên cạnh đó cũng tồn tại một số nhược điểm mà bạn cần cân nhắc kỹ lưỡng trước khi quyết định. Dưới góc nhìn của các chuyên gia xây dựng, những hạn chế dưới đây có thể ảnh hưởng trực tiếp đến chất lượng cuộc sống cũng như tiềm năng phát triển trong tương lai:

Xây nhà 500 triệu ở nông thôn cần lưu ý đến nhược điểm khó cải tạo và mở rộng trong tương lai (Nguồn: Internet)
>> Xem thêm:
Với ngân sách 500 triệu, việc xây dựng một ngôi nhà ở nông thôn đòi hỏi sự tính toán kỹ lưỡng để đảm bảo tối ưu chi phí mà vẫn đáp ứng đầy đủ nhu cầu sinh hoạt. Dưới đây là những lưu ý quan trọng được các nhà thầu chuyên nghiệp khuyến nghị, giúp bạn đưa ra quyết định đúng đắn và tiết kiệm chi phí hiệu quả.
Việc chọn đúng vật liệu không chỉ giúp giảm thiểu chi phí mà còn góp phần nâng cao độ bền và tính thẩm mỹ cho ngôi nhà. Với xu hướng xanh và tiết kiệm hiện nay, các loại vật liệu nhẹ, bền, dễ thi công như tấm bê tông đúc sẵn DURAflex Low Carbon hoặc tấm DURAwood Low Carbon là lựa chọn lý tưởng. Đây là các dòng vật liệu xanh, có khả năng cách âm, chịu ẩm, chống mối mọt tốt và đặc biệt thân thiện với môi trường rất phù hợp với điều kiện khí hậu tại nông thôn Việt Nam.

Lựa chọn đúng vật liệu khi xây nhà 500 triệu ở nông thôn giúp nâng cao độ bền và tính thẩm mỹ (Nguồn: Internet)
>> Đọc thêm:
Với chi phí giới hạn, việc bố trí mặt bằng cần hướng đến sự tối ưu về công năng. Hãy ưu tiên thiết kế không gian mở giữa phòng khách, bếp và phòng ăn để tiết kiệm diện tích và tạo cảm giác rộng rãi hơn. Sử dụng vách ngăn nhẹ hoặc kệ trang trí đa năng cũng là giải pháp hiệu quả để phân chia không gian mà không tốn kém.
Nội thất nên chọn theo tiêu chí “ít nhưng chất”. Những món đồ đa năng, gọn nhẹ và dễ di chuyển sẽ giúp tiết kiệm diện tích và chi phí mua sắm. Gỗ công nghiệp, nhựa giả gỗ hay inox là những vật liệu được ưa chuộng nhờ giá thành hợp lý, độ bền cao và dễ phối hợp với nhiều phong cách thiết kế nhà ở nông thôn.
Tận dụng nguồn sáng tự nhiên là một trong những giải pháp hiệu quả giúp tiết kiệm điện năng và tạo cảm giác thông thoáng cho ngôi nhà. Khi xây nhà 500 triệu ở nông thôn hãy thiết kế hệ thống cửa sổ hợp lý ở các hướng đón nắng như Đông và Nam, đồng thời sử dụng kính hoặc gạch kính để tăng cường khả năng chiếu sáng mà vẫn đảm bảo sự riêng tư cho các không gian sinh hoạt.
Phong thủy là yếu tố quan trọng trong xây dựng nhà ở, đặc biệt là ở nông thôn, nơi văn hóa truyền thống được xem trọng. Hướng nhà, vị trí đặt bếp, nhà vệ sinh hay cửa chính cần được cân nhắc kỹ lưỡng để đảm bảo sự hài hòa về năng lượng, mang đến may mắn và sức khỏe cho gia đình. Nếu có điều kiện, bạn nên tham khảo ý kiến chuyên gia phong thủy để có phương án bố trí hợp lý nhất.

Xây nhà 500 triệu ở nông thôn đẹp, chuẩn phong thuỷ (Nguồn: Internet)
>> Đọc thêm:
Với ngân sách khoảng 500 triệu đồng, việc xây dựng một ngôi nhà cấp 4 không phải là quá thấp cũng không quá cao, đủ để tạo nên một không gian sống rộng rãi nếu biết cách tính toán hợp lý. Gia chủ nên chú trọng tối ưu chi phí trong suốt quá trình thi công để đạt được hiệu quả cao nhất. Tuy nhiên, không phải ai cũng có kinh nghiệm trong lĩnh vực xây dựng, điều này dễ dẫn đến những sai sót làm ảnh hưởng đến chất lượng công trình. Vì vậy, bạn cần lưu ý những điểm sau:
Việc thống nhất lựa chọn mẫu thiết kế nhà ngay từ đầu là bước quan trọng, vì nó ảnh hưởng trực tiếp đến tổng thể kiến trúc, khối lượng vật liệu cần dùng và tiến độ thi công. Mẫu nhà phù hợp cần được lựa chọn dựa trên sở thích cá nhân và nhu cầu sinh hoạt thực tế của gia chủ. Một ngôi nhà hoàn chỉnh nên đảm bảo đầy đủ các không gian chức năng cơ bản như phòng khách, phòng ngủ, bếp, nhà vệ sinh,… để đáp ứng tiện nghi cho cuộc sống hàng ngày.

Khi xây nhà 500 triệu ở nông thôn nên đảm bảo đầy đủ phòng khách, phòng ngủ, bếp, nhà vệ sinh (Nguồn: Internet)
>> Xem thêm:
Dù ở mức chi phí 500 triệu, một ngôi nhà vẫn cần được chú trọng đến yếu tố thẩm mỹ để định hình rõ phong cách tổng thể. Gia chủ có thể lựa chọn giữa các phong cách như hiện đại, cổ điển hoặc tân cổ điển, tùy theo sở thích và định hướng cá nhân. Việc xác định phong cách ngay từ đầu giúp ngôi nhà được hoàn thiện một cách đồng bộ và hài hòa.
Bên cạnh đó, dấu ấn cá nhân cũng là yếu tố không thể thiếu. Những chi tiết như màu sơn tường, chất liệu nội thất, cách bài trí chính là điểm nhấn thể hiện cá tính của gia chủ. Do đó, hãy đầu tư thời gian cân nhắc và lựa chọn cẩn thận để không gian sống vừa đẹp mắt, vừa mang đậm phong cách riêng.

Nên lựa chọn giữa các phong cách như hiện đại, cổ điển hoặc tân cổ điển ngay từ đầu để đảm bảo tính đồng bộ khi thi công (Nguồn: Internet)
>> Tham khảo:
Để xây nhà 500 triệu ở nông thôn, việc phân bổ chi phí hợp lý là yếu tố then chốt. Gia chủ cần cân đối giữa các hạng mục như thi công phần thô, hoàn thiện, nội thất và chuẩn bị quỹ dự phòng để tránh phát sinh vượt mức.Tốt nhất nên lập bản kế hoạch chi tiết, liệt kê rõ từng khoản chi. Theo kinh nghiệm từ các nhà thầu, một mẫu phân bổ chi phí phổ biến gồm:
Tổng chi phí có thể thay đổi tùy theo diện tích, khu vực và mức độ hoàn thiện. Do đó, gia chủ nên chủ động điều chỉnh linh hoạt để đảm bảo công trình vừa đẹp, vừa nằm trong khả năng tài chính.
Việc lựa chọn đúng nhà thầu không chỉ giúp bạn kiểm soát tốt chi phí mà còn đảm bảo tiến độ và chất lượng công trình. Ưu tiên những đơn vị có kinh nghiệm, minh bạch trong báo giá và có hợp đồng rõ ràng. Ngoài ra, bạn nên tham khảo các công trình họ đã thực hiện hoặc ý kiến đánh giá từ khách hàng trước đó để có cái nhìn khách quan.

Ưu tiên lựa chọn những nhà thầu uy tín có kinh nghiệm, minh bạch khi xây nhà 500 triệu ở nông thôn (Nguồn: Internet)
>> Xem thêm:
Xây nhà 500 triệu ở nông thôn vừa đẹp, vừa tiết kiệm là một mục tiêu hoàn toàn khả thi nếu bạn có sự chuẩn bị kỹ lưỡng, kế hoạch thông minh và áp dụng những kinh nghiệm được chia sẻ trong bài viết này. Hãy tự tin hiện thực hóa giấc mơ về một tổ ấm bình yên, ấm cúng giữa không gian xanh mát của làng quê Việt Nam. Chúc bạn thành công!
Nếu có bất kỳ thắc mắc nào liên quan đến tấm xi măng DURAflex Low Carbon hoặc tấm xi măng vân gỗ DURAwood làm ốp - lót sàn, tường, vách ngăn khi xây nhà ở nông thôn, quý khách hàng vui lòng liên hệ:
Bài viết liên quan
Đánh giá và nhận xét
Đánh giá trung bình
0/5
5
4
3
2
1
Chia sẻ và nhận xét về bài viết
Chia sẻ và nhận xét về bài viết
Bài viết chưa có đánh giá nào