55 - 63/500 Bài viết liên quan
Bài viết ý tưởng
Tấm xi măng vân gỗ 150x1220x8mm ốp tường ngoại thất ngoài trời
DURAflex đăng vào lúc 26/12/2025 - 23:47 Ngoài tường và trần, sàn nhà là một bộ phận xuyên suốt và quyết định tính thẩm mỹ của ngôi nhà. Vậy nên lựa chọn một vật liệu giúp tô điểm cho ngôi nhà thêm hài hòa cũng là một yếu tố cần được quan tâm. Trong bài viết này, cùng DURAflex tìm hiểu các loại tấm lót sàn xi măng giả gỗ đẹp, được ưa chuộng nhất hiện nay
Chi tiếtBài viết ý tưởng
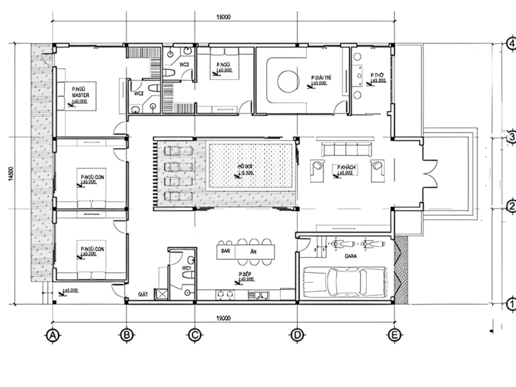
Top 25+ bản vẽ nhà cấp 4 đơn giản, đầy đủ chi tiết nhất 2026
DURAflex đăng vào lúc 26/12/2025 - 21:53 Việc sở hữu bản vẽ nhà cấp 4 không chỉ giúp chủ nhà và đội ngũ thi công nắm rõ thiết kế tổng thể mà còn tối ưu hóa việc bố trí công năng, tạo tiền đề cho việc hoàn thiện một ngôi nhà như ý. Trong bài viết này, DURAflex sẽ giới thiệu đến bạn những mẫu bản vẽ nhà cấp 4 đẹp, đơn giản, chi tiết và các lưu ý quan trọng khi lên kế hoạch xây dựng để đảm bảo chất lượng công trình tốt nhất.
Chi tiếtBài viết ý tưởng
30+ Mẫu nhà sàn đẹp, đơn giản, lưu giữ văn hóa thời hiện đại
DURAflex đăng vào lúc 26/12/2025 - 17:10 Nhà sàn, một kiến trúc truyền thống gắn liền với hình ảnh làng quê Việt Nam, đặc biệt là các vùng miền núi. Với thiết kế độc đáo, gần gũi thiên nhiên, nhà sàn không chỉ là nơi sinh sống mà còn là biểu tượng văn hóa của nhiều dân tộc thiểu số. Bài viết này DURAflex sẽ đưa bạn đi khám phá các loại nhà sàn, từ lịch sử, đặc điểm đến những mẫu nhà sàn đơn giản, đẹp, hiện đại, ấn tượng nhất năm 2026.
Chi tiếtBài viết ý tưởng
Nhà tiền chế là gì? Tất cả thông tin về nhà tiền chế từ A-Z
DURAflex đăng vào lúc 26/12/2025 - 16:00 Không chỉ được ứng dụng rộng rãi trong công nghiệp, nhà tiền chế còn trở thành xu hướng mới cho nhà ở dân dụng, thu hút sự quan tâm của nhiều người nhờ tốc độ thi công nhanh, chi phí hợp lý và tính linh hoạt cao. Bài viết này DURAflex sẽ cung cấp cho bạn cái nhìn toàn diện từ A-Z về loại hình nhà ở đặc biệt này.
Chi tiếtBài viết ý tưởng
105+ Mẫu nhà mái Nhật đẹp, hiện đại, sang trọng, xu hướng
DURAflex đăng vào lúc 26/12/2025 - 16:00 Nhà mái Nhật với thiết kế đơn giản, tinh tế và gần gũi với thiên nhiên, đang ngày càng trở thành xu hướng được nhiều người ưa chuộng. Không chỉ sở hữu vẻ đẹp hiện đại, các mẫu nhà mái Nhật còn mang đến không gian sống thoải mái, tiện nghi. Bài viết này DURAflex sẽ giới thiệu đến bạn đọc các mẫu nhà mái Nhật đẹp, hiện đại, đa dạng phong cách, từ thiết kế cấp 4 đến nhà ống 1 tầng, 2 tầng... chắc chắn sẽ là nguồn cảm hứng bất tận cho ngôi nhà tương lai của bạn.
Chi tiếtBài viết ý tưởng
99+ Mẫu nhà container giá rẻ, hiện đại, bền đẹp nhất 2026
DURAflex đăng vào lúc 26/12/2025 - 14:46 Mẫu nhà container đang trở nên phổ biến hơn bao giờ hết nhờ vào thiết kế độc đáo, hiện đại. Ngoài ra, chi phí xây dựng nhà container cũng thấp hơn so với nhà truyền thống, nhưng lại mang đến sự đẹp mắt và tính ứng dụng vượt trội. Hãy cùng DURAflex tìm hiểu về các mẫu nhà container giá rẻ, đẹp cùng với báo giá thi công trọn gói để bạn có thêm một lựa chọn cho thiết kế căn nhà tương lai của mình trong bài viết này nhé!
Chi tiếtBài viết ý tưởng
59+ Mẫu nhà gác lửng 2 phòng ngủ đẹp, hiện đại & chi phí xây nhà
DURAflex đăng vào lúc 25/12/2025 - 19:00 Nhà gác lửng 2 phòng ngủ là giải pháp lý tưởng cho những ai yêu thích sự tiện nghi và tối ưu không gian sống. Với thiết kế thông minh, mẫu nhà này không chỉ mang đến vẻ đẹp hiện đại mà còn tận dụng diện tích hiệu quả, phù hợp cho gia đình nhỏ hoặc cặp vợ chồng trẻ. Cùng DURAflex khám phá những mẫu nhà gác lửng 2 phòng ngủ đẹp, hiện đại, tiện nghi, sang trọng để biến tổ ấm của bạn trở nên hoàn hảo hơn!
Chi tiếtBài viết ý tưởng
199+ Mẫu nhà mái nhật 2 tầng đẹp, hiện đại, đơn giản 2026
DURAflex đăng vào lúc 25/12/2025 - 16:45 Những mẫu nhà mái Nhật 2 tầng đẹp hiện đang trở thành xu hướng thiết kế được nhiều gia chủ lựa chọn nhờ sự hài hòa giữa tính thẩm mỹ hiện đại và công năng tiện nghi. Kiểu mái này không chỉ tạo nên vẻ đẹp thanh lịch, tinh tế mà còn giúp không gian sống trở nên thông thoáng, mát mẻ. Nếu bạn đang tìm kiếm ý tưởng cho mẫu nhà 2 tầng mái Nhật, hãy cùng DURAflex khám phá những mẫu thiết kế độc đáo, ấn tượng và phù hợp với nhiều phong cách trong bài viết dưới đây.
Chi tiếtBài viết ý tưởng
Cải tạo nhà thành homestay siêu đẹp, độc đáo, ấn tượng 2026
Ngành du lịch Việt Nam đang ngày càng phát triển, thu hút lượng lớn du khách trong và ngoài nước. Nắm bắt được xu hướng này, nhiều gia đình đã biến tấu ngôi nhà của mình thành những homestay độc đáo, thu hút du khách bởi sự gần gũi, ấm cúng và mang đậm dấu ấn riêng. Bài viết này DURAflex sẽ chia sẻ một số bí quyết để bạn có thể cải tạo nhà thành homestay siêu đẹp, giúp thu hút du khách và gia tăng nguồn thu nhập cho gia đình.
Chi tiết



