
DURAflex đăng vào lúc 24/02/2026 - 17:38
Mẫu nhà ống 2 tầng là giải pháp lý tưởng về kinh tế dành cho các gia đình trẻ từ 3 - 4 thành viên. Với thiết kế nội ngoại thất thông minh, những mẫu nhà này không chỉ mang lại sự sang trọng, hiện đại mà còn đảm bảo đầy đủ tiện nghi cho cuộc sống. Hãy cùng DURAflex khám phá 199+ hình ảnh 3D về mẫu nhà ống 2 tầng đẹp, hiện đại ở nông thôn và thành thị đang được yêu thích nhất năm 2026 trong bài viết dưới đây!
Hãy cùng DURAflex tìm hiểu và tham khảo các mẫu thiết kế nhà ống 2 tầng đơn giản và hiện đại ngay nhé.
Mẫu nhà ống 2 tầng đẹp ở nông thôn với diện tích thoải mái, dễ dàng trang trí nhiều cây cối xung quanh. Ngôi nhà sẽ trở nên mộc mạc với ban công hoa lá và thiết kế tinh giản.

Mẫu nhà 2 tầng đẹp ở nông thôn được yêu thích hiện nay (Nguồn: Internet)

Mẫu nhà ống 2 tầng đẹp ở nông thôn thiết kế hiện đại, sang trọng (Nguồn: Internet)
Nếu bạn không muốn trang trí mẫu nhà ống 2 tầng đẹp ở nông thôn với toàn bộ tông màu trắng quen thuộc, thì mẫu nhà này sẽ là lựa chọn đáng cân nhắc. Thiết kế mặt tiền hiện đại nổi bật với mảng tường được ốp lát bằng tấm vân gỗ DURAwood mang lại cảm giác ấm cúng và gần gũi. Đặc biệt, khi kết hợp với hệ thống đèn chiếu sáng ban đêm, ngôi nhà không chỉ trở nên lung linh hơn mà còn toát lên vẻ sang trọng và cuốn hút.

Mẫu nhà ống 2 tầng đẹp ở nông thôn sang trọng, tiện nghi (Nguồn: Internet)

Hình ảnh 3D mẫu nhà 2 tầng đẹp ở nông thôn với nhiều cây xanh xung quanh (Nguồn: Internet)

Mẫu nhà ống 2 tầng đẹp ở nông thôn thiết kế đơn giản (Nguồn: Internet)

Mẫu nhà ống 2 tầng đẹp ở nông thôn thiết kế ấn tượng (Nguồn: Internet)

Mẫu nhà ống 2 tầng đẹp ở nông thôn giá rẻ (Nguồn: Internet)

Mẫu nhà 2 tầng đẹp ở nông thôn phong cách đơn giản (Nguồn: Internet)
Tham khảo bản vẽ 3D mẫu nhà ống 2 tầng đẹp ở nông thôn có thiết kế nhà đẹp mắt và cách bố trí công năng khoa học.

Hình vẽ 3D nhà ống 2 tầng đẹp ở nông thôn (Nguồn: Internet)
>>Đọc thêm:
Nếu hạn chế về chi phí, bạn có thể lựa chọn mẫu nhà ống 2 tầng như mẫu nhà 1 trệt 1 lầu 5x20 giá rẻ khoảng 300-500 triệu. Mẫu nhà này sẽ lược bỏ các chi tiết trang trí rườm rà, thiết kế đơn giản với đủ các công năng sử dụng cơ bản, phù hợp với túi tiền của nhiều gia đình.

Mặt tiền nhà ống 2 tầng đơn giản mà đẹp (Nguồn: Internet)

Mẫu nhà ống 2 tầng đơn giản, đẹp, tiết kiệm chi phí (Nguồn: Internet

Mẫu nhà ống 2 tầng đơn giản, đẹp chi phí thấp hiện nay (Nguồn: Internet)

Mẫu nhà ống 2 tầng đơn giản, đẹp có gara ô tô (Nguồn: Internet)

Mẫu nhà ống 2 tầng đơn giản, đẹp được yêu thích nhất hiện nay (Nguồn: Internet)
>> Tham khảo thêm:
Mẫu nhà ống 2 tầng chi phí thấp là lựa chọn lý tưởng cho những gia đình muốn sở hữu một không gian sống tiện nghi, hiện đại mà vẫn tiết kiệm ngân sách. Với thiết kế tối ưu hóa diện tích, những mẫu nhà này thường có kiểu dáng gọn gàng, đáp ứng đầy đủ các nhu cầu sử dụng cơ bản như phòng khách, phòng ngủ, bếp và nhà vệ sinh.
Image
Mẫu nhà ống 2 tầng đẹp chi phí thấp 2026 (Nguồn: Internet)

Mẫu nhà ống 2 tầng chi phí thấp có thiết kế ấn tượng, mới lạ (Nguồn: Internet)
>> Đọc thêm:
Mẫu nhà ống 2 tầng tân cổ điển kết hợp giữa hai phong cách cổ điển và hiện đại. Với mặt tiền thiết kế ấn tượng, căn nhà của bạn sẽ trở nên đặc biệt và tạo điểm nhấn phá cách. Sử dụng tấm xi măng DURAflex làm mặt tiền, bạn có thể tạo nên nét đẹp cổ điển và tự nhiên cho ngôi nhà. Tấm xi măng DURAflex có bề mặt phẳng mịn và đặc tính không bị biến dạng dưới tác động của thời tiết, giúp duy trì vẻ đẹp của mặt tiền theo thời gian.

Mẫu biệt thự tân cổ điển 2 tầng 1 tỷ hiện đại, sang trọng (Nguồn: Internet)

Mẫu nhà ống 2 tầng đẹp tân cổ điển (Nguồn: Internet)

Mẫu nhà 2 tầng đẹp, sang trọng tân cổ điển (Nguồn: Internet)

Mẫu nhà ống 2 tầng đẹp, hiện đại tân cổ điển (Nguồn: Internet)

Mẫu nhà ống 2 tầng đẹp tân cổ điển dẫn đầu xu hướng 2026 (Nguồn: Internet)
>> Để nhận được tư vấn và bảng giá chi tiết vật liệu tấm xi măng DURAflex 2X làm vách ngăn phòng khách, vui lòng bấm:
Ngôi nhà ống 2 tầng hiện đại có các đường nét dứt khoát, mạnh mẽ cùng những hình khối thiết kế khỏe khoắn và trẻ trung tạo nên sự hiện đại. Gam màu chủ đạo trắng sáng và sân trước rộng để giúp ngôi nhà trở nên thoáng mát hơn là lựa chọn cực kỳ thông minh của gia chủ.
>> TOP 20+ mẫu nhà container đẹp, giá rẻ với thiết kế độc đáo nhất 2026

Thiết kế mẫu nhà ống 2 tầng hiện đại, tiện lợi cho gia đình (Nguồn: Internet)

Mẫu nhà ống 2 tầng hiện đại 80m2 có tone màu trắng trang nhã (Nguồn: Internet)

Mẫu mặt tiền nhà ống 2 tầng hiện đại (Nguồn: Internet)

Mẫu thiết kế nhà ống 2 tầng đẹp, hiện đại (Nguồn: Internet)

Bản vẽ mẫu nhà ống 2 tầng đẹp, hiện đại (Nguồn: Internet)
>> Xem thêm:
Ngôi nhà ống 2 tầng với kích thước 5x12 có thể giản lược những đường nét phức tạp và tập trung cho khoảng thiết kế sân vườn xanh mát. Chấm thêm vài nét độc đáo nhờ những tấm xi măng vân gỗ DURAwood ốp tường tạo nên không gian thân thiện với thiên nhiên.

Nhà ống 2 tầng 5x12 với thiết kế tinh gọn (Nguồn: Internet)

Mẫu nhà ống 2 tầng 5x12 đơn giản đẹp (Nguồn: Internet)
Với chiều rộng mặt tiền 5m, chiều sâu dài 15m, nhà ống 2 tầng được thiết kế chỉn chu đơn giản, phối hợp cùng những nội thất đa năng, tiết kiệm không gian sống và tạo sự thoáng đãng cho tổng thể căn hộ.

Nhà ống 2 tầng 5x15 đơn giản, mộc mạc (Nguồn: Internet)

Nhà ống 2 tầng đẹp 5x15 đơn giản, hiện đại (Nguồn: Internet

Nhà ống 2 tầng 5x15 đẹp, đơn giản (Nguồn: Internet)

Bản vẽ nhà ống 2 tầng 5x15 đẹp, hiện đại (Nguồn: Internet)
>> Có thể bạn quan tâm:
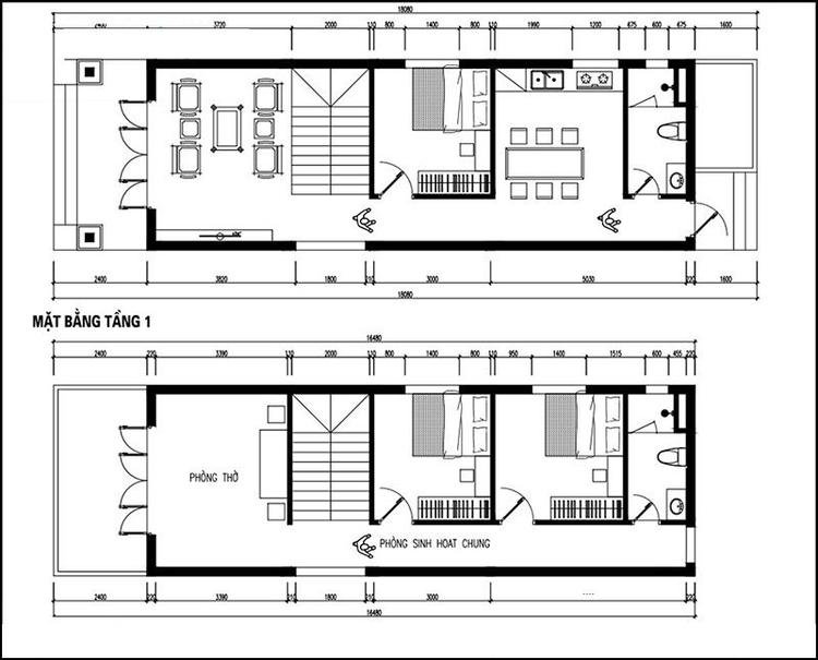
Với mẫu nhà ống 2 tầng diện tích 5x16m, để thiết kế có 3 phòng ngủ, các kiến trúc sư cần sắp xếp các phòng một cách hợp lý và linh hoạt để tối ưu hóa không gian sử dụng. Thông thường, thiết kế sẽ phân bổ 1 phòng ngủ ở tầng trệt và 2 phòng ngủ còn lại ở tầng trên.

Hình ảnh 3D nhà ống 2 tầng 5x16m chi phí thấp (Nguồn: Internet)

Mẫu nhà ống 2 tầng đẹp có diện tích 5x16m (Nguồn: Internet)

Mẫu nhà ống 2 tầng đẹp 5x16 sang trọng, tiện nghi (Nguồn: Internet)

Bản vẽ nhà ống 2 tầng có diện tích 5x16m (Nguồn: Internet)
Mẫu nhà ống 2 tầng với diện tích 5x18m có thể thiết kế 3 - 4 phòng ngủ, ưu tiên sử dụng gam màu sáng trung tính để giúp ngôi nhà rộng rãi và thoáng mát hơn.

Mẫu thiết kế nhà ống 2 tầng 5x18m tiện nghi cho gia đình (Nguồn: Internet)

Mẫu nhà ống 2 tầng đẹp 5x18 thiết kế đơn giản, độc đáo (Nguồn: Internet)

Bản vẽ nhà ống 2 tầng 5x18 đơn giản, đẹp (Nguồn: Internet)
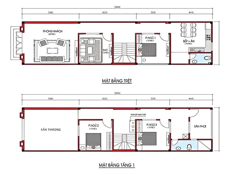
Mẫu nhà ống 2 tầng 5x20 dưới đây được thiết kế đơn giản với tầng 1 là hệ thống tường vách xi măng màu sắc sơn sáng. Tầng 2 được thiết kế với lan can bằng lam gỗ để tạo những điểm nổi bật cho ngôi nhà.
>> Xem thêm:

Mẫu nhà ống 2 tầng đẹp thiết kế 3 phòng ngủ với diện tích 5x20 (Nguồn: Internet)

Mẫu nhà ống 2 tầng đẹp 5x20 được ưa chuộng (Nguồn: Internet)

Mẫu nhà ống 2 tầng đẹp 5x20 hiện đại, chi phí thấp (Nguồn: Internet)

Mẫu nhà ống 2 tầng đẹp 5x20 thiết kế hiện đại (Nguồn: Internet)

Mẫu thiết kế nhà ống 2 tầng đẹp 5x20 chi tiết (Nguồn: Internet)

Bản vẽ nhà ống 2 tầng 5x20 đơn giản, dễ hiểu (Nguồn: Internet)

Bản vẽ 3D nhà ống 2 tầng đẹp diện tích 5x20m (Nguồn: Internet)

Hình ảnh 3D nhà ống 2 tầng đẹp, đầy đủ công năng sử dụng (Nguồn: Internet)
>> Để nhận được tư vấn và bảng giá chi tiết vật liệu tấm xi măng DURAflex 2X làm vách ngăn phòng khách, vui lòng bấm:
Mẫu nhà ống 2 tầng 1 tum đơn giản phù hợp cho những gia chủ muốn thể hiện phong cách ấn tượng, độc đáo và thẩm mỹ. Sử dụng tấm DURAflex là một lựa chọn tuyệt vời để làm tum cho mẫu nhà ống 2 tầng. Với đặc tính bền bỉ và khả năng chịu lực cao, tấm DURAflex giúp tạo nên không gian tum vững chắc và đẹp mắt. Bên cạnh đó, tấm DURAflex cũng có khả năng chịu ẩm, chịu được tác động của thời tiết, giúp bảo vệ không gian tum khỏi các vấn đề từ môi trường.

Nhà ống 2 tầng 1 tum chi phí thấp với phong cách cá tính (Nguồn: Internet)

Mẫu nhà ống 2 tầng 1 tum đơn giản đẹp (Nguồn: Internet)

Mẫu nhà ống 2 tầng 1 tum đơn giản nhiều cây xanh xung quanh (Nguồn: Internet)

Mẫu thiết kế nhà ống 2 tầng 1 tum đơn giản, 3 phòng ngủ (Nguồn: Internet)

Mẫu nhà ống 2 tầng 1 tum đơn giản có sân thượng trồng cây xanh (Nguồn: Internet)
Mẫu nhà ống 2 tầng có gara ô tô được xây dựng bởi nhiều phong cách khác nhau, từ hiện đại, tân cổ điển đến cổ điển và có thêm khu vực đỗ xe cho gia chủ.
>> Top 25+ mẫu nhà khung thép tiền chế 2 tầng đẹp, giá rẻ kèm báo giá vật liệu chi tiết

Mẫu nhà ống 2 tầng đẹp có gara ô tô (Nguồn: Internet)

Mẫu nhà ống 2 tầng đẹp có gara ô tô sang trọng (Nguồn: Internet)

Mẫu nhà ống 2 tầng có gara ô tô với thiết kế Nhật hiện đại (Nguồn: Internet)

Mẫu nhà ống 2 tầng có gara ô tô dưới tầng hầm (Nguồn: Internet)

Mẫu nhà ống 2 tầng đẹp có gara ô tô có thiết kế mái bằng hiện đại (Nguồn: Internet)
Mẫu nhà ống 2 tầng có gác lửng là giải pháp thiết kế thông minh, giúp tối ưu hóa không gian sử dụng trong những ngôi nhà có diện tích hạn chế. Gác lửng không chỉ tăng thêm diện tích sinh hoạt mà còn tạo điểm nhấn độc đáo, hiện đại cho tổng thể ngôi nhà.

Mẫu nhà ống 2 tầng có gác lửng đẹp, hiện đại (Nguồn: Internet)

Mẫu nhà ống 2 tầng có gác lửng 5x20m (Nguồn: Internet)
Nhà ống 2 tầng có giếng trời là giải pháp tối ưu để tạo sự thông thoáng nhờ ánh sáng tự nhiên được lan tỏa đến khắp các tầng. Ngoài ra, giếng trời còn giúp tăng cường lưu thông không khí, giúp không gian trở nên mát mẻ, mang lại cảm giác dễ chịu và thoải mái cho các thành viên trong gia đình.

Mẫu nhà ống 2 tầng có giếng trời diện tích 5x20m (Nguồn: Internet)

Thiết kế mẫu nhà ống 2 tầng có giếng trời đẹp, hiện đại (Nguồn: Internet)

Mẫu nhà ống 2 tầng có giếng trời đơn giản, hiện đại (Nguồn: Internet)

Nhà ống 2 tầng có giếng trời đẹp, hiện đại, đơn giản (Nguồn: Internet)
Mẫu nhà ống 2 tầng có sân vườn kết hợp giúp căn nhà trở nên thoáng mát và bầu không khí thoáng đãng sẽ là lựa chọn hoàn hảo dành cho gia đình bạn.

Nhà ống 2 tầng có sân vườn thoáng mát (Nguồn: Internet)

Mẫu nhà ống 2 tầng có sân vườn đẹp (Nguồn: Internet)

Mẫu nhà vườn đẹp 2 tầng hiện đại, sang trọng (Nguồn: Internet)

Mẫu nhà ống 2 tầng có sân vườn đẹp, hiện đại (Nguồn: Internet)

Mẫu biệt thự nhà vườn 2 tầng dạng ống đơn giản đẹp (Nguồn: Internet)
>> Xem thêm:
BÁO GIÁ TẤM XI MĂNG DURAFLEX NGAY
Mẫu nhà ống 2 tầng với mái bằng là một trong những lựa chọn thiết kế phổ biến và được ưa chuộng trong thời gian gần đây. Thiết kế này không chỉ mang đến sự hiện đại và sang trọng cho ngôi nhà, mà còn có nhiều ưu điểm và tiện ích hấp dẫn.

Mặt tiền nhà ống 2 tầng mái bằng đẹp, bắt mắt (Nguồn: Internet)

Mẫu nhà ống 2 tầng mái bằng giá rẻ ở nông thôn (Nguồn: Internet)

Mẫu nhà ống 2 tầng đẹp mái bằng ấn tượng nhất 2026 (Nguồn: Internet)

Mẫu nhà ống 2 tầng mái bằng đẹp, hiện đại 7x10m (Nguồn: Internet)

Mẫu nhà ống 2 tầng mái bằng đơn giản, hiện đại, chi phí thấp (Nguồn: Internet)
>> Xem thêm:
Nhà ống 2 tầng mái lệch rất phù hợp ở các khu vực thường xuyên mưa, giúp mái nhà thoát nước nhanh hơn. Tuy nhiên, để đảm bảo sự chắc chắn và bền vững của mái, gia chủ nên lót thêm tấm xi măng DURAflex dưới mái. Tấm xi măng DURAflex có khả năng chịu ẩm tốt, giúp ngăn ngừa sự thấm nước từ mái vào bên trong nhà, đảm bảo ngôi nhà luôn khô ráo và tránh được tình trạng ẩm mốc, mục nát.
Ngoài ra, tấm xi măng DURAflex cũng có thể được sử dụng để ốp tường. Với đặc tính chịu ẩm và chịu nước, tấm xi măng DURAflex sẽ giúp bảo vệ tường nhà khỏi tác động của môi trường ẩm ướt, làm giảm nguy cơ mục nát và kéo dài tuổi thọ của tường.

Mẫu nhà ống 2 tầng đẹp mái lệch độc đáo (Nguồn: Internet)

Mẫu nhà ống 2 tầng mái lệch hiện đại, mặt tiền 5m (Nguồn: Internet)

Mẫu nhà ống 2 tầng đẹp, mái lệch thiết kế sang trọng, đẳng cấp (Nguồn: Internet)

Mẫu nhà ống 2 tầng mái lệch hiện đại, độc đáo (Nguồn: Internet)

Mẫu nhà ống 2 tầng mái lệch đơn giản đẹp (Nguồn: Internet)
>> Xem thêm:
>> Để nhận được tư vấn và bảng giá chi tiết vật liệu tấm xi măng DURAflex 2X làm vách ngăn phòng khách, vui lòng bấm:
Với góc nhìn thiết kế linh hoạt, mẫu nhà ống 2 tầng mái Thái sẽ giúp gia đình bạn trải nghiệm căn nhà đầy đủ tiện nghi với không gian thiết kế tinh tế và ấm áp.

Mẫu nhà ống 2 tầng mái Thái 5x15m ở nông thôn (Nguồn: Internet)

Mẫu nhà ống 2 tầng mái Thái diện tích 5x20m đẹp, sang trọng (Nguồn: Internet)

Mẫu nhà mái Thái 2 tầng dạng ống 100m2 (Nguồn: Internet)

Mẫu mặt tiền nhà ống 2 tầng đẹp thiết kế mái Thái (Nguồn: Internet)

Mẫu nhà ống 2 tầng đẹp, mái Thái độc đáo, ấn tượng Nguồn: Internet)

Mẫu nhà ống 2 tầng mái Thái hiện đại mặt tiền 6m ở nông thôn (Nguồn: Internet)
Bản vẽ nhà ống 2 tầng mái Thái kết hợp sự hiện đại và thanh lịch, mang lại không gian thoáng đãng và thoát nước tốt. Thiết kế này phù hợp với nhiều môi trường sống, từ đô thị đến nông thôn.

Bản vẽ mẫu nhà ống 2 tầng mái Thái đơn giản (Nguồn: Internet)
>> Xem thêm:
Mẫu nhà 2 tầng mái Nhật được thiết kế với với phần mái chóp đều hơi thoải. Không gian quanh nhà có thể trồng thêm cây xanh và bố trí tiểu cảnh để tạo không khí thoáng mát cho ngôi nhà.

Nhà ống 2 tầng mái Nhật đẹp và tiện nghi (Nguồn: Internet)

Mặt tiền nhà ống 2 tầng mái Nhật sang trọng, hiện đại (Nguồn: Internet)

Nhà ống 2 tầng mái Nhật đẹp được ưa chuộng (Nguồn: Internet)

Mẫu nhà mái Nhật dạng ống 2 tầng đơn giản đẹp (Nguồn: Internet)

Mẫu nhà ống 2 tầng mái Nhật hiện đại, độc đáo (Nguồn: Internet)
Nhà ống mái Nhật kết hợp thiết kế hiện đại và mái dốc nhẹ, mang lại vẻ thanh thoát, phù hợp với khí hậu Việt Nam, giúp chống nóng và thoát nước hiệu quả.

Bản vẽ nhà ống 2 tầng mái Nhật hiện đại (Nguồn: Internet)
>> >> Xem thêm:
Mẫu nhà ống 2 tầng mái tôn với lợi thế chi phí thấp, rất được ưa chuộng bởi nhiều gia đình trẻ. Tuy nhiên, mái tôn không có khả năng cách nhiệt cao, nên ngôi nhà thường bị oi bức vào mùa hè. Bạn nên sử dụng tấm xi măng DURAflex làm lót mái chống nóng cho mái tôn. Với tính năng cách nhiệt và chống nóng hiệu quả, tấm xi măng DURAflex giúp giảm nhiệt độ bề mặt mái tôn, tạo một môi trường mát mẻ và thoáng đãng bên trong ngôi nhà.

Nhà ống 2 tầng mái tôn đẹp, tiết kiệm chi phí (Nguồn: Internet)
>> Đọc thêm:
Mẫu nhà ống 2 tầng mái ngói là một sự lựa chọn phổ biến và được nhiều gia đình ưa chuộng. Mái ngói mang đến vẻ đẹp truyền thống và tạo nên một không gian sống ấm cúng và quen thuộc. Với mẫu nhà mái ngói 2 tầng này, điểm nổi bật là sự đơn giản và tinh tế trong thiết kế. Các chi tiết ngoại nội thất được thiết kế đơn giản, tạo nên vẻ trang nhã và hài hòa cho ngôi nhà.

Nhà ống 2 tầng mái ngói đẹp, diện tích vừa phải (Nguồn: Internet)

Mẫu nhà ống 2 tầng mái ngói hiện đại, đơn giản (Nguồn: Internet)

Mẫu nhà mái ngói 2 tầng đẹp có gara (Nguồn: Internet)
Mẫu nhà ống 2 tầng 2 phòng ngủ là lựa chọn hoàn hảo cho các gia đình nhỏ, đặc biệt là các cặp vợ chồng trẻ hoặc gia đình có 1-2 con. Thiết kế này tập trung vào sự tối ưu hóa không gian, đảm bảo sự tiện nghi và thoải mái trong sinh hoạt.

Mẫu nhà ống 2 tầng 2 phòng ngủ 1 phòng thờ (Nguồn: Internet)

Mẫu nhà ống 2 tầng 2 phòng ngủ đơn giản (Nguồn: Internet)

Mẫu nhà ống 2 tầng 2 phòng ngủ 5x20 (Nguồn: Internet)
Với phong cách thiết kế khá đa dạng, hiện đại, cùng chi phí đầu tư thấp, mẫu nhà ống 2 tầng 3 phòng ngủ được xem là một trong những mẫu thiết kế nhà được nhiều gia đình lựa chọn.

Mẫu nhà ống 2 tầng đẹp thiết kế 3 phòng ngủ 5x14m (Nguồn: Internet)

Mẫu nhà ống 2 tầng 3 phòng ngủ 1 phòng thờ (Nguồn: Internet)

Mẫu nhà ống 2 tầng 3 phòng ngủ 5x20m (Nguồn: Internet)

Mẫu nhà ống 2 tầng 3 phòng ngủ đẹp, hiện đại (Nguồn: Internet)

Mẫu nhà ống 2 có 3 phòng ngủ hiện đại ở nông thôn (Nguồn: Internet)
>> Xem thêm:
Mẫu nhà ống 2 tầng 4 phòng ngủ cần hạn chế các chi tiết trang trí để tối ưu diện tích sử dụng. Bạn nên lựa chọn tấm xi măng DURAflex làm vách ngăn phòng ngủ bởi những tính năng bền chắc và độ cách âm tốt, giúp tạo ra không gian phòng ngủ riêng tư, yên tĩnh, giảm tiếng ồn từ bên ngoài và giữ cho không gian phòng ngủ thoải mái.

Mẫu nhà ống 2 tầng đẹp 4 phòng ngủ 1 phòng thờ (Nguồn: Internet)

Mẫu nhà ống 2 tầng 4 phòng ngủ 5x15m (Nguồn: Internet)

Mẫu nhà ống 2 tầng đẹp, thiết kế 4 phòng ngủ rộng 80m2 (Nguồn: Internet)

Mẫu thiết kế nhà ống 2 tầng 4 phòng ngủ 5x20m (Nguồn: Internet)

Mẫu nhà ống 2 tầng đẹp 4 phòng ngủ 100m2 (Nguồn: Internet)

Bản vẽ 3D nhà ống 2 tầng 4 phòng ngủ chi tiết, dễ hiểu (Nguồn: Internet)
>> Đọc thêm:
Với mẫu nhà ống 2 tầng có 2 mặt tiền, các gia chủ sẽ có thể thoải mái lên ý tưởng thiết kế không gian sống phù hợp theo sở thích và ngân sách của bạn. Ngoài ra, với thiết kế 2 mặt tiền, ngôi nhà sẽ không chỉ tận dụng được tối đa ánh sáng tự nhiên mà còn tạo nên vẻ đẹp độc đáo, nổi bật so với các công trình xung quanh. Từ nhà mái Thái, mái Nhật đến những thiết kế mái bằng hiện đại, các gia chủ đều sẽ dễ dàng tìm được phong cách ưng ý nhất!

Mẫu nhà ống 2 tầng có 2 mặt tiền đẹp, hiện đại (Nguồn: Internet)

Mẫu nhà ống 2 tầng 2 mặt tiền đầy đủ tiện nghi (Nguồn: Internet)

Mẫu nhà ống 2 tầng 2 mặt tiền hiện đại, đơn giản (Nguồn: Internet)

Mẫu nhà ống 2 tầng 2 mặt tiền đơn giản, hiện đại (Nguồn: Internet)

Mẫu nhà ống 2 tầng có 2 mặt tiền hiện đại, sang trọng (Nguồn: Internet)
>> Xem thêm:
Mẫu nhà ống 2 tầng mặt tiền 4m thường được thiết kế đơn giản, có vẻ ngoài sắc nét và khỏe khoắn. Lan can ban công dùng kính cường lực bảo vệ, có hoa và cây để tạo không gian thoáng mát.

Nhà ống 2 tầng mặt tiền 4m tinh tế (Nguồn: Internet)

Mẫu nhà ống 2 tầng mặt tiền 4m sang trọng (Nguồn: Internet)

Mẫu nhà ống 2 tầng đẹp, mặt tiền 4m hiện đại (Nguồn: Internet)

Mẫu nhà ống 2 tầng mặt tiền 4m đẹp được yêu thích (Nguồn: Internet)

Mẫu nhà ống 2 tầng mặt tiền 4m hiện đại, tinh tế (Nguồn: Internet)
>> Xem thêm:
Mẫu nhà ống 2 tầng mặt tiền 5m được thiết kế tinh tế tùy gu thẩm mỹ gia chủ đem lại cảm giác sang trọng và không quá phô trương.

Nhà ống 2 tầng mặt tiền 5m đơn giản (Nguồn: Internet)

Mẫu nhà ống 2 tầng đẹp, thiết kế mặt tiền 5m hiện đại (Nguồn: Internet)

Mẫu nhà ống 2 tầng mặt tiền 5m hiện đại, chi phí thấp (Nguồn: Internet)

Mẫu nhà ống 2 tầng mặt tiền 5m đẹp, tiện nghi (Nguồn: Internet)

Mẫu nhà ống 2 tầng đẹp, mặt tiền 5m có ban công thoáng mát (Nguồn: Internet)
>>> Xem thêm:
Các mẫu nhà ống 2 tầng mặt tiền 6m là lựa chọn phổ biến của các gia đình trẻ muốn xây dựng ngôi nhà nhỏ có đủ đầy tiện nghi.

Mẫu nhà ống 2 tầng mặt tiền 6m đơn giản (Nguồn: Internet)

Mẫu nhà ống 2 tầng mặt tiền 6m đẹp (Nguồn: Internet)

Mẫu nhà ống 2 tầng mặt tiền 6m chi phí thấp (Nguồn: Internet)

Mẫu nhà ống 2 tầng đẹp, mặt tiền 6m, thiết kế tinh tế giúp tối ưu không gian Nguồn: Internet)

Mẫu nhà ống 2 tầng mặt tiền 6m đẹp, hiện đại (Nguồn: Internet)
Với mặt tiền rộng 7m, mỗi phòng đều được trang bị cửa sổ, đảm bảo sự thông thoáng và tối đa hóa tính riêng tư cho người sử dụng. Do đó, việc sắp xếp các khu vực chức năng không phải một thách thức lớn đối với các kiến trúc sư.

Mẫu nhà ống 2 tầng mặt tiền 7m hiện đại (Nguồn: Internet)
Nếu bạn có mặt tiền rộng 8m, hãy cân nhắc lựa chọn các thiết kế nhà ống có giếng trời hoặc bố trí tiểu cảnh bên hông. Điều này sẽ giúp căn nhà của bạn trở nên thông thoáng hơn, và có thêm không gian xanh tươi mát trong nhà.

Mẫu nhà ống 2 tầng đẹp, thiết kế mặt tiền 8m sang trọng (Nguồn: Internet)

Mẫu nhà ống 2 tầng mặt tiền 8m đẹp, sang trọng (Nguồn: Internet)

Mẫu nhà ống 2 tầng mặt tiền 8m đẹp (Nguồn: Internet)

Mẫu nhà ống 2 tầng đẹp mặt tiền 8m chi phí thấp (Nguồn: Internet)

Mẫu nhà ống 2 tầng mặt tiền 8m hiện đại, đơn giản (Nguồn: Internet)
Với ngân sách rộng rãi hơn, gia chủ có thể chọn xây ngôi nhà ống 2 tầng đầy đủ công năng chỉ với 500 triệu đồng và tạo điểm nhấn đơn giản bằng việc trang trí ban công.

Mẫu nhà ống 2 tầng giá 500 triệu có ban công thoáng mát (Nguồn: Internet)

Mẫu nhà ống 2 tầng đẹp ở nông thôn 500 triệu mới nhất 2026 (Nguồn: Internet)

Mẫu nhà ống 2 tầng 500 triệu đẹp, đơn giản (Nguồn: Internet)

Mẫu nhà ống 2 tầng đẹp 500 triệu thiết kế độc lạ nhất hiện nay (Nguồn: Internet)

Mẫu nhà ống 2 tầng 500 triệu có ban công (Nguồn: Internet)
>> Xem thêm: 65 mẫu nhà cấp 4 nông thôn đơn giản, đẹp, giá rẻ 2026
Với chi phí khoảng 600 triệu đồng, bạn có thể xây dựng mẫu nhà ống 2 tầng bao gồm 3 phòng ngủ và 1 phòng thờ với các hình khối đơn giản. Sử dụng tấm ốp tường với tông màu phù hợp để tạo điểm nhấn.

Mẫu nhà ống 2 tầng 600 triệu đẹp, tiện nghi (Nguồn: Internet)
Mẫu nhà 2 tầng đẹp giá 700 triệu thường được trang trí với nhiều phong cách khác nhau, tạo điểm nhấn và tổng thể ngôi nhà vô cùng hiện đại, sang trọng.

Mẫu nhà ống 2 tầng giá 700 triệu tiện nghi (Nguồn: Internet

Mẫu nhà ống 2 tầng đẹp giá 700 triệu ở nông thôn (Nguồn: Internet)
>> Có thể bạn sẽ quan tâm:
Mẫu nhà ống 2 tầng đẹp giá 1 tỷ đồng thường được thiết kế với diện tích phổ biến từ 60-90m² và phong cách hiện đại, tối giản chi tiết để tối ưu ngân sách xây dựng mà vẫn mang lại không gian sống tiện nghi. Tầng 1 thường bố trí phòng khách, bếp và khu vực ăn uống liên thông nhằm tạo cảm giác rộng rãi, thoáng đãng; trong khi tầng 2 ưu tiên không gian riêng tư với 2-3 phòng ngủ và khu sinh hoạt chung. Để kiểm soát chi phí hiệu quả, gia chủ nên lựa chọn vật liệu có độ bền cao ở mức giá trung bình, tận dụng ánh sáng tự nhiên thông qua giếng trời hoặc cửa kính lớn nhằm giảm chi phí điện năng lâu dài. Ngoài ra, việc tối giản mặt tiền, sử dụng gam màu trung tính và thiết kế ban công xanh cũng giúp mẫu nhà 2 tầng đẹp giá 1 tỷ này trở nên hiện đại, dễ ứng dụng thực tế mà vẫn phù hợp với ngân sách khoảng 1 tỷ đồng.

Mẫu nhà ống 2 tầng đẹp giá 1 tỷ với thiết kế đơn giản, xu hướng mới hiện nay (Nguồn: Internet)
Thiết kế cầu thang cho nhà ống 2 tầng cần kết hợp giữa yếu tố thẩm mỹ và tối ưu hóa không gian. Cầu thang thường được bố trí dọc theo tường hoặc ở giữa nhà để tiết kiệm diện tích. Các kiểu mẫu phổ biến bao gồm cầu thang xoắn, cầu thang chữ L, hoặc cầu thang thẳng, tùy theo diện tích và phong cách thiết kế tổng thể. Vật liệu thường được sử dụng là gỗ, kính, hoặc thép, giúp tạo điểm nhấn cho ngôi nhà. Ngoài ra, lan can cầu thang nên được thiết kế chắc chắn, đảm bảo an toàn cho người sử dụng.

Cầu thang ngoài trời cho nhà ống 2 tầng (Nguồn: Internet)

Mẫu cầu thang dọc cho nhà ống 2 tầng (Nguồn: Internet)

Cầu thang chữ U cho nhà ống 2 tầng (Nguồn: Internet)

Cầu thang gỗ cho nhà ống 2 tầng (Nguồn: Internet)

Cầu thang kính cường lực cho nhà ống 2 tầng (Nguồn: Internet)
>> Xem thêm: TOP 20 mẫu nhà chữ U đẹp, hiện đại, độc đáo nhất 2026
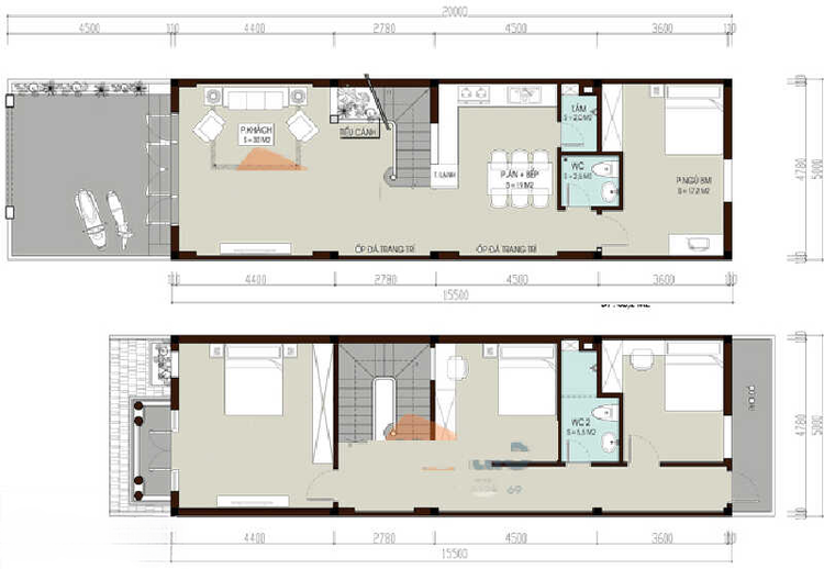
Bạn có thể tham khảo mẫu bản vẽ nhà ống 2 tầng dưới đây, ngoài việc lấy ánh sáng bằng hệ thống giếng trời, lưu thông không khí, kiến trúc sư còn tiến hành thiết kế hệ thống ban công. Không gian tầng thượng cũng sẽ được bố trí trồng cây cảnh để trang trí, phù hợp cho gia đình bạn cùng người thân lên thư giãn mỗi cuối chiều.

Bản vẽ 3D nhà ống 2 tầng 5x20 (Nguồn: Internet)

Bản vẽ thiết kế nhà ống 2 tầng 70m2 đẹp (Nguồn: Internet)

Bản vẽ nhà ống 2 tầng 6x12 đẹp đơn giản (Nguồn: Internet)

Bản vẽ nhà ống 2 tầng có gara (Nguồn: Internet)

Bản vẽ thiết kế nhà ống 2 tầng chữ L độc đáo (Nguồn: Internet)
>> Xem thêm:
Cách tính chi phí xây dựng nhà được xác định như sau:
Chi phí xây dựng = Diện tích xây dựng x Đơn giá thi công trên mỗi mét vuông
Trong đó:
- Diện tích xây dựng bao gồm phần móng, tầng trệt và mái.
- Đơn giá thi công có hai loại:
Ví dụ, bạn xây một ngôi nhà ống 2 tầng có diện tích 5m x 20m = 100m², diện tích thi công sẽ bao gồm:
- Diện tích móng: 100m² x 50% = 50m²
- Diện tích tầng trệt: 100m² x 100% = 100m²
- Diện tích lầu 1: 100m² x 100% = 100m²
- Diện tích mái bằng: 100m² x 70% = 70m²
→ Tổng diện tích thi công: 50 + 100 + 100 + 70 = 320m²
Giả sử:
- Đơn giá xây dựng phần thô và nhân công hoàn thiện là 4.000.000đ/m²
- Đơn giá xây dựng trọn gói là 6.000.000đ/m²
→ Chi phí xây dựng phần thô và nhân công hoàn thiện: 320m² x 4.000.000đ = 1.280.000.000đ
→ Chi phí xây dựng trọn gói: 320m² x 6.000.000đ = 1.920.000.000đ
Khi tính toán chi phí xây nhà, cần xem xét kỹ diện tích xây dựng và đơn giá của nhà thầu. Ngoài ra, chi phí cũng có thể bị ảnh hưởng bởi giá vật liệu, thời gian thi công và các chi phí phát sinh khác. Để có dự toán chính xác hơn, bạn nên liên hệ trực tiếp với đơn vị thi công để được tư vấn và báo giá chi tiết.

Chi phí xây dựng mẫu nhà ống 2 tầng phụ thuộc nhiều yếu tố (Nguồn: Internet)
>> Đọc thêm:
Trước khi thiết kế nhà ống 2 tầng, bạn nên tham khảo nhiều mẫu khác nhau để tìm ý tưởng phù hợp. Bạn có thể tìm cảm hứng từ tạp chí, trang web chuyên về kiến trúc hoặc từ những ngôi nhà thực tế của bạn bè, người thân. Việc lựa chọn thiết kế phù hợp sẽ giúp ngôi nhà đảm bảo tính thẩm mỹ, công năng và đáp ứng nhu cầu sinh hoạt của gia đình.
Gia chủ cần xác định rõ nhu cầu sử dụng cho từng không gian trong nhà để giúp việc bố trí các phòng được hợp lý, tối ưu diện tích và đáp ứng tốt sinh hoạt của các thành viên.
Nhà ống 2 tầng thường có chi phí xây dựng thấp hơn so với biệt thự mini, nhưng vẫn cần tính toán hợp lý để tối ưu ngân sách. Nên ưu tiên lựa chọn vật liệu chất lượng, chẳng hạn như tấm xi măng DURAflex, để đảm bảo độ bền, khả năng chịu lực, chống nứt gãy, đồng thời giảm chi phí bảo trì và sửa chữa sau này. Bên cạnh đó, việc tận dụng ánh sáng và gió tự nhiên khi thiết kế nhà ống 2 tầng sẽ giúp tiết kiệm điện năng và nước sinh hoạt.
Nhà ống 2 tầng thường chỉ có một mặt lấy ánh sáng và đón gió, vì vậy cần bố trí không gian hợp lý để đảm bảo phong thủy. Bên cạnh việc thiết kế hài hòa giữa thẩm mỹ và công năng, các yếu tố như hướng cửa, hướng bếp, vị trí bàn thờ cũng cần được xem xét kỹ lưỡng. Một ngôi nhà có phong thủy tốt sẽ mang lại sự cân bằng, thuận lợi và may mắn cho gia đình.
Nhà ống 2 tầng thường có mặt tiền nhỏ và hai bên tường xây kín, nên giếng trời là giải pháp hiệu quả để mang ánh sáng và gió tự nhiên vào nhà. Không chỉ giúp không gian thoáng đãng, giếng trời còn trở thành điểm nhấn ấn tượng, tăng tính thẩm mỹ và tạo cảm giác sang trọng cho ngôi nhà.
Nếu bạn chưa có kinh nghiệm trong thiết kế và xây dựng nhà ống, nên tìm đến các đơn vị tư vấn chuyên nghiệp. Họ sẽ giúp bạn xác định phong cách phù hợp, cân đối ngân sách và tối ưu công năng sử dụng. Nhờ đó, bạn có thể sở hữu một ngôi nhà ống 2 tầng đẹp, hiện đại và tiết kiệm chi phí.

Một số lưu ý khi thiết kế mẫu nhà ống 2 tầng đẹp (Nguồn: Internet)
Mẫu nhà ống 2 tầng có thiết kế đặc trưng là chiều rộng hẹp hơn nhiều lần so với chiều dài, tạo nên hình khối chữ nhật với đầy đủ các khu vực chức năng cần thiết. Khi thiết kế, cần đảm bảo các tiêu chuẩn sau:

Mẫu nhà ống 2 tầng đẹp, hiện đại có chiều ngang nhỏ gọn Nguồn: Internet)

Mẫu nhà ống 2 tầng ở nông thôn được ưa chuộng nhất 2026 (Nguồn: Internet)

Mẫu nhà ống 2 tầng đẹp diện tích 60m2 (Nguồn: Internet)

Mẫu nhà ống 2 tầng mái bằng đơn giản, chi phí thấp (Nguồn: Internet)
>> Đọc tham khảo thêm:
Mẫu nhà ống 2 tầng được các gia đình Việt yêu thích và lựa chọn bởi nhiều ưu điểm độc đáo, nổi bật như:

Thiết kế nhà ống 2 tầng không yêu cầu diện tích đất lớn (Nguồn: Internet)

Mẫu nhà ống 2 tầng đẹp, đơn giản, hiện đại nhất hiện nay (Nguồn: Internet)

Hình ảnh 3D nhà ống 2 tầng đẹp có sân thượng phía trước (Nguồn: Internet)

Hình ảnh 3D nhà ống 2 tầng mặt tiền đẹp (Nguồn: Internet)

Mẫu nhà ống 2 tầng đẹp ở nông thôn thiết kế nhỏ gọn, chi phí thấp (Nguồn: Internet)
Bên cạnh những ưu điểm vượt trội, khi xây dựng nhà ống 2 tầng, bạn cũng cần nắm những thông tin dưới đây để giải quyết được nhược điểm của loại hình thiết kế này:

Mẫu nhà ống 2 tầng có chiều dài sâu và chiều rộng hẹp nên cần phải tối ưu không gian khi thiết kế (Nguồn: Internet)

Mẫu nhà 2 tầng đẹp giá 1 tỷ với mặt tiền 4m sang trọng (Nguồn: Internet)

Mẫu nhà ống 2 tầng đẹp, giá rẻ 2026 (Nguồn: Internet)
>> Xem thêm:
Bố trí không gian khoa học
Nhà ống 2 tầng thường có diện tích hạn chế hơn so với các mẫu thiết kế biệt thự, vì vậy việc sắp xếp không gian một cách khoa học là rất quan trọng. Thiết kế hợp lý giúp tận dụng tối đa từng mét vuông, mang lại sự tiện nghi mà không gây cảm giác chật chội. Đồng thời, việc bố trí không gian mở, kết hợp cửa sổ, giếng trời hay ban công hợp lý giúp đón ánh sáng tự nhiên và gió mát vào nhà. Cách thiết kế này không chỉ tiết kiệm năng lượng mà còn tạo sự gắn kết giữa con người với thiên nhiên, mang lại cảm giác thư thái, dễ chịu cho cả gia đình.

Mẫu nhà ống 2 tầng có thiết kế hợp lý, tận dụng tối đa diện tích (Nguồn: Internet)
Nội thất mở, thoáng đãng
Nhà ống 2 tầng thường có bề ngang hạn chế, vì vậy thiết kế không gian mở là giải pháp lý tưởng để mang lại cảm giác rộng rãi, thoáng đãng. Việc kết hợp phòng khách, bếp và phòng ăn một cách hài hòa giúp tối ưu diện tích, tạo sự liền mạch giữa các khu vực. Nhờ đó, không gian trở nên thông thoáng, dễ dàng di chuyển và gắn kết các thành viên trong gia đình, mang lại sự tiện nghi và hiện đại cho ngôi nhà.

Thiết kế kế mở giúp nhà ống 2 tầng trở nên rộng rãi, thoáng mát (Nguồn: Internet)
Tận dụng ánh sáng tự nhiên
Ánh sáng tự nhiên không chỉ giúp ngôi nhà trở nên sáng sủa, thoáng đãng mà còn tạo cảm giác thư thái, dễ chịu. Các thiết kế nhà ống hiện đại thường ưu tiên cửa sổ lớn, cửa kính hay giếng trời để đón ánh sáng vào từng góc nhà. Nhờ đó, không gian sống trở nên gần gũi hơn với thiên nhiên, đồng thời giúp tiết kiệm năng lượng hiệu quả. Một ngôi nhà tràn ngập ánh sáng tự nhiên không chỉ đẹp mắt mà còn mang lại nguồn năng lượng tích cực cho gia đình.

Thiết kế nhà ống 2 tầng tận dụng ánh sáng tự nhiên giúp không gian sống trở nên sáng sủa, thoáng đãng (Nguồn: Internet)
Sân vườn và không gian xanh
Dù diện tích hạn chế, nhà ống 2 tầng vẫn có thể kết hợp cây xanh, tiểu cảnh hoặc sân vườn nhỏ để tạo không gian trong lành. Những mảng xanh không chỉ giúp thanh lọc không khí mà còn mang lại cảm giác thư giãn, yên bình sau một ngày dài. Sự hòa quyện giữa thiên nhiên và kiến trúc giúp ngôi nhà trở nên sinh động, thoải mái hơn.

Không gian xanh giúp nhà ống 2 tầng thêm trong lành, thư giãn và hài hòa với thiên nhiên (Nguồn: Internet)
>> Tìm hiểu thêm: Nhà lắp ghép thông minh đẹp, hiện đại, trào lưu hiện nay
Tấm xi măng DURAflex 2X được chế tạo từ các thành phần nhẹ như xi măng, cát nghiền, đá vôi, giấy và các phụ gia chất lượng dưới công nghệ chưng áp hiện đại, giúp tấm có trọng lượng nhẹ hơn nhiều so với nhiều vật liệu xây dựng khác.
Bên cạnh là vật liệu bê tông siêu nhẹ, tấm Cemboard DURAflex còn có khả năng chịu lực vượt trội, đảm bảo độ bền và khả năng chịu tải cao. Với DURAflex, các công trình xây dựng có thể tận dụng ưu điểm của vật liệu nhẹ mà vẫn đảm bảo chất lượng, giảm bớt gánh nặng lên nền móng và tăng tuổi thọ cho ngôi nhà.

Tấm xi măng lát sàn, ốp tường, lót mái DURAflex 2X
Tấm xi măng DURAflex 2X không chỉ siêu nhẹ mà còn có nhiều tính năng nổi bật khác. Với khả năng chịu ẩm vượt trội, sản phẩm giúp bảo vệ công trình khỏi tác động của môi trường ẩm ướt. Ngoài ra, tấm cũng chịu nhiệt tốt và có khả năng chống cháy hiệu quả, tạo sự an toàn cho ngôi nhà.
Đặc biệt, tấm xi măng DURAflex 2X có khả năng cách âm cao, giúp giảm tiếng ồn từ bên ngoài và tạo không gian yên tĩnh và thoải mái bên trong nhà. Vật liệu này không chứa amiang, một chất gây ung thư, đảm bảo an toàn cho sức khỏe của người sử dụng. Với những đặc điểm và tính năng vượt trội này, tấm xi măng DURAflex 2X là một lựa chọn tuyệt vời để xây dựng và hoàn thiện công trình một cách chất lượng và hiệu quả.
Chi phi xây nhà ống 2 tầng diện tích 60m2 có giá dao động từ 800 - 950 triệu. Chi phí này bao gồm chi phí thiết kế bản vẽ, chí thi công và hoàn thiện nhà. Trong đó, chi phí xây dựng phần thô sẽ chiếm khoảng 540 triệu.
Bài viết trên đây đã tổng hợp những mẫu nhà ống 2 tầng đẹp, đơn giản, hiện đại, mới nhất 2026. Liên hệ ngay DURAflex để được tư vấn giải pháp cho mọi loại công trình với chi phí tối ưu và chất lượng uy tín hàng đầu Việt Nam.
Bài viết liên quan
Đánh giá và nhận xét
Đánh giá trung bình
0/5
5
4
3
2
1
Chia sẻ và nhận xét về bài viết
Chia sẻ và nhận xét về bài viết
Bài viết chưa có đánh giá nào