
DURAflex đăng vào lúc 23/11/2025 - 16:00
Nhà cấp 4 mái lệch đang dần trở thành lựa chọn lý tưởng cho nhiều gia đình Việt Nam, đặc biệt là những ai yêu thích sự độc đáo, phá cách nhưng vẫn đảm bảo tính ứng dụng cao. Hãy cùng DURAflex khám phá các mẫu nhà cấp 4 mái lệch đẹp, hiện đại và tiết kiệm chi phí nhất hiện nay, để tìm kiếm nguồn cảm hứng cho ngôi nhà mơ ước của bạn.
Nhà mái lệch đang trở thành xu hướng được nhiều gia đình ưa chuộng bởi vẻ đẹp hiện đại, độc đáo và chi phí xây dựng phải chăng. Với sự linh hoạt trong thiết kế, các mẫu nhà này không chỉ mang đến không gian sống tiện nghi mà còn tạo điểm nhấn kiến trúc ấn tượng.
Mẫu nhà cấp 4 mái lệch 2 phòng ngủ phù hợp với các gia đình nhỏ hoặc người độc thân muốn tiết kiệm chi phí nhưng vẫn đảm bảo không gian sống thoải mái, tiện nghi. Thiết kế tối giản, sử dụng vật liệu bền chắc giúp công trình vừa tiết kiệm, vừa có tuổi thọ cao. Đây là lựa chọn lý tưởng cho những khu đất có diện tích nhỏ và ngân sách hạn chế.

Mẫu nhà cấp 4 2 phòng ngủ mái lệch đẹp, hiện đại, tiện nghi (Nguồn: Internet)

Mẫu nhà cấp 4 mái lệch 2 phòng ngủ nhỏ xinh, đầy đủ công năng (Nguồn: Internet)

Mẫu nhà cấp 4 mái lệch 2 phòng ngủ tinh tế với nét đẹp tối giản (Nguồn: Internet)
>> Xem thêm:
Với gia đình có từ 4-5 thành viên, mẫu nhà cấp 4 mái lệch 3 phòng ngủ là lựa chọn lý tưởng. Các phòng chức năng được bố trí hợp lý, đảm bảo sự riêng tư nhưng vẫn giữ được sự kết nối. Để đảm bảo độ bền và tối ưu chi phí, bạn có thể cân nhắc sử dụng tấm xi măng DURAflex Low Carbon cho phần vách ngăn, sàn và trần nhà, vật liệu này vừa thân thiện môi trường, vừa có chất lượng vượt trội.

Mẫu nhà cấp 4 3 phòng ngủ 500 triệu mái lệch phá cách, cuốn hút ánh nhìn (Nguồn: Internet)

Mẫu nhà cấp 4 nông thôn 3 phòng ngủ với kiểu mái lệch đẹp, thiết kế thanh lịch, hài hòa (Nguồn: Internet)

Mẫu nhà cấp 4 3 phòng ngủ 300 triệu thiết kế mái lệch đẹp, đơn giản, chi phí thấp (Nguồn: Internet)
>> Tham khảo:
Nhà mái lệch 4 phòng ngủ là lựa chọn hoàn hảo cho các gia đình đa thế hệ hoặc có nhu cầu không gian lớn. Với số lượng phòng ngủ nhiều, việc bố trí công năng sẽ cần sự tính toán kỹ lưỡng để đảm bảo sự riêng tư nhưng vẫn duy trì kết nối chung. Mẫu nhà này thường được thiết kế trên diện tích đất rộng hơn, cho phép tích hợp thêm các không gian chức năng như phòng thờ, phòng sinh hoạt chung hay khu vực đọc sách. Vẻ ngoài độc đáo của mái lệch kết hợp với vật liệu hiện đại sẽ tạo nên một tổng thể ấn tượng, thể hiện cá tính của gia chủ.

Mẫu nhà mái lệch 4 phòng ngủ thiết kế thông thoáng, tối ưu diện tích (Nguồn: Internet)

Mẫu nhà mái lệch 4 phòng ngủ sang trọng, phù hợp vùng nông thôn hiện đại (Nguồn: Internet)

Mẫu nhà mái lệch 4 phòng ngủ lý tưởng, phù hợp mọi miền (Nguồn: Internet)
>> Đọc thêm:
Thiết kế nhà cấp 4 gác lửng mái lệch là lựa chọn thông minh giúp tối đa hóa diện tích sử dụng mà vẫn giữ được vẻ ngoài hiện đại. Phần gác lửng có thể được tận dụng làm phòng ngủ phụ, phòng thờ, hoặc không gian làm việc, đọc sách, tạo nên sự đa năng và tiện ích cho ngôi nhà. Đặc biệt, với kiến trúc mái lệch, không gian gác lửng thường có chiều cao thông thoáng, không gây cảm giác bí bách, đồng thời tạo điểm nhấn độc đáo cho tổng thể kiến trúc, rất phù hợp với các gia đình trẻ hoặc có diện tích đất hạn chế.

Mẫu nhà mái lệch có gác lửng đẹp, hiện đại, tiện nghi (Nguồn: Internet)

Mẫu nhà mái lệch có gác lửng đẹp, độc đáo, tối ưu không gian (Nguồn: Internet)

Mẫu nhà gác lửng 5x15 mái lệch thiết kế thông thoáng, tối ưu diện tích (Nguồn: Internet)
>> Xem tham khảo thêm:
Những mẫu nhà mái lệch cấp 4 kết hợp sân vườn mang đến không gian sống gần gũi thiên nhiên, tạo cảm giác thư thái và trong lành. Thiết kế sân vườn phía trước hoặc xung quanh nhà là lựa chọn lý tưởng để trồng cây cảnh, hoa lá, hoặc thiết kế tiểu cảnh. Sự kết hợp giữa kiến trúc mái lệch hiện đại và không gian xanh mát không chỉ nâng cao tính thẩm mỹ mà còn cải thiện chất lượng cuộc sống cho gia chủ. Đây là lựa chọn tuyệt vời cho những ai yêu thích sự yên bình và muốn có một không gian riêng tư để thư giãn sau những giờ làm việc căng thẳng.

Mẫu nhà vườn mái lệch cấp 4 đẹp, thoáng mát, trong lành (Nguồn: Internet)

Mẫu nhà cấp 4 mái lệch 4 phòng ngủ đẹp mắt, hài hòa thiên nhiên (Nguồn: Internet)

Mẫu nhà vườn nhỏ đẹp cấp 4 với thiết kế mái lệch, 4 phòng ngủ đầy thanh lịch tinh tế mọi góc nhìn (Nguồn: Internet)
>> Tìm hiểu thêm:
Với các gia đình sở hữu ô tô, mẫu nhà mái lệch có gara tích hợp là giải pháp hoàn hảo, đảm bảo sự tiện lợi và an toàn. Gara có thể được bố trí liền kề hoặc tách biệt một phần với không gian sống chính, nhưng vẫn đảm bảo tính thống nhất trong thiết kế tổng thể. Kiến trúc mái lệch không chỉ tạo vẻ đẹp độc đáo mà còn giúp tối ưu không gian, dễ dàng tích hợp gara mà không làm mất đi vẻ đẹp hiện đại của ngôi nhà. Điều này đặc biệt hữu ích ở các khu vực đô thị, nơi việc tìm kiếm chỗ đỗ xe an toàn luôn là một thách thức lớn.

Mẫu nhà mái lệch có gara ô tô đẹp, tối ưu công năng (Nguồn: Internet)

Mẫu nhà mái lệch kết hợp gara ô tô tiện ích, đa năng cho gia đình (Nguồn: Internet)
>> Xem thêm:
Nhà cấp 4 chữ L mái lệch là lựa chọn lý tưởng cho những lô đất có chiều ngang hẹp hoặc mong muốn tạo không gian sân vườn rộng rãi. Thiết kế hình chữ L giúp tận dụng tối đa diện tích đất, đồng thời tạo ra các góc view đẹp và thông thoáng. Mái lệch mang đến vẻ ngoài phá cách, hiện đại, kết hợp với các vật liệu đơn giản như gạch, kính cường lực tạo nên tổng thể hài hòa và ấn tượng. Đặc biệt, mẫu nhà chữ L này còn có thể bố trí công năng linh hoạt, phù hợp với cả gia đình nhỏ và gia đình nhiều thế hệ.

Mẫu nhà cấp 4 mái lệch chữ L rộng rãi, thoáng đãng (Nguồn: Internet)

Mẫu nhà cấp 4 mái lệch chữ L ấm cúng, đậm chất riêng (Nguồn: Internet)

Mẫu nhà cấp 4 mái lệch chữ L sang trọng, ấn tượng (Nguồn: Internet)
>> Tìm hiểu thêm:
Mẫu nhà mái lệch hiện đại gây ấn tượng mạnh mẽ với kiến trúc độc đáo, đường nét tinh tế và sự kết hợp hài hòa giữa vật liệu truyền thống và vật liệu mới. Mái lệch không chỉ tạo điểm nhấn về mặt thẩm mỹ mà còn giúp thoát nước mưa hiệu quả và điều hòa không khí trong nhà. Các không gian được bố trí mở, liên thông với nhau, tận dụng ánh sáng tự nhiên tối đa, mang đến cảm giác rộng rãi và thoáng đãng.
Để đảm bảo độ bền và tính thẩm mỹ cho công trình, việc sử dụng các vật liệu chất lượng cao là vô cùng cần thiết. Bạn có thể tham khảo tấm cemboard DURAflex Low Carbon cho tường, sàn hoặc tấm xi măng vân gỗ DURAwood Low Carbon để ốp trần, tường ngoại thất, giúp kiến tạo không gian sống bền vững và thân thiện với môi trường.

Mẫu nhà mái lệch hiện đại, sang trọng, đẳng cấp (Nguồn: Internet)

Mẫu nhà cấp 4 mái lệch hiện đại, chuẩn xu hướng mới (Nguồn: Internet)

Mẫu nhà cấp 4 mái lệch hiện đại, không gian mở thoáng (Nguồn: Internet)
>> Tìm hiểu thêm:
Mẫu nhà mái lệch đơn giản thường có một hoặc hai mặt mái dốc về các phía khác nhau, tạo nên một tổng thể bất đối xứng nhưng vẫn hài hòa. Kiểu mái này không chỉ giúp thoát nước mưa nhanh chóng mà còn tạo không gian thông thoáng cho ngôi nhà. Bạn có thể kết hợp với các vật liệu hiện đại như kính, thép và bê tông để tăng thêm sự sang trọng, đồng thời tận dụng ánh sáng tự nhiên một cách tối đa. Các mẫu nhà mái lệch thường rất linh hoạt, dễ dàng tùy biến để phù hợp với nhiều diện tích và phong cách khác nhau, từ đó mang lại một không gian sống đầy tính thẩm mỹ.

Mẫu nhà mái lệch đơn giản, thiết kế hài hoà, đẹp mắt (Nguồn: Internet)

Mẫu nhà mái lệch cấp 4 đơn giản, trang nhã và tinh tế (Nguồn: Internet)

Mẫu nhà cấp 4 mái lệch đơn giản với màu trắng làm gam chủ đạo (Nguồn: Internet)
Nhà cấp 4 nông thôn mái lệch là sự kết hợp hoàn hảo giữa nét truyền thống mộc mạc và kiến trúc hiện đại, mang đến không gian sống tiện nghi mà vẫn giữ được sự bình yên, gần gũi với thiên nhiên. Các mẫu nhà này thường tận dụng vật liệu địa phương như gỗ, đá, kết hợp cùng mái lệch tạo điểm nhấn độc đáo. Thiết kế mở, sân vườn rộng rãi là đặc trưng, giúp gia chủ tận hưởng không khí trong lành và cảnh quan xung quanh. Chi phí xây dựng mẫu nhà này cũng khá phải chăng, phù hợp với điều kiện kinh tế của nhiều gia đình ở nông thôn.

Mẫu nhà ống 1 tầng nông thôn mái lệch đẹp, đơn giản, tinh tế (Nguồn: Internet)

Xây nhà 500 triệu ở nông thôn mái lệch ấm cúng, bình yên (Nguồn: Internet)

Mẫu nhà cấp 4 nông thôn 250 triệu mái lệch ấn tượng, phá cách (Nguồn: Internet)
>> Tìm hiểu thêm:
Mẫu nhà cấp 4 mái lệch bằng tôn đang trở thành xu hướng lựa chọn phổ biến ở nông thôn và vùng ven đô nhờ thiết kế hiện đại, chi phí xây dựng hợp lý và thi công nhanh chóng. Với kiểu mái lệch, công trình không chỉ tạo điểm nhấn độc đáo về mặt thẩm mỹ mà còn giúp thoát nước mưa hiệu quả, hạn chế tình trạng thấm dột. Chất liệu tôn nhẹ, dễ lắp đặt, lại có nhiều loại như tôn lạnh, tôn giả ngói… phù hợp với từng điều kiện khí hậu và ngân sách. Ngoài ra, mẫu nhà mái lệch cấp 4 còn dễ dàng kết hợp với các kiểu bố trí không gian mở, mang đến sự thông thoáng, tiết kiệm năng lượng tự nhiên.

Mẫu nhà cấp 4 mái lệch bằng tôn đẹp, tiết kiệm chi phí (Nguồn: Internet)

Mẫu nhà cấp 4 mái lệch bằng tôn đẹp, giá rẻ, dễ thi công (Nguồn: Internet)

Mẫu nhà cấp 4 mái lệch bằng tôn nhỏ gọn, tiện nghi cho gia đình trẻ (Nguồn: Internet)
Nhà 2 tầng mái lệch là một lựa chọn kiến trúc đang rất thịnh hành, đặc biệt với những gia chủ ưa chuộng phong cách hiện đại và sự phá cách. Điểm nhấn của mẫu nhà này nằm ở phần mái được thiết kế không đối xứng, tạo nên vẻ đẹp độc đáo và ấn tượng, khác biệt hoàn toàn so với các kiểu mái truyền thống. Không chỉ mang lại giá trị thẩm mỹ cao, nhà mái lệch còn có nhiều ưu điểm về công năng. Cụ thể, kiến trúc mái lệch giúp thoát nước nhanh chóng, chống ứ đọng hiệu quả, đồng thời tối ưu hóa khả năng đón sáng và thông gió tự nhiên, giúp không gian sống luôn thoáng đãng. Đây thực sự là giải pháp lý tưởng cho những ai mong muốn sở hữu một ngôi nhà vừa đẹp mắt, vừa tiện nghi và bền vững theo thời gian.

Mẫu nhà mái lệch 2 tầng hiện đại, sang trọng (Nguồn: Internet)

Mẫu nhà 1 trệt 1 lầu 5x20 mái lệch hiện đại, thiết kế ấn tượng, phá cách (Nguồn: Internet)

Mẫu nhà 1 trệt 1 lầu mái lệch hiện đại, thiết kế thời thượng (Nguồn: Internet)
>> Tìm hiểu thêm:
Thiết kế nhà cấp 4 mái lệch trên diện tích 100m2 đang trở thành lựa chọn ưu việt cho nhiều gia đình trẻ hiện nay bởi tính thẩm mỹ cao cùng công năng sử dụng tối ưu. Với kiểu mái này, ngôi nhà không chỉ có vẻ ngoài hiện đại, độc đáo mà còn giúp tăng khả năng thoát nước mưa hiệu quả và tạo không gian sống thoáng đãng hơn. Diện tích 100m2 cho phép kiến trúc sư dễ dàng bố trí các khu vực chức năng như 1 phòng khách, 2-3 phòng ngủ, 1 phòng bếp - ăn và 1 nhà vệ sinh một cách hợp lý, đảm bảo sự riêng tư và tiện nghi. Hơn nữa, chi phí xây dựng hợp lý cũng là một lợi thế lớn, phù hợp với ngân sách của đa số gia đình.

Mẫu nhà cấp 4 mái lệch diện tích 100m2 đang trở thành lựa chọn ưu việt cho nhiều gia đình (Nguồn: Internet)

Mẫu nhà mái lệch diện tích 100m2 đẹp, tối ưu công năng (Nguồn: Internet)

Mẫu nhà mái lệch cấp 4 diện tích 100m2 đẹp, hiện đại, đầy đủ tiện nghi (Nguồn: Internet)
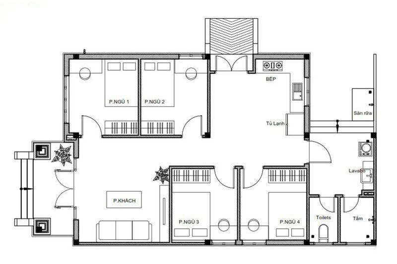
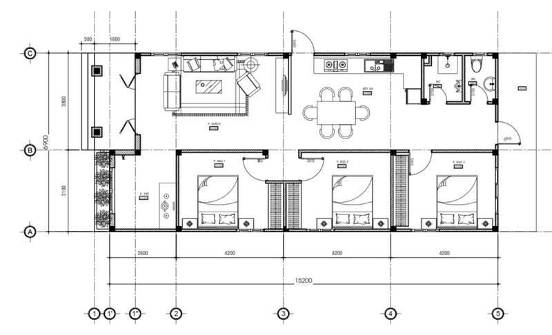
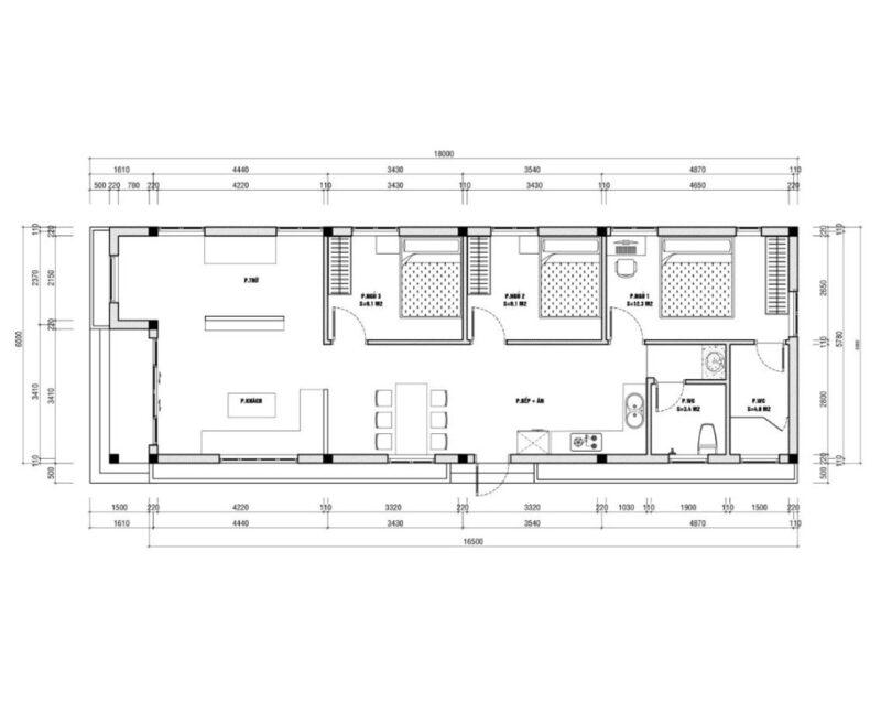
Thiết kế nhà cấp 4 mái lệch là giải pháp kiến trúc độc đáo, tạo điểm nhấn ấn tượng cho không gian sống. Để thi công một công trình hoàn hảo, bạn cần có một bản vẽ chi tiết và đầy đủ. Một bản vẽ chuẩn sẽ bao gồm các phần chính như bản vẽ mặt bằng bố trí công năng, bản vẽ mặt đứng, bản vẽ mặt cắt, và bản vẽ kết cấu.
Các mẫu bản vẽ dưới đây giúp bạn hình dung rõ ràng về cách sắp xếp các phòng chức năng, từ phòng khách, bếp, phòng ngủ đến nhà vệ sinh. Đồng thời, nó còn thể hiện chi tiết về chiều cao, độ dốc mái, vật liệu sử dụng, và hệ thống điện, nước. Nhờ vậy, quá trình thi công diễn ra thuận lợi, đảm bảo tính thẩm mỹ và an toàn cho ngôi nhà.

Mẫu bản vẽ nhà cấp 4 mái lệch chi tiết, đáng tham khảo (Nguồn: Internet)

Mẫu bản vẽ nhà cấp 4 mái lệch có 3 phòng ngủ đầy đủ tiện nghi (Nguồn: Internet)

Mẫu bản vẽ nhà cấp 4 mái lệch đơn giản, chi tiết, tối ưu công năng (Nguồn: Internet)
Nhà cấp 4 mái lệch là một lựa chọn kiến trúc hiện đại, nổi bật với phần mái dốc có một bên cao hơn bên còn lại, tạo nên vẻ ngoài độc đáo và khác biệt so với các kiểu mái truyền thống. Thiết kế này vừa mang lại giá trị thẩm mỹ độc đáo, vừa giúp tối ưu hóa công năng sử dụng, mang đến nhiều lợi ích thiết thực cho không gian sống. Mái lệch giúp tăng cường khả năng thoát nước mưa hiệu quả, đồng thời tạo ra sự đa dạng về chiều cao trần nhà, giúp không gian nội thất trở nên rộng rãi và thoáng đãng hơn.
Đặc trưng cơ bản của nhà mái lệch cấp 4 gồm:

Nhà cấp 4 mái lệch với không gian rộng rãi, tính thẩm mỹ cao (Nguồn: Internet)
>> Tham khảo thêm:
Nhà mái lệch không chỉ thu hút bởi thiết kế hiện đại mà còn sở hữu nhiều ưu điểm vượt trội về công năng và thẩm mỹ:

Nhà mái lệch với ưu điểm không gian thoáng đãng, tối ưu hóa năng lượng (Nguồn: Internet)
>> Tìm hiểu thêm:
Mặc dù mang lại vẻ đẹp hiện đại và phá cách, nhà mái lệch vẫn tồn tại một số nhược điểm đáng lưu ý. Đối với những khu vực có khí hậu khắc nghiệt, như nắng nóng gay gắt hoặc mùa đông lạnh sâu, kiểu mái này có thể gặp khó khăn trong việc duy trì nhiệt độ ổn định bên trong. Điều này đòi hỏi gia chủ phải đầu tư thêm vào hệ thống cách nhiệt, chống nóng hoặc giữ ấm để đảm bảo không gian sinh hoạt luôn thoải mái. Bên cạnh đó, chi phí xây dựng nhà mái lệch cấp 4 thường cao hơn so với nhà mái bằng, do yêu cầu kỹ thuật phức tạp hơn về kết cấu mái và thi công. Vì vậy, trước khi lựa chọn thiết kế này, bạn nên cân nhắc kỹ về điều kiện khí hậu địa phương cũng như khả năng đầu tư để đảm bảo hiệu quả sử dụng lâu dài.

Nhà mái lệch thường có hạn chế về khả năng cách nhiệt chống nóng (Nguồn: Internet)
>> Tham khảo:
Trang trí mặt tiền nhà mái lệch đòi hỏi sự tinh tế để vừa tôn lên nét độc đáo của kiến trúc, vừa đảm bảo tính thẩm mỹ và hiện đại. Dưới đây là một số gợi ý giúp bạn có được mặt tiền nhà đẹp, ưng ý:

Mẫu trang trí mặt tiền nhà mái lệch đẹp, hiện đại (Nguồn: Internet)
>> Xem thêm:
Chi phí xây nhà cấp 4 mái lệch đơn giản thường dao động tùy thuộc vào nhiều yếu tố như diện tích xây dựng, mức giá nhân công, vật tư tại khu vực thi công và loại hình thiết kế. Thông thường, để tính kinh phí dự kiến, chủ đầu tư có thể áp dụng công thức: diện tích sàn x 1.4 (do phần mái dốc chiếm thêm chi phí so với mái bằng).
Bên cạnh đó, đơn giá xây dựng nhà mái lệch hiện nay trung bình từ 5 triệu - 7 triệu đồng/m², tùy thuộc vào chất lượng vật liệu và tay nghề đội thi công. Ví dụ, với diện tích sàn khoảng 100m², tổng chi phí có thể dao động từ 500 triệu - 900 triệu đồng.
Ngoài chi phí chính, chủ nhà nên dự trù thêm 5 - 10% ngân sách để xử lý các phát sinh trong quá trình xây dựng như điều chỉnh thiết kế, tăng giá vật tư hoặc thay đổi hạng mục. Việc chuẩn bị kỹ lưỡng về tài chính không chỉ giúp công trình suôn sẻ mà còn đảm bảo tiến độ và chất lượng của ngôi nhà mái lệch mơ ước.

Chi phí xây nhà mái lệch cấp 4 thường từ 500 triệu - 900 triệu đồng, phụ thuộc vào nhiều yếu tố (Nguồn: Internet)
>> Tham khảo:
Khi thi công nhà mái lệch, cần chú ý đến các yếu tố kỹ thuật và thẩm mỹ để đảm bảo công năng, độ bền cũng như sự hài hòa tổng thể. Dưới đây là một số lưu ý quan trọng:

Khi xây nhà mái lệch cần lưu ý về hệ thống thoát nước, cửa kính và phong thuỷ (Nguồn: Internet)
>> Một số mẫu nhà khác:
Nhà cấp 4 mái lệch thực sự là một lựa chọn tuyệt vời cho những ai đang tìm kiếm một không gian sống hiện đại, tiện nghi với chi phí hợp lý. Hy vọng với các gợi ý mẫu nhà cùng những kinh nghiệm thiết kế và xây dựng được chia sẻ, bạn đã có thêm nhiều ý tưởng để hiện thực hóa ngôi nhà mơ ước của mình. Đừng ngần ngại đầu tư thời gian tìm hiểu và lựa chọn một thiết kế phù hợp nhất với phong cách và nhu cầu của gia đình để đón một cuộc sống mới đầy tiện nghi và hạnh phúc!
Nếu các quý khách hàng có bất kỳ thắc mắc nào liên quan đến sản phẩm tấm xi măng DURAflex cho các hạng mục vách ngăn phòng khách, vách ngăn phòng khách và bếp, vách ngăn phòng ngủ, vách ngăn cầu thang, tấm lót sàn, ốp tường trang trí,... cho nhà mái lệch, vui lòng liên hệ:
Đánh giá và nhận xét
Đánh giá trung bình
0/5
5
4
3
2
1
Chia sẻ và nhận xét về bài viết
Chia sẻ và nhận xét về bài viết
Bài viết chưa có đánh giá nào