
DURAflex đăng vào lúc 27/11/2025 - 17:13
Ngày nay, nhu cầu về nhà ở nhanh chóng, tiện lợi và tiết kiệm chi phí ngày càng gia tăng. Nhờ đó, nhà lắp ghép 2 tầng nổi lên như một giải pháp tối ưu, kết hợp giữa thiết kế hiện đại, thi công nhanh chóng và mức giá hấp dẫn. Bài viết này DURAflex sẽ cung cấp báo giá chi tiết và giới thiệu các mẫu nhà lắp ghép 2 tầng đẹp, giá rẻ nhất năm 2026, giúp bạn có cái nhìn toàn diện và đưa ra lựa chọn phù hợp nhất cho tổ ấm của mình.
Dưới đây là các mẫu nhà lắp ghép 2 tầng được nhiều chuyên gia xây dựng đánh giá cao về thiết kế, độ bền và hiệu quả đầu tư mà các bạn có thể tham khảo:
Với phong cách tối giản và tinh tế, mẫu nhà lắp ghép 2 tầng hiện đại đang là lựa chọn được nhiều gia đình trẻ ưa chuộng trong năm 2026. Thiết kế sử dụng gam màu trung tính kết hợp cùng các mảng kính lớn, giúp không gian luôn tràn ngập ánh sáng tự nhiên. Kết cấu gọn gàng, bố trí khoa học giữa các khu vực chức năng mang lại cảm giác thoải mái và tiện nghi. Ưu điểm nổi bật của mẫu nhà này là thời gian thi công nhanh, chi phí hợp lý và phù hợp với những khu đất có diện tích vừa phải. Tuy nhiên, nếu không đầu tư thêm vào nội thất hoặc điểm nhấn kiến trúc, mẫu nhà có thể trở nên đơn điệu, thiếu cá tính riêng.

Mẫu nhà lắp ghép 2 tầng hiện đại, kết hợp cùng các mảng kính lớn, giúp không gian tràn ngập ánh sáng tự nhiên (Nguồn: Internet)
>> Đọc thêm:
Nhà lắp ghép 2 tầng bằng khung thép là giải pháp kiến trúc hiện đại, tận dụng hiệu quả diện tích đất. Với thiết kế độc đáo dạng gác mái, ngôi nhà không chỉ tối ưu hóa không gian tầng trên làm phòng ngủ, phòng làm việc hay khu vực lưu trữ, mà còn mang đến vẻ đẹp ấn tượng và mới lạ. Đặc biệt, kết cấu khung thép vững chắc giúp rút ngắn thời gian thi công, giảm chi phí nhân công so với các công trình truyền thống. Kiểu nhà khung thép này ngày càng được ưa chuộng, nhất là ở các nước phương Tây, nhờ khả năng thích ứng linh hoạt và phong cách thiết kế độc đáo, tạo nên một không gian sống vừa tiện nghi vừa thẩm mỹ.

Mẫu nhà lắp ghép 2 tầng bằng khung thép hiện đại, tối ưu thời gian thi công (Nguồn: Internet)
Bạn có thể cân nhắc chọn xây dựng những mẫu nhà lắp ghép 2 tầng bằng gỗ vì đây là một trong những giải pháp xây dựng hiện đại được nhiều người ưa chuộng. Nhà gỗ lắp ghép 2 tầng mang lại vẻ đẹp mộc mạc, ấm cúng, gần gũi với thiên nhiên, lại vừa đảm bảo đầy đủ công năng sử dụng. Với vật liệu nhẹ và quy trình thi công nhanh chóng, nhà gỗ lắp ghép 2 tầng giúp bạn tiết kiệm chi phí nhân công và thời gian xây dựng đáng kể. Để có thể khắc phục được những nhược điểm về mối mọt và cong vênh của gỗ tự nhiên, đồng thời giúp cho không gian sống thêm sang trọng và đẳng cấp, bạn có thể tham khảo vật liệu tấm xi măng giả gỗ DURAwood. Đây chính là giải pháp thay thế hoàn hảo cho gỗ tự nhiên khi thi công nhà gỗ.

Mẫu nhà lắp ghép 2 tầng bằng gỗ đẹp, mộc mạc, gần gũi với thiên nhiên (Nguồn: Internet)
>> Tìm hiểu thêm:
Mẫu nhà lắp ghép 2 tầng mái Thái đang trở thành xu hướng được nhiều gia đình lựa chọn, đặc biệt là những ai yêu thích vẻ đẹp truyền thống nhưng vẫn muốn có không gian sống hiện đại. Khác với nhà cấp 4 mái Thái chỉ có một tầng, mẫu nhà này tối ưu hóa diện tích sử dụng, tạo ra không gian sinh hoạt rộng rãi và tiện nghi hơn. Với kiểu dáng thanh thoát, phần mái Thái dốc giúp thoát nước tốt và chống nóng hiệu quả, mang đến sự mát mẻ cho ngôi nhà. Việc sử dụng công nghệ lắp ghép còn giúp rút ngắn thời gian thi công, tiết kiệm chi phí mà vẫn đảm bảo chất lượng và độ bền vững chắc. Mẫu nhà mái Thái này không chỉ đáp ứng nhu cầu thẩm mỹ mà còn mang lại giá trị kinh tế và công năng vượt trội.

Mẫu nhà mái Thái 2 tầng lắp ghép đẹp, hiện đại, giá rẻ (Nguồn: Internet)
>> Xem thêm:
Trong bối cảnh đô thị hóa ngày càng cao, biệt thự nhà vườn lắp ghép 2 tầng đang trở thành lựa chọn lý tưởng cho những ai khao khát không gian sống xanh mát, trong lành. Với thiết kế tinh tế, hiện đại, những ngôi nhà này không chỉ mang đến sự tiện nghi mà còn kiến tạo một không gian sống đẳng cấp, gần gũi với thiên nhiên. Đặc biệt, việc kết hợp nhà vườn nhỏ đẹp cùng nhà chòi sân vườn sẽ tạo nên một tổng thể hài hòa, nơi gia chủ có thể thư giãn, tận hưởng không khí trong lành sau những giờ làm việc căng thẳng. Nhờ công nghệ lắp ghép tiên tiến, các mẫu nhà này có thời gian thi công nhanh chóng, tiết kiệm chi phí và đảm bảo chất lượng, mang lại giải pháp nhà ở bền vững và hiệu quả.

Mẫu nhà lắp ghép 2 tầng biệt thự vườn hiện đại, sang trọng (Nguồn: Internet)
Mẫu nhà lắp ghép 2 tầng kiểu nhà ống là giải pháp hiện đại dành cho những khu đất có mặt tiền hẹp nhưng chiều sâu lớn. Với thiết kế dạng hình chữ nhật kéo dài, mẫu nhà này tận dụng tối đa diện tích sử dụng, phù hợp với đô thị hoặc khu dân cư đông đúc. Nhà lắp ghép kiểu ống 2 tầng không chỉ tiết kiệm mà còn mang đến không gian sống hiện đại, gọn gàng và dễ dàng bảo trì.

Mẫu nhà ống 2 tầng lắp ghép thích hợp cho những khu đất dài và hẹp (Nguồn: Internet)
>> Xem thêm:
Nhà lắp ghép 2 tầng với hồ bơi mang đến không gian sống hiện đại và thư giãn cho gia đình bạn. Với thiết kế linh hoạt, những ngôi nhà này không chỉ tối ưu hóa diện tích sử dụng mà còn tích hợp hồ bơi một cách hài hòa, tạo nên một khu nghỉ dưỡng mini ngay tại gia.
Công nghệ lắp ghép tiên tiến cho phép rút ngắn thời gian thi công, đồng thời đảm bảo chất lượng và độ bền cao. Đặc biệt, bạn có thể dễ dàng tùy chỉnh bố cục, vật liệu và phong cách kiến trúc theo sở thích cá nhân, từ đó kiến tạo nên một không gian sống độc đáo và đầy tiện nghi, phục vụ mọi nhu cầu sinh hoạt và giải trí của gia đình.

Mẫu nhà lắp ghép 2 tầng có hồ bơi hiện đại, thiết kế hài hoà, sang trọng (Nguồn: Internet)
Mẫu nhà lắp ghép 2 tầng có ban công là lựa chọn lý tưởng cho những ai yêu thích không gian sống gần gũi với thiên nhiên. Thiết kế ban công rộng rãi giúp đón ánh sáng và gió tự nhiên, mang đến cảm giác thư giãn mỗi ngày. Đây là giải pháp tối ưu cho những gia đình muốn sở hữu ngôi nhà đẹp, tiện nghi mà không mất quá nhiều thời gian xây dựng. Ngoài ra, chi phí hợp lý cũng là điểm cộng lớn của dòng nhà này.

Mẫu nhà lắp ghép 2 tầng có ban công giúp đón ánh sáng và gió tự nhiên (Nguồn: Internet)
>> Đọc thêm:
Mẫu nhà container lắp ghép 2 tầng có ban công là giải pháp nhà ở hiện đại, giúp tăng diện tích sử dụng hiệu quả mà vẫn đảm bảo tính thẩm mỹ. Thiết kế ban công mang đến không gian thư giãn, ngắm cảnh ngoài trời thoáng đãng, đồng thời góp phần tăng cường ánh sáng tự nhiên, giúp ngôi nhà luôn sáng sủa và dễ chịu. Tổng thể kiến trúc toát lên vẻ hiện đại, sang trọng, phù hợp với xu hướng sống tối giản nhưng tiện nghi hiện nay.
Với diện tích khoảng 60 m², công năng được bố trí khoa học và hợp lý. Tầng 1 gồm phòng khách, khu vực bếp và nhà vệ sinh, tạo không gian sinh hoạt chung liền mạch. Tầng 2 được sắp xếp với 2 phòng ngủ, 1 nhà vệ sinh và ban công, đảm bảo sự riêng tư và thoải mái khi sử dụng. Mẫu nhà này phù hợp cho gia đình từ 4-5 người, với chi phí ước tính từ 500-700 triệu đồng, là lựa chọn đáng cân nhắc cho những ai tìm kiếm mô hình nhà ở linh hoạt, tiết kiệm và bền vững.

Mẫu nhà container 2 tầng lắp ghép có ban công thoáng đãng, giá rẻ (Nguồn: Internet)
>> Xem thêm:
Nhà lắp ghép 2 phòng ngủ 2 tầng là giải pháp xây dựng hiện đại, tiết kiệm thời gian và chi phí tối ưu. Thiết kế này phù hợp với gia đình nhỏ hoặc cặp vợ chồng trẻ mong muốn không gian sống tiện nghi và thoải mái. Với cấu trúc linh hoạt, nhà lắp ghép 2 tầng dễ dàng lắp đặt, tháo dỡ và di chuyển khi cần thiết. Bên cạnh đó, vật liệu sử dụng thân thiện với môi trường, đảm bảo độ bền cao và khả năng cách nhiệt tốt. Mẫu nhà này không chỉ đáp ứng nhu cầu sinh hoạt đầy đủ mà còn mang tính thẩm mỹ hiện đại, phù hợp với nhiều loại địa hình khác nhau.

Mẫu nhà lắp ghép 2 tầng 2 phòng ngủ đẹp, phù hợp với gia đình nhỏ hoặc cặp vợ chồng trẻ (Nguồn: Internet)
>> Xem tham khảo: 59+ Mẫu nhà gác lửng 2 phòng ngủ đẹp, hiện đại, sang trọng
Mẫu nhà lắp ghép 2 tầng 3 phòng ngủ là lựa chọn lý tưởng cho các gia đình trẻ đang tìm kiếm không gian sống tiện nghi, hiện đại và tiết kiệm chi phí. Thiết kế thông minh với đầy đủ phòng khách, bếp và 3 phòng ngủ riêng biệt giúp tối ưu công năng sử dụng mà vẫn đảm bảo sự riêng tư. Với kết cấu thép nhẹ và vật liệu cách nhiệt từ tấm xi măng DURAflex Low Carbon cao cấp với hệ số dẫn nhiệt là 0.166 W/m.K, mẫu nhà lắp ghép 3 phòng ngủ này không chỉ bền bỉ, thoáng đãng, tiện nghi mà còn thân thiện với môi trường. Đây là giải pháp được nhiều chuyên gia xây dựng đánh giá cao về tính linh hoạt, thi công nhanh chóng và tiết kiệm chi phí bảo trì dài hạn.

Mẫu nhà lắp ghép 2 tầng 3 phòng ngủ đẹp, tiện nghi, hiện đại (Nguồn: Internet)
>> Các bài viết về mẫu nhà có 3 phòng ngủ khác:
Dành cho các gia đình đông thành viên hoặc có nhu cầu sử dụng không gian linh hoạt, mẫu nhà lắp ghép 2 tầng 4 phòng ngủ mang đến giải pháp tối ưu về diện tích và công năng. Với 4 phòng ngủ rộng rãi, gia chủ dễ dàng bố trí không gian sinh hoạt, nghỉ ngơi và làm việc tại nhà một cách hiệu quả. Thiết kế hiện đại, hệ kết cấu bền vững cùng sử dụng tấm xi măng 6mm DURAflex Low Carbon làm vách ngăn phòng ngủ sẽ giúp tăng cường khả năng cách âm, cách nhiệt tốt. Từ đó, ngôi nhà lắp ghép 2 tầng 4 phòng ngủ của bạn sẽ luôn thoáng mát và yên tĩnh. Đây là lựa chọn phù hợp cho những ai đề cao sự tiện nghi, bền vững và chi phí đầu tư hợp lý trong dài hạn.

Mẫu nhà lắp ghép 2 tầng 4 phòng ngủ sang trọng, rộng rãi, đầy đủ tiện ích (Nguồn: Internet)
>> Có thể bạn quan tâm:
Mẫu nhà lắp ghép 2 tầng 5x20 là lựa chọn lý tưởng cho gia đình nhỏ mong muốn không gian sống hiện đại, tiết kiệm chi phí. Với diện tích mặt bằng 100m², thiết kế này tận dụng tối đa diện tích chiều dài để bố trí công năng hợp lý gồm phòng khách, bếp, phòng ngủ và không gian sinh hoạt chung. Vật liệu lắp ghép tiên tiến giúp thi công nhanh chóng, bền bỉ và đảm bảo cách âm, cách nhiệt tốt. Đây là giải pháp phù hợp tại đô thị hoặc khu dân cư đông đúc, vừa đảm bảo thẩm mỹ vừa tiết kiệm thời gian xây dựng.

Mẫu nhà 1 trệt 1 lầu lắp ghép 5x20 hiện đại là lựa chọn lý tưởng cho gia đình nhỏ (Nguồn: Internet)
>> Xem thêm:
Với tổng diện tích sử dụng 100m2, mẫu nhà lắp ghép 2 tầng này được đánh giá cao về tính linh hoạt và tối ưu hóa không gian sống. Thiết kế thường bao gồm 2-3 phòng ngủ, khu vực sinh hoạt chung thoáng đãng và ban công rộng mở, phù hợp với nhu cầu của các gia đình trẻ. Mẫu nhà này đáp ứng tiêu chuẩn về thẩm mỹ, chất lượng và công năng, phù hợp cho cả nhà phố và khu vực ngoại ô.

Mẫu nhà lắp ghép 2 tầng 100m2 đẹp, thoáng đãng với ban công rộng lớn (Nguồn: Internet)
>> Đọc thêm:
Mẫu nhà lắp ghép 2 tầng 50m² là giải pháp tối ưu cho những gia đình nhỏ hoặc cặp vợ chồng trẻ đang tìm kiếm không gian sống hiện đại, tiện nghi và tiết kiệm chi phí. Dù diện tích không quá lớn, thiết kế vẫn đảm bảo bố trí hợp lý với các không gian chức năng như 2 phòng ngủ, khu sinh hoạt chung và bếp. Cấu trúc lắp ghép bền vững, thời gian thi công nhanh và tính thẩm mỹ cao giúp mẫu nhà này trở thành lựa chọn lý tưởng trong các khu dân cư mới hoặc vùng có quỹ đất hạn chế.

Mẫu nhà lắp ghép 100 triệu 2 tầng 50m2 đẹp, được nhiều gia chủ lựa chọn nhất hiện nay (Nguồn: Internet)
>> Xem thêm:
Với ngân sách từ 150 triệu đến 500 triệu, bạn hoàn toàn có thể xây dựng được các mẫu nhà lắp ghép 2 tầng hiện đại, tiết kiệm và đầy đủ công năng. Trong khoảng chi phí thấp 150–250 triệu, các mẫu nhà thường có thiết kế tối giản với 1-2 phòng ngủ, phòng khách tích hợp bếp và 1 nhà vệ sinh. Từ 300–500 triệu, bạn có thể nâng cấp lên 3-4 phòng ngủ, ban công, phòng sinh hoạt chung, thậm chí là thêm thiết kế sân vườn nhỏ.

Mẫu nhà lắp ghép 150 triệu 2 tầng đơn giản, thoải mái (Nguồn: Internet)

Mẫu nhà lắp ghép 200 triệu 2 tầng hiện đại, vững vàng (Nguồn: Internet)

Mẫu nhà lắp ghép 300 triệu 300 triệu đẹp, phù hợp cho cả khu vực thành thị lẫn nông thôn (Nguồn: Internet)

Mẫu nhà lắp ghép 500 triệu 2 tầng từ 500 triệu đẹp, đáp ứng nhu cầu sinh hoạt của gia đình 3-4 người (Nguồn: Internet)
>> Đọc thêm:
Thiết kế nhà lắp ghép 2 tầng là giải pháp được nhiều gia đình lựa chọn nhờ khả năng tối ưu diện tích, công năng và chi phí xây dựng. Để có một không gian sống phù hợp, tiện nghi và bền vững, quá trình thiết kế cần được nghiên cứu kỹ lưỡng, bám sát nhu cầu thực tế cũng như điều kiện xây dựng cụ thể của từng gia đình.
Trước khi bắt tay vào thiết kế nhà lắp ghép 2 tầng, kiến trúc sư cần trao đổi chi tiết với khách hàng nhằm hiểu rõ nhu cầu sử dụng, thói quen sinh hoạt, phong cách sống, gu thẩm mỹ cũng như số lượng thành viên trong gia đình. Việc phân tích kỹ các yếu tố này giúp bản thiết kế đảm bảo tính thực tiễn, tránh lãng phí không gian và đáp ứng đúng mong muốn của gia chủ.
Song song đó, các thông tin về diện tích đất, địa hình, hướng nhà, quy hoạch khu vực cũng cần được khảo sát đầy đủ để đưa ra phương án thiết kế phù hợp nhất. Với những khu đất hạn chế về diện tích, nhà lắp ghép 2 tầng là giải pháp hiệu quả, giúp mở rộng không gian sinh hoạt theo chiều cao mà vẫn đảm bảo sự thông thoáng.
Ngoài ra, đội ngũ thiết kế nên đề xuất nhiều phương án khác nhau để khách hàng dễ dàng lựa chọn và điều chỉnh. Sự linh hoạt trong thiết kế sẽ góp phần tạo nên một không gian sống hài hòa, đúng nhu cầu và mang dấu ấn riêng của gia chủ.

Phân tích đánh giá yêu cầu và nhu cầu thực tế của khách hàng trước khi thiết kế nhà lắp ghép 2 tầng (Nguồn: Internet)
Nhà lắp ghép có thể ứng dụng nhiều phong cách kiến trúc khác nhau, phù hợp với sở thích và điều kiện của từng gia đình. Một số phong cách phổ biến gồm:

Các phong cách thiết kế phổ biến cho nhà lắp ghép 2 tầng hiện nay (Nguồn: Internet)
Việc phân bố không gian trong nhà lắp ghép 2 tầng khá linh hoạt, dễ dàng điều chỉnh theo nhu cầu sử dụng. Thông thường:
Bên cạnh việc phân chia công năng, kiến trúc sư cần chú trọng bố trí nội thất hợp lý, kết hợp hài hòa giữa ánh sáng tự nhiên, thông gió và mảng xanh để tạo nên môi trường sống dễ chịu và cân bằng.

Mẫu phân bố không gian trong thiết kế nhà lắp ghép 2 tầng hợp lý (Nguồn: Internet)
>> Đọc thêm:
Khi thiết kế nhà lắp ghép 2 tầng, một số yếu tố quan trọng không thể bỏ qua gồm:
Thiết kế nội thất hợp lý giúp nhà lắp ghép 2 tầng phát huy tối đa công năng và mang lại sự thoải mái cho gia đình.

Thiết kế nội thất cho nhà lắp ghép 2 tầng đẹp, sang trọng (Nguồn: Internet)
>> Tìm hiểu thêm:
Việc lựa chọn xây dựng nhà lắp ghép 2 tầng mang lại nhiều lợi ích thiết thực cho gia chủ, bao gồm:

Xây dựng nhà lắp ghép 2 tầng giúp tiết kiệm chi phí xây dựng và thi công (Nguồn: Internet)
Tầng 1 tại nhà lắp ghép 2 tầng được sắp xếp một cách thông minh, tối ưu hóa diện tích để đáp ứng đồng thời nhu cầu sinh hoạt chung của gia đình và đảm bảo sự riêng tư cho từng thành viên.

Tầng 1 của nhà lắp ghép 2 tầng nên bố trí phòng khách, phòng bếp và 1 phòng ngủ (Nguồn: Internet)
>> Xem thêm:
Tầng 2 trong nhà lắp ghép 2 tầng được thiết kế hướng đến sự riêng tư và yên tĩnh, là nơi dành cho sinh hoạt cá nhân và không gian thờ cúng trang nghiêm.

Tầng 2 tại nhà lắp ghép 2 tầng là nơi dành cho sinh hoạt cá nhân và không gian thờ cúng (Nguồn: Internet)
>> Đọc thêm:
Cầu thang trong nhà lắp ghép 2 tầng được thiết kế theo phong cách hiện đại, đảm bảo sự an toàn, chắc chắn và bền vững theo thời gian. Không chỉ đóng vai trò là phương tiện kết nối giữa các tầng, cầu thang còn là yếu tố thẩm mỹ nổi bật, góp phần tôn lên vẻ sang trọng cho toàn bộ không gian sống. Với chất liệu cao cấp và kiểu dáng tinh tế, cầu thang hài hòa tuyệt đối với kiến trúc tổng thể của ngôi nhà.

Cầu thang trong nhà lắp ghép 2 tầng được thiết kế theo phong cách hiện đại, đảm bảo sự an toàn, chắc chắn và bền vững theo thời gian (Nguồn: Internet)
>> Tham khảo thêm:
Khung sắt thép có độ bền cao, khả năng chịu lực tốt và chống chịu hiệu quả với điều kiện thời tiết khắc nghiệt. Việc sử dụng vật liệu này trong nhà lắp ghép 2 tầng giúp đẩy nhanh tiến độ thi công, dễ dàng lắp đặt hoặc di dời khi cần thiết, đồng thời đảm bảo độ an toàn cho toàn bộ công trình. Hệ khung này phù hợp với nhiều loại hình công trình, đặc biệt ở những khu vực thường xuyên chịu tác động của thiên nhiên.

Sử dụng khung sắt thép chịu lực để làm nhà lắp ghép 2 tầng giúp dễ dàng lắp đặt hoặc di dời khi cần thiết (Nguồn: Internet)
Hệ thống vách tường nhà lắp ghép 2 tầng được thiết kế tối ưu cả về hiệu năng sử dụng lẫn tính thẩm mỹ. Các vật liệu được lựa chọn kỹ lưỡng nhằm đảm bảo công trình không chỉ nhẹ, bền mà còn thích ứng tốt với điều kiện khí hậu tại Việt Nam.

Hệ thống vách tường nhà lắp ghép 2 tầng được làm từ các vật liệu tối ưu cả về hiệu năng sử dụng lẫn tính thẩm mỹ (Nguồn: Internet)
Mái nhà lắp ghép 2 tầng thường được làm từ các vật liệu nhẹ, bền và có khả năng thích ứng cao với điều kiện khí hậu nhiệt đới.

Mái nhà lắp ghép 2 tầng thường được làm từ các vật liệu nhẹ, bền và có khả năng thích ứng cao với thời tiết (Nguồn: Internet)
Hệ cửa và vách kính trong nhà lắp ghép 2 tầng được làm bằng vật liệu cao cấp, mang lại sự đồng bộ, hiện đại và tối ưu về công năng sử dụng. Kết cấu nhẹ, bền, phù hợp với nhiều loại hình nhà ở và công trình lắp ghép.

Hệ cửa và vách kính trong nhà lắp ghép 2 tầng được làm bằng vật liệu cao cấp, hiện đại (Nguồn: Internet)
>> Đọc thêm:
Sàn nhà lắp ghép 2 tầng được thi công bằng hệ vật liệu nhẹ nhưng chắc chắn, đảm bảo độ cứng, khả năng chịu tải và độ bền sử dụng lâu dài. Cấu tạo sàn phù hợp với nhiều loại công trình từ nhà ở, văn phòng đến nhà xưởng.

Sàn nhà lắp ghép 2 tầng được thi công bằng hệ vật liệu nhẹ nhưng chắc chắn (Nguồn: Internet)
>> Xem thêm:
Khác với nhà lắp ghép cấp 4, mẫu nhà lắp ghép 2 tầng mang đến không gian sống rộng rãi và thoải mái hơn. Việc lắp ráp các cấu kiện sẵn có từ nhà máy giúp dễ dàng tháo dỡ, cơi nới, tạo ra sự linh hoạt cho gia chủ trong việc thay đổi không gian sống hoặc mở rộng diện tích sử dụng.

Mẫu nhà lắp ghép 2 tầng mang đến không gian sống rộng rãi và thoải mái (Nguồn: Internet)
>> Xem thêm:
Việc thi công nhà lắp ghép 2 tầng không chỉ giúp tiết kiệm đáng kể chi phí mà còn thân thiện với môi trường. Các vật liệu sử dụng trong nhà lắp ghép thường có khả năng tái chế cao, góp phần giảm thiểu khai thác tài nguyên thiên nhiên. Bên cạnh đó, quá trình thi công hạn chế tối đa tiếng ồn, bụi bẩn và rác thải xây dựng, giúp giảm thiểu tác động tiêu cực đến môi trường xung quanh và cộng đồng dân cư.

Thi công nhà lắp ghép 2 tầng giúp bảo vệ môi trường hiệu quả (Nguồn: Internet)
>> Đọc thêm:
Mẫu nhà lắp ghép 2 tầng hiện nay không chỉ đảm bảo tính thẩm mỹ mà còn có nhiều kiểu dáng đa dạng, đáp ứng nhu cầu thẩm mỹ và công năng của từng gia đình. Với sự phát triển của công nghệ thi công, những mẫu nhà này không ngừng được cải tiến, mang lại không gian sống hiện đại, sang trọng.

Nhà lắp ghép 2 tầng có tính thẩm mỹ cao, đa dạng phong cách (Nguồn: Internet)
>> Xem thêm:
Một trong những ưu điểm nổi bật của nhà lắp ghép 2 tầng là tiết kiệm chi phí thi công. Việc sử dụng các cấu kiện sẵn có giúp rút ngắn thời gian thi công so với phương pháp xây dựng truyền thống. Điều này không chỉ giảm thiểu chi phí nguyên vật liệu mà còn tiết kiệm được các khoản phí phát sinh như tiền thuê nhân công hay bãi chứa vật liệu.

Tiết kiệm chi phí và thời gian thi công nhà lắp ghép 2 tầng (Nguồn: Internet)
Mẫu nhà lắp ghép 2 tầng không chỉ đáp ứng tốt nhu cầu làm nhà ở cho gia đình, mà còn có thể linh hoạt ứng dụng trong nhiều lĩnh vực khác nhau như:

Mẫu nhà lắp ghép 2 tầng được ứng dụng trong lĩnh vực homestay (Nguồn: Internet)
>> Xem thêm:

Nhà lắp ghép 2 tầng có chi phí phụ thuộc vào diện tích, kiểu dáng, vật liệu xây dựng (Nguồn: Internet)
>> Đọc thêm:
Dưới đây là bảng so sánh chi tiết giữa nhà lắp ghép và nhà truyền thống dựa trên diện tích là 100m2, vị trí trung bình. Thông tin giúp người đọc dễ dàng cân nhắc lựa chọn giải pháp xây dựng phù hợp với nhu cầu thực tế và ngân sách.
|
Yếu tố |
Nhà lắp ghép |
Nhà truyền thống |
|
Giá thiết kế |
10 - 20 triệu đồng |
20 - 40 triệu đồng |
|
Giá thi công |
300 - 600 triệu đồng |
400 - 800 triệu đồng |
|
Giá vật liệu |
100 - 300 triệu đồng |
200 - 500 triệu đồng |
|
Tổng chi phí |
410 - 920 triệu đồng |
620 - 1.340 triệu đồng |
|
Thời gian thi công |
2 - 4 tháng |
4 - 6 tháng |
|
Tuổi thọ |
15 - 20 năm |
30 - 50 năm |
|
Khả năng chịu lực |
Trung bình |
Tốt |
|
Khả năng di dời |
Dễ dàng |
Khó khăn |
|
Sửa chữa, cải tạo |
Khó khăn |
Dễ dàng |
|
Thân thiện môi trường |
Tốt (nếu dùng vật liệu tái chế) |
Trung bình |
>> Đọc thêm:
Dưới đây là bảng giá ước tính chi phí xây dựng nhà lắp ghép 2 tầng dựa trên diện tích khoảng 100m². Bảng giá này chỉ mang tính chất tham khảo, chi phí thực tế có thể thay đổi tùy theo vị trí xây dựng, chất lượng vật liệu, tay nghề đội ngũ thi công và nhiều yếu tố khác.
|
Loại chi phí |
Diện tích (m²) |
Giá/m² hoặc đơn giá |
Tổng chi phí (triệu đồng) |
|
Thiết kế nhà lắp ghép 2 tầng |
100m² |
1 - 2 triệu đồng/m² |
10 - 20 |
|
Vật liệu thi công |
|||
|
- Khung thép |
100m² |
1,5 - 2 triệu đồng/m² |
150 - 200 |
|
- Tấm tường, trần |
100m² |
1 - 1,5 triệu đồng/m² |
100 - 150 |
|
- Tấm lợp |
100m² |
0,5 - 1 triệu đồng/m² |
50 - 100 |
|
- Cửa sổ, cửa chính |
2 - 5 triệu đồng/cái |
20 - 50 |
|
|
- Hệ thống điện, nước |
50 - 100 |
||
|
Chi phí thi công |
|||
|
- Lắp đặt khung thép |
100m² |
1 - 1,5 triệu đồng/m² |
100 - 150 |
|
- Lắp đặt tường, trần |
100m² |
0,5 - 1 triệu đồng/m² |
50 - 100 |
|
- Lắp đặt mái, trần |
100m² |
0,5 - 1 triệu đồng/m² |
50 - 100 |
|
- Hoàn thiện nội thất |
50 - 100 |
||
|
Tổng chi phí ước tính |
410 - 920 triệu đồng |
Để xây dựng nhà lắp ghép 2 tầng tiết kiệm mà vẫn đảm bảo công năng và thẩm mỹ, bạn cần lên kế hoạch kỹ lưỡng ngay từ đầu. Dưới đây là những mẹo quan trọng giúp tối ưu chi phí một cách hiệu quả:
1. Lựa chọn thiết kế phù hợp:
2. Chọn vật liệu phù hợp:
3. Tiết kiệm chi phí thi công:
4. Tận dụng ưu đãi:
Theo dõi các chương trình khuyến mãi, chính sách giảm giá từ DURAflex để tiết kiệm chi phí đầu tư nguyên vật liệu.
5. Chuẩn bị kỹ lưỡng trước khi xây dựng:

Lựa chọn thiết kế và vật liệu phù hợp để tiết kiệm chi phí cho nhà lắp ghép 2 tầng (Nguồn: Internet)
>> Xem thêm:
Giai đoạn đầu tiên là làm việc với kiến trúc sư và nhà thầu để xây dựng mặt bằng và thông số kỹ thuật phù hợp với nhu cầu riêng. Việc tư vấn kỹ lưỡng giúp đảm bảo thiết kế đáp ứng đầy đủ mong muốn, tối ưu công năng và phù hợp với ngân sách của bạn.
Sau khi hoàn tất kế hoạch, các module nhà lắp ghép 2 tầng sẽ được gia công trực tiếp tại nhà máy theo đúng thông số kỹ thuật đã thống nhất. Sau đó, các module này được vận chuyển đến công trình để tiến hành lắp ráp, đảm bảo tiến độ nhanh chóng và chất lượng đồng bộ.
Sau khi vận chuyển đến công trường, các module sẽ được lắp ráp theo đúng thiết kế. Quá trình này diễn ra nhanh chóng và hiệu quả, giúp rút ngắn thời gian thi công so với xây dựng truyền thống. Việc lắp ráp cần được thực hiện chính xác và cẩn thận để đảm bảo độ bền, an toàn và chất lượng cho công trình.
Sau khi lắp ráp xong, công trình bước vào giai đoạn hoàn thiện với các hạng mục như lắp đặt nội thất, hoàn thiện cảnh quan và bổ sung các tiện ích cần thiết. Cuối cùng, mẫu nhà lắp ghép 2 tầng sẽ được kiểm tra và nghiệm thu kỹ lưỡng nhằm đảm bảo chất lượng, an toàn và đáp ứng đúng yêu cầu ban đầu của khách hàng.

Quy trình các bước thi công nhà lắp ghép 2 tầng (Nguồn: Internet)
Trước khi thiết kế, bạn cần xác định rõ nhu cầu sử dụng, phong cách sống và số lượng thành viên trong gia đình. Đồng thời, cần khảo sát diện tích đất, địa hình, hướng nhà và quy hoạch khu vực để đưa ra phương án tối ưu. Việc đưa ra nhiều lựa chọn thiết kế linh hoạt sẽ giúp bạn dễ dàng điều chỉnh theo ý muốn, từ đó tạo nên không gian sống phù hợp, tiện nghi và hiệu quả nhất.
Nhà lắp ghép 2 tầng có thể được thiết kế theo nhiều phong cách khác nhau, từ hiện đại, tân cổ điển đến truyền thống. Bạn xác định rõ ràng phong cách ngay từ đầu dựa trên sở thích và nhu cầu đa dạng của từng gia đình.

Cần xác định rõ ràng phong cách thiết kế cho nhà lắp ghép 2 tầng dựa trên sở thích và nhu cầu (Nguồn: Internet)
>> Xem thêm:
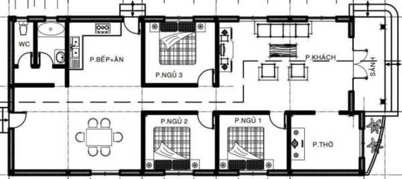
Thiết kế nhà lắp ghép 2 tầng cho phép bố trí không gian linh hoạt và tiện nghi. Tầng 1 thường là khu sinh hoạt chung gồm phòng khách, bếp, phòng ăn, vệ sinh và có thể tích hợp gara nếu diện tích cho phép. Tầng 2 là khu vực riêng tư với các phòng ngủ, phòng tắm, phòng thờ và ban công. Việc phân chia không gian hợp lý giúp tối ưu công năng và mang lại sự thoải mái trong sinh hoạt. Đồng thời, yếu tố nội thất, ánh sáng, thông gió và mảng xanh cũng cần được cân đối để đảm bảo không gian sống hài hòa, tiện nghi và gần gũi với thiên nhiên.

Khi thiết kế nhà lắp ghép 2 tầng cần bố trí không gian linh hoạt và tiện nghi (Nguồn: Internet)

Cần lưu ý đến hướng nhà đảm bảo thông gió và đón ánh sáng tốt khi thiết kế nhà lắp ghép 2 tầng (Nguồn: Internet)
>> Xem thêm:
Bố trí nội thất hợp lý cho nhà lắp ghép 2 tầng sẽ giúp tối ưu hóa không gian sử dụng, mang lại sự tiện nghi và thoải mái cho các thành viên trong gia đình:

Ưu tiên sử dụng nội thất đơn giản, tinh gọn cho nhà lắp ghép 2 tầng (Nguồn: Internet)
Khi thi công nhà lắp ghép 2 tầng, việc chuẩn bị kỹ lưỡng và tuân thủ đúng quy trình là yếu tố then chốt giúp công trình đạt chất lượng và vận hành lâu dài. Dưới đây là một số vấn đề quan trọng mà bạn cần lưu ý:
Trước khi khởi công, bạn cần chuẩn bị đầy đủ hồ sơ pháp lý theo quy định. Điều này bao gồm việc xin giấy phép xây dựng tại cơ quan chức năng và hoàn tất các thủ tục liên quan đến quy hoạch, môi trường, cũng như an toàn lao động. Việc tuân thủ đúng quy trình pháp lý sẽ giúp công trình nhà lắp ghép 2 tầng được triển khai hợp pháp, tránh bị xử phạt hoặc buộc dừng thi công giữa chừng.
Sau khi hoàn thiện, bạn nên làm rõ các điều khoản bảo hành với đơn vị thi công. Hãy xác định rõ thời gian bảo hành, các hạng mục được bảo hành và chi phí sửa chữa sau thời gian này. Một hợp đồng bảo hành minh bạch không chỉ giúp bạn an tâm về chất lượng mà còn thể hiện sự chuyên nghiệp và trách nhiệm của đơn vị thi công.
Trong suốt quá trình xây dựng, an toàn lao động là yếu tố bắt buộc phải đặt lên hàng đầu. Chủ đầu tư cần yêu cầu đơn vị thi công tuân thủ nghiêm ngặt các quy định về an toàn, sử dụng đầy đủ thiết bị bảo hộ cho công nhân và thực hiện kiểm tra định kỳ các máy móc, thiết bị thi công. Việc đảm bảo an toàn không chỉ giúp bảo vệ con người mà còn góp phần giữ vững tiến độ và chất lượng công trình.

Khi thi công nhà lắp ghép 2 tầng cần lưu ý chuẩn bị kỹ lưỡng và tuân thủ đúng quy trình (Nguồn: Internet)
>> Đọc thêm:
Khi lựa chọn đơn vị thi công nhà lắp ghép 2 tầng, gia chủ nên ưu tiên những đơn vị có quy trình làm việc chuyên nghiệp, rõ ràng và bài bản. Quy trình cần bao gồm đầy đủ các bước: khảo sát hiện trạng, tư vấn thiết kế, gia công, lắp dựng và hoàn thiện nội - ngoại thất. Ngoài ra, một đơn vị uy tín phải có cam kết rõ ràng về tiến độ thi công, chất lượng vật liệu, kỹ thuật xây dựng cũng như chính sách bảo hành sau bàn giao.
Đội ngũ thi công là yếu tố then chốt quyết định chất lượng công trình. Gia chủ nên lựa chọn đơn vị sở hữu đội ngũ kỹ sư, thợ thi công có tay nghề cao, được đào tạo bài bản và có kinh nghiệm thực tế trong lĩnh vực nhà lắp ghép. Một đội ngũ chuyên nghiệp không chỉ đảm bảo từng công đoạn được thực hiện chính xác, an toàn mà còn chủ động xử lý nhanh chóng các tình huống phát sinh.
Khi lựa chọn đơn vị thi công nhà lắp ghép 2 tầng, gia chủ nên ưu tiên những đơn vị có bộ phận giám sát chuyên trách, theo dõi sát sao từng giai đoạn thi công. Đội ngũ này cần đảm bảo mọi công đoạn từ lắp đặt kết cấu, hoàn thiện đều được kiểm tra kỹ lưỡng, đúng tiêu chuẩn. Sự hiện diện của giám sát chất lượng chuyên nghiệp sẽ giúp hạn chế sai sót, tăng độ chính xác.
Thời gian thi công nhanh là một trong những ưu điểm nổi bật của nhà lắp ghép 2 tầng. Gia chủ nên ưu tiên những đơn vị có khả năng tối ưu tiến độ thi công nhưng vẫn đảm bảo chất lượng từng hạng mục. Việc bàn giao đúng hạn không chỉ giúp tiết kiệm thời gian, chi phí mà còn giúp gia chủ chủ động hơn trong việc sử dụng và khai thác công trình.

Lựa chọn đơn vị thi công nhà lắp ghép 2 tầng uy tín, chuyên nghiệp giúp gia chủ tiết kiệm được công sức, thời gian và chi phí (Nguồn: Internet)
Câu trả lời là có. Nhà lắp ghép cũng bền vững và an toàn như các mẫu nhà 2 tầng truyền thống khác.
Cho dù bạn xây nhà truyền thống hay nhà lắp ghép thì đều phải di chuyển đến cơ quan chức năng để xin giấy phép xây dựng, nếu không thì sẽ bị xem như là vi phạm pháp luật.
Chi phí xây nhà lắp ghép 2 tầng 3 phòng ngủ dao động từ 3,5 triệu – 10 triệu VNĐ/m² khoảng từ 200 triệu đến hơn 1 tỷ tùy thuộc vào diện tích, vật liệu, thiết kế và vị trí thi công.
Nhà lắp ghép 2 tầng đang ngày càng khẳng định vị thế của mình trên thị trường bất động sản nhờ những ưu điểm vượt trội về tốc độ thi công, chi phí và tính linh hoạt. Với hơn 25 mẫu nhà đẹp và bảng báo giá tham khảo chi tiết trong bài viết này, hy vọng bạn sẽ có thêm thông tin hữu ích để lựa chọn cho mình một tổ ấm lý tưởng, đón một năm 2026 an cư và thịnh vượng.
Để nhận báo giá và thông tin tư vấn về tấm xi măng xanh DURAflex Low Carbon hoặc tấm xi măng vân gỗ DURAwood, quý khách hàng vui lòng liên hệ qua:
Bài viết liên quan
Đánh giá và nhận xét
Đánh giá trung bình
0/5
5
4
3
2
1
Chia sẻ và nhận xét về bài viết
Chia sẻ và nhận xét về bài viết
Bài viết chưa có đánh giá nào