
DURAflex đăng vào lúc 25/12/2025 - 19:00
Nhà gác lửng 2 phòng ngủ là giải pháp lý tưởng cho những ai yêu thích sự tiện nghi và tối ưu không gian sống. Với thiết kế thông minh, mẫu nhà này không chỉ mang đến vẻ đẹp hiện đại mà còn tận dụng diện tích hiệu quả, phù hợp cho gia đình nhỏ hoặc cặp vợ chồng trẻ. Cùng DURAflex khám phá những mẫu nhà gác lửng 2 phòng ngủ đẹp, hiện đại, tiện nghi, sang trọng để biến tổ ấm của bạn trở nên hoàn hảo hơn!
Nhà gác lửng 2 phòng ngủ là mẫu thiết kế bao gồm 1 tầng chính và 1 gác lửng, bên trong được bố trí 2 phòng ngủ. Gác lửng hay còn được gọi là tầng lửng hoặc gác xếp thường chiếm khoảng 30 - 70% diện tích trần nhà. Kiểu thiết kế này đặc phù hợp cho những ngôi nhà có diện tích đất hạn chế. Với thiết kế thông minh, nhà gác lửng không chỉ mở rộng diện tích sử dụng mà còn tạo cảm giác thoáng đãng, giúp tối ưu hóa không gian sống mà vẫn đảm bảo đầy đủ tiện nghi và thẩm mỹ.

Nhà gác lửng 2 phòng ngủ là loại hình nhà bao gồm 1 tầng, 1 gác lửng với 2 phòng ngủ riêng biệt (Nguồn: Internet)
>> Tìm hiểu thêm:

Nhà gác lửng 2 phòng ngủ có thiết kế linh hoạt, phù hợp với nhiều diện tích đất khác nhau (Nguồn: Internet)
>> Xem thêm:
Nhà gác lửng 2 phòng ngủ ngày càng trở thành lựa chọn yêu thích của nhiều hộ gia đình, đặc biệt là các cặp vợ chồng trẻ. Thiết kế này giúp tối ưu hóa diện tích đất, mở rộng không gian sống mà không cần xây thêm tầng, qua đó tiết kiệm chi phí xây dựng cho gia chủ. Ngoài ra, mẫu nhà này còn nổi bật với tính linh hoạt, dễ dàng thiết kế theo nhiều phong cách từ hiện đại, cổ điển đến tối giản, đáp ứng mọi nhu cầu của gia chủ.

Nhà gác lửng 2 phòng ngủ giúp tiết kiệm chi phí xây tầng nhưng vẫn mở rộng được không gian sống (Nguồn: Internet)
>> Xem các mẫu nhà khác:
Mẫu nhà gác lửng 2 phòng ngủ hiện đại được thiết kế theo phong cách tối giản và ưu tiên sử dụng những vật liệu như tấm xi măng DURAflex hoặc kính để làm vách ngăn tạo vẻ sang trọng cho ngôi nhà. Tông màu chủ đạo được lựa chọn nhiều nhất cho mẫu nhà nay là trắng, đen, xám không mang lại sự thoáng đoãng cho không gian sống và gây ấn tượng mạnh mẽ về mặt thị giác.

Mẫu nhà gác lửng 2 phòng ngủ hiện đại sử dụng màu sắc trang nhã·và nội thất cao cấp (Nguồn: Internet)

Mẫu nhà gác lửng 2 phòng ngủ hiện đại với chi phí thấp (Nguồn: Internet)

Mẫu nhà gác lửng 2 phòng ngủ hiện đại 60m2 với tone nâu trầm chủ đạo (Nguồn: Internet)

Mẫu nhà gác lửng 2 phòng ngủ hiện đại, tiện nghi hiện nay (Nguồn: Internet)
>> Tham khảo thêm:
Mẫu nhà gác lửng 2 phòng ngủ tối giản là sự lựa chọn hoàn hảo cho những ai yêu thích phong cách sống hiện đại, gọn gàng và tiện nghi. Thiết kế này ưu tiên sự đơn giản và tập trung vào tiện ích của từng không gian. Khu vực tầng trệt được sử dụng làm phòng khách, nơi sinh hoạt chung của cả gia đình. Trong khi đó, gác lửng là không gian nghỉ ngơi riêng tư, mang đến cảm giác ấm cúng và thoải mái.
Để tối ưu hóa công năng sử dụng, bạn có thể lựa chọn thiết kế các phòng chức năng thông minh, kết hợp với việc sử dụng vật liệu tấm bê tông nhẹ DURAflex ốp tường, làm tấm lót sàn để tiết kiệm chi phí nhưng vẫn đảm bảo tính thẩm mỹ và bền vững.

Mẫu nhà gác lửng 2 phòng ngủ với thiết kế tối giản (Nguồn: Internet)

Mẫu nhà gác lửng 2 phòng ngủ tối giản sử dụng tấm vân gỗ DURAwood ốp sàn nhà (Nguồn: Internet)

Xây nhà 500 triệu ở nông thôn thiết kế gác lửng, 2 phòng ngủ với phong cách tối giản (Nguồn: Internet)

Mẫu nhà cấp 4 giá 500 triệu có gác lửng đẹp với 2 phòng ngủ phong cách tối giản, tinh tế (Nguồn: Internet)
>> Đọc thêm:
Nhà gác lửng 2 phòng ngủ mái bằng không chỉ mang đến vẻ hiện đại mà còn tối ưu hóa diện tích sử dụng một cách hiệu quả. Bạn có thể tận dụng mái nhà để làm sân thượng trồng cây xanh hoặc góc thư giản ngoài trời. Ngoài ra, nhà mái bằng còn giúp gia chủ tiết kiệm chi phí xây dựng và bảo trì hơn so với mái Thái.

Mẫu nhà gác lửng 2 phòng ngủ mái bằng với thiết kế nội thất thông minh, tối ưu không gian sống (Nguồn: Internet)

Mẫu nhà gác lửng 2 phòng ngủ mái bằng với cửa kính lớn giúp tận dụng ánh sáng tự nhiên hiệu quả (Nguồn: Internet)

Thiết kế nhà cấp 4 mái bằng có gác lửng 2 phòng ngủ sang trọng (Nguồn: Internet)

Mẫu nhà gác lửng 2 phòng ngủ mái bằng với thiết kế ấn tượng (Nguồn: Internet)

Mẫu nhà cấp 4 mái bằng chữ L có gác lửng 2 phòng ngủ sang trọng, thoáng mát (Nguồn: Ảnh được tạo bởi AI)
>> Xem thêm:
Mẫu nhà gác lửng 2 phòng ngủ mái Thái là sự kết hợp hoàn hảo giữa vẻ đẹp hiện đại và nét cổ điển. Thiết kế nhà mái Thái không chỉ tạo dáng vẻ cao ráo, thông thoáng cho ngôi nhà mà còn tối ưu khả năng thoát nước, ngăn chặn tình trạng ứ đọng, bảo vệ cấu trúc mái bền vững theo thời gian.

Mẫu nhà gác lửng 2 phòng ngủ mái Thái hiện đại, sang trọng (Nguồn: Internet)

Mẫu nhà gác lửng 2 phòng ngủ mái Thái rộng rãi, thoáng mát (Nguồn: Internet)

Mẫu nhà gác lửng 2 phòng ngủ, 1 phòng thờ mái Thái ở nông thôn (Nguồn: Internet
>> Xem thêm:
Mẫu nhà gác lửng 2 phòng ngủ mái nhật không chỉ nổi bật với thiết kế mái dốc vừa phải mà còn mang đến sự kết hợp tinh tế giữa kiến trúc kiểu Nhật và tính năng chống ẩm, chống thấm hiệu quả. Mái Nhật giúp ngôi nhà tránh được sự tác động của thời tiết khắc nghiệt, đồng thời tạo nên một không gian sống dễ chịu và thoáng đãng. Sự đơn giản trong trang trí kết hợp với màu sắc hài hòa, cùng mái vững chãi tạo nên mẫu nhà đẹp thanh thoát, tinh tế.

Mẫu nhà gác lửng 2 phòng ngủ mái Nhật với thiết kế đơn giản mà hiện đại (Nguồn: Internet)

Mẫu nhà mái Nhật đẹp có gác lửng 2 phòng ngủ bền đẹp với các vật liệu của DURAflex (Nguồn: Internet)

Mẫu nhà mái Nhật 1 tầng gác lửng 2 phòng ngủ là lựa chọn của nhiều gia đình (Nguồn: Internet)
>> Xem thêm:
Nhà gác lửng 2 phòng ngủ mái tôn là một lựa chọn phổ biến dành cho những gia đình muốn tối ưu hóa không gian sống nhưng vẫn tiết kiệm. Phần gác lửng giúp mở rộng không gian, có thể được sử dụng để làm phòng ngủ hoặc không gian sinh hoạt chung cho cả gia đình.
Tuy nhiên, một điểm hạn chế của mẫu nhà này chính là mái tôn có khả năng cách nhiệt và cách âm kém. Bạn có thể khắc phục vấn đề này hiệu quả bằng cách sử dụng tấm xi măng giả gỗ DURAwood hoặc tấm xi măng đúc sẵn DURAflex để ốp tường trang trí, lát sàn, làm trần hoặc vách ngăn phòng cho các không gian như phòng khách hay phòng ngủ.

Mẫu nhà cấp 4 mái tôn dưới 100 triệu có gác lửng thiết kế hiện đại (Nguồn: Internet)

Mẫu nhà gác lửng 2 phòng ngủ mái tôn với cách bố trí nội thất khoa học (Nguồn: Internet)
>> Xem thêm các mẫu nhà khác:
Mẫu nhà cấp 4 gác lửng 2 phòng ngủ thiết kế mái lệch mang đến nét hiện đại và độc đáo. Kiểu mái có độ cao chênh lệch giúp ngôi nhà trở nên ấn tượng hơn so với những mẫu nhà truyền thống. Dù thiết kế đơn giản, nhưng ngôi nhà vẫn đảm bảo đầy đủ công năng, đáp ứng nhu cầu sinh hoạt của gia đình. Nhờ hệ thống cửa sổ được bố trí hợp lý, không gian bên trong luôn thoáng mát và tràn ngập ánh sáng tự nhiên. Với những ưu điểm này, mẫu nhà cấp 4 mái lệch là lựa chọn đáng cân nhắc cho nhiều gia đình.

Mẫu nhà cấp 4 gác lửng 2 phòng ngủ mái lệch ấn tượng, độc đáo (Nguồn: Internet)
Thiết kế nhà gác lửng với không gian mở mang đến sự kết nối hài hòa giữa các khu vực chức năng như phòng khách, bếp, và tầng lửng. Việc loại bỏ những bức tường ngăn cách giúp không gian trở nên thông thoáng, tạo cảm giác rộng rãi và dễ chịu hơn. Đồng thời, cách bố trí này còn tối ưu hóa sự tiện nghi, đáp ứng tốt nhu cầu sinh hoạt hàng ngày của gia đình.

Mẫu nhà gác lửng 2 phòng ngủ không gian mở rộng rãi, thoáng mát (Nguồn: Internet)

Mẫu nhà gác lửng 2 phòng ngủ mái Tôn có không gian thoải mái, rộng rãi (Nguồn: Internet)

Mẫu nhà gác lửng 2 phòng ngủ không gian mở tận dụng tối đa ánh sáng tự nhiên (Nguồn: Internet)
>> Xem thêm:
Ngày nay, không gian sống ngày càng hạn chế, nên những ngôi nhà có thiết kế sân vườn luôn được nhiều người ưa chuộng. Dù diện tích không quá lớn, như mẫu nhà gác lửng 5x12m với 2 phòng ngủ, vẫn có thể bố trí một khu vườn nhỏ để tạo không gian xanh, giúp gia đình thư giãn và cảm thấy thoải mái hơn.

Mẫu biệt thự nhà vườn gác lửng 2 phòng ngủ rộng rãi, thoáng mát (Nguồn: Internet)
>> Xem thêm:
Mẫu nhà cấp 4 gác lửng 2 phòng ngủ, 1 phòng thờ là sự kết hợp hoàn hảo giữa sự tiện nghi, tiết kiệm không gian và giá trị tâm linh, phù hợp cho các gia đình nhỏ. Kiểu nhà này thường được thiết kế với không gian mở, tận dụng chiều cao và mang lại sự thoải mái, ấm cúng cho cả gia đình.

Mẫu nhà cấp 4 gác lửng 2 phòng ngủ, 1 phòng thờ với thiết kế trang nhã (Nguồn: Internet)

Mẫu nhà cấp 4 gác lửng 2 phòng ngủ, 1 phòng thờ được nhiều gia đình lựa chọn (Nguồn: Internet)

Bản vẽ nhà cấp 4 gác lửng 2 phòng ngủ chi tiết, đầy đủ công năng (Nguồn: Internet)
>> Xem thêm:
Mẫu nhà ống gác lửng 2 phòng ngủ là lựa chọn phổ biến cho những gia đình có diện tích đất hạn chế nhưng vẫn muốn tận dụng không gian một cách hiệu quả. Với thiết kế thông minh, mẫu nhà này không chỉ tiết kiệm diện tích mà còn mang lại sự thoải mái và tiện nghi cho các thành viên trong gia đình.

Mẫu nhà ống gác lửng 2 phòng ngủ với cách sắp xếp nội thất khoa học để mở rộng không gian sống (Nguồn: Internet)

Mẫu nhà ống gác lửng 2 phòng ngủ phù hợp những khu đất có diện tích hẹp (Nguồn: Internet)

Mẫu nhà ống gác lửng 2 phòng ngủ đẹp cho gia đình ít thành viên (Nguồn: Internet)
>> Xem thêm các mẫu nhà khác:
Mẫu nhà cấp 4 gác lửng 4x13 2 phòng ngủ là sự kết hợp giữa sự hiện đại của nhà gác lửng và phong cách truyền thống, giản dị của nhà cấp 4. Với diện tích 4x13m, ngôi nhà vừa vặn để bố trí đầy đủ các khu vực cần thiết mà không quá chật chội. Tận dụng chiều cao của ngôi nhà để thiết kế gác lửng mang lại không gian sống rộng rãi và tiện nghi. Để đảm bảo tính thẩm mỹ và độ bền vững, bạn có thể sử dụng tấm xi măng DURAflex để lát trần, sàn, vách ngăn cho ngôi nhà của mình.

Mẫu nhà cấp 4 đẹp giá rẻ 100 triệu gác lửng 4x13 2 phòng ngủ hiện đại, thoáng đãng (Nguồn: Internet)

Xây nhà cấp 4 khoảng 150 triệu có gác lửng 4x13 2 phòng ngủ với thiết kế tối giản, sang trọng (Nguồn: Internet)
>> Đọc thêm:
Mẫu nhà gác lửng 2 phòng ngủ với diện tích 5x12m là lựa chọn lý tưởng cho các gia đình nhỏ hoặc các cặp vợ chồng trẻ muốn tiết kiệm không gian nhưng vẫn đáp ứng đầy đủ nhu cầu sử dụng. Thiết kế gác lửng thông minh giúp mở rộng không gian sống, tận dụng tối đa diện tích đất. Hai phòng ngủ được sắp xếp hợp lý, đảm bảo sự riêng tư cho từng thành viên trong gia đình.

Mẫu nhà gác lửng 2 phòng ngủ 5x12 sang trọng, tinh tế (Nguồn: Internet)

Mẫu nhà gác lửng 2 phòng ngủ 5x12 với thiết kế cầu thang xương cá tối ưu diện tích (Nguồn: Internet)
>> Đọc thêm:
Mẫu nhà cấp 4 gác lửng 5x15 2 phòng ngủ này sử dụng thiết kế gác lửng để tối đa hóa diện tích sử dụng mà không cần phải xây thêm tầng. Gác lửng có thể được thiết kế làm phòng ngủ thứ hai hoặc khu vực sinh hoạt chung. Với diện tích hợp lý và thiết kế thông minh, mẫu nhà này giúp tiết kiệm chi phí xây dựng mà vẫn đảm bảo đầy đủ công năng sử dụng.

Mẫu nhà gác lửng 2 phòng ngủ 5x15 được thiết kế hiện đại giúp tận dụng ánh sáng tự nhiên hiệu quả (Nguồn: Internet)

Mẫu nhà cấp 4 gác lửng 200 triệu 2 phòng ngủ tối giản nhưng vẫn đầy đủ tiện nghi (Nguồn: Internet)

Mẫu nhà gác lửng 2 phòng ngủ 5x15 được thiết kế tối ưu hóa diện tích sử dụng (Nguồn: Internet)
>> Xem thêm:
Mẫu nhà cấp 4 đẹp 5x20 gác lửng 2 phòng ngủ có chiều dài 20m, đủ không gian để tạo ra các khu vực chức năng riêng biệt nhưng không làm cho ngôi nhà trở nên chật chội. Mẫu nhà gác lửng này có thể sử dụng các vật liệu xây dựng hiện đại như tấm xi măng DURAflex hoặc tấm vân gỗ DURAwood, giúp giảm chi phí mà vẫn đảm bảo tính thẩm mỹ và độ bền lâu dài.

Mẫu nhà gác lửng 5x20 2 phòng ngủ có thiết kế bên ngoài và bên trong cực kỳ hiện đại, sang trọng (Nguồn: Internet)

Mẫu nhà gác lửng 2 phòng ngủ 5x20 bền đẹp, tiết kiệm chi phí (Nguồn: Internet)
>> Đọc thêm:
Nhà gác lửng 200 triệu là lựa chọn tuyệt vời cho những gia đình có diện tích đất nhỏ và ngân sách hạn chế. Với thiết kế thông minh, mẫu nhà này không chỉ tối ưu không gian mà còn đảm bảo đầy đủ tiện nghi với 2 phòng ngủ, phù hợp cho vợ chồng trẻ hoặc gia đình nhỏ.

Xây nhà gác lửng 200 triệu 2 phòng ngủ tiết kiệm, tiện nghi (Nguồn: Internet)
>> Xem thêm:
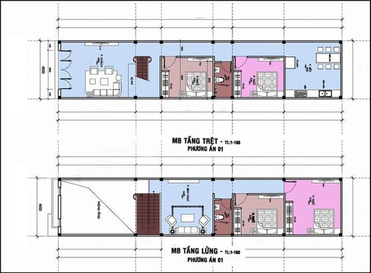
Các quý gia chủ và thầu thợ hãy cùng DURAflex tham khảo một số bản vẽ nhà gác lửng 2 phòng ngủ tiện nghi, đầy đủ công năng chi tiết dưới đây:

Bản vẽ thiết kế nhà gác lửng 2 phòng ngủ, 1 phòng thờ chi tiết (Nguồn: Internet)

Bản vẽ thiết kế nhà gác lửng 2 phòng ngủ đơn giản, dễ hiểu (Nguồn: Internet)

Bản vẽ nhà gác lửng 2 phòng ngủ đầy đủ công năng (Nguồn: Internet)
>> Xem thêm:
Nhà gác lửng 2 phòng ngủ ngày càng được nhiều gia chủ lựa chọn vì sở hữu nhiều ưu điểm vượt trội:

Nhà gác lửng 2 phòng ngủ ngày càng được yêu thích nhờ giá thành hợp lý (Nguồn: Internet)
>> Đọc thêm:
Bên cạnh những ưu điểm vượt trội, nhà gác lửng 2 phòng ngủ cũng có một số nhược điểm mà gia chủ cần cân nhắc khi xây dựng.
>> Xem thêm mẫu nhà khác:
Dưới đây là một số lưu ý quan trọng để bạn có thể sở hữu một ngôi nhà gác lửng 2 phòng ngủ vừa đẹp mắt, vừa tiện nghi và an toàn:

Thiết kế nhà gác lửng 2 phòng ngủ hợp lý, khoa học giúp bạn có một không gian sống hiện đại và thoải mái (Nguồn: Internet)
Chi phí xây nhà gác lửng 2 phòng ngủ trọn gói có thể dao động tùy vào nhiều yếu tố như vị trí, diện tích, chất lượng vật liệu, thiết kế và nhà thầu. Thông thường, chi phí xây dựng ngôi nhà bao gồm các hạng mục sau:
Để tính cụ thể chi phí xây dựng nhà gác lửng 2 phòng ngủ, bạn có thể tham khảo công thức sau:
Chi phí xây dựng = Diện tích xây dựng x Đơn giá trung bình/m2
Ví dụ: Bạn muốn xây ngôi nhà gác lửng 2 phòng ngủ 4x13 với diện tích sàn mỗi tầng là 52m2, giá xây dựng trung bình là 5.000.000 VNĐ/m2. Chi phí xây dựng ngôi nhà được tính như sau:
Để dự đoán chi phí xây nhà gác lửng 2 phòng ngủ chính xác nhất, bạn nên:
Bấm: BÁO GIÁ NGAY hoặc liên hệ Hotline: 18001218 để được tư vấn và báo giá vật liệu xây dựng tấm xi măng DURAflex hoặc DURAwood làm tường - vách - sàn - trần nhà gác lửng 2 phòng ngủ.

Chi phí xây dựng nhà gác lửng 2 phòng ngủ tùy thuộc vào nhiều yếu tố khác nhau (Nguồn: Internet)
Nhà gác lửng 2 phòng ngủ là một lựa chọn tối ưu cho những gia đình mong muốn tối ưu không gian sống mà vẫn tiết kiệm chi phí. Hy vọng với những mẫu nhà gác lửng 2 phòng ngủ đẹp, hiện đại, tiện nghi, sang trọng mà DURAflex vừa gợi ý, bạn sẽ có thêm nhiều ý tưởng cho mái ấm tương lai của mình.
Đánh giá và nhận xét
Đánh giá trung bình
0/5
5
4
3
2
1
Chia sẻ và nhận xét về bài viết
Chia sẻ và nhận xét về bài viết
Bài viết chưa có đánh giá nào