
DURAflex đăng vào lúc 23/02/2026 - 10:52
Với thiết kế độc đáo và khả năng tối ưu không gian, nhà chữ U không chỉ mang lại vẻ đẹp thẩm mỹ mà còn đem đến nhiều tiện ích trong sinh hoạt. Liệu nhà chữ U có thực sự là một lựa chọn tốt? Bài viết này DURAflex sẽ phân tích chi tiết những ưu, nhược điểm nổi bật và giới thiệu các mẫu nhà chữ U đẹp, ấn tượng, giúp bạn có cái nhìn toàn diện trước khi quyết định xây dựng.
Nhà chữ U là một dạng kiến trúc nhà ở có hình dáng tương tự chữ U khi nhìn từ trên cao. Thiết kế này bao gồm phần trung tâm được thụt vào, tạo thành một khoảng sân hoặc không gian mở, trong khi hai bên nhà được xây dựng nhô ra như hai nhánh của chữ U. Kiểu bố cục này không chỉ tạo ấn tượng về mặt hình khối mà còn mang lại sự tiện nghi trong sinh hoạt hằng ngày. Với đặc điểm mở ở phần giữa, nhà chữ U giúp kết nối các khu vực trong nhà một cách linh hoạt và hài hòa, đồng thời gia tăng sự thoáng đãng và cảm giác rộng rãi cho tổng thể công trình.
Dưới đây là những điểm nổi bật giúp nhà chữ U trở thành lựa chọn lý tưởng cho nhiều gia đình hiện nay:

Nhà chữ U là loại hình nhà ở có hình dáng tương tự chữ U khi nhìn từ trên cao (Nguồn: Internet)
>> Xem thêm:
Nếu bạn đang có nhu cầu thiết kế và quan tâm đến những mẫu nhà chữ U, hãy cùng chúng tôi tìm hiểu ưu và nhược điểm dưới đây để hiểu rõ hơn về loại hình nhà ở này nhé.
Bố trí công năng sử dụng linh hoạt
Nhà chữ U phù hợp với những khu đất rộng và vuông vức, giúp việc phân chia không gian trở nên dễ dàng hơn. Với thiết kế mở hai bên, ngôi nhà cho phép bố trí công năng hợp lý và khoa học. Một bên đầu hồi có thể được tận dụng làm hai phòng ngủ yên tĩnh, trong khi bên còn lại bố trí phòng khách, bếp và phòng ăn liên thông nhau, tạo sự kết nối liền mạch giữa các không gian sinh hoạt chung. Cách tổ chức này không chỉ tiện lợi trong sinh hoạt hằng ngày mà còn giúp tối ưu hóa diện tích sử dụng.
Dễ dàng kết nối không gian với nhau
Nhà chữ U nổi bật nhờ khả năng kết nối linh hoạt giữa các phòng chức năng. Khoảng sân trung tâm vừa là điểm nhấn thẩm mỹ, vừa đóng vai trò là trục giao thông chính, giúp việc di chuyển giữa các khu vực trở nên thuận tiện. Chỉ cần vài bước qua sân, các thành viên trong gia đình có thể tiếp cận nhanh chóng các phòng khác mà không cần đi lòng vòng như ở các mẫu nhà truyền thống.
Có tính thẩm mỹ cao
Mẫu nhà chữ U ghi điểm nhờ sự hài hòa giữa kiến trúc ngoại thất và nội thất bên trong. Thiết kế hình chữ U mở rộng không gian về phía sân vườn, tạo nên sự thông thoáng và gần gũi với thiên nhiên. Hệ mái, hệ cửa và vật liệu xây dựng được lựa chọn kỹ lưỡng, tôn lên vẻ sang trọng nhưng vẫn giữ được sự nhẹ nhàng và tinh tế. Thiết kế sân vườn rộng thoáng kết hợp lối đi lát đá, thảm cỏ và cây xanh không chỉ làm tăng tính thẩm mỹ mà còn mang lại không gian thư giãn lý tưởng cho cả gia đình. Bên trong, từng khu vực chức năng đều được thiết kế tiện nghi, thông thoáng và đón ánh sáng tự nhiên, mang đến cảm giác thoải mái và ấm cúng trong từng khoảnh khắc sinh hoạt.
Hướng đến không gian sống mở
Thiết kế nhà chữ U tạo điều kiện lý tưởng để xây dựng một không gian sống mở và thoáng đãng. Phòng khách và phòng bếp thường được bố trí liên thông, không sử dụng vách ngăn, giúp không gian thêm rộng rãi và dễ dàng kết nối các thành viên trong gia đình. Hệ cửa kính lớn kết hợp cửa sổ và các khe thông gió khoa học giúp ngôi nhà luôn tràn ngập ánh sáng và gió tự nhiên. Điều này không chỉ góp phần tiết kiệm điện năng mà còn nâng cao chất lượng không khí và tăng cường sự giao hòa với thiên nhiên.

Nhà chữ U có tính thẩm mỹ cao, hướng đến không gian mở (Nguồn: Internet)
>> Tìm hiểu thêm các mẫu nhà khác:
Bên cạnh những ưu điểm nổi bật, nhà chữ U vẫn tồn tại một số hạn chế nhất định mà gia chủ cần cân nhắc kỹ trước khi xây dựng. Trước hết, mẫu nhà này đòi hỏi diện tích đất rộng để có thể triển khai đúng hình khối kiến trúc. Do đó, với những khu đất hẹp hoặc giới hạn chiều ngang, việc áp dụng thiết kế chữ U sẽ không mang lại hiệu quả về công năng và thẩm mỹ.
Ngoài ra, nếu không có sự bố trí hợp lý, khoảng trống giữa hai cánh nhà dễ trở thành không gian lãng phí, gây mất cân đối tổng thể. Mặt khác, phần lõm vào của chữ U đôi khi khiến ánh sáng và gió tự nhiên khó phân bố đều trong nhà, đặc biệt là với các khu vực nằm sâu bên trong.
Tuy nhiên, những hạn chế này hoàn toàn có thể khắc phục nếu chủ đầu tư lựa chọn phương án thiết kế thông minh. Việc tận dụng không gian hai bên để bố trí phòng chức năng như phòng khách, phòng làm việc hoặc nhà kho sẽ giúp tối ưu diện tích sử dụng. Bên cạnh đó, trồng cây xanh, sử dụng tiểu cảnh hoặc lắp gương tại các vách đối diện có thể tạo cảm giác rộng rãi và cân bằng phong thủy cho tổng thể công trình.

Nhà chữ U hạn chế về diện tích đất để có thể triển khai đúng hình khối kiến trúc (Nguồn: Internet)
>> Xem thêm:
Kiểu nhà chữ U phù hợp với nhiều diện tích đất và có thể biến tấu theo nhiều phong cách khác nhau, từ hiện đại đến truyền thống. Dưới đây là các mẫu nhà chữ U nổi bật, được thiết kế phù hợp với nhu cầu thực tế của từng gia đình mà các bạn có thể tham khảo:
Mẫu nhà chữ U cấp 4 hiện đại mang lại sự tiện nghi trong không gian sống nhờ lối kiến trúc đơn giản, tinh gọn nhưng vẫn đảm bảo tính thẩm mỹ. Kiểu nhà cấp 4 này thường có thiết kế nhà mái lệch hoặc nhà mái bằng, cửa kính rộng mở đón sáng và sân vườn thoáng mát ở giữa lòng chữ U. Với ưu điểm thi công nhanh, chi phí hợp lý, nhiều gia chủ lựa chọn sử dụng tấm xi măng DURAflex Low Carbon để làm trần, vách ngăn phòng khách và bếp, vách ngăn phòng khách, vách ngăn phòng ngủ, vách ngăn phòng thờ, vách ngăn cầu thang, hoặc làm lót sàn gác lửng. Từ đó, giúp công trình thêm bền chắc và sự tiện nghi khi sinh hoạt.

Mẫu nhà chữ U cấp 4 hiện đại, thoáng mát, lý tưởng cho gia đình trẻ (Nguồn: Internet)

Mẫu nhà chữ U cấp 4 hiện đại, bố trí hài hòa, đón gió tự nhiên (Nguồn: Internet)

Mẫu nhà chữ U cấp 4 hiện đại, thiết kế cân đối, tạo cảm giác ấm cúng (Nguồn: Internet)
>> Xem thêm:
Tại khu vực nông thôn, mẫu nhà chữ U được thiết kế gần gũi với thiên nhiên, thường kết hợp sân vườn và tiểu cảnh phía trước để tạo không gian thư giãn. Bạn có thể lựa chọn kiểu nhà mái ngói truyền thống hoặc nhà mái Thái để đảm bảo độ thoáng mát cho công trình. Không gian bên trong thường được bố trí linh hoạt với phòng khách trung tâm, hai nhánh bên là phòng ngủ và bếp ăn. Mẫu nhà cấp 4 nông thôn này phù hợp với gia đình đông thành viên, ưu tiên sự yên bình và thoải mái trong sinh hoạt hằng ngày.

Mẫu nhà chữ U nông thôn đơn giản nhưng không kém phần tiện nghi, ấn tượng (Nguồn: Internet)

Mẫu xây nhà 500 triệu ở nông thôn chữ U đẹp, phù hợp đất rộng, chi phí hợp lý (Nguồn: Internet)

Mẫu nhà cấp 4 nông thôn 3 phòng ngủ chữ U đẹp tinh tế, tối ưu công năng sử dụng (Nguồn: Internet)
>> Tham khảo thêm:
Mẫu nhà chữ U 2 phòng ngủ là giải pháp hoàn hảo cho các gia đình nhỏ, các cặp vợ chồng mới cưới hoặc những người muốn có không gian sống vừa đủ, tiện lợi. Với bố cục hình chữ U, ngôi nhà có thể phân chia khu vực sinh hoạt chung (phòng khách, bếp, ăn) và khu vực riêng tư (phòng ngủ) một cách rõ ràng, tạo sự tiện nghi và riêng tư cho từng thành viên. Hai phòng ngủ thường được bố trí ở hai cánh của chữ U, có thể có lối đi riêng hoặc hướng ra sân trong, mang lại cảm giác thông thoáng và dễ chịu. Thiết kế này không chỉ tối ưu hóa diện tích sử dụng mà còn tạo điều kiện để các thành viên trong gia đình dễ dàng tương tác và gắn kết.

Mẫu nhà cấp 4 2 phòng ngủ chữ U nhỏ gọn mà vẫn đầy đủ tiện nghi (Nguồn: Internet)

Mẫu nhà chữ U 2 phòng ngủ đẹp, hiện đại với tone màu trắng chủ đạo (Nguồn: Internet)

Mẫu nhà chữ U 2 phòng ngủ rộng rãi, thoáng đãng, tối ưu hoá diện tích (Nguồn: Internet)
>> Đọc thêm:
Mẫu nhà chữ U 3 phòng ngủ là giải pháp hoàn hảo cho các gia đình có từ 4-5 thành viên, hoặc những ai mong muốn có thêm không gian làm việc, phòng thờ riêng biệt. Đặc điểm nổi bật của những mẫu nhà này là sự bố trí công năng khoa học, thường bao gồm 1 phòng khách, 1 phòng bếp ăn và 3 phòng ngủ được sắp xếp hợp lý xung quanh một khoảng sân trong hoặc giếng trời. Thiết kế này giúp các phòng đều có ánh sáng tự nhiên và thông gió tốt, đồng thời tạo điểm nhấn là khu vực sân vườn giữa nhà, nơi gia đình có thể thư giãn, trồng cây xanh hoặc tổ chức các buổi tiệc ngoài trời ấm cúng. Kiến trúc có thể đa dạng từ phong cách hiện đại tối giản đến tân cổ điển sang trọng, tùy thuộc vào sở thích và phong cách của chủ nhà.

Mẫu nhà chữ U 3 phòng ngủ đẹp, thiết kế mở gần gũi thiên nhiên (Nguồn: Internet)

Mẫu nhà gác lửng 3 phòng ngủ chữ U đẹp, thiết kế mái lệch độc đáo, đầy đủ công năng sử dụng (Nguồn: Internet)

Mẫu nhà cấp 4 3 phòng ngủ 500 triệu chữ U đẹp sang trọng, thiết kế mở gần gũi thiên nhiên (Nguồn: Internet)
>> Có thể bạn quan tâm:
Đối với những gia đình đông thành viên hoặc có nhu cầu về không gian lớn hơn, mẫu nhà chữ U 4 phòng ngủ là một lựa chọn lý tưởng. Thiết kế này cho phép bố trí các phòng ngủ một cách linh hoạt, có thể tách biệt hoàn toàn giữa không gian riêng tư và không gian chung. Các phòng ngủ có thể được phân bổ đều ở cả hai cánh của chữ U, hoặc tập trung về một phía để tạo sự riêng tư tối đa. Khoảng sân trung tâm trở thành một không gian đa năng, có thể biến thành sân chơi cho trẻ em, khu vực BBQ ngoài trời, hoặc thậm chí là hồ bơi mini, mang lại trải nghiệm sống đẳng cấp và tiện nghi.

Mẫu nhà chữ U 4 phòng ngủ mái Nhật thiết kế hiện đại, sang trọng (Nguồn: Internet)

Mẫu nhà cấp 4 mái Nhật 4 phòng ngủ với thiết kế chữ U độc đáo, hài hoà (Nguồn: Internet)

Mẫu nhà chữ U 4 phòng ngủ mái Nhật đẹp tinh tế, cân đối giữa thẩm mỹ và công năng (Nguồn: Internet)
>> Xem thêm:
Nhà chữ U 2 tầng là sự kết hợp hoàn hảo giữa kiến trúc hiện đại và công năng sử dụng, đặc biệt phù hợp với những khu đất có diện tích hạn chế nhưng vẫn muốn sở hữu không gian sống rộng rãi. Tầng trệt thường được dùng cho các không gian sinh hoạt chung như phòng khách, bếp, phòng ăn và một phòng ngủ tiện lợi, trong khi tầng trên sẽ là nơi bố trí các phòng ngủ còn lại cùng với không gian sinh hoạt riêng tư khác như phòng thờ, phòng làm việc.
Để đảm bảo vẻ đẹp bền vững và tăng tính thẩm mỹ cho ngôi nhà 2 tầng của bạn, việc lựa chọn vật liệu xây dựng chất lượng cao là vô cùng quan trọng. Bạn có thể tham khảo tấm cemboard DURAflex Low Carbon cho các hạng mục tường và sàn, giúp tăng cường độ bền và khả năng chịu lực. Đặc biệt, tấm xi măng vân gỗ DURAwood Low Carbon là lựa chọn tuyệt vời để ốp mặt tiền, làm lam che nắng hoặc hàng rào, mang đến vẻ đẹp mộc mạc, gần gũi với thiên nhiên mà vẫn đảm bảo độ bền vượt trội theo thời gian.

Mẫu nhà 2 tầng đẹp giá 1 tỷ chữ U sang xịn, chuẩn phong cách tân cổ điển (Nguồn: Internet)

Mẫu nhà mái Thái 2 tầng chữ U đẹp, tinh tế, hài hoà với cảnh quang xung quanh (Nguồn: Internet)

Mẫu nhà chữ U 2 tầng đẹp, hiện đại, thoáng đãng (Nguồn: Internet)
>> Xem các mẫu nhà khác:
Mẫu nhà vườn chữ U truyền thống luôn giữ vững vị thế trong lòng nhiều gia đình Việt bởi sự gần gũi, ấm cúng và khả năng thích nghi tốt với khí hậu bản địa. Thông thường, kiểu nhà này sẽ có phần sân trong rộng rãi, thường được dùng làm sân vườn, nơi sum họp gia đình hoặc đơn giản là góc thư giãn xanh mát. Kiến trúc của mẫu nhà này thường tập trung vào sự tối giản, với mái ngói đỏ tươi hoặc mái thái dốc, kết hợp vật liệu tự nhiên như gỗ, gạch nung để tạo nên vẻ đẹp mộc mạc, thanh bình. Các phòng chức năng được bố trí khoa học xung quanh khoảng sân giữa, đảm bảo sự riêng tư nhưng vẫn có sự kết nối linh hoạt, giúp không khí trong nhà luôn trong lành và mát mẻ.

Mẫu nhà vườn nhỏ đẹp chữ U truyền thống mộc mạc, gần gũi với thiên nhiên (Nguồn: Internet)

Mẫu nhà cấp 4 chữ U có sân vườn đẹp nhẹ nhàng, chan hòa ánh sáng tự nhiên (Nguồn: Internet)

Mẫu nhà vườn chữ U rộng thoáng, đẹp tinh tế trong từng đường nét kiến trúc (Nguồn: Internet)
>> Xem thêm:
Nếu bạn yêu thích sự sang trọng, tinh tế và đẳng cấp, mẫu nhà chữ U phong cách châu Âu chắc chắn sẽ là lựa chọn lý tưởng. Điểm đặc trưng của phong cách này nằm ở những chi tiết kiến trúc tỉ mỉ như mái mansard cổ điển, cửa vòm lớn, ban công sắt uốn nghệ thuật hay các cột trụ vững chãi. Màu sắc chủ đạo thường là những gam màu trung tính như trắng, be, xám, tạo nên vẻ đẹp thanh lịch và trường tồn với thời gian. Không gian bên trong thường được thiết kế mở, tối ưu ánh sáng tự nhiên và tầm nhìn ra khu vườn được chăm chút kỹ lưỡng, mang đến cảm giác sống trong một không gian nghỉ dưỡng thực thụ, đậm chất quý tộc.

Mẫu nhà 2 tầng đẹp giá 700 triệu chữ U phong cách châu Âu sang trọng, chuẩn thẩm mỹ hiện đại (Nguồn: Internet)

Mẫu nhà 1 trệt 1 lầu chữ U phong cách châu Âu đẳng cấp, tinh tế trong từng đường nét (Nguồn: Internet)

Mẫu nhà chữ U phong cách châu Âu hiện đại, tối ưu ánh sáng và không gian (Nguồn: Internet)
Mang trong mình vẻ đẹp cổ kính, trang nhã và đầy tính biểu tượng, mẫu nhà chữ U phong cách Trung Quốc đang dần trở thành xu hướng được nhiều người tìm kiếm. Nổi bật với mái cong duyên dáng, những họa tiết chạm khắc tinh xảo, cửa sổ hoa văn phức tạp và gam màu đỏ son đặc trưng, mẫu nhà này gợi lên sự bình yên, hoài niệm về những nét kiến trúc Á Đông truyền thống. Sân trong của nhà chữ U phong cách Trung Quốc thường được thiết kế thành một khu vườn thiền nhỏ với hồ cá, đá non bộ, cây cảnh bonsai, tạo nên một không gian tĩnh lặng, hài hòa với thiên nhiên.

Mẫu nhà chữ U phong cách Trung Quốc đẹp, mang đậm nét truyền thống độc đáo (Nguồn: Internet)

Mẫu nhà chữ U phong cách Trung Quốc nổi bật với mái ngói cong mềm mại (Nguồn: Internet)

Mẫu nhà chữ U phong cách Trung Quốc sang trọng và tinh tế (Nguồn: Internet)
>> Xem tham khảo:
Nhà chữ U mái bằng nổi bật với vẻ đẹp hiện đại, tinh tế và tối giản. Kiểu mái này không chỉ mang đến sự sang trọng mà còn dễ dàng trong việc bố trí các tiện ích trên mái như hệ thống năng lượng mặt trời hoặc sân thượng nhỏ để thư giãn. Với thiết kế mái bằng, ngôi nhà chữ U tạo cảm giác khối vững chắc, mạnh mẽ, đồng thời vẫn đảm bảo sự thông thoáng nhờ khoảng sân giữa. Các vật liệu như kính, bê tông và gỗ thường được kết hợp khéo léo để tạo nên tổng thể hài hòa và ấn tượng. Mẫu nhà này đặc biệt phù hợp với những gia đình yêu thích phong cách kiến trúc hiện đại, đề cao sự tiện nghi và không gian mở, mang lại một không gian sống đẳng cấp và đầy đủ ánh sáng tự nhiên.

Mẫu nhà chữ U mái bằng hiện đại, tối giản, hợp xu hướng 2026 (Nguồn: Internet)

Mẫu nhà chữ U mái bằng tinh tế, sang trọng với thiết kế mở ấn tượng (Nguồn: Internet)

Mẫu nhà chữ U mái bằng đẹp mắt, bố trí công năng linh hoạt và thông minh (Nguồn: Internet)
>> Xem thêm:
Mẫu nhà chữ U mái Thái 150m2 là sự kết hợp hoàn hảo giữa nét đẹp truyền thống của mái Thái và sự tiện nghi của thiết kế chữ U. Với diện tích 150m2, ngôi nhà này thường được bố trí khoa học với 3 - 4 phòng ngủ, phòng khách rộng rãi và bếp ăn liền kề, tạo nên một không gian sinh hoạt chung ấm cúng. Mái Thái dốc không chỉ giúp thoát nước hiệu quả mà còn tạo điểm nhấn kiến trúc, mang lại vẻ bề thế và sang trọng cho ngôi nhà. Khoảng sân trong của mẫu nhà này có thể được tận dụng để làm vườn cây nhỏ, khu vui chơi cho trẻ em hoặc bố trí bàn trà thư giãn, mang lại không khí trong lành và gắn kết các thành viên trong gia đình.

Mẫu nhà cấp 4 mái Thái hình chữ U với diện tích 150m2 đẹp thanh thoát, sang trọng (Nguồn: Internet)

Mẫu nhà chữ U mái Thái 150m2 nổi bật, mang vẻ đẹp truyền thống pha hiện đại (Nguồn: Internet)

Mẫu nhà chữ U mái Thái 150m2 với thiết kế 2 tầng rộng rãi, lý tưởng cho gia đình 3 thế hệ (Nguồn: Internet)
>> Đọc thêm:
Nhà chữ U mái Thái với diện tích 160m2 mang đến không gian sống rộng rãi và thoải mái hơn, là lựa chọn lý tưởng cho những gia đình đông thành viên hoặc có nhu cầu sinh hoạt cao. Với diện tích này, ngôi nhà có thể được thiết kế linh hoạt với nhiều phòng chức năng hơn như phòng thờ, phòng đọc sách hoặc khu vực làm việc riêng. Mái Thái dốc cao không chỉ tôn lên vẻ đẹp bề thế, uy nghi mà còn giúp điều hòa không khí, giữ cho ngôi nhà luôn mát mẻ vào mùa hè và ấm áp vào mùa đông. Khoảng sân ở giữa nhà chữ U 160m2 trở thành tâm điểm, nơi gia chủ có thể sáng tạo với tiểu cảnh, hồ cá koi hay thậm chí là một hồ bơi mini, tạo nên một không gian sống xanh mát và đẳng cấp.

Mẫu nhà chữ U mái Thái 160m2 sang trọng, cân đối từng đường nét (Nguồn: Internet)

Mẫu nhà chữ U mái Thái 160m2 hiện đại, hài hòa với thiên nhiên (Nguồn: Internet)

Mẫu nhà chữ U mái Thái 160m2 tinh tế, chuẩn gu thẩm mỹ người Việt (Nguồn: Internet)
>> Cùng tìm hiểu thêm:
Mẫu nhà mái Nhật hình chữ U là một trong những xu hướng kiến trúc được ưa chuộng hàng đầu hiện nay, đặc biệt phù hợp với khí hậu Việt Nam. Đặc trưng của kiểu mái này là độ dốc vừa phải, giúp thoát nước nhanh chóng và tạo cảm giác thanh thoát, nhẹ nhàng cho tổng thể ngôi nhà. Khi kết hợp với hình khối chữ U, kiến trúc mái Nhật không chỉ tôn lên vẻ đẹp tinh tế, hài hòa mà còn mang lại sự ấm cúng, gần gũi với thiên nhiên. Ngoài ra, việc sử dụng các vật liệu tự nhiên như gỗ, đá ốp tường cùng với hệ thống cửa kính lớn sẽ càng làm tăng thêm vẻ đẹp sang trọng và hiện đại cho không gian sống.

Mẫu nhà chữ U 4 phòng ngủ mái Nhật sang trọng, tạo điểm nhấn nổi bật cho không gian sống (Nguồn: Internet)

Mẫu nhà cấp 4 mái Nhật chữ U bề thế, sang trọng và đầy ấm cúng (Nguồn: Internet)

Mẫu nhà mái Nhật 2 tầng thiết kế kiểu dáng chữ U đơn giản nhưng không kém phần thu hút (Nguồn: Internet)
>> Xem tham khảo:
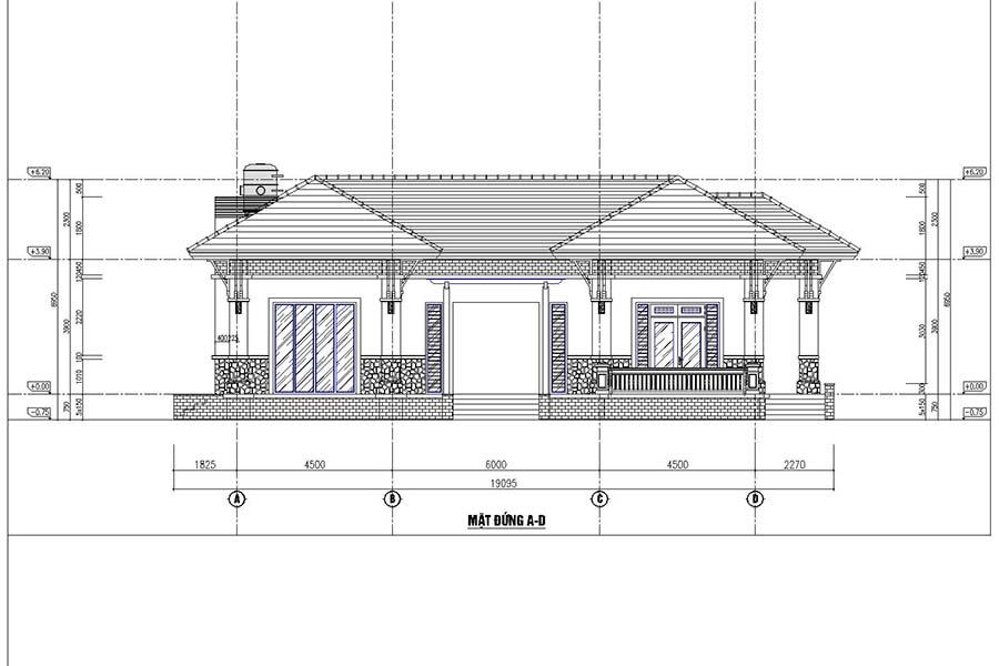
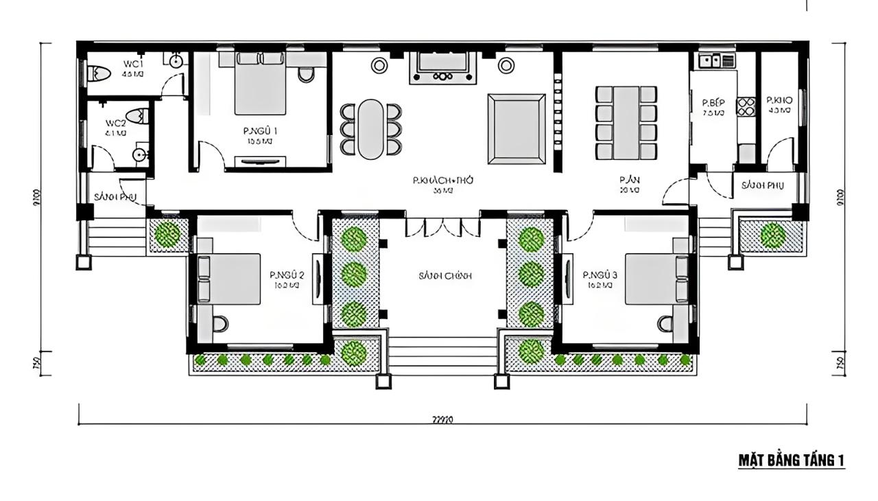
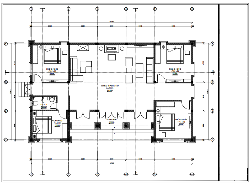
Để sở hữu một ngôi nhà chữ U hoàn hảo, việc có một bản vẽ chi tiết và đầy đủ công năng là yếu tố then chốt. Bản vẽ này không chỉ thể hiện rõ ràng cấu trúc, kích thước từng không gian mà còn tính toán kỹ lưỡng sự phân bổ ánh sáng, thông gió tự nhiên, đảm bảo sự tiện nghi tối đa cho người sử dụng. Thông thường, một bản vẽ thiết kế nhà chữ U chi tiết sẽ bao gồm mặt bằng công năng các tầng (phòng khách, phòng bếp, phòng ngủ, phòng vệ sinh...), mặt đứng, mặt cắt, chi tiết kiến trúc, kết cấu và hệ thống điện nước. Việc này giúp gia chủ hình dung rõ ràng về ngôi nhà tương lai và phối hợp chặt chẽ với kiến trúc sư để điều chỉnh theo ý muốn, từ đó tạo nên một không gian sống không chỉ đẹp mắt mà còn tối ưu về công năng và phong thủy.

Bản vẽ nhà cấp 4 chữ U mặt đứng chi tiết, đầy đủ kích thước (Nguồn: Internet)

Bản vẽ nhà cấp 4 3 phòng ngủ 100m2 chữ U đầy đủ công năng (Nguồn: Internet)

Bản vẽ nhà chữ U cấp 4 đơn giản, bố trí không gian hợp lý, khoa học (Nguồn: Internet)

Bản vẽ nhà chữ U 2 tầng đẹp, bố cục cân đối đầy cuốn hút (Nguồn: Internet)
>> Tìm hiểu thêm:
Phong thủy nhà chữ U có tốt hay không đều tùy thuộc vào cách bố trí và thiết kế không gian. Có không ít quan điểm trái chiều về tính phong thủy. Một số ý kiến cho rằng kiểu nhà này có thể mang đến sự thiếu cân đối về năng lượng, ảnh hưởng đến hạnh phúc gia đình, sự nghiệp và tài vận.
Theo phong thủy truyền thống, nhà chữ U nếu bố trí phòng ngủ và phòng ăn gần nhau, đặc biệt là ở hai cánh bên, có thể gây ra xáo trộn trong đời sống vợ chồng. Nguồn năng lượng từ bếp và bàn ăn thường mang tính dương mạnh, dễ tạo áp lực tinh thần nếu nằm cạnh không gian nghỉ ngơi. Tuy nhiên, nếu tách biệt rõ ràng giữa các khu vực chức năng và ưu tiên sự riêng tư, ảnh hưởng này có thể được hạn chế.
Một số chuyên gia phong thủy cho rằng phần lõm ở giữa mặt tiền nhà chữ U giống như "hao tài khẩu", tượng trưng cho sự thất thoát về tài lộc và khó khăn trong sự nghiệp. Đặc biệt, nếu phần lõm này đối diện trực tiếp với cửa chính, sẽ càng dễ gây bất ổn về công danh. Tuy nhiên, cách bố trí lại luồng di chuyển trong nhà, sử dụng vách ngăn hợp lý hoặc điều chỉnh hướng mở cửa có thể giúp giảm thiểu tác động tiêu cực này.
Để hóa giải các vấn đề phong thủy nhà chữ U, trước tiên cần điều chỉnh bố cục không gian cho hợp lý. Không nên đặt phòng ngủ vợ chồng cạnh bếp hoặc phòng ăn. Có thể dùng cây xanh để ngăn cách và cân bằng năng lượng. Treo gương tại các vị trí chiến lược để phản chiếu phần lõm cũng là một mẹo phong thủy giúp "điền đầy" kiến trúc. Ngoài ra, việc trồng cây, làm tiểu cảnh hoặc xây hồ nước nhỏ ở phần lõm giữa nhà sẽ giúp tăng sinh khí và tạo cảm giác viên mãn, hài hòa hơn cho tổng thể công trình.

Phong thủy nhà chữ U có tốt hay không đều tùy thuộc vào cách bố trí và thiết kế không gian (Nguồn: Internet)
>> Xem thêm:
Để sở hữu một ngôi nhà chữ U vừa thẩm mỹ, vừa tối ưu công năng sử dụng, gia chủ cần chú ý đến các yếu tố sau trong quá trình thiết kế và thi công:

Khi xây nhà chữ U, cần đảm bảo bố cục cân đối và hệ thống ánh sáng hợp lý (Nguồn: Internet)
Nhìn chung, nhà chữ U mang lại sự tiện nghi và tính thẩm mỹ cao nếu được đầu tư đúng mức về thiết kế và thi công. Với các giải pháp phù hợp, đây là lựa chọn lý tưởng cho gia đình yêu thích không gian sống mở, gắn kết với thiên nhiên.
Nhà chữ U là một giải pháp kiến trúc đáng cân nhắc với nhiều ưu điểm vượt trội về không gian, ánh sáng và tính thẩm mỹ. Mặc dù có một vài nhược điểm, nhưng nếu được thiết kế và thi công bởi đội ngũ chuyên nghiệp, nhà chữ U hoàn toàn có thể trở thành tổ ấm lý tưởng, mang lại không gian sống đẳng cấp và tiện nghi cho gia đình bạn. Hãy cân nhắc kỹ lưỡng các yếu tố về diện tích đất, ngân sách và sở thích cá nhân để đưa ra quyết định phù hợp nhất.
Nếu còn bất kỳ thắc mắc nào liên quan đến sản phẩm Tấm xi măng DURAflex, vui lòng liên hệ qua thông tin bên dưới để được hỗ trợ giải đáp nhanh chóng:
Đánh giá và nhận xét
Đánh giá trung bình
0/5
5
4
3
2
1
Chia sẻ và nhận xét về bài viết
Chia sẻ và nhận xét về bài viết
Bài viết chưa có đánh giá nào