
DURAflex đăng vào lúc 31/03/2026 - 15:00
Nhà cấp 4 nông thôn 3 phòng ngủ luôn là lựa chọn hàng đầu của nhiều gia đình Việt Nam. Với thiết kế đơn giản, gần gũi với thiên nhiên và chi phí xây dựng hợp lý, những ngôi nhà này mang đến không gian sống thoải mái, ấm cúng cho các thành viên trong gia đình. Bài viết này DURAflex sẽ giới thiệu đến bạn đọc 65+ mẫu nhà cấp 4 nông thôn 3 phòng ngủ đẹp, độc đáo và tiết kiệm chi phí nhất, giúp bạn có thêm nhiều ý tưởng cho ngôi nhà tương lai của mình.
Mẫu nhà cấp 4 nông thôn 3 phòng ngủ mang đến nhiều ưu điểm nổi bật, giúp bạn tận hưởng cuộc sống thoải mái và tiết kiệm:

Mẫu nhà cấp 4 nông thôn 3 phòng ngủ đẹp với ưu điểm chi phí thấp (Nguồn: Internet)

Mẫu nhà cấp 4 nông thôn 3 phòng ngủ giá rẻ, thoáng mát (Nguồn: Internet)

Mẫu nhà cấp 4 mái Nhật ở nông thôn 3 phòng ngủ giá rẻ, đáp ứng đầy đủ nhu cầu sử dụng (Nguồn: Internet)

Mẫu nhà cấp 4 3 phòng ngủ 300 triệu ở nông thôn đẹp, dễ dàng mở rộng (Nguồn: Internet)

Mẫu nhà cấp 4 nông thôn 3 phòng ngủ giá rẻ, đa dạng phong cách (Nguồn: Internet)
>> >> Xem thêm:
Mẫu nhà cấp 4 nông thôn 3 phòng ngủ giá rẻ là lựa chọn lý tưởng cho những gia đình mong muốn không gian sống tiện nghi với chi phí hợp lý. Với thiết kế thông minh, ngôi nhà tận dụng tối đa diện tích, tạo nên sự hài hòa giữa các phòng chức năng như phòng khách, phòng bếp, và ba phòng ngủ riêng biệt. Kiến trúc thường mang phong cách tối giản nhưng vẫn đảm bảo tính thẩm mỹ, giúp không gian trở nên thoáng đãng và sáng sủa. Sử dụng vật liệu xây dựng phổ biến như tấm xi măng DURAflex hoặc tấm xi măng giả gỗ DURAwood sẽ giúp tiết kiệm được chi phí mà vẫn đảm bảo độ bền vững. Đây là giải pháp hoàn hảo cho những gia đình đông thành viên, đặc biệt ở các khu vực có quỹ đất rộng nhưng ngân sách hạn chế.

Mẫu nhà cấp 4 nông thôn 3 phòng ngủ giá rẻ, thiết kế đơn giản (Nguồn: Internet)

Mẫu nhà cấp 4 nông thôn 3 phòng ngủ giá rẻ, tiện nghi (Nguồn: Internet)

Xây nhà cấp 4 khoảng 150 triệu ở nông thôn thiết kế 3 phòng ngủ có sân vườn rộng rãi (Nguồn: Internet)

Mẫu nhà cấp 4 nông thôn 3 phòng ngủ giá rẻ, hiện đại với mái bằng (Nguồn: Internet)

Mẫu nhà cấp 4 mái Thái 3 phòng ngủ ở nông thôn đơn giản, giá rẻ (Nguồn: Internet)

Mẫu nhà cấp 4 nông thôn 3 phòng ngủ giá rẻ, rộng thoáng (Nguồn: Internet)

Mẫu nhà cấp 4 đẹp giá rẻ 100 triệu ở nông thôn giá rẻ (Nguồn: Internet)

Mẫu nhà cấp 4 nông thôn 3 phòng ngủ tiết kiệm chi phí (Nguồn: Internet)
>> Đọc thêm:
Mẫu nhà cấp 4 nông thôn 3 phòng ngủ đơn giản là lựa chọn lý tưởng cho những gia đình mong muốn không gian sống tiện nghi mà vẫn tiết kiệm chi phí. Thiết kế nhà thường tập trung vào sự tối giản, sử dụng các vật liệu xây dựng phổ biến như gạch, bê tông và mái tôn. Bố cục các phòng được sắp xếp khoa học, bao gồm 3 phòng ngủ nhỏ gọn, phòng khách và bếp liền kề, tạo cảm giác ấm cúng và gần gũi. Điểm nhấn của mẫu nhà cấp 4 nông thôn 3 phòng ngủ chính là khả năng tối ưu không gian, phù hợp với các gia đình có diện tích đất hạn chế mà vẫn đảm bảo sự thoải mái trong sinh hoạt hàng ngày.

Mẫu nhà cấp 4 nông thôn 3 phòng ngủ đơn giản, chi phí thấp (Nguồn: Internet)

Mẫu nhà cấp 4 nông thôn 3 phòng ngủ đơn giản với khoảng sân rộng lớn (Nguồn: Internet)

Mẫu nhà cấp 4 nông thôn 3 phòng ngủ đơn giản mà đẹp (Nguồn: Internet)

Mẫu nhà cấp 4 nông thôn 3 phòng ngủ đơn giản, gần gũi với thiên nhiên (Nguồn: Internet)

Mẫu nhà cấp 4 nông thôn 3 phòng ngủ đơn giản, nhỏ gọn (Nguồn: Internet)

Mẫu nhà cấp 4 nông thôn đơn giản có 3 phòng ngủ (Nguồn: Internet)
>> Xem các mẫu nhà khác:
Mẫu nhà cấp 4 nông thôn 3 phòng ngủ hiện đại mang đến sự kết hợp giữa phong cách trẻ trung và tiện nghi cao cấp. Với thiết kế mở, ngôi nhà tận dụng ánh sáng tự nhiên qua hệ thống cửa kính lớn, giúp không gian luôn thoáng đãng và tiết kiệm năng lượng. Bố trí 3 phòng ngủ rộng rãi với nội thất tối giản nhưng sang trọng, phòng khách liên thông với khu bếp hiện đại, tạo sự liền mạch trong sinh hoạt. Ngoài ra, sân vườn được bố trí hài hòa với cảnh quan xanh mát, mang lại không gian thư giãn lý tưởng cho gia đình.

Mẫu nhà cấp 4 nông thôn 3 phòng ngủ hiện đại, thoáng mát (Nguồn: Internet)

Mẫu nhà cấp 4 mái bằng chữ L 3 phòng ngủ hiện đại, sang trọng (Nguồn: Ảnh được tạo bởi AI)

Mẫu nhà container cấp 4 nông thôn 3 phòng ngủ hiện đại với không gian mở (Nguồn: Internet)

Mẫu nhà cấp 4 nông thôn 3 phòng ngủ hiện đại với hệ thống cửa kính lớn (Nguồn: Internet)

Mẫu nhà cấp 4 hiện đại 3 phòng ngủ ở nông thôn (Nguồn: Internet)

Mẫu nhà cấp 4 nông thôn đẹp 3 phòng ngủ (Nguồn: Internet)
>> Đọc thêm:
Những mẫu nhà cấp 4 nông thôn 3 phòng ngủ 1 phòng thờ đang trở thành lựa chọn lý tưởng cho các gia đình Việt Nam bởi thiết kế hài hòa giữa tiện nghi và truyền thống. Với không gian thờ cúng được bố trí riêng biệt, gia chủ dễ dàng tạo nên một góc tâm linh trang nghiêm, phù hợp với văn hóa Á Đông. Bên cạnh đó, ba phòng ngủ được sắp xếp khoa học, đảm bảo sự riêng tư và thoải mái cho các thành viên trong gia đình. Thiết kế này không chỉ đáp ứng nhu cầu sinh hoạt hàng ngày mà còn mang đến sự gắn kết giữa các thế hệ trong gia đình, tạo nên một tổ ấm

Mẫu nhà cấp 4 nông thôn 3 phòng ngủ 1 phòng thờ giá rẻ, đầy đủ bản vẽ (Nguồn: Internet)

Mẫu phòng thờ nhà cấp 4 nông thôn 3 phòng ngủ đẹp, hợp phong thủy (Nguồn: Internet)

Mẫu nhà cấp 4 nông thôn 3 phòng ngủ, 1 phòng thờ, 1 phòng khách (Nguồn: Internet)

Mẫu nhà cấp 4 đẹp 100m2 3 phòng ngủ 1 phòng thờ (Nguồn: Internet)
>> Đọc thêm:
Nhà cấp 4 nông thôn với 3 phòng ngủ và 1 phòng khách mang đến không gian sống tiện nghi và hiện đại, phù hợp với nhiều gia đình có số lượng thành viên từ 4-6 người. Phòng khách rộng rãi được bố trí ngay trung tâm, không chỉ là nơi tiếp khách mà còn là không gian sinh hoạt chung, nơi gia đình cùng quây quần, trò chuyện. Ba phòng ngủ được thiết kế hợp lý, tối ưu ánh sáng tự nhiên và thông gió, giúp mang lại cảm giác thoải mái cho người sử dụng. Mẫu nhà này không chỉ mang lại vẻ đẹp thẩm mỹ mà còn đảm bảo đầy đủ công năng, thích hợp với lối sống ở vùng nông thôn.

Nhà cấp 4 nông thôn 3 phòng ngủ 1 phòng khách đẹp, tối ưu ánh sáng (Nguồn: Internet)

Mẫu nhà cấp 4 nông thôn 3 phòng ngủ, 1 phòng khách, 1 phòng bếp (Nguồn: Internet)

Mẫu nhà cấp 4 nông thôn 3 phòng ngủ 1 phòng khách đẹp, hiện đại (Nguồn: Internet)
>> Các mẫu nhà khác:
Với ngân sách 200 triệu đồng, mẫu nhà cấp 4 nông thôn 3 phòng ngủ là lựa chọn tiết kiệm nhưng vẫn đảm bảo tiện nghi cơ bản. Thiết kế thường tập trung vào kiểu dáng đơn giản, tối ưu không gian sử dụng và vật liệu xây dựng giá rẻ nhưng chất lượng. Ngôi nhà có thể sử dụng mái tôn, tường gạch không trát, và nội thất cơ bản nhằm giảm chi phí. Đây là giải pháp lý tưởng cho các gia đình nhỏ, phù hợp với điều kiện kinh tế nông thôn.

Mẫu nhà cấp 4 nông thôn 3 phòng ngủ 200 triệu đẹp, đơn giản (Nguồn: Internet)

Mẫu nhà cấp 4 nông thôn 3 phòng ngủ 200 triệu đẹp, hiện đại (Nguồn: Internet)

Mẫu nhà cấp 4 mái Nhật 3 phòng ngủ giá rẻ (Nguồn: Internet)

Mẫu nhà cấp 4 nông thôn 3 phòng ngủ giá rẻ 200 triệu (Nguồn: Internet)
>> Tham khảo thêm:
Mẫu nhà cấp 4 nông thôn 3 phòng ngủ với chi phí 300 triệu mang đến sự cân đối giữa chi phí và tiện ích. Với mức ngân sách này, gia chủ có thể lựa chọn thiết kế hiện đại hơn như nhà mái Thái hoặc mái bằng, cùng với việc bổ sung một số tiện nghi nội thất. Mẫu nhà cấp 4 đẹp giá rẻ 300 triệu này thường được xây dựng trên nền diện tích 80 - 100m², đảm bảo không gian thoáng đãng và đáp ứng nhu cầu sinh hoạt của gia đình có từ 4 đến 5 thành viên.

Mẫu nhà cấp 4 nông thôn 3 phòng ngủ 300 triệu đẹp, hiện đại (Nguồn: Internet)

Mẫu nhà cấp 4 nông thôn 3 phòng ngủ 300 triệu hiện đại, thiết kế tối giản với tấm lót sàn DURAflex bền đẹp (Nguồn: Internet)
>> Xem thêm:
Khi ngân sách tăng lên 450 triệu đồng, mẫu nhà cấp 4 nông thôn 3 phòng ngủ được hoàn thiện với sự chăm chút hơn về thiết kế và vật liệu xây dựng. Mái ngói, tường sơn hoàn thiện, cửa nhôm kính, và sàn gạch cao cấp là những điểm nhấn thường thấy. Gia chủ cũng có thể thêm không gian phụ như phòng thờ, thiết kế sân vườn nhỏ hoặc gara, tạo sự tiện nghi và thẩm mỹ cao hơn cho ngôi nhà.

Mẫu nhà cấp 4 nông thôn 3 phòng ngủ 450 triệu giá rẻ với không gian thoáng đãng (Nguồn: Internet)

Mẫu nhà cấp 4 nông thôn 3 phòng ngủ 450 triệu thiết kế đơn giản, truyền thống (Nguồn: Internet)

Mẫu nhà cấp 4 nông thôn 3 phòng ngủ 450 triệu mái Nhật độc đáo (Nguồn: Internet)

Mẫu nhà cấp 4 nông thôn 3 phòng ngủ 450 triệu đẹp, hiện đại (Nguồn: Internet)

Mẫu nhà cấp 4 nông thôn 3 phòng ngủ 450 triệu hiện đại có sân vườn (Nguồn: Internet)

Mẫu nhà mái ngói cấp 4 nông thôn 3 phòng ngủ 450 triệu sang sang trọng (Nguồn: Internet)
Mẫu nhà cấp 4 3 phòng ngủ 500 triệu có thể đáp ứng cả yếu tố thẩm mỹ lẫn công năng. Thiết kế hiện đại kết hợp với nội thất cao cấp, mẫu nhà cấp 4 giá 500 triệu này thường có diện tích từ 100 - 120m², bố trí không gian hợp lý với phòng khách rộng rãi, bếp ăn tiện nghi và các phòng ngủ thoải mái. Ngoài ra, gia chủ có thể đầu tư vào hệ thống ánh sáng, sân vườn tiểu cảnh để nâng cao giá trị sống.

Mẫu nhà cấp 4 nông thôn 3 phòng ngủ 500 triệu hiện đại, tính thẩm mỹ cao (Nguồn: Internet)

Mẫu nhà cấp 4 nông thôn 3 phòng ngủ 500 triệu đẹp có gác lửng (Nguồn: Internet)

Mẫu nhà cấp 4 nông thôn 3 phòng ngủ 500 triệu đẹp, thiết kế đơn giản (Nguồn: Internet)

Mẫu nhà cấp 4 nông thôn 3 phòng ngủ 500 triệu hiện đại (Nguồn: Internet)

Xây nhà 500 triệu ở nông thôn thiết kế 3 phòng ngủ đẹp, hiện đại (Nguồn: Internet)
Với mức đầu tư 600 triệu đồng, mẫu nhà cấp 4 nông thôn 3 phòng ngủ không chỉ đáp ứng nhu cầu sinh hoạt mà còn mang lại sự sang trọng và đẳng cấp. Ngôi nhà thường có thiết kế mái thái hoặc mái lệch hiện đại, sử dụng vật liệu cao cấp như đá ốp mặt tiền, cửa kính cường lực và sàn gỗ. Ngoài ra, không gian sống còn được bổ sung các tiện ích như sân vườn lớn, khu vực sinh hoạt chung, và hệ thống năng lượng tiết kiệm, giúp gia đình tận hưởng cuộc sống tiện nghi và thoải mái.

Mẫu nhà cấp 4 nông thôn 3 phòng ngủ 600 triệu đẹp, sang trọng (Nguồn: Internet)

Mẫu nhà cấp 4 nông thôn 3 phòng ngủ 600 triệu sang trọng, rộng thoáng (Nguồn: Internet)

Mẫu nhà cấp 4 nông thôn 3 phòng ngủ 600 triệu hiện đại (Nguồn: Internet)
>> Đọc tham khảo:
Những mẫu nhà cấp 4 nông thôn 3 phòng ngủ mái lệch mang phong cách hiện đại và độc đáo, đang trở thành lựa chọn phổ biến ở các vùng quê Việt Nam. Thiết kế mái lệch không chỉ tạo điểm nhấn thẩm mỹ, mà còn giúp ngôi nhà trở nên thông thoáng hơn, tận dụng tối đa ánh sáng tự nhiên. Với không gian 3 phòng ngủ, mẫu nhà này phù hợp cho gia đình có từ 4 đến 6 thành viên, mang lại sự riêng tư và thoải mái cho từng người. Đồng thời, chi phí xây dựng mái lệch cũng không quá cao, phù hợp với khả năng tài chính của nhiều gia đình ở nông thôn.

Mẫu nhà cấp 4 nông thôn 3 phòng ngủ mái lệch giá rẻ (Nguồn: Internet)

Mẫu nhà cấp 4 nông thôn 3 phòng ngủ mái lệch đẹp, độc đáo (Nguồn: Internet)

Mẫu nhà cấp 4 nông thôn 3 phòng ngủ mái lệch đẹp, ấn tượng (Nguồn: Internet)

Mẫu nhà cấp 4 nông thôn 3 phòng ngủ mái lệch hiện đại với tone trắng chủ đạo (Nguồn: Internet)
>> Xem thêm:
Mẫu nhà cấp 4 nông thôn 3 phòng ngủ mái tôn là giải pháp tối ưu cho những gia đình muốn tiết kiệm chi phí xây dựng mà vẫn đảm bảo công năng sử dụng. Mái tôn có ưu điểm là nhẹ, dễ thi công và phù hợp với nhiều kiểu thiết kế khác nhau. Đặc biệt, khi kết hợp với các vật liệu cách nhiệt như tấm bê tông đúc sẵn DURAflex, mái tôn sẽ giúp giảm bớt ảnh hưởng của thời tiết khắc nghiệt, mang lại không gian sống thoải mái. Với diện tích hợp lý, mẫu nhà này đáp ứng nhu cầu sinh hoạt của gia đình 3 thế hệ mà vẫn giữ được sự thoáng đãng.

Mẫu nhà cấp 4 nông thôn 3 phòng ngủ mái tôn đẹp, giá rẻ (Nguồn: Internet)

Mẫu nhà cấp 4 nông thôn 3 phòng ngủ mái tôn giá rẻ, hiện đại với tấm ốp tường trang trí DURAwood (Nguồn: Internet)
>> Tham khảo thêm:
Những ngôi nhà cấp 4 nông thôn 3 phòng ngủ mái bằng mang phong cách tối giản, hiện đại, phù hợp với những gia đình yêu thích sự bền vững và chắc chắn. Mái bằng không chỉ chịu lực tốt, ít chịu ảnh hưởng bởi gió bão mà còn tận dụng được làm sân thượng, nơi trồng cây xanh hoặc phơi đồ. Với không gian 3 phòng ngủ được bố trí hợp lý, mẫu nhà này đáp ứng đầy đủ nhu cầu sinh hoạt của gia đình nhỏ. Hơn nữa, chi phí bảo trì mái bằng thấp, là lựa chọn lý tưởng cho những gia đình muốn tối ưu chi phí lâu dài.

Mẫu nhà cấp 4 nông thôn 3 phòng ngủ mái bằng hiện đại, chi phí hợp lý (Nguồn: Internet)

Mẫu nhà cấp 4 nông thôn 3 phòng ngủ mái bằng đẹp, hài hòa với thiên nhiên (Nguồn: Internet)

Mẫu nhà cấp 4 nông thôn 3 phòng ngủ mái bằng đẹp, có gara tiện lợi (Nguồn: Internet)

Mẫu nhà cấp 4 nông thôn 3 phòng ngủ mái bằng đẹp, hiện đại (Nguồn: Internet)

Mẫu nhà cấp 4 nông thôn 3 phòng ngủ mái bằng, giá rẻ (Nguồn: Internet)

Mẫu nhà cấp 4 nông thôn 3 phòng ngủ mái bằng, đơn giản, đẹp (Nguồn: Internet)

Mẫu nhà cấp 4 mái bằng ở nông thôn, giá rẻ, tiết kiệm chi phí (Nguồn: Internet)

Mẫu nhà cấp 4 nông thôn 3 phòng ngủ, 1 phòng thờ mái bằng (Nguồn: Internet)
>> Xem thêm:
Những mẫu nhà cấp 4 nông thôn 3 phòng ngủ với diện tích 100m2 thường được thiết kế tối ưu hóa không gian, phù hợp cho gia đình nhỏ hoặc trung bình. Với diện tích này, ngôi nhà có thể bố trí 3 phòng ngủ, 1 phòng khách, 1 bếp và 2 nhà vệ sinh, đảm bảo đáp ứng nhu cầu sinh hoạt cơ bản. Phong cách thiết kế thường hướng đến sự đơn giản, hiện đại, với chi phí xây dựng hợp lý, phù hợp với điều kiện kinh tế của nhiều gia đình tại nông thôn. Ngoài ra, không gian sân vườn nhỏ có thể được bố trí thêm để tạo không khí trong lành, thư giãn cho gia đình.

Mẫu nhà cấp 4 nông thôn 3 phòng ngủ 100m2 đẹp, hiện đại (Nguồn: Internet)

Mẫu nhà cấp 4 nông thôn 3 phòng ngủ 100m2 chữ L đẹp, đầy đủ công năng (Nguồn: Internet)

Mẫu nhà cấp 4 nông thôn 3 phòng ngủ 100m2 hiện đại, sang trọng, tiện nghi (Nguồn: Internet)

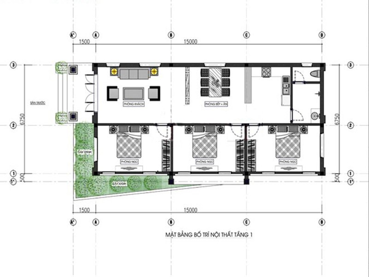
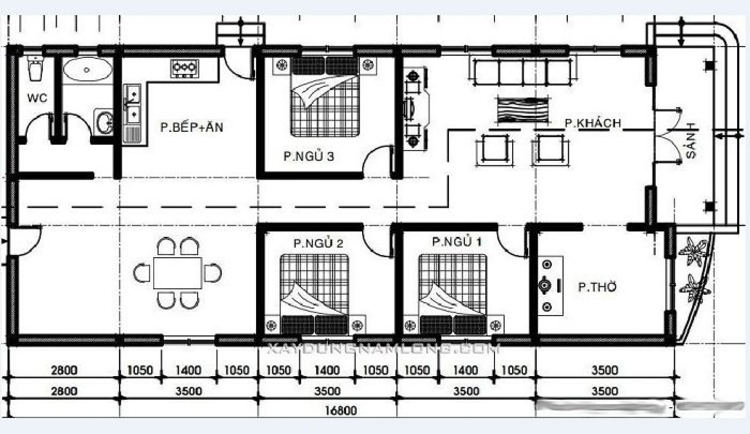
Bản vẽ nhà cấp 4 nông thôn 3 phòng ngủ chi tiết, đầy đủ (Nguồn: Internet)

Bản vẽ nhà cấp 4 nông thôn 3 phòng ngủ 100m2 (Nguồn: Internet)

Bản vẽ nhà cấp 4 nông thôn 3 phòng ngủ 100m2 mái bằng (Nguồn: Internet)

Bản vẽ nhà cấp 4 nông thôn 3 phòng ngủ 100m2 (Nguồn: Internet)

Bản vẽ thiết kế nhà cấp 4 nông thôn 3 phòng ngủ (Nguồn: Internet)
>> Xem thêm:
Nếu gia đình cần không gian rộng rãi hơn, mẫu nhà cấp 4 nông thôn 3 phòng ngủ diện tích 120m2 là lựa chọn lý tưởng. Với diện tích này, bạn có thể bố trí các phòng ngủ lớn hơn hoặc thêm một phòng chức năng như phòng làm việc hoặc phòng thờ. Kiểu dáng ngôi nhà thường mang phong cách hiện đại kết hợp truyền thống, tạo cảm giác ấm cúng nhưng vẫn tiện nghi. Ngoài ra, với không gian này, việc thiết kế thêm hiên nhà rộng hoặc sân vườn lớn giúp tăng sự thoải mái và gần gũi với thiên nhiên, phù hợp với phong cách sống ở nông thôn.

Mẫu nhà cấp 4 nông thôn 3 phòng ngủ 120m2 đẹp, thiết kế có gác lửng (Nguồn: Internet)

Mẫu nhà cấp 4 mái Thái ở nông thôn 3 phòng ngủ 120m2 đẹp (Nguồn: Internet)

Mẫu nhà cấp 4 nông thôn 3 phòng ngủ 120m2 chữ L giúp tối ưu không gian (Nguồn: Internet)
Đối với những gia đình đông thành viên hoặc yêu cầu không gian sống thoải mái hơn, mẫu nhà cấp 4 diện tích 130m2 là sự lựa chọn tối ưu. Với diện tích này, bạn có thể dễ dàng bố trí 3 phòng ngủ rộng rãi, phòng khách lớn kết hợp khu vực sinh hoạt chung, bếp và phòng ăn được thiết kế mở, tạo sự thông thoáng. Ngoài ra, việc phân bổ không gian hợp lý còn cho phép tích hợp thêm khu vực để xe, kho nhỏ hoặc sân chơi cho trẻ em. Phong cách thiết kế đa dạng từ hiện đại đến tân cổ điển sẽ giúp ngôi nhà trở nên nổi bật và phù hợp với sở thích của từng gia đình.

Mẫu nhà cấp 4 nông thôn 3 phòng ngủ diện tích 130m2 đẹp, phù hợp gia đình 4 - 5 thành viên (Nguồn: Internet)

Mẫu nhà cấp 4 nông thôn 3 phòng ngủ diện tích 130m2 đẹp, thiết kế chữ L độc đáo (Nguồn: Internet)

Mẫu nhà cấp 4 nông thôn 3 phòng ngủ diện tích 130m2 đẹp, gọn gàng, ấm cúng (Nguồn: Internet)
>> Xem thêm:
Mẫu nhà cấp 4 chữ L 3 phòng ngủ được nhiều gia đình ưa chuộng nhờ tính thẩm mỹ và tối ưu không gian hiệu quả. Nhà chữ L giúp tận dụng được tối đa diện tích đất, tạo nên khu vực sân vườn thoáng đãng hoặc nơi để xe tiện lợi. Không gian bên trong được phân chia hợp lý, với ba phòng ngủ được bố trí khoa học, đảm bảo sự riêng tư cho các thành viên. Phòng khách và bếp thường được đặt ở hai nhánh của chữ L, giúp không gian trở nên thông thoáng và dễ dàng đón ánh sáng tự nhiên.

Mẫu nhà cấp 4 chữ L ở nông thôn 3 phòng ngủ đẹp, tối ưu diện tích (Nguồn: Internet)

Mẫu nhà cấp 4 nông thôn 3 phòng ngủ chữ L đẹp, hài hòa (Nguồn: Internet)
>> Có thể bạn quan tâm:
Nhà cấp 4 nông thôn 3 phòng ngủ chữ U là lựa chọn lý tưởng cho những gia đình muốn tạo điểm nhấn độc đáo và sở hữu không gian sống rộng rãi. Thiết kế nhà chữ U mang đến sự cân đối và hài hòa, với khoảng sân ở giữa thường được tận dụng làm khu vực thư giãn, trồng cây xanh hoặc làm sân chơi cho trẻ nhỏ. Ba phòng ngủ được bố trí đều ở hai bên cánh chữ U, tạo sự cân đối và giúp các thành viên có không gian riêng thoải mái. Phòng khách được đặt ở trung tâm, kết nối với bếp và khu vực sinh hoạt chung, mang lại sự tiện nghi và ấm cúng. Kiểu nhà này không chỉ phù hợp với gia đình đông người mà còn giúp tối ưu hóa việc sử dụng không gian đất ở những vùng nông thôn có diện tích lớn.

Mẫu nhà cấp 4 nông thôn 3 phòng ngủ chữ U đẹp, cân đối không gian (Nguồn: Internet)

Mẫu nhà cấp 4 nông thôn 3 phòng ngủ chữ U đẹp, thoải mái với khoảng sân trước nhà (Nguồn: Internet)

Mẫu nhà cấp 4 nông thôn 3 phòng ngủ chữ U đẹp, cổ điển (Nguồn: Internet)

Mẫu nhà cấp 4 nông thôn 3 phòng ngủ 1 phòng khách chữ U (Nguồn: Internet)

Mẫu nhà cấp 4 nông thôn 3 phòng ngủ 450 triệu chữ U (Nguồn: Internet)

Mẫu nhà mái Nhật cấp 4 nông thôn 3 phòng ngủ hình chữ U (Nguồn: Internet)
Thiết kế nhà cấp 4 nông thôn 3 phòng ngủ có bếp riêng là lựa chọn hoàn hảo cho các gia đình yêu thích sự gọn gàng và tiện lợi. Bếp được tách biệt khỏi các không gian khác, giúp hạn chế mùi thức ăn lan tỏa, đồng thời tạo sự thoải mái trong quá trình nấu nướng. Cùng với đó, ba phòng ngủ được bố trí thông minh, đảm bảo tối đa sự tiện nghi và riêng tư. Thiết kế này không chỉ phù hợp với nhu cầu sử dụng hàng ngày mà còn giúp ngôi nhà luôn sạch sẽ, gọn gàng, đáp ứng tiêu chuẩn sống ngày càng cao của các gia đình nông thôn.

Nhà cấp 4 nông thôn 3 phòng ngủ có bếp riêng hiện đại, ấm cúng (Nguồn: Internet)
Mẫu nhà cấp 4 nông thôn 3 phòng ngủ có gác lửng là sự lựa chọn lý tưởng cho các gia đình mong muốn không gian sống tiện nghi mà vẫn tiết kiệm chi phí xây dựng. Với thiết kế gác lửng, ngôi nhà không chỉ tối ưu diện tích sử dụng mà còn tạo nên vẻ đẹp hiện đại và độc đáo. Phần gác lửng thường được bố trí làm phòng ngủ, phòng làm việc hoặc khu vực giải trí, giúp phân chia không gian rõ ràng và tận dụng triệt để diện tích. Bên cạnh đó, mẫu nhà này phù hợp với lối sống ở nông thôn nhờ vào khả năng kết hợp với cảnh quan thiên nhiên, tạo không gian sống thoáng đãng và gần gũi.

Mẫu nhà cấp 4 nông thôn 3 phòng ngủ có gác lửng đẹp, sang trọng (Nguồn: Internet)

Mẫu nhà cấp 4 gác lửng nông thôn 3 phòng ngủ có gác lửng giá rẻ, nội thất hiện đại (Nguồn: Internet)

Mẫu nhà cấp 4 nông thôn 3 phòng ngủ mái Thái có gác lửng (Nguồn: Internet)
>> Xem thêm:
Mẫu nhà vườn cấp 4 nông thôn 3 phòng ngủ là kiểu nhà lý tưởng dành cho những gia đình mong muốn không gian sống thoải mái, gần gũi với thiên nhiên. Thiết kế này không chỉ đảm bảo sự tiện nghi với bố trí hợp lý giữa các phòng mà còn mở rộng không gian xanh nhờ sân vườn rộng rãi, mang lại cảm giác thư thái, trong lành.

Mẫu nhà cấp 4 mái Thái 3 phòng ngủ, 1 phòng thờ ở nông thôn (Nguồn: Internet)

Mẫu nhà vườn nhỏ đẹp cấp 4 nông thôn 3 phòng ngủ, 1 phòng khách, mái Nhật (Nguồn: Internet)
>> Xem thêm:
Nhà cấp 4 nông thôn 3 phòng ngủ có sân vườn là lựa chọn lý tưởng cho những gia đình yêu thích không gian sống gần gũi thiên nhiên. Thiết kế này không chỉ tối ưu công năng sử dụng với ba phòng ngủ tiện nghi, mà còn mang lại sự thoải mái với khu vực sân vườn rộng rãi. Bạn có thể tận dụng sân vườn để trồng cây xanh, làm nhà chòi sân vườn làm khu vui chơi cho trẻ em hoặc tổ chức các bữa tiệc ngoài trời. Với sự kết hợp hài hòa giữa kiến trúc hiện đại và cảnh quan thiên nhiên, mẫu nhà này đáp ứng tốt nhu cầu sinh hoạt, nghỉ ngơi của mọi thành viên trong gia đình.

Mẫu nhà cấp 4 nông thôn 3 phòng ngủ có sân vườn đẹp, gần gũi với thiên nhiên (Nguồn: Internet)

Mẫu nhà cấp 4 nông thôn 3 phòng ngủ có sân vườn thoáng mát (Nguồn: Internet)

Mẫu biệt thự nhà vườn cấp 4 nông thôn 3 phòng ngủ đẹp, tinh tế, thanh bình (Nguồn: Internet)
>> Đọc thêm:
Mẫu nhà cấp 4 nông thôn 3 phòng ngủ với kích thước 5x18 hoặc 5x25 là lựa chọn phù hợp cho những mảnh đất hẹp chiều ngang nhưng dài chiều sâu. Thiết kế thông minh với ba phòng ngủ được bố trí hợp lý giúp tận dụng tối đa diện tích mà vẫn đảm bảo không gian sống thoáng đãng. Phòng khách, bếp và phòng ăn được liên thông với nhau, tạo cảm giác rộng rãi và thuận tiện trong sinh hoạt hàng ngày. Với diện tích lớn hơn, mẫu nhà 5x25 có thể tích hợp thêm một sân nhỏ phía trước hoặc khu vực sân sau, mang đến sự thoải mái và tiện ích cho gia đình.

Mẫu nhà cấp 4 nông thôn 3 phòng ngủ 5x18 hiện đại, ấm cúng (Nguồn: Internet)

Mẫu nhà cấp 4 nông thôn 3 phòng ngủ 5x18 hiện đại, tiết kiệm chi phí (Nguồn: Internet)
Những ngôi nhà cấp 4 nông thôn 3 phòng ngủ ngang 6m thường có ưu thế về sự cân đối trong thiết kế, phù hợp với các khu đất có mặt tiền rộng. Với bề ngang 6m, bạn có thể bố trí ba phòng ngủ dọc theo hai bên nhà, tạo lối đi giữa tiện lợi. Phòng khách được đặt ở trung tâm, kết nối với khu vực bếp và ăn uống, mang lại sự liên kết chặt chẽ trong không gian sinh hoạt. Điểm nhấn của mẫu nhà này là khả năng tận dụng ánh sáng tự nhiên và không gian mở, giúp căn nhà luôn thoáng mát và tiết kiệm năng lượng. Đây là kiểu thiết kế rất phổ biến và được yêu thích tại các vùng nông thôn hiện nay.

Mẫu nhà cấp 4 nông thôn 3 phòng ngủ ngang 6m đẹp, phù hợp xu hướng (Nguồn: Internet)
Những mẫu nhà cấp 4 nông thôn 3 phòng ngủ với diện tích 7x12 và 7x15 là lựa chọn lý tưởng cho những gia đình mong muốn không gian sống rộng rãi nhưng vẫn đảm bảo sự tiện nghi. Với diện tích này, bạn sẽ có đủ không gian cho 3 phòng ngủ, cùng các khu vực chức năng khác như phòng khách, bếp và phòng ăn. Các mẫu nhà này thường được thiết kế đơn giản nhưng hiện đại, phù hợp với nhu cầu sinh hoạt của gia đình nông thôn. Bên cạnh đó, việc bố trí các phòng hợp lý, tận dụng tối đa ánh sáng tự nhiên cũng giúp ngôi nhà trở nên thoáng đãng và dễ chịu hơn.

Mẫu nhà cấp 4 nông thôn 3 phòng ngủ 7x12 đẹp, thiết kế mái Thái tiện nghi (Nguồn: Internet)

Mẫu nhà cấp 4 nông thôn 3 phòng ngủ 7x15 đẹp, hiện đại với tone màu trung tính chủ đạo (Nguồn: Internet)
Đối với những gia đình có nhu cầu diện tích rộng hơn, các mẫu nhà cấp 4 nông thôn 3 phòng ngủ với kích thước 8x10, 8x12 và 8x15 sẽ là sự lựa chọn phù hợp. Với diện tích lớn hơn, các thiết kế này không chỉ đảm bảo đủ không gian cho phòng ngủ, phòng khách, bếp và phòng tắm, mà còn có thể tích hợp thêm các khu vực tiện ích khác như phòng làm việc hay góc thư giãn. Thiết kế của các mẫu nhà này thường ưu tiên sự thoáng mát, ánh sáng tự nhiên, và không gian mở để gia đình có thể tận hưởng cuộc sống trong một không gian rộng rãi và thoải mái.

Mẫu nhà cấp 4 nông thôn 3 phòng ngủ 8x10 giá rẻ, sang trọng (Nguồn: Internet)

Mẫu nhà cấp 4 nông thôn 3 phòng ngủ 8x12 hiện đại, được ưa chuộng hiện nay (Nguồn: Internet)

Mẫu nhà cấp 4 nông thôn 3 phòng ngủ 8x15 thoáng mát, rộng rãi (Nguồn: Internet)
Quyết định xây dựng một ngôi nhà cấp 4 nông thôn 3 phòng ngủ là bước khởi đầu cho tổ ấm tương lai của bạn. Để quá trình xây dựng diễn ra thuận lợi và ngôi nhà hoàn thiện đáp ứng mọi mong đợi, bạn cần lưu ý những điểm sau:

Lưu ý chọn mẫu thiết kế phù hợp khi xây nhà cấp 4 nông thôn 3 phòng ngủ giá rẻ (Nguồn: Internet)
Chi phí xây nhà cấp 4 nông thôn 3 phòng ngủ thường dao động từ 200 triệu đến 750 triệu đồng, tùy thuộc vào vật liệu sử dụng và mức độ hoàn thiện. Trong đó, chi phí thiết kế sẽ khoảng 80.000 đồng/m², tuy nhiên, nhiều công ty thiết kế nhà hiện nay có chính sách miễn phí phí thiết kế cho khách hàng. Chi phí xây thô chiếm khoảng 50% tổng chi phí xây dựng, với phần còn lại dành cho các công đoạn hoàn thiện như điện, nước, trát tường và lắp đặt nội thất. Do đó, việc xác định ngân sách cho mỗi giai đoạn xây dựng là rất quan trọng để tránh phát sinh chi phí ngoài dự tính.

Chi phí xây dựng nhà cấp 4 nông thôn 3 phòng ngủ từ 200 triệu đến 750 triệu đồng (Nguồn: Internet)
Chi phí xây dựng nhà cấp 4 mái Nhật 3 phòng ngủ có diện tích 1000m2 từ 550.000 - 650.000 triệu bao gồm chi phí xây dựng phần thô, chi phí hoàn thiện, chi phí thiết kế và xin giấy phép.
Chi phí xây nhà cấp 4 có diện tích 70m2 có giá khoảng từ 430 - 500 triệu.
Với những thông tin trên, hy vọng bạn đã có thêm nhiều ý tưởng để thiết kế ngôi nhà cấp 4 nông thôn 3 phòng ngủ, 1 phòng khách, 1 phòng thờ đẹp, giá rẻ mơ ước của mình. Hãy lựa chọn một mẫu nhà phù hợp với nhu cầu và sở thích của gia đình để xây dựng một tổ ấm hạnh phúc.
Nếu bạn có nhu cầu tìm hiểu thêm thông tin và báo giá tấm xi măng DURAflex hoặc tấm vân gỗ DURAwood làm tường - sàn - vách - mái, vui lòng liên hệ qua:
Đánh giá và nhận xét
Đánh giá trung bình
0/5
5
4
3
2
1
Chia sẻ và nhận xét về bài viết
Chia sẻ và nhận xét về bài viết
Bài viết chưa có đánh giá nào