
DURAflex đăng vào lúc 24/12/2025 - 15:24
Nhà cấp 4 mái Thái 3 phòng ngủ từ lâu đã trở thành một trong những lựa chọn hàng đầu của nhiều gia đình Việt Nam. Với thiết kế truyền thống, gần gũi và không kém phần hiện đại, mẫu nhà này mang đến không gian sống thoải mái, ấm cúng và đầy đủ tiện nghi. Đặc biệt, với nhu cầu của các gia đình trẻ, mẫu nhà cấp 4 mái Thái 3 phòng ngủ đang ngày càng được ưa chuộng. Bài viết này DURAflex sẽ giới thiệu đến bạn đọc 45+ mẫu nhà cấp 4 mái Thái 3 phòng ngủ đẹp, hiện đại được yêu thích nhất năm 2026.
Nhà mái Thái cấp 4 là kiểu nhà phổ biến ở Việt Nam, có phần mái dốc đặc trưng lấy cảm hứng từ kiến trúc Thái Lan. Thiết kế này không chỉ đẹp, sang trọng mà còn đáp ứng tốt nhu cầu sử dụng của các thành viên trong gia đình.

Nhà mái Thái 1 tầng nổi bật với thiết kế mái dốc lấy cảm hứng từ kiến trúc Thái Lan (Nguồn: Internet)
>> Đọc thêm:
Nhà cấp 4 mái Thái là mẫu nhà một tầng phổ biến, được thiết kế với mái ngói dốc, xếp chồng lên nhau theo một góc nghiêng nhất định. Kiểu mái này không chỉ giúp tăng tính thẩm mỹ, mang lại vẻ đẹp thanh thoát, duyên dáng mà còn có khả năng chống nắng, chống mưa hiệu quả. Với kết cấu đơn giản nhưng lại rất hài hòa, nhà cấp 4 mái Thái dễ dàng hòa nhập với nhiều kiểu kiến trúc khác nhau. Hơn nữa, việc thi công mái ngói Thái giúp ngôi nhà trở nên mát mẻ vào mùa hè và ấm áp vào mùa đông, mang lại không gian sống lý tưởng cho gia đình.

Nhà cấp 4 mái Thái 3 phòng ngủ 100m2 đẹp, tiện nghi, thoáng mát (Nguồn: Internet)

Nhà cấp 4 mái Thái giúp tăng tính thẩm mỹ, mang lại vẻ đẹp thanh thoát, duyên dáng (Nguồn: Internet)

Nhà cấp 4 mái thái 3 phòng ngủ 500 triệu với 1 phòng khách, 1 phòng thờ cực đẹp (Nguồn: Internet)

Nhà cấp 4 3 phòng ngủ 300 triệu mái Thái 120m2 có 1 phòng thờ đẹp, thiết kế đơn giản (Nguồn: Internet)

Tham khảo mẫu nhà cấp 4 đẹp giá rẻ 300 triệu mái Thái 3 phòng ngủ với diện tích 120m2 (Nguồn: Internet)

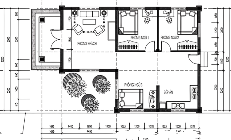
Bản vẽ mặt bằng nhà cấp 4 mái Thái có 3 phòng ngủ, 1 phòng khách chi tiết (Nguồn: Internet)

Xem bản vẽ nhà cấp 4 3 phòng ngủ 100m2 với thiết kế mái Thái tiện lợi (Nguồn: Internet)
>> Đọc thêm:
Sau đây là các mẫu nhà cấp 4 mái Thái 3 phòng ngủ đẹp, được nhiều gia chủ ưa chuộng hiện nay mà các bạn có thể tham khảo:
Mẫu nhà cấp 4 mái Thái 3 phòng ngủ đang là xu hướng được nhiều gia đình tại nông thôn lựa chọn bởi sự tiện nghi và vẻ đẹp thanh lịch. Kiểu nhà này không chỉ tối ưu về chi phí xây dựng mà còn phù hợp với điều kiện khí hậu tại Việt Nam, đặc biệt là các vùng nông thôn có diện tích đất rộng. Với thiết kế mái Thái, ngôi nhà mang lại khả năng thoát nước tốt, giúp chống nóng hiệu quả vào mùa hè và chống ẩm vào mùa mưa. Bố trí 3 phòng ngủ trong mẫu nhà cấp 4 nông thôn này thường được sắp xếp hợp lý, đảm bảo không gian riêng tư cho các thành viên trong gia đình mà vẫn giữ được sự thông thoáng, thoải mái. Ngoài ra, kiểu nhà này cũng dễ dàng kết hợp sân vườn hoặc tiểu cảnh, tạo nên không gian sống gần gũi với thiên nhiên, lý tưởng cho những gia đình yêu thích cuộc sống yên bình, giản dị.

Mẫu nhà cấp 4 mái Thái 3 phòng ngủ ở nông thôn với gam màu trắng tươi tắn (Nguồn: Internet)

Mẫu nhà cấp 4 mái Thái 3 phòng ngủ đẹp với khoảng sân rộng ở nông thôn (Nguồn: Internet)

Mẫu nhà cấp 4 mái Thái 3 phòng ngủ đẹp, sang trọng, đầy đủ tiện nghi (Nguồn: Internet)

Mẫu nhà cấp 4 mái Thái 3 phòng ngủ đẹp, thiết kế truyền thống với cửa gỗ (Nguồn: Internet)

Xây nhà cấp 4 khoảng 150 triệu mái Thái 3 phòng ngủ nông thôn đẹp (Nguồn: Internet)

Bản vẽ nhà cấp 4 3 phòng ngủ 100m2 mái Thái có 1 phòng khách, 1 phòng thờ đẹp, tiết kiệm chi phí nhân công (Nguồn: Internet)

Mẫu nhà cấp 4 nông thôn 250 triệu mái Thái 3 phòng ngủ đẹp, khung cảnh bình yên (Nguồn: Internet)

Mẫu nhà cấp 4 nông thôn 3 phòng ngủ với thiết kế mái Thái đẹp, tân cổ điển (Nguồn: Internet)

Mẫu mặt tiền nhà cấp 4 đẹp hiện đại với mái Thái 3 phòng ngủ ở nông thôn(Nguồn: Internet)
>> >> Tham khảo:
Mẫu nhà cấp 4 mái Thái 3 phòng ngủ hiện đại đang trở thành lựa chọn phổ biến của nhiều gia đình Việt Nam nhờ sự kết hợp giữa phong cách kiến trúc truyền thống và tiện nghi hiện đại. Thiết kế mái Thái không chỉ mang lại vẻ đẹp thanh lịch, tinh tế mà còn giúp ngôi nhà thoáng mát hơn. Với bố trí 3 phòng ngủ khoa học, mẫu nhà này đáp ứng tốt nhu cầu sinh hoạt của gia đình từ 4-6 thành viên, đảm bảo không gian riêng tư và thoải mái cho từng thành viên. Ngoài ra, việc sử dụng các vật liệu hiện đại như tấm xi măng DURAflex và tấm xi măng giả gỗ DURAwood để ốp - lót sàn, tường, vách và trần nhà cũng góp phần giúp không gian sống trở nên tiện nghi và bền đẹp.

Mẫu nhà cấp 4 mái Thái 3 phòng ngủ hiện đại, phổ biến nhất 2026 (Nguồn: Internet)

Mẫu nhà cấp 4 mái Thái 3 phòng ngủ hiện đại với thiết kế chữ L tối ưu không gian (Nguồn: Internet)

Mẫu nhà cấp 4 mái Thái 3 phòng ngủ hiện đại, thiết kế thanh lịch và tinh tế (Nguồn: Internet)

Bản vẽ thiết kế nhà cấp 4 mái Thái 3 phòng ngủ, 1 phòng khách diện tích 120m2 (Nguồn: Internet)

Mẫu nhà cấp 4 mái Thái 3 phòng ngủ hiện đại, nhỏ đẹp với diện tích 100m2 (Nguồn: Internet)

Mẫu nhà cấp 4 mái Thái 3 phòng ngủ hiện đại, phong cách tân cổ điển sang trọng (Nguồn: Internet)
>> Xem thêm:
Mẫu nhà cấp 4 chữ L 3 phòng ngủ mái Thái không chỉ nổi bật với thiết kế hiện đại mà còn tối ưu hóa không gian sử dụng, phù hợp cho các gia đình đông thành viên. Điểm nhấn của kiểu nhà này là sự kết hợp giữa phần mái Thái thanh thoát và hình dáng nhà chữ L thông minh, giúp tạo không gian thoáng đãng và dễ dàng phân chia khu vực chức năng. Với ba phòng ngủ được bố trí hợp lý, mẫu nhà này đảm bảo sự riêng tư cho từng thành viên trong gia đình, đồng thời vẫn giữ được sự kết nối giữa các không gian sinh hoạt chung như phòng khách, bếp và phòng ăn.

Mẫu nhà cấp 4 mái Thái 3 phòng ngủ chữ L đẹp với diện tích 120m2 (Nguồn: Internet)

Mẫu nhà cấp 4 chữ L mái tôn kiểu Thái 3 phòng ngủ đẹp, chi phí 500 triệu (Nguồn: Internet)

Mẫu nhà cấp 4 mái Thái 3 phòng ngủ chữ L đẹp, hiện đại, trang nhã (Nguồn: Internet)

Mẫu nhà cấp 4 chữ L mái Thái 3 phòng ngủ 120m2 có 1 phòng thờ đẹp (Nguồn: Internet)
>> Xem thêm:
Mẫu mặt tiền nhà cấp 4 mái Thái với thiết kế 3 phòng ngủ và sân vườn mang đến sự hài hòa giữa nét đẹp truyền thống và hiện đại. Đặc trưng của kiểu nhà vườn nhỏ đẹp này là phần mái Thái cao ráo, thanh thoát, giúp ngôi nhà trở nên thoáng đãng và sang trọng hơn. Khu vực sân vườn được bố trí khéo léo với cây xanh và tiểu cảnh, tạo không gian sống trong lành, gần gũi với thiên nhiên. Thiết kế mặt tiền thường tập trung vào các chi tiết như hệ cửa gỗ kính lớn, gạch ốp tường hoặc các đường chỉ nổi để tăng tính thẩm mỹ.

Mẫu biệt thự nhà vườn cấp 4 mái Thái 3 phòng ngủ có mặt tiền đẹp, thoáng đãng (Nguồn: Internet)

Mẫu nhà cấp 4 mái Thái 3 phòng ngủ có sân vườn đẹp, thiết kế ấn tượng (Nguồn: Internet)

Mẫu nhà vườn đẹp cấp 4 mái Thái 3 phòng ngủ 120m2 thiết kế sang trọng (Nguồn: Internet)
>> Đọc thêm:
Mẫu nhà cấp 4 mái Thái 3 phòng ngủ với thiết kế gác lửng là lựa chọn lý tưởng cho những gia đình muốn tối ưu không gian sống mà vẫn đảm bảo sự tiện nghi. Phần gác lửng không chỉ gia tăng diện tích sử dụng mà còn tạo điểm nhấn thẩm mỹ cho ngôi nhà. Đặc biệt, các gia chủ nên sử dụng tấm bê tông siêu nhẹ DURAflex hoặc tấm xi măng vân gỗ DURAwood làm tấm lót sàn gác lửng. Với đặc tính bền, nhẹ, chịu lực tốt, và khả năng chịu ẩm vượt trội, các loại tấm xi măng này giúp sàn gác lửng vững chắc, an toàn mà không làm tăng tải trọng tổng thể của công trình. Đặc biệt, tấm xi măng vân gỗ DURAwood còn mang lại vẻ đẹp tự nhiên như gỗ thật, tạo cảm giác ấm cúng và hiện đại cho không gian. Mẫu nhà gác lửng này là lựa chọn hoàn hảo cho những ai yêu thích sự kết hợp giữa thẩm mỹ và tính ứng dụng cao trong thiết kế nội thất.

Mẫu nhà gác lửng 3 phòng ngủ đầy đủ tiện nghi giá 500 triệu (Nguồn: Internet)

Mẫu mặt tiền nhà cấp 4 gác lửng mái Thái 3 phòng ngủ 100m2 đẹp, hiện đại (Nguồn: Internet)
>> Xem thêm:
Mẫu nhà cấp 4 đẹp mái Thái 3 phòng ngủ lợp ngói không chỉ mang lại vẻ đẹp sang trọng mà còn đảm bảo tính tiện nghi trong sinh hoạt. Với bố cục hợp lý, ngôi nhà thường được chia thành phòng khách rộng rãi, 3 phòng ngủ thoải mái và khu vực bếp ăn ấm cúng. Mẫu nhà mái ngói này phù hợp cho các gia đình từ 4-6 thành viên, đặc biệt là ở các khu vực nông thôn và ngoại ô.

Mẫu nhà cấp 4 mái Thái 3 phòng ngủ lợp ngói đỏ truyền thống, cổ điển (Nguồn: Internet)

Mẫu nhà cấp 4 mái Thái 3 phòng ngủ lợp ngói giúp mát mẻ vào mùa hè và ấm áp vào mùa đông (Nguồn: Internet)

Mẫu nhà cấp 4 mái Thái 3 phòng ngủ lợp ngói 120m2 có 1 phòng thờ đẹp, giá 500 triệu (Nguồn: Internet)

Các mẫu nhà cấp 4 mái Thái 3 phòng ngủ lợp ngói 100m2, 100m2 thiết kế đẹp, hiện đại (Nguồn: Internet)
>> Xem thêm:
Mẫu nhà cấp 4 mái Thái 3 phòng ngủ với mái lợp bằng tôn không chỉ giúp tiết kiệm chi phí thi công mà còn mang lại vẻ đẹp hiện đại, trẻ trung. Tuy nhiên, trong những ngày hè oi bức, việc cách nhiệt cho không gian sống trở nên vô cùng quan trọng. Để tối ưu hóa khả năng làm mát, bạn có thể sử dụng giải pháp vách cách nhiệt và cách âm Saint-Gobain, bao gồm tấm DURAflex, kết hợp với khung xương Vĩnh Tường và bông cách nhiệt Saint-Gobain Isover, giúp giữ cho ngôi nhà luôn mát mẻ và yên tĩnh.

Mẫu nhà cấp 4 đẹp giá rẻ 100 triệu mái Thái 3 phòng ngủ lợp tôn đẹp, tiết kiệm chi phí (Nguồn: Internet)

Mẫu nhà cấp 4 3 phòng ngủ 500 triệu mái Thái lợp tôn thiết kế hiện đại (Nguồn: Internet)
>> Tham khảo thêm:
Mẫu nhà cấp 4 mái Thái 3 phòng ngủ 1 phòng thờ thường được thiết kế hài hòa, đáp ứng nhu cầu sử dụng và thẩm mỹ của gia đình. Phòng khách thường được đặt ở vị trí trung tâm, ngay gần cửa chính, tạo không gian tiếp đón ấm cúng. Bên cạnh đó, phòng thờ được bố trí trang trọng, gần phòng khách để thuận tiện cho việc cúng kiếng. Các phòng ngủ được thiết kế riêng biệt, đảm bảo không gian nghỉ ngơi yên tĩnh, mang lại sự thoải mái cho các thành viên trong gia đình. Mẫu nhà này không chỉ tiện nghi mà còn phù hợp với nhiều phong cách sống khác nhau. Ngoài ra, các gia chủ cũng nên lắp đặt các vách ngăn phòng ngủ, vách ngăn phòng khách, vách ngăn phòng thờ,... để phân chia không gian và đảm bảo sự riêng tư của mỗi phòng.

Mẫu nhà cấp 4 mái Thái 3 phòng ngủ 1 phòng thờ bố trí khoa học (Nguồn: Internet)

Mẫu nhà cấp 4 mái Thái 3 phòng ngủ 1 phòng thờ 120m2 đẹp, tối ưu không gian (Nguồn: Internet)
>> Xem thêm:
Mẫu nhà cấp 4 mái Thái 3 phòng ngủ 1 phòng khách mang đến vẻ đẹp thanh thoát, hiện đại và dễ dàng phù hợp với nhiều phong cách nội thất khác nhau. Các phòng ngủ được bố trí hợp lý, mang lại sự riêng tư và tiện nghi cho từng thành viên trong gia đình. Phòng khách rộng rãi, kết hợp với không gian mở, giúp ngôi nhà luôn thoáng đãng và đón được nhiều ánh sáng tự nhiên. Mẫu nhà cấp 4 mái Thái này không chỉ tối ưu hóa công năng sử dụng mà còn là lựa chọn phù hợp cho những gia đình muốn sở hữu một ngôi nhà đẹp, bền vững với chi phí hợp lý.

Mẫu nhà cấp 4 mái Thái 3 phòng ngủ 1 phòng khách sở hữu vẻ đẹp thanh thoát, hiện đại (Nguồn: Internet)

Mẫu nhà cấp 4 mái Thái 3 phòng ngủ 1 phòng khách đẹp, gần gũi với thiên nhiên (Nguồn: Internet)

Mẫu nhà cấp 4 mái Thái đẹp, sang trọng, bề thế (Nguồn: Internet)
>> Đọc thêm:
Mẫu nhà cấp 4 mái Thái với diện tích 100m2 là sự lựa chọn lý tưởng cho những gia đình cần một không gian sống thoải mái nhưng vẫn tiết kiệm chi phí. Với thiết kế 3 phòng ngủ, ngôi nhà này mang lại sự tiện nghi, đầy đủ công năng cho các thành viên. Để tối ưu hóa diện tích và giúp không gian sống trở nên thông thoáng hơn, việc sử dụng cửa sổ kính hiện đại là một giải pháp hoàn hảo, giúp tăng cường ánh sáng tự nhiên và tạo cảm giác rộng rãi cho ngôi nhà.

Nhà cấp 4 mái Thái 3 phòng ngủ 100m2 ở nông thôn đẹp với gam màu trắng chủ đạo (Nguồn: Internet)

Mẫu nhà cấp 4 đẹp 5x20 mái Thái 3 phòng ngủ đầy đủ tiện nghi (Nguồn: Internet)

Nhà cấp 4 mái Thái 3 phòng ngủ 100m2 đẹp, có khoảng sân rộng để đỗ ô tô (Nguồn: Internet)
>> Đọc thêm:
Mẫu nhà cấp 4 mái Thái với diện tích 120m2 và thiết kế 3 phòng ngủ là sự lựa chọn hoàn hảo cho các gia đình mong muốn không gian sống thoải mái và hiện đại. Các phòng ngủ được bố trí khoa học, rộng rãi, tạo không gian riêng tư cho từng thành viên trong gia đình. Phòng khách và bếp liên thông, mang đến không gian sinh hoạt chung thoải mái và tiện nghi. Đặc biệt, với diện tích 120m2, ngôi nhà đủ rộng để gia chủ có thể thiết kế thêm khu vực sân vườn hoặc gara ô tô. Mẫu thiết kế này không chỉ phù hợp với gia đình nhỏ mà còn đáp ứng nhu cầu sinh hoạt của những gia đình có đông thành viên.

Mẫu thiết kế biệt thự nhà cấp 4 mái Thái 3 phòng ngủ 120m2 1 phòng thờ trang nghiêm, chuẩn phong thủy (Nguồn: Internet)

Mẫu 120m2 nhà cấp 4 mái Thái 3 phòng ngủ 1 phòng thờ nhỏ xinh (Nguồn: Internet)

Mẫu 120m2 nhà cấp 4 mái Thái 3 phòng ngủ chữ L đẹp, đầy đủ công năng (Nguồn: Internet)
>> Xem thêm:
Mẫu nhà cấp 4 giá 500 triệu mái Thái có 3 phòng ngủ đang trở thành lựa chọn phổ biến cho nhiều gia đình hiện nay. Thiết kế này không chỉ tối ưu về không gian sống mà còn đảm bảo tính thẩm mỹ và công năng sử dụng. Với kiểu mái Thái đặc trưng, ngôi nhà có thể chịu được các tác động của thời tiết, đặc biệt là mưa bão. Các phòng ngủ được bố trí hợp lý, tạo không gian riêng tư và thoải mái cho các thành viên trong gia đình. Nhờ vào chi phí hợp lý, mẫu nhà này phù hợp với những gia đình trẻ hoặc những ai muốn sở hữu ngôi nhà vừa đẹp, vừa tiết kiệm.

Mẫu nhà cấp 4 mái Thái 3 phòng ngủ 500 triệu đẹp, hiện đại, sang trọng (Nguồn: Internet)

Mẫu nhà cấp 4 mái Thái 3 phòng ngủ 500 triệu nhỏ đẹp với diện tích 100m2 (Nguồn:Internet)

Mẫu nhà cấp 4 mái Thái 3 phòng ngủ 500 triệu 100m2 thiết kế sang trọng với hệ cửa gỗ (Nguồn: Internet)

Xây nhà 500 triệu ở nông thôn cấp 4 mái Thái 3 phòng ngủ 120m2 đẹp, đơn giản, hài hòa (Nguồn: Internet)
>> Đọc thêm:
Chi phí xây nhà cấp 4 mái Thái 3 phòng ngủ có sự thay đổi tùy thuộc vào nhiều yếu tố khác nhau, bao gồm:
Ước tính chi phí:
Ví dụ: Với một ngôi nhà cấp 4 mái Thái 3 phòng ngủ có diện tích xây dựng 100m2, chi phí ước tính có thể như sau:
Tổng chi phí: 600.000.000 VNĐ
Lưu ý: Đây chỉ là con số ước tính tham khảo, chi phí thực tế có thể thay đổi tùy thuộc vào các yếu tố trên. Để có báo giá chính xác, bạn nên liên hệ với các đơn vị thi công chuyên nghiệp.
Nếu bạn muốn tối ưu chi phí mà vẫn đảm bảo chất lượng, tấm bê tông siêu nhẹ DURAflex là lựa chọn lý tưởng cho công trình của bạn.

Dự trù chi phí xây nhà cấp 4 mái Thái 3 phòng ngủ từ 500 - 600 triệu (Nguồn: Internet)
>> >> Tìm hiểu thêm:
Khi xây dựng nhà cấp 4 mái Thái 3 phòng ngủ, điều đầu tiên bạn cần làm là xác định phong cách thiết kế và tính toán ước chừng chi phí thi công. Việc này giúp bạn chủ động về tài chính, tránh tình trạng vượt ngân sách, đồng thời lựa chọn bản thiết kế, màu sắc và cách bố trí không gian sao cho hợp lý và hài hòa.
Nếu bạn có ý định thiết kế sân vườn xung quanh ngôi nhà, hãy lựa chọn cây cối có màu sắc, kiểu dáng phù hợp với tổng thể ngôi nhà. Hơn nữa, việc kết hợp yếu tố phong thủy là rất quan trọng để lựa chọn hướng nhà, màu sắc cũng như cách bố trí nội thất phù hợp với mệnh, mang lại tài lộc và may mắn.
Điều không thể thiếu là chọn một đơn vị thi công uy tín cùng với vật liệu xây dựng chất lượng, đảm bảo độ bền và tính thẩm mỹ cho ngôi nhà. Sử dụng tấm xi măng DURAflex làm ốp tường trang trí, vách ngăn ngoài trời - trong nhà, tấm lót sàn, lót mái chống nóng,... sẽ giúp căn nhà của bạn trở nên vững chắc, bền đẹp và tiện nghi theo thời gian.

Khi xây dựng nhà cấp 4 mái Thái 3 phòng ngủ, bạn cần xác định phong cách và ước chừng chi phí thi công (Nguồn: Internet)
>> Tham khảo thêm:

Một số yếu tố cần lưu ý khi thiết kế nhà cấp 4 mái Thái 3 phòng ngủ (Nguồn: Internet)
>> Xem thêm:
Chi phí thiết kế, thi công nhà gác lửng 3 phòng ngủ bao gồm 1 trệt, 1 tầng, 1 gác lửng có giá dao động từ 1,02 - 1,05 tỷ.
Chi phí xây nhà cấp 4 3 phòng ngủ trọn gói có giá 4.250.000 - 5.500.000 VNĐ/m2. Trong đó, giá thi công phần thô nằm trong khoảng 2.550.000 - 3.150.000 VNĐ/m2.
Chi phí xây nhà cấp 4 diện tích 70m2 có giá từ 430.000.000 - 500.000.000 VNĐ/m2.
Chi phí xây nhà cấp 4 diện tích 120m2 có giá từ 700.000.000 - 900.000.000 VNĐ/m2.
Với những thông tin trên, hy vọng bạn đã có những gợi ý hữu ích để lựa chọn cho mình một mẫu nhà cấp 4 mái Thái 3 phòng ngủ ưng ý. Hãy kết hợp với ý tưởng của riêng mình để tạo nên một không gian sống thật thoải mái và ấm cúng cho gia đình.
Đánh giá và nhận xét
Đánh giá trung bình
0/5
5
4
3
2
1
Chia sẻ và nhận xét về bài viết
Chia sẻ và nhận xét về bài viết
Bài viết chưa có đánh giá nào