
DURAflex đăng vào lúc 02/03/2026 - 14:48
Nhà cấp 4 mái Nhật 4 phòng ngủ đang là lựa chọn hàng đầu trong xu hướng thiết kế kiến trúc nhà ở hiện đại. Mẫu nhà này không chỉ tạo nên không gian sống rộng rãi mà còn mang đến sự tiện nghi và thoải mái cho các gia đình có đông thành viên. Hãy cùng DURAflex khám phá những mẫu nhà cấp 4 mái Nhật với 4 phòng ngủ đẹp, đơn giản, hiện đại, giá rẻ nhất hiện nay trong bài viết dưới đây nhé!
Nhà cấp 4 mái Nhật 4 phòng ngủ là sự kết hợp tinh tế giữa kiến trúc nhà cấp 4 đơn giản, thiết kế mái Nhật thanh thoát và cách sắp xếp 4 phòng ngủ hợp lý, tạo nên không gian sống thoải mái, tiện nghi cho cả gia đình. Thiết kế mái Nhật có độ dốc nhẹ kết hợp với việc lợp ngói mang lại nét đẹp mộc mạc, truyền thống nhưng vẫn toát lên sự thanh thoát và hiện đại. Với 4 phòng ngủ tiện nghi, mẫu nhà này là lựa chọn lý tưởng cho những gia đình đông thành viên hoặc nhiều thế hệ cùng chung sống.

Mẫu nhà cấp 4 mái Nhật 4 phòng ngủ là sự giao thoa giữa kiến trúc đơn giản, kiểu mái thanh thoát và sự tiện nghi, rộng rãi (Nguồn: Internet)
>> Xem thêm:
Đặc điểm của nhà cấp 4 mái Nhật 4 phòng ngủ

Nhà cấp 4 mái Nhật 4 phòng ngủ thường được xây dựng trên mảnh đất có diện tích từ 100m2 (Nguồn: Internet)
>> Tìm hiểu thêm:
Với 4 phòng ngủ rộng rãi, nhà cấp 4 mái Nhật là giải pháp hoàn hảo cho các gia đình nhiều thế hệ, mang đến không gian sống thoải mái và tiện nghi. Kiểu nhà này có nhiều ưu điểm nổi bật sau:
Để tăng thêm tính thẩm mỹ và tiện nghi cho nhà cấp 4 mái Nhật 4 phòng ngủ, gia chủ có thể cân nhắc sử dụng vật liệu cao cấp như tấm xi măng DURAflex và tấm xi măng vân gỗ DURAwood để ốp tường trang trí, lót sàn hoặc lót mái chống nóng. Không chỉ mang đến vẻ đẹp hiện đại, sang trọng mà các sản phẩm này còn có độ bền vượt trội, khả năng chịu ẩm, chống mối mọt, dễ dàng vệ sinh giúp tăng độ bền cho công trình.

Ngôi nhà cấp 4 4 phòng ngủ 400 triệu với thiết kế mái Nhật đẹp, tiện nghi (Nguồn: Internet)
>> Xem thêm:
Dưới đây là một số mẫu nhà cấp 4 mái Nhật 4 phòng ngủ được thiết kế theo nhiều phong cách khác nhau, đáp ứng đa dạng nhu cầu thẩm mỹ, công năng và ngân sách mà các gia chủ có thể tham khảo:
Nhà mái Nhật 1 tầng 4 phòng ngủ đang trở thành xu hướng phổ biến ở các vùng nông thôn hiện nay. Thiết kế này không chỉ tận dụng tối đa diện tích đất mà còn tạo ra một không gian sống rộng rãi, thoáng đãng, gần gũi với thiên nhiên. Phần mái Nhật được thiết kế với độ dốc vừa phải, giúp thoát nước mưa hiệu quả và mang lại vẻ đẹp thanh lịch. Mái thường được lợp ngói màu xám, xanh hoặc đỏ, tùy thuộc vào sở thích gia chủ.

Mẫu nhà cấp 4 mái Nhật 4 phòng ngủ ở nông thôn giản dị (Nguồn: Internet)

Mẫu nhà cấp 4 nông thôn 250 triệu mái Nhật 4 phòng ngủ đầy đủ tiện nghi (Nguồn: Internet)

Bản vẽ mẫu nhà cấp 4 nông thôn mái Nhật 4 phòng ngủ (Nguồn: Internet)
>> Xem thêm:
Mẫu nhà cấp 4 mái Nhật 4 phòng ngủ là sự kết hợp hài hòa giữa nét truyền thống và kiến trúc hiện đại. Hệ thống cửa sổ kính lớn giúp tận dụng ánh sáng tự nhiên, mở rộng không gian và kết nối với thiên nhiên. Ngoài ra, khu vực sân vườn còn được bố trí cây xanh, tiểu cảnh và góc nghỉ ngơi ngoài trời, mang đến không gian thư giãn lý tưởng cho cả gia đình.

Mẫu nhà cấp 4 mái Nhật 4 phòng ngủ, 1 phòng thờ hiện đại (Nguồn: Internet)

Xây nhà cấp 4 khoảng 150 triệu thiết kế mái Nhật 4 phòng ngủ hiện đại, ấn tượng (Nguồn: Internet)

Mẫu nhà cấp 4 mái Nhật 4 phòng ngủ hiện đại, ấn tượng (Nguồn: Internet)
>> Đọc thêm:
Ngôi nhà cấp 4 mái Nhật 4 phòng ngủ thiết kế theo phong cách tân cổ điển kết hợp tinh tế giữa nét đẹp truyền thống và hiện đại. Phong cách tân cổ điển này được thể hiện qua các chi tiết trang trí tinh xảo như cột trụ, phào chỉ, và các đường nét uốn lượn trên mặt tiền, mang đến vẻ đẹp sang trọng, đẳng cấp. Nội thất bên trong ngôi nhà đẹp này được bài trí tỉ mỉ, sử dụng gam màu trầm ấm, mang đến cảm giác ấm cúng.

Mẫu nhà cấp 4 mái Nhật 4 phòng ngủ tân cổ điển có các chi tiết hoa văn tinh xảo (Nguồn: Internet)

Mẫu nhà cấp 4 đẹp 5x20 mái Nhật 4 phòng ngủ với phong cách tân cổ điển (Nguồn: Internet)
>> Có thể bạn quan tâm:
Tùy theo diện tích xây dựng lớn hay nhỏ, các mẫu nhà cấp 4 mái Nhật 4 phòng ngủ cũng được biến tấu linh hoạt nhằm tối ưu công năng và đảm bảo tính thẩm mỹ.
Mẫu nhà cấp 4 mái Nhật 4 phòng ngủ có diện tích 12x13m thường có gam màu trắng chủ đạo tạo cảm giác sang trọng và gần gũi. Không gian bên trong nhà được bố trí hài hòa, đảm bảo riêng tư và tiện nghi, phù hợp cho gia đình từ 4-6 thành viên.
Với mong muốn tạo nên những không gian sống vừa đẹp mắt vừa tiện nghi, nhiều chủ nhà đã lựa chọn tấm bê tông đúc sẵn DURAflex làm vách ngăn phòng khách, vách ngăn phòng thờ cho nhà cấp 4 mái Nhật 4 phòng ngủ. Việc sử dụng tấm DURAflex thay thế tường xi măng truyền thống sẽ giúp tiết kiệm chi phí nguyên vật liệu và xây dựng đáng kể. Đặc biệt, sản phẩm còn có độ bền cao, có khả năng chống cháy, cách nhiệt, cách âm tường nhà cực kỳ tốt, tạo không gian yên tĩnh giữa các phòng với nhau.

Nhà mái ngói cấp 4 có 4 phòng ngủ 12x13m với thiết kế mái Nhật hiện đại (Nguồn: Internet)

Mẫu nhà cấp 4 mái Nhật 4 phòng ngủ diện tích 12x13m bề thế, sang trọng (Nguồn: Internet)
>> Xem thêm:
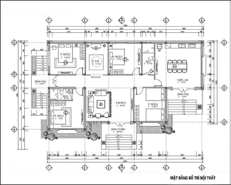
Mẫu nhà cấp 4 mái Nhật 4 kích thước 12x15m được thiết kế tinh tế với 4 phòng ngủ, 1 phòng thờ, 1 phòng khách và 1 phòng bếp. Phòng khách thường nằm ở trung tâm ngôi nhà, liền kề với phòng bếp để tạo sự liên kết trong sinh hoạt gia đình. Bốn phòng ngủ được sắp xếp linh hoạt, đảm bảo sự riêng tư và tiện lợi, phù hợp với nhu cầu từng thành viên.
Mặt tiền nhà cấp 4 đẹp hiện đại rộng 12m tạo điều kiện cho việc thiết kế cửa chính lớn và cửa sổ nhiều cánh, giúp đón ánh sáng tự nhiên và gió trời, tạo không gian thoáng đãng. Hệ thống cửa sổ kính lớn giúp căn nhà luôn tràn ngập ánh sáng tự nhiên.

Mẫu nhà cấp 4 mái Nhật 4 phòng ngủ, 1 phòng thờ diện tích 12x15m (Nguồn: Internet)

Bản vẽ thiết kế nhà cấp 4 có 4 phòng ngủ kích thước 12x15m (Nguồn: Internet)
>> Xem thêm:
Với diện tích 100m2, mẫu nhà cấp 4 đẹp mái Nhật 4 phòng ngủ thường có hình dáng chữ nhật và hai mặt tiền rộng mang đến vẻ đẹp hiện đại, vừa đáp ứng tối đa nhu cầu sinh hoạt của gia đình. Hai mặt tiền rộng thoáng không chỉ mang đến vẻ đẹp hiện đại mà còn tối ưu hóa khả năng đón nắng, gió. Thiết kế này đặc biệt phù hợp với những lô đất rộng hoặc lô góc.

Mẫu nhà cấp 4 mái Nhật 4 phòng ngủ 100m2 độc đáo, mới nhất 2026 (Nguồn: Internet)

Mẫu nhà cấp 4 đẹp giá rẻ 300 triệu mái Nhật 4 phòng ngủ đơn giản (Nguồn: Internet)
>> Khám phá thêm:
Trên diện tích 120m², ngôi nhà cấp 4 mái Nhật có 4 phòng ngủ là tổ ấm lý tưởng cho gia đình từ 4-5 thành viên. Với thiết kế hiện đại, tận dụng tối đa không gian, ngôi nhà mang đến không gian sống tiện nghi, thoải mái cho mọi người. Bạn có thể sử dụng tấm bê tông nhẹ DURAflex để làm vật liệu lót mái, lót sàn hoặc ốp tường nội, ngoại thất. Với khả năng bền bỉ, chịu ẩm, chống cháy và cách nhiệt vượt trội, DURAflex không chỉ bảo vệ ngôi nhà của bạn luôn được mới mẻ mà còn mang đến vẻ đẹp hiện đại, sang trọng.

Mẫu nhà cấp 4 mái Nhật 4 phòng ngủ 120m2 với thiết kế thanh lịch, hiện đại (Nguồn: Internet)

Mẫu nhà cấp 4 mái Nhật 4 phòng ngủ 120m2 rộng rãi, hài hòa với thiên nhiên (Nguồn: Internet)
>> Tìm đọc thêm:
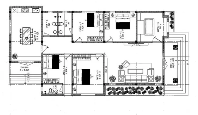
Nhà cấp 4 mái Nhật 4 phòng ngủ trên diện tích 150m² là lựa chọn lý tưởng cho những gia đình đông thành viên. Không gian sống rộng rãi, được thiết kế hiện đại, đầy đủ tiện nghi và thoải mái. Mỗi khu vực trong nhà như phòng khách, bếp, phòng ăn, phòng ngủ, và phòng tắm đều được bố trí hợp lý. Ngoài ra, ngôi nhà còn sở hữu sân vườn rộng lớn, mang lại không khí trong lành và không gian thư giãn gần gũi với thiên nhiên, giúp cả gia đình tận hưởng cuộc sống xanh và yên bình.

Mẫu nhà 1 tầng 4 phòng ngủ mái Nhật 150m2 đẹp, hiện đại, thông thoáng (Nguồn: Internet)

Mẫu nhà 1 tầng 4 phòng ngủ mái Nhật 150m2 có sân vườn xinh xắn (Nguồn: Internet)
>> Xem thêm:
Mẫu nhà mái Nhật 1 tầng 4 phòng ngủ 180m2 là lựa chọn cân bằng giữa diện tích vừa phải và nhu cầu sinh hoạt đầy đủ cho gia đình nhiều thế hệ. Thiết kế tập trung vào sự gọn gàng trong bố cục, các phòng ngủ được sắp xếp hợp lý quanh không gian sinh hoạt chung, đảm bảo thuận tiện sử dụng mà vẫn giữ được sự thoải mái. Quy mô 180m² cũng giúp công trình dễ kiểm soát chi phí xây dựng, đồng thời vẫn đủ điều kiện để kết hợp hiên nhà hoặc khoảng xanh, mang lại không gian sống dễ chịu và hài hòa.

Mẫu nhà cấp 4 mái Nhật 4 phòng ngủ diện tích 180m² phù hợp quỹ đất vừa (Nguồn: Internet)

Mẫu nhà mái Nhật 1 tầng 4 phòng ngủ 180m2 kết hợp không gian xanh, thoáng mát (Nguồn: Internet)
>> Đọc thêm:
Với diện tích trên 200m², mẫu nhà mái Nhật 1 tầng 4 phòng ngủ này phù hợp với những gia đình có quỹ đất rộng, ưu tiên không gian sống thoải mái và tiện nghi. Mặt bằng được bố trí trải ngang, các phòng chức năng sắp xếp khoa học, đảm bảo sự riêng tư nhưng vẫn đem lại sự kết hợp hài hòa. Thiết kế này không chỉ đáp ứng tốt nhu cầu sinh hoạt của gia đình đông thành viên mà còn dễ dàng kết hợp sân vườn, hiên nhà hoặc gara nhằm tối ưu chất lượng sống lâu dài.

Mẫu nhà mái Nhật 1 tầng 4 phòng ngủ diện tích trên 200m2 mang đến sự tiện nghi và riêng tư (Nguồn: Internet)

Mặt bằng nhà mái Nhật 1 tầng 4 phòng ngủ diện tích 200m2 tối ưu cho gia đình đông thành viên (Nguồn: Internet)
>> Tham khảo:
Những mẫu nhà cấp 4 mái Nhật 4 phòng ngủ theo công năng xây dựng dưới đây mang đến nhiều giải pháp bố trí khoa học, tiện nghi và đáp ứng tốt nhu cầu sử dụng thực tế mà các quý khách hàng có thể tham khảo thêm.
Nhà cấp 4 mái Nhật 4 phòng ngủ có gác lửng thông minh, hiện đại giúp tối ưu hóa không gian sử dụng, đặc biệt ở những ngôi nhà có diện tích hạn chế. Phần gác lửng giúp tăng thêm diện tích sử dụng mà không làm tăng chiều cao tổng thể của ngôi nhà. Không gian này thường được tận dụng làm phòng thờ, phòng ngủ, phòng làm việc.

Mẫu nhà gác lửng mái Nhật 4 phòng ngủ giá 500 triệu (Nguồn: Internet)

Mẫu nhà cấp 4 mái Nhật 4 phòng ngủ tận dụng không gian gác lửng làm phòng thờ (Nguồn: Internet)

Nhà cấp 4 gác lửng 200 triệu mái Nhật 4 phòng ngủ hiện đại (Nguồn: Internet)
>> Xem thêm:
Nhà cấp 4 mái Nhật 4 phòng ngủ kết hợp thiết kế sân vườn làm tăng thêm vẻ tươi mát, gần gũi với thiên nhiên. Khu vực sân vườn có thể dùng để trồng cây, thảm cỏ, và lối đi lát đá tự nhiên. Gia chủ có thể tận dụng để tổ chức tiệc ngoài trời hoặc làm nơi vui chơi cho trẻ nhỏ. Phần hiên nhà thường được mở rộng, kết hợp với các khung cửa kính lớn, vừa tận dụng ánh sáng tự nhiên, vừa tạo sự liên kết hài hòa giữa không gian bên trong và bên ngoài.

Mẫu nhà cấp 4 mái Nhật 4 phòng ngủ đẹp có sân vườn rộng (Nguồn: Internet)

Mẫu nhà cấp 4 đẹp giá rẻ 100 triệu có 4 phòng ngủ mái Nhật nổi bật với không gian sân vườn xanh mát (Nguồn: Internet)
>> Xem thêm:
Thiết kế nhà cấp 4 mái Nhật 4 phòng ngủ tích hợp gara để xe ô mang đến sự tiện nghi và đẳng cấp cho không gian sống. Phần gara thường được đặt cạnh nhà, có mái che hoặc thiết kế liền khối với kiến trúc chính, giúp tiết kiệm diện tích và thuận tiện khi sử dụng. Với thiết kế hiện đại và hệ thống tiện ích hoàn hảo, gara không chỉ bảo vệ xe mà còn góp phần làm tăng giá trị thẩm mỹ cho ngôi nhà.

Mẫu nhà cấp 4 mái Nhật 4 phòng ngủ tích hợp gara xe tiện nghi, hiện đại (Nguồn: Internet)

Mẫu nhà cấp 4 mái Nhật 4 phòng ngủ có gara xe đặt bên hông nhà (Nguồn: Internet)
>> Xem thêm:
Nhà cấp 4 với 4 phòng ngủ và 1 phòng thờ thường được thiết kế theo kiểu dáng hiện đại, tối ưu hóa không gian và công năng sử dụng. Phòng thờ, tách biệt hoàn toàn với các khu vực sinh hoạt khác, được thiết kế theo phong cách truyền thống, mang đến cảm giác yên bình và trang nghiêm. Gam màu trầm ấm cùng ánh sáng dịu nhẹ tạo nên một không gian linh thiêng.
Ngoài ra, bốn phòng ngủ cũng được phân chia khoa học, đáp ứng nhu cầu riêng tư của từng thành viên. Khu vực sinh hoạt chung, bao gồm bếp và phòng ăn, được bố trí liền kề, tạo nên không gian ấm cúng và thuận tiện cho các hoạt động gia đình.

Mẫu nhà cấp 4 có 4 phòng ngủ 1 phòng thờ với thiết kế mái Nhật sang trọng (Nguồn: Internet)

Bản vẽ nhà cấp 4 nông thôn 4 phòng ngủ đầy đủ công năng (Nguồn: Internet)
>>> Xem thêm:
Thiết kế nhà cấp 4 mái Nhật 2 mặt tiền phù hợp với những lô đất có diện tích đất khoảng 100m2 trở lên. Với lợi thế 2 mặt tiền, ngôi nhà được bố trí cửa sổ lớn và cửa chính ở cả hai phía, tối ưu hóa khả năng đón gió và ánh sáng tự nhiên mang lại không gian sáng sủa, thoáng đãng.
Bên trong, các phòng ngủ được sắp xếp hợp lý để đảm bảo sự riêng tư và tiện nghi cho từng thành viên trong gia đình. Khu vực phòng khách và bếp thường được kết nối liền mạch, tạo cảm giác rộng rãi. Ngoài ra, với thiết kế 2 mặt tiền, gia chủ có thể tận dụng để tạo không gian sân vườn hoặc bãi đỗ xe ở cả hai phía, tăng thêm tiện ích và vẻ đẹp tổng thể cho ngôi nhà.

Mẫu nhà cấp 4 mái Nhật 4 phòng ngủ 2 mặt tiền thiết kế độc đáo, nổi bật (Nguồn: Internet)

Mẫu nhà cấp 4 mái Nhật 4 phòng ngủ 2 mặt tiền thoáng sáng (Nguồn: Internet)
>> Có thể bạn quan tâm:
Mẫu nhà vườn cấp 4 mái Nhật 4 phòng ngủ được thiết kế hài hòa với thiên nhiên, tạo không gian sống trong lành và yên tĩnh. Sân vườn rộng rãi được trang trí bởi cây xanh, thảm cỏ, hồ nước nhỏ mang đến khung cảnh thư giãn lý tưởng. Bên trong, các phòng được bố trí khoa học, phòng khách và bếp liên thông giúp tối ưu không gian chung. Thiết kế mái Nhật có độ dốc nhẹ, thoát nước tốt, giữ ngôi nhà luôn khô ráo.

Mẫu nhà vườn cấp 4 nông thôn mái Nhật 4 phòng ngủ có không gian xanh mát (Nguồn: Internet)

Mẫu nhà vườn nhỏ đẹp cấp 4 mái Nhật 4 phòng ngủ nổi bật với dàn hoa rực rỡ (Nguồn: Internet)
>> Đọc thêm:
Thiết kế biệt thự cấp 4 mái Nhật với 4 phòng ngủ mang đến một không gian sống đẳng cấp và sang trọng. Kiểu nhà này thường được xây dựng trên diện tích rộng rãi, bố trí đầy đủ các phòng chức năng như phòng khách, phòng ăn, bếp, phòng ngủ, và phòng tắm, tạo sự thoải mái và tiện lợi trong sinh hoạt. Ngoại thất biệt thự được chú trọng với sân vườn rộng, tiểu cảnh xanh mát, cùng hệ thống cửa kính lớn giúp tối ưu ánh sáng tự nhiên và kết nối không gian trong nhà với thiên nhiên bên ngoài. Ngoài ra, ngôi biệt thự còn có thể tích hợp gara ô tô và khu vực thư giãn riêng, đáp ứng mọi nhu cầu sử dụng của gia đình.

Mẫu biệt thự nhà vườn cấp 4 mái Nhật 4 phòng ngủ sang trọng, đẳng cấp (Nguồn: Internet)

Mẫu biệt thự mini cấp 4 mái Nhật 4 phòng ngủ đẹp, lộng lẫy (Nguồn: Internet)
>> Xem thêm:
Mỗi mức ngân sách sẽ phù hợp với một phong cách và quy mô xây dựng riêng, dưới đây là những mẫu nhà mái Nhật 1 tầng 4 phòng ngủ đáng tham khảo theo chi phí đầu tư:
Mẫu nhà cấp 4 mái Nhật 4 phòng ngủ với chi phí khoảng 400 triệu đồng thường được thiết kế đơn giản, tinh tế và tiện nghi. Thiết kế tập trung vào sự tối giản, mang đến một không gian sống thoải mái cho cả gia đình. Bố cục thông minh với phòng khách, bếp ăn liên thông tạo cảm giác rộng rãi, ấm cúng. Đây là lựa chọn hoàn hảo cho những gia đình trẻ muốn xây dựng tổ ấm nhưng có ngân sách hạn chế.

Mẫu nhà cấp 4 mái Nhật 4 phòng ngủ, 1 phòng khách và thờ với giá 400 triệu (Nguồn: Internet)

Mẫu nhà cấp 4 có 4 phòng ngủ 400 triệu với thiết kế mái Nhật ít dốc, nhẹ nhàng, thanh thoát (Nguồn: Internet)
>> Xem thêm:
Ngôi nhà cấp 4 mái Nhật 4 phòng ngủ với kinh phí 500 triệu đồng thường được thiết kế theo phong cách hiện đại, tối giản, kết hợp hài hòa giữa yếu tố thẩm mỹ và công năng. Vật liệu xây dựng thường được chọn lựa kỹ lưỡng để tối ưu chi phí mà vẫn đảm bảo chất lượng. Bên cạnh các vật liệu truyền thống như gạch, xi măng, sắt, thép, ngày càng có nhiều gia đình lựa chọn sử dụng các loại vật liệu hiện đại như tấm bê tông siêu nhẹ DURAflex hoặc tấm xi măng giả gỗ DURAwood cho các hạng mục về tường, sàn cho mẫu nhà cấp 4 giá 500 triệu mái Nhật 4 phòng ngủ này. Với nhiều ưu điểm vượt trội như nhẹ, bền, chịu ẩm, chống mối mọt, sản phẩm mang đến sự bền vững và vẻ đẹp hoàn hảo cho ngôi nhà của bạn.

Xây nhà 500 triệu ở nông thôn mái Nhật có chóp hình tứ giác cao ở phần đỉnh (Nguồn: Internet)

Mẫu nhà cấp 4 mái Nhật 4 phòng ngủ đơn giản, hiện đại nhưng không kém phần tinh tế (Nguồn: Internet)
>> Xem thêm:
Với ngân sách từ 500 triệu đến 1 tỷ đồng, gia chủ có thể lựa chọn nhiều mẫu nhà cấp 4 mái Nhật 4 phòng ngủ sở hữu thiết kế hiện đại, công năng tối ưu và tính thẩm mỹ cao. Ở mức đầu tư này, không gian phòng khách, bếp ăn và các phòng ngủ thường được bố trí khoa học, diện tích rộng rãi, đảm bảo sự riêng tư nhưng vẫn tạo sự kết nối chung cho cả gia đình. Thiết kế mái Nhật giúp ngôi nhà thoáng mát, chống nóng hiệu quả và phù hợp với điều kiện khí hậu Việt Nam, đồng thời dễ dàng kết hợp sân vườn hoặc khoảng hiên thư giãn. Ngoài phần xây dựng cơ bản, ngân sách này còn cho phép gia chủ linh hoạt lựa chọn vật liệu hoàn thiện và nội thất ở mức khá, hướng đến không gian sống tiện nghi, bền vững và thoải mái lâu dài. Đây là phân khúc chi phí được nhiều gia đình trẻ và gia đình nhiều thế hệ ưu tiên nhờ khả năng cân bằng tốt giữa chi phí đầu tư và chất lượng sử dụng.

Mẫu nhà cấp 4 mái Nhật 4 phòng ngủ 500 triệu - 1 tỷ có sân vườn rộng rãi, thoáng mát (Nguồn: Internet)

Mẫu nhà cấp 4 mái Nhật 4 phòng ngủ 500 triệu - 1 tỷ có sân vườn xanh mát, thoáng đãng (Nguồn: Internet)

Mẫu nhà cấp 4 mái Nhật 4 phòng ngủ 700 triệu đầy đủ tiện nghi và thoải mái (Nguồn: Internet)

Mẫu nhà cấp 4 mái Nhật 4 phòng ngủ 800 triệu đẹp, tối ưu lưu thông gió và ánh sáng (Nguồn: Internet)
Để xây dựng nhà cấp 4 mái Nhật 4 phòng ngủ phù hợp ngân sách, gia chủ cần dự trù chi phí theo từng hạng mục cụ thể ngay từ đầu. Việc phân bổ rõ ràng giúp kiểm soát tài chính hiệu quả, hạn chế phát sinh và đảm bảo tiến độ thi công. Dưới đây là các khoản chi phí cơ bản thường gặp khi xây dựng mẫu nhà này:
1. Chi phí thiết kế kiến trúc: Thường dao động từ 100.000 - 150.000 đồng/m², bao gồm hồ sơ bản vẽ 2D, phối cảnh 3D và phương án bố trí mặt bằng tổng thể. Với diện tích phổ biến từ 100 - 150m², tổng chi phí thiết kế ước tính khoảng 10 –-22 triệu đồng, tùy vào mức độ chi tiết, phong cách kiến trúc và yêu cầu cá nhân hóa của gia chủ.
2. Chi phí thi công phần thô: Bao gồm móng, cột, dầm, tường, sàn, hệ mái và chi phí nhân công xây dựng. Đơn giá hiện nay thường nằm trong khoảng 3.200.000 – 3.800.000 đồng/m². Với quy mô nhà từ 100 – 150m², chi phí thi công phần thô dự kiến khoảng 300 – 380 triệu đồng, tùy điều kiện nền đất và vật liệu sử dụng.
3. Chi phí hoàn thiện nội – ngoại thất: Đây là hạng mục chiếm tỷ trọng lớn trong tổng ngân sách, bao gồm trát tường, sơn nước, ốp lát, thiết bị vệ sinh, hệ tủ bếp và các chi tiết trang trí cơ bản. Nếu sử dụng vật liệu hoàn thiện ở mức trung bình khá, chi phí thường dao động từ 5.000.000 – 6.500.000 đồng/m², tương đương khoảng 180 – 235 triệu đồng cho diện tích 100 – 150m².
4. Chi phí lắp đặt cửa, mái và thiết bị: Hệ mái Nhật lợp ngói kết hợp khung kèo có diện tích lớn nên chi phí thường rơi vào khoảng 50 – 120 triệu đồng đối với ngôi nhà khoảng 120m². Bên cạnh đó, gia chủ cần dự trù thêm 30 – 70 triệu đồng cho hệ thống cửa chính, cửa sổ, thiết bị điện nước, chiếu sáng và các thiết bị vệ sinh nhằm đảm bảo công trình hoàn thiện đồng bộ và tiện nghi khi đưa vào sử dụng.
Để xây dựng một ngôi nhà mái Nhật cấp 4 có 4 phòng ngủ hoàn thiện vừa đảm bảo tính thẩm mỹ, công năng, và tiết kiệm chi phí được tốt nhất chủ đầu tư cần lưu ý một số điều sau:

Cần dự trù ngân sách và thời gian xây nhà cấp 4 mái Nhật 4 phòng ngủ (Nguồn: Internet)
Ngoài ra, trong quá trình thiết kế và thi công mẫu nhà 1 tầng 4 phòng ngủ, gia chủ cần lưu ý một số yếu tố quan trọng khác để công trình đạt tính thẩm mỹ cao, bền vững và tối ưu công năng sử dụng:

Lưu ý quan trọng khi thiết kế nhà 1 tầng 4 phòng ngủ diện tích lớn (Nguồn: Internet)
>> Xem thêm:
Việc ưu tiên sử dụng những gam màu sáng trong thiết kế nhà cấp 4 mái Nhật 4 phòng ngủ không chỉ giúp không gian thêm rộng rãi, thoáng đãng mà còn mang đến cảm giác bình yên, nhẹ nhàng. Những gam màu như trắng, be hay xám nhạt được phối hợp tinh tế, tôn lên nét đẹp thanh lịch, tối giản đặc trưng của kiến trúc Nhật.
Nhà cấp 4 mái Nhật 4 phòng ngủ cần phân chia các khu vực chức năng khoa học, tối ưu hóa không gian để đáp ứng nhu cầu sinh hoạt của cả gia đình. Việc sắp xếp các phòng cần cân nhắc đến sự tiện lợi trong di chuyển, đồng thời tận dụng tối đa ánh sáng tự nhiên và luồng không khí lưu thông.

Mẫu nhà cấp 4 mái Nhật 4 phòng ngủ có thiết kế thông minh, tiện nghi, đáp ứng mọi nhu cầu sinh hoạt của gia đình (Nguồn: Internet)
Hãy thiết kế hệ cửa thông gió và ánh sáng để tận dụng tối đa ánh sáng tự nhiên và lưu thông không khí, tạo không gian sống thoáng đãng, thoải mái. Cửa sổ nên được bố trí hợp lý ở các khu vực phòng khách, phòng ngủ để tăng cường độ sáng. Ưu tiên chọn nhứng mẫu cửa sổ mở rộng, giúp tối ưu sự thông gió, đồng thời mang lại cảm giác gần gũi với thiên nhiên.
Trong thiết kế nhà cấp 4 mái Nhật 4 phòng ngủ, việc ưu tiên những mẫu nội thất đơn giản sẽ giúp không gian trở nên tinh tế và tiện nghi hơn. Những món đồ với thiết kế tối giản, đường nét gọn gàng không chỉ mang lại cảm giác thoáng đãng, hiện đại mà còn đảm bảo tính thẩm mỹ và công năng sử dụng hiệu quả.
Để tạo điểm nhấn cho nhà cấp 4 mái Nhật 4 phòng ngủ, gia chủ có thể sử dụng tấm xi măng DURAflex hoặc tấm vân gỗ DURAwood ốp tường trang trí nội, ngoại thất hoặc làm vách ngăn phòng. Những vật liệu này không chỉ có khả năng cách âm, chống nóng hiệu quả mà còn giúp không gian sống trở nên sang trọng, hiện đại. Đây là giải pháp thông minh, vừa nâng cao giá trị thẩm mỹ cho ngôi nhà, vừa tiết kiệm chi phí so với việc làm tường bê tông truyền thống hay các loại gạch đá khác.

Mẫu nhà cấp 4 mái Nhật 4 phòng ngủ sử dụng tấm DURAwood để lót sàn nhà (Nguồn: Internet)
>> Xem thêm:
Hiện nay, chi phí xây nhà phần thô dao động trong khoảng 4 - 4,5 triệu đồng/m2. Nếu gia chủ lựa chọn gói hoàn thiện trọn gói, mức giá sẽ từ 5,5 triệu đồng/m2 trở lên, tùy theo vật liệu xây dựng, yêu cầu thiết kế của gia chủ.
Trước khi bắt đầu xây dựng, gia chủ cần cân nhắc nhiều yếu tố quan trọng như kích thước ngôi nhà, mục đích sử dụng, kế hoạch tài chính, thời gian thi công, tìm kiếm vật liệu phù hợp và ựa chọn đơn vị thi công uy tín.
Mẫu nhà cấp 4 mái Nhật 4 phòng ngủ, 1 phòng thờ là lựa chọn lý tưởng cho những gia đình có nhiều thế hệ cùng chung sống. Thiết kế này cho phép bố trí hợp lý các khu vực chức năng như phòng khách, phòng bếp, phòng ngủ và phòng thờ riêng biệt, đảm bảo sự tiện lợi và ấm cúng cho gia đình.
DURAflex đã tổng hợp những mẫu nhà cấp 4 mái Nhật 4 phòng ngủ đẹp, hiện đại và phù hợp với xu hướng hiện nay. Hy vọng những thông tin này sẽ giúp bạn dễ dàng lựa chọn giải pháp lý tưởng cho tổ ấm của mình.
Và để tối ưu hiệu quả thi công những mẫu nhà mái Nhật 1 tầng 4 phòng ngủ hoặc xây dựng các hạng mục khác như vách ngăn phòng khách và bếp, vách ngăn phòng ngủ, vách ngăn cầu thang,tấm lót sàn,... bạn có thể cân nhắc sử dụng tấm xi măng DURAflex Low Carbon hoặc tấm xi măng vân gỗ DURAwood Low Carbon - giải pháp vật liệu hiện đại, bền vững và thẩm mỹ cao. Để biết thêm thông tin chi tiết hoặc được tư vấn cụ thể, quý khách hàng vui lòng liên hệ qua:
Đánh giá và nhận xét
Đánh giá trung bình
0/5
5
4
3
2
1
Chia sẻ và nhận xét về bài viết
Chia sẻ và nhận xét về bài viết
Bài viết chưa có đánh giá nào