
DURAflex đăng vào lúc 30/01/2026 - 11:00
Mẫu nhà cấp 4 4 phòng ngủ 400 triệu đang là sự lựa chọn của nhiều gia đình muốn có không gian sống thoải mái nhưng vẫn tiết kiệm chi phí. Với cách thiết kế hợp lý và lựa chọn vật liệu thông minh, bạn hoàn toàn có thể sở hữu một ngôi nhà tiện nghi, đủ không gian sinh hoạt cho cả gia đình mà vẫn đảm bảo yếu tố thẩm mỹ. Hãy cùng DURAflex khám phá các mẫu nhà cấp 4 4 phòng ngủ 400 triệu đẹp, tiết kiệm chi phí và dễ ứng dụng trong thực tế qua bài viết dưới đây!
Lý do chính đến từ chi phí xây dựng thấp, giúp các gia đình tiết kiệm đáng kể mà vẫn sở hữu được không gian sống tiện nghi. Ngoài ra, nhà cấp 4 4 phòng ngủ 400 triệu còn có thiết kế đơn giản, dễ thi công, rút ngắn thời gian xây dựng và giảm phát sinh chi phí. Nhờ tính linh hoạt trong bố trí mặt bằng và khả năng thích ứng với nhiều loại địa hình, mẫu nhà này phù hợp với đa số điều kiện kinh tế và nhu cầu sử dụng thực tế của người dân.
Không chỉ thế, nhà cấp 4 còn mang lại cảm giác ấm cúng, gần gũi - điều mà nhiều người tìm kiếm trong cuộc sống hiện đại đầy áp lực. Với kinh nghiệm từ các đơn vị thi công uy tín và tư vấn từ kiến trúc sư chuyên môn, việc sở hữu một căn nhà cấp 4 4 phòng ngủ 400 triệu chất lượng là hoàn toàn khả thi.

Nhà cấp 4 4 phòng ngủ 400 triệu được ưa chuộng nhờ chi phí thấp nhưng vẫn đảm bảo tiện nghi (Nguồn: Internet)
>> Xem thêm:
Nhà cấp 4 mái Thái luôn là lựa chọn được yêu thích nhờ vào thiết kế sang trọng, phần mái dốc giúp thoát nước mưa nhanh, hạn chế ẩm mốc và chống nóng hiệu quả. Với ngân sách 400 triệu, mẫu nhà này có thể thiết kế theo dạng hình chữ nhật hoặc chữ L đơn giản, đảm bảo đầy đủ công năng sử dụng với 4 phòng ngủ, phòng khách, bếp và nhà vệ sinh. Đây là mẫu nhà phù hợp cho cả khu vực thành thị và nông thôn.

Mẫu nhà cấp 4 mái Thái ở nông thôn 4 phòng ngủ 400 triệu đẹp, rộng rãi (Nguồn: Internet)

Nhà cấp 4 4 phòng ngủ 400 triệu mái Thái hiện đại, thoáng mát (Nguồn: Internet)

Nhà cấp 4 4 phòng ngủ 400 triệu mái Thái tối ưu chi phí (Nguồn: Internet)

Mẫu nhà cấp 4 4 phòng ngủ 400 triệu mái Thái sang trọng, hiện đại (Nguồn: Internet)

Nhà cấp 4 4 phòng ngủ 400 triệu mái Thái đẹp mê ly (Nguồn: Internet)

Mẫu nhà cấp 4 đẹp mái Thái 4 phòng ngủ với họa tiết trang trí tinh xảo (Nguồn: Internet)

Mẫu nhà cấp 4 4 phòng ngủ 400 triệu mang vẻ đẹp bề thế, sang trọng (Nguồn: Internet)

Mẫu nhà cấp 4 4 phòng ngủ 400 triệu mái Thái phù hợp với những quỹ đất hẹp (Nguồn: Internet)

Mẫu nhà cấp 4 4 phòng ngủ 400 triệu đẹp với các gam màu sắc tươi sáng, nổi bật (Nguồn: Internet)

Mẫu nhà cấp 4 4 phòng ngủ 400 triệu phù hợp với những gia đình đông thành viên (Nguồn: Internet)

Mẫu nhà cấp 4 4 phòng ngủ 400 triệu phù hợp với vùng nông thôn yên bình (Nguồn: Internet)

Mẫu nhà cấp 4 4 phòng ngủ 400 triệu mái Thái có gara ô tô (Nguồn: Internet)

Mẫu nhà cấp 4 4 phòng ngủ mái Thái 400 triệu hài hòa với thiên nhiên (Nguồn: Internet)

Mẫu nhà mái Thái cấp 4 4 phòng ngủ 400 triệu tiện nghi vượt mong đợi (Nguồn: Internet)

Mẫu nhà cấp 4 4 phòng ngủ 400 triệu mái Thái sử dụng các vật liệu tự nhiên (Nguồn: Internet)
>> Tham khảo thêm:
Mang hơi hướng hiện đại và tối giản, mái Nhật có độ dốc nhẹ hơn mái Thái, tạo cảm giác thanh thoát và cân đối cho ngôi nhà. Nhà mái Nhật phù hợp với các khu đất vuông vức, giúp mở rộng không gian sống và tạo nên vẻ đẹp nhẹ nhàng, tinh tế mà vẫn tiết kiệm chi phí. Với phong cách này, bạn có thể kết hợp màu sơn trung tính để tăng phần hiện đại cho không gian sống.

Mẫu nhà cấp 4 mái Nhật 4 phòng ngủ 400 triệu tạo cảm giác thanh thoát cho ngôi nhà (Nguồn: Internet)

Mẫu nhà cấp 4 mái Nhật 4 phòng ngủ 400 triệu được nhiều gia đình yêu thích (Nguồn: Internet)
>> Đọc thêm:
Với ưu điểm thi công nhanh, chi phí thấp và dễ dàng nâng cấp thêm tầng trong tương lai, nhà cấp 4 mái bằng là lựa chọn hợp lý cho những ai muốn tiết kiệm ngân sách nhưng vẫn muốn có không gian sống tiện nghi. Thiết kế đơn giản nhưng hiện đại, phù hợp cho các khu đất thành thị hoặc nông thôn. Đồng thời, phần mái có thể tận dụng làm sân thượng hoặc khu vực trồng rau xanh.

Mẫu nhà cấp 4 4 phòng ngủ 400 triệu mái bằng tiết kiệm chi phí (Nguồn: Internet)

Mẫu nhà cấp 4 4 phòng ngủ mái bằng 400 triệu hiện đại, tươi mới (Nguồn: Internet)
>> Đọc thêm:
Nhà cấp 4 4 phòng ngủ 400 triệu mái ngói mang vẻ đẹp truyền thống, giúp điều hòa không khí tốt, giữ cho ngôi nhà luôn mát mẻ. Với kinh phí 400 triệu, gia chủ có thể lựa chọn ngói đỏ hoặc ngói sóng nhỏ, kết hợp cùng kiến trúc đơn giản để giữ chi phí trong tầm kiểm soát. Kiểu nhà mái ngói này đặc biệt phù hợp với những ai yêu thích sự gần gũi, cổ điển trong không gian sống.
Ngày nay, việc sử dụng tấm xi măng xanh DURAflex Low Carbon là giải pháp thông minh để thi công lót mái chống nóng, vách ngăn phòng ngủ, vách ngăn phòng khách và bếp, lót sàn nhà hay ốp tường trang trí. Với các tính năng tối ưu như độ bền cao, cách âm tốt, chịu ẩm và cách nhiệt vượt trội, sản phẩm là lựa chọn lý tưởng cho những ai muốn tối ưu chi phí mà vẫn giữ được độ bền chắc lâu dài cho công trình.

Mẫu nhà cấp 4 4 phòng ngủ 400 triệu mái ngói phù hợp với nông thôn (Nguồn: Internet)

Mẫu nhà cấp 4 4 phòng ngủ 400 triệu mái Thái kết hợp ngói đỏ làm nổi bật cho căn nhà (Nguồn: Internet)
>> Đọc thêm:
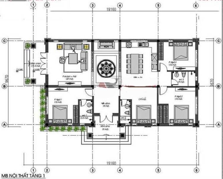
Nhà cấp 4 4 phòng ngủ 400 triệu hình chữ U giúp tối ưu hóa ánh sáng và gió tự nhiên, tạo nên khoảng sân ở giữa nhà vừa là điểm nhấn thẩm mỹ vừa có thể làm sân chơi, tiểu cảnh hoặc nơi tiếp khách ngoài trời. Bố cục dễ phân chia không gian các phòng theo từng nhánh của nhà chữ U, mang lại sự riêng tư và thoải mái trong sinh hoạt.

Nhà cấp 4 4 phòng ngủ 400 triệu hình chữ U giúp ngôi nhà thông thoáng hơn (Nguồn: Internet)

Nhà cấp 4 4 phòng ngủ 400 triệu hình chữ U đẹp, truyền thống (Nguồn: Internet)
>> Đọc thêm:
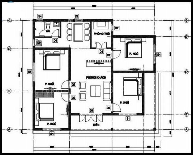
Mẫu nhà chữ L phù hợp với các khu đất có chiều ngang hẹp. Thiết kế này giúp phân chia không gian rõ ràng giữa khu sinh hoạt chung và khu riêng tư, tạo cảm giác thoải mái cho các thành viên trong gia đình. Bên cạnh đó, kiểu dáng chữ L còn giúp tạo khoảng sân nhỏ bên hông để đậu xe hoặc trồng cây xanh.

Mẫu nhà cấp 4 4 phòng ngủ 400 triệu chữ L với thiết kế tối giản mà sang trọng (Nguồn: Internet)

Mẫu nhà cấp 4 chữ L 4 phòng ngủ 400 triệu đẹp, thoáng đãng (Nguồn: Internet)

Bản vẽ thiết kế nhà cấp 4 mái bằng chữ L 4 phòng ngủ 400 triệu hiện đại, đông thành viên (Nguồn: Ảnh được tạo bởi AI)
>> Đọc tham khảo thêm:
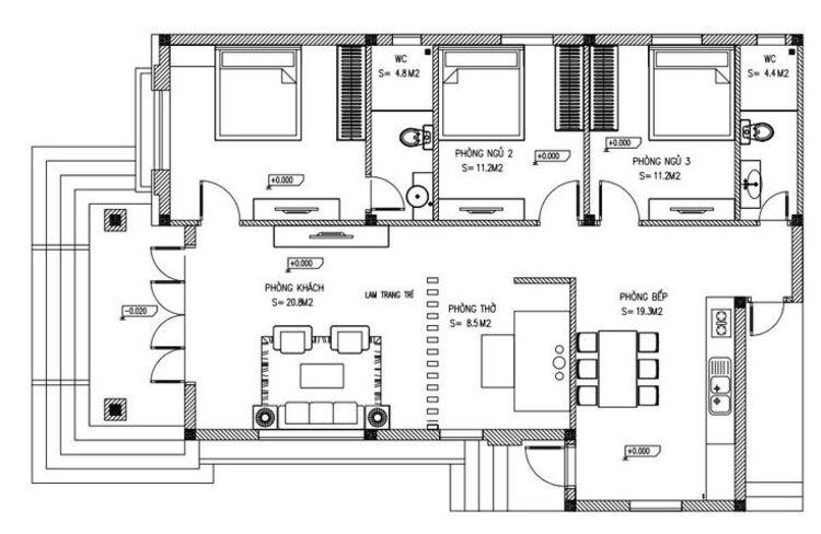
Với nhu cầu giữ gìn văn hóa truyền thống, mẫu nhà cấp 4 4 phòng ngủ 400 triệu có 1 phòng thờ được nhiều gia đình lựa chọn. Dù ngân sách không cao, bạn vẫn có thể bố trí phòng thờ trang nghiêm, hợp phong thủy ngay trong không gian chung hoặc ở vị trí trung tâm của ngôi nhà. Thiết kế này giúp cân bằng giữa nhu cầu hiện đại và yếu tố tâm linh.

Mẫu nhà cấp 4 4 phòng ngủ 400 triệu có 1 phòng thờ mang đậm phong cách tân cổ điển (Nguồn: Internet)

Mẫu nhà cấp 4 4 phòng ngủ 400 triệu có 1 phòng thờ sử dụng tone màu trầm ấm (Nguồn: Internet)
Ở khu vực nông thôn, chi phí nhân công và vật liệu thường rẻ hơn, giúp bạn dễ dàng triển khai mẫu nhà cấp 4 4 phòng ngủ 400 triệu ở nông thôn mà vẫn đảm bảo tiện nghi. Thiết kế nên ưu tiên sự thoáng đãng, gần gũi thiên nhiên với nhiều cửa sổ lớn và không gian mở, tạo cảm giác nhẹ nhàng, thư thái khi sinh hoạt hằng ngày.
Để đảm bảo độ bền và tính kinh tế, các mẫu nhà cấp 4 nông thôn rất phù hợp sử dụng tấm bê tông đúc sẵn DURAflex Low Carbon cho trần, vách hoặc sàn giả. Với trọng lượng nhẹ và khả năng chịu ẩm tốt, đây là lựa chọn hoàn hảo với điều kiện khí hậu nóng ẩm của nước ta.

Mẫu nhà cấp 4 4 phòng ngủ 400 triệu ở nông thôn hài hòa với thiên nhiên (Nguồn: Internet)

Nhà cấp 4 4 phòng ngủ 400 triệu ở nông thôn đẹp, thoáng đãng, bình yên (Nguồn: Internet)
>> Đọc thêm:
Việc thêm sân vườn nhỏ trước hoặc sau nhà cấp 4 4 phòng ngủ 400 triệu giúp tạo không gian sống xanh, tăng cường sức khỏe tinh thần cho cả gia đình. Có thể bố trí khu vực tiểu cảnh, nhà chòi sân vườn, vườn rau sạch hoặc khu vui chơi cho trẻ. Không chỉ giúp cải thiện chất lượng sống, các mẫu nhà vườn nhỏ đẹp cấp 4 còn giúp tăng tính thẩm mỹ và giá trị cho công trình.

Mẫu nhà cấp 4 4 phòng ngủ 400 triệu có thiết kế sân vườn được nhiều gia đình ưa chuộng (Nguồn: Internet)

Mẫu nhà vườn cấp 4 4 phòng ngủ 400 triệu đẹp, bình yên, gần gũi với thiên nhiên (Nguồn: Internet)
>> Đọc thêm:
Nhà cấp 4 4 phòng ngủ 400 triệu có gác lửng là giải pháp mở rộng không gian mà không cần xây thêm tầng. Với thiết kế hợp lý, phần gác có thể làm phòng ngủ, phòng làm việc hoặc kho chứa đồ, đặc biệt phù hợp với gia đình đông người. Gác lửng còn giúp tận dụng tối đa chiều cao căn nhà, tạo cảm giác rộng rãi, thoáng đãng hơn.

Mẫu nhà cấp 4 gác lửng 4 phòng ngủ 400 triệu mang vẻ đẹp hiện đại, trẻ trung (Nguồn: Internet)

Nhà cấp 4 4 phòng ngủ 400 triệu có gác lửng hiện đại, tiện nghi, dễ dàng mở rộng không gian (Nguồn: Internet)
>> Các mẫu nhà gác lửng khác:
Với mẫu nhà cấp 4 đẹp 5x20, bạn hoàn toàn có thể bố trí 4 phòng ngủ, phòng khách, bếp và nhà vệ sinh mà vẫn giữ sự thông thoáng. Thiết kế cần tối ưu không gian và hạn chế vách ngăn dày cộm từ bê tông cốt thép, thay vào đó là sử dụng nội thất đa năng hoặc vách ngăn cemboard DURAflex Low Carbon để tạo độ rộng thoáng cho ngôi nhà.

Mẫu nhà cấp 4 4 phòng ngủ 400 triệu 100m2 với vẻ đẹp tinh tế, cuốn hút (Nguồn: Internet)

Nhà cấp 4 4 phòng ngủ 400 triệu 100m2 hiện đại, linh hoạt bố trí nội thất (Nguồn: Internet)
>> Đọc thêm:
Nhà cấp 4 4 phòng ngủ 400 triệu 120m2 giúp bạn thoải mái bố trí không gian sinh hoạt chung và riêng biệt. Có thể kết hợp thêm phòng làm việc, sân phơi hoặc khu giải trí cho trẻ nhỏ. Thiết kế rộng rãi này rất phù hợp cho gia đình đông người hoặc những ai yêu thích không gian sống linh hoạt.
Với diện tích lớn 120m2, việc ứng dụng tấm cemboard DURAflex Low Carbon trong thi công là lựa chọn tối ưu, giúp tiết kiệm chi phí, tăng độ bền, chống cháy và dễ thi công. Đây là vật liệu xanh phù hợp với nhiều kiểu thiết kế hiện đại và bền vững.

Mẫu nhà cấp 4 4 phòng ngủ 400 triệu 120m2 rộng lớn, bề thế (Nguồn: Internet)

Mẫu nhà cấp 4 4 phòng ngủ 400 triệu 120m2 với thiết kế hài hòa với thiên nhiên (Nguồn: Internet)
>> Các mẫu nhà khác:
Thiết kế biệt thự cho nhà cấp 4 4 phòng ngủ 400 triệu mang đến không gian sống đẳng cấp với phần mái cao, mặt tiền rộng và bố cục sang trọng. Dù ngân sách chỉ 400 triệu, bạn vẫn có thể tạo nên mẫu nhà như biệt thự mini nhờ việc tối ưu vật liệu và không gian. Việc lựa chọn màu sơn, tiểu cảnh và ánh sáng hợp lý sẽ giúp nâng tầm diện mạo cho ngôi nhà.

Mẫu nhà cấp 4 4 phòng ngủ 400 triệu giả biệt thự mang vẻ đẹp hài hoà với thiên nhiên (Nguồn: Internet)

Nhà cấp 4 4 phòng ngủ 400 triệu giả biệt thự sang trọng mang vẻ đẹp sang trọng, đẳng cấp (Nguồn: Internet)
>>> Đọc thêm:
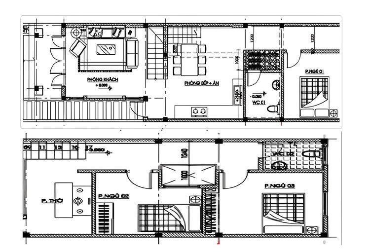
Mái tôn là lựa chọn phổ biến trong các mẫu nhà tiết kiệm chi phí nhờ giá thành rẻ, thi công nhanh và khả năng thoát nước tốt. Bản vẽ nhà cấp 4 mái tôn thường có thiết kế đơn giản, bố trí 4 phòng ngủ đều nhau, nối liền khu vực phòng khách và bếp ăn để tiết kiệm diện tích và đảm bảo sự thông thoáng. Kiểu mái này phù hợp với cả nông thôn lẫn thành thị.

Bản vẽ nhà cấp 4 400 triệu mái tôn hiện đại (Nguồn: Internet)
>> Xem thêm:
Mẫu nhà mái bằng phù hợp với phong cách hiện đại và gọn gàng. Bản vẽ thiết kế nhà thường chia thành hai trục chính: một bên là không gian sinh hoạt chung (phòng khách, bếp), bên còn lại là 4 phòng ngủ bố trí liền kề. Phần mái bằng có thể tận dụng làm sân phơi hoặc trồng cây xanh. Thiết kế này đơn giản nhưng tối ưu chi phí và tiện nghi.

Bản vẽ nhà cấp 4 4 phòng ngủ 400 triệu mái bằng đầy đủ công năng (Nguồn: Internet)
>>> Đọc thêm:
Mái Nhật với độ dốc nhẹ mang đến vẻ ngoài tinh tế, nhẹ nhàng và hài hòa. Trong bản vẽ, các phòng ngủ thường được bố trí tách biệt về hai phía để đảm bảo riêng tư, trong khi khu vực sinh hoạt được đặt ở trung tâm. Thiết kế này phù hợp với diện tích đất rộng và gia đình đông người.

Bản vẽ nhà cấp 4 400 triệu mái Nhật 4 phòng ngủ (Nguồn: Internet)
Với phong cách hiện đại, bản vẽ thường tối ưu các mảng kính lấy sáng tự nhiên, không gian mở, giảm tường ngăn để tạo sự thông thoáng. Các phòng ngủ được bố trí linh hoạt, kết hợp với không gian bếp và phòng khách mở, mang lại cảm giác rộng rãi dù diện tích vừa phải.

Bản vẽ nhà cấp 4 400 triệu hiện đại, dễ dàng ứng dụng (Nguồn: Internet)
Gác lửng giúp tăng diện tích sử dụng mà không phát sinh thêm nhiều chi phí. Thường tầng trệt sẽ bố trí 2 phòng ngủ, phòng khách và bếp. Phần gác lửng được thiết kế thêm 1–2 phòng ngủ nhỏ hoặc không gian sinh hoạt riêng. Bản vẽ cần chú trọng kết cấu chịu lực và chiều cao trần.

Bản vẽ nhà cấp 4 400 triệu có gác lửng sang trọng, hiện đại (Nguồn: Internet)
>> Đọc thêm:
Trong trường hợp bạn muốn không gian rộng rãi hơn thay vì có đủ 4 phòng ngủ, các bản vẽ 2–3 phòng ngủ là lựa chọn hợp lý. Diện tích dư ra sẽ được tận dụng làm phòng thờ, sân chơi trong nhà hoặc khu vực đọc sách. Mẫu này rất phù hợp với gia đình ít người, vợ chồng trẻ hoặc nhà có người lớn tuổi cần không gian thông thoáng.

Bản vẽ nhà cấp 4 2 đến 3 phòng ngủ 400 triệu cho gia đình 4 - 6 thành viên (Nguồn: Internet)
>>> Tham khảo các mẫu nhà khác:
Phần xây thô là nền tảng quan trọng của toàn bộ công trình, bao gồm móng, cột, dầm, sàn, tường, mái và hệ thống đường ống kỹ thuật. Tùy theo địa chất, diện tích và kiểu mái lựa chọn (như mái bằng, mái tôn…), chi phí phần này có thể linh hoạt tăng hoặc giảm. Nếu lựa chọn kiểu thiết kế tối giản và thi công theo phương pháp truyền thống, bạn có thể tối ưu tốt chi phí phần này.
Giai đoạn hoàn thiện bao gồm việc hoàn tất các chi tiết như lát sàn, sơn tường, lắp cửa, thiết bị chiếu sáng, nhà vệ sinh, và các tiện ích khác. Đây là bước định hình vẻ ngoài của ngôi nhà nên cũng ảnh hưởng nhiều đến trải nghiệm sinh hoạt sau này.
Để tiết kiệm chi phí xây nhà cấp 4 nhưng vẫn đảm bảo độ bền và tính thẩm mỹ, bạn có thể sử dụng tấm bê tông nhẹ DURAflex Low Carbon cho các hạng mục như trần, vách ngăn hoặc sàn gác lửng. Sản phẩm này có khả năng chịu ẩm, chịu lực tốt và thân thiện với môi trường - rất phù hợp với các công trình nhà ở dân dụng.
Bản thiết kế giúp bạn hình dung tổng thể ngôi nhà và tối ưu công năng sử dụng. Nếu có thể tự thiết kế hoặc sử dụng bản vẽ mẫu, bạn sẽ tiết kiệm được một khoản đáng kể. Tuy nhiên, làm việc với kiến trúc sư hoặc đơn vị chuyên nghiệp sẽ giúp bạn có được một phương án khoa học, hiện đại và phù hợp với diện tích thực tế.
Chi phí này thường không quá cao nhưng lại là điều kiện bắt buộc để khởi công. Tùy vào từng khu vực, quy trình và hồ sơ có thể khác nhau đôi chút, nhưng bạn nên chuẩn bị trước để không ảnh hưởng đến tiến độ xây dựng. Một số đơn vị nhận xây trọn gói cũng có thể hỗ trợ luôn phần thủ tục này, giúp bạn tiết kiệm thời gian.

Chi phí xây nhà cấp 4 4 phòng ngủ 400 triệu gồm chi phí phần thô, hoàn thiện, thiết kế và giấy phép (Nguồn: Internet)
>> Tham khảo:
Để xây dựng một ngôi nhà cấp 4 có 4 phòng ngủ trong ngân sách giới hạn, việc lập dự toán chi tiết là điều cực kỳ cần thiết. Dưới đây là các hạng mục chi phí chính và tỷ lệ phân bổ mà các gia chủ có thể tham khảo:
Dù ngân sách có giới hạn, nhà cấp 4 4 phòng ngủ 400 triệu vẫn hoàn toàn có thể đáp ứng nhu cầu về một không gian sống tiện nghi, hiện đại và đẹp mắt nếu biết cách tính toán và lựa chọn thiết kế phù hợp. Đặc biệt, để đảm bảo độ bền và tiết kiệm chi phí thi công, bạn có thể cân nhắc sử dụng tấm xi măng DURAflex Low Carbon cho trần, vách hoặc sàn nhà. Đây là giải pháp vật liệu xây dựng xanh - nhẹ - bền, lý tưởng cho các công trình nhà ở hiện đại. Liên hệ DURAflex ngay hôm nay để được tư vấn chi tiết!
Đánh giá và nhận xét
Đánh giá trung bình
0/5
5
4
3
2
1
Chia sẻ và nhận xét về bài viết
Chia sẻ và nhận xét về bài viết
Bài viết chưa có đánh giá nào