
DURAflex đăng vào lúc 22/03/2026 - 13:56
Bạn đang mơ ước sở hữu một nhà cấp 4 3 phòng ngủ 500 triệu đầy đủ tiện nghi, thoải mái và đẹp mắt? Điều này hoàn toàn khả thi nếu bạn biết cách tối ưu chi phí xây dựng và lựa chọn vật liệu phù hợp. Hãy cùng DURAflex khám phá những mẫu nhà cấp 4 đẹp, thông minh, giúp tiết kiệm chi phí mà vẫn đảm bảo chất lượng và vẻ đẹp, mang lại cho bạn một tổ ấm hoàn hảo trong tầm tay!
Nhà cấp 4 3 phòng ngủ 500 triệu đang trở thành lựa chọn lý tưởng của nhiều gia đình Việt nhờ vào những ưu điểm vượt trội sau:

Mẫu nhà cấp 4 giá 500 triệu 3 phòng ngủ được nhiều gia đình lựa chọn (Nguồn: Internet)
>> Xem thêm:
Nhà cấp 4 nông thôn thường có thiết kế đơn giản nhưng rất thoáng đãng và gần gũi với thiên nhiên. Với chi phí 500 triệu, bạn hoàn toàn có thể xây dựng một ngôi nhà có thiết kế sân vườn rộng rãi, không gian sống thoải mái, giúp các thành viên trong gia đình tận hưởng không khí trong lành và yên tĩnh của khu vực nông thôn. Các vật liệu chất lượng cao như tấm cemboard xanh DURAflex với độ bền chắc vượt trội sẽ giúp tiết kiệm chi phí bảo trì và tuổi thọ của ngôi nhà.

Mẫu nhà cấp 4 3 phòng ngủ 500 triệu ở nông thôn đẹp, bình yên (Nguồn: Internet)

Mẫu nhà cấp 4 nông thôn 3 phòng ngủ 500 triệu đẹp với sân vườn xanh ngát (Nguồn: Internet)

Mẫu nhà cấp 4 mái bằng chữ L ở nông thôn 3 phòng ngủ 500 triệu đẹp, ấn tượng (Nguồn: Ảnh được tạo bởi AI)
>>> Tham khảo:
Mẫu nhà cấp 4 3 phòng ngủ 500 triệu hiện đại sở hữu thiết kế đơn giản nhưng tinh tế, tối ưu công năng và tạo cảm giác thoải mái cho gia đình. Kiến trúc với các đường nét thẳng, mảng tường phẳng và cửa kính lớn giúp ngôi nhà trở nên thông thoáng, tận dụng ánh sáng tự nhiên, mang lại không gian sống sáng sủa và rộng rãi.

Mẫu nhà cấp 4 3 phòng ngủ 500 triệu hiện đại, sang trọng (Nguồn: Internet)

Mẫu nhà cấp 4 3 phòng ngủ 500 triệu hiện đại, tinh tế (Nguồn: Internet)
>> Đọc thêm:
Mẫu nhà cấp 4 mái Thái 3 phòng ngủ 500 triệu không chỉ đẹp mắt và tiện nghi mà còn đảm bảo khả năng chống chịu với điều kiện thời tiết khắc nghiệt. Đặc biệt, sử dụng tấm xi măng xanh DURAflex làm tường ngăn hoặc vách ngăn ngoài trời và trong nhà mái Thái là một giải pháp hoàn hảo, giúp bảo vệ ngôi nhà luôn bền chắc và tránh khỏi sự xâm nhập của ẩm ướt và nguy cơ cháy nổ. Từ đó, mang lại một không gian sống an toàn và lâu dài cho gia đình.

Mẫu nhà cấp 4 mái Thái 3 phòng ngủ 500 triệu đẹp, hiện đại, tiện nghi (Nguồn: Internet)

Mẫu mặt tiền nhà ống đẹp với 3 phòng ngủ 500 triệu mái Thái rộng thoáng với diện tích 100m2 (Nguồn: Internet)
>>Tham khảo thêm:
Mẫu nhà cấp 4 mái Nhật với kiểu dáng thanh thoát và nhẹ nhàng đang được nhiều gia đình yêu thích. Mái Nhật có độ dốc thấp và dễ dàng kết hợp với không gian sân vườn, tạo nên một ngôi nhà hài hòa và gần gũi với thiên nhiên. Với ngân sách 500 triệu, bạn vẫn có thể xây dựng một ngôi nhà mái Nhật 3 phòng ngủ với thiết kế đơn giản nhưng tinh tế, phù hợp với nhiều phong cách sống.

Mẫu nhà cấp 4 mái Nhật 3 phòng ngủ 500 triệu với đường nét hài hòa (Nguồn: Internet)

Mẫu nhà cấp 4 đẹp 3 phòng ngủ 500 triệu mái Nhật kiểu dáng thanh thoát, hiện đại (Nguồn: Internet)
>>> Một số mẫu nhà đẹp khác:
Mẫu nhà cấp 4 mái bằng 3 phòng ngủ 500 triệu sẽ tạo nên một không gian rộng rãi, thông thoáng, dễ dàng bố trí và thiết kế nội thất. Mẫu nhà này không chỉ tiết kiệm chi phí xây dựng mà còn dễ dàng mở rộng trong tương lai nếu gia đình có nhu cầu.

Mẫu nhà cấp 4 mái bằng 3 phòng ngủ 500 triệu với thiết kế trẻ trung, hiện đại (Nguồn: Internet)

Mẫu nhà cấp 4 3 phòng ngủ 500 triệu mái bằng đẹp, dễ ứng dụng (Nguồn: Internet)
>> Đọc thêm:
Mẫu nhà cấp 4 3 phòng ngủ mái lệch với chi phí 500 triệu đang được nhiều gia đình trẻ ưu tiên lựa chọn nhờ thiết kế hiện đại, công năng tối ưu và chi phí hợp lý. Với bố cục thông minh, không gian sống được phân chia khoa học, đảm bảo sự riêng tư cho từng thành viên mà vẫn giữ được sự kết nối trong sinh hoạt hàng ngày. Kiểu mái lệch không chỉ tạo điểm nhấn kiến trúc nổi bật mà còn giúp ngôi nhà trông cao ráo, thoáng mát hơn.

Mẫu nhà cấp 4 mái lệch giá 500 triệu với phần mái là điểm nhấn của ngôi nhà (Nguồn: Internet)

Mẫu nhà cấp 4 3 phòng ngủ 500 triệu mái lệch đẹp, giúp ngôi nhà có khả năng thoát nước hiệu quả (Nguồn: Internet)
>>> Tham khảo thêm:
Mẫu nhà cấp 4 3 phòng ngủ 500 triệu mái tôn đang là lựa chọn tối ưu cho các gia đình trẻ hoặc những ai cần không gian sống đầy đủ tiện nghi nhưng vẫn đảm bảo chi phí hợp lý. Thiết kế tập trung vào công năng sử dụng, tối ưu hóa diện tích với 1 phòng khách rộng rãi, 3 phòng ngủ riêng biệt và khu bếp liền kề thoáng mát. Tuy nhiên, một trong những điểm hạn chế phổ biến của nhà mái tôn là dễ bị nóng vào mùa hè và hiệu quả cách âm không tốt.
Để khắc phục điều này, nhiều gia chủ đã lựa chọn sử dụng tấm xi măng xanh DURAflex - giải pháp vật liệu hiện đại giúp nâng tầm chất lượng công trình. Sản phẩm không chỉ bền chắc vượt trội với khả năng không bể tấm khi rơi từ độ cao 0,5m, không bể cạnh khi bắn vít, mà còn chịu ẩm, chống cháy hiệu quả, góp phần gia tăng tuổi thọ cho toàn bộ kết cấu mái. Nhờ vậy, mẫu nhà cấp 4 mái tôn không chỉ tiết kiệm chi phí mà còn đảm bảo độ bền, tính thẩm mỹ và trải nghiệm sống thoải mái, đáng tin cậy theo thời gian.

Mẫu nhà cấp 4 đẹp 5x20 mái tôn với 3 phòng ngủ giá 500 triệu tiết kiệm chi phí (Nguồn: Internet)

Để giảm nhiệt cho ngôi nhà cấp 4 3 phòng ngủ 500 triệu, gia chủ nên sử dụng tấm xi măng xanh DURAflex lót mái chống nóng (Nguồn: Internet)
>>> Tham khảo thêm:
Nếu bạn muốn có một ngôi nhà không chỉ đẹp mà còn đáp ứng được nhu cầu tâm linh của gia đình, mẫu nhà cấp 4 3 phòng ngủ 500 triệu có thêm phòng thờ là sự lựa chọn lý tưởng. Với ngân sách 500 triệu, bạn có thể xây dựng một ngôi nhà nhỏ xinh, có thêm không gian thờ cúng trang trọng, mang lại sự bình an và hạnh phúc cho gia đình.

Mẫu nhà cấp 4 3 phòng ngủ 500 triệu có 1 phòng thờ phù hợp với nhiều gia đình hiện nay (Nguồn: Internet)

Mẫu nhà cấp 4 3 phòng ngủ 500 triệu có 1 phòng thờ trang trọng, chuẩn phong thuỷ (Nguồn: Internet)
>> Các mẫu nhà khác đa dạng hơn:
Mẫu nhà gác lửng 3 phòng ngủ 500 triệu là giải pháp tuyệt vời cho những gia đình muốn mở rộng không gian sử dụng mà vẫn giữ được chi phí hợp lý. Gác lửng có thể được sử dụng làm phòng ngủ, phòng học, hoặc không gian giải trí, mang đến sự tiện lợi và thoải mái cho các thành viên trong gia đình.

Mẫu nhà cấp 4 3 phòng ngủ 500 triệu có gác lửng giúp tối ưu diện tích sử dụng (Nguồn: Internet)

Mẫu nhà cấp 4 3 phòng ngủ 500 triệu có gác lửng hiện đại, tiện nghi, sang trọng (Nguồn: Internet)
>> Đọc thêm:
Một mẫu nhà vườn cấp 4 có 3 phòng ngủ không chỉ giúp tạo không gian sống thoải mái mà còn mang lại không khí trong lành, gần gũi với thiên nhiên. Với ngân sách 500 triệu, bạn có thể xây dựng một ngôi nhà nhỏ xinh, có sân vườn rộng rãi, nơi các thành viên trong gia đình có thể thư giãn, trồng cây, thư giãn tại nhà chòi sân vườn và tổ chức các buổi gặp gỡ bạn bè, người thân.

Mẫu nhà cấp 4 3 phòng ngủ 500 triệu có sân vườn thoáng mát, gần gũi với thiên nhiên (Nguồn: Internet)

Mẫu biệt thự nhà vườn cấp 4 3 phòng ngủ 500 triệu đẹp, cực kỳ tiện ích (Nguồn: Internet)
>> Xem thêm:
Mẫu nhà cấp 4 chữ L với 3 phòng ngủ là một trong những lựa chọn được nhiều gia đình yêu thích. Thiết kế này giúp tận dụng tối đa diện tích đất, tạo ra không gian rộng rãi, thoáng đãng cho các hoạt động sinh hoạt của gia đình. Hình dáng nhà chữ L cũng mang lại sự thông thoáng và dễ dàng kết nối giữa các phòng trong ngôi nhà.
Để nâng cao độ bền và khả năng chống chịu của công trình nhà chữ L, việc sử dụng tấm bê tông đúc sẵn DURAflex Low Carbon cho các phần tường và vách ngăn là lựa chọn lý tưởng. Sản phẩm không chỉ giúp ngôi nhà luôn khô ráo, bền chắc mà còn có khả năng chống cháy, bảo vệ gia đình khỏi các nguy cơ tiềm ẩn. Đồng thời, tấm xi măng xanh này cũng góp phần tạo nên vẻ ngoài hiện đại, sạch sẽ cho ngôi nhà, giúp tiết kiệm chi phí mà vẫn đảm bảo chất lượng và tính thẩm mỹ.

Mẫu nhà cấp 4 chữ L 3 phòng ngủ 500 triệu với thiết kế hiện đại, trẻ trung (Nguồn: Internet)

Mẫu nhà cấp 4 3 phòng ngủ 500 triệu hình chữ L tiện nghi với phần góc khuyết được tận dụng làm sân vườn hoặc gara (Nguồn: Internet)
>> Xem thêm:
Mẫu nhà cấp 4 hình chữ U là lựa chọn lý tưởng cho những gia đình muốn có một không gian sống yên tĩnh và riêng tư. Kiểu thiết kế nhà chữ U này tạo ra một không gian khép kín với sân vườn ở giữa, mang lại sự thoải mái và gần gũi với thiên nhiên.

Mẫu nhà cấp 4 3 phòng ngủ 500 triệu hình chữ U với thiết kế sang trọng, hiện đại (Nguồn: Internet)

Mẫu nhà cấp 4 3 phòng ngủ 500 triệu hình chữ U đẹp, thông thoáng (Nguồn: Internet)
>>> Các mẫu nhà được ưa chuộng khác:
Với diện tích 100m2, mẫu nhà cấp 4 3 phòng ngủ 500 triệu sẽ mang đến một không gian sống rộng rãi, thoải mái cho gia đình. Ngôi nhà này có thể được thiết kế theo nhiều phong cách khác nhau, từ hiện đại đến truyền thống, phù hợp với nhiều nhu cầu và sở thích của gia chủ.

Nhà cấp 4 đẹp 5x20 có 3 phòng ngủ giá 500 triệu sử dụng những vật liệu bền, đẹp (Nguồn: Internet)

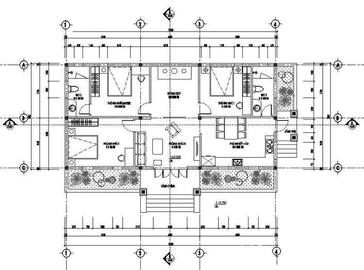
Bản vẽ nhà cấp 4 3 phòng ngủ 100m2 giá 500 triệu đầy đủ công năng (Nguồn: Internet)
>> Đọc thêm:
Dưới đây là một vài điểm quan trọng bạn cần lưu ý khi xây dựng nhà cấp 4 3 phòng ngủ với ngân sách 500 triệu:
Khi xây dựng nhà cấp 4 3 phòng ngủ 500 triệu, lựa chọn vật liệu xây dựng hợp lý là yếu tố quan trọng để đảm bảo chất lượng và tiết kiệm chi phí. Gia chủ nên ưu tiên vật liệu có giá thành hợp lý nhưng vẫn đảm bảo độ bền, chất lượng như tấm xi măng xanh DURAflex Low Carbon. Với khả năng bền chắc, chịu ẩm, chống cháy tốt, sản phẩm sẽ giúp công trình có tuổi thọ lên đến 50 năm, bảo vệ môi trường và giảm thiểu chi phí lâu dài.

Tấm xi măng xanh DURAflex Low Carbon là giải pháp lý tưởng giúp ngôi nhà cấp 4 3 phòng ngủ luôn bền đẹp
>> Xem thêm:
Khi xây nhà cấp 4 3 phòng ngủ 500 triệu, việc thiết kế ngôi nhà sao cho tối ưu chi phí là điều cực kỳ quan trọng. Gia chủ nên chọn các thiết kế đơn giản, tránh những chi tiết cầu kỳ, phức tạp, vì những yếu tố này không chỉ làm tăng chi phí mà còn kéo dài thời gian thi công. Đồng thời, gia chủ cũng nên ưu tiên các thiết kế mở và các gam màu sáng làm chủ đạo để tận dụng ánh sáng tự nhiên tối đa, vừa giúp tiết kiệm điện năng, vừa tạo cảm giác không gian rộng rãi, thoáng mát.

Mẫu thiết kế nhà cấp 4 3 phòng ngủ 500 triệu đơn giản, đầy đủ tiện nghi (Nguồn: Internet)
>>> Tham khảo:
Việc lên kế hoạch ngân sách chi tiết là vô cùng quan trọng để đảm bảo dự án không vượt quá ngân sách đã định và tiến hành một cách suôn sẻ. Đầu tiên, một bản vẽ nhà cấp 4 chi tiết là yếu tố không thể thiếu. Bản vẽ thiết kế nhà này giúp gia chủ hình dung rõ ràng về ngôi nhà cấp 4 3 phòng ngủ 500 triệu tương lai và là cơ sở để lập kế hoạch thi công chính xác.
Tiếp theo, bảng dự toán chi tiết là công cụ quan trọng để kiểm soát ngân sách. Gia chủ cần liệt kê tất cả các khoản chi phí, từ vật liệu xây dựng, nhân công, thiết bị, giấy phép xây dựng cho đến hệ thống điện nước. Đặc biệt, cần phải có khoản dự phòng cho những chi phí phát sinh ngoài dự tính trong quá trình thi công.
Khi xây dựng nhà cấp 4 3 phòng ngủ 500 triệu, có một số khoản chi phí cơ bản không thể thiếu như vật liệu xây dựng, nhân công, chi phí xin giấy phép xây dựng và các thiết bị nội thất. Các khoản này chiếm phần lớn ngân sách nên cần phải lên kế hoạch chi tiết. Các khoản chi phí này cần được phân bổ hợp lý để đảm bảo công trình không bị vượt quá ngân sách.
Có một số khoản chi phí xây nhà cấp 4 có thể tiết kiệm mà không ảnh hưởng nhiều đến chất lượng công trình. Ví dụ, lựa chọn các vật liệu xây dựng thay thế, như tấm xi măng xanh DURAflex, giúp tiết kiệm chi phí nhưng vẫn đảm bảo chất lượng bền bỉ, chịu ẩm, cách âm và chống cháy hiệu quả. Bên cạnh đó, việc giảm bớt các chi tiết trang trí phức tạp và sử dụng các giải pháp thiết kế đơn giản cũng giúp tiết kiệm chi phí thi công. Ngoài ra, bạn có thể tự thực hiện một số hạng mục như sơn nhà, trồng cây xanh, hay thiết kế nội thất cơ bản để giảm chi phí nhân công.

Việc lựa chọn vật liệu bền đẹp với giá thành hợp lý giúp gia chủ tối ưu chi phí khi xây nhà cấp 4 3 phòng ngủ 500 triệu (Nguồn: Internet)
>>> Xem thêm:
Mặc dù việc tiết kiệm chi phí là rất quan trọng, nhưng cũng có những khoản chi phí không nên cắt giảm để đảm bảo chất lượng và sự an toàn của công trình. Đặc biệt, bạn không nên tiết kiệm cho các hạng mục như hệ thống điện nước, kết cấu bê tông, hay các vật liệu chống thấm cho mái nhà và tường. Những khoản chi phí này ảnh hưởng trực tiếp đến sự an toàn và bền vững của ngôi nhà trong lâu dài. Hãy đầu tư đúng mức vào những yếu tố này để tránh gặp phải các vấn đề nghiêm trọng sau này.
Việc lựa chọn vật liệu bền vững như tấm xi măng xanh DURAflex Low Carbon làm lót sàn, vách ngăn, ốp tường, lót mái cho nhà cấp 4 3 phòng ngủ 500 triệu sẽ giúp tối ưu chi phí mà vẫn đảm bảo chất lượng. Nếu bạn cần thêm thông tin hoặc tư vấn về xây dựng, hãy liên hệ ngay DURAflex để được tư vấn.
Đánh giá và nhận xét
Đánh giá trung bình
0/5
5
4
3
2
1
Chia sẻ và nhận xét về bài viết
Chia sẻ và nhận xét về bài viết
Bài viết chưa có đánh giá nào