
DURAflex đăng vào lúc 22/11/2025 - 14:00
Với thiết kế linh hoạt, phù hợp với nhiều diện tích đất, những mẫu nhà cấp 4 2 phòng ngủ đang trở thành xu hướng được ưa chuộng, mang đến không gian sống ấm cúng và đầy đủ công năng. Bài viết này DURAflex sẽ cùng bạn khám phá những mẫu nhà cấp 4 2 phòng ngủ đẹp mắt, đơn giản và cách tối ưu chi phí hiệu quả nhất qua bài viết dưới đây.
Sự phổ biến của các mẫu nhà cấp 4 2 phòng ngủ không phải ngẫu nhiên mà đến từ những ưu điểm vượt trội:

Nhà cấp 4 2 phòng ngủ mang lại nhiều ưu điểm vượt trội cho gia chủ (Nguồn: Internet)
>> Xem thêm:
Thiết kế nhà cấp 4 với 2 phòng ngủ đang trở thành xu hướng phổ biến nhờ vào sự tối ưu trong công năng, chi phí hợp lý và tính thẩm mỹ cao. Dưới đây là một số mẫu nhà cấp 4 2 phòng ngủ được ưa chuộng, mang đến gợi ý thực tế cho những ai đang tìm kiếm một không gian sống lý tưởng:
Với mặt bằng nhỏ gọn 4x12m hoặc 4x15m, việc bố trí công năng đầy đủ mà vẫn giữ được sự thông thoáng là yếu tố then chốt. Thiết kế nhà cấp 4 2 phòng ngủ thường ưu tiên không gian mở bằng cách kết hợp phòng khách và bếp thành một thể thống nhất, giúp tăng sự liên kết và tạo cảm giác rộng rãi hơn. Các vách ngăn mỏng nhẹ, kệ mở hoặc rèm vải được sử dụng thay cho tường cố định nhằm tránh cảm giác chật chội.
Ngoài ra, nội thất thông minh là lựa chọn không thể thiếu. Các món đồ như giường có hộc kéo, bàn gấp, ghế sofa kiêm giường ngủ giúp tiết kiệm diện tích hiệu quả. Việc tận dụng chiều cao để bố trí kệ, tủ treo tường cũng là giải pháp tối ưu nhằm tăng không gian lưu trữ mà không ảnh hưởng đến diện tích sàn. Với cách bố trí hợp lý, mẫu nhà này vẫn đảm bảo đầy đủ sự tiện nghi và thoải mái cho gia đình nhỏ từ 2-4 người.

Nhà cấp 4 2 phòng ngủ 4x12 đẹp, đầy đủ công năng (Nguồn: Internet)

Thiết kế nhà cấp 4 2 phòng ngủ diện tích 4x15 ưu tiên không gian mở, tối ưu ánh sáng tự nhiên (Nguồn: Internet)
>> Xem thêm:
Với các kích thước phổ biến như 5x10m, 5x12m hay 5x15m, việc thiết kế nhà cấp 4 2 phòng ngủ trở nên linh hoạt và tối ưu. Gia chủ hoàn toàn có thể bố trí một phòng ngủ master rộng rãi, tích hợp tiện nghi như phòng tắm riêng, tủ quần áo lớn và thậm chí là một góc làm việc nhỏ. Khu vực phòng khách và phòng ăn thường được thiết kế không gian mở liên thông, tạo cảm giác thoáng đãng và ấm cúng cho toàn bộ ngôi nhà. Đồng thời, khu vực bếp hiện đại, đầy đủ tiện nghi sẽ đáp ứng tối đa nhu cầu sinh hoạt. Bên cạnh đó, việc tận dụng hành lang để tạo không gian xanh hoặc góc thư giãn cũng là một ý tưởng tuyệt vời, mang lại giá trị thực tiễn cao cho ngôi nhà của bạn.

Mẫu nhà cấp 4 2 phòng ngủ 5x10 đơn giản, sử dụng tone trắng để tăng thêm cảm giác rộng rãi cho không gian (Nguồn: Internet)

Mẫu nhà cấp 4 2 phòng ngủ 5x12 đẹp, hiện đại, ấn tượng (Nguồn: Internet)

Mẫu nhà cấp 4 2 phòng ngủ 5x12 đẹp, đơn giản, tiện nghi (Nguồn: Internet)
>> Tham khảo thêm:
Với diện tích đất rộng 6x12m hoặc 6x15m, việc thiết kế nhà cấp 4 2 phòng ngủ trở nên vô cùng linh hoạt và dễ dàng kiến tạo không gian sống mơ ước. Bạn hoàn toàn có thể sắp xếp một phòng khách tiện nghi, bếp ăn hiện đại và hai phòng ngủ ấm cúng, có thể thêm ban công nhỏ để tận hưởng không khí trong lành. Dù bạn yêu thích phong cách thiết kế cổ điển, hiện đại, hay tối giản, mỗi ý tưởng đều có thể hiện thực hóa một cách hài hòa và tối ưu công năng. Để đảm bảo độ bền vững và tính thẩm mỹ cho ngôi nhà của mình, hãy cân nhắc sử dụng tấm cemboard DURAflex Low Carbon - giải pháp vật liệu xanh tiên tiến, giúp công trình của bạn không chỉ đẹp mà còn bền vững theo thời gian.

Thiết kế nhà cấp 4 2 phòng ngủ 6x12m đẹp, tiết kiệm chi phí (Nguồn: Internet)

Thiết kế mẫu nhà cấp 4 2 phòng ngủ 6x15m hiện đại, đường nét kiến trúc hài hòa (Nguồn: Internet)
>> Đọc thêm:
Mẫu nhà cấp 4 2 phòng ngủ với kích thước 7x15m mang đến không gian sống rộng rãi, linh hoạt và tiện nghi cho gia đình nhỏ hoặc cặp vợ chồng trẻ. Với diện tích này, bạn dễ dàng bố trí phòng khách thoáng đãng, tạo cảm giác mở và thân thiện khi đón tiếp khách. Khu vực bếp được thiết kế hiện đại, tối ưu công năng, giúp việc nấu nướng trở nên thuận tiện hơn. Hai phòng ngủ có diện tích vừa phải, đảm bảo sự riêng tư và thoải mái cho các thành viên. Ngoài ra, với diện tích đất rộng, bạn còn có thể sắp xếp thêm phòng thờ hoặc góc làm việc yên tĩnh, đáp ứng nhu cầu sinh hoạt đa dạng. Đồng thời, thiết kế sân vườn nhỏ xinh cũng dễ dàng để tạo điểm nhấn xanh mát, góp phần nâng cao chất lượng cuộc sống.

Mẫu nhà cấp 4 2 phòng ngủ 7x15 đơn giản, thoáng đãng (Nguồn: Internet)

Mẫu nhà cấp 4 2 phòng ngủ 7x15 hiện đại, sang trọng, đầy đủ công năng (Nguồn: Internet)
>> Tham khảo thêm:
Mẫu nhà cấp 4 với diện tích 70m2 và 2 phòng ngủ là lựa chọn tối ưu cho các gia đình nhỏ hoặc cặp vợ chồng trẻ. Thiết kế này thường tập trung vào sự tối giản nhưng vẫn đảm bảo đầy đủ công năng, bao gồm phòng khách liên thông bếp ăn, 2 phòng ngủ và 1 nhà vệ sinh chung. Với diện tích vừa phải, việc bố trí nội thất thông minh sẽ giúp không gian trở nên thoáng đãng và tiện nghi, đồng thời tối ưu chi phí xây dựng và vận hành.

Nhà cấp 4 2 phòng ngủ 70m2 đẹp, gọn gàng, tiết kiệm chi phí xây dựng (Nguồn: Internet)

Nhà cấp 4 2 phòng ngủ 70m2 với không gian mở, đón nắng đón gió (Nguồn: Internet)
Những ngôi nhà cấp 4 2 phòng ngủ hiện đại thường chú trọng sự tinh tế trong kiến trúc và ứng dụng công nghệ. Đặc trưng của phong cách này là sử dụng các vật liệu mới như kính cường lực, thép, bê tông trần cùng hệ thống ánh sáng thông minh và nội thất đa năng. Sự kết hợp hài hòa giữa hình khối, đường nét và màu sắc trung tính tạo nên không gian sống sang trọng, tiện nghi, phản ánh lối sống năng động và thẩm mỹ cao của gia chủ.

Mẫu nhà cấp 4 đẹp 5x20 2 phòng ngủ hiện đại, không gian tối ưu và tiết kiệm chi phí (Nguồn: Internet)

Nhà cấp 4 2 phòng ngủ hiện đại, không gian sống xanh và gần gũi (Nguồn: Internet)
>> Tìm hiểu thêm:
Nếu bạn đang tìm kiếm một giải pháp tiết kiệm mà vẫn đảm bảo tính thẩm mỹ và công năng, mẫu nhà cấp 4 đẹp 2 phòng ngủ đơn giản là gợi ý đáng cân nhắc. Thiết kế thường sử dụng mái tôn hoặc mái ngói truyền thống, bố cục vuông vức, không quá cầu kỳ. Các vật liệu xây dựng phổ thông giúp giảm thiểu chi phí mà vẫn đảm bảo độ bền. Mẫu nhà này phù hợp với những gia đình có thu nhập trung bình, đặc biệt phổ biến ở các vùng nông thôn hoặc khu vực có quỹ đất hạn chế.

Nhà cấp 4 2 phòng ngủ đơn giản, hiện đại và tinh tế (Nguồn: Internet)

Mẫu nhà cấp 4 2 phòng ngủ đơn giản, phối màu hài hòa và ấm cúng (Nguồn: Internet)
>> Có thể bạn quan tâm:
Nhà ống cấp 4 2 phòng ngủ thường có thiết kế chiều dài lớn hơn chiều ngang, giúp tối ưu diện tích đất hạn chế. Để tận dụng không gian hiệu quả, các phòng chức năng được bố trí theo chiều dọc, trong đó phòng khách, bếp và phòng ăn nằm liền kề nhau tạo thành khu vực sinh hoạt chung tiện lợi. Hai phòng ngủ được đặt ở phía trong, đảm bảo sự riêng tư và yên tĩnh cho người sử dụng. Ngoài ra, việc lựa chọn chất liệu xây dựng phù hợp kết hợp với giải pháp lấy sáng và thông gió tự nhiên như cửa sổ, giếng trời sẽ giúp không gian luôn thoáng đãng và dễ chịu. Thiết kế nhà ống cấp 4 này không chỉ đáp ứng tốt nhu cầu sinh hoạt của gia đình nhỏ mà còn mang lại sự thoải mái và tiết kiệm chi phí xây dựng, phù hợp với nhiều đối tượng khách hàng hiện nay.

Mẫu nhà ống 1 tầng đẹp 5x20 có 2 phòng ngủ nhỏ xinh, chi phí hợp lý (Nguồn: Internet)

Mẫu nhà ống 1 tầng nông thôn 2 phòng ngủ đẹp mắt, phù hợp gia đình nhỏ (Nguồn: Internet)
>> Các mẫu nhà khác:
Thiết kế nhà cấp 4 nông thôn có 2 phòng ngủ phù hợp với các gia đình nhỏ yêu thích sự đơn giản, tiện nghi và gần gũi với thiên nhiên. Với chi phí xây dựng phải chăng, kiểu nhà này dễ dàng thích nghi với mọi diện tích đất, đảm bảo không gian sống thoải mái. Các vật liệu địa phương như gạch, ngói, tấm xi măng vân gỗ DURAwood thường được ưu tiên sử dụng, mang lại vẻ đẹp mộc mạc và hài hòa với cảnh quan làng quê, đồng thời tối ưu hóa chi phí.

Mẫu nhà cấp 4 nông thôn 250 triệu có 2 phòng ngủ nhỏ gọn, phù hợp tài chính vợ chồng trẻ (Nguồn: Internet)

Xây nhà 500 triệu ở nông thôn với 1 tầng và 2 phòng ngủ đơn giản mà tiện nghi, dễ thi công (Nguồn: Internet)
>> Đọc tham khảo:
Nhà cấp 4 2 phòng ngủ mái tôn là giải pháp kinh tế và nhanh chóng cho nhiều gia đình. Ưu điểm nổi bật của loại hình này là thời gian thi công ngắn, chi phí vật liệu và lắp đặt thấp. Mái tôn hiện đại với nhiều màu sắc và kiểu dáng giúp căn nhà trông trẻ trung, năng động hơn. Tuy nhiên, khi lựa chọn mái tôn, bạn nên cân nhắc sử dụng thêm tấm xi măng cách nhiệt DURAflex Low Carbon, kết hợp bông thuỷ tinh Isover và hệ khung Vĩnh Tường để tăng cường khả năng chống nóng, đảm bảo không gian bên trong luôn mát mẻ, đặc biệt vào mùa hè.

Mẫu nhà cấp 4 chữ L mái tôn có 2 phòng ngủ đẹp, giá rẻ, thi công nhanh chóng (Nguồn: Internet)

Mẫu nhà cấp 4 2 phòng ngủ mái tôn hiện đại với nhiều màu sắc và kiểu dáng (Nguồn: Internet)
>> Xem thêm:
Nhà cấp 4 mái bằng có 2 phòng ngủ mang đến vẻ đẹp hiện đại, tinh tế và vững chãi. Thiết kế mái bằng không chỉ tạo cảm giác chắc chắn cho ngôi nhà mà còn mở ra nhiều không gian sáng tạo. Bạn có thể tận dụng phần mái để làm sân thượng nhỏ, vườn cây mini hoặc lắp đặt hệ thống năng lượng mặt trời. Mặc dù chi phí xây dựng có thể cao hơn một chút so với mái tôn, nhưng độ bền và tính thẩm mỹ cao của mái bằng là một khoản đầu tư xứng đáng.

Nhà cấp 4 2 phòng ngủ mái bằng thiết kế vuông vắn, bố trí khoa học (Nguồn: Internet)

Nhà cấp 4 2 phòng ngủ mái bằng đẹp tinh tế, hợp xu hướng 2026 (Nguồn: Internet)
>> Xem thêm các mẫu nhà khác:
Mẫu nhà cấp 4 mái Nhật có 2 phòng ngủ với đặc trưng là độ dốc mái thấp, mang đến vẻ đẹp hiện đại, tinh tế và tối giản. Kiểu mái này không chỉ tạo điểm nhấn kiến trúc độc đáo mà còn giúp thoát nước tốt, phù hợp với khí hậu Việt Nam. Ngôi nhà mái Nhật thường được bố trí công năng khoa học, tối ưu không gian cho 2 phòng ngủ, phòng khách, bếp và vệ sinh, đảm bảo sự tiện nghi và thoải mái cho gia đình nhỏ.

Mẫu nhà mái Nhật 1 tầng có 2 phòng ngủ hiện đại, tinh tế, sang trọng (Nguồn: Internet)

Nhà cấp 4 2 phòng ngủ mái Nhật đẹp, thoáng đãng với hệ thống cửa kính lớn (Nguồn: Internet)
>> Các bài viết cùng topic:
Nhà cấp 4 mái Thái 2 phòng ngủ là lựa chọn phổ biến nhờ sự bền vững và tính thẩm mỹ cao. Mái Thái với độ dốc lớn, hình khối đa dạng không chỉ tạo vẻ bề thế, sang trọng cho ngôi nhà mà còn có khả năng chống nóng, thoát ẩm hiệu quả. Thiết kế 2 phòng ngủ riêng biệt cùng các không gian chức năng khác như phòng khách rộng rãi, bếp ăn ấm cúng, đáp ứng đầy đủ nhu cầu sinh hoạt, đồng thời tối ưu hóa công năng sử dụng cho gia đình.

Mẫu nhà mái Thái cấp 4 2 phòng ngủ tiện nghi, bố trí hợp lý từng góc nhỏ (Nguồn: Internet)

Mẫu nhà cấp 4 mái Thái 5x20 2 phòng ngủ đậm chất Á Đông, gần gũi thiên nhiên (Nguồn: Internet)
>> Xem thêm:
Thiết kế nhà cấp 4 chữ L 2 phòng ngủ mang lại sự linh hoạt và nhiều ưu điểm vượt trội. Hình dáng chữ L giúp tận dụng tối đa diện tích đất, tạo khoảng sân trong hoặc khu vực thư giãn lý tưởng, đồng thời tăng cường ánh sáng tự nhiên và thông gió cho toàn bộ ngôi nhà. Các phòng chức năng, đặc biệt là 2 phòng ngủ, được bố trí hợp lý, đảm bảo sự riêng tư và tiện lợi. Mẫu nhà chữ L này rất phù hợp với những lô đất có chiều ngang hẹp hoặc muốn tạo không gian sân vườn độc đáo.

Nhà cấp 4 2 phòng ngủ chữ L nhỏ gọn mà tiện nghi, tiết kiệm chi phí xây dựng (Nguồn: Internet)

Nhà cấp 4 2 phòng ngủ chữ L có sân vườn xanh mướt, thư thái mỗi ngày (Nguồn: Internet)

Nhà cấp 4 mái bằng chữ L 2 phòng ngủ tối giản, đẹp mắt (Nguồn: Ảnh được tạo bởi AI)
>> Đọc thêm:
Thiết kế nhà gác lửng 2 phòng ngủ giúp tối ưu hóa diện tích, đặc biệt phù hợp với những gia đình nhỏ hoặc cặp vợ chồng trẻ. Phần gác lửng có thể được tận dụng làm không gian làm việc, phòng đọc sách, hoặc thậm chí là phòng ngủ phụ, mang lại sự linh hoạt và tiện nghi cho ngôi nhà. Kiểu nhà gác lửng này không chỉ tiết kiệm chi phí xây dựng mà còn tạo cảm giác thông thoáng, rộng rãi.

Nhà cấp 4 2 phòng ngủ có gác lửng phối cảnh sang trọng, hợp xu hướng (Nguồn: Internet)

Nhà cấp 4 2 phòng ngủ có gác lửng phong cách tối giản, cực kỳ tiện nghi (Nguồn: Internet)
>> Tham khảo thêm:
Với những gia đình đề cao yếu tố tâm linh, mẫu nhà cấp 4 gồm 2 phòng ngủ và 1 phòng thờ là một giải pháp lý tưởng. Phòng thờ được bố trí riêng biệt, đảm bảo sự trang nghiêm và yên tĩnh cần thiết, thể hiện lòng thành kính của gia chủ. Sự phân chia không gian hợp lý này giúp tách biệt khu vực sinh hoạt chung và không gian thờ cúng, tạo nên sự hài hòa và thuận tiện trong sinh hoạt hàng ngày.

Nhà cấp 4 2 phòng ngủ, 1 phòng thờ bố trí hợp lý, chi phí tiết kiệm (Nguồn: Internet)

Nhà cấp 4 2 phòng ngủ, 1 phòng thờ phong cách hiện đại pha truyền thống (Nguồn: Internet)
Khi xây dựng nhà cấp 4 2 phòng ngủ, 1 phòng khách và 1 phòng bếp, việc lựa chọn vật liệu hiệu quả là rất quan trọng. Để tối ưu không gian và đảm bảo độ bền, bạn có thể cân nhắc sử dụng tấm xi măng DURAflex Low Carbon làm vách ngăn. Loại vật liệu này không chỉ lý tưởng cho việc phân chia không gian giữa phòng khách và bếp mà còn hoàn hảo cho các vách ngăn phòng ngủ, mang lại sự chắc chắn và thân thiện với môi trường.

Nhà cấp 4 2 phòng ngủ, 1 phòng khách, 1 phòng bếp thiết kế tối giản hiện đại (Nguồn: Internet)

Nhà cấp 4 2 phòng ngủ, 1 phòng khách, 1 phòng bếp mang phong cách thanh lịch, gần gũi (Nguồn: Internet)
Với ngân sách 100 triệu đồng, việc xây dựng một ngôi nhà cấp 4 2 phòng ngủ là một thách thức, nhưng hoàn toàn khả thi nếu bạn có kế hoạch chi tiết và lựa chọn vật liệu thông minh. Bạn cần tập trung vào việc tối giản thiết kế, ưu tiên các vật liệu xây dựng có chi phí thấp nhưng vẫn đảm bảo chất lượng và độ bền. Việc tự giám sát thi công và tận dụng các nguồn lực sẵn có cũng sẽ giúp tiết kiệm đáng kể chi phí.

Mẫu nhà cấp 4 đẹp giá rẻ 100 triệu 2 phòng ngủ đơn giản, phù hợp vùng quê (Nguồn: Internet)

Xây nhà cấp 4 2 phòng ngủ 100 triệu nhỏ gọn, tiện nghi tối đa (Nguồn: Internet)
>> Xem thêm:
Ngân sách 200 triệu đồng cho nhà cấp 4 2 phòng ngủ mang lại nhiều lựa chọn hơn về thiết kế và vật liệu. Bạn có thể cân nhắc các kiểu dáng hiện đại hơn, sử dụng vật liệu hoàn thiện tốt hơn như gạch men chất lượng cao, sơn ngoại thất bền đẹp, và trang bị nội thất cơ bản nhưng tiện nghi. Với mức đầu tư này, ngôi nhà của bạn sẽ không chỉ chắc chắn mà còn đảm bảo tính thẩm mỹ và công năng sử dụng.

Nhà cấp 4 2 phòng ngủ 200 triệu mái Thái đẹp nổi bật (Nguồn: Internet)

Mẫu nhà mái ngói cấp 4 2 phòng ngủ 200 triệu đẹp, mộc mạc, truyền thống (Nguồn: Internet)
>> Tham khảo thêm:
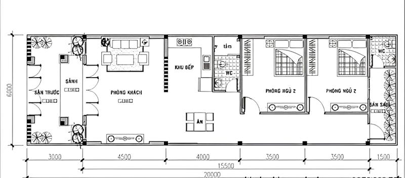
Sau đây là một số bản vẽ thiết kế nhà cấp 4 2 phòng ngủ chi tiết, đầy đủ công năng cùng cách bố trí nội thất hợp lý mà các bạn có thể tham khảo:

Bản vẽ nhà cấp 4 2 phòng ngủ đơn giản, chi tiết (Nguồn: Internet)

Bản vẽ 3D nhà cấp 4 2 phòng ngủ đẹp, nội thất đầy đủ (Nguồn: Internet)

Bản vẽ phối cảnh nhà cấp 4 2 phòng ngủ hiện đại, tiện nghi (Nguồn: Internet)

Bản vẽ nhà cấp 4 2 phòng ngủ sang trọng, đầy đủ công năng (Nguồn: Internet)
>> >> 20+ Bản vẽ nhà cấp 4 3 phòng ngủ 100m2 chi tiết, đầy đủ tiện nghi
Chi phí xây nhà cấp 4 2 phòng ngủ phần thô (gồm móng, tường, mái, sàn) thường nằm trong khoảng 3.000.000 - 5.000.000 VNĐ/m2. Với một căn nhà khoảng 70-90m2, tổng chi phí phần thô có thể dao động từ 210 - 450 triệu đồng.
Chi phí xây nhà trên thị trường hiện nay khá linh hoạt, tùy thuộc vào nhiều yếu tố như diện tích, vị trí xây dựng, loại vật liệu, phong cách thiết kế và cả thời điểm thi công. Trong đó, chi phí về vật liệu xây dựng là chiếm tỷ trọng khá nhiều, vì vậy để biết được các thông tin hoặc giá cả về sản phẩm tấm bê tông nhẹ DURAflex trong hạng mục sàn - tường - vách - mái nhà cấp 4 2 phòng ngủ, quý khách hàng vui lòng bấm:
Để sở hữu một căn nhà cấp 4 2 phòng ngủ đẹp và tối ưu chi phí, bạn cần có kế hoạch rõ ràng từ đầu. Hãy tham khảo các kinh nghiệm từ các chuyên gia sau đây nhé!
Vị trí đất ảnh hưởng lớn đến tổng chi phí. Hãy ưu tiên những khu vực có hạ tầng đồng bộ, giao thông thuận tiện nhưng giá đất hợp lý. Tránh những nơi quá xa trung tâm hoặc địa hình phức tạp, vì điều này có thể làm tăng chi phí vận chuyển vật liệu và nhân công.
Lập bảng dự toán chi tiết cho từng hạng mục như vật liệu, nhân công, thiết bị nội thất và các chi phí phát sinh. Việc này giúp bạn kiểm soát ngân sách hiệu quả, tránh tình trạng "vượt quỹ" trong quá trình thi công nhà cấp 4 2 phòng ngủ. Đừng quên dành một khoản dự phòng cho những rủi ro bất ngờ.

Dự trù kinh phí chi tiết khi thi công nhà cấp 4 2 phòng ngủ (Nguồn: Internet)
>> Đọc thêm:
Tìm hiểu các mẫu nhà cấp 4 2 phòng ngủ trên mạng hoặc qua bạn bè, người thân. Điều này giúp bạn có cái nhìn tổng quan về phong cách, bố cục và xác định được ý tưởng cho ngôi nhà của mình. Bạn có thể điều chỉnh để phù hợp với diện tích đất và ngân sách.
Bố trí không gian hợp lý là chìa khóa để tối ưu diện tích và tạo cảm giác rộng rãi cho ngôi nhà. Ưu tiên các khu vực đa năng, liên thông nhau như phòng khách và bếp để tạo không gian mở. Thiết kế các phòng ngủ vừa đủ, không quá lớn để tiết kiệm chi phí vật liệu.

Phân chia công năng sử dụng khoa học cho ngôi nhà cấp 4 2 phòng ngủ (Nguồn: Internet)
>> Xem thêm:
Sử dụng vật liệu chất lượng tốt nhưng có mức giá phải chăng là cách hiệu quả để tiết kiệm chi phí. Các sản phẩm như tấm bê tông nhẹ DURAflex Low Carbon và tấm xi măng vân gỗ DURAwood Low Carbon là lựa chọn tối ưu cho vách ngăn phòng khách và bếp, vách ngăn phòng khách, vách ngăn cầu thang, tường, sàn và trần nhà, giúp giảm thiểu tác động môi trường mà vẫn đảm bảo độ bền và tính thẩm mỹ.
Bạn có thể chọn gói thiết kế và thi công trọn gói để tiết kiệm thời gian và công sức, hoặc tự giám sát thi công nếu có kinh nghiệm để kiểm soát chi phí. Hãy tìm hiểu kỹ các nhà thầu uy tín, có kinh nghiệm để đảm bảo chất lượng công trình.

Lựa chọn hình thức thiết kế, thi công nhà cấp 4 2 phòng ngủ phù hợp (Nguồn: Internet)
Với những mẫu nhà cấp 4 2 phòng ngủ đa dạng về phong cách và thiết kế trên, hy vọng bạn đã tìm thấy ý tưởng ưng ý cho tổ ấm mơ ước của mình. Dù lựa chọn kiểu dáng nào, điều quan trọng nhất là ngôi nhà phải phù hợp với nhu cầu, sở thích và điều kiện tài chính của gia đình. Một ngôi nhà đẹp không chỉ ở kiến trúc bên ngoài mà còn là sự hài hòa, tiện nghi và cảm giác ấm cúng mà nó mang lại.
Cuối cùng, hãy liên hệ đến chúng tôi ngay để được tư vấn và báo giá các sản phẩm tấm xi măng DURAflex nhanh chóng và chi tiết ngay hôm nay nhé!
Bài viết liên quan
Đánh giá và nhận xét
Đánh giá trung bình
0/5
5
4
3
2
1
Chia sẻ và nhận xét về bài viết
Chia sẻ và nhận xét về bài viết
Bài viết chưa có đánh giá nào