
DURAflex đăng vào lúc 27/12/2025 - 09:04
Xã hội càng phát triển, nhu cầu về nhà ở tại các đô thị ngày càng cao. Tuy nhiên, do quỹ đất hạn hẹp việc tìm kiếm những mẫu thiết kế nhà ống đẹp nhưng vẫn đảm bảo đầy đủ công năng là điều mà các chủ đầu tư vô cùng quan tâm. Cùng DURAflex tham khảo những mẫu nhà ống đẹp được gợi ý trong bài viết để có kế hoạch phù hợp nhất cho ngôi nhà tương lai của mình nhé!
Nhà ống (hay nhà phố) là một kiểu kiến trúc nhà ở phổ biến tại Việt Nam, đặc trưng bởi mặt tiền hẹp và chiều sâu kéo dài, thường dao động từ 3-5 mét bề ngang. Với hạn chế về diện tích mặt tiền, nhà ống được thiết kế nhằm tối ưu hóa không gian sử dụng theo chiều cao, phổ biến từ 2 đến 5 tầng tùy vào nhu cầu sinh hoạt và khả năng tài chính của gia chủ.
Các không gian chức năng được bố trí theo chiều dọc, các tầng xây dựng chồng lên nhau để gia tăng diện tích sử dụng hiệu quả. Nhờ thiết kế đơn giản, dễ thi công và linh hoạt với nhiều loại diện tích đất, nhà ống trước đây chủ yếu xuất hiện tại khu vực đô thị đông dân cư, nơi quỹ đất ngày càng thu hẹp.
Tuy nhiên, hiện nay tại các vùng nông thôn, đặc biệt là thị trấn hoặc khu vực có tốc độ phát triển kinh tế, nhiều gia đình trẻ cũng ưu tiên lựa chọn nhà ống với quy mô vừa phải, thiết kế mái tôn, mái bằng hoặc mái thái, nhằm tạo dựng không gian sống tiện nghi, phù hợp với nhu cầu thực tế.

Nhà ống là kiểu nhà được xây dựng trên ô đất hình chữ nhật có mặt tiền hẹp (Nguồn: Internet)
>> Xem thêm:
Nhà ống là loại hình nhà ở phổ biến tại đô thị Việt Nam và có thể nhận diện qua các đặc điểm sau:
Sở hữu một ngôi nhà đẹp, tiện nghi luôn là mong muốn chung của nhiều gia đình. Tuy nhiên, thực tế cho thấy quỹ đất ở ngày càng thu hẹp, đặc biệt tại khu vực đô thị, khiến không ít người gặp khó khăn khi muốn xây dựng những ngôi nhà có diện tích lớn. Trước bài toán về không gian và chi phí, nhà ống đã trở thành lựa chọn được đông đảo gia chủ ưu tiên trong thời gian gần đây. Sự phổ biến của loại hình nhà ở này đến từ những ưu điểm thiết thực, phù hợp với điều kiện đất đai và nhu cầu sinh hoạt hiện đại.
Diện tích đất ở nước ta ngày càng bị thu hẹp, các lô đất trống thường có mặt tiền nhỏ và chiều ngang hạn chế, gây khó khăn cho việc xây dựng những ngôi nhà rộng rãi. Trong bối cảnh đó, nhà ống được xem là giải pháp phù hợp và tối ưu. Với đặc trưng thiết kế theo dạng hình chữ nhật kéo dài, nhà ống chỉ cần một lô đất có mặt tiền hẹp là đã có thể triển khai xây dựng một không gian sống tiện nghi, hiện đại theo đúng nhu cầu của gia chủ.
Nhờ cách bố trí hợp lý theo chiều sâu, mẫu nhà này giúp tiết kiệm diện tích xây dựng hiệu quả mà vẫn đảm bảo công năng sử dụng. Không chỉ vậy, nhà ống còn dễ dàng mở rộng không gian bằng cách xây dựng thêm 2 tầng, 3 tầng thay vì chỉ một tầng, từ đó đáp ứng tốt nhu cầu sinh hoạt của nhiều gia đình. Đây cũng chính là lý do quan trọng khiến nhà ống trở thành mẫu nhà được nhiều người tin tưởng và lựa chọn hiện nay.

Nhà ống phù hợp với đa dạng diện tích đất (Nguồn: Internet)
Nhà ống thường được thiết kế theo phong cách kiến trúc đơn giản, bố cục gọn gàng và ít chi tiết cầu kỳ, nhờ đó giúp tối ưu không gian sử dụng và tạo cảm giác thông thoáng hơn cho ngôi nhà. Chính sự tinh giản này góp phần rút ngắn đáng kể thời gian thiết kế cũng như quá trình thi công so với nhiều loại hình nhà ở khác. Trên thực tế, khi xây dựng nhà ống, gia chủ chỉ cần một đội ngũ thi công có tay nghề vững vàng và làm việc chuyên nghiệp là công trình đã có thể hoàn thiện trong thời gian tương đối ngắn.
Điều này mang lại nhiều lợi ích thiết thực như nhanh chóng sở hữu không gian sống đẹp, sớm ổn định sinh hoạt và tiết kiệm chi phí thuê nhân công. Vì vậy, trong bối cảnh xu hướng lựa chọn nhà ống ngày càng gia tăng, yếu tố thời gian thi công nhanh được xem là một trong những lý do quan trọng khiến mô hình nhà ở này ngày càng được ưa chuộng.

Nhà ống có thời gian thiết kế, thi công nhanh chóng (Nguồn: Internet)
>> >> Xem thêm:
Bên cạnh các ưu điểm về chi phí và diện tích, nhà ống còn được nhiều gia đình lựa chọn bởi khả năng trang trí và thiết kế linh hoạt. Hiện nay, kiểu nhà này đã có rất nhiều mẫu thiết kế đa dạng, từ hiện đại, tối giản đến tân cổ điển, giúp gia chủ dễ dàng lựa chọn phong cách phù hợp với nhu cầu và gu thẩm mỹ của mình. Nhờ đó, khi xây dựng nhà ống, bạn vẫn có thể đảm bảo yếu tố thẩm mỹ tổng thể cho ngôi nhà sau khi hoàn thiện.
Chỉ cần xác định rõ mẫu nhà ống mà mình yêu thích, gia chủ có thể trao đổi và phối hợp cùng kiến trúc sư để xây dựng phương án thiết kế tối ưu nhất. Quá trình này giúp không gian sống được bố trí hài hòa, đẹp cả về công năng lẫn hình thức, mà không cần phải sở hữu những khu đất rộng như các kiểu nhà truyền thống khác.

Nhà ống dễ dàng trang trí và thiết kế (Nguồn: Internet)
Nhà ống là một trong những mẫu nhà có cấu trúc tương đối đơn giản nhưng vẫn đảm bảo tính thẩm mỹ, mang phong cách hiện đại và phù hợp với xu hướng sống ngày nay. Nhờ thiết kế linh hoạt, mẫu nhà này dễ dàng thích ứng với nhiều không gian khác nhau, từ khu vực đô thị đông đúc đến vùng nông thôn có quỹ đất hạn chế. Bên cạnh đó, nhà ống còn đáp ứng đa dạng nhu cầu sử dụng cũng như điều kiện kinh tế và diện tích của từng gia chủ, giúp tối ưu chi phí xây dựng mà vẫn đảm bảo công năng. Chính những ưu điểm này đã khiến nhà ống trở thành lựa chọn phổ biến và ngày càng được nhiều gia đình ưu tiên.
Mẫu nhà ống cấp 4 (hay còn gọi là nhà ống 1 tầng) ngày càng được ưa chuộng ở nước ta, không chỉ tại các thành phố lớn mà còn phổ biến ở khu vực nông thôn. Nhờ thiết kế đơn giản, chi phí xây dựng thấp và thời gian thi công nhanh, kiểu nhà này trở thành lựa chọn lý tưởng cho những gia đình nhỏ. So với kiến trúc truyền thống, nhà ống cấp 4 hiện đại mang đến phong cách mới lạ, ấn tượng nhưng vẫn đảm bảo đầy đủ tiện nghi. Đặc biệt, với kết cấu một tầng, mẫu nhà này giúp tối ưu không gian sống và thuận tiện trong sinh hoạt, rất phù hợp với người già và trẻ nhỏ khi không phải di chuyển qua cầu thang.

Mẫu nhà ống cấp 4 đẹp, hiện đại với ốp tường từ tấm xi măng vân gỗ DURAwood (Nguồn: Internet)

Mẫu nhà ống 1 tầng đẹp 5x20 giá rẻ, đẹp phù hợp cho gia đình nhỏ (Nguồn: Internet)

Mẫu nhà ống 1 tầng nông thôn với hai phòng ngủ hiện đại (Nguồn: Internet)

Mẫu nhà ống đẹp 1 tầng với gam màu trắng nhẹ nhàng, tinh tế (Nguồn: Internet)

Mẫu nhà ống đẹp 1 tầng ở nông thôn với thiết kế mái lệch độc đáo (Nguồn: Internet)

Mẫu nhà ống 1 tầng đẹp, thiết kế đầy đủ tiện nghi (Nguồn: Internet)

Mẫu nhà cấp 4 nông thôn 3 phòng ngủ mái Nhật đẹp, đơn giản cho công trình (Nguồn: Internet)
>> Tham khảo ngay:
Mẫu nhà ống 2 tầng là lựa chọn phổ biến cho các gia đình muốn có không gian sống rộng rãi hơn mà không chiếm quá nhiều diện tích đất. Ưu điểm của mẫu nhà này là tối ưu hóa diện tích sử dụng, có thể chia thành nhiều phòng chức năng và mang lại không gian riêng tư cho các thành viên. Tuy nhiên, nhược điểm là việc thi công tốn nhiều chi phí và thời gian hơn so với nhà 1 tầng và nếu không thiết kế hợp lý, nhà có thể thiếu ánh sáng và gió tự nhiên, gây cảm giác bí bách.

Mẫu nhà 2 tầng đẹp, đầy đủ tiện nghi, được nhiều người ưa chuộng năm 2026 (Nguồn: Internet)

Mẫu nhà 2 tầng nông thôn 500 triệu có ban công rộng rãi thoáng mát (Nguồn: Internet)

Mẫu nhà 2 tầng đẹp ở nông thôn phong cách đơn giản có sân rộng để đổ xe (Nguồn: Internet)

Mẫu nhà 1 trệt 1 lầu đẹp với bề ngang 5m và thiết kế hiện đại (Nguồn: Internet)

Mẫu nhà ống 2 tầng đẹp, phổ biến nhất hiện nay (Nguồn: Internet)

Mẫu nhà ống đẹp 2 tầng với thiết kế nhiều cửa kính để hứng ánh sáng tự nhiên (Nguồn: Internet)

Mẫu nhà 1 trệt 1 lầu 5x15 đẹp thiết kế 1 tum làm khu vườn (Nguồn: Internet)

Mẫu nhà 1 trệt 1 lầu 5x20 đẹp, tiện lợi với góc sân thượng trồng cây xanh (Nguồn: Internet)

Mẫu nhà 2 tầng đẹp giá 1 tỷ có 1 tum thoáng mát (Nguồn: Internet)
>> >> Xem thêm:
Nhà ống 3 tầng là sự lựa chọn phù hợp cho các gia đình có nhiều thành viên hoặc những ai muốn kết hợp không gian sống và kinh doanh. Với thiết kế nhiều tầng, mẫu nhà này giúp tối đa hóa diện tích đất, mang đến không gian sống rộng rãi và tiện nghi. Tuy nhiên, nhược điểm của kiểu nhà này là chi phí xây dựng khá cao, cầu thang chiếm diện tích và việc di chuyển giữa các tầng có thể gây khó khăn, đặc biệt là với người già và trẻ nhỏ.

Mẫu nhà ống đẹp 3 tầng 4m mặt tiền rộng (Nguồn: Internet)

Mẫu nhà ống đẹp 3 tầng với thiết kế nhiều cửa kính để thông quang thoáng khí (Nguồn: Internet)

Thiết kế mặt tiền nhà ống đẹp 3 tầng vô cùng độc đáo, ấn tượng (Nguồn: Internet)

Mẫu nhà ống đẹp 3 tầng thiết kế mái bằng hiện đại (Nguồn: Internet)

Thiết kế nhà ống đẹp 3 tầng kết hợp ban công để ngắm cảnh (Nguồn: Internet)

Mẫu nhà ống đẹp 3 tầng 5m mái Thái đẹp, ấn tượng (Nguồn: Internet)

Mẫu nhà ống đẹp 3 tầng 6m mặt tiền thoáng mát, tiện nghi (Nguồn: Internet)

Mẫu nhà ống đẹp 3 tầng 4x15m với thiết kế mái bằng đơn giản (Nguồn: Internet)
BÁO GIÁ TẤM XI MĂNG DURAFLEX NGAY
>> Xem thêm:
Với thiết kế nhiều tầng, mẫu nhà ống 4 tầng có thiết kế tận dụng tối đa không gian, mang lại nhiều phòng chức năng và không gian sống thoải mái. Tuy nhiên, nhược điểm của mẫu nhà này là chi phí xây dựng cao, cầu thang chiếm diện tích lớn và gây bất tiện cho việc di chuyển. Hơn nữa, nếu thiết kế không hợp lý, việc thiếu ánh sáng và thông gió tự nhiên giữa các tầng có thể tạo cảm giác bí bách, ngột ngạt cho các thành viên trong nhà.

Mẫu nhà ống đẹp 4 tầng thiết kế hiện đại (Nguồn: Internet)

Mẫu nhà ống 4 tầng đẹp, sang trọng, đầy đủ tiện nghi (Nguồn: Internet)

Mẫu nhà ống 4 tầng đẹp, hiện đại được nhiều người ưa chuộng nhất 2026 (Nguồn: Internet)
>> Tham khảo thêm:
Những mẫu nhà ống ở nông thôn thường hướng đến sự mộc mạc, hài hòa với thiên nhiên. Mẫu nhà này thường có thiết kế đơn giản với một hoặc hai tầng, mái ngói truyền thống và tường sơn gam màu nhẹ nhàng, tạo cảm giác thoáng đãng. Để không gian sống thêm phần thoải mái, gia chủ có thể thiết kế sân trước rộng rãi, hiên nhà thông thoáng. Bên cạnh đó, nếu gia đình có nhu cầu mở rộng, nhà ống có thể dễ dàng thêm tầng hoặc cải tạo các khu vực không gian. Tuy nhiên, mẫu nhà này cũng có một số nhược điểm, như hạn chế về diện tích sống, thiếu sự riêng tư giữa các thành viên trong gia đình.

Mẫu nhà 2 tầng nông thôn 800 triệu đẹp, hiện đại, thiết kế tầng tum hài hòa, gần gũi với thiên nhiên (Nguồn: Internet)

Xây nhà 500 triệu ở nông thôn dạng nhà ống đẹp, hiện đại, phổ biến ở Việt Nam (Nguồn: Internet)
>> Xem thêm:
Nhà ống hiện đại gây ấn tượng với thiết kế tối giản nhưng đầy cuốn hút, tập trung vào các đường nét thanh thoát và bố cục hài hòa. Gam màu trung tính như trắng, xám, đen được sử dụng phổ biến, mang lại cảm giác sang trọng và thời thượng. Điểm nhấn đặc biệt của mẫu nhà đẹp này là mặt tiền với cửa sổ lớn kéo dài từ sàn đến trần, giúp tận dụng tối đa ánh sáng tự nhiên, tạo không gian mở và thoáng đãng.
Ưu điểm của mẫu nhà ống hiện đại là sự linh hoạt trong việc thiết kế không gian, dễ dàng kết hợp với các yếu tố như giếng trời, cửa sổ lớn để đón ánh sáng tự nhiên. Tuy nhiên, nhược điểm lớn nhất của kiểu nhà này, giống như những mẫu nhà ống khác, là không gian sống có thể trở nên chật chội, nhất là khi diện tích mặt tiền hẹp.

Mẫu nhà ống hiện đại, đẹp thiết kế mặt tiền thoáng đãng, tạo không gian sống sang trọng và tinh tế (Nguồn: Internet)

Mẫu nhà ống hiện đại, đẹp thiết kế cửa sổ lớn đón ánh sáng tự nhiên, mang đến vẻ đẹp thanh lịch và tiện nghi (Nguồn: Internet)
>> Đọc thêm: 60+ Mẫu nhà cấp 4 2 phòng ngủ đẹp, đơn giản, tiết kiệm chi phí
Mặc dù đã xuất hiện từ rất lâu nhưng phong cách tân cổ điển vẫn rất được ưa chuộng tại Việt Nam. Chính vì vậy, ngoài các mẫu thiết kế biệt thự quen thuộc, phong cách thiết kế này còn được các kiến trúc sư áp dụng cho nhà ống, mang đến nét độc đáo nhưng vẫn giữ được sự sang trọng vốn có.
Kiến trúc nhà ống tân cổ điển 3 tầng mang vẻ đẹp thanh lịch, mềm mại nhưng không kém phần sang trọng. Đặc trưng của phong cách này thể hiện rõ qua các chi tiết trang trí mang đậm dấu ấn cổ điển, đặc biệt là trên mặt tiền ngôi nhà. Những đường phào chỉ tinh tế, phù điêu sắc sảo và hoa văn trang nhã chính là điểm nhấn, tạo nên sự cuốn hút và đẳng cấp cho tổng thể kiến trúc.
Ưu điểm của mẫu nhà này là tính thẩm mỹ cao, với những chi tiết trang trí cầu kỳ, tạo nên một không gian sống lộng lẫy và quý phái. Hơn nữa, thiết kế tân cổ điển giúp nhà ống trở nên nổi bật và khác biệt giữa những công trình mang phong cách hiện đại, tối giản. Tuy nhiên, nhược điểm của mẫu nhà này là chi phí xây dựng cao, đặc biệt đối với những chi tiết trang trí phức tạp và vật liệu cao cấp.

Mẫu biệt thự tân cổ điển 2 tầng 1 tỷ nhà ống đẹp phong cách tân cổ điển (Nguồn: Internet)

Mẫu nhà ống đẹp theo phong cách tân cổ điển (Nguồn: Internet)

Mẫu nhà ống đẹp, 4 tầng, sang trọng phong cách tân cổ điển (Nguồn: Internet)

Thiết kế nhà ống đẹp tân cổ điển kết hợp hệ thống cửa kính (Nguồn: Internet)

Mẫu nhà ống đẹp tân cổ điển với họa tiết tinh tế (Nguồn: Internet)

Thiết kế nhà ống kết hợp kiến trúc tân cổ điển và hiện đại (Nguồn: Internet)
>> Xem thêm:
Mẫu nhà ống 2 mặt tiền sở hữu nhiều ưu điểm nổi bật, đáng chú ý nhất là khả năng đón ánh sáng tự nhiên và thông gió hiệu quả, mang lại không gian sống thoáng đãng. Thiết kế 2 mặt tiền cũng là vị trí thuận lợi trong phong thủy, mang lại may mắn cho gia chủ. Tuy nhiên, mẫu nhà này đòi hỏi diện tích đất rộng và thiết kế phức tạp, làm tăng chi phí thiết kế và xây dựng.

Mẫu nhà ống 2 mặt tiền đẹp, thiết kế rộng rãi (Nguồn: Internet)

Mẫu nhà ống 2 mặt tiền 2 tầng thiết kế hiện đại, với các đường nét tinh tế (Nguồn: Internet)

Mẫu nhà ống 2 mặt tiền trước và sau (Nguồn: Internet)

Mẫu nhà ống 2 mặt tiền 3 tầng rộng rãi (Nguồn: Internet)

Thiết kế nhà ống 2 mặt tiền vát góc (Nguồn: Internet)

Mẫu nhà ống đẹp 2 mặt tiền sang trọng (Nguồn: Internet)
BÁO GIÁ TẤM XI MĂNG DURAFLEX NGAY
Ưu điểm lớn nhất của mẫu nhà ống có sân vườn là khả năng điều hòa không khí, mang đến môi trường sống trong lành và thư giãn. Thiết kế sân vườn không chỉ giúp tăng tính thẩm mỹ mà còn cải thiện phong thủy, tạo cảm giác thoải mái, giảm căng thẳng và nâng cao chất lượng cuộc sống. Tuy nhiên, nếu mốn xây dựng nhà ống có sân vườn yêu cầu phải có diện tích đất lớn, không phù hợp với những khu đất nhỏ hẹp. Bên cạnh đó, chi phí thiết kế, thi công và bảo trì cũng cao hơn so với các mẫu nhà thông thường.

Mẫu nhà ống đẹp có sân vườn kết hợp hệ thống cửa kính thoáng đãng (Nguồn: Internet)

Mẫu nhà vườn đẹp có thiết kế dạng ống (Nguồn: Internet)
>> Đọc thêm:
Mẫu nhà ống đẹp mặt tiền 4m là lựa chọn phổ biến ở khu vực thành thị, nhờ thiết kế đơn giản, phù hợp với lô đất nhỏ và tiết kiệm chi phí xây dựng. Với chiều ngang hẹp, kiểu nhà này thường có chiều dài lớn, có thể tận dụng giếng trời hoặc cửa sổ để lấy sáng và thông gió. Tuy nhiên, nhược điểm là không gian dễ bị bí bách, khó bố trí nội thất hợp lý và hạn chế trong việc tạo mặt tiền đẹp. Vì vậy, cần thiết kế thông minh để tối ưu diện tích và đảm bảo sự thoáng đãng cho ngôi nhà.

Mẫu nhà ống đẹp mặt tiền 4m có sân vườn nhỏ (Nguồn: Internet)

Mẫu nhà ống đẹp mặt tiền 4m thiết kế hiện đại (Nguồn: Internet)

Mẫu nhà ống đẹp thiết kế 3 tầng có mặt tiền 4m (Nguồn: Internet)

Mẫu nhà ống đẹp 4m với kiểu mái độc đáo (Nguồn: Internet)

Mẫu nhà ống đẹp mặt tiền 4m phong cách hiện đại (Nguồn: Internet)

Mẫu nhà ống 3 tầng đẹp mặt tiền 4m với thiết kế độc đáo, ấn tượng (Nguồn: Internet)
>> Có thể bạn quan tâm:
Mẫu nhà ống đẹp mặt tiền 5m không chỉ đáp ứng đầy đủ các nhu cầu sử dụng mà còn đảm bảo tính thẩm mỹ. Với diện tích 5m, những ngôi nhà này mang đến vẻ đẹp tinh tế và phù hợp cho những gia đình có 2-3 thế hệ cùng sinh sống, tạo nên một không gian sống thoải mái và ấm cúng. So với nhà ống mặt tiền 4m, mẫu nhà này có ưu điểm là không gian rộng rãi hơn, giúp việc bố trí nội thất trở nên linh hoạt và dễ dàng hơn. Ngoài ra, ánh sáng và thông gió cũng được cải thiện, tạo cảm giác thoáng đãng hơn. Tuy nhiên, với chiều ngang vẫn còn hạn chế, nếu không tối ưu thiết kế, ngôi nhà có thể trông dài và sâu, gây cảm giác hẹp.

Mẫu nhà ống đẹp mặt tiền 5m tận dụng làm sân rộng rãi (Nguồn: Internet)

Mẫu nhà ống đẹp mặt tiền 5m có chỗ để xe ô tô (Nguồn: Internet)

Mẫu nhà ống đẹp mặt tiền 5m sâu 20m có cổng chào mời thoáng đãng (Nguồn: Internet)

Mẫu nhà ống đẹp mặt tiền 5m mái Nhật hiện đại (Nguồn: Internet)

Mẫu nhà ống mặt tiền 5m 2 tầng đẹp, hiện đại (Nguồn: Internet)

Mẫu nhà ống đẹp 2 tầng mặt tiền 5m với mái bằng hiện đại (Nguồn: Internet)

Mẫu thiết kế nhà ống mặt tiền 5m đẹp, hiện đại (Nguồn: Internet)

Mẫu nhà ống đẹp thiết kế mặt tiền 5 mái Thái ấn tượng (Nguồn: Internet)
BÁO GIÁ TẤM XI MĂNG DURAFLEX NGAY
>> Xem thêm:
Thiết kế nhà ống đẹp mặt tiền 6m mang đến sự linh hoạt trong việc lựa chọn phong cách kiến trúc, từ cổ điển, tân cổ điển đến hiện đại, tùy thuộc vào sở thích cá nhân của mỗi gia chủ. Với lợi thế về chiều ngang, ngôi nhà có không gian rộng rãi, dễ dàng bố trí nội thất, tạo mặt tiền ấn tượng và tận dụng ánh sáng, gió tự nhiên hiệu quả hơn so với những mẫu nhà ống mặt tiền 4m, 5m. Tuy nhiên, chi phí xây dựng thường cao hơn và cần có phương án thiết kế hợp lý để tối ưu diện tích, đảm bảo công năng mà không gây lãng phí không gian.

Mẫu nhà ống đẹp mặt tiền 6m thiết kế 2 tầng 1 tum (Nguồn: Internet)

Mẫu nhà chữ L dạng ống đẹp mặt tiền 6m thiết kế 2 tầng (Nguồn: Internet)

Mẫu nhà ống đẹp mặt tiền 6m thiết kế 3 tầng kết hợp cửa gỗ sang trọng (Nguồn: Internet)
>> Xem thêm:
Mẫu nhà ống đẹp với mặt tiền rộng 7m tạo điều kiện thuận lợi cho sự sáng tạo kiến trúc theo phong cách của riêng bạn. Với lợi thế chiều ngang lớn, gia chủ có thể thiết kế mặt tiền ấn tượng, tạo điểm nhấn kiến trúc độc đáo và bố trí nội thất linh hoạt. Hệ thống cửa sổ, giếng trời hoặc ban công cũng có thể được tận dụng tối đa để tăng cường ánh sáng tự nhiên và thông gió, giúp không gian sống luôn thoải mái. Ngoài ra, mẫu nhà này cho phép tích hợp thêm gara, sân vườn hoặc mở rộng không gian sinh hoạt chung một cách dễ dàng. Tuy nhiên, đi kèm với sự tiện nghi là chi phí xây dựng cao hơn, đòi hỏi sự tính toán hợp lý để tránh lãng phí diện tích và đảm bảo sự hài hòa giữa kiến trúc và công năng.

Mẫu nhà ống đẹp mặt tiền 7m thiết kế dưới dạng các khối hộp độc đáo (Nguồn: Internet)

Mẫu nhà ống 3 tầng mặt tiền 7m rộng rãi, tiện nghi (Nguồn: Internet)

Mẫu nhà ống 2 tầng mặt tiền 7 m trang trí nội thất đẹp, hiện đại (Nguồn: Internet)

Mẫu nhà ống đẹp, hiện đại, sang trọng có 7m mặt tiền (Nguồn: Internet)
>> Xem thêm: 55+ Mẫu nhà cấp 4 mái tôn dưới 100 triệu đẹp, đơn giản, tiện nghi
Nếu như sở hữu diện tích đất có chiều ngang hẹp hơn nhiều so với chiều dài, gia chủ có thể cân nhắc xây dựng mẫu nhà ống 2 phòng ngủ. Ưu điểm của mẫu nhà này là thiết kế gọn gàng, tối ưu diện tích sử dụng và tiết kiệm chi phí xây dựng. Với 2 phòng ngủ, ngôi nhà vẫn đảm bảo sự riêng tư nhưng không quá tốn kém chi phí và thời gian thi công. Tuy nhiên, nhược điểm là diện tích có phần hạn chế, khó đáp ứng nhu cầu sinh hoạt nếu gia đình có thêm thành viên hoặc cần không gian sinh hoạt chung rộng rãi. Vì vậy, khi thiết kế, cần cân nhắc kỹ để tối ưu công năng và đảm bảo sự thoải mái lâu dài.

Mẫu thiết kế nhà ống 2 phòng ngủ đẹp, hiện đại, đầy đủ tiện nghi (Nguồn: Internet)

Mẫu nhà ống 70m2 2 phòng ngủ phong cách hiện đại, thoáng mát (Nguồn: Internet)
BÁO GIÁ TẤM XI MĂNG DURAFLEX NGAY
>> Xem thêm:
Mẫu nhà ống 3 phòng ngủ dưới đây có thiết kế hình khối vô cùng độc đáo. Thay vì chọn cách xây dựng cao tầng để đảm bảo đầy đủ các khu vực chức năng cần thiết, gia chủ đã quyết định xây dựng chỉ 2 tầng và bổ sung một phần sân nhỏ bên cạnh để tận dụng ánh sáng tự nhiên. Ưu điểm lớn nhất của mẫu nhà này là đảm bảo sự riêng tư cho các thành viên trong gia đình, đồng thời vẫn có đủ diện tích cho các khu vực sinh hoạt chung như phòng khách, bếp và phòng ăn. Với thiết kế hợp lý, ngôi nhà có thể tận dụng ánh sáng tự nhiên và thông gió tốt, giúp không gian luôn thoáng đãng và thoải mái. Tuy nhiên, nhược điểm là nếu diện tích đất hạn chế, việc sắp xếp 3 phòng ngủ có thể khiến không gian chung bị thu hẹp, tạo cảm giác chật chội.

Mẫu nhà cấp 4 3 phòng ngủ 500 triệu đẹp, hiện đại, thiết kế phá cách (Nguồn: Internet)

Mẫu nhà ống đẹp, tiện nghi thiết kế 3 phòng ngủ giá 300 triệu (Nguồn: Internet)
>> >> Xem thêm:
Các mẫu nhà ống đẹp với 4 phòng ngủ thường được thiết kế từ 2 - 3 tầng để phân chia không gian, đảm bảo sự riêng tư và tạo cảm giác thoải mái cho các thành viên trong gia đình khi sử dụng. Một trong những ưu điểm nổi bật của mẫu nhà này là tận dụng được diện tích đất nhỏ, giúp gia đình có đủ phòng ngủ riêng mà không chiếm quá nhiều không gian. Thiết kế của mẫu nhà ống khá đơn giản, dễ thi công và tiết kiệm chi phí xây dựng. Tuy nhiên, nhược điểm là không gian trong nhà thường không được thông thoáng, khiến các phòng có cảm giác tách biệt và thiếu sự kết nối giữa các không gian với nhau.

Mẫu nhà ống 4 phòng ngủ đẹp, tiện nghi (Nguồn: Internet)

Mẫu nhà ống hiện đại 3 tầng 4 phòng ngủ với tấm xi măng làm tường Cemboard DURAflex 2X bề đẹp (Nguồn: Internet)
>> Xem thêm:
Mẫu nhà ống kết hợp kinh doanh là lựa chọn tuyệt vời cho những gia đình vừa muốn có không gian sống thoải mái, vừa có thể kinh doanh ngay tại nhà. Thiết kế đơn giản nhưng không kém phần ấn tượng giúp thu hút khách hàng, đồng thời giúp tiết kiệm đáng kể chi phí thuê mặt bằng ngoài. Tuy nhiên, nhược điểm của mẫu nhà này là việc kết hợp giữa không gian sống và kinh doanh có thể ảnh hưởng đến sự riêng tư, vì tiếng ồn và sự nhộn nhịp từ khách hàng có thể ảnh hưởng đến sinh hoạt gia đình. Hơn nữa, việc phân chia không gian sao cho hợp lý giữa các khu vực có thể là một thách thức trong thiết kế.

Mẫu nhà ống kết hợp kinh doanh với thiết kế hiện đại, tối ưu không gian (Nguồn: Internet)
Mẫu nhà ống mái Thái có ưu điểm nổi bật là thiết kế hiện đại, sang trọng, mang đến không gian sống thoáng mát và dễ chịu nhờ hệ thống mái dốc, giúp thoát nước mưa hiệu quả. Mái Thái còn giúp điều hòa nhiệt độ trong nhà, giữ cho không gian luôn mát mẻ vào mùa hè và ấm áp vào mùa đông. Tuy nhiên, việc thi công nhà mái Thái cần sự tỉ mỉ và tay nghề cao để đảm bảo độ bền và thẩm mỹ cho ngôi nhà.

Mẫu nhà mái Thái 2 tầng đẹp, sang trọng, hiện đại (Nguồn: Internet)

Mẫu nhà ống mái Thái 5x20m đẹp, hiện đại (Nguồn: Internet)

Mẫu nhà cấp 4 mái Thái với thiết kế ấn tượng, độc đáo (Nguồn: Internet)
>> Xem thêm:
Mẫu nhà ống mái Nhật được yêu thích nhờ thiết kế thanh thoát và tính tinh tế. Ưu điểm lớn của mẫu nhà mái Nhật này là mái dốc nhẹ, tạo cảm giác thoáng đãng và không gian rộng rãi hơn, đồng thời giúp thoát nước mưa nhanh chóng và hạn chế thấm dột. Mái Nhật cũng rất phù hợp với khí hậu nhiệt đới, giúp giữ mát vào mùa hè và ấm áp vào mùa đông. Tuy nhiên, nhược điểm của mẫu nhà này là chi phí xây dựng có thể cao hơn do yêu cầu về vật liệu và kỹ thuật thi công mái khá đặc biệt. Hơn nữa, việc bảo dưỡng mái lâu dài cũng cần sự chú ý để tránh hư hỏng.

Mẫu nhà ống đẹp, đơn giản, hiện đại, phổ biến tại Việt Nam (Nguồn: Internet)

Mẫu 8x12m nhà mái Nhật 2 tầng đẹp, được yêu thích hiện nay (Nguồn: Internet)

Mẫu nhà mái Nhật 2 tầng hiện đại, thiết kế cao cấp (Nguồn: Internet)
>> Xem thêm:
Mái bằng là lựa chọn lý tưởng cho những ai ưa chuộng phong cách hiện đại và độc đáo. Với thiết kế hình khối đơn giản, mái bằng mang lại vẻ ngoài vuông vắn, chắc chắn. Ưu điểm lớn nhất của nhà ống mái bằng là khả năng tận dụng tối đa diện tích mái để làm sân thượng hoặc không gian sinh hoạt ngoài trời, rất lý tưởng cho những gia đình muốn có khu vực thư giãn, trồng cây hoặc tổ chức tiệc ngoài trời. Ngoài ra, mái bằng có chi phí xây dựng thấp và dễ thi công, Tuy nhiên, nhược điểm của mẫu nhà này là khả năng thoát nước không tốt như mái Thái và mái Nhật, dễ gây thấm dột nếu không được thiết kế và bảo trì kỹ lưỡng.

Mẫu nhà ống đẹp, hiện đại với thiết kế mái bằng (Nguồn: Internet)

Mẫu nhà ống 1 tầng mái bằng đẹp (Nguồn: Internet)

Mẫu nhà ống 2 tầng mái bằng diện tích 4x14m (Nguồn: Internet)
>> Xem thêm:
Mái lệch của nhà ống tạo nên điểm nhấn nổi bật với sự bất đối xứng và các đường nét đầy tính nghệ thuật. Thiết kế độc đáo này không chỉ lạ mắt mà còn đòi hỏi sự tỉ mỉ trong thi công để đảm bảo kết cấu vững chắc. Mái lệch mang đến một không gian sống sáng tạo và đầy dấu ấn cá nhân. Tuy nhiên, nhược điểm của mẫu nhà mái lệch này là chi phí xây dựng cao hơn so với nhà mái truyền thống. Ngoài ra, việc bảo dưỡng mái lệch cũng đòi hỏi sự kỹ lưỡng để duy trì tính thẩm mỹ và độ bền của công trình.

Mẫu nhà ống 2 tầng mái lệch, ấn tượng, độc đáo nhất hiện nay (Nguồn: Internet)

Mẫu biệt thự mini nhà ống đẹp mái lệch hiện đại (Nguồn: Internet)

Mẫu nhà ống 2 tầng mái lệch với thiết kế mới nhất 2026 (Nguồn: Internet)
>> Xem thêm:
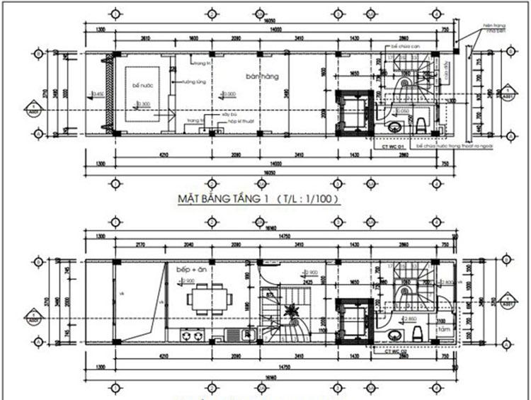
Sau đây là một số bản vẽ thiết kế nhà ống đẹp, tiện nghi, các phòng chức năng được bố trí hợp lý mà các gia chủ có thể tham khảo:

Bản vẽ thiết kế mẫu nhà ống đẹp tầng 1 (Nguồn: Internet

Bản vẽ thiết kế mẫu nhà ống đẹp tầng 2 (Nguồn: Internet)

Bản vẽ thiết kế nhà ống 2 tầng kết hợp kinh doanh với bố cục thông minh, tối ưu không gian (Nguồn: Internet)

Bản vẽ thiết kế nhà ống có thêm tầng tum với bố cục khoa học, tiện nghi, thoáng đãng (Nguồn: Internet)
>> Xem thêm:
Khi thiết kế nhà ống, các bạn cần lưu ý những điều sau để ngôi nhà không chỉ đẹp về mặt thẩm mỹ mà còn tối ưu về không gian, công năng và tiện ích:

Khi thiết kế mẫu nhà ống cần lưu ý đến ánh sáng và phân chia các phòng hợp lý (Nguồn: Internet)
Nvgoài ra, ật liệu xây dựng đóng vai trò quan trọng trong việc đảm bảo độ bền, tính thẩm mỹ và sự thoải mái cho ngôi nhà. Đối với các mẫu nhà ống thấp tầng sử dụng mái tôn hoặc mái bằng, hãy sử dụng Tấm trần thả DURADECOR để đảm bảo trần nhà có khả năng cách nhiệt và chống nóng hiệu quả. Ngoài ra, để tăng độ bền cho công trình, bạn cũng nên sử dụng Tấm DURAflex 2X 6mm-10mm để tăng khả năng chịu ẩm, chống nóng tường nhà, chống nóng mái tôn, cách âm tốt và giúp giảm nhiệt cho tường nhà, tạo không gian sống an toàn, bền vững và thân thiện với sức khỏe.
>> Đọc thêm: 9 Cách chống nóng cho trần nhà đạt hiệu quả nhanh nhất
Xây nhà ống là lựa chọn lý tưởng cho những mảnh đất hẹp và dài, đặc biệt ở các khu đô thị. Kiểu nhà này giúp tối ưu hóa diện tích sử dụng, rất phù hợp với các gia đình nhỏ hoặc vừa. Tuy nhiên, do chiều ngang hạn chế, nhà ống có thể gặp vấn đề về ánh sáng và sự thông thoáng. Vì vậy, việc lựa chọn thiết kế hợp lý là điều cần thiết để khắc phục những nhược điểm này, mang lại không gian sống thoải mái và tiện nghi.
Xây nhà ống đang được ưa chuộng vì chủ nhà có thể tiết kiệm được chi phí do thiết kế đơn giản và xây dựng trong thời gian ngắn. Tuy nhiên, DURAflex vẫn muốn chia sẻ cho người đọc cách tính giá xây dựng nhà ống sao cho sang trọng và vừa túi tiền.
Bước 1: Tính theo diện tích nhà ống quy đổi
Diện tích của mẫu nhà ống đơn giản sẽ bằng tổng các phần (1) (2) (3) (4). Trong đó:
(1) là phần móng:
Móng đơn = 40% x S (Diện tích sàn)
Móng cọc ép tải = 30% x S (diện tích sàn)
Móng cọc ép neo = 40% x S (diện tích sàn)
Móng băng = 50% x S (diện tích sàn)
(2) là phần thân:
Tầng trệt, lầu = 100% x S (diện tích phần xây dựng)
Tầng lửng = 50% x S (diện tích phần xây dựng)
(3) là phần mái nhà:
Mái bê tông = 50% x S (diện tích phần xây dựng)
Mái tôn = 20% x S (diện tích phần xây dựng)
Nhà mái ngói = 70% x S (diện tích phần xây dựng)
Mái ngói đổ bê tông = 100% x S (diện tích phần xây dựng)
(4) là sân nhà:
Sân trước + sau= 30% - 50% x S (diện tích phần xây dựng)
Bước 2: Tính theo chi phí xây dựng nhà ống
Chi phí xây dựng = Diện tích xây dựng quy đổi x Giá xây dựng
Lưu ý: Giá xây dựng toàn bộ gần đây dao động từ 5,4 - 6,45 triệu/m2

Thi công nhà ống hiện đại giúp tiết kiệm chi phí cho gia chủ (Nguồn: Internet)
Xu hướng thiết kế nhà ống hiện nay hướng đến sự đơn giản, tinh tế và tối ưu hóa không gian. Các yếu tố như ánh sáng tự nhiên, thông gió và cây xanh được chú trọng nhằm tạo nên một không gian sống thoáng đãng, trong lành, mang lại cảm giác thoải mái cho gia chủ.

Xu hướng thiết kế nhà ống hiện nay tập trung vào sự tối giản, tinh tế và tối ưu không gian sống (Nguồn: Internet)
>> Đọc thêm:
Đối với các công trình nhà ống, việc lựa chọn vật liệu thi công vô cùng quan trọng. Ngoài tính thẩm mỹ, vật liệu phải đảm bảo độ bền, dễ di chuyển và bảo quản do không gian thi công nhà ống không được rộng rãi và thuận tiện như các kiểu nhà khác. Đó là lý do vì sao rất nhiều người lựa chọn tấm xi măng DURAflex để thay thế cho các loại vật liệu truyền thống ở các hạng mục như: tường nội thất, tường ngoại thất; lót sàn nhà, sàn ngoại thất, sàn gác lửng; trần chìm; trần thả; lót mái,…
Tấm DURAflex 2X (hay tấm bê tông nhẹ) có thành phần chính gồm xi măng Portland, cát mịn và sợi Cellulose, sản xuất bằng công nghệ chưng áp độc quyền của Saint-Gobain. Nhờ đó, tạo ra cấu trúc tinh thể vững chắc, có khả năng chịu lực, chịu tải trọng cao cũng như khả năng chống cháy và cách âm vượt trội. Với cấu trúc đa liên kết của sợi Cellulose, các tấm DURAflex 2X có kết cấu vô cùng bền vững và dẻo dai, dễ dàng tùy biến và thi công nhanh chóng. Không dừng lại ở đó, tấm Cemboard DURAflex còn được chứng nhận là vật liệu xanh, không chứa amiăng, vô cùng an toàn với sức khỏe. Tất cả những ưu điểm này giúp tấm xi măng DURAflex 2X trở thành vật liệu không thể thiếu để hoàn thiện các thiết kế nhà ống đẹp mà vẫn tiết kiệm chi phí và nhân công.
Ngoài ra, để công trình trởn nên bền đẹp và tiết kiệm chi phí hơn, các gia chủ nên lựa chọn sản phẩm có độ dày phù hợp với hạng mục thi công của mình. Sau đây là khuyến nghị của DURAflex mà các bạn có thể tham khảo:

Tấm xi măng DURAflex 2X là giải pháp tối ưu để hoàn thiện các mẫu thiết kế nhà ống đẹp
Hiện nay, tấm xi măng lát sàn DURAflex 2X đã có nhà máy sản xuất chính thức tại Việt Nam và được phân phối rộng rãi trên toàn quốc. DURAflex có 120 trung tâm phân phối và hơn 3000 đại lý chính thức DURAflex trải khắp 54 tỉnh thành. Khách hàng ở mọi miền tổ quốc có thể yên tâm mua đúng tấm xi măng DURAflex 2X chính hãng, chất lượng cao gần nhất với nơi mình sinh sống bằng cách liên hệ hotline miễn phí 18001218 hoặc bấm nút Báo giá ngay dưới đây để được tư vấn.
>> Xem thêm:
Diện tích tối thiểu cần xây dựng nhà ống là 40m2. Tuy nhiên, diện tích phù hợp nhất để xây dựng nhà ống dao động từ 50 - 100m2 để đảm bảo sự thoải mái và tiện nghi.
Khi xây nhà ống, việc xin giấy phép xây dựng là thủ tục bắt buộc phải làm để đảm bảo tính pháp lý cho công trình.
Phong cách thiết kế nhà ống tân cổ điển và hiện đại đang rất được ưa chuộng hiện nay nhờ vào tính ứng dụng cao và vẻ đẹp độc đáo.
Hy vọng rằng, với những gợi ý thiết kế nhà ống đẹp được đề cập ở trên, gia chủ sẽ có thêm nhiều ý tưởng cho ngôi nhà mơ ước của mình. DURAflex rất hân hạnh được đồng hành cùng bạn trong mọi giải pháp thi công để có công trình hoàn hảo với mức chi phí tối ưu nhất.
Mọi chi tiết về sản phẩm hay bất kỳ thắc mắc nào liên quan đến mẫu nhà ống đẹp, quý khách hàng vui lòng liên hệ trực tiếp với DURAflex qua Hotline: 1800-1218 để được tư vấn.
Đánh giá và nhận xét
Đánh giá trung bình
0/5
5
4
3
2
1
Chia sẻ và nhận xét về bài viết
Chia sẻ và nhận xét về bài viết
Bài viết chưa có đánh giá nào