55+ Mẫu nhà cấp 4 đẹp hiện đại đơn giản xu hướng 2026
Bước sang năm 2026, thiết kế nhà cấp 4 tiếp tục khẳng định sức hút nhờ sự cân bằng hoàn hảo giữa thẩm mỹ, công năng và chi phí. Không còn gắn liền với hình ảnh đơn giản, cũ kỹ, nhà cấp 4 hiện đại ngày nay được “lột xác” với đường nét kiến trúc tinh gọn, vật liệu mới thân thiện môi trường và không gian sống linh hoạt, phù hợp nhiều nhu cầu khác nhau. Bộ sưu tập các mẫu nhà cấp 4 đẹp, hiện đại, đơn giản 2026 dưới đây sẽ mang đến cho bạn những gợi ý thực tế, dễ ứng dụng và bắt kịp xu hướng.
Mẫu thiết kế nhà cấp 4 đẹp kèm bản vẽ công năng
Các mẫu thiết kế nhà đẹp cấp 4 kèm bản vẽ công năng luôn được nhiều gia đình quan tâm bởi tính thực tế, dễ hình dung không gian sử dụng và thuận tiện khi thi công. Dưới đây là những mẫu nhà cấp 4 đẹp tiêu biểu, được đánh giá cao về sự tối ưu không gian và tính ứng dụng mà các gia chủ có thể tham khảo:
Mẫu nhà cấp 4 đẹp hiện đại 2 phòng ngủ kèm bản vẽ công năng
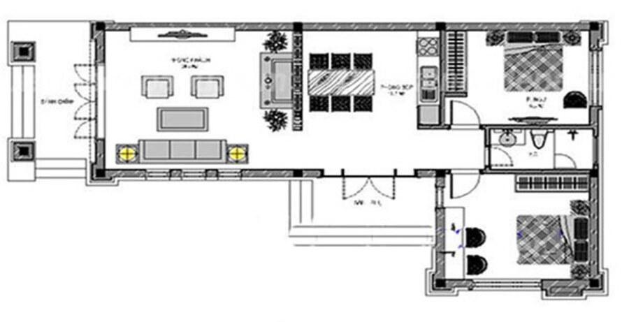
Mẫu nhà cấp 4 2 phòng ngủ thường phù hợp với gia đình nhỏ từ 3-4 thành viên, ưu tiên sự gọn gàng và tiện nghi. Bản vẽ công năng được bố trí rõ ràng với phòng khách liên thông bếp ăn nhằm tạo cảm giác rộng rãi, thông thoáng. Hai phòng ngủ được sắp xếp tách biệt, đảm bảo sự riêng tư nhưng vẫn thuận tiện di chuyển. Thiết kế này giúp tối ưu diện tích sử dụng, tiết kiệm chi phí xây dựng và dễ dàng điều chỉnh theo nhu cầu thực tế của gia chủ.

Mẫu thiết kế nhà cấp 4 đẹp với 2 phòng ngủ hiện đại, tiện nghi (Nguồn: Internet)

Thiết kế kiến trúc nhà cấp 4 hiện đại đơn giản (Nguồn: Internet)

Thiết kế sân vườn nhà cấp 4 đẹp, hiện đại (Nguồn: Internet)

Bản vẽ thiết kế nhà cấp 4 2 phòng ngủ đầy đủ công năng (Nguồn: Internet)
>> Đọc thêm:
- 59+ Mẫu nhà gác lửng 2 phòng ngủ đẹp, hiện đại, sang trọng
- Top 20+ mẫu nhà lắp ghép 2 phòng ngủ đẹp, lý tưởng, giá rẻ
- 20+ Mẫu nhà tiền chế 2 phòng ngủ tối giản, tiện nghi, giá rẻ
Mẫu thiết kế nhà đẹp cấp 4 có sân vườn kèm bản vẽ công năng
Nhà vườn cấp 4 là lựa chọn lý tưởng cho những ai yêu thích không gian sống gần gũi với thiên nhiên. Trong bản vẽ công năng, khu vực sân vườn thường được bố trí phía trước hoặc xung quanh nhà, đóng vai trò điều hòa không khí và tạo điểm nhấn cảnh quan. Không gian bên trong được sắp xếp hợp lý, ưu tiên ánh sáng tự nhiên và sự kết nối với bên ngoài. Nhờ đó, ngôi nhà không chỉ đẹp về hình thức mà còn mang lại cảm giác thư giãn, dễ chịu cho các thành viên trong gia đình.

Mẫu thiết kế nhà cấp 4 đẹp có sân vườn gần gũi với thiên nhiên (Nguồn: Internet)

Không gian sống nhà cấp 4 đẹp ở ngoại ô trong lành, thoải mái (Nguồn: Internet)

Thiết kế nhà đẹp cấp 4 có sân vườn là không gian sống nhiều gia đình mơ ước (Nguồn: Internet)

Bản vẽ nhà cấp 4 có sân vườn chi tiết, đảm bảo tiện nghi (Nguồn: Internet)

Bản vẽ thiết kế công năng và định vị nhà cấp 4 có sân vườn (Nguồn: Internet)
>> Đọc thêm:
- Top những mẫu sân vườn biệt thự đẹp, hiện đại. sang trọng nhất
- 15+ Mẫu nhà chòi sân vườn đẹp, đơn giản, hiện đại
- 50+ Mẫu nhà vườn nhỏ đẹp, đơn giản, giá rẻ, gần gũi thiên nhiên
Mẫu thiết kế nhà cấp 4 đẹp có hồ bơi kèm bản vẽ công năng
Mẫu nhà cấp 4 đẹp có hồ bơi thể hiện phong cách sống hiện đại và nâng cao chất lượng sinh hoạt. Bản vẽ công năng của loại hình này thường chú trọng đến sự liên kết giữa khu vực sinh hoạt chung và hồ bơi, giúp không gian trở nên mở và thoáng hơn. Hồ bơi được bố trí hợp lý để đảm bảo an toàn, đồng thời không ảnh hưởng đến kết cấu và công năng chính của ngôi nhà. Thiết kế này phù hợp với gia chủ có diện tích đất rộng và mong muốn một không gian sống tiện nghi, mang tính nghỉ dưỡng ngay tại nhà.

Mẫu thiết kế nhà cấp 4 đẹp hiện đại có hồ bơi (Nguồn: Internet)

Mẫu nhà cấp 4 đẹp có hồ bơi tiện ích cao cấp (Nguồn: Internet)

Bản vẽ thiết kế công năng nhà cấp 4 có hồ bơi mà bạn có thể tham khảo (Nguồn: Internet)
>> Xem thêm: 20+ Bản vẽ nhà cấp 4 3 phòng ngủ 100m2 chi tiết, đầy đủ tiện nghi
Ý tưởng thiết kế nhà cấp 4 theo các phong cách
Thiết kế nhà cấp 4 hiện nay không còn bó hẹp trong một khuôn mẫu cố định mà ngày càng đa dạng về phong cách, đáp ứng tốt nhu cầu thẩm mỹ lẫn công năng sử dụng. Tùy theo diện tích đất, ngân sách và sở thích cá nhân, gia chủ có thể lựa chọn kiểu nhà phù hợp để vừa đảm bảo tiện nghi sinh hoạt, vừa tạo nên không gian sống hài hòa, bền vững theo thời gian.
Mẫu nhà cấp 4 đơn giản mà đẹp
Mẫu nhà cấp 4 đơn giản mà đẹp hướng đến sự gọn gàng trong hình khối, đường nét rõ ràng và cách bố trí không gian khoa học. Thiết kế thường sử dụng gam màu trung tính, hạn chế chi tiết trang trí rườm rà, nhờ đó tạo cảm giác nhẹ nhàng và dễ chịu. Ưu điểm nổi bật của phong cách này là chi phí xây dựng hợp lý, thời gian thi công nhanh, phù hợp với nhiều khu vực từ nông thôn đến ngoại ô thành phố, đồng thời vẫn đảm bảo đầy đủ công năng sinh hoạt cho gia đình.

Mẫu thiết kế nhà cấp bốn đơn giản mà đẹp mắt (Nguồn: Internet)

Mẫu nhà cấp 4 đẹp, đơn giản, hiện đại (Nguồn: Internet)

Kiến trúc thiết kế nhà cấp 4 đơn giản, gần gũi với thiên nhiên (Nguồn: Internet)
Mẫu nhà cấp 4 hiện đại
Mẫu nhà cấp 4 hiện đại được ưa chuộng nhờ thiết kế đơn giản, hình khối rõ ràng và chú trọng công năng sử dụng. Phong cách này thường sử dụng mái bằng hoặc mái lệch, kết hợp các vật liệu như kính, thép và bê tông để tạo cảm giác thoáng đãng, trẻ trung. Không gian bên trong được bố trí khoa học, ưu tiên ánh sáng tự nhiên và sự liên kết giữa các khu vực sinh hoạt. Nhờ cách thiết kế tối giản nhưng tinh tế, nhà cấp 4 hiện đại phù hợp với nhiều đối tượng gia đình, đặc biệt là những gia chủ yêu thích sự gọn gàng, tiện nghi và muốn tối ưu chi phí xây dựng mà vẫn đảm bảo tính thẩm mỹ lâu dài.

Mẫu nhà cấp 4 hiện đại thiết kế mở đón sáng tự nhiên (Nguồn: Internet)

Mẫu nhà cấp 4 hiện đại mặt tiền đẹp dễ ứng dụng (Nguồn: Internet)

Mặt tiền nhà cấp 4 đẹp hiện đại ở nông thôn (Nguồn: Internet)
>> Xem thêm:
- 20+ Mặt tiền nhà gác lửng 5m đẹp, ấn tượng, mới nhất 2026
- 99+ Mẫu mặt tiền nhà ống đẹp, thiết kế hiện đại, xu hướng 2026
Những mẫu nhà cấp 4 đẹp chi phí thấp
Những mẫu nhà cấp 4 đẹp chi phí thấp là giải pháp lý tưởng cho các gia đình có ngân sách hạn chế nhưng vẫn mong muốn một không gian sống đầy đủ và tiện nghi. Điểm nổi bật của các mẫu nhà này nằm ở việc tối giản chi tiết trang trí, lựa chọn vật liệu phổ biến và bố trí mặt bằng hợp lý. Thiết kế thường tập trung vào công năng cốt lõi, hạn chế các hạng mục không cần thiết để giảm chi phí thi công. Đồng thời, việc sử dụng mái tôn, mái thái đơn giản hoặc mái ngói truyền thống giúp tiết kiệm ngân sách mà vẫn đảm bảo độ bền và tính thẩm mỹ, phù hợp với điều kiện khí hậu tại Việt Nam.

Những mẫu nhà cấp 4 đẹp chi phí thấp với thiết kế đơn giản, hiện đại (Nguồn: Internet)

Những mẫu nhà cấp 4 đẹp chi phí thấp cho gia đình trẻ (Nguồn: Internet)

Những mẫu nhà cấp 4 đẹp chi phí thấp phù hợp ở nông thôn (Nguồn: Internet)
>> Đọc thêm:
- Các mẫu nhà lắp ghép 30 triệu phổ biến hiện nay
- Top 20+ mẫu nhà lắp ghép 100 triệu đẹp, thông minh nhất 2026
- 25+ Gợi ý xây nhà cấp 4 trọn gói 200 triệu phổ biến hiện nay
Mẫu thiết kế nhà cấp 4 đẹp mái Thái
Mẫu nhà cấp 4 mái Thái nổi bật với phần mái có độ dốc cao, giúp thoát nước nhanh và chống nóng hiệu quả. Thiết kế này mang đến vẻ ngoài cao ráo, thanh thoát và tạo điểm nhấn kiến trúc rõ ràng cho tổng thể ngôi nhà. Bên cạnh tính thẩm mỹ, nhà mái Thái còn phù hợp với điều kiện khí hậu Việt Nam, giúp không gian bên trong luôn thông thoáng, mát mẻ và bền vững theo thời gian.

Mẫu thiết kế nhà cấp 4 đẹp mái Thái xu hướng mới nhất 2026 (Nguồn: Internet)

Thiết kế kiến trúc nhà mái Thái 1 tầng gần gũi, thân thuộc (Nguồn: Internet)

Mẫu nhà cấp 4 đẹp mái Thái phù hợp khí hậu nhiệt đới nóng ẩm (Nguồn: Internet)
>> Bài viết khác:
- 59+ Mẫu nhà mái Thái 2 tầng đẹp, xu hướng, hiện đại 2026
- 45+ Mẫu nhà cấp 4 mái Thái 3 phòng ngủ đẹp, hiện đại, giá rẻ
- 65+ Mẫu nhà cấp 4 mái Thái 8x12m đơn giản, đẹp nhất Việt Nam
Mẫu nhà cấp 4 mái Nhật đẹp
Mẫu nhà cấp 4 mái Nhật đẹp gây ấn tượng bởi thiết kế mái có độ dốc nhẹ, mở rộng đều các hướng, tạo cảm giác hài hòa và tinh tế. Kiểu mái này giúp ngôi nhà trông thấp hơn, cân đối hơn, đồng thời mang lại sự chắc chắn và ổn định về mặt kiến trúc. Bên cạnh đó, nhà mái Nhật cấp 4 thường ưu tiên sự đơn giản trong hình khối, kết hợp không gian mở và ánh sáng tự nhiên, từ đó tạo nên môi trường sống thoải mái, hiện đại và phù hợp với xu hướng nhà ở hiện nay.

Mẫu thiết kế nhà cấp 4 mái Nhật đẹp, cân đối, hài hòa (Nguồn: Internet)

Kiến trúc thiết kế mẫu nhà mái Nhật 1 tầng đơn giản, tinh tế (Nguồn: Internet)

Mẫu nhà cấp 4 mái Nhật đẹp được nhiều gia đình yêu thích (Nguồn: Internet)

Mẫu nhà cấp 4 mái Nhật 3 phòng ngủ đẹp, hiện đại, giá rẻ (Nguồn: Internet)

Mẫu thiết kế nhà cấp 4 mái Nhật 4 phòng ngủ đẹp, hiện đại, sang trọng (Nguồn: Internet)
>> Tìm hiểu thêm:
- Nhà mái Nhật là gì? Cách phân biệt nhà mái Nhật và nhà mái Thái
- Top 60+ mẫu nhà mái Nhật 2 tầng hiện đại, đẹp, mới nhất 2026
- Những mẫu 8x12m nhà mái Nhật 2 tầng đẹp, xu hướng nhất 2026
- 100+ Mẫu nhà biệt thự 2 tầng mái Nhật đẹp, xu hướng 2026
Mẫu nhà cấp 4 mái bằng đơn giản hiện đại
Nhà cấp 4 mái bằng thường được thiết kế theo phong cách gọn gàng, hiện đại và tối ưu chi phí. Kiểu mái này có kết cấu chắc chắn, thi công tương đối nhanh và dễ kiểm soát ngân sách xây dựng. Về thẩm mỹ, mái bằng tạo nên tổng thể vuông vức, khỏe khoắn, phù hợp với các thiết kế mang hơi hướng tối giản. Ngoài ra, phần mái bằng còn có thể tận dụng làm sân thượng, trồng cây xanh hoặc lắp đặt hệ thống năng lượng mặt trời, giúp nâng cao giá trị sử dụng. Với khả năng thích nghi tốt với nhiều diện tích đất khác nhau, mẫu nhà này đặc biệt phù hợp tại khu vực đô thị và vùng ven.

Mẫu nhà cấp 4 mái bằng đơn giản hiện đại (Nguồn: Internet)

Mẫu nhà cấp 4 mái bằng chữ L đẹp, hiện đại, tiết kiệm (Nguồn: Internet)

Mẫu nhà cấp bốn mái bằng đẹp, tối ưu ánh sáng và thông gió (Nguồn: Internet)
Mẫu nhà cấp 4 mái lệch hiện đại
Nhà mái lệch cấp 4 hiện đại gây ấn tượng bởi hình khối độc đáo và tính thẩm mỹ cao. Phần mái được thiết kế lệch về một phía không chỉ tạo điểm nhấn kiến trúc mà còn giúp thoát nước mưa hiệu quả, hạn chế tình trạng thấm dột. Phong cách này thường được ứng dụng trong các mẫu nhà trẻ trung, năng động, kết hợp hài hòa giữa vật liệu hiện đại như kính, thép, bê tông và gam màu sáng. Ngoài ra, thiết kế mái lệch còn giúp không gian bên trong đón ánh sáng tự nhiên tốt hơn, từ đó mang lại cảm giác thoáng đãng và tiện nghi cho sinh hoạt hằng ngày.

Mẫu nhà cấp 4 mái lệch độc đáo, phá cách, cuốn hút (Nguồn: Internet)

Mẫu nhà cấp 4 mái lệch ấn tượng, mới mẻ, hiện đại (Nguồn: Internet)

Mẫu nhà cấp 4 mái lệch đơn giản, gọn gàng, ấm cúng (Nguồn: Internet)
Mẫu nhà cấp 4 mái ngói truyền thống
Nhà mái ngói cấp 4 truyền thống luôn giữ được vị thế vững chắc nhờ vẻ đẹp gần gũi, bền vững theo thời gian. Thiết kế mái ngói giúp cách nhiệt tốt, giữ cho không gian bên trong mát mẻ vào mùa hè và ấm áp vào mùa mưa lạnh. Bên cạnh đó, kiểu mái này phù hợp với khí hậu Việt Nam và dễ kết hợp với nhiều kiểu mặt bằng khác nhau. Khi ứng dụng các giải pháp thiết kế hiện đại vào bố trí công năng, nhà cấp 4 mái ngói vừa đáp ứng nhu cầu sinh hoạt tiện nghi, vừa giữ được nét quen thuộc, ấm cúng của kiến trúc truyền thống.

Mẫu nhà cấp 4 mái ngói truyền thống bền đẹp theo thời gian (Nguồn: Internet)

Mẫu nhà cấp 4 mái ngói truyền thống đơn giản, tinh tế (Nguồn: Internet)

Mẫu thiết kế nhà cấp 4 mái ngói đẹp ở nông thôn (Nguồn: Internet)
Mẫu thiết kế nhà cấp 4 chữ L đẹp
Mẫu nhà cấp 4 chữ L được nhiều gia đình lựa chọn nhờ khả năng tối ưu diện tích và tạo không gian sống linh hoạt. Thiết kế này giúp phân tách rõ ràng khu vực sinh hoạt chung và khu vực nghỉ ngơi, từ đó đảm bảo sự riêng tư nhưng vẫn giữ được sự kết nối tổng thể. Phần góc chữ L thường được tận dụng làm sân vườn, hiên nhà hoặc chỗ để xe, giúp ngôi nhà thông thoáng và gần gũi với thiên nhiên hơn. Ngoài ra, nhà chữ L cấp 4 còn dễ dàng điều chỉnh công năng theo nhu cầu sử dụng thực tế, phù hợp với nhiều diện tích đất khác nhau, đặc biệt là các khu đất ngang rộng.

Mẫu thiết kế nhà cấp 4 chữ L đẹp, tối ưu diện tích (Nguồn: Internet)

Mẫu nhà chữ L cấp 4 kết nối tốt với thiên nhiên (Nguồn: Internet)

Bản vẽ thiết kế công năng nhà cấp 4 chữ L bố trí khoa học (Nguồn: Internet)

Mẫu nhà cấp 4 chữ L có bể bơi ngoài trời và không gian kiến trúc đẹp (Nguồn: Internet)
>> Xem tham khảo:
- 150+ Mẫu nhà cấp 4 chữ L mái tôn đẹp, ấn tượng, tối ưu chi phí
- 59+ Mẫu nhà cấp 4 chữ L 3 phòng ngủ đẹp, hiện đại, giá rẻ 2026
- 50+ Mẫu nhà 2 tầng chữ L 100m2 đẹp, hiện đại, tiện nghi 2026
Mẫu nhà cấp 4 đẹp ở nông thôn
Nhà cấp 4 nông thôn nổi bật với sự hài hòa giữa kiến trúc và cảnh quan xung quanh. Thiết kế thường ưu tiên hình khối đơn giản, mái dốc hoặc mái bằng gọn gàng, kết hợp hệ cửa lớn để đón gió và ánh sáng tự nhiên. Nhờ quỹ đất rộng, các mẫu nhà này dễ bố trí thêm sân vườn, tiểu cảnh, tạo không gian sống thoáng đãng và thư giãn. Bên cạnh đó, việc sử dụng vật liệu bền, dễ bảo trì giúp công trình thích nghi tốt với điều kiện thời tiết, đồng thời tiết kiệm chi phí lâu dài cho gia đình sinh sống tại khu vực nông thôn.

Mẫu thiết kế nhà cấp 4 đẹp hiện đại ở nông thôn (Nguồn: Internet)

Mẫu nhà cấp 4 nông thôn 250 triệu với kiến trúc hài hòa với thiên nhiên (Nguồn: Internet)

Mẫu thiết kế nhà cấp 4 đẹp ở nông thôn được ưa chuộng nhất Việt Nam (Nguồn: Internet)

Mẫu nhà cấp 4 đẹp ở nông thôn với sân vườn rộng thoáng và cửa số lớn đón ánh sáng tự nhiên (Nguồn: Internet)

Mẫu nhà ống 1 tầng nông thôn đẹp, hiện đại, giá rẻ 2026 (Nguồn: Internet)
>> Đọc thêm:
- 20+ Mẫu nhà 2 tầng nông thôn 500 triệu đẹp, tối ưu chi phí
- 50+ Mẫu nhà 2 tầng nông thôn 800 triệu đẹp lung linh, mê mẩn
- 30+ Mẫu nhà 2 tầng đẹp ở nông thôn đầy đủ tiện nghi, giá rẻ
Mẫu thiết kế nhà cấp 4 đẹp hiện đại khung thép
Nhà khung thép cấp 4 là giải pháp phù hợp cho những ai yêu thích phong cách hiện đại, thi công nhanh và kết cấu linh hoạt. Hệ khung thép giúp giảm tải trọng công trình, dễ mở rộng hoặc thay đổi công năng trong tương lai. Để tăng độ bền và hoàn thiện bề mặt, nhiều gia chủ lựa chọn tấm bê tông nhẹ DURAflex cho sàn, vách hoặc trần nhờ khả năng chịu lực tốt, chống ẩm và chống mối mọt hiệu quả. Sự kết hợp giữa khung thép và tấm DURAflex không chỉ nâng cao tuổi thọ công trình mà còn mang lại không gian sống hiện đại, an toàn và tiết kiệm chi phí vận hành.

Mẫu nhà cấp 4 khung thép xu hướng nhất Việt Nam hiện nay (Nguồn: Internet)

Mẫu thiết kế nhà đẹp cấp 4 khung thép tối ưu chi phí, dễ thi công (Nguồn: Internet)

Mẫu thiết kế nhà cấp 4 đẹp hiện đại khung thép (Nguồn: Internet)
>> Gợi ý các mẫu nhà khác:
- Top 20 Mẫu nhà tiền chế nông thôn đẹp, đơn giản, giá rẻ
- 20+ Mẫu nhà tiền chế đẹp, hiện đại, giá rẻ nhất 2026
- Báo giá 60+ mẫu nhà container giá rẻ, đẹp, độc đáo nhất 2026
Mẫu nhà cấp 4 phong cách Nhật
Mẫu nhà cấp 4 phong cách Nhật ghi điểm nhờ sự tối giản, cân bằng và gần gũi với thiên nhiên. Kiến trúc thường sử dụng đường nét gọn gàng, màu sắc trung tính, hạn chế chi tiết rườm rà để tạo cảm giác nhẹ nhàng và thư thái. Không gian bên trong ưu tiên sự thông thoáng, kết nối linh hoạt giữa các khu vực sinh hoạt, đồng thời tận dụng ánh sáng tự nhiên hiệu quả. Với phong cách này, nhà cấp 4 không chỉ đáp ứng nhu cầu ở mà còn mang lại trải nghiệm sống chậm, yên tĩnh, rất phù hợp cho gia đình yêu thích sự tinh tế và bền vững.

Mẫu nhà cấp 4 phong cách Nhật đẹp, tối giản, thiết kế tinh tế (Nguồn: Internet)

Mẫu nhà cấp 4 phong cách Nhật đơn giản, hiện đại (Nguồn: Internet)

Mẫu thiết kế nhà cấp 4 phong cách Nhật đẹp, tạo cảm giác nhẹ nhàng và thư thái (Nguồn: Internet)
Mẫu nhà cấp 4 1 tầng đẹp đơn giản 2 phòng ngủ
Mẫu nhà cấp 4 1 tầng 2 phòng ngủ là lựa chọn lý tưởng cho gia đình nhỏ hoặc vợ chồng trẻ. Thiết kế tập trung vào công năng cơ bản nhưng vẫn đảm bảo sự tiện nghi và riêng tư cần thiết. Hai phòng ngủ thường được bố trí khoa học, tách biệt không gian sinh hoạt chung để tạo cảm giác thoải mái khi nghỉ ngơi. Ưu điểm của mẫu nhà này là chi phí xây dựng hợp lý, thời gian thi công nhanh và dễ dàng tối ưu diện tích sử dụng. Nhờ đó, gia chủ có thể sở hữu không gian sống gọn gàng, ấm cúng và hiệu quả.

Mẫu nhà cấp 4 1 tầng đẹp đơn giản 2 phòng ngủ (Nguồn: Internet)

Mẫu nhà cấp 4 có 2 phòng ngủ đẹp, phù hợp cho các cặp vợ chồng trẻ (Nguồn: Internet)

Mẫu nhà cấp 4 đẹp với 2 phòng ngủ được bố trí khoa học, tiện lợi (Nguồn: Internet)
Mẫu thiết kế nhà cấp 4 đẹp 3 phòng ngủ
Mẫu nhà cấp 4 1 tầng 3 phòng ngủ đáp ứng tốt nhu cầu sinh hoạt của gia đình từ 4 đến 6 thành viên. Thiết kế hiện đại chú trọng sự thông thoáng, bố cục rõ ràng giữa khu vực chung và riêng. Ba phòng ngủ được sắp xếp linh hoạt để đảm bảo riêng tư nhưng vẫn thuận tiện cho sinh hoạt hằng ngày. Kiến trúc hiện đại giúp ngôi nhà trông rộng rãi, trẻ trung và phù hợp với xu hướng sống tiện nghi. Đây là giải pháp cân bằng giữa công năng, thẩm mỹ và chi phí xây dựng hợp lý.

Mẫu thiết kế nhà cấp 4 đẹp 3 phòng ngủ phù hợp với gia đình 4-6 thành viên (Nguồn: Internet)

Mẫu nhà cấp 4 đẹp với 3 phòng ngủ tiện nghi, đảm bảo sinh hoạt cho mỗi thành viên (Nguồn: Internet)

Mẫu nhà cấp 4 3 phòng ngủ 300 triệu đẹp, tối ưu chi phí (Nguồn: Internet)

Thiết kế nhà cấp 4 đẹp 3 phòng ngủ đơn giản, gần gũi thiên nhiên (Nguồn: Internet)
>> Bạn có thể đọc thêm:
- 75+ Mẫu nhà cấp 4 nông thôn 3 phòng ngủ đẹp, giá rẻ nhất
- 40+ Mẫu nhà cấp 4 3 phòng ngủ 500 triệu đẹp, sang trọng, tiện nghi
- 20+ Mẫu nhà lắp ghép 3 phòng ngủ đẹp, giá rẻ, mới nhất 2026
Mẫu nhà cấp 4 1 tầng đẹp hiện đại 4 phòng ngủ
Mẫu nhà cấp 4 1 tầng 4 phòng ngủ thường phù hợp với gia đình đông người hoặc nhiều thế hệ cùng chung sống. Thiết kế đòi hỏi sự tính toán kỹ lưỡng để đảm bảo các phòng ngủ không bị chật chội, đồng thời vẫn giữ được không gian sinh hoạt chung rộng rãi. Ưu điểm của kiểu nhà này là hạn chế việc di chuyển cầu thang, thuận tiện cho người lớn tuổi và trẻ nhỏ. Khi bố trí hợp lý, nhà cấp 4 nhiều phòng ngủ vẫn đảm bảo sự riêng tư, thoải mái và đáp ứng tốt nhu cầu sử dụng lâu dài.

Mẫu nhà cấp 4 1 tầng đẹp hiện đại 4 phòng ngủ (Nguồn: Internet)

Mẫu nhà cấp 4 1 tầng 4 phòng ngủ đẹp mắt (Nguồn: Internet)

Mẫu thiết kế nhà cấp 4 mái Thái 4 phòng ngủ tiện nghi (Nguồn: Internet)
>> Tham khảo thêm:
- 49+ Mẫu nhà cấp 4 4 phòng ngủ 400 triệu đẹp, hiện đại nhất 2026
- 50+ Mẫu nhà 2 tầng 4 phòng ngủ dưới 1 tỷ độc đáo, đẳng cấp 2026
Mẫu thiết kế nhà cấp 4 đẹp hiện đại 1 tầng có gác lửng
Mẫu nhà cấp 4 gác lửng giúp tối ưu diện tích hiệu quả, đặc biệt với những khu đất không quá rộng. Gác lửng có thể được sử dụng làm phòng ngủ, phòng làm việc hoặc khu sinh hoạt phụ mà không làm tăng nhiều chi phí xây dựng. Để đảm bảo độ bền, nhẹ và thẩm mỹ cho khu vực này, nhiều gia chủ lựa chọn tấm xi măng giả gỗ DURAwood làm vật liệu lót sàn gác lửng. Tấm DURAwood giúp không gian chắc chắn, chịu ẩm tốt và mang lại cảm giác ấm cúng như sàn gỗ tự nhiên.

Mẫu thiết kế nhà cấp 4 đẹp hiện đại 1 tầng có gác lửng (Nguồn: Internet)

Mẫu nhà cấp 4 đẹp có gác lửng mang đến nhiều tiện ích cho không gian nhà bạn (Nguồn: Internet)

Mẫu thiết kế nhà cấp 4 gác lửng đẹp, được ưa chuộng hàng đầu (Nguồn: Internet)

Mẫu nhà cấp 4 đẹp và hiện đại có gác lửng xu hướng mới nhất hiện nay (Nguồn: Internet)
>> Đọc thêm:
- Top mẫu nhà gác lửng 3 phòng ngủ đẹp, xu hướng 2026
- Top 150+ Mẫu nhà cấp 4 gác lửng 200 triệu đẹp nhất 2026
- 50+ Mẫu nhà gác lửng 5x15 đẹp, hiện đại, tiện nghi nhất 2026
Mẫu nhà cấp 4 đẹp 5x20m
Nhà cấp 4 đẹp 5x20 được nhiều người ưa chuộng ở đô thị và khu dân cư đông đúc nhờ quỹ đất hẹp nhưng chiều sâu tốt. Khi thiết kế, gia chủ nên ưu tiên phong cách hiện đại, bố trí công năng theo trục dọc để tối ưu diện tích sử dụng. Các không gian như phòng khách, bếp và phòng ngủ cần được sắp xếp liền mạch, hạn chế vách ngăn cứng nhằm tạo cảm giác rộng rãi hơn. Bên cạnh đó, việc tận dụng giếng trời, cửa kính lớn và tông màu sáng giúp ngôi nhà thông thoáng, đón sáng tự nhiên hiệu quả, đồng thời nâng cao giá trị thẩm mỹ tổng thể.

Mẫu nhà cấp 4 mái Thái 5x20 đẹp, hiện đại, chi phí thấp (Nguồn: Internet)

Thiết kế mẫu nhà ống 1 tầng đẹp 5x20 tiện nghi, giá rẻ 2026 (Nguồn: Internet)

Mẫu nhà cấp 4 đẹp 5x20m giá rẻ, thi công nhanh (Nguồn: Internet)
>> Tham khảo:
- 45+ Mẫu nhà cấp 4 đẹp 5x20 mái tôn được ưa chuộng nhất 2025
- 150+ Mẫu nhà 1 trệt 1 lầu 5x20 đẹp, xu hướng, mới nhất 2026
- Top 6+ mẫu nhà tiền chế 2 tầng 5x20 đẹp, sang trọng, ấn tượng 2026
Mẫu nhà cấp 4 đẹp 6x20m
Với mặt tiền rộng 6m, nhà cấp 4 kích thước 6x20m mang đến nhiều lựa chọn linh hoạt hơn về phong cách thiết kế và bố trí không gian. Gia chủ có thể áp dụng phong cách hiện đại hoặc tối giản, kết hợp mái bằng hoặc mái thái để tăng tính thẩm mỹ. Nhờ chiều ngang thoáng hơn, phòng khách và khu bếp ăn dễ dàng bố trí rộng rãi, thuận tiện sinh hoạt cho gia đình đông người. Ngoài ra, thiết kế sân trước nhỏ hoặc sân sau giúp tăng sự thông thoáng, cải thiện lưu thông không khí và tạo điểm nhấn xanh mát cho ngôi nhà.

Mẫu nhà cấp 4 đẹp 6x20m phù hợp với nhiều phong cách thiết kế (Nguồn: Internet)

Mẫu nhà cấp 4 đẹp 6x20m giúp bạn có thể dễ dàng bố trí nội thất (Nguồn: Internet)

Mẫu thiết kế nhà đẹp cấp 4 hiện đại, đơn giản với diện tích 6x20m (Nguồn: Internet)
Mẫu nhà cấp 4 ngang 8m đẹp
Nhà cấp 4 ngang 8m phù hợp với những gia đình sở hữu lô đất mặt tiền rộng, mong muốn không gian sống thoải mái và cân đối. Với lợi thế chiều ngang lớn, kiến trúc sư có thể thiết kế mặt tiền ấn tượng, phân chia công năng theo chiều ngang rõ ràng và khoa học. Phòng khách, bếp và các phòng ngủ được bố trí tách biệt hợp lý, đảm bảo sự riêng tư nhưng vẫn kết nối hài hòa. Việc kết hợp cửa kính, lam trang trí và vật liệu hiện đại giúp ngôi nhà vừa sang trọng, vừa tận dụng tốt ánh sáng tự nhiên.

Mẫu nhà cấp 4 ngang 8m đẹp kiến trúc hiện đại, sang trọng (Nguồn: Internet)

Mẫu nhà cấp 4 ngang 8m đẹp với mặt tiền thoáng, hài hòa, thu hút (Nguồn: Internet)

Mẫu nhà cấp 4 ngang 8m đẹp, rộng rãi, bề thế (Nguồn: Internet)
>> Xem thêm:
- TOP 30 mẫu nhà 3 gian truyền thống đơn giản, hiện đại
- 20+ Mẫu nhà gỗ đẹp, hiện đại, sang trọng, được ưa chuộng nhất hiện nay
- TOP 20 mẫu nhà chữ U đẹp, hiện đại, độc đáo nhất 2026
Mẫu nhà cấp 4 đẹp hiện đại ngang 10m
Nhà cấp 4 hiện đại ngang 10m mang đến không gian sống rộng rãi, phù hợp với gia đình nhiều thế hệ hoặc nhu cầu sinh hoạt cao. Thiết kế thường chú trọng đường nét đơn giản, hình khối rõ ràng và sử dụng vật liệu hiện đại như kính, đá, gỗ công nghiệp. Nhờ mặt tiền lớn, các không gian chức năng được bố trí linh hoạt, dễ dàng kết hợp phòng khách rộng, bếp mở và nhiều phòng ngủ tiện nghi. Bên cạnh đó, sân vườn và hiên nhà được tận dụng tối đa, góp phần nâng cao trải nghiệm sống và giá trị sử dụng lâu dài.

Mẫu nhà cấp 4 đẹp hiện đại ngang 10m với đường nét đơn giản, tinh tế (Nguồn: Internet)

Mẫu nhà cấp 4 ngang 10m đẹp, đáp ứng nhu cầu ở lâu dài (Nguồn: Internet)

Mẫu thiết kế nhà cấp 4 ngang 10m đẹp, dễ dàng bố trí công năng khoa học (Nguồn: Internet)
Mẫu nhà cấp 4 đẹp giá rẻ 100 triệu
Mẫu nhà cấp 4 đẹp giá rẻ 100 triệu tập trung vào việc tối giản chi phí xây dựng nhưng vẫn đảm bảo công năng cơ bản. Thiết kế thường ưu tiên mặt bằng gọn gàng, kết cấu đơn giản, sử dụng vật liệu phổ thông và hạn chế chi tiết trang trí cầu kỳ. Không gian bên trong được bố trí khoa học với phòng khách kết hợp bếp, một đến hai phòng ngủ và nhà vệ sinh khép kín. Nhờ cách tổ chức hợp lý, ngôi nhà vẫn đáp ứng nhu cầu sinh hoạt hàng ngày, phù hợp với gia đình ít người hoặc khu vực nông thôn, nơi chi phí nhân công và vật liệu ở mức thấp.

Mẫu nhà cấp 4 đẹp giá rẻ 100 triệu với thiết kế tối giản, đảm bảo công năng (Nguồn: Internet)

Mẫu nhà cấp 4 đẹp giá rẻ 100 triệu phổ biến ở nông thôn lẫn thành thị (Nguồn: Internet)

Mẫu nhà cấp 4 đẹp giá rẻ 100 triệu đầy đủ tiện nghi (Nguồn: Internet)
>> Các mẫu nhà đẹp khác:
- 55+ Mẫu nhà cấp 4 mái tôn dưới 100 triệu đẹp, đơn giản, tiện nghi
- Top 5 mẫu nhà container 100 triệu cực đẹp và tiện nghi
- Xây nhà cấp 4 khoảng 150 triệu TRỌN GÓI đẹp, tiện nghi
Mẫu nhà cấp 4 đẹp giá rẻ 300 triệu
Với ngân sách khoảng 300 triệu, mẫu nhà cấp 4 có nhiều lựa chọn thiết kế linh hoạt hơn, vừa đảm bảo thẩm mỹ vừa nâng cao tiện nghi sử dụng. Gia chủ có thể đầu tư vào mặt tiền hài hòa, mái thái hoặc mái bằng hiện đại, kết hợp không gian mở để tạo cảm giác rộng rãi. Nội thất bên trong được phân chia rõ ràng giữa các khu vực sinh hoạt chung và riêng, giúp tối ưu sự thoải mái. Mức chi phí này cũng cho phép sử dụng vật liệu có độ bền cao hơn, từ đó nâng cao tuổi thọ công trình và giảm chi phí sửa chữa về lâu dài.

Mẫu nhà cấp 4 đẹp giá rẻ 300 triệu với thiết kế mở tạo cảm giác rộng rãi (Nguồn: Internet)

Mẫu nhà cấp 4 đẹp giá rẻ 300 triệu có sân vườn thoáng đãng (Nguồn: Internet)

Mẫu thiết kế nhà cấp 4 đẹp giá rẻ 300 triệu dễ ứng dụng và thi công (Nguồn: Internet)
>> Đọc thêm:
- 40+ Mẫu nhà lắp ghép 300 triệu đẹp, đẳng cấp, tiện nghi 2026
- 30+ Mẫu nhà 2 tầng đẹp giá 700 triệu hiện đại, ấn tượng
- 50+ Mẫu nhà 2 tầng nông thôn 800 triệu đẹp lung linh, mê mẩn
Mẫu nhà cấp 4 đẹp đơn giản với 500 triệu
Mẫu nhà cấp 4 giá 500 triệu hướng đến sự cân bằng giữa công năng, thẩm mỹ và chất lượng sống. Thiết kế thường mang phong cách hiện đại, bố cục thông thoáng, tận dụng ánh sáng và gió tự nhiên. Gia chủ có thể đầu tư vào hệ cửa lớn, sân vườn nhỏ hoặc không gian sinh hoạt chung rộng rãi. Nội thất được hoàn thiện chỉn chu, vật liệu sử dụng có tính thẩm mỹ và độ bền cao. Nhờ đó, ngôi nhà không chỉ đáp ứng nhu cầu sử dụng hiện tại mà còn mang lại trải nghiệm sống tiện nghi, lâu dài cho cả gia đình.

Mẫu nhà cấp 4 đẹp đơn giản với 500 triệu (Nguồn: Internet)

Mẫu nhà cấp 4 giá 500 triệu hiện đại, bền đẹp, chi phí hợp lý (Nguồn: Internet)

Mẫu nhà cấp 4 giá 500 triệu đẹp ở nông thôn (Nguồn: Internet)
>> Tham khảo:
- Xây nhà 500 triệu ở nông thôn đẹp, đơn giản, tối ưu chi phí
- 40+ Mẫu nhà 2 tầng đẹp giá 1 tỷ độc đáo, xu hướng nhất 2026
- Top 150 mẫu biệt thự tân cổ điển 2 tầng 1 tỷ đẹp, hiện đại
Ưu điểm của mẫu thiết kế nhà cấp 4 đẹp
Nhà cấp 4 sở hữu nhiều ưu điểm nổi bật, mang lại giá trị sử dụng cao và phù hợp với đa dạng nhu cầu sinh hoạt của gia đình Việt. Cụ thể như:
Chi phí xây dựng thấp
So với nhà cao tầng, nhà cấp 4 có chi phí xây dựng thấp hơn nhờ kết cấu đơn giản và quy mô vừa phải. Thiết kế tập trung vào sự tối giản, tận dụng hiệu quả không gian sử dụng giúp giảm đáng kể chi phí vật liệu, nhân công và thời gian thi công. Nhờ đó, nhà cấp 4 trở thành giải pháp nhà ở phù hợp cho những gia đình có ngân sách hạn chế nhưng vẫn mong muốn một không gian sống tiện nghi, bền vững và thẩm mỹ.

Mẫu thiết kế nhà cấp 4 đẹp với chi phí xây dựng thấp (Nguồn: Internet)
Tiết kiệm diện tích đất
Mẫu thiết kế nhà cấp 4 đẹp hiện đại thường được tối ưu hóa công năng với cách bố trí khoa học, hạn chế tối đa diện tích dư thừa. Các không gian chức năng được sắp xếp hợp lý trên cùng một mặt bằng, tận dụng tốt khu vực sinh hoạt chung để gia tăng hiệu quả sử dụng. Chính điều này giúp nhà cấp 4 đặc biệt phù hợp với những khu đất có diện tích nhỏ hoặc hạn chế về chiều dài, chiều rộng.

Mẫu nhà cấp 4 đẹp, tiết kiệm diện tích đất (Nguồn: Internet)
Thuận tiện cho người cao tuổi và người khó di chuyển
Nhà cấp 4 không có cầu thang nên việc đi lại trong nhà trở nên dễ dàng và an toàn hơn. Tất cả các không gian như phòng khách, phòng ngủ, phòng bếp và nhà vệ sinh đều được bố trí trên một mặt bằng, giúp người cao tuổi hoặc người gặp khó khăn trong vận động có thể sinh hoạt thuận tiện, giảm nguy cơ té ngã. Đây cũng là lý do nhà cấp 4 được đánh giá cao về tính nhân văn và phù hợp cho gia đình nhiều thế hệ.

Mẫu thiết kế nhà cấp 4 đẹp, thuận tiện cho người cao tuổi và người khó di chuyển (Nguồn: Internet)
Dễ dàng bố trí nội thất
Với kết cấu một tầng và không gian mở linh hoạt, mẫu thiết kế nhà cấp 4 đẹp cho phép gia chủ dễ dàng sắp xếp và điều chỉnh nội thất theo nhu cầu sử dụng thực tế. Các phòng chức năng có thể thay đổi bố cục một cách đơn giản mà không ảnh hưởng đến kết cấu tổng thể. Thiết kế này không chỉ giúp tối ưu không gian sống mà còn góp phần tiết kiệm chi phí nội thất và năng lượng trong quá trình sử dụng lâu dài.

Mẫu kiến trúc nhà cấp 4 đẹp, dễ dàng bố trí nội thất (Nguồn: Internet)
>> Tìm hiểu thêm:
- 60+ Mẫu nhà ống cấp 4 đẹp, hiện đại, chi phí thấp
- 99+ Mẫu thiết kế nhà ống đẹp, hiện đại, đơn giản, hot nhất 2026
- 35+ Mẫu nhà gỗ cấp 4 đẹp, hiện đại, đơn giản, xu hướng hiện nay
Các lưu ý khi thiết kế nhà cấp 4 bạn cần biết
Dưới đây là một số kinh nghiệm thiết kế nhà cấp 4 hữu ích mà bạn có thể tham khảo để sở hữu không gian sống tiện nghi, thoáng đãng và phù hợp với nhu cầu sinh hoạt của gia đình.
Tận dụng được diện tích đất hiệu quả
Với các mẫu thiết kế nhà cấp 4 đẹp hiện đại, việc khai thác tối đa diện tích đất là yếu tố cần được ưu tiên hàng đầu. Gia chủ nên tính toán kỹ lưỡng cách bố trí mặt bằng sao cho mỗi mét vuông đều được sử dụng hợp lý. Bạn có thể áp dụng các giải pháp thiết kế thông minh như bố trí tầng lửng, kết hợp sân vườn, mái che hoặc tận dụng không gian ngoài trời. Những giải pháp này không chỉ giúp mở rộng diện tích sử dụng mà còn tạo cảm giác thông thoáng, tăng tính kết nối giữa các khu vực trong nhà.

Khi thiết kế nhà cấp 4, cần tận dụng diện tích đất hiệu quả (Nguồn: Internet)
Tận dụng được ánh sáng và gió tự nhiên
Ánh sáng và gió tự nhiên đóng vai trò quan trọng trong việc tạo nên không gian sống thoải mái cho mẫu nhà cấp 4 đẹp. Việc bố trí hệ thống cửa sổ, cửa lùa và cửa chính hợp lý sẽ giúp đón ánh sáng mặt trời và lưu thông không khí hiệu quả. Nhờ đó, ngôi nhà luôn thông thoáng, hạn chế ẩm mốc và giảm sự phụ thuộc vào thiết bị chiếu sáng, làm mát nhân tạo. Đồng thời, tận dụng tốt ánh sáng và gió tự nhiên còn góp phần mang lại môi trường sống thân thiện, dễ chịu và tiết kiệm năng lượng.

Mẫu nhà cấp 4 đẹp, tận dụng được ánh sáng và gió tự nhiên (Nguồn: Internet)
Sử dụng đồ nội thất thông minh
Trong thiết kế nhà cấp 4, việc lựa chọn đồ nội thất thông minh là giải pháp giúp tối ưu không gian hiệu quả. Gia chủ nên ưu tiên các sản phẩm nội thất đa năng, có khả năng gấp gọn hoặc tích hợp nhiều công dụng như giường kéo, bàn ăn gấp, tủ lưu trữ thông minh. Những giải pháp này giúp không gian luôn gọn gàng, linh hoạt trong sinh hoạt hằng ngày và vẫn đảm bảo sự tiện nghi cho các thành viên trong gia đình.

Mẫu thiết kế nhà cấp 4 đẹp hiện đại nhờ sử dụng đồ nội thất thông minh (Nguồn: Internet)
>> Đọc tham khảo:
- Đơn giá xây dựng nhà thép tiền chế chi tiết, mới nhất hiện nay
- Chi phí xây nhà cấp 4 trọn gói chi tiết, mới nhất 2026
- Báo giá nhà khung thép 2 tầng chi tiết, mới cập nhật 2026
DURAflex - Đơn vị cung cấp vật liệu xây dựng thi công mẫu nhà cấp 4 đẹp, uy tín
DURAflex là đơn vị chuyên cung cấp vật liệu xây dựng chất lượng cao, tập trung phục vụ các hạng mục thi công nhà cấp 4 đẹp, hiện đại và bền vững theo thời gian. Với định hướng rõ ràng, DURAflex chỉ phân phối hai dòng sản phẩm chủ lực gồm tấm bê tông nhẹ DURAflex và tấm vân gỗ DURAwood, đáp ứng hiệu quả cho các nhu cầu ốp - lót làm trần, tường, sàn và vách trong công trình dân dụng.
Tấm bê tông đúc sẵn DURAflex nổi bật nhờ độ bền chắc, khả năng chịu ẩm, chống mối mọt và phù hợp với điều kiện khí hậu nóng ẩm tại Việt Nam, giúp công trình duy trì tính ổn định lâu dài. Trong khi đó, tấm vân gỗ DURAwood mang lại giá trị thẩm mỹ cao với bề mặt vân gỗ tự nhiên, góp phần tạo điểm nhấn sang trọng nhưng vẫn đảm bảo độ bền và dễ bảo trì. Việc tập trung chuyên sâu vào từng dòng vật liệu giúp DURAflex đảm bảo chất lượng đồng nhất, nguồn gốc rõ ràng và giải pháp ứng dụng tối ưu cho từng hạng mục thi công nhà cấp 4, từ đó mang đến sự an tâm và hiệu quả sử dụng cao cho chủ đầu tư, kiến trúc sư và đơn vị thi công.
>> Xem thêm:
- Báo giá thi công tấm Cemboard làm vách, sàn chi tiết nhất
- Báo giá tấm sàn bê tông nhẹ lắp ghép trọn gói thi công 2026
Kết luận:
Những mẫu thiết kế nhà cấp 4 đẹp hiện đại đơn giản mà DURAflex đã gợi ý ở trên không chỉ mang lại giá trị thẩm mỹ mà còn hướng đến lối sống tiện nghi, bền vững và tiết kiệm. Để hoàn thiện các hạng mục vách ngăn phòng khách và bếp, vách ngăn phòng khách, vách ngăn phòng ngủ, vách ngăn phòng thờ, vách ngăn cầu thang, tấm lót sàn, ốp tường trang trí, lót mái chống nóng,... một cách hiệu quả, gia chủ có thể lựa chọn tấm xi măng DURAflex Low Carbon hoặc tấm xi măng vân gỗ DURAwood Low Carbon - giải pháp vật liệu hiện đại, bền chắc và thân thiện môi trường.
Để biết thêm thông tin chi tiết hoặc được tư vấn giải pháp phù hợp, vui lòng liên hệ 18001218 hoặc bấm BÁO GIÁ NGAY để nhận hỗ trợ nhanh chóng và chính xác.











Đánh giá và nhận xét
Đánh giá trung bình
0/5
5
4
3
2
1
Chia sẻ và nhận xét về bài viết
Chia sẻ và nhận xét về bài viết
Bài viết chưa có đánh giá nào