
DURAflex đăng vào lúc 24/02/2026 - 11:36
Nhà ống 3 tầng là giải pháp thiết kế giúp tối ưu hóa diện tích sử dụng, phù hợp với những gia đình đông người hoặc ở những khu vực có diện tích đất nền hạn chế. Trong bài viết hôm nay, hãy cùng DURAflex tham khảo những mẫu nhà ống 3 tầng đẹp, đơn giản, hiện đại, xu hướng 2026 đính kèm bản vẽ chi tiết và chi phí xây nhà dự trù cần nắm.
DURAflex tự hào giới thiệu bộ sưu tập các mẫu nhà ống 3 tầng đẹp, đa dạng phong cách và quy mô, dẫn đầu xu hướng kiến trúc năm 2026. Với kinh nghiệm chuyên sâu trong lĩnh vực vật liệu xây dựng, chúng tôi mang đến những giải pháp tối ưu cho ngôi nhà của bạn.
Mẫu nhà ống 3 tầng hiện đại là sự kết hợp hài hòa giữa kiến trúc tinh tế và công năng sử dụng tiện nghi, tạo nên không gian sống lý tưởng cho các gia đình. Với phong cách thiết kế mở, ngôi nhà tận dụng tối đa ánh sáng tự nhiên, giúp không gian trở nên thoáng đãng và rộng rãi hơn.
Điểm nổi bật của mẫu nhà này chính là sự cân bằng giữa thẩm mỹ và tiện ích. Mỗi khu vực trong nhà đều được bố trí khoa học, đặc biệt là các không gian chung như phòng khách, bếp và phòng ăn. Nhà có thiết kế thông minh giúp tối ưu diện tích, đảm bảo sự tiện nghi mà vẫn giữ được vẻ đẹp hiện đại và tinh tế. Mẫu nhà ống 3 tầng hiện đại là lựa chọn hoàn hảo cho những ai yêu thích sự tối giản nhưng vẫn muốn có một không gian sống sang trọng, tiện lợi.

Mẫu nhà ống 3 tầng đẹp, hiện đại (Nguồn: Internet)

Mẫu nhà ống 3 tầng đẹp, thoáng đãng (Nguồn: Internet)

Mẫu nhà ống 3 tầng đẹp, đơn giản (Nguồn: Internet)

Mẫu nhà ống 3 tầng hiện đại, đẹp, mới nhất 2026 (Nguồn: Internet)

Mẫu nhà ống 3 tầng hiện đại, thời thượng nhất hiện nay (Nguồn: Internet)

Mẫu nhà ống 3 tầng hiện đại với thiết kế sang trọng, tinh tế (Nguồn: Internet)

Mẫu nhà ống 3 tầng hiện đại, phong cách tân cổ điển được yêu thích hiện nay (Nguồn: Internet)

Mẫu nhà ống 3 tầng hiện đại, đơn giản, đầy đủ công năng (Nguồn: Internet)

Mẫu nhà ống 3 tầng hiện đại, đẹp, đầy đủ tiện ích (Nguồn: Internet)

Mẫu nhà ống 3 tầng hiện đại, mặt tiền đẹp, sang trọng (Nguồn: Internet)

Mẫu nhà ống 3 tầng hiện đại, đơn giản với tone trắng chủ đạo (Nguồn: Internet)

Mẫu nhà ống 3 tầng hiện đại với thiết kế sáng tạo (Nguồn: Internet)

Mẫu nhà ống 3 tầng đẹp hiện đại, thiết kê độc đáo, ấn tượng (Nguồn: Internet)

Mẫu mặt tiền nhà ống 3 tầng hiện đại có sân thượng (Nguồn: Internet)

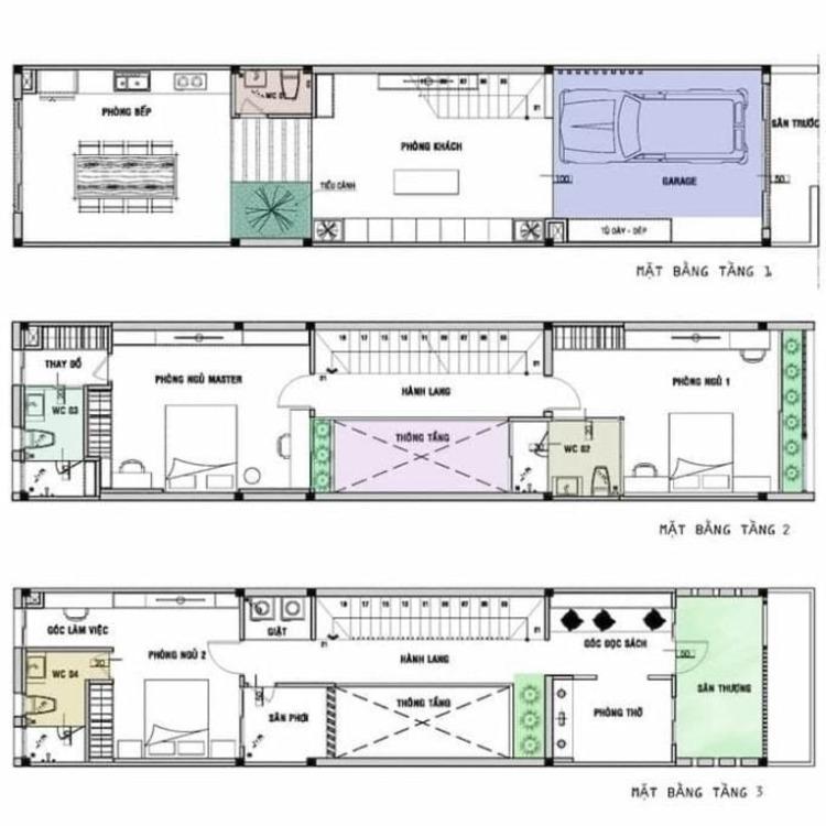
Bản vẽ nhà ống 3 tầng đẹp, hiện đại với đầy đủ công năng (Nguồn: Internet)

Bản vẽ nhà ống 3 tầng đẹp, hiện đại chi tiết, dễ hiểu (Nguồn: Internet)
>> Xem thêm:
Những mẫu nhà ống tân cổ điển 3 tầng thường sử dụng tông màu trắng làm chủ đạo, tạo cảm giác thanh lịch và trang nhã. Kiến trúc của ngôi nhà gây ấn tượng với những đường nét mềm mại, họa tiết tinh xảo và hình khối cân đối. Đặc biệt, trần nhà và sàn thường được lót bằng tấm xi măng DURAflex không chỉ giúp tăng tính thẩm mỹ mà còn đảm bảo độ bền, khả năng chịu lực tốt, mang lại không gian sống đẳng cấp và tiện nghi.

Mẫu nhà ống 3 tầng đẹp phong cách tân cổ điển (Nguồn: Internet)

Mẫu nhà ống 3 tầng tân cổ điển sang trọng, được ưa chuộng nhất năm 2026 (Nguồn: Internet)

Mẫu nhà ống 3 tầng đẹp tân cổ điển nhờ sử dụng các vật liệu truyền thống và tự nhiên (Nguồn: Internet)

Mẫu thiết kế biệt thự nhà phố 3 tầng đẹp tân cổ điển sang trọng (Nguồn: Internet)

Mẫu nhà ống 3 tầng đẹp tân cổ điển, ấn tượng bởi tone màu trắng sang trọng (Nguồn: Internet)

Mẫu nhà ống 3 tầng tân cổ điển đẹp, đầy đủ công năng và tiện nghi hiện đại (Nguồn: Internet)

Mẫu nhà ống 3 tầng đẹp tân cổ điển sang trọng, đẳng cấp (Nguồn: Internet)

Mẫu nhà ống 3 tầng tân cổ điển đẹp, sang trang, lộng lẫy (Nguồn: Internet)

Mẫu nhà ống 3 tầng tân cổ điển là xu hướng kiến trúc của năm 2026 (Nguồn: Internet)

Mẫu nhà ống 3 tầng tân cổ điển đẹp dẫn đầu xu hướng 2026 (Nguồn: Internet)

Mẫu nhà ống 3 tầng tân cổ điển với thiết kế cầu kỳ, hiện đại (Nguồn: Internet)

Mẫu nhà ống 3 tầng đẹp tân cổ điển với đường nét tinh xảo, hiện đại (Nguồn: Internet)

Bản vẽ nhà ống 3 tầng đẹp, tân cổ điển chi tiết 3 tầng (Nguồn: Internet)

Bản vẽ nhà ống 3 tầng chi tiết, đầy đủ công năng sử dụng (Nguồn: Internet)
>> >> Đọc thêm:
Thiết kế mái Thái giúp ngoại thất nhà ống 3 tầng trở nên thu hút và đẹp mắt hơn. Để tăng khả năng cách nhiệt và cách âm cho ngôi nhà, một giải pháp hiệu quả là lót tấm xi măng DURAflex dưới nhà mái Thái. Với tính năng cách nhiệt và cách âm vượt trội, tấm xi măng DURAflex giúp giữ cho không gian sống trong nhà luôn mát mẻ và yên tĩnh, bảo vệ ngôi nhà khỏi nhiệt độ cao và tiếng ồn từ môi trường bên ngoài.

Mẫu nhà mái Thái 3 tầng đẹp mắt, sang trọng (Nguồn: Internet)

Mẫu nhà ống 3 tầng mái Thái đẹp, thoáng mát với không gian xanh (Nguồn: Internet)

Mẫu nhà ống 3 tầng mái chữ A hiện đại (Nguồn: Internet)

Mẫu nhà ống 3 tầng mái chữ A đẹp, hiện đại (Nguồn: Internet)
>> Xem thêm:
Mẫu nhà ống 3 tầng mái bằng là một trong những kiểu kiến trúc phổ biến và rất được ưa chuộng trong thiết kế nhà ở hiện đại. Kiểu mái bằng này còn có ưu điểm lớn trong việc tận dụng phần mái để làm sân thượng, khu vực trồng cây xanh, hoặc không gian thư giãn ngoài trời. Điều này đặc biệt phù hợp với các gia đình sống tại đô thị, nơi diện tích đất hạn chế nhưng vẫn muốn tận hưởng không gian sống thoải mái và gần gũi với thiên nhiên.

Mẫu nhà ống 3 tầng mái bằng đẹp, hiện đại (Nguồn: Internet)

Mẫu nhà ống 3 tầng mái bằng hiện đại, chi phí xây dựng hợp lý (Nguồn: Internet)

Mẫu nhà ống 3 tầng mái bằng đơn giản, tiết kiệm chi phí và dễ bảo trì (Nguồn: Internet)
>> Xem thêm:
Mẫu nhà ống đẹp 3 tầng mái lệch là sự lựa chọn độc đáo và hiện đại, mang đến một diện mạo mới mẻ và phá cách cho không gian sống. Với thiết kế mái lệch ấn tượng, ngôi nhà mái lệch 3 tầng này không chỉ nổi bật về mặt thẩm mỹ mà còn giúp tăng khả năng thoát nước mưa, đặc biệt phù hợp với điều kiện khí hậu nhiệt đới.

Mẫu nhà ống đẹp 3 tầng 5m mái lệch đẹp, hiện đại (Nguồn: Internet)

Mẫu nhà ống 3 tầng mái lệch hiện đại năm 2026 (Nguồn: Internet)

Mẫu nhà ống 3 tầng đẹp, gây ấn tượng bởi thiết kế mái lệch (Nguồn: Internet)
>> Xem thêm:
Mái ngói không chỉ mang đến vẻ đẹp cổ điển mà còn tạo cảm giác ấm cúng, gần gũi. Để không gian thêm phần tinh tế và hiện đại, bạn có thể chọn gam màu trắng kem làm chủ đạo, kết hợp với tiểu cảnh xanh ở ban công, giúp ngôi nhà ống 3 tầng trở nên hài hòa và ấn tượng hơn.

Mẫu nhà mái Nhật dạng ống 3 tầng mái ngói mang lại vẻ đẹp hài hòa và bền vững (Nguồn: Internet)
>> Xem thêm:
Mẫu nhà ống 3 tầng đẹp có sân thượng là một thiết kế lý tưởng cho những gia đình mong muốn không gian sống thoáng đãng, gần gũi với thiên nhiên ngay giữa lòng đô thị. Sân thượng không chỉ mang lại một khu vực thư giãn ngoài trời mà còn là nơi để trồng cây xanh, tổ chức tiệc nhỏ, hoặc tạo góc chill riêng cho gia đình.

Mẫu nhà ống 3 tầng đẹp với sân thượng được tận dụng làm không gian giải trí và thư giãn (Nguồn: Internet)

Mẫu nhà ống 3 tầng thiết kế tận dụng sân thượng đẹp, thoáng mát (Nguồn: Internet)
>> Đọc thêm:
Tum là một không gian trống được đặt trên tầng cuối của ngôi nhà, mang đến nhiều tiện ích và ứng dụng đa dạng. Nhà ống 3 tầng có 1 tum giúp bạn tận dụng được khoảng không gian tầng thượng để trồng cây cảnh, làm nhà kho, sân phơi,...

Mẫu nhà ống 3 tầng 1 tum đẹp với tone màu trắng chủ đạo (Nguồn: Internet)

Mẫu nhà ống 3 tầng 1 tum đẹp, mát mẻ với trang trí các chậu cây xanh (Nguồn: Internet)

Mẫu nhà ống 3 tầng 1 tum đẹp, hiện đại (Nguồn: Internet)
>> Tham khảo thêm:
Nhà ống 3 tầng 2 mặt tiền thường sở hữu vẻ đẹp vững chãi, chắc chắn, có tính thẩm mỹ cao. Tuy nhiên, ngôi nhà hai mặt tiền đối diện với nhiều yếu tố thời tiết như mưa nắng, tác động mạnh từ môi trường bên ngoài. Để đảm bảo sự thoải mái và bền vững cho ngôi nhà, việc sử dụng tấm xi măng DURAflex là một giải pháp tuyệt vời. Tấm DURAflex giúp cách nhiệt, chống nóng, chịu ẩm ướt từ mưa nắng và thời tiết khắc nghiệt, giúp giữ nhiệt độ mát mẻ và bảo vệ ngôi nhà khỏi hỏng hóc và mục nát.

Mẫu nhà ống 3 tầng 2 mặt tiền đẹp, hiện đại (Nguồn: Internet)

Thiết kế nhà ống 3 tầng đẹp, thiết kế ấn tượng với 2 mặt tiền (Nguồn: Internet)

Mẫu biệt thự nhà vườn 3 tầng 2 mặt tiền thiết kế dạng ống (Nguồn: Internet)
>> >> Xem thêm
Mẫu nhà ống 3 tầng mặt tiền 4m là lựa chọn lý tưởng cho các gia đình muốn tận dụng không gian sống ở khu vực đô thị đông đúc. Với diện tích hạn chế, thiết kế nhà ống tối ưu hóa công năng sử dụng mà vẫn đảm bảo sự thông thoáng và tiện nghi.

Nhà ống 3 tầng thiết kế độc đáo, nổi bật với diện tích 4x15m (Nguồn: Internet)

Mẫu nhà ống 3 tầng đẹp, hiện đại với diện tích 4x15m (Nguồn: Internet)

Mẫu nhà ống 3 tầng đẹp, hiện đại có 1 tum với mặt tiền rộng 4m (Nguồn: Internet)
>> Đọc thêm:
Mẫu nhà ống 3 tầng mặt tiền ngang 4m dài 12m được thiết kế phù hợp với những lô đất nền phân sẵn ở khu vực thành thị. Mặt tiền 4x12m cho phép ngôi nhà tận dụng được nhiều ánh sáng tự nhiên và gió trời, tạo cảm giác thoáng đãng.

Mẫu nhà ống 3 tầng đẹp với mặt tiền 4x12m (Nguồn: Internet)

Mẫu nhà ống 3 tầng mặt tiền đẹp với diện tích 4x12m (Nguồn: Internet)

Mẫu nhà ống 3 tầng mặt tiền ngang 4m dài 12m (Nguồn: Internet)
Nhà ống 3 tầng mặt tiền ngang 5m là mẫu nhà phổ biến và được ưa chuộng ở khu vực thành thị. Nhà ống 3 tầng với mặt tiền ngang 5m thường có kết cấu vững chắc và tỉ mỉ, đảm bảo tính thẩm mỹ và chịu lực tốt.

Mẫu nhà ống 3 tầng đẹp với mặt tiền 5m (Nguồn: Internet)

Nhà ống 3 tầng có thiết kế tinh tế, sang trọng (Nguồn: Internet)
>> Đọc thêm:
Mẫu nhà ống 3 tầng 5x18m là sự lựa chọn hoàn hảo cho các gia đình có diện tích đất tương đối rộng rãi, đặc biệt ở khu vực thành thị. Với mặt tiền 5m và chiều dài 18m, thiết kế nhà này mang đến không gian sống thoải mái, tiện nghi, đồng thời tối ưu hóa công năng và thẩm mỹ.

Mẫu nhà ống 3 tầng mặt tiền diện tích 5x18m đẹp, thiết kế tinh tế (Nguồn: Internet)

Mẫu nhà ống 3 tầng 5x18 đơn giản, đẹp (Nguồn: Internet)
>> Đọc thêm:
Mẫu nhà ống 3 tầng 5x20m giúp bạn tối ưu hóa không gian sử dụng, đảm bảo sự riêng tư, thuận tiện khi sinh hoạt cho các thành viên trong gia đình. Với tính năng bền chắc và khả năng chịu lực tốt, tấm xi măng DURAflex là lựa chọn tuyệt vời để làm sàn cho mẫu nhà ống 3 tầng 5x20m, đảm bảo sự ổn định và an toàn cho không gian sàn, ngăn chặn tình trạng mục nát hoặc cong vênh do tác động của độ ẩm trong môi trường.

Mẫu nhà ống 3 tầng đẹp với diện tích 5x20 (Nguồn: Internet)

Mẫu nhà phố 3 tầng đẹp, hiện đại, gần gũi với thiên nhiên (Nguồn: Internet)

Mẫu nhà ống 3 tầng 5x20m đẹp với mặt tiền sang trọng, phù hợp cho cả nhà phố và khu đô thị (Nguồn: Internet)

Thiết kế mẫu nhà ống 3 tầng 5x20m kết hợp không gian xanh, tạo cảm giác thoáng đãng (Nguồn: Internet)

Mẫu nhà ống 3 tầng 5x20m với thiết kế hiện đại, tối ưu không gian và mang lại sự tiện nghi cho gia đình (Nguồn: Internet)
>> Xem thêm:
Với lợi thế mặt tiền 6m, mẫu nhà này rất lý tưởng cho những gia đình muốn có không gian sống rộng rãi, thoải mái. Kiến trúc cho phép bố trí cửa sổ lớn hoặc ban công rộng, giúp đón ánh sáng tự nhiên và lưu thông không khí tốt hơn. Gia chủ cũng có thể linh hoạt lựa chọn phong cách thiết kế, từ hiện đại tối giản đến tân cổ điển sang trọng, tạo nên nét riêng biệt và cuốn hút cho ngôi nhà.

Mẫu nhà ống 3 tầng mặt tiền 6m hiện đại, tận dụng tối đa ánh sáng và gió tự nhiên (Nguồn: Internet)
Mẫu nhà ống 3 tầng mặt tiền 7m có thiết kế rộng rãi, giúp gia chủ dễ dàng tạo điểm nhấn với cửa kính lớn, ban công thoáng hoặc cây xanh trang trí. Không gian bên trong được bố trí hợp lý với gara, phòng khách và khu sinh hoạt chung ở tầng trệt. Các tầng trên là phòng ngủ, phòng làm việc và khu vực thư giãn ngoài trời, mang đến sự tiện nghi và thoải mái cho gia đình.

Mẫu nhà ống 3 tầng mặt tiền 7m đẹp, tạo không gian sống thông thoáng và sang trọng (Nguồn: Internet)
Mẫu nhà ống 3 tầng chữ L rất phù hợp với những khu đất có mặt tiền hẹp nhưng chiều sâu dài. Thiết kế nhà chữ L giúp tận dụng tối đa diện tích, tạo không gian rộng rãi và thông thoáng hơn. Đặc biệt, phần góc chữ L có thể được bố trí làm sân nhỏ hoặc lối đi, giúp ngôi nhà có thêm không gian xanh mát, gần gũi với thiên nhiên.

Mẫu nhà ống 3 tầng chữ L có kiến trúc hiện đại, đường nét tinh tế (Nguồn: Internet)
>> Xem thêm:
Mẫu nhà ống 3 tầng đơn giản đẹp là sự lựa chọn hoàn hảo cho những gia đình yêu thích phong cách sống tinh tế, không cầu kỳ nhưng vẫn đầy đủ tiện nghi. Thiết kế này tập trung vào việc tối ưu hóa không gian sử dụng, đảm bảo sự thông thoáng và tiện lợi trong sinh hoạt hàng ngày. Để nhận được nhiều ánh sáng tự nhiên, bạn có thể lắp cửa kính, mở rộng ban công hoặc bố trí tiểu cảnh xanh mát bên trong nhà.

Mẫu nhà ống 3 tầng đơn giản, đẹp nhất hiện nay (Nguồn: Internet)

Mẫu nhà ống 3 tầng đơn giản, đẹp, hiện đại (Nguồn: Internet)

Mẫu nhà ống 3 tầng đơn giản, đầy đủ tiện nghi (Nguồn: Internet)
>> Xem thêm:
Mẫu nhà ống 3 tầng chữ U mang đến sự hài hòa trong kiến trúc và không gian sống. Điểm đặc trưng của thiết kế này là khoảng sân rộng ở giữa, giúp ngôi nhà luôn thoáng mát và tràn ngập ánh sáng tự nhiên. Nhờ đó, không gian bên trong nhà chữ U luôn thông thoáng, tạo cảm giác dễ chịu và kết nối hài hòa giữa các khu vực chức năng.

Mẫu nhà ống 3 tầng chữ U đẹp, thiết kế thông thoáng, hiện đại (Nguồn: Internet)
>> Xem thêm: 60+ Mẫu nhà cấp 4 2 phòng ngủ đẹp, đơn giản, tiết kiệm chi phí
Mẫu nhà ống 3 tầng có gara xe không chỉ mang đến sự tiện lợi mà còn thể hiện phong cách sống hiện đại và đẳng cấp của gia chủ. Đây là một lựa chọn lý tưởng cho những ai muốn sở hữu một ngôi nhà tiện nghi, sang trọng trong các khu đô thị với diện tích đất hạn chế.

Mẫu nhà ống 3 tầng đẹp, hiện đại có gara xe tiện nghi (Nguồn: Internet)
Mẫu nhà ống 3 tầng có sân vườn là lựa chọn hoàn hảo cho những ai muốn gần gũi thiên nhiên. Khu vườn nhỏ ở trước hoặc sau nhà giúp đón ánh sáng tự nhiên, tạo không khí trong lành và mang đến cảm giác thư thái, thoáng đãng cho không gian sống.

Mẫu nhà ống 3 tầng đẹp, hiện đại kết hợp với thiết kế sân vườn thoáng mát (Nguồn: Internet)
>> Xem thêm:
Giếng trời là điểm nhấn quan trọng trong thiết kế nhà ống 3 tầng, giúp ngôi nhà luôn tràn ngập ánh sáng và lưu thông không khí tốt hơn. Nhờ đó, không gian bên trong trở nên thoáng đãng, giảm cảm giác bí bách thường thấy ở nhà ống. Bên cạnh đó, giếng trời còn tạo điểm nhấn thẩm mỹ, giúp ngôi nhà trở nên hiện đại và gần gũi hơn với thiên nhiên.

Mẫu nhà ống 3 tầng đẹp có giếng trời thông minh, giúp lấy sáng và thông gió tự nhiên (Nguồn: Internet)
Mẫu nhà ống 3 tầng có ban công mang đến không gian sống thoải mái, giúp ngôi nhà luôn thông thoáng và đón nhận ánh sáng tự nhiên. Ban công có thể được thiết kế rộng rãi, kết hợp tiểu cảnh xanh để tạo điểm nhấn và mang lại cảm giác thư giãn.

Mẫu nhà ống 3 tầng có ban công rộng thoáng, tận hưởng trọn vẹn gió trời (Nguồn: Internet)
Thiết kế nhà ống 3 tầng có sân trước tạo không gian sống thoải mái, thoáng đãng. Bạn hoàn toàn có thể tận dụng để làm nơi đỗ xe hoặc sân chơi cho trẻ nhỏ.

Thiết kế mẫu nhà ống 3 tầng có sân trước đẹp, tiện nghi (Nguồn: Internet)

Mẫu nhà ống 3 tầng có sân trước để đỗ xe hơi (Nguồn: Internet)

Mẫu nhà ống 3 tầng đẹp, sang trọng có sân trước (Nguồn: Internet)
>> Có thể bạn quan tâm:
Mẫu nhà ống 3 tầng với 3 phòng ngủ là lựa chọn phù hợp cho gia đình nhỏ hoặc những ai muốn có không gian sống rộng rãi, thoải mái. Thiết kế này đảm bảo sự tiện nghi với các khu vực sinh hoạt chung thoáng đãng, phòng ngủ riêng tư và bố trí hợp lý, giúp ngôi nhà luôn thông thoáng, đầy đủ ánh sáng tự nhiên.

Mẫu nhà ống 3 tầng 3 phòng ngủ kiến trúc tinh tế, mặt tiền thông thoáng (Nguồn: Internet)
Mẫu nhà ống 3 tầng với 4 phòng ngủ là lựa chọn lý tưởng cho gia đình đông thành viên hoặc những ai muốn có thêm không gian riêng tư. Thiết kế này giúp tối ưu diện tích, đảm bảo sự tiện nghi và thoải mái trong sinh hoạt. Bố trí khoa học giữa các phòng giúp ngôi nhà luôn thông thoáng, đáp ứng đầy đủ nhu cầu nghỉ ngơi, làm việc và thư giãn.

Mẫu nhà ống 3 tầng 4 phòng ngủ phù hợp cho gia đình nhiều thế hệ, đảm bảo sự tiện nghi và riêng tư (Nguồn: Internet)
Nhà ống 3 tầng ở nông thôn thường sở hữu kết cấu đơn giản nhưng vẫn giữ được nét bề thế, vững chãi cùng tính thẩm mỹ cao. Sử dụng tấm xi măng DURAflex làm vật liệu ốp tường trang trí và vách ngăn phòng trong ngôi nhà ống 3 tầng nông thôn là một giải pháp thông minh để tăng khả năng chịu lực và tải trọng, đảm bảo tính bền chắc và tuổi thọ lâu dài của ngôi nhà. Từ đó giúp cư dân yên tâm và tận hưởng cuộc sống trong một ngôi nhà chắc chắn và bền vững.

Mẫu nhà ống 3 tầng đẹp mắt tại nông thôn (Nguồn: Internet)

Thiết kế nhà ống 3 tầng đẹp, phù hợp ở khu vực nông thôn (Nguồn: Internet)

Mẫu nhà ống 3 tầng đẹp ở làng quê (Nguồn: Internet)
>> Xem thêm:
Nhà ống 3 tầng kết hợp kinh doanh là xu hướng thiết kế thông minh, phù hợp với những gia đình muốn tối ưu hóa không gian sống và tận dụng để kinh doanh hoặc cho thuê. Với lối kiến trúc hiện đại, mẫu nhà này không chỉ đảm bảo tính thẩm mỹ mà còn tạo nên sự tiện nghi, đa năng.
Tầng trệt thường được bố trí làm không gian kinh doanh với mặt tiền thoáng rộng, thu hút ánh nhìn. Tầng hai và tầng ba là khu vực sinh hoạt, được thiết kế linh hoạt, tối ưu hóa công năng sử dụng. Việc phân chia không gian hợp lý giúp đảm bảo sự riêng tư nhưng vẫn thuận tiện trong quản lý hoạt động kinh doanh.

Mẫu nhà ống 3 tầng mặt tiền đẹp kết hợp với kinh doanh (Nguồn: Internet)
>> Đọc ngay: 45+ Mẫu nhà ống 1 tầng nông thôn đẹp, hiện đại, giá rẻ 2026
Mặt tiền nhà ống 3 tầng hiện đại được gia chủ chú trọng đầu tư trang trí để tạo sự ấn tượng và gia tăng tính thẩm mỹ cho ngôi nhà. Và để mang đến vẻ đẹp tinh tế, tự nhiên, sử dụng tấm xi măng DURAflex hoặc tấm vân gỗ DURAwood là một lựa chọn lý tưởng.
Với bề mặt phẳng mịn, tấm xi măng DURAflex không chỉ tạo nên sự đồng nhất và hiện đại cho mặt tiền, mà còn có khả năng chịu ẩm, chịu nước và chịu được tác động của thời tiết. Điều này đảm bảo mặt tiền của căn nhà sẽ luôn được bảo vệ và giữ được vẻ đẹp trong suốt thời gian dài.
Bên cạnh đó, tấm DURAwood với vân gỗ tự nhiên sẽ mang lại một diện mạo ấn tượng và gần gũi với thiên nhiên. Sự kết hợp hoàn hảo giữa vẻ đẹp tự nhiên của gỗ và độ bền của xi măng giúp tấm DURAwood trở thành một lựa chọn tuyệt vời để trang trí mặt tiền nhà ống 3 tầng, tạo ra không gian sống đẹp, độc đáo và mang tính thẩm mỹ cao.

Mẫu trang trí mặt tiền nhà ống đẹp thiết kế 3 tầng hiện đại (Nguồn: Internet)
Tối ưu diện tích đất, phù hợp với không gian nhỏ
Mẫu nhà ống 3 tầng là giải pháp lý tưởng cho những khu đất hạn hẹp, giúp mở rộng không gian sống mà vẫn đáp ứng đầy đủ tiện nghi cho gia đình. Kiểu nhà này phù hợp với mọi khu vực, từ nông thôn đến thành thị, vừa tăng công năng sử dụng, vừa tôn lên vẻ đẹp hiện đại và sang trọng cho ngôi nhà.

Thiết kế nhà ống 3 tầng giúp tối ưu diện tích, đảm bảo sự tiện nghi và tính thẩm mỹ (Nguồn: Internet)
Gắn kết gia đình nhờ bố cục không gian hợp lý
Mẫu nhà ống 3 tầng có thiết kế hài hòa giữa không gian chung và riêng, giúp các thành viên trong gia đình vừa có sự riêng tư, vừa duy trì sự kết nối. Khu vực sinh hoạt chung tại tầng trệt, bao gồm phòng khách và bếp, không chỉ là nơi quây quần bên những bữa cơm đầm ấm mà còn là không gian lý tưởng cho những buổi gặp gỡ bạn bè, tiệc tùng vui vẻ. Trong khi đó, tầng 2 và tầng 3 là hệ thống phòng ngủ riêng biệt mang đến sự thoải mái, giúp mỗi người có không gian yên tĩnh để nghỉ ngơi, thư giãn và trang trí theo sở thích cá nhân.

Mẫu nhà ống 3 tầng đẹp tạo sự cân bằng giữa không gian chung ấm cúng và khu vực riêng tư thoải mái (Nguồn: Internet)
Đáp ứng nhu cầu sống hiện đại, tiện nghi
Nhà ống 3 tầng không chỉ có thiết kế tối ưu không gian mà còn dễ dàng tích hợp các tiện ích và công nghệ tiên tiến. Từ hệ thống nhà thông minh, an ninh hiện đại đến các thiết bị tiện ích hỗ trợ sinh hoạt, tất cả đều góp phần mang lại cuộc sống tiện nghi, an toàn và thoải mái hơn cho gia đình.

Mẫu nhà ống 3 tầng đẹp, hiện đại đáp ứng đầy đủ công năng và sự tiện nghi cho gia đình (Nguồn: Internet)
Không gian rộng rãi, tiện ích đầy đủ
Nhà ống 3 tầng mang đến không gian sống rộng rãi, đáp ứng đầy đủ nhu cầu sinh hoạt của gia đình. Với thiết kế thông minh, ngôi nhà được bố trí nhiều khu vực chức năng như phòng khách, phòng bếp, phòng ngủ, phòng làm việc riêng biệt. Sự sắp xếp hài hòa này giúp tối ưu diện tích, tạo nên không gian sống thoải mái và hiện đại.

Mẫu nhà ống 3 tầng có cách thiết kế và bố trí không gian rất thông minh, thoáng đãng (Nguồn: Internet)
Tạo dấu ấn kiến trúc riêng biệt
Nhà ống 3 tầng mở ra nhiều cơ hội sáng tạo cho cả kiến trúc sư và gia chủ, biến những ý tưởng thành hiện thực. Tùy theo sở thích, bạn có thể lựa chọn phong cách hiện đại tối giản, tân cổ điển sang trọng hay mái Thái thanh lịch. Mỗi thiết kế không chỉ thể hiện cá tính riêng mà còn tạo nên một không gian sống ấn tượng, hài hòa và đầy cuốn hút.

Mẫu nhà ống 3 tầng đẹp có kiến trúc độc đáo, thể hiện phong cách riêng của gia chủ (Nguồn: Internet)
Tiết kiệm chi phí xây dựng và bảo trì lâu dài
Nhà ống 3 tầng là lựa chọn tối ưu về tài chính, giúp giảm đáng kể chi phí xây dựng so với biệt thự hay nhà cao tầng. Nhờ thiết kế đơn giản, tận dụng tốt diện tích và vật liệu, gia đình có thể tiết kiệm ngân sách mà vẫn đảm bảo không gian sống tiện nghi. Bên cạnh đó, chi phí bảo trì cũng thấp hơn, giúp gia chủ yên tâm tận hưởng cuộc sống lâu dài mà không lo tốn kém.

Mẫu nhà ống 3 tầng giúp tiết kiệm chi phí nhưng vẫn đảm bảo tính thẩm mỹ và sự tiện nghi so với biệt thự mini (Nguồn: Internet)
Đa dạng phong cách thiết kế khác
Nhà ống 3 tầng có khả năng đáp ứng đa dạng nhu cầu và sở thích của nhiều đối tượng, từ gia đình trẻ, gia đình nhiều thế hệ đến người độc thân hay người lớn tuổi. Nhờ sự linh hoạt trong thiết kế, gia chủ có thể dễ dàng lựa chọn phong cách phù hợp.

Mẫu nhà ống 3 tầng phù hợp với mọi phong cách thiết kế và nhu cầu của gia chủ (Nguồn: Internet)
Nhà ống 3 tầng là kiểu kiến trúc quen thuộc, rất được ưa chuộng tại Việt Nam. Mẫu nhà này trở nên phổ biến như vậy là vì chúng sở hữu những ưu điểm nổi bật như:
Nhà ống 3 tầng giúp tối ưu hóa diện tích sử dụng
Mẫu nhà ống 3 tầng được thiết kế thông minh, tận dụng hiệu quả diện tích đất nhỏ, mang đến không gian sống rộng rãi, tiện nghi cho gia đình. Tầng trệt thường dành cho khu vực sinh hoạt chung như phòng khách, bếp và phòng ăn, tạo cảm giác mở và thoáng đãng. Các tầng trên được sắp xếp linh hoạt, có thể làm phòng ngủ, phòng làm việc hoặc khu vực giải trí, đáp ứng nhu cầu đa dạng của gia đình.

Mẫu nhà ống 3 tầng đẹp, hiện đại với tấm xi măng vân gỗ DURAwood ốp tường ngoại thất (Nguồn: Internet)
Phù hợp với đô thị hiện đại
Nhà ống 3 tầng là lựa chọn lý tưởng cho những khu vực có diện tích đất hạn chế, đặc biệt trong đô thị. Thiết kế này phù hợp với khu đất vừa và nhỏ, giúp gia đình có không gian sống thoải mái, đầy đủ tiện nghi mà không cần quá nhiều diện tích xây dựng.

Mẫu nhà ống 3 tầng đặc biệt phù hợp với diện đất ở khu vực đô thị (Nguồn: Internet)
Tiết kiệm thời gian và chi phí xây dựng
Nhà ống 3 tầng thường có diện tích vừa phải, kết cấu đơn giản, phần trang trí tập trung chủ yếu ở 1 mặt tiền. Do đó, việc thi công xây dựng mẫu nhà này sẽ giúp bạn tiết kiệm thời gian và chi phí một cách hiệu quả.

Mẫu nhà ống 3 tầng đẹp, tiết kiệm chi phí (Nguồn: Internet)
Một trong những giải pháp giúp giảm thiểu hoặc khắc phục tình trạng trọng tải đó là sử dụng các vật liệu xây dựng có trọng lượng nhẹ. Dùng vật liệu này để làm sàn, tường, vách hay mái nhà giúp giảm tổng trọng tải, giảm gánh nặng lên phần móng trụ, từ đó đảm bảo sự vững chắc, an toàn cho ngôi nhà của bạn.
Tấm xi măng DURAflex 2X được sản xuất từ các nguyên liệu như xi măng, cát nghiền, đá vôi, giấy và các phụ gia chất lượng cao. Điều này giúp tấm cemboard có khối lượng nhẹ hơn so với nhiều vật liệu xây dựng khác.
Không chỉ có vậy, sản phẩm còn có khả năng chịu lực vượt trội. Từ đó đảm bảo tính ổn định và an toàn trong suốt quá trình sử dụng.

Ngoài ra, tấm xi măng DURAflex 2X còn có một số tính năng nổi bật khác như chịu ẩm vượt trội, chịu nóng, chống cháy hiệu quả, khả năng cách âm cao, an toàn sức khỏe người sử dụng nhờ nguyên liệu “xanh” không chứa amiang gây ung thư. Bên cạnh đó, nhờ bề mặt tấm phẳng mịn, thầu thợ không mất nhiều thời gian để bả bột hoặc trét matit, việc sơn trang trí cũng trở nên dễ dàng, tăng tính thẩm mỹ cho công trình.
>> Xem thêm:
Nhà ống 3 tầng ngày càng được thiết kế theo nhiều phong cách khác nhau để đáp ứng nhu cầu thẩm mỹ và công năng của gia chủ. Dưới đây là một số phong cách phổ biến:
Bên cạnh phong cách kiến trúc, thiết kế mái cũng tạo nên sự đa dạng cho nhà ống 3 tầng, với các kiểu dáng phổ biến như:
Mỗi thiết kế đều mang nét đẹp riêng, tùy theo sở thích và nhu cầu mà gia chủ có thể lựa chọn mẫu nhà phù hợp nhất.

Nhà ống 3 tầng được thiết kế theo nhiều phong cách và kiểu mái (Nguồn: Internet)
Chi phí xây nhà ống 3 tầng phụ thuộc vào nhiều yếu tố, trong đó điển hình như:
Ví dụ:
Chi phí xây dựng phần thô và nhân công hoàn thiện dao động từ 3.800.000 - 4.200.000 VNĐ/m2. Trong khi đó, vật tư hoàn thiện có giá khoảng 2.400.000 - 3.400.000 VNĐ/m2 (chưa bao gồm chi phí phần móng). Nếu ngôi nhà sử dụng móng cọc và mái tôn, tổng diện tích xây dựng sẽ được tính như sau:
Với đơn giá xây dựng dao động từ 6.200.000 - 7.600.000 VNĐ/m2, chi phí xây nhà ống 3 tầng 5×20m (chưa tính vật tư hoàn thiện móng) sẽ vào khoảng 2,198 - 2,676 tỷ VNĐ.

Chi phí xây nhà ống 3 tầng 100m2 dao động từ 2.000.000.000 VNĐ - 2.600.000.000 VNĐ (Nguồn: Internet)
>> Đọc thêm:
Để xây dựng nhà ống 3 tầng đẹp mắt, đảm bảo an toàn, vững chãi, bạn nên lưu ý những yếu tố sau:
Bạn có thể tham khảo các sản phẩm từ DURAflex - thương hiệu uy tín hàng đầu Việt Nam trong lĩnh vực vật liệu xây dựng. DURAflex sử dụng nguồn nguyên liệu chất lượng kết hợp cùng công nghệ sản xuất gia cường độc quyền từ Saint-Gobain, cho ra đời những dòng sản phẩm mang ưu điểm nổi bật về độ bền cao, trọng lượng nhẹ, chịu ẩm vượt trội, chống nóng https://duraflex.com.vn/vi/chong-nonghiệu quả, an toàn với sức khỏe con người,... Vật liệu xây dựng DURAflex không chỉ mang lại sự kiên cố, vững chắc mà còn đảm bảo tính thẩm mỹ cao cho ngôi nhà của bạn.

Vật liệu xây dựng nhà ống 3 tầng đẹp, giá rẻ từ tấm xi măng DURAflex
Nhà ống 3 tầng là kiểu nhà có chiều ngang hẹp hơn chiều dài, thường được xây theo dạng hình chữ nhật hoặc khối trụ cao. Thiết kế này giúp tối ưu không gian, đặc biệt phù hợp với các khu đô thị, nơi nhà cửa thường xây dựng liền kề theo lô.
Mẫu nhà ống 3 tầng phổ biến ở cả thành thị lẫn nông thôn nhờ thiết kế tiện lợi, phù hợp với nhiều gia đình. Kiểu nhà này có bố trí không gian hợp lý, đảm bảo sự tiện nghi trong sinh hoạt. Ngoài ra, việc tận dụng chiều cao giúp tiết kiệm diện tích đất và tối ưu chi phí xây dựng.
Trên đây là những mẫu nhà ống 3 tầng đẹp, hiện đại mà DURAflex muốn giới thiệu đến quý bạn đọc. Hy vọng rằng, bạn đã lựa chọn được thiết kế ưng ý và phù hợp nhất với đặc điểm không gian của mình.
Để được tư vấn chi tiết về tính năng và bảng giá của các dòng vật liệu DURAflex, bạn có thể liên hệ trực tiếp với chúng tôi thông qua Hotline: 18001218 hoặc website: https://duraflex.com.vn/vi.
Bài viết liên quan
Đánh giá và nhận xét
Đánh giá trung bình
0/5
5
4
3
2
1
Chia sẻ và nhận xét về bài viết
Chia sẻ và nhận xét về bài viết
Bài viết chưa có đánh giá nào