
DURAflex đăng vào lúc 24/11/2025 - 09:36
Mẫu nhà ống 1 tầng nông thôn đang là xu hướng thiết kế được nhiều gia chủ yêu thích bởi có chi phí hợp lý và không gian sống tối giản nhưng vẫn đáp ứng đầy đủ tiện nghi. Mẫu nhà này có lợi thế mặt bằng rộng, mang lại sự thoáng đãng, thuận tiện cho sinh hoạt. Trong nội dung bài viết dưới đây, DURAflex sẽ giới thiệu đến bạn top những mẫu thiết kế nhà ống 1 tầng nông thôn đẹp, hiện đại, giá rẻ nhất hiện nay.
Dưới đây là những ưu điểm nổi bật khiến nhà ống 1 tầng nông thôn trở thành lựa chọn “quốc dân” ở khu vực nông thôn:

Mẫu nhà ống 1 tầng nông thôn tiết kiệm chi phí, đa dạng thiết kế (Nguồn: Internet)
>> Xem thêm:
Để hình dung rõ hơn về cấu trúc và thiết kế của những mẫu nhà ống 1 tầng đẹp ở nông thôn, hãy tham khảo một số bản vẽ nổi bật dưới đây.

Bản vẽ mặt bằng mẫu nhà ống 1 tầng đơn giản, đầy đủ tiện nghi (Nguồn: Internet)
Bản vẽ mặt bằng trệt tổng thể này thể hiện cách bố trí không gian khoa học và tiện dụng trong một ngôi nhà 1 tầng, phù hợp diện tích đất dạng hình chữ nhật thường gặp ở khu vực nông thôn. Ngay từ khu vực sân trước, không gian được chừa rộng để đậu xe máy, tạo lối vào thoáng đãng. Tiếp nối là phòng khách nằm gần sảnh chính, được thiết kế rộng rãi, là không gian tiếp khách và sinh hoạt chung của cả gia đình. Liền kề phòng khách là WC1, thuận tiện cho khách sử dụng.
Khu vực trung tâm nhà là phòng bếp và bàn ăn, bố trí liền kề tạo sự kết nối không gian, đồng thời giúp tiết kiệm diện tích và tăng tính tiện dụng. Cuối nhà là phòng ngủ master có diện tích lớn, đi kèm với WC riêng (WC2) và lối đi ra sân sau. Tổng thể mặt bằng được bố trí logic, tiết kiệm không gian nhưng vẫn đầy đủ tiện nghi, phù hợp với hầu hết mọi gia đình, mọi nhu cầu sinh hoạt.

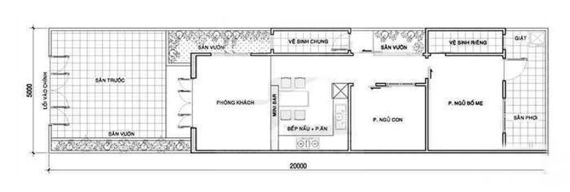
Bản vẽ thiết kế nhà ống 1 tầng nông thôn 5x20m bố trí khoa học (Nguồn: Internet)
Bản vẽ mặt bằng nhà ống 1 tầng là yếu tố quan trọng giúp gia chủ hình dung chính xác cách bố trí công năng, từ đó đưa ra quyết định hợp lý trong quá trình thi công. Trong bản vẽ này, ngôi nhà được thiết kế theo kiểu nhà ống với mặt tiền 5m, chiều sâu 20m. Ngôi nhà gồm 2 phòng ngủ được bố trí liền kề nhau, đảm bảo tính kết nối và sự tiện nghi. Phòng khách và bếp ăn được nằm ngay khu vực trung tâm, tạo không gian sinh hoạt chung thông thoáng và dễ dàng di chuyển.
Khu vực vệ sinh và phòng giặt được đặt lùi về phía cuối nhà để tách biệt khu sinh hoạt và nghỉ ngơi, giúp đảm bảo sự riêng tư và vệ sinh. Ngoài ra, mẫu nhà này còn có sân trước, sân sau và sân vườn hai bên, tận dụng tối đa ánh sáng và gió tự nhiên, giúp không gian luôn thoáng mát. Cách bố trí bất đối xứng giữa các không gian chức năng giúp hành lang di chuyển thêm rộng rãi và linh hoạt hơn.
>> Xem thêm: 45+ Mẫu nhà cấp 4 đẹp 5x20 mái tôn được ưa chuộng nhất 2025

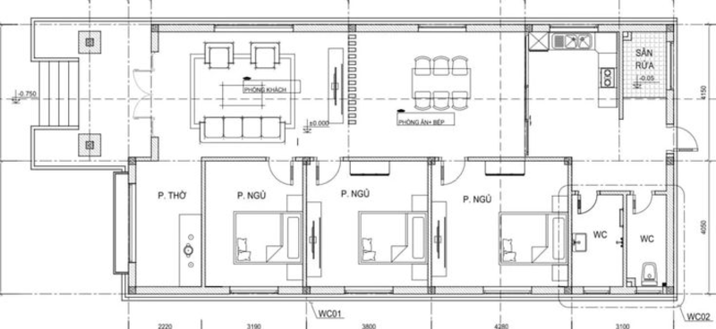
Bản vẽ thiết kế mẫu nhà ống 1 tầng nông thôn 8x15m (Nguồn: Internet)
Mẫu nhà ống 1 tầng kích thước 8x15m là phương án thiết kế hợp lý, phù hợp với nhu cầu sinh hoạt của gia đình đông người tại khu vực nông thôn. Với mặt tiền rộng và chiều sâu vừa phải, bản vẽ tận dụng hiệu quả từng mét vuông để bố trí không gian sinh hoạt tiện nghi và khoa học. Điểm nổi bật của thiết kế là 4 phòng ngủ liền kề, nằm về một bên dãy nhà, mang lại sự riêng tư cho từng thành viên. Bên cạnh đó, phòng thờ được đặt ở phía trước, vừa trang trọng, vừa đảm bảo yếu tố phong thủy.
Khu vực sinh hoạt chung gồm phòng khách, bếp và bàn ăn được bố trí dọc theo chiều dài còn lại của căn nhà, tạo không gian mở, thoáng đãng. Thiết kế 2 WC tách biệt (WC01 và WC02) ở hai đầu nhà giúp phân bổ công năng hợp lý, giảm tình trạng quá tải khi sử dụng.Tổng thể bản vẽ mang lại cảm giác gọn gàng, hiện đại, phù hợp với xu hướng xây dựng nhà ở nông thôn hiện nay.

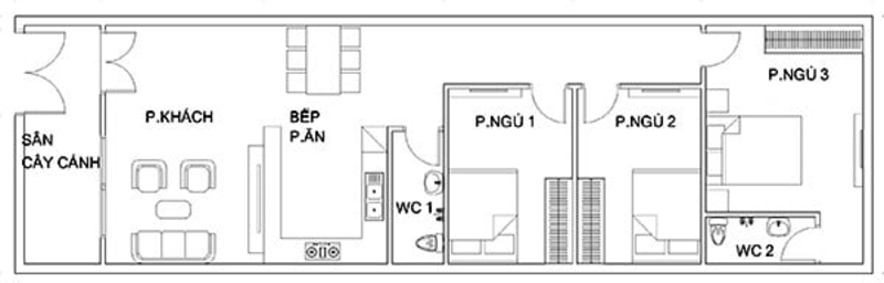
Bản vẽ mẫu nhà ống 1 tầng 3 phòng ngủ nông thôn cho gia đình 4-6 người (Nguồn: Internet)
Mẫu nhà ống 1 tầng với bố cục 3 phòng ngủ được thiết kế đơn giản, khoa học, rất phù hợp với gia đình có từ 4-6 thành viên sinh sống tại nông thôn. Với mặt bằng hình chữ nhật dài, bản vẽ tối ưu diện tích hiệu quả, đồng thời đảm bảo đầy đủ công năng sử dụng.Từ cổng vào là sân cây cảnh nhỏ, tạo khoảng đệm xanh mát trước khi bước vào phòng khách. Liền kề đó là khu vực bếp và phòng ăn, thiết kế mở giúp tạo sự kết nối giữa các không gian mà vẫn thông thoáng.
Phía sau là 3 phòng ngủ liên tiếp, trong đó hai phòng giữa có diện tích tương đương. Phòng ngủ cuối (P.Ngủ 3) nằm gần WC 2 đảm bảo sự riêng tư. Nhà có tổng cộng 2 nhà vệ sinh (WC 1 ở giữa và WC 2 phía sau) giúp sinh hoạt tiện lợi, không bị quá tải. Tổng thể bản vẽ phù hợp với diện tích đất dạng ống phổ biến ở nông thôn, phù hợp lý cho gia đình nhiều thế hệ cùng sinh sống.
>> Xem thêm:
Mẫu nhà ống 1 tầng nông thôn có kích thước 5x15m thường ưu tiên phong cách kiến trúc hiện đại, đề cao sự tối giản và tinh tế trong thiết kế. Thay vì các chi tiết cầu kỳ, mặt tiền ngôi nhà được làm nổi bật qua cách phối màu khéo léo và những đường nét thiết kế mạnh mẽ, rõ ràng. Chính sự kết hợp hài hòa này đã mang đến không gian sống hiện đại, trẻ trung nhưng vẫn phù hợp với cảnh quan thiên nhiên và đáp ứng đầy đủ nhu cầu sinh hoạt cho cả gia đình.

Mẫu nhà ống 1 tầng đẹp 5x15 ở nông thôn với thiết kế hiện đại, tiện nghi (Nguồn: Internet)

Thiết kế mặt tiền nhà ống 1 tầng nông thôn 5x15 thoáng mát, rộng rãi (Nguồn: Internet)
>> Xem thêm:
Mẫu nhà ống 1 tầng nông thôn diện tích 5x17m là giải pháp thiết kế lý tưởng cho những mảnh đất có mặt tiền 5m và chiều sâu 17m. Với lối kiến trúc đơn giản nhưng tinh tế, mẫu nhà này giúp tận dụng tối đa diện tích sử dụng mà vẫn đảm bảo công năng đầy đủ cho gia đình. Đồng thời, chi phí xây dựng cũng được tối ưu, phù hợp với ngân sách của nhiều hộ gia đình hiện nay.
Điểm nhấn của mẫu nhà ống 1 tầng này đến từ việc sử dụng các vật liệu thông minh như tấm bê tông nhẹ DURAflex Low Carbon không chỉ giúp tăng tính thẩm mỹ mà còn đảm bảo độ bền chắc, chịu ẩm vượt trội và an toàn cho sức khỏe.

Mẫu nhà ống 1 tầng đẹp, ấm cúng có kích thước 5x17m (Nguồn: Internet)

Kiến trúc nhà ống 1 tầng 5x17 tận dụng tối đa diện tích, phù hợp với những lô đất hạn chế (Nguồn: Internet)
>> Đọc thêm:
Mẫu nhà ống 1 tầng đẹp 5x20 ở nông thôn phù hợp với những gia đình mong muốn có một không gian sống hiện đại trên nền đất có chiều ngang vừa phải. Với thiết kế thông minh, mẫu nhà này tận dụng hiệu quả từng mét vuông diện tích đất, đảm bảo sự thông thoáng và tiện nghi trong sinh hoạt hằng ngày. Không gian của ngôi nhà được kiến trúc sư bố trí hợp lý giữa các khu vực giúp tối ưu công năng, đồng thời mang lại cảm giác rộng rãi, thoải mái.

Thiết kế nhà cấp 4 đẹp 5x20 trẻ trung, năng động (Nguồn: Internet)

Mẫu nhà ống 1 tầng ở nông thôn 5x20 sang trọng, hợp xu hướng (Nguồn: Internet)
>> Đọc thêm:
Với diện tích 5x25m mẫu nhà ống 1 tầng nông thôn này đang là lựa chọn phổ biến tại các khu đô thị nhờ thiết kế tiện nghi và khả năng tối ưu diện tích hiệu quả. Thiết kế nhà ống không chỉ linh hoạt về phong cách mà còn thể hiện được dấu ấn của chủ nhân qua từng chi tiết kiến trúc. Điểm nổi bật nhất trong cấu trúc của mẫu nhà này chính là phần mặt tiền rộng rãi, có tính thẩm mỹ cao. Không gian ngôi nhà được bố trí các gam màu hài hòa, từng đường nét tinh tế, vừa đảm bảo yếu tố phong thủy vừa tạo nên mẫu nhà đẹp thu hút.

Mẫu nhà ống 1 tầng nông thôn có kích thước 5x25 đẹp, bền vững theo thời gian (Nguồn: Internet)

Thiết kế mẫu nhà ống 1 tầng nông thôn với không gian mở, hài hòa với thiên nhiên (Nguồn: Internet)
>> Tham khảo thêm:
Mẫu nhà ống có gác lửng 1 tầng nông thôn đang là xu hướng thiết kế nhà ở thông minh được nhiều gia chủ lựa chọn. Kiến trúc ngôi nhà khéo léo kết hợp giữa sự tiện nghi của nhà ống một tầng và sự linh hoạt của gác lửng nhằm tối ưu hóa diện tích sử dụng, đồng thời tăng thêm không gian sinh hoạt cho gia đình
Để tăng độ bền, sự tiện nghi và tối ưu chi phí xây dựng cho mẫu nhà gác lửng này, bạn nên lựa chọn tấm bê tông đúc sẵn DURAflex Low Carbon. Với khả năng chịu ẩm, chống cháy, độ bền vượt trội và bề mặt phẳng mịn, đây là giải pháp lý tưởng cho các hạng mục như tấm lót sàn gác lửng, vách ngăn phòng, trần nhà hay ốp tường nội, ngoại thất.

Mẫu nhà ống 1 tầng nông thôn có gác lửng hiện đại đáp ứng cầu sinh hoạt của các gia đình trẻ (Nguồn: Internet)

Mẫu nhà ống 1 tầng nông thôn có gác lửng đẹp, nội thất sang trọng (Nguồn: Internet)
>>> Đọc thêm:
Thiết kế mẫu nhà ống 1 tầng nông thôn có cầu thang tối giản, hiện đại đồng thời còn gây ấn tượng nhờ chi tiết cầu thang được bố trí tinh tế. Ngoài chức năng kết nối không gian, cầu thang còn góp phần làm nổi bật gu thẩm mỹ của gia chủ. Việc lựa chọn thiết kế cầu thang xoắn hay thẳng tùy thuộc vào diện tích và sở thích cá nhân, giúp mang lại sự hài hòa và tiện nghi cho không gian sống.

Mẫu nhà ống 1 tầng có cầu thang ở nông thôn giúp tăng thêm điểm nhấn thẩm mỹ cho ngôi nhà (Nguồn: Internet)

Mẫu nhà ống 1 tầng nông thôn có cầu thang tối giản, hiện đại (Nguồn: Internet)
>>> Xem thêm:
Với lối kiến trúc thông minh, tận dụng triệt để diện tích, mẫu nhà ống 1 tầng nông thôn có tum là giải pháp lý tưởng trong thiết kế nhà ở hiện đại. Phần tum được xây dựng cao hơn mặt sàn chính, không chỉ đóng vai trò mở rộng diện tích sử dụng mà còn tạo nên điểm nhấn cho kiến trúc ngôi nhà. Nhờ thiết kế linh hoạt và tối ưu không gian, mẫu nhà này ngày càng được ưa chuộng ở cả đô thị lẫn nông thôn.

Mẫu nhà ống 1 tầng nông thôn có 1 tum tầng đơn giản, dễ thi công (Nguồn: Internet)

Mẫu nhà ống 1 tầng nông thôn có tum tạo điểm nhấn độc đáo giúp ngôi nhà cao ráo, thoáng mát hơn (Nguồn: Internet)
>>> Có thể bạn sẽ quan tâm:
Đối với những gia đình có diện tích đất khiêm tốn thường sẽ ưu tiên xây dựng các mẫu nhà ống 1 tầng có 2 phòng ngủ. Kiểu nhà cấp 4 này không chỉ đáp ứng đủ nhu cầu sinh hoạt cho các thành viên mà còn mang lại sự thoải mái, tiện nghi tối đa. Với hai phòng ngủ được bố trí hợp lý, mẫu nhà đáp ứng tốt nhu cầu của các gia đình trẻ hoặc gia đình có ít thành viên mà vẫn đảm bảo tính thẩm mỹ và công năng.

Mẫu nhà ống 1 tầng nông thôn có 2 phòng ngủ thiết kế đơn giản, đầy đủ tiện nghi (Nguồn: Internet)

Bản vẽ thiết kế nhà ống 1 tầng 2 phòng ngủ đẹp mắt, tối ưu không gian (Nguồn: Internet)

Bản vẽ nhà cấp 4 dạng ống có 2 phòng ngủ liền kề giúp thuận tiện cho việc sinh hoạt (Nguồn: Internet)
>> Đọc thêm:
Mẫu nhà ống 1 tầng nông thôn có 3 phòng ngủ dành cho những gia đình có từ 4-6 thành viên hoặc mong muốn sở hữu không gian sống mở, hiện đại. Với 3 phòng ngủ riêng biệt được bố trí khoa học, mỗi thành viên đều có không gian riêng tư để nghỉ ngơi, thư giãn mà vẫn giữ được sự kết nối trong sinh hoạt chung. Ngoài ra, thiết kế mẫu nhà này còn dễ dàng tích hợp thêm các khu vực chức năng như phòng khách, bếp, phòng thờ hay thiết kế sân vườn.

Mẫu nhà cấp 4 nông thôn 3 phòng ngủ đẹp, linh hoạt trong thiết kế (Nguồn: Internet)

Mẫu nhà ống 1 tầng nông thôn 3 phòng ngủ 5x20 kiểu dáng truyền thống, đầy đủ công năng (Nguồn: Internet)
>> Tham khảo thêm:
Mẫu nhà ống 1 tầng nông thôn đẹp thường có thiết kế tối giản và chi phí hợp lý. Không gian ngôi nhà được bố trí không quá cầu kỳ nhưng vẫn thể hiện sự tinh tế trong từng đường nét kiến trúc, đồng thời đáp ứng đầy đủ công năng sử dụng. Sự kết hợp giữa không gian mở, gần gũi với thiên nhiên và tính tiện nghi trong sinh hoạt khiến mẫu nhà ống 1 tầng nông thôn ngày càng được ưa chuộng.
Bên cạnh đó, khi kết hợp sử dụng các vật liệu chất lượng như tấm xi măng xanh đầu tiên tại Việt Nam DURAflex Low Carbon, mẫu nhà ống 1 tầng ở nông thôn không chỉ ghi điểm với tính thẩm mỹ cao mà còn bền đẹp theo thời gian.

Mẫu nhà ống 1 tầng ở nông thôn tối ưu không gian sống, tiết kiệm chi phí (Nguồn: Internet)

Thiết kế mẫu nhà cấp 4 nông thôn dạng ống chắc chắn, bền vững theo thời gian (Nguồn: Internet)
>> Đọc thêm:
Mẫu nhà ống 1 tầng nông thôn theo phong cách hiện đại mang đến sự kết hợp hài hòa giữa thẩm mỹ và công năng, tạo nên không gian sống trẻ trung, phóng khoáng. Thiết kế chú trọng đến sự tối giản nhưng vẫn toát lên vẻ sang trọng thông qua cách sử dụng vật liệu cao cấp, màu sắc tươi sáng và bố trí các cửa kính lớn đón sáng tự nhiên. Chính sự khéo léo trong bố trí giúp tối ưu hóa diện tích, mở rộng không gian sống và kết nối với thiên nhiên bên ngoài.

Mẫu nhà ống 1 tầng nông thôn hiện đại đang là xu hướng nhà ở được yêu thích nhất 2026 (Nguồn: Internet)

Mẫu nhà cấp 4 nông thôn 250 triệu dạng ống thanh lịch, dễ bảo trì (Nguồn: Internet)
>>> Bạn có thể xem thêm:
Mẫu nhà ống 1 tầng nông thôn có chi phí thấp phù hợp với những ai mong muốn có một không gian sống tiện nghi mà vẫn tiết kiệm ngân sách. Kiểu nhà này thường có thiết kế thông minh tận dụng tối đa diện tích, đến sự linh hoạt trong bố trí công năng. Ngôi nhà ống 1 tầng sử dụng vật liệu như bê tông, tấm xi măng giả gỗ DURAwood Low Carbon và gam màu tươi sáng, toát lên vẻ đẹp thanh lịch, ấm cúng.

Mẫu nhà ống 1 tầng nông thôn chi phí thấp thoáng mát, hài hòa với thiên nhiên (Nguồn: Internet)

Mẫu nhà ống 1 tầng nông thôn đẹp có chi phí thấp thanh lịch, ấm cúng (Nguồn: Internet)
>> Đọc thêm:
Mẫu nhà ống 1 tầng nông thôn có mặt tiền 5m phù hợp với những lô đất có chiều ngang khiêm tốn. Các gia chủ có thể bố trí linh hoạt từ 2 đến 3 phòng ngủ, phòng khách, khu bếp ăn và khoảng sân trước dùng để đậu xe. Thiết kế ngôi nhà thường ưu tiên sử dụng hệ cửa kính lớn nhằm đón sáng tự nhiên, tạo cảm giác thoáng đãng, mở rộng không gian và gần gũi với thiên nhiên bên ngoài.

Mẫu nhà ống 1 tầng nông thôn mặt tiền 5m hiện đại, chuẩn xu hướng 2026 (Nguồn: Internet)

Mẫu mặt tiền nhà ống đẹp 1 tầng ở nông thôn thiết kế tối giản nhưng sang trọng (Nguồn: Internet)
>> Xem tham khảo thêm:
Với mặt tiền 6m, mẫu nhà ống 1 tầng nông thôn này thường có thiết kế hướng đến sự tối giản, không quá cầu kỳ về mặt ngoại thất nhưng vẫn đảm bảo tính thẩm mỹ và sự tiện nghi tối đa cho không gian sống bên trong. Không gian ngôi nhà được tính toán tỉ mỉ để bố trí các khu vực chức năng khoa học, tiện nghi nhất cho người sử dụng.

Mẫu nhà ống 1 tầng nông thôn mặt tiền 6m đẹp, thu hút mọi ánh nhìn (Nguồn: Internet)

Mẫu nhà ống 1 tầng nông thôn mặt tiền 6m đẹp, phối màu tinh tế (Nguồn: Internet)
Mẫu nhà ống 1 tầng nông thôn có mặt tiền rộng 7m có thể đáp ứng nhiều phong cách thiết kế khác nhau từ đơn giản, hiện đại cho đến các phong cách sang trọng như Bắc Âu hay Địa Trung Hải. Điểm nhấn của ngôi nhà nhờ vào việc khéo léo bố trí các cửa sổ rộng đón ánh sáng tự nhiên cùng với phối màu ngoại thất hài hòa, mỗi chi tiết đều góp phần tạo nên một tổ ấm vừa tiện nghi vừa mang đậm dấu ấn chủ nhân.

Mẫu nhà ống 1 tầng nông thôn mặt tiền 7m hiện đại, chuẩn không gian sống lý tưởng (Nguồn: Internet)

Mẫu nhà ống 1 tầng nông thôn với mặt tiền 7m phù hợp đô thị hiện đại (Nguồn: Internet)
>>> Đọc thêm:
Với diện tích xây dựng hạn chế khoảng 40m2, mẫu nhà ống 1 tầng nông thôn này dành cho cho những ai yêu thích sự đơn giản, hiện đại với cách bố trí không gian vô cùng sáng tạo và linh hoạt. Dù có diện tích khiêm tốn, kiểu nhà này vẫn mang lại cảm giác rộng rãi và thoải mái nhờ vào thiết kế thông minh, tận dụng triệt không gian. Mỗi khu vực trong nhà đều được bố trí hợp lý, phòng khách và phòng bếp được kết nối mở, tạo nên một không gian sinh hoạt chung ấm cúng, gần gũi. Bên cạnh đó, phòng ngủ cũng sẽ được thiết kế riêng biệt, mang đến sự riêng tư và thoải mái.

Mẫu nhà ống 1 tầng nông thôn rộng 40m2 đẹp, đầy đủ công năng (Nguồn: Internet)

Mẫu nhà ống 1 tầng nông thôn 40m2 thiết kế đơn giản nhưng vẫn rất cuốn hút (Nguồn: Internet)
Mẫu nhà ống 1 tầng nông thôn có diện tích khoảng 60m2 được thiết kế tinh tế, tối ưu hóa không gian để mang lại sự thoáng đãng và tiện nghi cho gia chủ. Nội thất ngôi nhà được sắp xếp khoa học, mỗi góc nhỏ đều được tận dụng khéo léo, đảm bảo hài hòa giữa tính thẩm mỹ và công năng sử dụng. Từ phòng khách rộng rãi, phòng ngủ ấm cúng cho đến khu bếp tiện nghi, tất cả đều được thiết kế nhằm phục vụ tối ưu cho sinh hoạt gia đình.

Mẫu nhà ống 1 tầng nông thôn 60m2 thiết kế tinh tế, thanh lịch, tiện nghi (Nguồn: Internet)

Mẫu nhà ống 1 tầng nông thôn 60m2 đẹp, kết hợp không gian xanh và thiết kế mở (Nguồn: Internet)
>> Các mẫu nhà 1 tầng khác:
Mẫu nhà ống 1 tầng nông thôn 80m2 gây ấn tượng bởi thiết kế mở, tận dụng tối đa ánh sáng tự nhiên. Bằng cách bố trí nội thất hài hòa, thông minh đã biến ngôi nhà trở thành tổ ấm rộng rãi hơn. Từ phòng khách thoáng đãng đến khu bếp tiện nghi và phòng ngủ ấm cúng, mỗi không gian trong mẫu nhà ống này đều được tính toán kỹ lưỡng để đảm bảo sự thoải mái tối đa cho gia chủ.

Mẫu nhà ống 1 tầng 80m2 đẹp, phổ biến ở nông thôn (Nguồn: Internet)

Thiết kế nhà ống 1 tầng nông thôn 80m2 đẹp, hiện đại, sang trọng (Nguồn: Internet)
Sở hữu diện tích xây dựng 100m2, mẫu nhà này được nhiều người yêu thích bởi tiện nghi nhưng vẫn đề cao giá trị thẩm mỹ và công năng. Với diện tích vừa phải không quá lớn, ngôi nhà được sắp xếp thông minh khi tích hợp đầy đủ các khu vực sinh hoạt từ phòng khách sang trọng, phòng ngủ tiện nghi cho đến không gian làm việc và thư giãn riêng tư. Điểm nổi bật của mẫu nhà ống 1 tầng 100m2 chính là cách bố trí không gian mở linh hoạt, tạo sự kết nối hài hòa giữa các phòng.
Các kiến trúc sư đã khéo léo sử dụng tấm xi măng DURAflex Low Carbon với ưu điểm chịu lực cao, khả năng chống cháy vượt trội vừa đảm bảo kết cấu vững chắc, vừa giúp công trình thi công nhanh chóng lại giúp tiết kiệm chi phí đáng kể.

Mẫu nhà ống 1 tầng nông thôn 100m2 rộng rãi, đầy đủ tiện nghi (Nguồn: Internet)

Thiết kế nhà ống 1 tầng nông thôn 100m2 với gam màu trắng, xám toát lên vẻ đẹp tinh tế, sang trọng (Nguồn: Internet)
>> Xem thêm:
Thiết kế nhà mái Thái đang được ưa chuộng ở nước ta khi xây dựng các mẫu nhà ống 1 tầng nhờ sự kết hợp hài hòa giữa tính thẩm mỹ và công năng sử dụng. Với kiến trúc nhà mái Thái đặc trưng, mẫu nhà này không chỉ có vẻ ngoài thanh thoát, cao ráo mà còn đem lại cảm giác thông thoáng, mát mẻ cho không gian sống. Điểm đặc biệt của mẫu nhà ống 1 tầng mái Thái là khả năng thích nghi linh hoạt với nhiều diện tích khác nhau, từ nhỏ hẹp đến rộng rãi, đáp ứng nhiều nhu cầu sử dụng.

Mẫu nhà ống 1 tầng nông thôn mái Thái đẹp, thanh thoát, thoáng đãng (Nguồn: Internet)

Mẫu nhà ống 1 tầng nông thôn mái Thái mang đến vẻ đẹp hiện đại, sang trọng (Nguồn: Internet)
>>> Đọc thêm:
Mẫu nhà ống 1 tầng nông thôn mái Nhật nổi bật với vẻ đẹp độc đáo, hiện đại trong từng đường nét. Thiết kế của ngôi nhà mái Nhật này đặc biệt phù hợp với khí hậu nhiệt đới, mang đến không gian sống mát mẻ vào mùa hè và ấm áp khi đông về. Nhà cấp 4 mái Nhật có độ dốc vừa phải, giúp tăng khả năng thoát nước hiệu quả. Điều này không chỉ đảm bảo tính thẩm mỹ mà còn tăng độ bền vững cho công trình.

Mẫu nhà cấp 4 mái Nhật 3 phòng ngủ ở nông thôn mang lại tổng thể sang trọng (Nguồn: Internet)

Nhà ống 1 tầng nông thôn thiết kế mái Nhật tính thẩm mỹ cao, bền vững theo thời gian (Nguồn: Internet)
>>> Bài viết có cùng chủ đề:
Mẫu nhà ống 1 tầng nông thôn mái bằng hiện đang được nhiều gia đình lựa chọn nhờ khả năng tối ưu chi phí xây dựng. Thiết kế kiểu nhà mái bằng này có phong cách tối giản, ít chi tiết rườm rà, giúp quá trình thi công diễn ra nhanh chóng và dễ dàng. Bên cạnh đó, phần diện tích đất còn lại có thể được tận dụng làm nhà vườn nhỏ đẹp, thoáng mát, tạo không gian sống gần gũi với thiên nhiên và nâng cao chất lượng cuộc sống.

Mẫu nhà ống 1 tầng nông thôn mái bằng với đường nét thiết kế đơn giản, hiện đại (Nguồn: Internet)

Mẫu nhà ống 1 tầng nông thôn mái bằng đơn giản, tiết kiệm chi phí (Nguồn: Internet)
Mẫu nhà ống 1 tầng mái xéo ở nông thôn ngày càng được nhiều gia đình ưa chuộng nhờ thiết kế hiện đại, cá tính và tính ứng dụng cao. Phần mái nghiêng không chỉ tạo điểm nhấn kiến trúc độc đáo mà còn phát huy hiệu quả trong việc thoát nước nhanh, chống thấm tốt, đặc biệt phù hợp với những khu vực có khí hậu mưa nhiều hoặc thời tiết khắc nghiệt. Ngoài ra, thiết kế mái xéo còn giúp gia chủ tận dụng phần mái cao để làm kho chứa đồ hoặc gác lửng, vừa tiện lợi vừa tiết kiệm diện tích sử dụng trong nhà. Đây là giải pháp thiết kế thông minh, phù hợp với xu hướng nhà ở hiện đại tại vùng nông thôn.

Mẫu nhà ống 1 tầng nông thôn mái xéo độc đáo, thoát nước mưa tốt (Nguồn: Internet)
>> Xem thêm:
Mẫu nhà ống 1 tầng mái ngói với vẻ đẹp mộc mạc nhưng đầy cuốn hút, thiết kế mái ngói truyền thống tạo điểm nhấn cho toàn bộ kiến trúc ngôi nhà. Kiểu kiến trúc nhà mái ngói ở này thường phổ biến ở vùng nông thôn Việt Nam. Tuy nhiên ngày nay với đa dạng màu sắc ngói giúp gia chủ có thêm nhiều lựa chọn cho không gian sống của mình. Mái ngói không chỉ mang lại vẻ đẹp thẩm mỹ mà còn có khả năng cách nhiệt tốt, tạo không gian sống mát mẻ.

Mẫu nhà ống 1 tầng nông thôn với mái ngói truyền thống (Nguồn: Internet)

Mẫu nhà ống 1 tầng nông thôn mái ngói với đường nét thiết kế đơn giản, hiện đại (Nguồn: Internet)
Mẫu nhà ống 1 tầng chữ L ở nông thôn là một lựa chọn thiết kế độc đáo, ngày càng được nhiều gia chủ quan tâm. Kiểu nhà chữ L này thường phù hợp với những khu đất có hình dáng đặc thù, không vuông vức. Nhờ kết cấu chữ L linh hoạt, ngôi nhà không chỉ tối ưu hóa diện tích sử dụng mà còn tạo ra khoảng trống lý tưởng để bố trí sân vườn, tiểu cảnh, nhà chòi sân vườn hoặc khu vực đón nắng ở phần góc chữ L. Đây là phương án thiết kế vừa thông minh vừa thẩm mỹ, giúp không gian sống trở nên thoáng đãng, gần gũi với thiên nhiên.

Mẫu nhà ống 1 tầng nông thôn chữ L mới mẻ, có sân vườn gần gũi thiên nhiên (Nguồn: Internet)
>> Xem thêm:
Những mẫu nhà vuông 1 tầng không chỉ mang đến sự tiện nghi trong sinh hoạt mà còn thể hiện tính hài hòa và cân đối trong thiết kế. Với kết cấu bốn góc vuông vức, không gian bên trong dễ dàng phân chia công năng rõ ràng, giúp việc bố trí phòng ốc trở nên linh hoạt và khoa học hơn. Về mặt phong thủy, hình khối vuông tượng trưng cho sự ổn định, vững vàng là biểu tượng của sự đầy đủ, trọn vẹn. Chính vì vậy, nhà vuông thường được xem là kiểu nhà lý tưởng, mang lại cảm giác đoàn viên, bình yên cho gia đình.

Mẫu nhà ống vuông 1 tầng nông thôn chuẩn phong thủy, thu hút tài lộc (Nguồn: Internet)

Mẫu thiết kế nhà ống vuông 1 tầng nông thôn cân đối, hiện đại (Nguồn: Internet)
Những mẫu nhà ống hộp 1 tầng thường được thiết kế theo hình chữ nhật, với mặt tiền hẹp và chiều sâu lớn. Sau khi hoàn thiện, tổng thể ngôi nhà có dáng vẻ giống như một “chiếc hộp” đơn giản nhưng gọn gàng và hiện đại. Kiểu kiến trúc này đặc biệt phù hợp với những khu đất có diện tích nhỏ hoặc nằm trong hẻm sâu. Nhờ kết cấu tiết kiệm và thi công không quá phức tạp, nhà hộp 1 tầng có chi phí xây dựng vừa phải, rất phù hợp với các gia đình có thu nhập trung bình đang tìm kiếm giải pháp nhà ở hiệu quả, tiện nghi và dễ bảo trì.

Mẫu nhà ống hộp 1 tầng ở nông thôn phù hợp cho những khu đất hẹp (Nguồn: Internet)
>> Đọc thêm:
Những mẫu nhà ống kính 1 tầng hiện đại luôn tạo được dấu ấn mạnh mẽ nhờ vẻ ngoài sang trọng, tinh tế và đậm chất thời thượng. Với thiết kế sử dụng nhiều mảng kính lớn, kiểu nhà này mang đến không gian sống tràn ngập ánh sáng tự nhiên, đồng thời mở rộng tầm nhìn và tạo cảm giác thông thoáng tối đa. Đây là lựa chọn lý tưởng cho những gia đình yêu thích sự tiện nghi, cởi mở và gần gũi với thiên nhiên.

Mẫu nhà ống kính 1 tầng nông thôn tràn ngập ánh sáng tự nhiên (Nguồn: Internet)
Mẫu nhà ống kiểu Pháp 1 tầng gây ấn tượng bởi vẻ đẹp cổ điển, sang trọng và những đường nét thiết kế đầy tinh xảo. Kiến trúc nổi bật với các chi tiết chạm trổ công phu, hoa văn mềm mại cùng hệ thống cột trụ lớn vững chắc, tạo nên cảm giác bề thế và đẳng cấp. Phần mái ngói truyền thống kết hợp hài hòa với bố cục đối xứng, giúp tổng thể ngôi nhà vừa nổi bật vừa cân đối. Đây là lựa chọn lý tưởng cho những gia chủ yêu thích vẻ đẹp hoài cổ nhưng vẫn muốn giữ nét thanh lịch, tinh tế trong không gian sống.

Mẫu nhà ống 1 tầng nông thôn kiểu Pháp sang trọng, cổ điển (Nguồn: Internet)

Mẫu nhà ống 1 tầng nông thôn kiểu Pháp lộng lẫy, nổi bật (Nguồn: Internet)
>> Xem thêm:
Khi thiết kế mẫu nhà ống 1 tầng nông thôn, gia chủ cần cân nhắc kỹ lưỡng đến yếu tố vị trí và hướng nhà. Trong quá trình thiết kế nhà ống 1 tầng ở nông thôn, việc lựa chọn hướng nhà phù hợp với bản mệnh của gia chủ không chỉ mang ý nghĩa phong thủy mà còn đem lại tài lộc và sức khỏe cho cả gia đình. Bên cạnh yếu tố phong thủy, bạn cũng cần tìm hiểu kỹ vị trí khu đất, hướng gió và ánh sáng. Sự kết hợp hài hòa giữa phong thủy và môi trường thực tế sẽ giúp ngôi nhà luôn thông thoáng, thoải mái và tràn đầy sinh khí.

Khi thiết kế nhà ống 1 tầng nông thôn, nên cân nhắc kỹ đến yếu tố vị trí và hướng nhà phong thủy (Nguồn: Internet)
Mỗi gia đình khác nhau sẽ có những thói quen sinh hoạt và nhu cầu khác nhau. Do đó, gia chủ cần xác định rõ những nhu cầu này. Từ đó đưa ra những quyết định đúng đắn trong việc thiết kế mẫu nhà ống 1 tầng nông thôn để đáp ứng tốt nhất về công năng, tiện ích,
Việc xác định rõ ngân sách xây dựng ngay từ đầu là bước then chốt khi xây dựng mẫu thiết kế nhà ống đẹp, hiện đại 1 tầng, giúp gia chủ có thể tự chủ động trong việc lựa chọn phong cách kiến trúc, vật liệu và phân bổ chi phí hợp lý. Nếu không có kế hoạch tài chính rõ ràng dễ dẫn đến tình trạng đội chi phí, gây gián đoạn tiến độ hoặc buộc phải cắt giảm chất lượng công trình. Các khoản mục quan trọng cần được tính toán bao gồm: chi phí thiết kế, thi công phần thô, nhân công, vật liệu đến trang thiết bị nội thất.
Mẫu nhà ống 1 tầng nông thôn thường linh hoạt trong phong cách thiết kế từ hiện đại tối giản đến tân cổ điển sang trọng hay truyền thống mộc mạc. Để sở hữu không gian sống hài hòa và tiện nghi, gia chủ cần xác định rõ nhu cầu sử dụng, gu thẩm mỹ cá nhân và đặc điểm của quỹ đất của gia đình mình. Việc lựa chọn đúng phong cách thiết kế ngay từ đầu sẽ giúp tối ưu công năng sử dụng và tạo nên tổng thể kiến trúc ấn tượng, đáp ứng nhu cầu sinh hoạt.
Khi thiết kế mẫu nhà ống 1 tầng nông thôn, yếu tố kích thước, diện tích khu đất và kích thước mặt tiền là một trong những tiêu chí quan trọng cần được chủ đầu tư và nhà thầu tính toán kỹ lưỡng. Dựa trên diện tích đất thực tế, chủ nhà có thể phân chia không gian sống một cách khoa học, tối ưu công năng giữa các phòng. Tuy nhiên, cần lưu ý rằng diện tích càng lớn thì ngân sách đầu tư cho xây dựng và hoàn thiện cũng sẽ tăng theo tỷ lệ tương ứng.

Chú ý kích thước mặt tiền và diện tích khu đất khi xây dựng mẫu nhà ống 1 tầng nông thôn đẹp (Nguồn: Internet)
Một mẫu nhà ống 1 tầng nông thôn đẹp không chỉ đáp ứng tính thẩm mỹ mà còn phải đảm bảo công năng sử dụng tối ưu. Nếu xây dựng để ở, ngôi nhà thường mang phong cách cá nhân, phản ánh rõ nét gu thẩm mỹ và nhu cầu sinh hoạt của gia chủ. Ngược lại, nếu hướng tới mục đích kinh doanh như cho thuê, mở quán hoặc homestay, kiến trúc sẽ ưu tiên sự linh hoạt, dễ tiếp cận và phù hợp với thị hiếu chung của nhiều đối tượng khách hàng.
Chọn vật liệu xây dựng phù hợp là yếu tố then chốt giúp công trình bền đẹp theo thời gian. Đặc biệt, với xu hướng xanh và tiết kiệm năng lượng hiện nay, bạn nên ưu tiên sử dụng các loại vật liệu bền vững, thân thiện môi trường như tấm xi măng xanh DURAflex Low Carbon. Đây là lựa chọn lý tưởng cho trần, vách ngăn hoặc lót sàn nhà ống 1 tầng nông thôn, đảm bảo độ bền và khả năng chịu ẩm tốt.

Sử dụng các vật liệu xây dựng chất lượng để đảm bảo nhà ống 1 tầng nông thôn luôn bền đẹp (Nguồn: Internet)
Trước khi thi công, việc hoàn thiện các thủ tục pháp lý xây dựng nhà ống 1 tầng là yêu cầu bắt buộc theo quy định hiện hành. Chủ đầu tư cần chuẩn bị đầy đủ hồ sơ xin giấy phép xây dựng và nộp cho cơ quan chức năng có thẩm quyền để được xem xét, phê duyệt. Thời gian xử lý hồ sơ thường kéo dài từ vài tuần đến khoảng một tháng, vì vậy bạn nên chủ động lên kế hoạch sớm nhằm đảm bảo tiến độ thi công không bị gián đoạn.
Chi phí thiết kế nhà ống 1 tầng nông thôn thường dao động tùy theo phong cách kiến trúc, mức độ chi tiết bản vẽ và độ uy tín của đơn vị tư vấn. Trung bình, chi phí thiết kế dao động từ 100.000 – 250.000 VNĐ/m². Việc đầu tư vào bản thiết kế bài bản ngay từ đầu không chỉ đảm bảo tính thẩm mỹ và công năng sử dụng mà còn giúp tránh sai sót trong quá trình thi công, tiết kiệm đáng kể thời gian và chi phí sửa chữa.

Mẫu thiết kế nhà ống 1 tầng nông thôn đẹp, nổi bật, chi phí thiết kế hợp lý (Nguồn: Internet)
>> Đọc thêm:
Trên thực tế, mức chi phí sẽ phụ thuộc vào nhiều yếu tố như quy mô công trình, thiết kế kiến trúc, loại vật liệu sử dụng và đơn giá của nhà thầu. Để có con số ước lượng chính xác, bạn có thể áp dụng công thức phổ biến:
Chi phí xây nhà = Đơn giá xây dựng trung bình x Tổng diện tích thi công
Trong đó, tổng diện tích bao gồm toàn bộ mặt sàn và phần mái của ngôi nhà. Tuy nhiên, con số này chỉ mang tính chất tham khảo. Để nhận được bảng báo giá cụ thể, phù hợp với nhu cầu và điều kiện tài chính, bạn nên liên hệ trực tiếp với đơn vị thi công uy tín để được tư vấn chi tiết nhất.
Ngoài ra, để tối ưu chi phí mà vẫn đảm bảo độ bền và chất lượng công trình, gia chủ nên ưu tiên các vật liệu có tuổi thọ cao, thi công nhanh và thân thiện môi trường. Một trong những giải pháp được nhiều người lựa chọn là sử dụng tấm xi măng DURAflex Low Carbon, sản phẩm thay thế lý tưởng cho gạch truyền thống, giúp giảm chi phí thi công mà vẫn đạt tiêu chuẩn kỹ thuật và thẩm mỹ cao.

Chi phí xây nhà ống 1 tầng nông thôn phụ thuộc nhiều yếu tố khác nhau (Nguồn: Internet)
Bài viết trên DURAflex đã tổng hợp giúp bạn các mẫu nhà ống 1 tầng nông thôn đẹp, hợp xu hướng hiện nay. Hy vọng bạn sẽ sớm lựa chọn được mẫu nhà ưng ý, đáp ứng sở thích và nhu cầu của từng thành viên trong gia đình. Ngoài ra nếu bạn muốn tìm hiểu về các sản phẩm tấm xi măng DURAflex Low Carbon vui lòng liên hệ với chúng tôi để được tư vấn:
Đánh giá và nhận xét
Đánh giá trung bình
0/5
5
4
3
2
1
Chia sẻ và nhận xét về bài viết
Chia sẻ và nhận xét về bài viết
Bài viết chưa có đánh giá nào