
DURAflex đăng vào lúc 29/11/2025 - 14:17
Bạn đang tìm kiếm mẫu nhà ống 1 tầng đẹp 5x20 vừa hiện đại, tối ưu công năng lại tiết kiệm chi phí? Với diện tích phổ biến và phù hợp cho nhiều gia đình Việt, nhà ống 5x20 là lựa chọn lý tưởng cho không gian sống tiện nghi, thoáng đãng. Hãy cùng DURAflex khám phá những thiết kế ấn tượng và xu hướng kiến trúc mới nhất trong bài viết sau đây!
Mẫu nhà ống 1 tầng đẹp 5x20 là kiểu nhà được thiết kế trên lô đất hình chữ nhật với chiều ngang (mặt tiền) 5m và chiều dài 20m. Với tổng diện tích sàn khoảng 100m², ngôi nhà này phù hợp với các gia đình có từ 3 đến 5 thành viên, đặc biệt là những cặp vợ chồng trẻ, người cao tuổi hoặc người đang tìm kiếm giải pháp nhà ở tiết kiệm, gọn gàng.

Mẫu nhà ống 1 tầng đẹp 5x20 là kiểu nhà có chiều ngang hẹp, chiều dài lớn (Nguồn: Internet)
>> Xem thêm:
Mẫu nhà ống 1 tầng đẹp 5x20 sở hữu các ưu và nhược điểm sau:
Tận dụng diện tích tối ưu
Với mặt tiền 5m và chiều sâu 20m, thiết kế nhà ống cấp 4 giúp tận dụng tối đa quỹ đất, đặc biệt phù hợp với khu đô thị chật hẹp. Nhờ bố trí thông minh, ngôi nhà vẫn đầy đủ công năng gồm phòng khách, bếp ăn, phòng thờ, 2-3 phòng ngủ và nhà vệ sinh chung. Ngoài ra, theo kinh nghiệm từ các kiến trúc sư, gia chủ cũng nên thiết kế giếng trời hoặc khoảng thông tầng để tăng cường ánh sáng tự nhiên và sự lưu thông khí, tạo cảm giác dễ chịu và gần gũi với thiên nhiên.

Mẫu nhà cấp 4 đẹp 5x20 giúp tối ưu diện tích đất hiệu quả (Nguồn: Internet)
>> Xem thêm: 35+ Mẫu nhà ống đẹp 3 tầng 5m được yêu thích nhất 2026
Đầy đủ tiện nghi, công năng sử dụng
Dù chỉ 1 tầng, mẫu nhà ống đẹp 5x20 vẫn dễ dàng được phân chia hợp lý các khu vực sinh hoạt và nghỉ ngơi. Mỗi không gian đều được thiết kế khoa học, đảm bảo tính riêng tư và thoải mái cho các thành viên trong gia đình.

Mẫu nhà cấp 4 dạng ống đẹp với diện tích 5x20 đầy đủ công năng sử dụng nhờ bố trí không gian hợp lý (Nguồn: Internet)
Đa dạng phong cách thiết kế
Mẫu nhà ống 1 tầng đẹp 5×20 dễ dàng tùy biến theo phong cách hiện đại, tối giản, tân cổ điển hay kiểu Nhật, Hàn… giúp gia chủ thoải mái thể hiện cá tính thẩm mỹ riêng. Những ai yêu thích sự khác biệt có thể thử nghiệm với mái lệch, mái vòm hoặc kết hợp giếng trời để tăng điểm nhấn cho công trình. Tùy vào sở thích và ngân sách, mỗi ngôi nhà ống 5x20 đều có thể trở thành một không gian sống mang đậm dấu ấn cá nhân.

Mẫu nhà ống 1 tầng đẹp 5x20 phù hợp với nhiều phong cách thiết kế khác nhau (Nguồn: Internet)
Tối ưu chi phí xây dựng
Một lý do khác khiến mẫu nhà ống 1 tầng đẹp 5x20 trở nên phổ biến chính là khả năng kiểm soát chi phí hiệu quả. So với những mẫu nhà mặt tiền lớn hoặc các mẫu nhà chữ U hay thiết kế biệt thự, mẫu nhà này có chi phí xây dựng thấp hơn rất nhiều mà vẫn đáp ứng đầy đủ nhu cầu sinh hoạt. Thiết kế đơn giản, cấu trúc rõ ràng giúp quá trình thi công diễn ra nhanh chóng, tiết kiệm thời gian và chi phí nhân công.

Mẫu nhà ống 1 tầng đẹp 5x20 có chi phí rẻ, là lựa chọn của nhiều gia chủ (Nguồn: Internet)
Đặc biệt, khi kết hợp với những vật liệu xây dựng hiện đại như tấm xi măng xanh DURAflex Low Carbon, chi phí còn có thể được tối ưu hơn nữa. Đây là loại vật liệu nhẹ, bền, dễ thi công, chịu ẩm và cách nhiệt chống nóng cực tốt, phù hợp với cả trần, vách và sàn nhẹ trong nhà dân dụng. Ngoài ra, sản phẩm còn thân thiện với môi trường nhờ quy trình sản xuất ít phát thải Carbon - điều mà nhiều gia chủ hiện đại đang đặc biệt quan tâm.
>> Xem thêm:
Dù sở hữu thiết kế tiện nghi và phù hợp với nhiều khu đất đô thị, mẫu nhà ống 1 tầng đẹp 5x20m vẫn tồn tại một số nhược điểm nhất định. Hạn chế lớn nhất là diện tích sử dụng không quá rộng, thường chỉ đủ bố trí từ 2 đến 3 phòng chức năng chính. Điều này khiến việc đáp ứng nhu cầu sinh hoạt của gia đình đông người trở nên khó khăn.
Bên cạnh đó, kiểu dáng hẹp và dài đặc trưng của nhà ống dễ gây hạn chế về ánh sáng và lưu thông không khí, nhất là ở các khu vực giữa nhà. Nếu không được bố trí giếng trời hoặc cửa sổ hợp lý, không gian dễ bị bí bách và thiếu sáng. Ngoài ra, việc sắp xếp nội thất trong không gian dài hẹp đòi hỏi sự tính toán kỹ lưỡng để đảm bảo vừa tối ưu công năng vừa giữ được sự hài hòa thẩm mỹ cho toàn bộ ngôi nhà.
Sau đây là một số mẫu nhà ống 1 tầng đẹp 5x20 được nhiều người ưa chuộng hiện nay mà các bạn có thể tham khảo:
Nhà mái bằng được xem là biểu tượng của kiến trúc hiện đại, vuông vức và bền vững. Các mẫu nhà ống 1 tầng đẹp 5x20 mái bằng hay nhà cấp 4 mái bằng chữ L đều theo phong cách tối giản, với mặt tiền hiện đại, phòng khách phía trước, khu bếp ăn ở trung tâm và 2–3 phòng ngủ phía sau. Mái bằng cũng có thể tận dụng làm sân thượng hoặc lắp hệ thống năng lượng mặt trời.
Để tối ưu chi phí xây dựng và rút ngắn thời gian thi công, nhiều gia chủ lựa chọn sử dụng vật liệu nhẹ như tấm bê tông siêu nhẹ DURAflex Low Carbon. Đây là giải pháp lý tưởng cho trần, vách ngăn hoặc sàn gác lửng với ưu điểm chịu nước, chống cháy và không chứa amiăng độc hại. Từ đó, giúp công trình vừa bền chắc vừa thân thiện với môi trường, phù hợp với xu hướng nhà ở hiện đại.

Mẫu nhà ống 1 tầng đẹp 5x20 mái bằng hiện đại, trang nhã (Nguồn: Internet)

Mẫu nhà ống 1 tầng đẹp 5x20 mái bằng có cửa kính lớn giúp tận dụng ánh sáng tự nhiên (Nguồn: Internet)

Mẫu nhà ống 1 tầng đẹp 5x20 mái bằng trẻ trung và hiện đại (Nguồn: Internet)
>> Đọc thêm:
Nhà mái Thái là lựa chọn phù hợp cho những ai yêu thích sự thanh thoát và bề thế. Kiểu mái này có độ dốc vừa phải giúp thoát nước mưa tốt, đồng thời tạo cảm giác ngôi nhà cao ráo, mát mẻ. Bên cạnh đó, kiến trúc nhà mái Thái cũng dễ dàng kết hợp với các chi tiết trang trí như mái hiên, cửa gỗ hoặc lam chắn nắng để tăng tính thẩm mỹ.

Mẫu nhà ống 1 tầng đẹp 5x20 mái Thái giúp thoát nước hiệu quả (Nguồn: Internet)

Mẫu nhà ống 1 tầng đẹp 5x20 mái Thái sử dụng đá làm điểm nhấn cho mặt tiền ngôi nhà (Nguồn: Internet)

Mẫu nhà ống 1 tầng đẹp 5x20 mái Thái tinh tế với tông màu trắng (Nguồn: Internet)
>> Xem thêm:
Mái lệch là biến tấu sáng tạo mang lại nét phá cách cho kiến trúc nhà ống. Sự bất đối xứng giữa hai bên mái giúp mặt tiền trông cá tính, thu hút hơn. Mẫu nhà ống 1 tầng đẹp 5x20m mái lệch cũng thích hợp với những gia đình trẻ yêu thích phong cách độc đáo và mong muốn ngôi nhà thể hiện cá tính riêng.

Mẫu nhà ống 1 tầng đẹp 5x20m mái lệch giúp tối ưu chi phí xây dựng (Nguồn: Internet)

Mẫu nhà ống 1 tầng đẹp 5x20m mái lệch phù hợp cho những ngôi nhà ở thành thị (Nguồn: Internet)

Mẫu nhà ống 1 tầng đẹp 5x20m mái lệch tạo nên sự độc đáo cho ngôi nhà (Nguồn: Internet)
>>> Các mẫu nhà kiểu mái khác:
Nhà mái ngói thường được ưa chuộng bởi vẻ đẹp truyền thống, độ bền cao và khả năng chống nóng tốt. Mẫu nhà ống 1 tầng đẹp 5x20m mái ngói thích hợp với các gia đình sống ở khu vực ngoại thành hoặc nông thôn, nơi không gian thoáng và có thể tận dụng khoảng sân trước để trồng cây, tạo tiểu cảnh.
Đối với nhà mái ngói, để giảm tải trọng công trình và tăng độ bền lâu dài, bạn nên cân nhắc sử dụng vật liệu nhẹ như tấm cemboard DURAflex Low Carbon cho trần và tường ngăn. Nhờ khả năng chống ẩm mốc, dễ thi công và độ bền chắc cao, sản phẩm giúp giảm chi phí bảo trì mà vẫn đảm bảo tính thẩm mỹ cho công trình.

Mẫu nhà ống 1 tầng đẹp 5x20m mái ngói tinh tế, hiện đại (Nguồn: Internet)

Mẫu nhà ống 1 tầng đẹp 5x20m mái ngói cách điệu hài hòa với cảnh quan xung quanh (Nguồn: Internet)

Mẫu nhà ống 1 tầng đẹp 5x20m mái ngói phù hợp với những làng quê yên bình (Nguồn: Internet)
>> Tìm hiểu thêm:
Mẫu nhà ống 1 tầng đẹp 5x20m mái tôn là lựa chọn tiết kiệm và phù hợp với các gia đình có ngân sách hạn chế. Mái tôn hiện nay đã được cải tiến đáng kể về khả năng cách nhiệt và giảm ồn. Khi kết hợp với thiết kế hợp lý và lớp lót mái chống nóng từ tấm bê tông đúc sẵn DURAflex Low Carbon, mẫu nhà ống mái tôn này vẫn có thể mang lại không gian sống thoải mái, tiện nghi.

Mẫu nhà cấp 4 đẹp 5x20 mái tôn dạng ống giúp tối ưu tối đa chi phí xây dựng (Nguồn: Internet)

Mẫu nhà cấp 4 mái tôn dưới 100 triệu 5x20m mang vẻ đẹp sang trọng, tinh tế (Nguồn: Internet)

Mẫu nhà ống 1 tầng đẹp 5x20m mái tôn kết hợp với cây xanh mang vẻ đẹp hài hòa, dễ chịu (Nguồn: Internet)
>> Xem thêm:
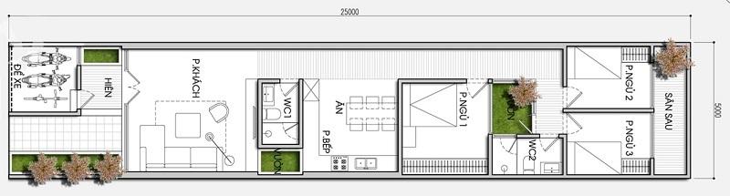
Mẫu thiết kế nhà ống 1 tầng 2 phòng ngủ 5x20 phù hợp với cặp vợ chồng trẻ hoặc gia đình nhỏ. Thiết kế thường bố trí phòng khách ở phía trước, bếp ở giữa và 2 phòng ngủ phía sau, có thể kết hợp sân trước, sân sau hoặc giếng trời để tăng thông thoáng.

Mẫu thiết kế nhà ống 1 tầng 2 phòng ngủ 5x20 độc đáo, được rất nhiều gia chủ lựa chọn (Nguồn: Internet)

Mẫu mặt tiền nhà ống đẹp có 2 phòng ngủ 5x20 với phần mặt tiền được trang trí độc đáo (Nguồn: Internet)

Mẫu thiết kế nhà ống 1 tầng 2 phòng ngủ 5x20 bề thế và đầy đủ tiện nghi (Nguồn: Internet)
>> Tham khảo thêm:
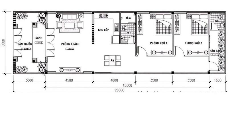
Mẫu nhà ống 1 tầng 3 phòng ngủ 100m2 là lựa chọn lý tưởng cho các gia đình từ 4 - 5 thành viên. Bố trí công năng thường ưu tiên sự riêng tư cho mỗi phòng, đồng thời vẫn giữ không gian sinh hoạt chung rộng rãi. Gác lửng hoặc mái bằng thường được sử dụng để mở rộng không gian theo chiều cao.
Với những mẫu có nhiều phòng ngủ, việc sử dụng tấm bê tông nhẹ DURAflex Low Carbon cho trần hoặc vách giúp cách âm giữa các phòng tốt hơn, đảm bảo sự riêng tư và dễ chịu khi sinh hoạt. Vật liệu nhẹ cũng giúp giảm tải trọng và tăng tuổi thọ cho nền móng nhà.

Mẫu 5x20 nhà ống 1 tầng 3 phòng ngủ phù hợp với những gia đình đông thành viên (Nguồn: Internet)

Mẫu nhà ống 1 tầng 3 phòng ngủ 100m2 thoáng mát, hài hòa với thiên nhiên (Nguồn: Internet)

Mẫu nhà ống 1 tầng đẹp 5x20 3 phòng ngủ có khoảng sân rộng lớn (Nguồn: Internet)
>> Xem thêm:
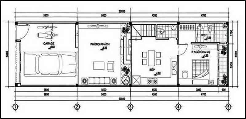
Nhà gác lửng là giải pháp mở rộng không gian thông minh, có thể dùng làm phòng thờ, kho, hoặc phòng ngủ phụ. Việc thêm gác lửng không chỉ tiết kiệm diện tích mà còn tăng thêm công năng cho ngôi nhà. Cầu thang lên gác thường được bố trí gọn ở giữa nhà để thuận tiện di chuyển và tạo sự cân đối trong thiết kế.

Mẫu nhà ống 1 tầng đẹp 5x20 có gác lửng giúp mở rộng không gian sống (Nguồn: Internet)

Mẫu nhà ống 1 tầng đẹp 5x20 có gác lửng có thể tận dụng làm phòng ngủ, phòng làm việc hoặc phòng thờ (Nguồn: Internet)

Mẫu nhà ống 1 tầng đẹp 5x20 có gác lửng hiện đại, cực kỳ sang trọng (Nguồn: Internet)
>> Đọc tham khảo:
Ở khu vực nông thôn, mẫu nhà ống 1 tầng đẹp 5x20 được ưa chuộng bởi tính đơn giản, tiết kiệm và dễ thi công. Thông thường, nhà ống 1 tầng nông thôn được xây mái tôn hoặc mái ngói, ưu tiên sân rộng phía trước để trồng cây, đậu xe hoặc làm khu vực vui chơi cho trẻ. Thiết kế mang phong cách truyền thống kết hợp hiện đại, phù hợp với lối sống gần gũi thiên nhiên.
Đặc biệt, trong môi trường ẩm thấp ở nông thôn, việc chọn vật liệu bền và chịu ẩm tốt như tấm xi măng 6mm DURAflex Low Carbon là giải pháp đáng cân nhắc để giúp ngôi nhà của bạn luôn bền đẹp, thoáng mát và sạch sẽ.

Mẫu nhà ống 1 tầng nông thôn 5x20 có khoảng sân lớn hài hòa với thiên nhiên (Nguồn: Internet)

Mẫu nhà cấp 4 nông thôn 5x20 yên bình với tông màu trắng làm chủ đạo (Nguồn: Internet)

Mẫu nhà ống 1 tầng nông thôn 5x20 đẹp, hiện đại, chi phí thấp (Nguồn: Internet)
>> Xem thêm:
Mẫu nhà ống 1 tầng đẹp 5x20 giá 300 triệu thường được thiết kế cơ bản với mái tôn, nền xi măng, nội thất tối giản. Mẫu này thường dành cho các gia đình ở nông thôn hoặc những người mới lập gia đình. Tuy không quá cầu kỳ, nhưng nếu khéo léo bố trí, vẫn có thể tạo nên không gian sống ấm cúng và tiện nghi.

Mẫu nhà cấp 4 đẹp giá rẻ 300 triệu phù hợp với những gia đình có tài chính hạn hẹp (Nguồn: Internet)

Mẫu nhà ống 1 tầng đẹp 5x20 giá 300 triệu sang trọng và đầy đủ công năng (Nguồn: Internet)

Mẫu nhà ống 1 tầng đẹp 5x20 giá 300 triệu phù hợp cho những gia đình từ 2 đến 4 thành viên (Nguồn: Internet)
>> Xem thêm:
Mẫu nhà ống 1 tầng đẹp 5x20 giá 500 triệu thường được thiết kế theo phong cách hiện đại, sử dụng mái bằng hoặc mái Thái, có 2-3 phòng ngủ, 1 phòng khách, 1 bếp và 1 phòng thờ. Để đảm bảo mẫu nhà cấp 4 giá 500 triệu này bền chắc, tiết kiệm chi phí dài hạn, nhiều chủ nhà lựa chọn sử dụng tấm xi măng 8mm DURAflex Low Carbon cho các hạng mục như trần, vách ngăn và sàn. Sản phẩm nổi bật với khả năng cách nhiệt, chống cháy, cách âm tốt và không chứa amiăng - vừa an toàn cho sức khỏe, vừa giảm chi phí bảo trì về sau. Đây là giải pháp vật liệu lý tưởng cho những công trình cần tiến độ nhanh, độ bền cao và thân thiện với môi trường.

Mẫu nhà ống 1 tầng đẹp 5x20 giá 500 triệu được thiết kế hài hòa với thiên nhiên (Nguồn: Internet)

Mẫu nhà ống 1 tầng đẹp 5x20 giá 500 triệu có thiết kế sân vườn thoáng đãng (Nguồn: Internet)

Mẫu nhà ống 1 tầng đẹp 5x20 giá 500 triệu hiện đại, là sự lựa chọn của rất nhiều gia đình (Nguồn: Internet)
>> Tham khảo thêm:
Nhà ống mái bằng mang phong cách hiện đại, dễ thi công và phù hợp với đô thị. Mái bằng giúp tối ưu chi phí, có thể tận dụng làm sân thượng hoặc lắp hệ thống năng lượng mặt trời. Bản vẽ thường bố trí không gian theo chiều dọc: phòng khách - bếp - phòng ngủ - sân sau, kết hợp giếng trời để lấy sáng.

Mẫu bản vẽ nhà cấp 4 đẹp 5x20m mái bằng có sân trước và sân sau thoáng mát (Nguồn: Internet)

Mẫu bản vẽ thiết kế nhà ống 1 tầng đẹp 5x20m mái bằng với đầy đủ các phòng chức năng (Nguồn: Internet)

Bản vẽ mẫu nhà ống 1 tầng đẹp 5x20m mái bằng có bãi đậu xe rộng lớn (Nguồn: Internet)
>> Đọc thêm:
Mái Thái giúp ngôi nhà đẹp hơn, cao ráo, thoáng mát hơn và có khả năng thoát nước tốt. Bản vẽ thường thiết kế mái dốc lợp ngói, kết hợp trang trí mặt tiền để tăng tính thẩm mỹ. Công năng bên trong tương tự nhà mái bằng nhưng trần cao và thoáng hơn.

Mẫu bản vẽ nhà cấp 4 3 phòng ngủ 100m2 mái Thái có 1 phòng khách (Nguồn: Internet)

Bản vẽ mẫu nhà ống 1 tầng đẹp 5x20m mái Thái với khoảng sân thoáng đãng (Nguồn: Internet)
>> Đọc thêm:
Gác lửng là giải pháp tăng diện tích mà không cần lên tầng. Trong bản vẽ, gác lửng thường dùng làm phòng thờ, phòng ngủ phụ hoặc không gian làm việc. Thiết kế cần tối ưu độ cao, vị trí cầu thang và sử dụng vật liệu nhẹ như tấm xi măng xanh DURAflex Low Carbon để đảm bảo an toàn và tiết kiệm chi phí.


Bản vẽ mẫu nhà ống 1 tầng đẹp 5x20m có gác lửng giúp tối ưu hóa không gian sử dụng (Nguồn: Internet)
>> Xem thêm: 60+ Mẫu nhà cấp 4 2 phòng ngủ đẹp, đơn giản, tiết kiệm chi phí
Những mẫu nhà ống 1 tầng đẹp 5x20m thường gặp thách thức trong việc tối ưu hóa không gian do chiều ngang hẹp. Tuy nhiên, nếu biết cách thiết kế thông minh, bạn hoàn toàn có thể biến ngôi nhà nhỏ thành không gian sống tiện nghi, thoáng đãng và hiện đại.
Một trong những bí quyết quan trọng là bố trí không gian theo chiều sâu, đồng thời sử dụng nội thất đa năng để tiết kiệm diện tích. Ví dụ, khu vực phòng khách nên đặt gần cửa chính, bếp và bàn ăn ở giữa nhà, các phòng ngủ bố trí về cuối để đảm bảo sự riêng tư. Ngoài ra, nên ưu tiên thiết kế giếng trời hoặc khoảng thông tầng để lấy ánh sáng và gió tự nhiên vừa giúp tiết kiệm điện, vừa làm cho nhà mát mẻ hơn.
Việc tối giản đồ nội thất và chọn màu sơn sáng cũng là một mẹo nhỏ giúp ngôi nhà trông rộng hơn thực tế. Bên cạnh đó, sử dụng vách ngăn mỏng nhẹ nhưng đáp ứng đầy đủ các tiêu chí về cách âm, tối ưu không gian,... như tấm cemboard 9mm DURAflex Low Carbon thay vì xây tường gạch cũng là một lựa chọn giúp ngôi nhà vừa thoáng vừa linh hoạt trong sử dụng.

Nên bố trí nội thất theo chiều sâu và chọn nội thất thông minh cho nhà ống 1 tầng đẹp 5x20 (Nguồn: Internet)
>> Tham khảo thêm các mẫu nhà khác:
Để sở hữu mẫu nhà ống 1 tầng đẹp 5×20 vừa đáp ứng nhu cầu sử dụng, vừa đảm bảo tính thẩm mỹ và tối ưu chi phí, bạn cần nắm rõ một số lưu ý quan trọng trong quá trình xây dựng dưới đây:
Một mẫu nhà ống 1 tầng đẹp 5×20 cần được bố trí công năng hợp lý để tận dụng tối đa diện tích sử dụng. Bạn nên phân chia rõ ràng các khu vực như phòng khách, bếp, phòng ngủ và nhà vệ sinh sao cho khoa học và tiện nghi. Điều này không chỉ đảm bảo nhu cầu sinh hoạt hàng ngày mà còn tạo nên sự thoải mái, thoáng đãng cho không gian sống.
Với đặc trưng chiều ngang hẹp, mẫu nhà ống 1 tầng đẹp 5×20 rất dễ bị bí bách nếu không chú trọng đến yếu tố thông gió và chiếu sáng. Việc thiết kế cửa sổ rộng, giếng trời hoặc sân sau sẽ giúp tăng cường ánh sáng tự nhiên và luồng gió lưu thông. Đây là yếu tố giúp cải thiện chất lượng không khí và tiết kiệm năng lượng hiệu quả.
Phong thủy là yếu tố mà nhiều gia chủ Việt rất coi trọng khi xây dựng nhà ở. Bạn cần xem xét hướng nhà, vị trí cửa chính, bếp và cách bố trí nội thất sao cho hài hòa với phong thủy. Một mẫu nhà ống 1 tầng đẹp 5×20 hợp phong thủy không chỉ mang lại sự an tâm mà còn giúp thu hút tài lộc, may mắn cho gia đình.
Việc lựa chọn nhà thầu xây dựng ảnh hưởng trực tiếp đến tiến độ, chi phí và chất lượng công trình. Bạn nên hợp tác với đơn vị có kinh nghiệm trong thi công mẫu nhà ống 1 tầng đẹp 5×20, có quy trình làm việc chuyên nghiệp và hợp đồng rõ ràng. Điều này giúp bạn kiểm soát được chi phí, đảm bảo tiến độ và tránh những phát sinh không mong muốn.

Khi xây mẫu nhà ống 1 tầng đẹp 5x20, cần lưu ý đến thiết kế, ánh sáng và phong thuỷ (Nguồn: Internet)
Mẫu nhà ống 1 tầng đẹp 5x20 là lựa chọn hoàn hảo cho những ai đang tìm kiếm không gian sống tiện nghi, hiện đại mà vẫn đảm bảo tiết kiệm chi phí. Trong quá trình hoàn thiện ngôi nhà, việc lựa chọn vật liệu phù hợp cũng đóng vai trò then chốt. Những dòng vật liệu nhẹ, độ bền cao, chịu ẩm tốt như tấm xi măng xanh DURAflex Low Carbon đang được nhiều gia đình tin tưởng sử dụng để tối ưu thi công và nâng cao tuổi thọ công trình.
Bài viết liên quan
Đánh giá và nhận xét
Đánh giá trung bình
0/5
5
4
3
2
1
Chia sẻ và nhận xét về bài viết
Chia sẻ và nhận xét về bài viết
Bài viết chưa có đánh giá nào