
DURAflex đăng vào lúc 25/02/2026 - 14:00
Mẫu nhà cấp 4 đẹp 5x20 là một trong những tìm kiếm và lựa chọn phổ biến hiện nay của các gia đình có diện tích đất hạn chế. Sở hữu chiều ngang 5m và chiều dài 20m, các mẫu nhà được thiết kế đẹp mắt, phù hợp với nhiều phong cách khác nhau, từ đơn giản đến hiện đại, tiện nghi. Trong bài viết này, hãy cùng DURAflex khám phá những mẫu nhà cấp 4 đẹp 5x20 đẹp, ấn tượng chỉ từ 200 triệu.
Cùng chúng tôi tìm hiểu và tham khảo những mẫu nhà cấp 4 đẹp 5x20 đang được ưa chuộng hiện nay nhé!
Mẫu nhà cấp 4 đẹp 5x20 ở nông thôn thường được thiết kế để tối ưu hóa không gian sống, mang đến cảm giác hài hòa với thiên nhiên. Thiết kế của mẫu nhà này thường có kiến trúc đơn giản, mái Thái hoặc mái ngói đỏ truyền thống, tạo cảm giác ấm cúng. Các cửa sổ được bố trí rộng rãi, thông thoáng, giúp không gian bên trong luôn mát mẻ, tràn ngập ánh sáng tự nhiên.

Mẫu nhà cấp 4 nông thôn 5x20 thường có thiết kế đơn giản, không quá cầu kỳ (Nguồn: Internet)

Xây nhà cấp 4 khoảng 150 triệu đẹp, hiện đại, chi phí thấp (Nguồn: Internet)

Mẫu nhà cấp 4 đẹp 5x20 ở nông thôn thông thoáng, mát mẻ (Nguồn: Internet)

Mẫu nhà cấp 4 đẹp 5x20 ở nông thôn đơn giản với kết cấu không gian mở, thoáng đãng (Nguồn: Internet)

Bản vẽ 3D nhà cấp 4 3 phòng ngủ 5x20 ở nông thôn (Nguồn: Internet)

Bản vẽ nhà cấp 4 đẹp 5x20 ở nông thôn đơn giản, hiện đại (Nguồn: Internet)
>> Xem thêm các mẫu nhà khác:
Nhà cấp 4 đẹp 5x20 hiện đại là lựa chọn lý tưởng cho các gia đình trẻ muốn tiết kiệm chi phí xây dựng. Với thiết kế đơn giản và ít chi tiết phức tạp, thời gian thi công cũng được rút ngắn đáng kể. Để ngôi nhà thêm ấn tượng, bạn có thể sử dụng các hình khối độc đáo trong thiết kế và bố trí nhiều cửa sổ lớn. Điều này không chỉ tạo điểm nhấn mà còn giúp không gian sống trở nên thoáng đãng, tràn ngập ánh sáng tự nhiên.
Ngoài ra, gia chủ có thể sử dụng các vật liệu tấm xi măng vân gỗ DURAwood hoặc tấm bê tông nhẹ DURAflex để lót mái chống nóng, ốp tường trang trí nội và ngoại thất. Các vật liệu này không chỉ bền chắc mà còn có bề mặt mịn, dễ thi công, giúp tăng tính thẩm mỹ và tạo vẻ đẹp sang trọng cho ngôi nhà.

Mẫu nhà cấp 4 đẹp 5x20 với phong cách hiện đại có thiết kế tối giản, tiện nghi (Nguồn: Internet)

Mẫu thiết kế nhà cấp 4 đẹp 5x20 hiện đại, quý phái (Nguồn: Internet)

Mẫu nhà cấp 4 đẹp 5x20 hiện đại, đầy đủ tiện nghi (Nguồn: Internet)

Bản vẽ nhà cấp 4 5x20 hiện đại, đầy đủ công năng (Nguồn: Internet)

Bản vẽ nhà cấp 4 3 phòng ngủ 100m2 chi tiết, đầy đủ công năng (Nguồn: Internet)
>>> Xem thêm:
Nhà cấp 4 đẹp 5x20 có gác lửng đang là xu hướng được nhiều gia đình Việt Nam lựa chọn. Với diện tích hạn chế, việc tận dụng không gian thông minh bằng cách xây thêm tầng lửng được xem là giải pháp tối ưu. Tầng lửng không chỉ giúp tăng diện tích sử dụng mà còn tạo điểm nhấn độc đáo cho ngôi nhà. Bạn có thể biến tầng lửng thành một không gian đa năng như phòng ngủ, phòng thờ hoặc phòng làm việc,...

Mẫu nhà cấp 4 đẹp 5x20 có gác lửng hiện đại, mở rộng diện tích sử dụng (Nguồn: Internet)

Mẫu nhà cấp 4 đẹp 5x20 có gác lửng hiện đại nhất hiện nay (Nguồn: Internet)

Mẫu nhà cấp 4 gác lửng đẹp với diện tích 5x20 giúp tối ưu hóa không gian sống (Nguồn: Internet)

Mẫu nhà cấp 4 đẹp 5x20 có gác lửng với thiết kế hiện đại, tiện nghi (Nguồn: Internet)

Mẫu nhà cấp 4 5x20 đẹp có gác lửng, đầy đủ công năng (Nguồn: Internet)
>> Xem thêm:
Nhà cấp 4 đẹp 5x20 chữ L mang lại sự sáng tạo và hiện đại cho không gian sống. Kiểu thiết kế này giúp tối ưu hóa diện tích đất, tạo không gian thoáng đãng và rộng rãi. Ngôi nhà chữ L được chia thành hai khu vực: một khu dành cho sinh hoạt chung và một khu riêng để nghỉ ngơi, đáp ứng đầy đủ nhu cầu của gia đình một cách tiện nghi.

Mẫu nhà cấp 4 chữ L đẹp 5x20 tạo cảm giác rộng rãi và thoáng mát (Nguồn: Internet)

Chiêm ngưỡng mẫu nhà cấp 4 đẹp 5x20 có thiết kế chữ L (Nguồn: Internet)

Mẫu nhà cấp 4 mái bằng chữ L 5x20 hiện đại, thoáng đãng (Nguồn: Ảnh được tạo bởi AI)
>> Xem thêm:
Mẫu nhà cấp 4 đẹp 5x20 mái tôn thường được thiết kế với phong cách đơn giản nhưng vẫn đảm bảo tính tiện nghi và thẩm mỹ. Phần mái tôn nhẹ, dễ lắp đặt, giúp tiết kiệm chi phí xây dựng. Tuy nhiên, mái tôn thường dễ hấp thụ nhiệt, gây nóng bức vào mùa hè. Để khắc phục, giải pháp sử dụng tấm xi măng DURAflex 2X là lựa chọn tối ưu. Với khả năng cách nhiệt, chống nóng vượt trội, tấm DURAflex 2X không chỉ giúp giữ cho ngôi nhà luôn mát mẻ mà còn đảm bảo độ bền cao, chịu ẩm mốc hiệu quả.

Mẫu nhà cấp 4 đẹp giá rẻ 100 triệu diện tích 5x20 mái tôn giúp tiết kiệm đáng kể chi phí xây dựng (Nguồn: Internet)

Mẫu nhà cấp 4 đẹp 5x20 mái tôn phố biến tại các vùng nông thôn (Nguồn: Internet)

Mẫu nhà cấp 4 đẹp 5x20 mái tôn đơn giản, chi phí thấp (Nguồn: Internet)

Mẫu nhà cấp 4 đẹp 5x20 mái tôn giá rẻ, đẹp, tiện nghi (Nguồn: Internet)

Mẫu nhà cấp 4 mái tôn dưới 100 triệu 5x20 đẹp, thi công nhanh chóng, tối ưu ngân sách (Nguồn: Internet)
>> >> Tham khảo thêm:
Để xây nhà cấp 4 tiết kiệm chi phí, bạn có thể chọn thiết kế mái bằng đổ bê tông. Loại mái này thường phù hợp với phong cách hiện đại và đơn giản. Mặt tiền nhà được thiết kế cơ bản, sử dụng cửa chính lớn để tận dụng ánh sáng tự nhiên, giúp không gian bên trong sáng sủa và thoáng đãng.

Mẫu nhà cấp 4 đẹp 5x20 mái bằng đơn giản nhưng vẫn hiện đại, sang trọng (Nguồn: Internet)

Mẫu nhà cấp 4 đẹp 5x20 mái bằng có sân vườn kết hợp cửa chính bằng kính (Nguồn: Internet)

Mẫu nhà cấp 4 đẹp 5x20 mái bằng 200 triệu (Nguồn: Internet)

Mẫu nhà cấp 4 mái bằng diện tích 5x20 có 2 phòng ngủ tiện nghi (Nguồn: Internet)
>> Tham khảo thêm:
Mẫu nhà cấp 4 đẹp 5x20 mái lệch mang đến phong cách độc đáo và mới lạ. Kiểu mái lệch thường sẽ được xây dựng với một bên mái cao hơn bên còn lại, vừa tăng tính thẩm mỹ vừa giúp ngôi nhà nổi bật hơn. Thiết kế nhà mái lệch không chỉ đẹp mắt mà còn mang lại khả năng thoát nước tốt, tránh hiện tượng đọng nước trên mái, đặc biệt phù hợp với khí hậu nhiệt đới như Việt Nam. Bên trong, không gian được bố trí thông thoáng với cửa kính lớn để tận dụng ánh sáng tự nhiên, kết hợp nội thất tối giản nhưng hiện đại, tạo cảm giác rộng rãi và thoải mái.

Mẫu nhà cấp 4 đẹp 5x20 mái lệch giúp ngôi nhà trở nên độc đáo và thu hút hơn (Nguồn: Internet)

Mẫu nhà cấp 4 đẹp 5x20 mái lệch tạo nên vẻ đẹp hiện đại và trẻ trung cho ngôi nhà (Nguồn: Internet)

Mẫu nhà cấp 4 đẹp 5x20 mái lệch mới lạ, hiện đại (Nguồn: Internet)
>> Xem thêm:
Mẫu nhà cấp 4 mái thái 5x20m mang đến vẻ đẹp kiến trúc độc đáo với mái thái dốc, tạo nên sự uyển chuyển và mềm mại cho ngôi nhà. Hệ thống cột, kèo được thiết kế tỉ mỉ, kết hợp với những đường nét hoa văn tinh xảo, thể hiện nét đẹp truyền thống của kiến trúc Việt Nam. Đồng thời, ngôi nhà mái Thái còn được bố trí các cửa sổ lớn và ban công rộng rãi, giúp không gian sống luôn tràn ngập ánh sáng tự nhiên và gió mát.

Mẫu nhà cấp 4 mái Thái 5x20 hiện đại có khả năng thoát nước nhanh chóng (Nguồn: Internet)

Mẫu nhà mái Thái 1 tầng đẹp 5x20 hiện đại được ưa chuộng năm 2026 (Nguồn: Internet)
>> Xem thêm:
Mẫu nhà cấp 4 đẹp 5x20m mái Nhật đang trở thành xu hướng được nhiều gia đình lựa chọn nhờ sự hài hòa giữa thẩm mỹ và công năng. Thiết kế mái Nhật có độ dốc nhẹ, cân đối giúp tổng thể ngôi nhà trở nên thanh thoát, hiện đại nhưng vẫn giữ được nét ấm cúng. Với mặt tiền 5m và chiều sâu 20m, gia chủ có thể bố trí không gian linh hoạt gồm phòng khách, bếp ăn, 2-3 phòng ngủ và khu vực sinh hoạt chung, đảm bảo sự tiện nghi trong sinh hoạt hằng ngày. Ngoài ra, phần mái còn có khả năng chống nóng, thoát nước tốt, phù hợp với điều kiện khí hậu tại Việt Nam. Khi kết hợp cùng các vật liệu hoàn thiện hiện đại và cách phối màu tinh tế, mẫu nhà cấp 4 mái Nhật 5x20 không chỉ tối ưu chi phí xây dựng mà còn mang lại không gian sống thoáng đãng, bền vững theo thời gian.

Mẫu nhà cấp 4 đẹp 5x20 mái Nhật với thiết kế hiện đại, sang trọng (Nguồn: Internet)
>> Có thể tham khảo thêm:
Mẫu nhà cấp 4 đẹp 5x20 với 2 phòng ngủ được thiết kế tối ưu hóa không gian, phù hợp với những gia đình nhỏ hoặc cặp vợ chồng trẻ từ 2-4 người. Phòng khách thường được bố trí ngay lối vào, tạo cảm giác rộng rãi, thông thoáng. Hai phòng ngủ được sắp xếp liền kề hoặc tách biệt ở hai bên nhà, đảm bảo sự riêng tư. Thiết kế mẫu này không chỉ giúp tận dụng tối đa diện tích sử dụng mà còn đáp ứng đầy đủ nhu cầu sinh hoạt của cả gia đình.
Để tăng cường sự yên tĩnh và tối ưu thêm không gian, đặc biệt là với phòng ngủ, việc sử dụng tấm xi măng DURAflex làm vách ngăn phòng là lựa chọn hoàn hảo. Khi đưa vào hệ vách cách âm Saint-Gobain, vật liệu này không chỉ cách âm hiệu quả mà còn mang lại bề mặt mịn, dễ dàng sơn hoặc trang trí theo ý thích, giúp phòng ngủ trở thành không gian nghỉ ngơi lý tưởng.

Mẫu nhà cấp 4 đẹp 5x20 2 phòng ngủ có thiết kế đơn giản, đầy đủ tiện nghi (Nguồn: Internet)

Mẫu nhà cấp 4 đẹp 5x20 2 phòng ngủ với mái Thái hiện đại (Nguồn: Internet)

Bản vẽ nhà cấp 4 5x20 hiện đại có 2 phòng ngủ chi tiết, đầy đủ công năng (Nguồn: Internet)
>> Xem thêm:
Mẫu nhà cấp 4 đẹp 5x20 với 3 phòng ngủ được thiết kế thông minh, phù hợp với những gia đình có từ 5 thành viên trở lên. Ba phòng ngủ được sắp xếp hợp lý, đảm bảo sự riêng tư và tiện nghi, trong đó có một phòng ngủ chính rộng rãi và hai phòng ngủ nhỏ hơn. Việc bố trí không gian linh hoạt giúp tối ưu hóa công năng sử dụng, tạo ra một không gian sống thoải mái và tiện nghi cho mọi thành viên trong gia đình. Bên cạnh đó, mẫu nhà này có thể đáp ứng nhiều phong cách thiết kế khác nhau từ tối giản, truyền thống đến hiện đại, sang trọng.

Mẫu nhà cấp 4 đẹp 5x20 3 phòng ngủ thông thoáng và tiện nghi (Nguồn: Internet)

Mẫu nhà cấp 4 3 phòng ngủ 300 triệu ở nông thôn đẹp với diện tích 5x20 (Nguồn: Internet)

Bản vẽ mẫu nhà cấp 4 đẹp 5x20 3 phòng ngủ hiện đại, chi tiết (Nguồn: Internet)
>> Xem thêm:
Với những mảnh đất có chiều ngang hạn chế, mẫu nhà ống cấp 4 5x20 thường được thiết kế dạng ống, khai thác tối đa chiều dài lô đất để tối ưu hóa không gian sử dụng. Để tôn lên vẻ đẹp và tạo sự thông thoáng, ngôi nhà thường được thiết kế với cửa sổ lớn, ban công xinh xắn hoặc giếng trời, giúp đón trọn ánh sáng tự nhiên.

Mẫu trang trí mặt tiền nhà ống đẹp, thiết kế cấp 4 5x20 hiện đại, thương lưu (Nguồn: Internet)

Mẫu nhà ống cấp 4 đẹp 5x20 phổ biến nhất hiện nay (Nguồn: Internet)
Mẫu nhà cấp 4 đẹp 5x20m có thiết kế sân vườn thường được thiết kế theo phong cách hiện đại, tối giản, ưu tiên không gian mở để kết nối với thiên nhiên. Sân vườn có thể được bố trí phía trước, phía sau hoặc bao quanh nhà, tùy thuộc vào diện tích và sở thích của gia chủ. Không gian bên trong nhà được bố trí khoa học với phòng khách, bếp, ăn liền kề nhau, tạo sự ấm cúng và gần gũi.

Mẫu nhà cấp 4 đẹp 5x20 có sân vườn giúp ngôi nhà trở nên tươi mát, dễ chịu (Nguồn: Internet)

Mẫu nhà vườn cấp 4 nông thôn đẹp 5x20 gần gũi với thiên nhiên (Nguồn: Internet)
>> Xem thêm:
Với chiều rộng 5m và chiều dài 20m, không gian gara sẽ được bố trí ở mặt trước hoặc bên hông của ngôi nhà, thuận tiện cho việc đậu xe. Phần còn lại của ngôi nhà cấp 4 đẹp 5x20 sẽ được phân chia thành các không gian chức năng như phòng khách, phòng bếp, phòng ngủ, nhà vệ sinh... một cách khoa học và hợp lý.

Mẫu nhà cấp 4 đẹp 5x20 có gara phù hợp với những gia đình có ô tô (Nguồn: Internet)

Mẫu nhà cấp 4 đẹp 5x20m có gara ô tô hiện đại, ấn tượng (Nguồn: Internet)
>> Xem thêm:
Giếng trời là cách hiệu quả để đưa ánh sáng tự nhiên vào nhà, đặc biệt phù hợp với những ngôi nhà nhỏ. Với nhà cấp 4 kích thước 5x20, giếng trời không chỉ làm không gian sáng hơn, thoáng mát hơn mà còn tạo nét độc đáo cho ngôi nhà.
Giếng trời đặt ở trung tâm giúp ánh sáng phân bổ đều, tạo không gian sáng và thoáng mát. Tuy nhiên, cần chú ý đến cách âm và chịu nước để tránh tiếng ồn và rò rỉ khi trời mưa. Diện tích giếng trời thường chiếm 5-10% diện tích sàn và có thể có nhiều hình dạng như vuông, chữ nhật, hoặc tròn tùy theo thiết kế.

Mẫu nhà cấp 4 đẹp 5x20 có giếng trời, thoáng đãng, tràn ngập ánh sáng tự nhiên (Nguồn: Internet)

Mẫu nhà cấp 4 đẹp 5x20 có giếng trời hài hòa với thiên nhiên (Nguồn: Internet)
>> Đọc thêm:
Với thiết kế biệt thự, mẫu nhà cấp 4 đẹp 5x20 thường mang vẻ ngoài sang trọng, tinh tế với các chi tiết kiến trúc được đầu tư kỹ lưỡng. Đặc điểm nổi bật của thiết kế này là phần mặt tiền thường được ốp đá, kết hợp với hệ thống cửa kính lớn giúp ngôi nhà trở nên nổi bật và thu hút. Không gian bên trong được bố trí hợp lý với phòng khách rộng rãi, phòng bếp tiện nghi và các phòng ngủ có thiết kế thoải mái. Ngoài ra, sân vườn hoặc tiểu cảnh thường được tích hợp để tăng thêm vẻ đẹp tự nhiên và gần gũi.

Mẫu biệt thự nhà vườn cấp 4 đẹp 5x20 thiết kế sang trọng, đẳng cấp (Nguồn: Internet)

Mẫu nhà cấp 4 đẹp 5x20 kiến trúc biệt thự với thiết kế cửa sổ thường lớn, đón ánh sáng tự nhiên (Nguồn: Internet)
>> >> Xem thêm:
Mẫu nhà cấp 4 đẹp 5x20 theo phong cách Bắc Âu nổi bật với thiết kế tối giản, tinh tế và tập trung vào công năng sử dụng. Điểm đặc trưng của phong cách này là việc sử dụng gam màu trung tính như trắng, xám, be. Các đường nét trong kiến trúc thường đơn giản, không cầu kỳ, nhưng vẫn toát lên sự sang trọng.

Mẫu nhà cấp 4 đẹp 5x20 phong cách Bắc Âu đang ngày càng được ưa chuộng (Nguồn: Internet)

Mẫu nhà cấp 4 đẹp 5x20 phong cách Bắc Âu đơn giản nhưng không kém phần tinh tế (Nguồn: Internet)
>> Tham khảo thêm:
Mẫu nhà cấp 4 mái Thái 5x20 phong cách Châu Âu là sự kết hợp hoàn hảo giữa vẻ đẹp truyền thống và hiện đại. Với thiết kế đơn giản, tinh tế và màu sắc sáng sủa, ngôi nhà mang đến không gian sống vừa trẻ trung vừa sang trọng. Bạn cũng có thể thêm sân vườn xanh mát để làm cho ngôi nhà trở nên thoải mái và thư giãn hơn.

Mẫu nhà cấp 4 đẹp 5x20 phong cách Châu Âu hiện đại, đẳng cấp (Nguồn: Internet)

Mẫu nhà cấp 4 đẹp 5x20 phong cách Châu Âu đẹp nhất hiện nay (Nguồn: Internet)
Mẫu nhà cấp 4 đẹp 5x20 kiểu Pháp là sự giao thoa tinh tế giữa vẻ đẹp truyền thống Việt Nam và sự sang trọng của kiến trúc Pháp. Mái nhà mềm mại, cùng các chi tiết hoa văn tinh tế, cửa sổ vòm và cột trụ cổ điển tạo nên không gian sống vừa gần gũi, vừa độc đáo. Thiết kế này không chỉ mang lại sự thoáng mát, mà còn toát lên vẻ đẹp quý phái, đẳng cấp cho ngôi nhà.

Mẫu nhà cấp 4 đẹp 5x20 phong cách Pháp thanh lịch, thượng lưu (Nguồn: Internet)
Mẫu nhà cấp 4 đẹp 5x20 với chi phí 200 triệu thường được thiết kế theo phong cách tối giản để tối ưu chi phí nhưng vẫn đảm bảo tính tiện nghi. Mẫu nhà này thường bố trí 1 phòng khách, 1-2 phòng ngủ, 1 phòng bếp kết hợp phòng ăn và 1 nhà vệ sinh chung. Nội thất ưu tiên các vật dụng cơ bản, gọn gàng, giúp tiết kiệm không gian. Đặc biệt, sử dụng tấm xi măng như DURAflex cho trần, vách ngăn và sàn sẽ giúp giảm chi phí, tăng độ bền và chịu ẩm tốt, phù hợp với thời tiết Việt Nam.

Mẫu nhà cấp 4 đẹp 5x20 200 triệu nhưng vẫn đáp ứng đầy đủ công năng (Nguồn: Internet)

Mẫu nhà cấp 4 gác lửng 200 triệu đẹp với diện tích 5x20 (Nguồn: Internet)
>> Đọc thêm:
Với ngân sách 500 triệu đồng, bạn có thể thoải mái lựa chọn những ngôi nhà cấp 4 đẹp 5x20 với thiết kế đa dạng và phong phú hơn. Mẫu nhà cấp 4 giá 500 triệu này có thể bao gồm 1 phòng khách rộng rãi, 2-3 phòng ngủ, phòng bếp kết hợp phòng ăn và nhà vệ sinh khép kín. Ngoại thất thường sử dụng tông màu trung tính, kết hợp cửa kính lớn để tận dụng ánh sáng tự nhiên, giúp không gian thoáng đãng hơn.

Xây nhà 500 triệu ở nông thộn diện tích 5x20 đơn giản mà hiện đại (Nguồn: Internet)
>> Tham khảo thêm:
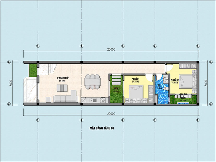
Bản vẽ nhà cấp 4 đẹp 5x20 sẽ giúp bạn hình dung rõ ràng không gian sống, từ phòng khách, phòng ngủ đến bếp ăn và các khu vực chức năng khác. Cùng tham khảo những mẫu bản vẽ đa dạng và độc đáo để tìm kiếm ý tưởng cho ngôi nhà của mình.

Bản vẽ nhà cấp 4 5x20m hiện đại có 3 phòng ngủ (Nguồn: Internet)

Bản vẽ thiết kế nhà cấp 4 5x20 hiện đại, chi phí thấp (Nguồn: Internet)

Bản vẽ nhà cấp 4 đẹp 5x20m hiện đại có gác lửng (Nguồn: Internet)
Mẫu nhà cấp 4 đẹp 5x20 với chiều ngang là 5m và chiều dài là 20m nên thường kết cấu nhà sẽ có dạng hình ống. Thiết kế mẫu nhà này thích hợp cho gia đình từ 3–5 người với các không gian cơ bản như phòng khách, phòng bếp, phòng ngủ, và nhà vệ sinh.

Mẫu nhà cấp 4 đẹp 5x20 có kết cấu dạng hình ống (Nguồn: Internet)
>> Xem thêm:
Mẫu nhà cấp 4 đẹp 5x20 có một số ưu điểm sau:

Mẫu nhà cấp 4 đẹp 5x20 có chi phí xây dựng thấp, phù hợp với điều kiện kinh tế của nhiều gia đình (Nguồn: Internet)
Tuy nhiên, bên canh các ưu điểm trên thì mẫu nhà cấp 4 đẹp 5x20 cũng tồn tại một số nhược điểm như:
Để khắc phục một số nhược điểm trên này, việc sử dụng tấm xi măng DURAflex hoặc tấm xi măng giả gỗ DURAwood là giải pháp tối ưu được nhiều gia chủ lựa chọn. Với những ưu điểm vượt trội như độ bền cao, chịu lực tốt, cách nhiệt, tấm xi măng này giúp chống nóng tường nhà hiệu quả và chịu được mọi điều kiện thời tiết. Đồng thời, nhờ trọng lượng nhẹ, tấm xi măng DURAflex còn giúp giảm tải cho kết cấu nhà, đặc biệt phù hợp với những ngôi nhà có diện tích nhỏ.

Mẫu nhà cấp 4 đẹp 5x20 gặp khó khăn trong việc bố trí công năng đầy đủ và tiện nghi (Nguồn: Internet)
Trước khi bắt tay vào thiết kế, việc đầu tiên bạn cần làm là xác định chính xác diện tích đất sử dụng và hướng nhà phù hợp. Diện tích 5x20 tuy nhỏ gọn nhưng cần được tính toán kỹ lưỡng để tận dụng tối đa không gian. Hướng nhà cần chọn sao cho đón được ánh sáng tự nhiên và gió mát, đồng thời phù hợp với phong thủy, mang lại sự thoải mái cho gia đình.

Xác định rõ diện tích và hướng nhà thi công nhà cấp 4 đẹp 5x20 (Nguồn: Internet)
Mẫu nhà cấp 4 đẹp 5x20 có thể thiết kế theo nhiều phong cách khác nhau như hiện đại, tối giản, hoặc tân cổ điển. Tùy thuộc vào sở thích cá nhân và ngân sách, bạn nên chọn phong cách hài hòa với lối sống của gia đình và phù hợp với xu hướng thiết kế hiện đại.

Lựa chọn phong cách nhà cấp 4 5x20 phù hợp với ngân sách và sở thích (Nguồn: Internet)
Gam màu tươi sáng như trắng, be, xanh pastel giúp không gian nhà cấp 4 đẹp 5x20 trở nên rộng rãi và thoáng đãng hơn. Đồng thời, bạn có thể kết hợp với cửa kính lớn hoặc giếng trời để tối ưu ánh sáng tự nhiên, tạo cảm giác gần gũi với thiên nhiên.

Ưu tiên sử dụng những gam màu tươi cho nhà cấp 4 đẹp 5x20 để tạo cảm giác thoáng đãng (Nguồn: Internet)
Với diện tích giới hạn, việc bố trí các khu vực chức năng trong nhà cấp 4 đẹp 5x20 cần khoa học, đảm bảo sự tiện nghi. Phòng khách, bếp và khu vực ăn uống nên liên thông để tối ưu diện tích. Phòng ngủ và nhà vệ sinh cần được bố trí sao cho riêng tư và thoải mái.

Nên thiết kế phòng khách, bếp và khu vực ăn uống liên thông để tiết kiệm diện tích tối đa (Nguồn: Internet)
Nội thất đơn giản nhưng tinh tế sẽ giúp không gian nhà cấp 4 đẹp 5x20 thêm gọn gàng và không bị rối mắt. Hãy ưu tiên các thiết kế thông minh, tích hợp nhiều công năng để tận dụng không gian hiệu quả nhất.

Lựa chọn nội thất đơn giản, tinh tế, đa năng để tối ưu không gian nhà cấp 4 đẹp 5x20 (Nguồn: Internet)
Việc lập kế hoạch tài chính khi xây nhà cấp 4 đẹp 5x20 một cách chi tiết là bước không thể thiếu. Bạn cần dự trù kinh phí cho từng hạng mục như móng nhà, vật liệu, nhân công, và nội thất. Điều này giúp tránh phát sinh chi phí không cần thiết trong quá trình xây dựng.

Lập kế hoạch tài chính chi tiết cho nhà cấp 4 đẹp 5x20 để hạn chế phát sinh chi phí (Nguồn: Internet)
Hiểu rõ các giai đoạn thiết kế và thi công nhà cấp 4 đẹp 5x20 sẽ giúp bạn dễ dàng kiểm soát tiến độ. Từ việc lên ý tưởng, chọn bản vẽ, đến việc hoàn thiện từng hạng mục, tất cả cần được theo dõi chặt chẽ để đảm bảo chất lượng công trình.

Nắm rõ quy trình thiết kế, thi công nhà cấp 4 đẹp 5x20 để dễ kiểm soát (Nguồn: Internet)
Cuối cùng, hãy chọn một đơn vị thiết kế và thi công nhà cấp 4 đẹp 5x20 có kinh nghiệm và uy tín trên thị trường. Những chuyên gia giàu kinh nghiệm sẽ giúp bạn hiện thực hóa ý tưởng, đảm bảo công trình đạt chất lượng tốt nhất và hoàn thiện đúng tiến độ.

Lựa chọn đơn vị thiết kế và thi công nhà cấp 4 đẹp 5x20 uy tín, chất lượng (Nguồn: Internet)
Chi phí xây dựng một ngôi nhà cấp 4 5x20m phụ thuộc vào rất nhiều yếu tố, từ diện tích, thiết kế, số tầng, chất lượng vật liệu cho đến đơn vị thi công. Dưới đây là các yếu tố chính ảnh hưởng đến tổng chi phí:
Đơn vị thi công: Mỗi đơn vị thi công có mức giá và chất lượng dịch vụ khác nhau.
Vị trí xây dựng:
Phong cách thiết kế:
Chi phí vật liệu xây dựng: Vật liệu xây dựng chiếm khoảng 60%-70% tổng chi phí. Lựa chọn vật liệu bền, tiết kiệm và thẩm mỹ là yếu tố quan trọng để tối ưu ngân sách. Một trong những vật liệu phổ biến hiện nay là tấm xi măng DURAflex, được sử dụng rộng rãi trong thi công sàn, trần, tường nhờ vào độ bền cao, chống cháy và giá thành hợp lý.
Bấm: BÁO GIÁ NGAY để nhận ngay bảng giá vật liệu tấm xi măng DURAflex hoặc DURAwood làm tấm lót sàn, vách ngăn, lót mái chống nóng nhà cấp 4 đẹp 5x20.

Chi phí xây nhà cấp 4 đẹp 5x20 phụ thuộc vào nhiều yếu tố khác nhau (Nguồn: Internet)
Ước tính chi phí xây nhà cấp 4 đẹp 5x20
Lưu ý: Mức giá trên chỉ mang tính chất tham khảo, chi phí thực tế có thể thay đổi tùy vào từng trường hợp.

Nhà cấp 4 đẹp 5x20 hiện đại giá 700 triệu (Nguồn: Internet)
Mẫu nhà cấp 4 đẹp 5x20 có 2 - 3 phòng ngủ là lựa chọn tuyệt vời cho những ai muốn sở hữu một ngôi nhà đẹp, tiện nghi và phù hợp với túi tiền. Với những thông tin chi tiết về các mẫu nhà đẹp ở nội dung trên, hy vọng đã cung cấp cho bạn những gợi ý hữu ích để thiết kế cho ngôi nhà mơ ước của mình.
Đánh giá và nhận xét
Đánh giá trung bình
0/5
5
4
3
2
1
Chia sẻ và nhận xét về bài viết
Chia sẻ và nhận xét về bài viết
Bài viết chưa có đánh giá nào