
DURAflex đăng vào lúc 01/03/2026 - 15:00
Nhà cấp 4 gác lửng là mẫu thiết kế nhà được ưa chuộng nhất hiện nay. Đây là thiết kế nhà hiện đại, có tính thẩm mỹ cao giúp bạn tiết kiệm chi phí xây sửa lắp đặt. Tham khảo bài viết sau đây của DURAflex để biết thêm các mẫu nhà gác lửng đẹp, hiện đại, đa dạng phong cách đính kèm bản vẽ xây nhà chi tiết, dễ hiểu.
Với sự phát triển không ngừng của kiến trúc, các mẫu nhà cấp 4 có gác lửng ngày càng trở nên đa dạng, mang đến không gian sống tiện nghi và thẩm mỹ cao. Các mẫu nhà dưới đây là những lựa chọn hàng đầu, phù hợp với nhiều gia đình Việt.
Với ngân sách 150 triệu đồng, bạn vẫn hoàn toàn có thể sở hữu một căn nhà cấp 4 gác lửng đầy đủ công năng. Các mẫu nhà này thường có diện tích xây dựng từ 40-50m2, thiết kế đơn giản nhưng không kém phần tinh tế. Tầng trệt sẽ bao gồm phòng khách, bếp và nhà vệ sinh, trong khi gác lửng được bố trí làm phòng ngủ chính. Để tiết kiệm chi phí, bạn nên lựa chọn vật liệu xây dựng cơ bản, sử dụng các loại nội thất thông minh và tối giản. Việc tìm kiếm thợ thi công địa phương uy tín cũng là một cách hiệu quả để đảm bảo chất lượng công trình và tối ưu hóa ngân sách.

Mẫu nhà cấp 4 gác lửng 150 triệu đẹp, đầy đủ công năng (Nguồn: Internet)

Mẫu nhà cấp 4 gác lửng 150 triệu hiện đại, tối ưu chi phí (Nguồn: Internet)

Mẫu nhà cấp 4 gác lửng 150 triệu đơn giản, đảm bảo tiện nghi (Nguồn: Internet)
>> Xem thêm:
Mẫu nhà cấp 4 gác lửng giá 200 triệu là giải pháp nhà ở thực tế, đặc biệt phù hợp với các gia đình trẻ hoặc những người có thu nhập trung bình đang tìm kiếm một không gian sống tiết kiệm nhưng vẫn đầy đủ tiện nghi. Mẫu nhà cấp 4 gác lửng 200 triệu giá rẻ này được thiết kế tầng lửng thông minh, tận dụng tối đa diện tích. Dù có mức đầu tư khiêm tốn, mẫu nhà vẫn có thể có 1-2 phòng ngủ với diện tích 50 - 80m2 nếu được bố trí khoa học các khu vực chức năng. Đây là lựa chọn hợp lý cho những cho gia đình từ 3-4 người.

Mẫu nhà cấp 4 gác lửng 200 triệu đẹp, đơn giản, nội thất cao cấp (Nguồn: Internet

Mẫu xây nhà cấp 4 trọn gói 200 triệu có gác lửng đẹp, hiện đại, tiện nghi (Nguồn: Internet)

Mẫu nhà cấp 4 có gác lửng giá 200 triệu có 2 phòng ngủ, nội thất hiện đại (Nguồn: Internet)
>> Xem thêm:
Mẫu nhà cấp 4 gác lửng giá 500 triệu thường được thiết kế tối ưu hóa không gian, tận dụng gác lửng làm phòng ngủ, phòng làm việc hoặc không gian thư giãn, giúp tăng diện tích sử dụng đáng kể. Ngoại thất mẫu nhà cấp 4 giá 500 triệu có gác lửng này thường được nhấn nhá bằng những đường nét đơn giản, hiện đại, kết hợp với các vật liệu bền đẹp như kính, gỗ, tạo nên vẻ đẹp tinh tế và sang trọng. Nội thất nhà gác lửng bên trong được bố trí khoa học, hài hòa, mang đến cảm giác ấm cúng và thoải mái cho mọi thành viên trong gia đình.

Mẫu nhà cấp 4 đẹp có gác lửng giá 500 triệu hiện đại, ấn tượng (Nguồn: Internet)

Mẫu nhà cấp 4 có gác lửng giá 500 triệu không gian nội thất sang trọng (Nguồn: Internet)

Xây nhà 500 triệu ở nông thôn cấp 4 có gác lửng 3 phòng ngủ đẹp, hiện đại (Nguồn: Internet)

Mẫu nhà cấp 4 3 phòng ngủ 500 triệu có gác lửng sang trọng kết hợp nội thất hiện đại (Nguồn:Internet)
>> Xem thêm:
Mẫu nhà cấp 4 có gác lửng sẽ tạo ra một không gian sống đẹp và thông thoáng. Gác lửng được thiết kế thành một phòng ngủ, mang đến sự tiện nghi và tiết kiệm diện tích cho căn nhà. Ánh sáng tự nhiên tràn ngập qua các cửa sổ lớn, tạo cảm giác thoải mái và thư giãn cho không gian nghỉ ngơi trên gác lửng. Đây là một lựa chọn lý tưởng để tận hưởng cuộc sống sau một ngày làm việc căng thẳng.

Mẫu nhà cấp 4 gác lửng 1 phòng ngủ đẹp với cửa ổ đón ánh sáng tự nhiên (Nguồn: Internet)

Mẫu nhà cấp 4 gác lửng 1 phòng ngủ đẹp với tone màu trắng chủ đạo (Nguồn: Internet)

Mẫu nhà cấp 4 gác lửng 1 phòng ngủ đẹp, hiện đại, tiện nghi (Nguồn: Internet)

Mẫu nhà cấp 4 gác lửng 1 phòng ngủ đẹp với mái vòm tinh tế (Nguồn: Internet)
Mẫu nhà ống có gác lửng là giải pháp tối ưu cho những khu đất có diện tích hạn chế, đặc biệt phổ biến tại đô thị đông dân. Thiết kế gác lửng giúp tăng thêm không gian sử dụng mà không làm thay đổi chiều cao tổng thể của ngôi nhà, từ đó tiết kiệm chi phí xây dựng và vẫn đảm bảo công năng sinh hoạt. Phần gác lửng thường được bố trí làm phòng ngủ, phòng làm việc hoặc khu sinh hoạt chung, tạo sự linh hoạt trong sử dụng. Khi kết hợp cùng cách lấy sáng tự nhiên, thông gió hợp lý và nội thất gọn gàng, mẫu nhà ống có gác lửng không chỉ mang lại cảm giác rộng rãi, thoáng đãng mà còn đáp ứng tốt nhu cầu thẩm mỹ và tiện nghi cho gia đình hiện đại.

Mẫu nội thất phòng khách nhà ống có gác lửng đẹp, hiện đại (Nguồn: Internet)

Mẫu thiết kế nhà ống có gác lửng với nội thất phòng khách thông minh, tiện lợi (Nguồn: Internet)

Mẫu nhà ống cấp 4 có gác lửng đẹp, sang trọng (Nguồn: Internet)
>> Xem thêm:
Mẫu nhà gác lửng 2 phòng ngủ thường có diện tích 5x15 hoặc 5x16. Để tối ưu hóa không gian, bạn có thể thiết kế 2 phòng ngủ ở trên hoặc 1 phòng ở trên gác, 1 phòng ở tầng trệt. Với thiết kế nhỏ gọn và sáng tạo, mẫu nhà cấp 4 gác lửng 2 phòng ngủ mang lại không gian sống thoải mái và tiện nghi cho những gia đình có từ 2 - 4 thành viên.
Các mẫu nhà gác lửng hiện đại yêu cầu tính thẩm mỹ và bền đẹp. Vì vậy, tấm xi măng DURAflex với bề mặt phẳng mịn là lựa chọn hoàn hảo để ứng dụng ốp tường, làm sàn gác lửng. Bạn có thể thi công để thô, hoặc có thể dễ dàng kết hợp tấm DURAflex với các loại vật liệu hoàn thiện bề mặt khác để tạo nên phong cách độc đáo cho riêng mình. Để nhận được tư vấn và bảng giá chi tiết vật liệu tấm xi măng DURAflex làm sàn - tường - vách cho nhà cấp 4 có gác lửng, vui lòng bấm:

Mẫu nhà cấp 4 gác lửng 2 phòng ngủ đơn giản mà đẹp (Nguồn: Internet)

Mẫu nhà cấp 4 gác lửng có 2 phòng ngủ, 1 phòng bếp và 1 phòng khách (Nguồn: Internet)

Mẫu nhà cấp 4 có gác lửng ở nông thôn thiết kế 2 phòng ngủ cho 2 - 4 người ở (Nguồn: Internet)

Thiết kế nhà cấp 4 gác lửng 2 phòng ngủ giúp tiết kiệm diện tích (Nguồn: Internet)
>> Xem thêm:
Mẫu nhà gác lửng 3 phòng ngủ thường có diện tích khoảng 5x20 hoặc 7x12, mang đến không gian rộng rãi và thoải mái hơn cho các thành viên. Thiết kế này đặc biệt phù hợp với gia đình nhiều thế hệ với 2 phòng ngủ được bố trí ở trên, 1 phòng ở dưới. Việc cơi nới, làm gác lửng cho nhà 3 phòng ngủ cần tránh ảnh hướng đến kết cấu nền móng, hạn chế sử dụng vật liệu nặng, gây áp lực lên nền trụ của ngôi nhà. Tấm xi măng DURAflex là vật liệu siêu bền nhẹ nên sẽ là giải pháp để giảm tải trọng công trình, tiết kiệm chi phí cơi nới nhà, xây dựng đến 30%.

Mẫu nhà cấp 4 gác lửng 3 phòng ngủ đẹp, hiện đại (Nguồn: Internet)

Mẫu nhà cấp 4 gác lửng 3 phòng ngủ với không gian rộng rãi, hiện đại (Nguồn: Internet)

Mẫu nhà cấp 4 gác lửng 3 phòng ngủ 500 triệu đẹp, tiện nghi (Nguồn: Internet)
>> Xem thêm:
Mẫu nhà cấp 4 gác lửng 3 phòng ngủ 1 phòng thờ cần bố trí không gian vừa đảm bảo thẩm mỹ, vừa đảm bảo yếu tố phong thủy. Việc đặt gian thờ ở gác lửng không chỉ mang ý nghĩa tôn kính mà còn tạo ra không gian linh thiêng và trang trọng. Bên cạnh đó, bố trí phòng thờ ở một vị trí cao ráo và sạch sẽ cũng giúp cân bằng yếu tố phong thủy trong ngôi nhà.

Mẫu nhà cấp 4 gác lửng 3 phòng ngủ 1 phòng thờ tôn nghiêm, hiện đại (Nguồn: Internet)

Mẫu nhà cấp 4 gác lửng 3 phòng ngủ 1 phòng thờ trang nghiêm, hợp phong thủy (Nguồn: Internet)

Mẫu nhà cấp 4 gác lửng 3 phòng ngủ 1 phòng thờ hài hòa, tối ưu công năng (Nguồn: Internet)
>> Đọc thêm:
Những mẫu nhà cấp 4 gác lửng hiện đại đang trở thành xu hướng phổ biến trong thiết kế kiến trúc nhờ tính thẩm mỹ cao và tối ưu hóa không gian. Với phong cách thiết kế tập trung vào các vật liệu như gỗ công nghiệp, kính cường lực và thép không gỉ để tạo nên vẻ đẹp hiện đại và bền vững. Không gian gác lửng thường được thiết kế mở, kết hợp cùng cầu thang dạng xoắn hoặc bậc thang gọn gàng, giúp tiết kiệm diện tích và tăng tính kết nối. Tầng trệt của nhà gác lửng hiện đại thường được bố trí làm khu vực sinh hoạt chung như phòng khách và bếp, gác lửng phía trên được ưu tiên dành làm không gian riêng tư như phòng ngủ hoặc phòng làm việc.

Mẫu nhà cấp 4 gác lửng hiện đại, tiện nghi, tràn ngập ánh sáng (Nguồn: Internet)

Mẫu nhà cấp 4 gác lửng hiện đại với hệ thống cửa kính lớn (Nguồn: Internet)
>> Xem thêm:
Những mẫu nhà cấp 4 gác lửng tối giản luôn thu hút bởi vẻ đẹp thanh lịch và tiện nghi. Với lối thiết kế tối ưu không gian sử dụng các gam màu trung tính, mang lại cảm giác hiện đại và sạch sẽ. Với những chi tiết thiết kế hợp lý, nhà gác lửng tối giản không chỉ là giải pháp tối ưu về không gian mà còn tạo nên một phong cách sống tinh tế, tiện nghi. gác lửng thường được tận dụng làm phòng ngủ nhỏ gọn hoặc khu vực sinh hoạt chung, đáp ứng nhu cầu sử dụng linh hoạt cho gia đình. Nội thất nhà gác lửng được lựa chọn kỹ lưỡng, ưu tiên sự tinh giản nhưng vẫn đảm bảo tính thẩm mỹ và công năng. Bên cạnh đó, thiết kế cầu thang gọn gàng với kiểu dáng đơn giản không chỉ tiết kiệm diện tích mà còn đảm bảo an toàn, đặc biệt phù hợp với những gia đình có trẻ nhỏ hoặc người lớn tuổi.

Mẫu nội thất nhà cấp 4 gác lửng tối giản, tiện nghi, ấm cúng với tấm vân gỗ DURAwood làm lót sàn nhà, cầu thang (Nguồn: Internet)

Mẫu nhà cấp 4 gác lửng tối giản, thanh lịch, thoáng đãng (Nguồn: Internet)

Mẫu nhà cấp 4 gác lửng tối giản, tối ưu không gian, tiết kiệm chi phí (Nguồn: Internet)
>> Đọc thêm:
Mẫu nhà cấp 4 gác lửng 4x15m là giải pháp lý tưởng cho những lô đất hạn chế chiều ngang nhưng kéo dài về chiều sâu tại các khu đô thị đông đúc. Với tổng diện tích sử dụng khoảng 60m², không gian thường được phân chia hợp lý: tầng trệt bố trí phòng khách, khu bếp ăn và 1 phòng ngủ; trong khi tầng lửng linh hoạt làm phòng ngủ phụ, phòng làm việc hoặc phòng thờ. Thiết kế mái cao kết hợp giếng trời hoặc cửa sổ lớn giúp lấy sáng hiệu quả và tạo sự thông thoáng tự nhiên. Về mặt thẩm mỹ, mẫu nhà này dễ dàng ứng dụng phong cách hiện đại tối giản, sử dụng vật liệu như kính, thép hoặc gạch thẻ để tăng tính nổi bật. Đây là lựa chọn phù hợp cho các gia đình nhỏ đang tìm kiếm một không gian sống tiện nghi, gọn gàng và dễ kiểm soát chi phí xây dựng.

Mẫu thiết kế nhà cấp 4 gác lửng 4x15 đẹp, hiện đại, đầy đủ tiện nghi (Nguồn: Internet)

Mẫu nhà cấp 4 gác lửng 4x15m đẹp, thoáng đáng, giá rẻ (Nguồn: Internet)
>> Xem thêm:
Mẫu nhà cấp 4 có gác lửng 5x12 là lựa chọn tối ưu cho những gia đình sở hữu lô đất vừa phải nhưng vẫn mong muốn một không gian sống tiện nghi. Với diện tích 60m², thiết kế phổ biến gồm phòng khách, bếp, 1 phòng ngủ và nhà vệ sinh ở tầng trệt; phần gác lửng được tận dụng linh hoạt làm phòng ngủ phụ hoặc phòng làm việc, giúp mở rộng công năng mà không tốn thêm diện tích đất. Đây là mẫu nhà phù hợp với gia đình 3-4 người, đáp ứng hài hòa giữa chi phí hợp lý và nhu cầu sinh hoạt thực tế.

Mẫu nội thất nhà gác lửng cấp 4 diện tích 5x12 đẹp, sang trọng (Nguồn: Internet)

Mẫu nhà cấp 4 có gác lửng 5x12 tiện nghi, tối ưu diện tích sử dụng (Nguồn: Internet)
>> Đọc thêm:
Mẫu nhà gác lửng 5x15 là giải pháp tối ưu cho những gia đình muốn có không gian sống thoải mái nhưng diện tích đất hạn chế. Thiết kế này tận dụng chiều cao để tạo thêm một tầng lửng, giúp tăng diện tích sử dụng mà không ảnh hưởng đến tổng thể kiến trúc. Tầng trệt thường được bố trí phòng khách, bếp và một phòng ngủ, trong khi gác lửng có thể dùng làm phòng ngủ phụ, phòng làm việc hoặc phòng thờ. Điểm nổi bật của mẫu nhà này là sự kết hợp hài hòa giữa tính tiện nghi và thẩm mỹ, mang đến một không gian sống hiện đại, thoáng đãng và đầy đủ công năng. Với chi phí xây dựng hợp lý, đây là sự lựa chọn được nhiều người yêu thích.

Mẫu nhà cấp 4 có gác lửng 5x15 tiết kiệm chi phí, vẫn đủ công năng (Nguồn: Internet)

Mẫu nhà cấp 4 có gác lửng 5x15 bố trí hợp lý, dễ thi công (Nguồn: Internet)

Mẫu nhà cấp 4 có gác lửng 5x15 đẹp, hiện đại, hợp xu hướng 2026 (Nguồn: Internet)

Mẫu nhà cấp 4 có gác lửng 5x15 bố trí khoa học, tối đa diện tích (Nguồn: Internet)
Tìm hiểu thêm:
Thiết kế nhà cấp 4 có gác lửng 5x20 là giải pháp nhà ở lý tưởng dành cho các gia đình sở hữu quỹ đất trung bình, mong muốn một không gian sống vừa tiện nghi, vừa giàu tính thẩm mỹ. Với tổng diện tích sàn khoảng 100m², mẫu nhà này có thể dễ dàng bố trí từ 2 đến 3 phòng ngủ, phòng khách rộng rãi, khu bếp cùng 1-2 nhà vệ sinh. Khu vực gác lửng được tận dụng linh hoạt làm phòng thờ, phòng ngủ phụ hoặc không gian sinh hoạt chung. Về kiến trúc, mặt tiền thường mang phong cách hiện đại, đơn giản. Ngoài ra, việc bổ sung giếng trời, sân trước hoặc sân sau nhỏ giúp tăng cường thông gió, đón sáng tự nhiên và nâng cao chất lượng không gian sống.

Mẫu nhà cấp 4 gác lửng 5x20 với gam màu trắng tinh tế (Nguồn: Internet)

Mẫu nhà cấp 4 đẹp 5x20 có gác lửng đơn giản, rộng rãi (Nguồn: Internet)
>> Đọc thêm:
Mẫu nhà cấp 4 mái Thái có gác lửng đang được các gia chủ ưa chuộng hiện nay. Bởi không chỉ đáp ứng được các nhu cầu sinh hoạt thường ngày của nhiều gia đình, mà mẫu nhà gác lửng mái Thái còn mang lại vẻ đẹp ấn tượng trong kiến trúc. Hãy cùng DURAflex ngắm nhìn ngay những mẫu nhà gác lửng mái Thái đẹp nhất dưới đây để có thêm thật nhiều ý tưởng sáng tạo cho tổ ấm tương lai của mình nhé.

Mẫu nhà cấp 4 gác lửng mái Thái đẹp, phong cách độc đáo (Nguồn: Internet)

Mẫu nhà cấp 4 mái Thái 3 phòng ngủ có gác lửng hiện đại, đầy đủ tiện nghi (Nguồn: Internet)
>> Đọc thêm:
Mẫu nhà cấp 4 gác lửng mái bằng hiện đại là một sự cải tiến mới trong lối tư duy thiết kế nhà ở hiện nay. Đây là một trong những mẫu nhà phù hợp cho gia đình trẻ hoặc những hộ gia đình có thu nhập hạn chế nhưng vẫn muốn sở hữu ngôi nhà đẹp, đầy đủ tiện nghi. Mái bằng không chỉ phù hợp với xu hướng kiến trúc hiện đại mà còn giúp dễ dàng thi công hệ thống chống thấm, lắp đặt năng lượng mặt trời hoặc làm sân thượng xanh.

Mẫu nhà cấp 4 gác lửng mái bằng đẹp, hiện đại (Nguồn: Internet)

Mẫu nhà cấp 4 mái bằng có gác lửng nhỏ đẹp, tiết kiệm chi phí (Nguồn: Internet)

Mẫu nhà cấp 4 mái bằng chữ L có gác lửng đẹp, giá rẻ (Nguồn: Ảnh được tạo bởi AI)
>> Tham khảo thêm:
Mẫu mặt tiền nhà gác lửng hiện đại ngày càng được nhiều gia đình lựa chọn nhờ khả năng tối ưu diện tích và tạo điểm nhấn thẩm mỹ rõ rệt cho tổng thể ngôi nhà. Thiết kế thường ưu tiên đường nét tối giản, hình khối vuông vức kết hợp cùng các vật liệu hiện đại như kính cường lực, lam trang trí hoặc mảng tường ốp giả gỗ nhằm tăng chiều sâu không gian mặt tiền. Bên cạnh yếu tố thẩm mỹ, kiến trúc sư còn chú trọng bố trí cửa sổ lớn và ban công nhỏ để tận dụng ánh sáng tự nhiên, giúp ngôi nhà luôn thông thoáng và tiết kiệm năng lượng. Gam màu trung tính như trắng, xám hoặc be thường được sử dụng làm chủ đạo, tạo cảm giác sang trọng nhưng vẫn hài hòa với cảnh quan xung quanh. Nhờ sự cân đối giữa công năng và thiết kế, mặt tiền nhà gác lửng hiện đại không chỉ nâng cao giá trị thẩm mỹ mà còn mang lại không gian sống tiện nghi, phù hợp với nhiều diện tích đất khác nhau, đặc biệt là nhà phố và nhà cấp 4 cải tiến.

Mẫu mặt tiền nhà gác lửng 5m đẹp, ấn tượng từ cái nhìn đầu tiên (Nguồn: Internet)

Mẫu mặt tiền nhà gác lửng hiện đại, đường nét tối giản và hình khối vuông vức (Nguồn: Internet)
Nhà cấp 4 gác lửng là lựa chọn thiết kế được nhiều gia đình Việt ưa chuộng nhờ khả năng tối ưu hóa diện tích sử dụng và chi phí xây dựng. Đây là kiểu nhà khá phổ biến ở nông thôn lẫn thành thị, thường được ứng dụng cho những nơi có diện tích hạn hẹp. Với kết cấu gồm một tầng trệt và một tầng lửng, mẫu nhà này đặc biệt phù hợp với những gia đình trẻ, sở hữu quỹ đất vừa phải hoặc ngân sách hạn chế. Tầng trệt thường bố trí các không gian sinh hoạt chính như phòng khách, bếp – ăn, phòng ngủ và nhà vệ sinh, trong khi tầng lửng được tận dụng linh hoạt để làm phòng ngủ phụ, phòng làm việc hoặc khu thư giãn. Thường diện tích nhà gác lửng sẽ không vượt quá 80% diện tích sàn bên dưới. Đồng thời khi xây dựng nhà cấp 4 có gác lửng thì tầng trệt sẽ có chiều cao trong khoảng 7m và tầng lửng sẽ dao động từ 2,2 - 2,5 mét. Thiết kế này không chỉ đáp ứng đầy đủ công năng mà còn tạo cảm giác thoáng đãng,

Nhà cấp 4 gác lửng là kiểu nhà khá phổ biến ở nông thôn lẫn thành thị, thường được ứng dụng cho những nơi có diện tích hạn hẹp (Nguồn: Internet)
>> Đọc thêm:
Mẫu nhà cấp 4 gác lửng ngày càng trở nên phổ biến và được mọi người ưa chuộng nhờ những ưu điểm sau:

Mẫu nhà cấp 4 gác lửng ngày càng trở nên phổ biến và được mọi người ưa chuộng nhờ những ưu điểm nổi bật (Nguồn: Internet
>> Xem thêm:
Câu trả lời là hoàn toàn có thể, nếu bạn biết cách kiểm soát chi phí và lên kế hoạch một cách hợp lý. Dưới đây là những yếu tố quan trọng cần cân nhắc:

Gia chủ hoàn toàn có thể xây mẫu nhà cấp 4 gác lửng 200 triệu nếu có kế hoạch ngân sách hợp lý (Nguồn: Internet)
>> Xem thêm:
Chi phí xây nhà cấp 4 gác lửng hiện nay dao động từ 800.000 - 5.500.000 VNĐ/m², tùy thuộc vào nhiều yếu tố như kiểu thiết kế, vật liệu sử dụng, vị trí xây dựng và gói thi công bạn lựa chọn. Chẳng hạn, giá xây dựng ở khu vực nông thôn sẽ thấp hơn so với thành phố; hoặc phong cách thiết kế cổ điển sẽ có chi phí khác biệt so với phong cách hiện đại, tối giản. Mức giá trên chỉ mang tính chất tham khảo. Chi phí thực tế có thể thay đổi tùy theo bản vẽ thiết kế chi tiết, quy mô công trình và các yêu cầu thi công cụ thể. Bên cạnh đó, chi phí thiết kế và thi công nội thất nhà gác lửng cũng là một yếu tố quan trọng. Thông thường, đơn giá thiết kế nội thất cho nhà cấp 4 gác lửng dao động trong khoảng 150.000 - 220.000 VNĐ/m2.

Chi phí xây dựng nhà cấp 4 gác lửng sẽ phụ thuộc vào nhiều yếu tố như kiểu thiết kế, vật liệu, vị trí, thời điểm thi công (Nguồn: Internet)
>> Xem thêm:
Phòng khách thường được bố trí tại tầng trệt của nhà cấp 4 gác lửng ngay lối vào, là nơi tiếp đón khách và sinh hoạt chung của gia đình. Để tiết kiệm diện tích, nên chọn nội thất nhà gác lửng có kích thước vừa phải, ưu tiên sofa dạng chữ L hoặc ghế dài kê sát tường. Bàn trà nên đơn giản, mặt kính hoặc gỗ sáng màu để tạo cảm giác rộng rãi. Kệ tivi treo tường hoặc âm tường cũng là giải pháp tối ưu giúp mở rộng không gian. Nếu chiều cao trần cho phép, bạn có thể tận dụng thiết kế thông tầng hoặc lắp đèn chùm trần thấp để tạo hiệu ứng chiều sâu và điểm nhấn sang trọng cho không gian tiếp khách.

Mẫu bố trí nội thất phòng khách nhà cấp 4 gác lửng tuyệt đẹp, hiện đại (Nguồn: Internet)
>> Xem thêm:
Phòng bếp nhà cấp 4 gác lửng thường được thiết kế liên thông với phòng khách theo dạng không gian mở, tạo cảm giác rộng rãi và tiện lợi. Tủ bếp nên chọn dạng chữ I hoặc chữ L kê sát tường để đảm bảo gọn gàng. Các khu vực bếp nấu - chậu rửa - tủ lạnh nên sắp xếp theo nguyên tắc tam giác bếp, giúp thao tác nấu nướng linh hoạt hơn. Bàn ăn có thể chọn loại gấp gọn hoặc bàn tròn nhỏ, đặt gần cửa sổ để tận dụng ánh sáng và tạo sự thông thoáng. Ưu tiên sử dụng tông màu sáng, vật liệu dễ vệ sinh và lắp máy hút mùi phù hợp để giữ cho gian bếp luôn sạch sẽ, thoải mái khi sử dụng.

Thiết kế phối cảnh nội thất nhà gác lửng cấp 4 có phòng bếp đẹp hợp phong thủy (Nguồn: Internet)
>> Đọc thêm:
Phòng ngủ trên tầng lửng thường có diện tích hạn chế, nên cần bố trí nội thất nhà gác lửng một cách thông minh để tiết kiệm không gian. Ưu tiên giường đơn hoặc giường có hộc kéo kết hợp với tủ âm tường. Nếu trần thấp, nên sử dụng nội thất dáng thấp, tránh các thiết kế chân cao để tạo cảm giác thoáng hơn. Trang trí nên tối giản như một vài bức tranh nhỏ, rèm sáng màu và đèn ngủ ánh sáng ấm là đủ để tạo sự ấm cúng cho không gian nhà cấp 4 gác lửng.

Bố trí nội thất phòng ngủ nhà cấp 4 gác lửng đẹp, thông mình và hợp phong thủy (Nguồn: Internet)
>> Đọc thêm:
Tham khảo ngay bộ sưu tập bản vẽ thiết kế nhà cấp 4 gác lửng đẹp, hiện đại tại đây để có thêm ý tưởng cho tổ ấm trong mơ của bạn. Nổi bật trong số đó là các mẫu nhà với phong cách hiện đại, trẻ trung, sử dụng gam màu tươi sáng, cùng hệ thống cửa sổ rộng rãi giúp đón nhận ánh sáng tự nhiên, tạo cảm giác thông thoáng và gần gũi với thiên nhiên.

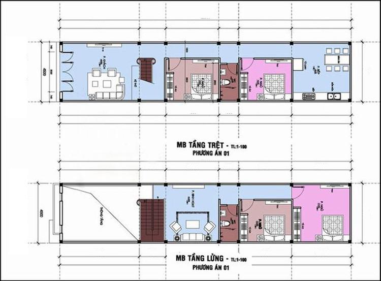
Bản vẽ thiết kế nhà cấp 4 gác lửng 2 phòng ngủ đẹp, hiện đại (Nguồn: Internet)

Bản vẽ nhà cấp 4 có gác lửng 3 phòng ngủ (Nguồn: Internet)

Bản vẽ thiết kế nhà cấp 4 gác lửng mái Thái hiện đại (Nguồn: Internet)

Bản vẽ mẫu nhà cấp 4 gác lửng 5x20m chi tiết, đầy đủ công năng (Nguồn: Internet)
Để công trình nhà gác lửng đảm bảo độ bền, tính thẩm mỹ và đúng quy định pháp lý, gia chủ cần tuân thủ nghiêm ngặt các tiêu chuẩn kỹ thuật xây dựng cũng như quy hoạch hiện hành. Dưới đây là những lưu ý quan trọng giúp quá trình thiết kế và thi công nhà gác lửng diễn ra thuận lợi, an toàn và tối ưu công năng sử dụng.
Xây nhà gác lửng cần lưu ý điều gì? Trước hết, gia chủ cần xác định công trình có đủ điều kiện xây dựng gác lửng hay không. Không phải ngôi nhà nào cũng được phép thiết kế tầng lửng, bởi việc này phụ thuộc vào quy hoạch đô thị và quy định cụ thể của từng địa phương. Do đó, trước khi thi công, cần kiểm tra kỹ hồ sơ pháp lý và xin phép cơ quan chức năng có thẩm quyền.
Nếu được phép xây dựng, gia chủ cần tuân thủ các quy định sau:
Quy định về diện tích
Theo quy định của Bộ Xây dựng, đối với nhà ở riêng lẻ, diện tích sàn tầng lửng không được vượt quá 65% diện tích mặt sàn của tầng ngay bên dưới. Mỗi công trình chỉ được phép có duy nhất một tầng lửng và tầng này không được tính vào số tầng của ngôi nhà.
Quy định về chiều cao
Chiều cao tầng lửng được xác định dựa trên hai yếu tố chính là lộ giới trước nhà (L) và chiều cao từ vỉa hè đến sàn tầng 1 (H):
Theo quy chuẩn chung, chiều cao trần gác lửng tối thiểu là 2,2m và tối đa là 3m. Trong đó, khoảng 2,4 – 2,8m được đánh giá là đẹp và hợp lý nhất, giúp không gian thông thoáng và thuận tiện sinh hoạt.
Gợi ý chiều cao gác lửng theo công năng sử dụng:

Khi xây dựng nhà cấp 4 gác lửng cần lưu ý đảm bảo quy định về diện tích và chiều cao (Nguồn: Internet)
>> Đọc thêm: 1000+ Mẫu mặt tiền nhà cấp 4 đẹp hiện đại, hợp xu hướng 2026
Thông thường, gác lửng được bố trí ngay phía trên tầng trệt. Tùy vào diện tích và đặc điểm kiến trúc của ngôi nhà, gia chủ có thể lựa chọn vị trí đặt gác lửng sao cho phù hợp:
Lựa chọn vật liệu xây dựng là yếu tố ảnh hưởng trực tiếp đến cả chất lượng nhà cấp 4 gác lửng lẫn tổng mức đầu tư. Gia chủ nên ưu tiên các vật liệu có độ bền cao, dễ thi công và phù hợp với điều kiện khí hậu địa phương. Ngoài tính kỹ thuật, yếu tố thẩm mỹ cũng cần được cân nhắc để đảm bảo sự hài hòa trong tổng thể kiến trúc. Với những công trình có ngân sách hạn chế, lựa chọn vật liệu thông minh là giải pháp tối ưu như tấm xi măng DURAflex Low Carbon vừa đảm bảo công năng, vừa duy trì tính thẩm mỹ.
Với không gian hạn chế, cầu thang nên được bố trí sát tường thay vì đặt giữa nhà để tiết kiệm diện tích. Gia chủ nên ưu tiên các mẫu cầu thang đơn giản, gọn nhẹ và hài hòa với tổng thể kiến trúc.
Một số kiểu cầu thang phù hợp gồm: cầu thang thẳng, cầu thang xương cá, cầu thang xoắn ốc, cầu thang nổi. Độ dốc lý tưởng từ 20 - 45 độ và cần có lan can, tay vịn để đảm bảo an toàn khi di chuyển.
Do đặc thù chiều cao hạn chế, trần nhà gác lửng nên được thiết kế đơn giản, phẳng và nhẹ nhàng. Gia chủ cần tránh các chi tiết trang trí rườm rà hoặc đèn chùm lớn, vì dễ khiến không gian trở nên chật chội và bí bách.
Giải pháp thường được các kiến trúc sư khuyên dùng là trần thạch cao. Với màu sắc sáng, bề mặt gọn gàng, trần thạch cao giúp không gian gác lửng trông rộng rãi, sạch sẽ và hiện đại hơn.
Gia chủ nên quan tâm đến những nguyên tắc sau khi xây dựng nhà gác lửng:

Gia chủ nên quan tâm đến những yếu tố phòng thủy khi xây dựng nhà gác lửng (Nguồn: Internet)
>> Tìm hiểu thêm:
Nếu bạn đang tìm kiếm một mẫu nhà tiết kiệm, tiện nghi và dễ thi công, nhà cấp 4 gác lửng là giải pháp lý tưởng. Với những thông tin trên, hy vọng bạn đã có cái nhìn tổng quan về các mẫu nhà gác lửng đẹp, ấn tượng và phù hợp với xu hướng thiết kế năm 2026. Hãy lựa chọn cho mình một mẫu nhà cấp 4 gác lửng phù hợp với nhu cầu và sở thích nhé. Mọi thông tin chi tiết về sản phẩm DURAflex, vui lòng liên hệ đến tổng đài: 1800 1218 để được tư vấn miễn phí hoặc bấm: BÁO GIÁ NGAY
Bài viết liên quan
Đánh giá và nhận xét
Đánh giá trung bình
0/5
5
4
3
2
1
Chia sẻ và nhận xét về bài viết
Chia sẻ và nhận xét về bài viết
Bài viết chưa có đánh giá nào