
DURAflex đăng vào lúc 29/12/2025 - 10:00
Thiết kế nhà 2 tầng không chỉ giúp bạn tận dụng tối đa diện tích đất mà còn mang đến không gian sống thoải mái cho cả gia đình. Bài viết này DURAflex sẽ giới thiệu đến bạn đọc 75+ mẫu nhà 2 tầng đẹp giá 700 triệu, đa dạng phong cách, phù hợp với nhiều diện tích đất và sở thích khác nhau.
Nhà 2 tầng giá 700 triệu ngày càng được nhiều gia đình lựa chọn nhờ ngân sách hợp lý và thiết kế tối ưu. Mẫu nhà này thường mang phong cách đơn giản, hiện đại, bao gồm 2 - 3 phòng ngủ, phù hợp cho gia đình từ 3 - 5 thành viên.
Kết cấu 2 tầng cho phép bố trí các phòng chức năng một cách khoa học, tạo sự thoải mái và tiện nghi trong sinh hoạt. Bên cạnh đó, gia chủ có thể linh hoạt chọn phong cách thiết kế để thể hiện cá tính và gu thẩm mỹ riêng.

Thiết kế nhà 2 tầng đẹp giá 700 triệu 3 phòng ngủ, phù hợp với nhiều gia đình ở Việt Nam (Nguồn: Internet)
>> Đọc thêm:
Nếu bạn đang tìm kiếm một mẫu nhà 2 tầng đẹp, hiện đại với mức đầu tư khoảng 700 triệu đồng tại nông thôn, thì những thiết kế sử dụng tấm xi măng DURAflex và tấm xi măng giả gỗ DURAwood là lựa chọn hoàn hảo. Với sự kết hợp giữa kiến trúc tối giản và vật liệu bền bỉ, ngôi nhà không chỉ mang lại không gian sống thoáng đãng, mà còn đáp ứng yếu tố thẩm mỹ cao. Tấm xi măng DURAflex giúp xây dựng kết cấu vững chắc, chịu lực tốt, trong khi tấm vân gỗ DURAwood tạo điểm nhấn trang trí tinh tế, phù hợp với phong cách sống hiện đại ở nông thôn. Thiết kế nhà bao gồm 3 phòng ngủ, 1 phòng khách, và không gian bếp mở, đảm bảo sự tiện nghi cho gia đình từ 4-5 người.

Mẫu nhà 2 tầng đẹp giá 700 triệu ở nông thôn (Nguồn: Internet)

Mẫu nhà 2 tầng đẹp ở nông thôn giá 700 triệu với thiết kế hiện đại (Nguồn: Internet)

Mẫu nhà chữ L 2 tầng giá 700 triệu ở nông thôn đẹp, rộng rãi, đầy đủ tiện nghi (Nguồn: Internet)

Mẫu nhà 2 tầng đẹp giá 700 triệu ở nông thôn với mái Thái hiện đại (Nguồn: Internet)

Mẫu nhà 2 tầng đẹp giá 700 triệu ở nông thôn phong cách tân cổ điển (Nguồn: Internet)
>> Xem thêm các mẫu nhà khác:
Mẫu nhà 2 tầng đẹp giá 700 triệu phong cách hiện đại ghi điểm với thiết kế tối giản nhưng đầy cuốn hút. Kiến trúc sử dụng các đường nét gọn gàng, kết hợp cùng tấm bê tông nhẹ DURAflex và tấm vân gỗ DURAwood để tạo nên vẻ đẹp vừa hiện đại vừa bền vững. Mặt tiền ngôi nhà được thiết kế tinh tế với sự bố trí hài hòa giữa các mảng tường và cửa sổ lớn, tận dụng ánh sáng tự nhiên để làm nổi bật không gian sống. Không chỉ mang tính thẩm mỹ, mẫu nhà này còn đáp ứng tốt các tiêu chí về chi phí, công năng và sự tiện nghi, phù hợp với nhu cầu của các gia đình trẻ.

Mẫu nhà 2 tầng đẹp giá 700 triệu phong cách hiện đại (Nguồn: Internet)

Mẫu nhà 2 tầng đẹp giá 700 triệu phong cách hiện đại với không gian xanh (Nguồn: Internet)

Mẫu nhà 2 tầng đẹp giá 700 triệu phong cách hiện đại ở nông thôn (Nguồn: Internet)

Thiết kế công năng mặt bằng tầng 1 cho nhà 2 tầng đẹp giá 700 triệu (Nguồn: Internet)

Thiết kế công năng mặt bằng tầng 2 cho nhà 2 tầng đẹp giá 700 triệu (Nguồn: Internet)

Phối cảnh không gian phòng khách nhà 2 tầng đẹp giá 700 triệu (Nguồn: Internet)

Phối cảnh không gian phòng bếp nhà 2 tầng đẹp giá 700 triệu (Nguồn: Internet

Bố trí không gian nội thất phòng bếp nhà 2 tầng đẹp 700 triệu (Nguồn: Internet)

Phối cảnh không gian phòng ngủ nhà 2 tầng đẹp giá 700 triệu (Nguồn: Internet)
>> >> Xem thêm:
Mẫu nhà 2 tầng giá 700 triệu theo phong cách tân cổ điển là sự kết hợp hài hòa giữa vẻ đẹp cổ điển sang trọng và sự hiện đại tinh tế. Với mức chi phí này, bạn có thể xây dựng phần thô trên diện tích sàn khoảng 75 - 80m², tạo nền tảng cho một không gian sống lý tưởng. Tuy nhiên, để hoàn thiện ngôi nhà với nội thất và ngoại thất ấn tượng, bạn cần dự trù thêm chi phí cho vật liệu và trang trí.

Mẫu nhà 2 tầng đẹp giá 700 triệu phong cách tân cổ điển (Nguồn: Internet)

Mẫu nhà 2 tầng đẹp, sang trọng giá 700 triệu phong cách tân cổ điển (Nguồn: Internet)

Mẫu nhà 2 tầng đẹp, đẳng cấp giá 700 triệu phong cách tân cổ điển (Nguồn: Internet)
>> >> Xem thêm:
Mẫu nhà 2 tầng đẹp giá 700 triệu mái Thái chinh phục người nhìn nhờ thiết kế thanh thoát và đầy đủ công năng. Hệ nhà mái Thái không chỉ tạo nên sự sang trọng mà còn giúp giảm hấp thụ nhiệt, mang lại không gian mát mẻ trong những ngày hè oi bức. Điểm nổi bật khác là phần mặt tiền được nhấn nhá bởi các đường phào chỉ tinh xảo, giúp ngôi nhà trở nên hiện đại nhưng vẫn giữ được nét truyền thống. Để khắc phục nhược điểm về độ bền hoặc khả năng chống thấm của các kiểu nhà thông thường, việc sử dụng sản phẩm chịu nước như tấm xi măng DURAflex là lựa chọn hoàn hảo, vừa đảm bảo tính thẩm mỹ vừa tăng tuổi thọ cho công trình.

Mẫu thiết kế nhà 2 tầng đẹp giá 700 triệu mái Thái (Nguồn: Internet)

Mẫu thiết kế nhà mái Thái 2 tầng đẹp, sang trọng, có 2 mặt tiền giá 700 triệu (Nguồn: Internet)

Mẫu thiết kế nhà 2 tầng đẹp, hiện đại giá 700 triệu mái Thái (Nguồn: Internet)
>> Xem thêm:
Mẫu nhà 2 tầng đẹp giá 700 triệu mái Nhật thu hút bởi sự kết hợp hài hòa giữa kiến trúc hiện đại và nét truyền thống. Hệ mái Nhật với độ dốc vừa phải không chỉ tạo sự thanh thoát mà còn giúp thoát nước hiệu quả, đặc biệt phù hợp với khí hậu Việt Nam. Phần mặt tiền được thiết kế tinh tế, nhấn nhá bằng các tấm xi măng DURAflex bền vững, chịu nước tốt, đảm bảo độ bền lâu dài.

Mẫu biệt thự 2 tầng mái Nhật đẹp giá 700 triệu (Nguồn: Internet)

Mẫu nhà 2 tầng mái Nhật giá 700 triệu đẹp, hiện đại, sang trọng (Nguồn: Internet)

Mẫu nhà mái Nhật 2 tầng giá 700 triệu đẹp, thiết kế tinh tế (Nguồn: Internet)
>> >> Tham khảo:
Mẫu nhà 2 tầng đẹp giá 700 triệu mái bằng là lựa chọn lý tưởng cho những gia chủ đam mê phong cách hiện đại và năng động. Chỉ với ngân sách khoảng 700 triệu đồng, bạn hoàn toàn có thể sở hữu một căn nhà không chỉ đẹp mắt mà còn đảm bảo độ bền vững. Phần mái bằng không chỉ mang đến nét tối giản mà còn mở ra cơ hội tận dụng không gian để biến thành sân thượng thư giãn, thiết kế sân vườn nhỏ xanh mát hoặc nơi lý tưởng để ngắm nhìn bầu trời.

Mẫu nhà 2 tầng đẹp giá 700 triệu mái bằng hiện đại (Nguồn: Internet)

Mẫu nhà 2 tầng đẹp giá 700 triệu mái bằng có tone trắng tinh tế (Nguồn: Internet)
>> Xem thêm:
Mẫu thiết kế nhà 2 tầng giá 700 triệu mái lệch mang phong cách hiện đại và tinh tế, tập trung vào tối ưu không gian sống. Sự kết hợp hài hòa giữa gam màu trắng chủ đạo và điểm nhấn từ vật liệu gỗ tạo nên vẻ đẹp thanh lịch nhưng không kém phần ấm cúng. Kiến trúc mái lệch không chỉ tạo điểm nhấn thẩm mỹ mà còn giúp tối ưu việc thoát nước mưa, đảm bảo độ bền lâu dài cho công trình. Mặt tiền được thiết kế mở với hệ thống cửa kính lớn, vừa tận dụng ánh sáng tự nhiên vừa mang lại cảm giác thoáng đãng cho không gian bên trong.

Mẫu thiết kế nhà 2 tầng giá 700 triệu mái lệch (Nguồn: Internet)

Mẫu thiết kế biệt thự 2 tầng giá 700 triệu mái lệch đẹp, độc đáo, ấn tượng (Nguồn: Internet)

Mẫu nhà mái lệch 2 tầng đẹp giá 700 triệu mái lệch được thiết kế hiện đại (Nguồn: Internet)
>> Xem thêm:
Mẫu nhà 2 tầng đẹp giá 700 triệu với thiết kế gác lửng không chỉ mang lại không gian sống tiện nghi mà còn tối ưu hóa diện tích sử dụng một cách hiệu quả. Điểm nhấn của mẫu nhà này nằm ở việc sử dụng tấm xi măng DURAflex cho vách ngăn và lót mái chống nóng. Điều này không chỉ nâng cao độ bền mà còn mang lại khả năng chịu ẩm, cách nhiệt vượt trội, tạo nên không gian sống bền vững và thoải mái cho cả gia đình.

Mẫu nhà 2 tầng đẹp giá 700 triệu có gác lửng (Nguồn: Internet)

Mẫu nhà 2 tầng đẹp giá 700 triệu có gác lửng phong cách tân cổ điển (Nguồn: Internet)

Mẫu nhà 2 tầng đẹp giá 700 triệu có gác lửng phong cách Minimalism (Nguồn: Internet)
>> Tham khảo thêm:
Mẫu nhà 2 tầng đẹp giá 700 triệu có 4 phòng ngủ và 1 tum là lựa chọn lý tưởng cho các gia đình có 4-5 thành viên, đáp ứng đầy đủ công năng và không gian sống tiện nghi. Phần mặt tiền được thiết kế hiện đại với ban công rộng rãi, tạo không gian thoáng đãng và điểm nhấn với các chi tiết gạch bông gió độc đáo. Tầng tum không chỉ là nơi bố trí thêm phòng chức năng mà còn được tận dụng để làm sân vườn nhỏ, mang lại không gian sống xanh và cảm giác thư giãn cho cả gia đình.

Mẫu nhà vườn 2 tầng đẹp giá 700 triệu có 4 phòng ngủ và 1 tum (Nguồn: Internet)

Mẫu nhà 2 tầng có 4 phòng ngủ và 1 tum đẹp, hiện đại giá 700 triệu (Nguồn: Internet)

Mẫu nhà 2 tầng có 4 phòng ngủ và 1 tum giá 700 triệu đẹp với mặt tiền 5m (Nguồn: Internet)
>> Tham khảo thêm:
Mẫu nhà ống 2 tầng đẹp giá 700 triệu có gara để xe là lựa chọn lý tưởng cho các gia đình trẻ ở khu vực đô thị. Với thiết kế hiện đại và tối ưu hóa không gian, ngôi nhà này mang đến sự tiện nghi và thoải mái cho các thành viên. Điểm đặc biệt của căn nhà là hệ thống cửa sổ lớn giúp đón ánh sáng tự nhiên, tạo cảm giác rộng rãi, thông thoáng cho các phòng. Cầu thang ngoài trời không chỉ là giải pháp tiết kiệm diện tích mà còn tạo nên nét độc đáo, dễ dàng di chuyển giữa các tầng. Khoảng sân nhỏ phía trước được tận dụng làm gara để xe, thuận tiện cho việc đỗ xe và bảo vệ phương tiện, đồng thời tạo không gian xanh mát, dễ chịu cho ngôi nhà.

Mẫu nhà 2 tầng chữ L 100m2 thiết kế dạng ống đẹp giá 700 triệu có gara (Nguồn: Internet)

Mẫu nhà ống 2 tầng đẹp giá 700 triệu có gara tiện lợi (Nguồn: Internet)

Mặt tiền nhà ống đẹp thiết kế 2 tầng có gara ô tô giá 700 triệu (Nguồn: Internet)
>> Đọc thêm:
Mẫu nhà 2 tầng 4x14m với chi phí 700 triệu đang là sự lựa chọn yêu thích của nhiều gia đình hiện nay. Với thiết kế độc đáo, mang đậm phong cách hiện đại, mẫu nhà này không chỉ đáp ứng nhu cầu sử dụng mà còn tạo nên dấu ấn riêng biệt. Đặc biệt, tầng 2 được trang bị ban công kính, không chỉ tạo điểm nhấn cuốn hút mà còn góp phần làm nổi bật thiết kế không gian mở, mang lại vẻ đẹp sang trọng và hiện đại cho toàn bộ ngôi nhà.

Mẫu thiết kế biệt thự mini 2 tầng đẹp giá 700 triệu diện tích 4x14m (Nguồn: Internet)

Mẫu nhà 2 tầng, 1 tum đẹp giá 700 triệu diện tích 4x14m (Nguồn: Internet)
>> Đọc thêm:
Mẫu nhà 2 tầng 6x11m giá 700 triệu gây ấn tượng bởi sự kết hợp tinh tế giữa trắng chủ đạo và nâu ấm áp tạo nên vẻ đẹp hiện đại và hài hòa. Điểm nhấn của ngôi nhà nằm ở việc bố trí không gian bên trong một cách khoa học, đảm bảo sự tiện nghi và phù hợp với nhu cầu sử dụng của từng căn phòng, mang đến trải nghiệm sống lý tưởng cho gia đình.

Mẫu thiết kế nhà 2 tầng 6x11m trọn gói giá 700 triệu (Nguồn: Internet)

Mẫu nhà 2 tầng đẹp giá 700 triệu diện tích 6x11m tiện nghi, đầy đủ công năng (Nguồn: Internet)

Thiết kế mặt bằng tầng 1 nhà 2 tầng đẹp giá 700 triệu 6x11m (Nguồn: Internet)

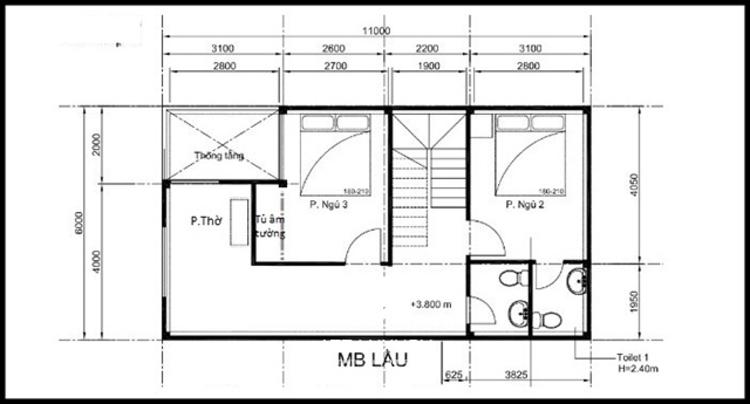
Bản vẽ công năng mặt bằng tầng 2 của nhà 2 tầng đẹp giá 700 triệu 6x11m (Nguồn: Internet)

Thiết kế không gian phòng khách nhà 2 tầng diện tích 6x11m (Nguồn: Internet)

Cách bố trí nội thất phòng bếp nhà 2 tầng giá 700 triệu 6x11m (Nguồn: Internet)

Phối cảnh nội thất phòng ngủ nhà 2 tầng giá 700 triệu 6x11m (Nguồn: Internet)
>> Tham khảo thêm mẫu nhà khác:
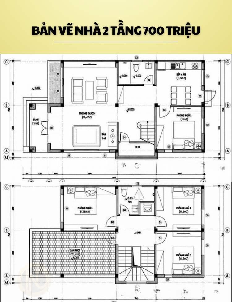
Mẫu nhà 2 tầng đẹp giá 700 triệu được thiết kế khoa học, phân chia hợp lý các khu vực chức năng để đảm bảo tính tiện nghi và thẩm mỹ. Dưới đây là bản vẽ chi tiết và cách bố trí từng không gian của ngôi nhà.

Bản vẽ thiết kế nhà 2 tầng đẹp giá 700 triệu đầy đủ công năng (Nguồn: Internet)

Mẫu bản vẽ thiết kế nhà 2 tầng đẹp giá 700 triệu thiết kế hiện đại (Nguồn: Internet)
>> Đọc thêm:
Với ngân sách 700 triệu, việc bố trí nội thất cho ngôi nhà 2 tầng không hề khó khăn nếu bạn biết cách áp dụng những phương pháp thông minh và tiết kiệm. Dưới đây là những gợi ý giúp bạn tạo dựng không gian sống tiện nghi và sang trọng mà vẫn đảm bảo chi phí hợp lý:
Sử dụng màu sắc sáng và nhẹ nhàng: Màu trắng, xám nhạt, hay màu pastel sẽ giúp không gian trở nên rộng rãi, thoáng đãng hơn. Những gam màu này không chỉ tạo cảm giác thoải mái mà còn dễ dàng kết hợp với các món đồ nội thất khác.
Lựa chọn nội thất thông minh, đa năng: Những món đồ như giường tầng, bàn gấp, hay ghế có thể tích hợp thêm các tính năng như lưu trữ sẽ giúp tối ưu diện tích mà vẫn mang lại sự tiện nghi. Các giải pháp nội thất như vậy sẽ làm cho ngôi nhà của bạn vừa gọn gàng lại vừa phong cách.
Bố trí khoa học và hợp lý: Sắp xếp đồ đạc một cách khoa học, tối ưu hóa không gian sử dụng là chìa khóa quan trọng giúp không gian sống trở nên thoải mái và dễ dàng di chuyển. Chú ý đến việc phân chia không gian chức năng hợp lý để từng khu vực đều có được sự riêng biệt và tiện nghi tối đa.
Để giúp bạn hoàn thiện không gian sống thêm phần đẹp mắt và bền vững, tấm xi măng DURAflex là lựa chọn lý tưởng. Với chất liệu bền bỉ, khả năng cách âm, cách nhiệt, chịu ẩm tốt, dễ dàng thi công và bảo trì, tấm xi măng DURAflex không chỉ giúp tạo nên những bức tường, vách ngăn đẹp mắt mà còn mang đến hiệu quả chi phí tuyệt vời cho ngôi nhà của bạn.

Sử dụng màu sắc nhẹ nhàng khi thiết kế nhà 2 tầng đẹp giá 700 triệu (Nguồn: Internet)
>> Đọc thêm:
Khi xây dựng mẫu nhà 2 tầng đẹp giá 700 triệu, chi phí sẽ phụ thuộc vào loại gói xây dựng bạn chọn. Nếu bạn chọn xây thô, ngân sách này sẽ cho phép bạn xây dựng một ngôi nhà có diện tích sàn khoảng 70 - 80m2. Tuy nhiên, nếu bạn chọn gói xây dựng trọn gói, với diện tích sàn từ 50 - 60m2, bạn sẽ cần khoảng 400 - 450 triệu cho phần thô và 200 - 310 triệu cho phần hoàn thiện. Lưu ý, chi phí trên chưa bao gồm nội thất. Nếu bạn muốn trang bị đầy đủ nội thất cho ngôi nhà, bạn cần dự trù thêm khoảng 100 - 200 triệu.
Dưới đây là ví dụ về cách phân bổ ngân sách cho việc xây dựng nhà 2 tầng:
|
Hạng mục |
Chi phí (VND) |
|
Xây dựng phần thô (móng, kết cấu khung nhà) |
420 – 460 triệu |
|
Phần hoàn thiện nhà (Sơn, ốp lát gạch, tủ bếp, bồn cầu...) |
230 – 260 triệu |
|
Nội thất cơ bản (bàn ghế, tủ lạnh, tivi,…) |
100 triệu |
|
Tổng cộng |
750 – 850 triệu |
Lưu ý rằng trong quá trình thi công, có thể phát sinh thêm nhiều hạng mục không được tính vào dự toán ban đầu. Do đó, để chủ động tài chính, bạn nên dự trù thêm khoảng 10% – 20% chi phí phát sinh.
Để tối ưu chi phí và đảm bảo chất lượng công trình, bạn có thể lựa chọn sử dụng tấm xi măng DURAflex cho các hạng mục như vách ngăn, trần, hoặc tường. Tấm xi măng này có trọng lượng nhẹ, dễ dàng vận chuyển và giúp giảm chi phí nhân công, là lựa chọn thông minh cho những ai muốn tiết kiệm chi phí mà vẫn đảm bảo sự bền vững cho ngôi nhà.
Bấm: BÁO GIÁ NGAY để được tư vấn chi tiết và báo giá nhanh chóng cho sản phẩm tấm xi măng DURAflex và tấm vân gỗ DURAwood làm vật liệu xây dựng nhà 2 tầng đẹp giá 700 triệu.
>> Tham khảo thêm:

Khi thiết kế, xây nhà 2 tầng đẹp giá 700 triệu cần dự trù chi phí phát sinh (Nguồn: Internet)
Kết luận
Với ngân sách 700 triệu đồng, bạn hoàn toàn có thể sở hữu một ngôi nhà 2 tầng đẹp, hiện đại và đầy đủ tiện nghi. Hãy tham khảo những mẫu nhà mà chúng tôi giới thiệu và lựa chọn cho mình một mẫu nhà phù hợp nhất. Chúc bạn sớm xây dựng được ngôi nhà mơ ước!
Bài viết liên quan
Đánh giá và nhận xét
Đánh giá trung bình
0/5
5
4
3
2
1
Chia sẻ và nhận xét về bài viết
Chia sẻ và nhận xét về bài viết
Bài viết chưa có đánh giá nào