
DURAflex đăng vào lúc 28/12/2025 - 14:00
Mẫu nhà 2 tầng đẹp đã trở thành lựa chọn hàng đầu của nhiều gia đình Việt Nam. Với thiết kế đa dạng, đáp ứng được nhu cầu về không gian sống và thẩm mỹ, nhà 2 tầng mang đến sự tiện nghi và hiện đại. Bài viết này DURAflex sẽ giới thiệu đến bạn đọc top những mẫu nhà 2 tầng đẹp, đơn giản, hiện đại được ưa chuộng nhất 2026 với xu hướng thiết kế độc đáo, mới lạ.
Nhà 2 tầng là kiểu nhà bao gồm 1 tầng trệt và 1 tầng lầu. Ngoài ra, mẫu nhà này còn thường được thiết kế thêm gác lửng hoặc sân thượng phía trên cùng để tối ưu không gian sống. Nhà 2 tầng là lựa chọn phổ biến tại các khu đô thị nhờ vào sự tối ưu về công năng sử dụng cùng chi phí thiết kế và thi công hợp lý.

Mẫu nhà 2 tầng đẹp với thiết kế 1 tầng trệt và 1 lầu (Nguồn: Internet)
>> Xem thêm:
Phân loại theo kết cấu hình dáng ngôi nhà
Phân loại theo phong cách thiết kế

Mẫu nhà 2 tầng đẹp phong cách hiện đại được yêu thích hiện nay (Nguồn: Internet)
Tìm hiểu thêm: Có bao nhiêu loại nhà ở? Tiêu chí phân loại nhà cấp 1,2,3,4,5
1. Phù hợp với mọi loại đất
2. Tối ưu về mặt diện tích và công năng sử dụng
Những mẫu nhà 2 tầng sẽ giúp bạn tận dụng được diện tích đất hiệu quả, đặc biệt là những lô đất phố có diện tích xây dựng bị hạn chế (diện tích phổ biến là 5 x 20m). Việc xây dựng nhà có kết cấu kiến trúc 2 tầng cũng làm tăng công năng sử dụng, khá phù hợp cho những gia đình nhỏ từ 2 đến 4 thành viên.
3. Đa dạng không gian và tạo không gian riêng tư khi sử dụng
Các mẫu nhà 2 tầng sẽ giúp tạo sự riêng tư cho người sử dụng. Phòng ngủ, phòng bếp và khu vực sinh hoạt được phân chia rõ ràng theo từng tầng, giúp tách biệt không gian nghỉ ngơi và khu sinh hoạt chung của cả gia đình.
So với nhà 1 tầng, diện tích xây dựng của nhà 2 tầng sẽ nhiều hơn. Do đó, gia chủ có thể thiết kế nhiều không gian hơn và đa dạng các phong cách khác nhau cho từng khu vực. Bên cạnh đó, người sử dụng cũng có thể thiết kể thêm tầng thượng để làm không gian sinh hoạt chung hoặc không gian thư giản cho gia đình.
4. Tối ưu hóa chi phí xây dựng
Chi phí xây dựng những mẫu nhà 2 tầng thường không quá đắt đỏ, thường dao động khoảng 500 triệu - 1,7 tỷ. Chi phí này sẽ thay đổi phụ thuộc vào diện tích xây dựng, công năng, giá vật liệu và một số yêu cầu khác của gia chủ.

Mẫu nhà 2 tầng có thể dễ dàng cải tạo và mở rộng không gian sống (Nguồn: Internet)
Các quý gia chủ và thầu thợ có thể tham khảo một số mẫu nhà 2 tầng đẹp, ấn tượng, được ưa chuộng nhất 2026 dưới đây:
Mẫu nhà 2 tầng đẹp ở nông thôn không chỉ đáp ứng nhu cầu sinh hoạt tiện nghi mà còn mang lại vẻ đẹp hài hòa với không gian thiên nhiên. Với thiết kế đơn giản nhưng tinh tế, các mẫu nhà này thường sử dụng vật liệu xây dựng hiện đại kết hợp với những chi tiết truyền thống như mái ngói, cửa gỗ hoặc ban công thoáng mát. Bố cục công năng hợp lý, bao gồm phòng khách, phòng bếp, và 2-3 phòng ngủ, đảm bảo đáp ứng đầy đủ nhu cầu của các gia đình từ 4-6 thành viên. Bên cạnh đó, việc tận dụng không gian sân vườn rộng rãi giúp ngôi nhà thêm phần gần gũi, tạo nơi thư giãn lý tưởng cho cả gia đình.
>> Tham khảo thêm:

Mẫu nhà 2 tầng nông thôn 800 triệu phổ biến hiện nay (Nguồn: Internet)

Xây nhà 500 triệu ở nông thôn thiết kế 2 tầng hiện đại, thoáng đãng (Nguồn: Internet)
>> Xem thêm các mẫu nhà khác:
Nhà 2 tầng hiện đại với phong cách tối giản đang trở thành lựa chọn hàng đầu của nhiều gia đình nhờ thiết kế tinh tế, tiện nghi và đáp ứng nhu cầu sử dụng đa dạng. Đặc trưng của kiểu nhà này là sự kết hợp hài hòa giữa không gian mở và các đường nét gọn gàng, tạo cảm giác thoáng đãng và sang trọng. Để đảm bảo độ bền vững và tính thẩm mỹ, nhiều gia chủ ưu tiên sử dụng các vật liệu chất lượng cao như tấm xi măng DURAflex để lót mái chống nóng, vách ngăn phòng hoặc sàn.

Mẫu nhà 2 tầng đẹp, hiện đại, tối giản (Nguồn: Internet)

Mẫu nhà 2 tầng hiện đại, tối giản, đầy đủ tiện nghi (Nguồn: Internet)

Mẫu nhà 2 tầng hiện đại, tối giản với mặt tiền ngang 6m (Nguồn: Internet)
>> Xem thêm:
Mẫu nhà 1 trệt 1 lầu đẹp thiết kế theo phong cách thô mô đang trở thành xu hướng được yêu thích nhờ vào sự kết hợp hoàn hảo giữa sự ấm cúng và nét hiện đại. Các mẫu nhà này mang đến không gian gần gũi, thân thiện, đặc biệt khi sử dụng những vật liệu đa năng như tẫm xi măng giả gỗ DURAwood để lót sàn, trần nhà hoặc ốp tường trang trí nội và ngoại thất.

Mẫu nhà 2 tầng đẹp được thiết kế theo phong cách thô mộc, ấm cúng (Nguồn: Internet)

Mẫu nhà 2 tầng đẹp được thiết kế theo phong cách thô mộc, ấm cúng (Nguồn: Internet)
Mẫu nhà 2 tầng đẹp 1 tum không chỉ mang lại sự thoải mái mà còn là lựa chọn lý tưởng để tối ưu diện tích xây dựng. Khu vực tum thường được bố trí thành nơi thờ cúng, khu làm việc hoặc sân phơi, giúp tận dụng triệt để không gian và đáp ứng nhu cầu sinh hoạt của gia đình. Mẫu nhà này phù hợp với những gia đình đông thành viên hoặc cần thêm không gian riêng tư. Với phong cách thiết kế hiện đại, tối giản, nhà 2 tầng 1 tum đảm bảo sự tiện nghi và thẩm mỹ, đồng thời hỗ trợ việc xây dựng bền vững khi kết hợp sử dụng tấm bê tông siêu nhẹ DURAflex và tấm xi măng giả gỗ DURAwood. Đây là giải pháp hoàn hảo giúp công trình không chỉ bền chắc mà còn mang vẻ đẹp tự nhiên, hài hòa với mọi phong cách kiến trúc.

Mẫu nhà 2 tầng 1 tum đẹp, hiện đại có mặt tiền ngang 4m (Nguồn: Internet)

Mẫu nhà 2 tầng đẹp 1 tum đẹp sử dụng tấm vân gỗ DURAwood trang trí ngoại thất (Nguồn: Internet)

Mẫu thiết kế nhà 2 tầng 1 tum đẹp, hiện đại, thoáng mát với tone trắng trang nhã (Nguồn: Internet)
>> Đọc thêm:
Mẫu nhà 2 tầng hình chữ L không chỉ sở hữu vẻ đẹp thẩm mỹ mà còn mang đến không gian sống thoáng đãng nhờ thiết kế mở. Mẫu nhà chữ L này thường được xây dựng trên các khu đất rộng rãi hoặc những lô đất có hình dáng không đồng đều, tận dụng tối đa diện tích để tạo sự thoải mái cho gia đình.

Mẫu nhà 2 tầng chữ L 100m2 đẹp có gara để ô tô (Nguồn: Internet)

Mẫu nhà chữ L 2 tầng đẹp, hiện đại với tông màu trắng sáng (Nguồn: Internet)
>> Xem thêm:
Nhà thép tiền chế 2 tầng kích thước 5x20m đang trở thành xu hướng lựa chọn cho những gia đình yêu thích sự tiện lợi và tiết kiệm chi phí. Với thiết kế hiện đại và linh hoạt, mẫu nhà 1 trệt 1 lầu 5x20 này không chỉ đáp ứng nhu cầu sử dụng mà còn tối ưu hóa thời gian thi công. Điểm nổi bật của nhà tiền chế là khả năng chịu lực tốt, cách nhiệt hiệu quả và dễ dàng tùy chỉnh theo yêu cầu. Tuy nhiên, để nâng cao tính thẩm mỹ và độ bền, việc sử dụng các vật liệu chất lượng cao như tấm xi măng DURAflex và tấm vân gỗ DURAwood là giải pháp tối ưu.

Mẫu nhà tiền chế 2 tầng 5x20 đẹp, đơn giản mà hiện đại (Nguồn: Internet)

Mẫu nhà khung thép 2 tầng tiền chế đẹp có diện tích 5x20 với thiết kế tối giản (Nguồn: Internet)

Mẫu nhà tiền chế 2 tầng diện tích 5x20 đẹp, hiện đại với hệ cửa kính lớn (Nguồn: Internet)
>> Xem thêm:
Nhà ống 2 tầng kích thước 5x20m là lựa chọn hoàn hảo cho những gia đình sống tại đô thị đông đúc, nơi quỹ đất thường bị giới hạn. Với thiết kế dài và hẹp, việc bố trí không gian trong nhà ống cần được tính toán kỹ lưỡng để đảm bảo sự thông thoáng và tiện nghi. Kiến trúc sư thường tận dụng các khoảng trống để tạo giếng trời hoặc ban công, giúp tăng cường ánh sáng tự nhiên và lưu thông không khí. Đặc biệt, để khắc phục nhược điểm về độ bền và khả năng chịu ẩm của tường nhà trong không gian hẹp, tấm bê tông đúc sẵn DURAflex là giải pháp lý tưởng. Ngoài ra, việc sử dụng tấm vân gỗ DURAwood trong thiết kế mặt tiền hoặc nội thất không chỉ tăng tính thẩm mỹ mà còn mang lại cảm giác ấm cúng, sang trọng cho ngôi nhà.

Mẫu nhà ống 2 tầng 5x20m đẹp, thiết kế đơn giản, độc đáo (Nguồn: Internet)

Mẫu nhà ống 2 tầng 5x20m đẹp, hiện đại, trang nhã (Nguồn: Internet)

Mẫu nhà 2 tầng đẹp với diện tích 5x20m đầy tiện nghi (Nguồn: Internet)
>> Xem thêm:
Với mặt tiền rộng 6m, ngôi nhà 2 tầng mang phong cách hiện đại là lựa chọn lý tưởng để tối ưu không gian sống và thẩm mỹ. Thiết kế thường tập trung vào các đường nét tinh gọn, màu sắc trang nhã và sự kết hợp hài hòa giữa không gian nội thất và ngoại thất. Đặc biệt, việc sử dụng tấm xi măng DURAflex giúp gia tăng độ bền vững và chịu thấm hiệu quả cho các bề mặt tường, trần nhà.

Trang trí mặt tiền nhà ống đẹp, hiện đại với chiều ngang 6m (Nguồn: Internet)

Mẫu nhà 2 tầng đơn giản mà đẹp với mặt tiền ngang 6m (Nguồn: Internet)

Mẫu nhà 2 tầng đẹp ở nông thôn với mặt tiền ngang 6m (Nguồn: Internet)
>> Xem thêm:
Với chiều rộng 9m, thiết kế mặt tiền có thể tận dụng tối đa không gian để tạo điểm nhấn bằng các đường nét kiến trúc tối giản nhưng tinh tế. Để tăng độ bền và tính thẩm mỹ, nhiều chủ nhà đã lựa chọn tấm xi măng DURAflex làm giải pháp hoàn thiện tường, trần và sàn. Với khả năng chịu nước, chống mối mọt và chịu lực tốt, tấm xi măng DURAflex giúp khắc phục hiệu quả các vấn đề thường gặp trong xây dựng nhà hiện đại, đặc biệt ở những khu vực có khí hậu khắc nghiệt.

Mẫu nhà 2 tầng mặt tiền 9m hiện đại, sang trọng (Nguồn: Internet)

Mẫu thiết kế nhà 2 tầng mặt tiền 9m hiện đại có gara ô tô (Nguồn: Internet)
>> Đọc thêm:
Mẫu nhà 2 tầng mặt tiền 10m là lựa chọn lý tưởng cho những gia đình yêu thích không gian sống thoáng đãng, hiện đại nhưng vẫn đảm bảo sự riêng tư. Với mặt tiền rộng rãi, thiết kế ngôi nhà thường được tối ưu để tận dụng ánh sáng tự nhiên và lưu thông không khí, mang đến môi trường sống thoải mái và dễ chịu. Các phong cách thiết kế phổ biến như hiện đại, tân cổ điển hay tối giản đều có thể áp dụng để tạo điểm nhấn độc đáo cho ngôi nhà. Bên cạnh đó, việc bố trí các khu vực chức năng như phòng khách, phòng bếp, phòng ngủ và sân vườn được sắp xếp hợp lý, tạo nên sự thuận tiện tối đa cho gia đình.

Mẫu nhà 2 tầng đẹp ngang 10m được nhiều gia chủ ưa chuộng hiện nay (Nguồn: Internet)

Mẫu nhà 2 tầng đẹp ngang 10m với không gian rộng rãi, thoáng đãng (Nguồn: Internet)
Với thiết kế vuông vắn, các phòng chức năng được bố trí hợp lý, mẫu nhà 2 tầng đẹp này sẽ mang lại sự thuận tiện trong sinh hoạt hàng ngày. Mặt tiền của mẫu nhà này thường được tối ưu hóa với cửa sổ lớn, tạo cảm giác mở rộng không gian, đồng thời đón ánh sáng tự nhiên vào từng phòng. Nội thất bên trong được thiết kế hiện đại, đơn giản nhưng đầy đủ tiện nghi, đáp ứng nhu cầu sinh hoạt của mọi thành viên trong gia đình.

Mẫu nhà vuông 2 tầng đẹp, hiện đại có diện tích 80m2, đầy đủ công năng (Nguồn: Internet)

Mẫu nhà vuông 2 tầng đẹp ở nông thôn có diện tích 100m2 (Nguồn: Internet)
Mẫu nhà 2 tầng 4 phòng ngủ với diện tích 8x12m hiện đang là sự lựa chọn phổ biến cho các gia đình yêu thích không gian sống thoải mái nhưng không quá rộng lớn. Thiết kế này tận dụng tối đa diện tích đất, với các phòng ngủ rộng rãi, thoáng đãng, phù hợp cho gia đình có nhiều thành viên. Tầng 1 thường được bố trí phòng khách, phòng bếp, phòng ăn và một phòng ngủ nhỏ, tạo sự thuận tiện cho các hoạt động gia đình hàng ngày. Tầng 2 là không gian riêng tư với 3 phòng ngủ, phòng vệ sinh và có thể tích hợp thêm một phòng sinh hoạt chung cho các thành viên trong gia đình.

Mẫu nhà 2 tầng 4 phòng ngủ 8x12 đẹp, hiện đại, đẳng cấp (Nguồn: Internet)

Mẫu 8x12 nhà mái Nhật 2 tầng 4 phòng ngủ, 1 phòng thờ 8 đẹp ở nông thôn với 2 mặt tiền (Nguồn: Internet)
>> Xem thêm:
Mẫu nhà mái bằng 2 tầng đang trở thành xu hướng phổ biến nhờ thiết kế hiện đại và tính tiện dụng cao. Với kết cấu đơn giản, không có quá nhiều chi tiết phức tạp, mẫu nhà này dễ dàng kết hợp với các yếu tố trang trí khác, tạo nên một tổng thể hài hòa và tinh tế. Những ngôi nhà mái bằng 2 tầng không chỉ đáp ứng nhu cầu sinh hoạt mà còn giúp tối ưu hóa chi phí xây dựng và duy trì sự bền vững trong suốt thời gian sử dụng. Sự lựa chọn này mang đến không gian sống thoải mái, đồng thời thể hiện được phong cách hiện đại, phù hợp với xu hướng xây dựng nhà ở hiện nay.

Mẫu nhà 2 tầng đẹp mái bằng chữ L hiện đại, sang trọng (Nguồn: Internet)

Mẫu nhà 2 tầng đẹp mái bằng thiết kế hiện đại, xu hướng (Nguồn: Internet)
>> Xem thêm:
Mẫu nhà 2 tầng mái lệch đang trở thành xu hướng trong thiết kế nhà ở hiện đại nhờ vào tính thẩm mỹ và sự độc đáo mà nó mang lại. Với kiểu mái lệch không đối xứng, ngôi nhà tạo nên vẻ đẹp hiện đại, phá cách và vô cùng ấn tượng. Đồng thời, mẫu nhà 2 tầng đẹp này còn có sự linh hoạt trong thiết kế, có thể dễ dàng phù hợp với nhiều loại diện tích đất khác nhau, từ những mảnh đất nhỏ hẹp đến những khu đất rộng rãi, tạo điều kiện thuận lợi cho gia chủ trong việc bố trí không gian sống.

Mẫu nhà 2 tầng mái lệch đẹp, ấn tượng, độc lạ (Nguồn: Internet)

Mẫu nhà 2 tầng mái lệch đẹp, hiện đại, thu hút từ cái nhìn đầu tiên (Nguồn: Internet)

Mẫu nhà 2 tầng mái lệch đẹp, thiết kế hiện đại, tiện nghi (Nguồn: Internet)
>> Đọc thêm:
Với thiết kế tối giản, không gian mở, mẫu nhà 2 tầng đẹp này mang lại cảm giác thoải mái và thoáng đãng. Mái ngói được lựa chọn tạo điểm nhấn cho tổng thể công trình, đồng thời bảo vệ ngôi nhà khỏi những yếu tố thời tiết khắc nghiệt. Tuy nhiên, nếu không được xây dựng với những vật liệu chất lượng, việc chịu ẩm, giữ nhiệt cho nhà mái ngói sẽ gặp khó khăn. Để khắc phục nhược điểm này, bạn có thể sử dụng tấm xi măng DURAflex để lót mái, giúp tăng cường khả năng chịu nước và chống nóng, bảo vệ ngôi nhà khỏi tác động của thời tiết.

Mẫu nhà 2 tầng mái ngói đẹp, đơn giản (Nguồn: Internet)

Mẫu nhà 2 tầng mái ngói đơn giản, thiết kế lạ mắt (Nguồn: Internet)
Mẫu nhà 2 tầng mái Nhật ngày càng được ưa chuộng nhờ vào sự kết hợp hoàn hảo giữa nét truyền thống và hiện đại. Kiểu mái Nhật với độ dốc vừa phải không chỉ tạo nên vẻ đẹp thanh thoát, mà còn giúp ngôi nhà thoáng mát, dễ chịu trong mọi mùa. Một điểm cần lưu ý khi xây dựng mẫu nhà mái Nhật là việc tạo ra hệ thống thoát nước hiệu quả để tránh tình trạng dột mái. Sử dụng tấm xi măng DURAflex không chỉ giúp gia tăng độ bền cho ngôi nhà mà còn giảm thiểu các rủi ro hư hỏng do tác động của thời tiết.
>> Xem thêm: 50 Mẫu nhà cấp 4 mái Nhật 4 phòng ngủ đẹp, giá rẻ nhất

Mẫu nhà 2 tầng đẹp mái Nhật sang trang (Nguồn: Internet)

Mẫu nhà 2 tầng mái Nhật đẹp, đơn giản mà hiện đại (Nguồn: Internet)

Mẫu nhà 2 tầng mái Nhật 5 phòng ngủ đep ở nông thôn (Nguồn: Internet)

Mẫu nhà mái Nhật 2 tầng đẹp, sang trọng (Nguồn: Internet)

Mẫu nhà 2 tầng mái Nhật hiện đại, thiết kế tinh tế, thẩm mỹ (Nguồn: Internet)
Mẫu nhà mái Thái 2 tầng luôn không chỉ mang lại vẻ đẹp thanh thoát, sang trọng mà còn giúp ngôi nhà trở nên thông thoáng, mát mẻ trong suốt cả năm. Với thiết kế 2 tầng, mẫu nhà mái Thái này mang lại không gian rộng rãi, thoải mái cho các thành viên trong gia đình. Các phòng chức năng được bố trí hợp lý, giúp tận dụng tối đa diện tích sử dụng mà vẫn đảm bảo sự tiện nghi. Đồng thời, những chi tiết tinh tế từ mái nhà cho đến các cửa sổ, ban công làm nổi bật vẻ đẹp ngoại thất, đồng thời tối ưu hóa nguồn ánh sáng tự nhiên cho ngôi nhà.

Mẫu nhà 2 tầng đẹp mái Thái cực kỳ tiện nghi (Nguồn: Internet)

Mẫu nhà 2 tầng mái Thái nông thôn đẹp, tiết kiệm chi phí (Nguồn: Internet)
>> Đọc thêm:
Mẫu nhà 3 gian 2 tầng là sự kết hợp tinh tế giữa phong cách truyền thống và hiện đại. Mẫu nhà này vẫn mang nét đặc trưng của nhà 3 gian cổ xưa nhưng được làm mới bằng những đường nét tối giản, thanh thoát và các vật liệu xây dựng đa năng như tấm xi măng DURAflex hoặc tấm vân gỗ DURAwood. Thiết kế nhà có thể biến hóa đa dạng, nhưng phổ biến nhất vẫn là kiểu nhà 3 gian với mái Nhật hoặc mái Thái, nổi bật nhờ phần chóp nhọn cao vút, tạo nên dáng vẻ bề thế và sang trọng.

Mẫu nhà 3 gian 2 tầng đẹp, hiện đại, ấn tượng hiện nay (Nguồn: Internet)
>> Có thể bạn quan tâm: Báo giá chi phí xây nhà gỗ 3 gian truyền thống chi tiết
Mẫu nhà 2 tầng đẹp với thiết kế sân vườn hiện đại không chỉ mang lại không gian sống lý tưởng mà còn tạo nên một không gian thư giãn đầy ấn tượng. Phong cách hiện đại với sự kết hợp hài hòa giữa thiên nhiên và kiến trúc giúp ngôi nhà trở nên nổi bật và đầy sức sống. Sân vườn rộng rãi, được chăm sóc tỉ mỉ, là nơi lý tưởng để các thành viên trong gia đình quây quần, tận hưởng không khí trong lành và thư giãn sau một ngày dài làm việc.

Mẫu nhà 2 tầng đẹp có sân vườn hiện đại (Nguồn: Internet)

Mẫu nhà 2 tầng đẹp có thiết kế sân vườn thoáng mát (Nguồn: Internet)

Mẫu nhà vườn đẹp 2 tầng rộng rãi, hài hòa với thiên nhiên (Nguồn: Internet)
>> Xem thêm:
Mẫu thiết kế biệt thự 2 tầng đang trở thành sự lựa chọn phổ biến cho các gia đình hiện đại nhờ vào không gian rộng rãi, sang trọng và tính thẩm mỹ cao. Với thiết kế mở, các không gian trong nhà được liên kết hài hòa, tạo cảm giác thoáng đãng và dễ chịu. Phần ngoại thất của nhà villa 2 tầng đẹp thường sử dụng các vật liệu hiện đại như kính cường lực, tấm xi măng vân gỗ DURAwood, kết hợp với mái thái hoặc mái bằng để tạo nên vẻ đẹp thanh thoát, sang trọng. Bên cạnh đó, khuôn viên xung quanh được thiết kế tinh tế với sân vườn, hồ bơi và không gian thư giãn, mang lại một không gian sống lý tưởng cho gia chủ.

Mẫu biệt thự nhà vườn 2 tầng có hồ bơi đẹp, hiện đại, sang trang (Nguồn: Internet)

Mẫu nhà villa 2 tầng đẹp, hiện đại, đẳng cấp, thiết kế xu hướng (Nguồn: Internet)

Mẫu biệt thự mini 2 tầng hiện đại, đẹp có hồ bơi (Nguồn: Internet)

Mẫu biệt thự 2 tầng mái Nhật đẹp, nguy nga, tráng lệ (Nguồn: Internet)
Mẫu nhà 2 tầng đẹp có 2 mặt tiền không chỉ mang lại không gian sống rộng rãi, thoáng mát mà còn tạo sự ấn tượng mạnh mẽ với thiết kế sang trọng và hiện đại. Một trong những điểm mạnh của nhà có 2 mặt tiền là khả năng đón nhận ánh sáng tự nhiên từ nhiều hướng, giúp không gian luôn sáng sủa và thoáng đãng. Ngoài ra, thiết kế này còn dễ dàng tạo ra các phòng chức năng hợp lý, tối ưu hóa diện tích sử dụng mà vẫn đảm bảo tính thẩm mỹ cao. Bên cạnh đó, mẫu nhà này cũng rất phù hợp với những lô đất có góc cạnh hoặc nằm ở các khu phố có lưu lượng giao thông lớn, giúp gia chủ tận dụng tối đa lợi thế về vị trí và không gian.

Mẫu nhà 2 tầng đẹp giá 1 tỷ có 2 mặt tiền với thiết kế hiện đại (Nguồn: Internet)

Mẫu nhà 2 tầng đẹp, sang trọng có 2 mặt tiền (Nguồn: Internet)

Mẫu nhà 2 tầng đẹp giá 800 triệu có 2 mặt tiền với thiết kế ấn tượng (Nguồn: Internet)
>> Tham khảo:
Nhà kính 2 tầng là một không gian sống độc đáo và gần gũi với thiên nhiên. Với thiết kế sử dụng kính, ngôi nhà luôn tràn ngập ánh sáng tự nhiên, tạo cảm giác thoáng mát và dễ chịu. Kiểu nhà này thường được kết hợp với cây xanh để mang đến sự tươi mát. Tuy nhiên, vì mặt tiền làm bằng kính, gia chủ cần lắp rèm che để giảm nhiệt, tăng sự an toàn và đảm bảo tính riêng tư cho gia đình.

Mẫu nhà kính 2 tầng đẹp có không gian mở sang trọng (Nguồn: Internet)

Mẫu nhà kính 2 tầng đẹp với thiết kế rộng rãi, thoáng đãng (Nguồn: Internet)
Mẫu nhà 2 tầng có gara hiện đại đang trở thành xu hướng được nhiều gia đình lựa chọn nhờ sự kết hợp hoàn hảo giữa công năng sử dụng và tính thẩm mỹ cao. Với thiết kế tinh tế, ngôi nhà không chỉ đáp ứng nhu cầu để xe mà còn mang đến không gian sống tiện nghi, thoải mái. Gara rộng rãi nằm ngay tầng trệt, giúp tiết kiệm thời gian di chuyển và đảm bảo sự an toàn cho phương tiện. Bên trên, các phòng sinh hoạt được bố trí hợp lý, mang đến cảm giác thoáng đãng, dễ chịu.

Mẫu nhà 2 tầng có gara hiện đại, tiện nghi (Nguồn: Internet)

Mẫu nhà 2 tầng có gara hiện đại, tối ưu công năng (Nguồn: Internet)

Mẫu nhà 2 tầng có gara hiện đại với mái Thái thanh thoát (Nguồn: Internet)
Sân thượng không chỉ mang lại không gian thư giãn ngoài trời mà còn có thể được thiết kế thành khu vực vườn, nơi gia đình có thể trồng cây hoặc tổ chức tiệc ngoài trời. Với thiết kế này, tầng 2 thường được bố trí các phòng ngủ hoặc phòng làm việc, trong khi tầng trệt là không gian sinh hoạt chung. Một điểm đặc biệt của mẫu nhà 2 tầng đẹp này là sử dụng tấm xi măng DURAflex cho các khu vực quan trọng, giúp tăng cường độ bền, khả năng chịu nước, chống nóng tường nhà và chống nóng sân thượng đặc biệt phù hợp với điều kiện khí hậu của Việt Nam.

Mẫu nhà 2 tầng có sân thượng trồng cây xanh để giúp không gian trong nhà thoáng mát hơn (Nguồn: Internet)

Mẫu nhà 2 tầng có sân thượng đẹp thoáng mát, là nơi thư giãn cho gia đình (Nguồn: Internet)
Mẫu nhà 2 tầng đẹp gác lửng với 3 phòng ngủ đang trở thành xu hướng lựa chọn của nhiều gia đình hiện nay, đặc biệt là những gia đình có diện tích đất hạn chế. Thiết kế nhà gác lửng không chỉ giúp tối ưu hóa không gian mà còn mang lại sự thoáng đãng và hiện đại cho ngôi nhà. Đặc biệt, việc sử dụng tấm xi măng DURAflex làm tấm lót sàn gác lửng không chỉ đảm bảo độ bền chắc mà còn giúp khắc phục những nhược điểm về khả năng chịu lực của sàn gác.

Mẫu nhà gác lửng 3 phòng ngủ 2 tầng đẹp, thiết kế tinh tế, hiện đại (Nguồn: Internet)
>> Tham khảo thêm:
Mẫu nhà 2 tầng đẹp giá 700 triệu đang trở thành lựa chọn phổ biến cho nhiều gia đình hiện nay. Với ngân sách này, bạn có thể sở hữu một ngôi nhà hiện đại, tiện nghi, đáp ứng đầy đủ nhu cầu sử dụng. Thiết kế thường bao gồm 2-3 phòng ngủ, phòng khách rộng rãi, bếp ăn thông minh và khu vực sinh hoạt chung thoải mái. Ngoài ra, kiến trúc sư có thể tận dụng không gian để tạo điểm nhấn với ban công thoáng mát hoặc sân vườn nhỏ, mang lại sự hài hòa giữa không gian sống và thiên nhiên.

Mẫu nhà 2 tầng đẹp giá 700 triệu phong cách sang trọng, thiết kế hài hòa, đẹp mắt (Nguồn: Internet)

Mẫu nhà 2 tầng đẹp giá 700 triệu với thiết kế tinh tế, tối ưu hóa không gian sống (Nguồn: Internet)

Mẫu nhà 2 tầng đẹp giá 700 triệu với thiết kế mái Thái độc đáo (Nguồn: Internet)
Mẫu nhà 2 tầng đẹp giá 1 tỷ hiện đang là sự lựa chọn phổ biến cho các gia đình muốn sở hữu không gian sống tiện nghi, hiện đại mà vẫn đảm bảo ngân sách hợp lý. Với thiết kế thông minh và tinh tế, những ngôi nhà này thường có diện tích vừa phải, nhưng vẫn đầy đủ các phòng chức năng như phòng khách, phòng bếp, phòng ngủ và không gian sinh hoạt chung.
Để đảm bảo độ bền vững và thẩm mỹ cao, tấm xi măng DURAflex được sử dụng trong xây dựng sẽ giúp chịu ẩm tốt, bảo vệ kết cấu công trình lâu dài, đặc biệt là đối với những khu vực tiếp xúc nhiều với nước. Ngoài ra, tấm vân gỗ DURAwood không chỉ mang đến vẻ đẹp tự nhiên, sang trọng mà còn giúp tiết kiệm chi phí bảo trì so với các vật liệu truyền thống. Ngoài ra, nếu gặp phải những yếu tố thời tiết khắc nghiệt, việc sử dụng tấm xi măng DURAflex sẽ giúp khắc phục được tình trạng xuống cấp của công trình, giữ cho ngôi nhà luôn bền đẹp qua thời gian.
>> Xem thêm:

Mẫu nhà 2 tầng đẹp giá 1 tỷ có thiết kế mái lệch hiện đại, độc đáo (Nguồn: Internet)

Mẫu nhà 2 tầng đẹp giá 1 tỷ năm 2026 với thiết kế mái Thái (Nguồn: Internet)

Mẫu nhà 2 tầng giá 1 tỷ đẹp, hiện đại, tinh xảo (Nguồn: Internet)

Mẫu biệt thự tân cổ điển 2 tầng 1 tỷ đẹp, sang trọng (Nguồn: Internet)

Mẫu nhà 2 tầng đẹp giá 1 tỷ ở nông thôn (Nguồn: Internet)
Mẫu nhà này là sự kết hợp giữa nhà ở và nơi kinh doanh. Tầng trệt thường được thiết kế linh hoạt để phục vụ mục đích kinh doanh, có thể là cửa hàng, văn phòng hay nhà hàng. Trong khi đó, tầng trên là khu vực sinh hoạt gia đình, đảm bảo sự ấm cúng và thoải mái. Để phát huy tối đa công năng, mẫu nhà này yêu cầu một bố cục khoa học, vừa tạo sự riêng tư cho không gian sống, vừa đáp ứng hiệu quả cho nhu cầu kinh doanh.

Mẫu nhà 2 tầng kết hợp kinh doanh cho thuê văn phòng (Nguồn: Internet)
>> Các mẫu nhà khác:

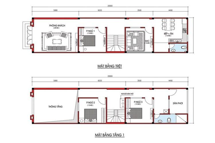
Bản vẽ mẫu nhà ống 2 tầng đẹp, đầy đủ công năng (Nguồn: Internet)

Bản thiết kế nhà 2 tầng đẹp, tiện nghi nhất hiện nay (Nguồn: Internet)

Bản vẽ thiết kế nhà 2 tầng đẹp, chi tiết, dễ hiểu (Nguồn: Internet)
Tấm xi măng DURAflex là sự lựa chọn hoàn hảo cho các công trình xây dựng mẫu nhà 2 tầng đẹp, không chỉ bởi tính thẩm mỹ mà còn bởi những đặc tính vượt trội về chất lượng. Sản phẩm có độ bền cao, khả năng chịu ẩm tốt, giúp bảo vệ ngôi nhà khỏi những tác động của thời tiết xấu. Đặc biệt khi đưa vào hệ vách ngăn, tấm xi măng DURAflex có khả năng cách âm và cách nhiệt hiệu quả, mang đến không gian sống yên tĩnh và mát mẻ ngay cả trong những ngày hè oi ả. Bề mặt tấm xi măng nhẵn mịn giúp dễ dàng trang trí và sơn bả, nâng cao giá trị thẩm mỹ cho ngôi nhà.
Hơn nữa, sản phẩm này không bị mối mọt, cong vênh, đảm bảo độ bền lâu dài dù chịu tác động của thời tiết khắc nghiệt. Với trọng lượng nhẹ, bạn có thể dễ dàng vận chuyển và thi công tấm xi măng DURAflex, từ đó giúp tiết kiệm chi phí nhân công. Đây là giải pháp tối ưu cho những ai mong muốn xây dựng một ngôi nhà 2 tầng đẹp, bền vững mà vẫn tối ưu ngân sách

Vật liệu xây nhà 2 tầng đẹp, tiết kiệm chi phí từ tấm xi măng DURAflex (Nguồn: Internet)
Với những thông tin trên, hy vọng bạn đã có cái nhìn tổng quan về các mẫu nhà 2 tầng đẹp, đơn giản, hiện đại và phù hợp với xu hướng năm 2026. Hãy lựa chọn cho mình một mẫu nhà phù hợp với nhu cầu và sở thích để xây dựng một ngôi nhà mơ ước.
Để có thêm nhiều thông tin về tấm xi măng DURAflex hoặc tấm vân gỗ DURAwood, các quý khách hàng vui lòng liên hệ qua:
>> Có thể bạn quan tâm:
Khám phá thêm về DURAflex
Bài viết liên quan
Đánh giá và nhận xét
Đánh giá trung bình
0/5
5
4
3
2
1
Chia sẻ và nhận xét về bài viết
Chia sẻ và nhận xét về bài viết
Bài viết chưa có đánh giá nào