
DURAflex đăng vào lúc 27/02/2026 - 09:58
Xu hướng thiết kế mẫu nhà 1 trệt 1 lầu 5x20 đang được nhiều gia đình lựa chọn nhờ vào sự tiện nghi và phong cách hiện đại. Với diện tích 5x20m, kiểu nhà này có thể phù hợp với đa dạng phong cách kiến trúc. Bài viết dưới đây, DURAflex sẽ tổng hợp cho bạn những mẫu nhà 1 trệt 1 lầu 5x20 đẹp, hiện đại, giúp bạn dễ dàng lựa chọn thiết kế ưng ý nhất.
Mẫu nhà 1 trệt 1 lầu này có cấu tạo gồm mặt tiền rộng 5m, chiều dài 20m, tổng diện tích sử dụng khoảng 100m², phù hợp với nhu cầu sinh hoạt của gia đình hiện đại. Công trình gồm 2 tầng với cách bố trí khoa học, đảm bảo tối ưu không gian và công năng sử dụng:

Mẫu nhà 1 trệt 1 lầu 5x20 có cấu tạo gồm mặt tiền rộng 5m, chiều dài 20m (Nguồn: Internet)
>> Xem thêm:
Phong cách thiết kế là yếu tố đầu tiên quyết định diện mạo của ngôi nhà 1 trệt 1 lầu 5x20m. Hiện nay có rất nhiều phong cách khác nhau và mỗi phong cách đều mang những đặc trưng riêng biệt. Vì vậy, gia chủ cần xác định rõ định hướng ngay từ đầu để đảm bảo sự đồng bộ trong thiết kế và thi công. Nếu yêu thích sự trẻ trung, tối giản và tiện nghi, bạn có thể lựa chọn phong cách hiện đại. Ngược lại, nếu mong muốn không gian sống sang trọng, cầu kỳ và tinh tế hơn, phong cách cổ điển hoặc tân cổ điển sẽ là lựa chọn đáng cân nhắc.
Sự phù hợp về kinh phí là yếu tố quan trọng cần được tính toán kỹ lưỡng để tránh áp lực tài chính trong quá trình xây dựng. Bạn nên cân nhắc dựa trên các yếu tố sau:
Cùng DURAflex khám phá các mẫu nhà 1 trệt 1 lầu 5x20 hiện đại, được nhiều người ưa chuộng hiện nay sau đây nhé!
Mẫu nhà 1 trệt 1 lầu 5x20 có thiết kế mái Thái mang vẻ đẹp truyền thống nhưng vẫn không kém phần hiện đại, với phần mái dốc cao, thoáng mát. Thiết kế nhà ở này phù hợp với khí hậu Việt Nam, mái Thái không chỉ giúp thoát nước tốt, chống nóng hiệu quả mà còn giúp ngôi nhà nổi bật hơn.
Nhà 1 trệt 1 lầu đẹp 5x20 mái Thái thường sử dụng các vật liệu xây dựng chất lượng cao để đảm bảo tuổi thọ và hiệu suất sử dụng lâu dài. Nổi bật trong đó là tấm xi măng DURAflex Low Carbon - vật liệu thân thiện môi trường với khả năng chịu ẩm, chịu lực vượt trội. Đây là giải pháp bền vững cho các công trình hiện đại, có thể ứng dụng để làm vách ngăn, trần hoặc lót sàn cả trong nhà lẫn ngoài trời, giúp ngôi nhà luôn bền đẹp theo thời gian.

Thiết kế mẫu nhà 1 trệt 1 lầu 5x20 mái Thái đẹp, tiện nghi, ấn tượng (Nguồn: Internet)

Mẫu nhà 1 trệt 1 lầu đẹp 5x20 mái Thái vừa đảm bảo tính thẩm mỹ vừa có độ bền cao (Nguồn: Internet)
>> Tham khảo thêm:
Mẫu nhà 1 trệt 1 lầu đẹp 5x20 mái Nhật thường có thiết kế theo phong cách hiện đại kết hợp với nét mềm mại, tinh tế của kiến trúc Nhật Bản. Phần mái có độ dốc nhẹ, đổ về nhiều phía giúp thoát nước tốt đồng thời tạo sự cân đối cho tổng thể ngôi nhà. Đồng thời, với diện tích 100m2, ngôi nhà mái Nhật này vẫn được bố trí đầy đủ các phòng chức năng.

Mẫu nhà 1 trệt 1 lầu đẹp 5x20 thiết kế mái Nhật có kiểu dáng đơn giản, hiện đại (Nguồn: Internet)

Mẫu nhà 1 trệt 1 lầu đẹp 5x20 mái Nhật phổ biến ở nông thôn đẹp, hiện đại (Nguồn: Internet)
>> Đọc thêm:
Mẫu nhà 1 trệt 1 lầu 5x20 mái bằng nổi bật với phong cách hiện đại với kiến trúc đơn giản nhưng vẫn toát lên sự tinh tế và sang trọng. Thiết kế ngôi nhà thường có các đường nét tối giản, sử dụng hệ thống cửa kính lớn giúp tối ưu ánh sáng tự nhiên. Bên cạnh đó, kiểu mái bằng phẳng mịn, không chỉ mang lại vẻ ngoài thanh lịch mà còn giúp gia chủ tiết kiệm chi phí xây dựng, đồng thời dễ dàng cải tạo hoặc tận dụng làm sân thượng trong tương lai.

Mẫu nhà 1 trệt 1 lầu 5x20 mái bằng là kiểu thiết kế hiện đại, tối giản (Nguồn: Internet)

Mẫu nhà nhà 1 trệt 1 lầu 5x20 mái bằng mang đến vẻ đẹp hiện đại, sang trọng (Nguồn: Internet)
>> Đọc thêm:
Mẫu nhà 1 trệt 1 lầu 5x20 mái lệch nổi bật với kiến trúc độc đáo, hiện đại thể hiện dấu ấn riêng của gia chủ. Phần mái lệch không chỉ tăng tính thẩm mỹ mà còn hỗ trợ thoát nước tốt, hạn chế đọng nước trên mái phù hợp với những vùng có mưa nhiều. Thiết kế ngôi nhà thường bố trí hệ cửa kính lớn, giúp không gian bên trong luôn thông thoáng và ngập tràn ánh sáng tự nhiên.

Mẫu nhà 1 trệt 1 lầu đẹp 5x20 mái lệch có thiết kế hiện đại, độc đáo (Nguồn: Internet)

Ngôi nhà mái lệch tạo hiệu ứng thị giác mạnh, mang đến vẻ cá tính, hiện đại cho ngôi nhà (Nguồn: Internet)
>> Đọc thêm:
Phong cách Châu Âu với mái nhọn cao toát lên vẻ đẹp uy nghi, đẳng cấp khiến mẫu nhà 1 trệt 1 lầu 5x20 này đang được nhiều người yêu thích và lựa chọn thiết cho không gian sống. Thiết kế này không chỉ gây ấn tượng mạnh về thị giác mà còn thể hiện gu thẩm mỹ tinh tế của gia chủ. Từng đường nét trong cấu trúc mái nhọn góp phần tôn lên vẻ đẹp thanh lịch, đồng thời tạo sự thông thoáng cho không gian bên trong. Tuỳ vào loại ngói sử dụng, mỗi công trình sẽ có một phong cách riêng, từ hiện đại, cổ điển cho đến độc đáo, mới lạ.

Mẫu nhà 1 trệt 1 lầu đẹp 5x20 mái nhọn đẹp mắt, ấn tượng (Nguồn: Internet)

Mẫu nhà 1 trệt 1 lầu 5x20 thiết kế mái nhọn toát vẻ ngoài thanh thoát, cao ráo (Nguồn: Internet)
>> Xem thêm ngay:
Với lợi thế hai mặt tiền, ngôi nhà 5x20 tận dụng lợi thế vị trí góc, ánh sáng tự nhiên và gió tăng độ thoáng và thẩm mỹ. Thiết kế này rất phù hợp các lô đất góc, đồng thời tạo điều kiện cho việc kinh doanh hoặc cho thuê mặt bằng.
Mặt tiền nhà có thể ốp tường trang trí bằng tấm cemboard DURAflex, vừa tăng độ bền bỉ trước thời tiết khắc nghiệt, vừa nâng tầm vẻ đẹp hiện đại. Bên trong, ngôi nhà được bố trí hợp lý với không gian mở, bao gồm đầy đủ các phòng chức năng đảm bảo nhu cầu sinh hoạt cho tất cả các thành viên trong gia đình.

Mẫu nhà 1 trệt 1 lầu 5x20 có 2 mặt tiền sang trọng, đầy đủ tiện nghi (Nguồn: Internet)

Ngôi nhà 1 trệt 1 lầu 5x20 có 2 mặt tiền đẹp, xu hướng 2026 (Nguồn: Internet)
>> Xem thêm:
Ngôi nhà 1 trệt 1 lầu 5×20 thiết kế theo phong cách hiện đại được xây dựng với bố cục tối ưu, tập trung vào sự đơn giản và tiện nghi. Tầng trệt thường tích hợp phòng khách rộng mở, nối liền khu vực bếp và bàn ăn hiện đại, cùng một nhà vệ sinh nhỏ gọn. Tầng lầu bố trí từ 2-3 phòng ngủ thoải mái, kết hợp ban công lớn để tận dụng ánh sáng tự nhiên. Điểm nhấn của thiết kế nhà ở này là sử dụng các màu sắc trung tính phối hợp cùng việc sử dụng các vật liệu như kính, thép và tấm bê tông nhẹ cemboard DURAflex làm tường - sàn - vách - lót mái, tạo nên vẻ ngoài sang trọng, tinh tế.

Mẫu nhà 1 trệt 1 lầu 5×20 thiết kế theo phong cách hiện đại đang được nhiều gia chủ yêu thích (Nguồn: Internet)

Mẫu nhà 1 trệt 1 lầu 5×20 với thiết kế đề cao giá trị thẩm mỹ và sự tiện nghi (Nguồn: Internet)
>> Xem thêm:
Với những ai yêu thích nét đẹp sang trọng mà không kém phần tinh tế, mẫu nhà 1 trệt 1 lầu 5x20 theo phong cách tân cổ điển chính là lựa chọn hoàn hảo. Thiết kế này nổi bật với hệ phào chỉ tinh xảo, các họa tiết trang trí cân đối cùng màu sắc trang nhã tạo nên vẻ đẹp quý phái. Không gian nội thất được bố trí khoa học với tầng trệt dành cho sinh hoạt chung và tầng lầu bố trí phòng ngủ riêng tư, đảm bảo sự tiện nghi tối đa cho gia đình. Đặc biệt, mẫu nhà này không chỉ mang lại giá trị thẩm mỹ cao mà còn khẳng định đẳng cấp và gu sống tinh tế của chủ nhân. Sự hài hòa giữa nét cổ điển châu Âu và tiện nghi hiện đại tạo nên một tổ ấm đầy đủ tiện nghi mà vẫn giữ được nét duyên dáng, thanh lịch.

Mẫu nhà 1 trệt 1 lầu 5x20 theo phong cách tân cổ điển tinh tế, đẳng cấp (Nguồn: Internet)

Mẫu nhà 1 trệt 1 lầu 5x20 sử dụng các gam màu trung tính nhằm tôn lên vẻ đẹp hiện đại, sang trọng (Nguồn: Internet)
>>> Xem thêm:
Thiết kế mẫu nhà 1 trệt 1 lầu 5x20 phong cách Địa Trung Hải kết hợp gác lửng là xu hướng thiết kế được ưa chuộng trong những năm gần đây. Ngôi nhà thường sử dụng tông màu trắng chủ đạo kết hợp với xanh lam hoặc vàng đất - đặc trưng của phong cách Địa Trung Hải. Tầng trệt được bố trí phòng khách rộng rãi, bếp ăn mở và WC. Gác lửng thường được thiết kế làm phòng làm việc hoặc phòng ngủ phụ, tận dụng triệt để không gian theo chiều cao.
Vật liệu xây dựng thường sử dụng cho kiểu nhà này đó là sản phẩm tấm xi măng DURAflex Low Carbon cho tường và sàn gác lửng để đảm bảo độ bền, chịu ẩm tốt trong điều kiện khí hậu nhiệt đới. Hệ thống cửa sổ lớn bằng kính cường lực cũng giúp tận dụng tối đa ánh sáng tự nhiên, tạo không gian sống thoáng đãng dù diện tích hạn chế.

Mẫu nhà 1 trệt 1 lầu 5x20 phong cách Địa Trung Hải kết hợp gác lửng đẹp mắt (Nguồn: Internet)

Mẫu nhà 1 trệt 1 lầu 5x20 có gác lửng giúp ngôi nhà tạo thêm không gian (Nguồn: Internet)
>> Xem thêm:
Mẫu nhà 1 trệt 1 lầu 5x20 phong cách Indochine là lựa chọn lý tưởng cho những ai yêu thích sự giao thoa giữa nét đẹp truyền thống Á Đông và vẻ sang trọng, tinh tế của kiến trúc Pháp. Thiết kế này thường nổi bật với mái ngói dốc, hệ cửa gỗ cao thoáng, cùng các chi tiết trang trí mềm mại như họa tiết hình quạt, gạch bông cổ điển hay nội thất bằng mây tre đan.

Mẫu nhà 1 trệt 1 lầu 5x20 phong cách Indochine có bể bơi đẹp, tinh tế, nổi bật (Nguồn: Internet)

Mẫu thiết kế biệt thự 1 trệt 1 lầu 5x20 phong cách Indochine sang trọng hiện nay (Nguồn: Internet)
>>> Tìm hiểu thêm:
Thiết kế mẫu nhà 1 trệt 1 lầu 5x20 tích hợp gara trong khuôn viên nhà đang ngày càng được ưa chuộng nhờ tính tiện nghi cao. Gara thường được bố trí ngay tầng trệt, thuận tiện cho việc đỗ xe và di chuyển hàng ngày, đồng thời giúp xe tránh khỏi nắng mưa, bụi bẩn từ môi trường bên ngoài. Thiết kế mẫu nhà này phù hợp với các gia đình có xe hơi, tối ưu không gian.

Thiết kế nhà 1 trệt 1 lầu đẹp 5x20 có gara hiện đại, tiện lợi (Nguồn: Internet)

Gara được bố trí ngay tầng trệt, thuận tiện cho việc đỗ xe và di chuyển hàng ngày (Nguồn: Internet)
Mẫu nhà 1 trệt 1 lầu 5x20 có 3 phòng ngủ được thiết kế tối ưu để đáp ứng nhu cầu sinh hoạt của gia đình 4-5 thành viên. Với diện tích 5x20m, tầng trệt thường được bố trí phòng khách cùng khu vực bếp liên thông với phòng ăn tạo nên không gian sinh hoạt rộng rãi. Tầng lầu được bố trí 3 phòng ngủ riêng biệt, trong đó phòng ngủ chính có thể tích hợp nhà vệ sinh riêng. Cầu thang được đặt gọn gàng ở góc nhà, đảm bảo sự thuận tiện khi di chuyển giữa các tầng mà không chiếm quá nhiều diện tích. Thiết kế này không chỉ mang lại sự thoải mái mà còn tận dụng hiệu quả không gian, phù hợp với xu hướng nhà phố.

Mẫu nhà 1 trệt 1 lầu 5x20 có 3 phòng ngủ đầy đủ tiện nghi (Nguồn: Internet)

Mẫu nhà 1 trệt 1 lầu 5x20 có 3 phòng ngủ đáp ứng của các gia đình đông thành viên (Nguồn: Internet)
>> Xem thêm:
Thiết kế nhà mặt tiền 1 trệt 1 lầu 5x20 với 3 phòng ngủ và 1 phòng thờ là sự kết hợp hài hòa giữa tính thẩm mỹ và công năng sử dụng. Với chiều ngang 5m, kiến trúc thường áp dụng phong cách hiện đại hoặc tân cổ điển, phòng thờ thường đặt ở vị trí cao nhất, yên tĩnh, kết hợp với các chi tiết phong thủy để mang lại sự trang nghiêm và hài hòa cho tổng thể ngôi nhà. Thiết kế này không chỉ đáp ứng nhu cầu sinh hoạt của gia đình có 3-4 thành viên sinh sống mà còn mang lại vẻ đẹp ấn tượng, thu hút.

Mặt tiền nhà 1 trệt 1 lầu 5x20 3 phòng ngủ, 1 phòng thờ đẹp, nội thất hiện đại (Nguồn: Internet)

Mẫu mẫu nhà 1 trệt 1 lầu 5x20 đẹp, đầy đủ công năng với 3 phòng ngủ, 1 phòng thờ (Nguồn: Internet)
Thiết kế mẫu nhà 1 trệt 1 lầu 5x20 4 phòng ngủ là giải pháp hoàn hảo cho các gia đình có đông thành viên hoặc có nhiều thế hệ cùng chung sống. Các phòng chức năng của ngôi nhà được bố trí một cách hài hòa giữa các khu vực sinh hoạt chung và riêng. Tầng trệt bao gồm phòng khách, phòng bếp, nhà vệ sinh và một phòng ngủ. Trong khi tầng lầu được bố trí 3 phòng ngủ riêng biệt đảm bảo sự riêng tư cho từng thành viên. Đặc biệt, thiết kế mở giữa phòng khách và phòng bếp giúp không gian trở nên rộng rãi, thoáng đãng, tạo cảm giác dễ chịu và tiện nghi cho các thành viên trong gia đình.

Mẫu nhà 1 trệt 1 lầu 5x20 4 phòng ngủ phù hợp cho các gia đình 4 - 5 thành viên (Nguồn: Internet)

Mẫu nhà 1 trệt 1 lầu 5x20 4 phòng ngủ được bố trí không gian hợp lý để tránh cảm giác chật chội (Nguồn: Internet)

Mẫu nhà 1 trệt 1 lầu 5x20 4 phòng ngủ với thiết kế không gian mở ấn tượng (Nguồn: Internet)
>> Tham khảo:
Mẫu nhà 1 trệt 1 lửng 1 lầu kích thước 5x20 được thiết kế nhằm tối ưu hóa diện tích sử dụng. Tầng lửng được bố trí khéo léo làm phòng ngủ, phòng sinh hoạt chung hoặc góc làm việc tùy theo nhu cầu gia đình. Việc tạo thêm tầng lửng không chỉ mở rộng công năng mà còn tiết kiệm chi phí xây dựng, đồng thời không làm thay đổi kết cấu tổng thể ngôi nhà. Mẫu nhà này đặc biệt phù hợp với các gia đình trẻ muốn có thêm không gian mà không cần xây thêm tầng.

Mẫu nhà 1 trệt 1 lầu 5x20 đẹp, giá rẻ, tiện nghi (Nguồn: Internet)

Mẫu nhà 1 trệt 1 lửng 1 lầu 5x20 đẹp, thiết kế ấn tượng (Nguồn: Internet)
>> Tham khảo thêm:
Mẫu nhà 1 trệt 1 lầu kết hợp tầng tum 5x20m giải pháp tối ưu cho các gia đình cần thêm diện tích sinh hoạt mà vẫn tiết kiệm chi phí xây dựng. Tầng tum được tận dụng linh hoạt làm phòng thờ, khu giặt hoặc sân phơi. Để đảm bảo công năng sử dụng lâu dài, khu vực này cần được bố trí khoa học, chú trọng yếu tố an toàn và thông thoáng. Vật liệu xây dựng nên sử dụng tấm xi măng DURAflex Low Carbon có độ dày 12mm - 20mm, đây là giải pháp vật liệu xanh ưu việt cho sàn tum, vừa đảm bảo độ bền chắc tương đương bê tông truyền thống, vừa giảm 30% tải trọng công trình so với vật liệu thông thường.

Mẫu thiết kế xây nhà 1 trệt 1 lầu 5x20 rộng rãi (Nguồn: Internet)

Thiết kế tạo nên không gian thông thoáng, gần gũi với thiên nhiên (Nguồn: Internet)
Mẫu nhà 1 trệt 1 lầu 5x20 kết hợp sân thượng đang được nhiều gia đình trẻ lựa chọn nhờ thiết kế hiện đại, tối ưu công năng và tạo không gian sống thoáng đãng. Với mặt tiền 5m và chiều sâu 20m, ngôi nhà dễ dàng bố trí phòng khách, bếp, phòng ngủ và nhà vệ sinh hợp lý ở tầng trệt. Tầng lầu thường được thiết kế với 2-3 phòng ngủ và khu sinh hoạt chung. Đặc biệt, phần sân thượng phía trên là điểm nhấn ấn tượng, phù hợp để thiết kế sân vườn, khu tiệc BBQ hoặc không gian thư giãn riêng tư. Đây là mẫu nhà lý tưởng cho gia đình từ 3-5 người, đáp ứng tốt nhu cầu sinh hoạt lẫn nghỉ ngơi trong không gian hiện đại, gần gũi thiên nhiên.

Mẫu nhà 1 trệt 1 lầu 5x20 kết hợp sân thượng tiện nghi, tạo thêm điểm nhấn ấn tượng (Nguồn: Internet)

Mẫu nhà 1 trệt 1 lầu 5x20 có tum kết hợp sân thượng đẹp, tạo không gian thoáng mát và tiện nghi (Nguồn: Internet)
>>> Xem thêm:
Mẫu nhà 1 trệt 1 lầu 5x20 với thiết kế không gian xanh đang trở thành lựa chọn lý tưởng cho những gia đình yêu thích sự gần gũi thiên nhiên trong không gian sống hiện đại. Với diện tích 100m², kiến trúc sư đã khéo léo bố trí tiểu cảnh sân vườn hoặc nhà chòi sân vườn trước và sau nhà, kết hợp cây xanh dọc ban công và giếng trời thông thoáng ở giữa nhà, giúp tối ưu ánh sáng tự nhiên và tạo cảm giác mát mẻ quanh năm. Không gian bên trong được thiết kế mở, liền mạch giữa phòng khách, bếp và khu sinh hoạt chung, vừa tiết kiệm diện tích vừa tăng sự kết nối giữa các thành viên trong gia đình.

Mẫu nhà 1 trệt 1 lầu 5x20 với thiết kế không gian xanh đẹp, gần gũi với thiên nhiên (Nguồn: Internet)

Mẫu nhà 1 trệt 1 lầu 5x20 với thiết kế không gian xanh giúp tối ưu ánh sáng tự nhiên và tạo cảm giác mát mẻ quanh năm (Nguồn: Internet)
>> Xem thêm: 50+ Mẫu nhà vườn nhỏ đẹp, đơn giản, giá rẻ, gần gũi thiên nhiên
Xây nhà 1 trệt 1 lầu với ngân sách khoảng 500 triệu đang trở thành lựa chọn hàng đầu của nhiều gia đình nhờ mức đầu tư hợp lý mà vẫn đáp ứng đầy đủ nhu cầu sinh hoạt. Ưu điểm nổi bật của mẫu nhà này là khả năng bố trí không gian khoa học, đẹp mắt phù hợp với nhiều lô đất hình dạng khác nhau như hình ống, hình vuông hay chữ L. Với kiến trúc đơn giản, không quá cầu kỳ nhưng vẫn đảm bảo tính thẩm mỹ, nhà 1 trệt 1 lầu 500 triệu 5x20 có thể thiết kế từ 3 đến 4 phòng ngủ, đáp ứng đầy đủ nhu cầu sinh hoạt của gia đình đông thành viên.

Xây nhà 1 trệt 1 lầu 500 triệu 5x20 đẹp, đầy đủ tiện nghi (Nguồn: Internet)

Xây nhà 1 trệt 1 lầu 500 triệu 5x20 với không gian rộng rãi, thông thoáng (Nguồn: Internet)
>> Xem tham khảo:
Mẫu nhà 1 trệt 1 lầu giá dưới 1 tỷ 5x20 là thiết kế nhà ở đang được gia đình trẻ ở thành thị quan tâm. Không gian ngôi nhà được bố trí khu vực sinh hoạt chung, phòng bếp và phòng ăn ở tầng trệt; trong khi tầng lầu bố trí phòng ngủ để nghỉ ngơi, thư giãn. Gia chủ có thể linh hoạt phân chia các phòng theo nhu cầu sử dụng thực tế và sở thích từng thành viên. Kiểu nhà này phù hợp với nhiều loại diện tích đất, với thiết kế đa dạng, đây chính là lựa chọn lý tưởng cho những ai đang tìm kiếm không gian sống tiện nghi, sang trọng.

Mẫu nhà 1 trệt 1 lầu giá dưới 1 tỷ 5x20 đẹp, thiết kế gần gũi với thiên nhiên (Nguồn: Internet)

Mẫu nhà 1 trệt 1 lầu 5x20 đẹp, hiện đại hợp xu hướng với ngân sách dưới 1 tỷ (Nguồn: Internet)
>> Tham khảo ngay:
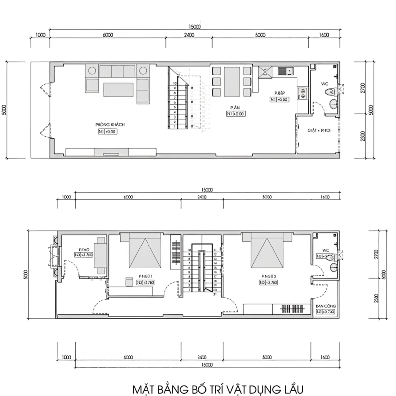
Bản vẽ nhà 1 trệt 1 lầu 5x20 được thiết kế khoa học, tối ưu hóa từng mét vuông để mang lại không gian sống tiện nghi và thoải mái. Dưới đây là các bản vẽ nhà 1 trệt 1 lầu 5x20 phổ biến hiện nay:

Bản vẽ mẫu nhà 1 trệt 1 lầu 5x20 đep, đầy đủ tiện nghi (Nguồn: Internet)

Tham khảo bản vẽ thiết kế nhà 1 trệt 1 lầu 5x20m (Nguồn: Internet)
>> Xem thêm:
Với diện tích mặt tiền 5m và chiều sâu 20m, gia chủ cần cân nhắc nhiều yếu tố để đảm bảo không gian sống tiện nghi, thoải mái và bền đẹp lâu dài. Dưới đây là những lưu ý quan trọng mà bạn nên tham khảo trước khi bắt đầu xây dựng:

Khi thiết kế nhà 1 trệt 1 lầu 5x20, cần đảm bảo thông thoáng và bố trí nội thất hợp lý (Nguồn: Internet)
>> Xem thêm: 35+ Mẫu nhà ống đẹp 3 tầng 5m được yêu thích nhất 2026
Chi phí để xây dựng mẫu nhà 1 trệt 1 lầu 5x20m là mối quan tâm hàng đầu của nhiều gia chủ hiện nay. Tuy nhiên, mức chi phí này không cố định mà phụ thuộc theo nhiều yếu tố như thiết kế, vị trí xây dựng, chất lượng vật liệu, nội thất và yêu cầu kỹ thuật. Thông thường, tổng chi phí xây dựng trọn gói dao động từ 1 tỷ đến 2 tỷ đồng.
Dưới đây là các hạng mục chi phí cơ bản bạn có thể tham khảo:
Lưu ý: Đây chỉ là mức chi phí dự trù, giá xây dựng thực tế còn tùy khu vực và thời điểm. Để biết được chi phí chính xác nhất gia chủ nên lên hệ với nhà thầu để được tư vấn và nhận báo giá chi tiết.
>> Đọc thêm: Chi phí xây nhà cấp 4 trọn gói, mới nhất 2026 là bao nhiêu?

Gia chủ nên tính toán để dự trù ngân sách xây dựng nhà 1 trệt 1 lầu 5x20 phù hợp (Nguồn: Internet)
Trên đây là tổng hợp các mẫu nhà 1 trệt 1 lầu 5x20 đẹp, hiện đại và xu hướng nhất năm 2026. Hy vọng qua bài viết, bạn sẽ lựa chọn được thiết kế phù hợp với nhu cầu và phong cách sống của gia đình. Nếu cần tư vấn về các sản phẩm tấm xi măng của DURAflex, đừng ngần ngại liên hệ với chúng tôi qua:
Đánh giá và nhận xét
Đánh giá trung bình
0/5
5
4
3
2
1
Chia sẻ và nhận xét về bài viết
Chia sẻ và nhận xét về bài viết
Bài viết chưa có đánh giá nào