
DURAflex đăng vào lúc 18/12/2025 - 17:00
Biệt thự mini là xu hướng thiết kế nhà ở được nhiều người yêu thích trong những năm gần đây. Dù không quá rộng rãi như những mẫu biệt thự cao cấp, nhưng biệt thự mini vẫn mang đến không gian sống sang trọng, tiện nghi. Trong bài viết dưới đây, hãy cùng DURAflex khám phá bộ các mẫu biệt thự mini đẹp, ấn tượng và những lưu ý thiết kế đáng tham khảo trong năm 2026
Biệt thự mini tân cổ điển mang vẻ đẹp sang trọng với các chi tiết hoa văn tinh tế, cột trụ cân đối, mái vòm nhẹ nhàng, và màu sắc nhã nhặn như trắng, kem, vàng đồng. Nội thất bên trong được bố trí khoa học, mang lại không gian sống ấm cúng và tiện nghi. Đây luôn là lựa chọn hàng đầu dành cho những ai muốn sở hữu một ngôi nhà hiện đại, sang trọng dù diện tích không quá lớn.

Mẫu biệt thự mini phong cách tân cổ điển thanh lịch, sang trọng sử dụng màu chủ đạo như trắng, vàng, nâu (Nguồn: Internet)

Thiết kế biệt thự tân cổ điển 2 tầng 1 tỷ mini tinh tế, chú trọng tiểu tiết, có tính thẩm mỹ cao (Nguồn: Internet)
>> Xem thêm:
Biệt thự mini theo phong cách hiện đại mang đến vẻ đẹp trẻ trung, tối giản nhưng vẫn nổi bật nét cá tính riêng. Với kiến trúc tập trung vào công năng sử dụng sử dụng các đường nét vuông vắn, cửa kính lớn tạo nên không gian mở. Ưu điểm của mẫu nhà này là phù hợp với nhiều loại diện tích, thi công nhanh và tiết kiệm chi phí hơn so với các phong cách cầu kỳ khác. Màu sắc chủ đạo như trắng, xám, đen hoặc các tông trung tính giúp biệt thự mini hiện đại nổi bật với sự thanh lịch.
Để xây dựng biệt thự mini bền đẹp theo thời gian, nhiều gia chủ ưu tiên sử dụng các vật liệu xây dựng bền vững như tấm xi măng DURAflex Low Carbon. Sản phẩm được sản xuất bằng công nghệ chưng áp độc quyền, với độ chịu lực và tải trọng cao, mang đến khả năng chống cháy, cách nhiệt chống nóng, cách âm và chịu ẩm vượt trội, bền bỉ trước mọi thời tiết.

Mẫu biệt thự mini theo phong cách hiện đại, tối giản (Nguồn: Internet)

Thiết kế biệt thự mini đẹp, hợp xu hướng 2026 (Nguồn: Internet)

Mẫu biệt thự mini thiết kế không gian mở, giúp đón gió và ánh sáng tự nhiên (Nguồn: Internet)
>> Tham khảo thêm:
Mẫu biệt thự mini được thiết kế phong cách Nhật Bản đang trở thành xu hướng trong các công trình nhà ở hiện đại nhờ vẻ đẹp tối giản, tinh tế nhưng vẫn đầy đủ tiện nghi. Không gian ngôi nhà thường mở rộng ra bên ngoài với sân vườn nhỏ, hồ cá, lối đi lát đá, giúp tạo sự kết nối giữa con người và thiên nhiên.

Mẫu biệt thự mini được thiết kế phong cách Nhật Bản đẹp, đơn giản (Nguồn: Internet)

Mẫu biệt thự mini phong cách Nhật Bản mang đến vẻ đẹp hài hòa, gần gũi (Nguồn: Internet)

Mẫu biệt thự mini phong cách Nhật Bản phù hợp với những ai yêu thích lối sống đơn giản, gần gũi thiên nhiên (Nguồn: Internet)
>> Đọc thêm:
Biệt thự mini phong cách Địa Trung Hải được thiết kế với khu vực sinh hoạt chung ấm cúng, bao gồm phòng khách, phòng thờ, bếp và phòng ăn - tất cả đều hướng tầm nhìn ra sân vườn xanh mát. Điểm nhấn là sự kết nối liền mạch giữa phòng khách và bếp, để tạo nên một không gian mở, thuận tiện cho sinh hoạt hàng ngày. Không gian chung được bố trí rộng rãi, trở thành nơi sum vầy lý tưởng cho cả gia đình.

Mẫu biệt thự mini nhà 2 tầng 4 phòng ngủ dưới 1 tỷ phong cách Địa Trung Hải đẹp, thoáng đãng (Nguồn: Internet)

Biệt thự mini kiểu Địa Trung Hải với vẻ đẹp nổi bật và thu hút (Nguồn: Internet)

Mẫu biệt thự mini phong cách Địa Trung Hải đẹp nhẹ nhàng, tinh tế (Nguồn: Internet)
>> Có thể bạn sẽ quan tâm:
Biệt thự mini phong cách kiểu Pháp mang đến vẻ đẹp lãng mạn, tinh tế nhưng vẫn toát lên sự sang trọng, ấn tượng. Kiến trúc này phù hợp với những gia chủ yêu thích sự chỉn chu, đòi hỏi cao về tính thẩm mỹ thông qua từng chi tiết thiết kế. Biệt thự kiểu Pháp thường sử dụng các tông trung tính như trắng, kem, be kết hợp cùng những chi tiết trang trí nổi bật như phào chỉ, hoa văn phù điêu, lan can sắt nghệ thuật hay cột trụ cổ điển. Đặc biệt, phần mái mansard cong nhẹ là dấu ấn quen thuộc trong các công trình mang âm hưởng Pháp.

Biệt thự mini phong cách kiểu Pháp là sự kết hợp hoàn hảo giữa vẻ đẹp tinh tế, lãng mạn (Nguồn: Internet)

Thiết kế biệt thự mini sử dụng màu trắng chủ đạo tạo nên vẻ ngoài đậm chất châu Âu (Nguồn: Internet)
>> Đọc thêm:
Mẫu nhà vườn biệt thự mini đẹp được thiết kế hài hòa giữa kiến trúc hiện đại và không gian xanh, tạo nên môi trường sống trong lành, thư thái. Khuôn viên sân vườn được bố trí linh hoạt quanh nhà, có thể nằm phía trước, bên hông hoặc bao trọn công trình, tùy theo diện tích đất và phong thủy. Bên cạnh đó gia chủ có thể linh hoạt tích hợp thêm nhiều tiện ích như hồ bơi, tiểu cảnh, khu nướng BBQ, khu sinh hoạt ngoài trời hay gara để xe.

Mẫu biệt thự mini có thiết kế sân vườn đẹp, xanh mát (Nguồn: Internet)

Thiết kế biệt thự nhà vườn mini theo xu hướng gần gũi với thiên nhiên đang được nhiều gia chủ quan tâm (Nguồn: Internet)
>> Xem thêm:
Biệt thự mini cấp 4 là mẫu nhà được thiết kế theo kiểu một tầng, phù hợp với các gia đình nhỏ từ nông thôn đến thành thị. Mẫu biệt thự này được thiết kế theo kết cấu một tầng, đảm bảo không gian sinh hoạt rộng rãi, tiện nghi và dễ dàng di chuyển - đặc biệt phù hợp với gia đình có người lớn tuổi hoặc trẻ nhỏ. Với mức chi phí xây dựng hợp lý, biệt thự mini cấp 4 không chỉ đáp ứng đầy đủ tiện nghi, mà còn mang đến không gian sống gần gũi, thư thái.

Mẫu biệt thự mini cấp 4 bố trí gọn gàng, tối ưu không gian sống (Nguồn: Internet)

Biệt thự mini cấp 4 đẹp ở nông thôn, đầy đủ tiện nghi (Nguồn: Internet)
>> Tham khảo thêm:
Biệt thự mini 1 tầng mang đến không gian sống tiện nghi với chi phí xây dựng tiết kiệm và thời gian thi công nhanh chóng. Với thiết kế bố trí toàn bộ không gian trên một mặt bằng, mẫu nhà này thường gồm từ 1 đến 2 phòng ngủ, đảm bảo sự thông thoáng, tiện nghi và dễ dàng di chuyển giữa các phòng. Bên cạnh đó, biệt thự mini 1 tầng còn được đánh giá cao về độ an toàn, cực kỳ phù hợp cho những gia đình có người lớn tuổi hoặc trẻ nhỏ sinh sống, tạo nên không gian sống chất lượng và thoải mái.

Biệt thự mini 1 tầng hiện đại, sang trọng (Nguồn: Internet)

Thiết kế biệt thự mini cấp 4 hướng đến sự tối giản, đáp ứng đầy đủ công năng (Nguồn: Internet)
Theo xu hướng thiết kế nhà ở hiện nay, mẫu biệt thự mini 2 tầng là lựa chọn được nhiều gia đình ưu tiên nhờ tính linh hoạt trong thiết kế và khả năng đáp ứng nhu cầu sinh hoạt cho gia đình có từ 4-6 thành viên. Mẫu nhà này không chỉ linh hoạt trong phong cách kiến trúc mà còn toát lên vẻ đẹp bề thế, đẳng cấp.
Về công năng, tầng 1 thường được bố trí các không gian sinh hoạt chung như phòng khách, bếp và khu vực ăn uống. Trong khi đó, tầng 2 được sắp xếp thành khu vực nghỉ ngơi với các phòng ngủ riêng biệt, đảm bảo sự yên tĩnh và riêng tư.

Mẫu biệt thự mini 2 tầng có thiết kế kiến trúc nhỏ gọn nhưng ấn tượng (Nguồn: Internet)

Mẫu nhà chữ L kiểu biệt thự mini 2 tầng tinh tế, thu hút ngay từ ánh nhìn đầu tiên (Nguồn: Internet)
>> Đọc thêm:
Với những gia đình đông thành viên, nhiều thế hệ cùng chung sống mong muốn thiết kế một ngôi nhà có nhiều phòng chức năng thì biệt thự mini 3 tầng là lựa chọn tối ưu. Thiết kế cao tầng giúp tối ưu diện tích đặc biệt ở những lô đất hẹp, mà vẫn bố trí đầy đủ không gian sinh hoạt như phòng thờ, phòng làm việc, phòng sinh hoạt chung hay khu giải trí.
Để đảm bảo công trình biệt thự mini 3 tầng tốt nhất, việc lựa chọn vật liệu thi công chất lượng là điều vô cùng quan trọng. Trong đó, tấm cemboard DURAflex Low Carbon là lựa chọn tối ưu với khả năng bền chắc, chịu ẩm tốt, chống cháy, đồng thời sở hữu bề mặt phẳng mịn và độ an toàn cao cho sức khỏe, giúp gia chủ yên tâm thi công và sử dụng lâu dài.

Mẫu biệt thự mini 3 tầng rộng rãi, tối ưu diện tích (Nguồn: Internet)

Không gian biệt thự mini 3 tầng được bố trí khoa học, hợp lý (Nguồn: Internet)
Biệt thự mini 7x15m là thiết kế dành cho những lô đất nhỏ mang đến không gian sống hiện đại và có giá trị thẩm mỹ cao. Ngôi nhà thường được bố trí 1-2 tầng, với cửa kính lớn, màu sắc trung tính như trắng, xám, tạo cảm giác rộng rãi. Tầng 1 thường bao gồm phòng khách liền bếp, 1 phòng ngủ và nhà vệ sinh, kết hợp sân trước nhỏ làm chỗ để xe hoặc tiểu cảnh xanh. Tầng 2 bố trí 2-3 phòng ngủ, phòng sinh hoạt chung và ban công thoáng đãng.

Mẫu biệt thự mini có diện tích 7x15m đơn giản, tinh tế Nguồn: Internet)

Thiết kế biệt thự mini 7x15m mang đến một không gian sống thời thượng, đẳng cấp (Nguồn: Internet)
>> Đọc thêm:
Biệt thự mini với mái ngói đỏ là thiết kế nhà ở phổ biến tại Việt Nam, từ vùng nông thôn thanh bình đến khu phố thị sầm uất, từ công trình đơn giản đến những thiết kế cầu kỳ, sang trọng. Mái ngói không chỉ thể hiện vẻ đẹp truyền thống mà còn đa dạng trong phong cách thiết kế.
Tuy nhiên, biệt thự mini mái ngói đỏ có nhược điểm như trọng lượng nặng, chi phí thi công cao hơn so với mái tôn, dễ bị rêu mốc hoặc nứt nếu không bảo trì thường xuyên. Để khắc phục những hạn chế này, gia chủ có thể cân nhắc sử dụng tấm xi măng DURAflex Low Carbon từ Saint-Gobain cho sàn, gác lửng, trần giả, lót mái thay bê tông, tường ngăn hay sàn ngoài trời, đảm bảo độ bền, chống cháy và tiết kiệm chi phí.

Biệt thự mini với mái ngói đỏ đang được nhiều chủ đầu tư yêu thích (Nguồn: Internet)

Mẫu nhà mái ngói kiểu biệt thự nổi bật trên nền tường sơn trắng tạo nên điểm nhấn rực rỡ, gần gũi và ấm áp (Nguồn: Internet)
Biệt thự mini sân vườn mái Nhật là sự kết hợp hài hòa giữa kiến trúc tinh tế và không gian sống gần gũi thiên nhiên. Đặc trưng của mẫu nhà này nằm ở phần mái có độ dốc nhẹ, mở rộng sang hai bên tạo cảm giác mềm mại, thanh thoát - vừa mang tính thẩm mỹ, vừa giúp thoát nước tốt trong điều kiện khí hậu nóng ẩm như ở nước ta. Thiết kế biệt thự nhà mái Nhật này thường ưu tiên không gian mở, kết nối bên trong và bên ngoài qua hệ cửa kính lớn, sân vườn xanh mát bao quanh với lối đi lát đá, bồn hoa hoặc tiểu cảnh thư giãn.

Mẫu biệt thự mini sân vườn mái Nhật mang lại không gian sống nhẹ nhàng, thanh lịch (Nguồn: Internet)

Mẫu biệt thự mini sân vườn mái Nhật đơn giản nhưng hài hòa, tạo cảm giác gần gũi, yên bình (Nguồn: Internet)
>> Tham khảo thêm:
Biệt thự mini mái Thái luôn chiếm được cảm tình của nhiều gia chủ nhờ vào vẻ đẹp hài hòa giữa nét truyền thống Á Đông và sự gần gũi quen thuộc trong đời sống người Việt. Kiểu nhà mái Thái dốc về hai bên không chỉ mang tính thẩm mỹ cao mà còn rất phù hợp với điều kiện khí hậu nóng ẩm, mưa nhiều - giúp thoát nước nhanh, hạn chế ẩm mốc và bảo vệ kết cấu công trình.

Mẫu biệt thự mini mái Thái đẹp, phổ biến ở các vùng nông thôn (Nguồn: Internet)

Kiến trúc biệt thự mini mái Thái đẹp mắt, tối ưu công năng sử dụng (Nguồn: Internet)
>> Đọc thêm:
Biệt thự mini có hồ bơi hiện đại là mẫu nhà dành cho những gia chủ yêu thích không gian sống nghỉ dưỡng ngay tại nhà. Thiết kế hồ bơi thường được bố trí linh hoạt ở sân trước, sân sau hoặc bên hông biệt thự, tùy vào hình dáng khu đất và nhu cầu sử dụng. Dù diện tích không quá lớn, nhưng nhờ cách bố trí khéo léo cùng lối thiết kế mở, hồ bơi vẫn tạo nên điểm nhấn sang trọng, mát mẻ.

Mẫu biệt thự mini hiện đại có hồ bơi hiện đại, cực kỳ tiện nghi (Nguồn: Internet)

Mẫu biệt thự mini hiện đại có hồ bơi đẹp, sang trọng, tiện nghi (Nguồn: Internet)
>> Đọc thêm:
Biệt thự mini hiện đại có gara là giải pháp lý tưởng cho những gia đình mong muốn tối ưu không gian sử dụng một cách khoa học và tiện nghi. Mẫu nhà này thường được thiết kế với các đường nét vuông vức, bố cục gọn gàng và sử dụng vật liệu hiện đại như kính, tấm bê tông nhẹ DURAflex Low Carbon, thép,... để tạo nên vẻ ngoài sang trọng, trẻ trung. Gara có thể được bố trí liền kề với mặt trước hoặc bên hông ngôi nhà, tùy theo diện tích đất.

Biệt thự mini hiện đại có gara với thiết kế ấn tượng (Nguồn: Internet)

Mẫu biệt thự mini hiện đại có gara phía trước cực kỳ tiện lợi (Nguồn: Internet)
>> >> Xem tham khảo thêm:
Biệt thự mini không gian mở hiện đại mang đến giải pháp sống xanh, thoáng đãng và yên bình ngay giữa lòng đô thị. Thiết kế ưu tiên tối đa diện tích sử dụng, dành phần lớn không gian cho cây xanh, ánh sáng và khí trời. Kiến trúc mở giúp kết nối con người với thiên nhiên, mang lại cảm giác thư giãn, nhẹ nhàng mỗi ngày.

Thiết kế biệt thự mini không gian mở hiện đại, hài hòa với thiên nhiên (Nguồn: Internet)

Xung quanh biệt thự mini bố trí nhiều cửa kính lớn kết nối với không gian bên ngoài (Nguồn: Internet)
>> Tham khảo:
Biệt thự mini là một phiên bản thu nhỏ của biệt thự truyền thống, thường có diện tích nhỏ gọn (khoảng 70m² đến 100m²) và 2 - 4 tầng nổi, mang đến không gian sống tiện nghi, sang trọng và hiện đại. Vì sở hữu diện tích nhỏ hơn các mẫu thiết kế biệt thự khác, chi phí xây dựng biệt thự mini sẽ thấp hơn, giúp người mua dễ dàng tiếp cận và sở hữu không gian sống cao cấp. Với thiết kế tối ưu, biệt thự mini không chỉ đảm bảo đầy đủ các tiện ích mà còn phù hợp với nhu cầu sống hiện đại, tiết kiệm không gian nhưng vẫn đầy đủ sự tiện nghi.

Mẫu biệt thự mini thường có diện tích nhỏ gọn, từ 70 - 100m2 và 2 - 4 tầng nổi (Nguồn: Internet)
>> Xem thêm:
Biệt thự mini đang trở thành xu hướng nhà ở được săn đón nhờ hàng loạt ưu điểm nổi bật, đặc biệt phù hợp với nhu cầu sống hiện đại tại các đô thị. Dưới đây là những lý do lý giải sức hút ngày càng tăng của loại hình biệt thự này:

Biệt thự mini có thiết kế sân vườn xanh mát, thoáng đãng (Nguồn: Internet)
>> Tham khảo thêm:
Chi phí thiết kế biệt thự mini hiện nay phụ thuộc theo diện tích, phong cách kiến trúc và mức độ yêu cầu của chủ đầu tư. Với các mẫu biệt thự mini có diện tích từ 70-150m², giá thiết kế thường nằm trong khoảng 150.000 - 300.000 VNĐ/m² đối với bản vẽ cơ bản.
Nếu lựa chọn gói thiết kế trọn gói bao gồm phối cảnh 3D, mặt bằng công năng, hồ sơ kỹ thuật thi công và nội thất, chi phí có thể từ 250.000 - 500.000 VNĐ/m². Việc đầu tư thiết kế bài bản sẽ giúp tiết kiệm chi phí thi công, tối ưu công năng và tăng giá trị thẩm mỹ cho toàn bộ công trình.
Chi phí thi công biệt thự mini trọn gói phụ thuộc vào diện tích xây dựng, vật liệu sử dụng và phong cách thiết kế. Với mức đầu tư trung bình, đơn giá thi công biệt thự mini dao động từ 6.000.000 - 8.500.000 VNĐ/m², bao gồm cả phần thô và hoàn thiện. Trong đó, phần thô thường chiếm khoảng 40-50% tổng chi phí, phần hoàn thiện bao gồm sơn, lát nền, thiết bị điện nước, nội thất cơ bản...

Trong quá trình thi công biệt thự mini gia chủ cần tính toán chi phí hợp lý (Nguồn: Internet)
>> >> Có thể bạn muốn biết:
Vị trí xây dựng là một trong những yếu tố then chốt ảnh hưởng trực tiếp đến chi phí thi công biệt thự mini. Nếu công trình nằm ở khu vực trung tâm thành phố, chi phí nhân công và vận chuyển vật liệu sẽ cao hơn so với vùng ven hoặc nông thôn. Ngoài ra, địa hình khu đất như đất yếu, nền móng yếu, nằm trên đồi dốc hay gần sông suối cũng sẽ làm phát sinh thêm các khoản chi phí xử lý nền móng và gia cố kết cấu.
Chất lượng và loại vật liệu được sử dụng sẽ quyết định phần lớn đến tổng chi phí xây dựng. Và để đảm bảo hiệu quả đầu tư dài hạn, gia chủ nên lựa chọn vật liệu vừa bền chắc, thẩm mỹ lại tiết kiệm chi phí, điển hình như tấm bê tông đúc sẵn DURAflex Low Carbon - vừa chịu ẩm tốt, cách âm, cách nhiệt, chống cháy hiệu quả, lại an toàn sức khỏe và dễ thi công.
Tổng diện tích sàn xây dựng càng lớn thì chi phí thi công càng cao. Ngoài ra, phong cách thiết kế cũng tác động rõ rệt đến ngân sách. Những mẫu biệt thự mini mang phong cách hiện đại, tối giản thường tiết kiệm chi phí hơn so với phong cách cổ điển hoặc tân cổ điển do không yêu cầu quá nhiều chi tiết phức tạp như phào chỉ, hoa văn chạm khắc cầu kỳ.

Diện tích của biệt thự mini ảnh hưởng rất lớn đến chi phí xây dựng (Nguồn: Internet)
Ngoài những yếu tố chính, một số yếu tố phụ cũng có thể ảnh hưởng đến chi phí như thời điểm thi công (vào mùa mưa hay mùa khô), chi phí xin phép xây dựng, thuê thiết kế kiến trúc, trang trí nội thất hoặc các chi phí phát sinh trong quá trình điều chỉnh công năng. Việc lên kế hoạch kỹ lưỡng từ đầu sẽ giúp chủ đầu tư kiểm soát ngân sách hiệu quả và hạn chế rủi ro trong quá trình thi công.
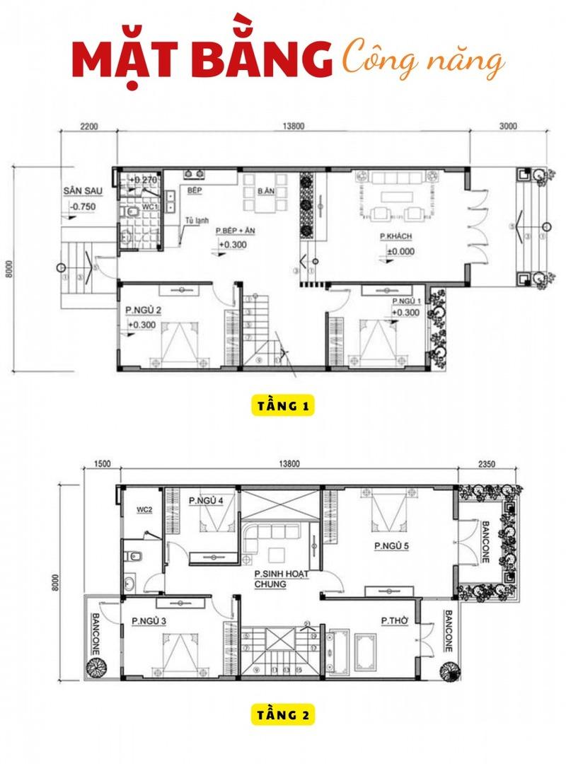
Bản vẽ thiết kế nhà biệt thự mini càng chi tiết chính là chìa khóa vàng đảm bảo quá trình thi công diễn ra suôn sẻ và đúng tiến độ. Một bản vẽ được đầu tư kỹ lưỡng không chỉ giúp nhà thầu dễ dàng triển khai thi công mà còn cho phép gia chủ theo dõi sát sao chất lượng công trình, đối chiếu từng hạng mục giữa bản vẽ và thực tế. Đặc biệt, bản vẽ càng chi tiết bao nhiêu thì càng hạn chế được những phát sinh không đáng có, tiết kiệm thời gian và chi phí cho chủ đầu tư - yếu tố cực kỳ quan trọng khi xây dựng các mẫu biệt thự mini hiện đại ngày nay.

Mẫu thiết kế bản vẽ biệt thự mini chi tiết, dễ hiểu, đầy đủ công năng (Nguồn: Internet)
>> >> Th:am khảo
Không gian biệt thự mini cần được phân chia hợp lý để vừa tiết kiệm diện tích, vừa tạo sự thoáng đãng và sang trọng. Ưu tiên thiết kế mở, kết nối phòng khách, bếp và khu vực sinh hoạt chung để tạo cảm giác rộng rãi. Sử dụng nội thất đa năng, như sofa giường hoặc bàn gấp, giúp tiết kiệm diện tích mà vẫn đảm bảo công năng. Cửa kính lớn và ánh sáng tự nhiên được tận dụng để tăng tính thẩm mỹ, mang lại không gian thoáng đãng.

Bố trí không gian biệt thự mini với nội thất thông minh, phù hợp (Nguồn: Internet)
Việc lựa chọn phong cách thiết kế cho biệt thự mini là một trong những yếu tố quan trọng giúp tạo nên vẻ đẹp và tính thẩm mỹ cho ngôi nhà. Bạn nên xác định rõ phong cách mà mình yêu thích, như hiện đại, cổ điển, tối giản, hay tân cổ điển, để phù hợp với diện tích và công năng của không gian. Phong cách thiết kế sẽ ảnh hưởng đến không chỉ ngoại thất mà cả cách sắp xếp nội thất, tạo nên một tổng thể hài hòa và tối ưu.
Ngoại thất là “bộ mặt” của biệt thự mini, tạo ấn tượng đầu tiên và hòa quyện với cảnh quan xung quanh. Gia chủ nên đầu tư vào các chi tiết như cửa kính lớn, ban công xanh, hoặc tiểu cảnh sân vườn để tăng tính thẩm mỹ. Lựa chọn vật liệu bền bỉ và thiết kế đơn giản nhưng tinh tế giúp ngoại thất nổi bật mà không tốn quá nhiều chi phí bảo trì. Ngoại thất cần được thiết kế đồng bộ với phong cách tổng thể, mang lại vẻ đẹp lâu dài.
Khi xây dựng biệt thự mini, việc lựa chọn vật liệu xây dựng chất lượng là yếu tố không thể bỏ qua. Đặc biệt, với xu hướng xây dựng bền vững, bạn có thể cân nhắc các sản phẩm vật liệu thân thiện với môi trường như tấm xi măng DURAflex Low Carbon - giải pháp giúp giảm thiểu khí thải carbon, tiết kiệm năng lượng và bảo vệ môi trường.
Một trong những lưu ý quan trọng khi xây dựng biệt thự mini là thiết kế bố cục không gian sao cho hài hòa và hợp lý. Mặc dù diện tích có giới hạn, nhưng việc phân chia không gian hợp lý giúp tối ưu hóa công năng, đồng thời tạo cảm giác thoải mái và rộng rãi. Hãy chú ý đến việc phân bố không gian giữa các phòng chức năng như phòng khách, phòng ngủ, bếp, sao cho mỗi khu vực đều có sự liên kết chặt chẽ, tránh cảm giác bí bách.
Màu sắc và ánh sáng là yếu tố quan trọng ảnh hưởng đến không gian biệt thự mini. Bạn nên chọn những gam màu sáng, nhẹ nhàng cho tường, trần và sàn nhà để tạo cảm giác thoáng đãng, rộng rãi hơn. Bên cạnh đó, ánh sáng tự nhiên luôn là lựa chọn ưu tiên để làm không gian thêm sinh động và gần gũi với thiên nhiên. Đồng thời, hệ thống đèn chiếu sáng cũng cần được thiết kế khoa học để đảm bảo ánh sáng đồng đều và phù hợp với từng khu vực trong nhà.

Lưu ý lựa chọn màu sắc và ánh sáng cho mẫu biệt thự mini phù hợp (Nguồn: Internet)
Trên đây DURAflex đã giới thiệu đến bạn những mẫu thiết kế biệt thự mini ấn tượng, với sự đa dạng về phong cách, công năng và các yếu tố phong thủy. Chúng tôi hy vọng rằng những chia sẻ trong bài viết này sẽ mang lại cho bạn nguồn cảm hứng và kiến thức quý giá, giúp bạn đưa ra quyết định chính xác và thiết kế được một không gian sống hoàn hảo, vừa đẹp mắt, tiện nghi lại hợp phong thủy cho tổ ấm của mình.
Bất kỳ thắc mắc nào liên quan đến tấm xi măng xanh DURAflex Low Carbon và tấm xi măng vân gỗ DURAwood Low Carbon, vui lòng liên hệ:
Bài viết liên quan
Đánh giá và nhận xét
Đánh giá trung bình
0/5
5
4
3
2
1
Chia sẻ và nhận xét về bài viết
Chia sẻ và nhận xét về bài viết
Bài viết chưa có đánh giá nào