
DURAflex đăng vào lúc 28/11/2025 - 14:48
Bản vẽ thiết kế nhà đóng vai trò quan trọng trong việc hiện thực hóa ý tưởng xây dựng, giúp gia chủ hình dung rõ ràng không gian sống trước khi thi công. Một bản vẽ chi tiết, khoa học không chỉ đảm bảo tính thẩm mỹ mà còn tối ưu công năng sử dụng, phù hợp với nhu cầu và ngân sách xây dựng. Trong bài viết này, DURAflex sẽ chia sẻ những yếu tố quan trọng khi lập bản vẽ thiết kế nhà, giúp bạn có một không gian sống hoàn hảo, tiện nghi và bền vững theo thời gian.
Thiết kế nhà là quy trình lên kế hoạch chi tiết cho việc xây dựng ngôi nhà từ giai đoạn cấu trúc, kiến trúc, đến nội thất và phong thủy. Quá trình này giúp xác định hình thái và công năng của từng không gian nhà. Mục tiêu của thiết kế nhà nhằm đảm bảo đầy đủ các yếu tố kỹ thuật và mỹ quan, tạo ra một không gian sống đẹp, tiện nghi, phù hợp với nhu cầu và sở thích của gia chủ.
Hiện nay, xu hướng thiết kế nhà ưu tiên sự hài hòa với thiên nhiên, kết hợp phong cách hiện đại và tinh tế. Chính vì vậy, việc thiết kế nhà đóng vai trò ngày càng quan trọng trong quá trình xây dựng, từ nhà phố, nhà cấp 4 cho đến thiết kế biệt thự, giúp tối ưu công năng và nâng cao chất lượng cuộc sống.

Thiết kế nhà là quá trình lập kế hoạch và tạo bản vẽ chi tiết cho một ngôi nhà trước khi xây dựng (Nguồn: Internet)
>> Đọc thêm:
Bản vẽ thiết kế nhà là tập hợp các hình vẽ, thông số kỹ thuật thể hiện chi tiết về ngôi nhà, từ mặt bằng, mặt đứng, đến các chi tiết kết cấu, điện nước,... Đây là tài liệu quan trọng giúp gia chủ, kiến trúc sư và đơn vị thi công có cái nhìn tổng thể về ngôi nhà trước khi bắt đầu xây dựng.
Bản vẽ thiết kế nhà ở thường bao gồm nhiều hạng mục như:
Bản vẽ thiết kế nhà đóng vai trò quan trọng trong quá trình thi công, xây dựng ngôi nhà giúp đảm bảo tính chính xác và hiệu quả của công trình. Cụ thể:

Bản vẽ thiết kế nhà đóng vai trò quan trọng giúp đảm bảo tính chính xác, thẩm mỹ cho công trình (Nguồn: Internet)
Bản vẽ thiết kế nhà là tài liệu quan trọng trong xây dựng, thể hiện đầy đủ các mặt của ngôi nhà như mặt đứng, mặt bằng và mặt cắt. Trong đó, các số liệu chi tiết giúp xác định kích thước, hình dáng và phong cách thiết kế của từng bộ phận.
Trước khi tham khảo các mẫu thiết kế, bạn cần hiểu một bộ bản vẽ nhà hoàn chỉnh gồm những gì. Thông thường, hồ sơ bản vẽ thi công sẽ bao gồm ba phần chính: kiến trúc, kết cấu và kỹ thuật.

Bản vẽ được phân thành 3 loại: kiến trúc, kết cấu và kỹ thuật (Nguồn: Internet)
Kiến trúc nhà phải đảm bảo tính hài hòa với cảnh quan xung quanh và phong cách thẩm mỹ độc đáo. Các chi tiết như mái nhà, cửa sổ, ban công cần được tính toán hợp lý nhằm mang lại không gian thoáng mát và đẹp mắt.
Một ngôi nhà không chỉ cần phải đẹp mà còn hài hòa với môi trường xung quanh, từ kiến trúc khu vực đến cảnh quan và yếu tố tự nhiên. Việc lựa chọn màu sắc, vật liệu xây dựng cũng cần được cân nhắc kỹ lưỡng để đảm bảo tính thẩm mỹ và độ bền lâu dài. Đặc biệt, ưu tiên sử dụng vật liệu chất lượng cao giúp gia tăng độ bền vững, mang đến không gian sống an toàn và thoải mái cho gia đình.
Thiết kế nội thất phải tối ưu công năng sử dụng và tính thẩm mỹ. Lựa chọn vật liệu bền bỉ như tấm bê tông nhẹ DURAflex hoặc tấm xi măng vân gỗ DURAwood để lót sàn, vách ngăn phòng hay ốp tường trang trí. Vật liệu này có khả năng chịu ẩm, cách âm và chống nóng tường nhà vượt trội giúp gia tăng độ bền cho các hạng mục nội thất như tường, sàn và trần.
Phong thủy có vai trò quan trọng trong thiết kế nhà. Việc bố trí không gian sao cho đảm bảo hướng nhà, các yếu tố như nước, góc cảnh phù hợp với phong thủy giúp mang lại sự thịnh vượng, tài lộc và sức khỏe cho gia chủ.

Chú trọng đến yếu tố phong thủy trong quá trình thiết kế, xây dựng nhà ở (Nguồn: Internet)
Để hiểu rõ ý tưởng thiết kế và các chi tiết trong bản vẽ, bạn cần lưu ý những điểm quan trọng sau:

Một số lưu ý cần biết khi xem bản vẽ thiết kế nhà (Nguồn: Internet)
Nhà cấp 4 đang được nhiều gia đình Việt hiện nay ưa chuộng đặc biệt thích hợp với các cặp vợ chồng trẻ mới bắt đầu xây dựng tổ ấm. Mẫu nhà này tuy có thiết kế đơn giản nhưng vẫn đảm bảo tính hiện đại và tiện nghi. Hiện nay, có nhiều mẫu nhà cấp 4 với phong cách đa dạng, mang đến nét độc đáo và cá tính riêng cho từng công trình.
Ưu điểm nổi bật của loại nhà này là chi phí xây dựng hợp lý, không gian rộng rãi, thoáng mát và gần gũi. Tuy nhiên, nhược điểm của nhà cấp 4 là tuổi thọ công trình không cao và khó đáp ứng đầy đủ tiện nghi như các thiết kế nhà ở cao tầng.

Thiết kế mẫu nhà cấp 4 nông thôn đẹp, hiện đại đang được yêu thích nhất 2026 (Nguồn: Internet)
>> Xem thêm:
Nhà ống là mẫu thiết kế phổ biến tại các đô thị hoặc những nơi có diện tích hạn chế, mang đến không gian sống tiện nghi và hiện đại. Với đa dạng phong cách, từ truyền thống đến sang trọng, gia chủ có thể linh hoạt điều chỉnh thiết kế theo sở thích và nhu cầu sử dụng. Bên cạnh đó, việc bố trí không gian hợp lý còn giúp tối ưu công năng và đảm bảo yếu tố phong thủy, tạo nên một môi trường sống hài hòa, thoải mái.

Thiết kế nhà ống thông minh giúp tối ưu hóa diện tích (Nguồn: Internet)
>> Xem thêm:
Nhà phố với phong cách tối giản và tiết kiệm diện tích sử dụng đang trở nên phổ biến. Những bản vẽ thiết kế nhà phố không chỉ chú trọng vào tính thẩm mỹ mà còn tối ưu không gian, tạo sự thông thoáng và tiện nghi. Khác với nét cầu kỳ của nhà mái Thái hay sự tối giản của nhà cấp 4, nhà phố ghi điểm bằng các mảng khối tinh tế, giúp tổng thể ngôi nhà trở nên thanh lịch, đẳng cấp nhưng vẫn đảm bảo công năng sử dụng tối ưu.

Thiết kế nhà phố hiện đại, đầy đủ tiện nghi (Nguồn: Internet)
Mẫu nhà mái Nhật là một trong những xu hướng thiết kế nhà được ưa chuộng hiện nay, đặc biệt ở các vùng có khí hậu nóng ẩm như ở nước ta. Kiểu mái này có nguồn gốc từ Nhật Bản với đặc trưng là độ dốc vừa phải, đảm bảo sự kiên cố và bền vững theo thời gian.

Xu hướng thiết kế nhà mái Nhật 2 tầng mới nhất 2026 (Nguồn: Internet)
>> Xem thêm:
Nhà mái Thái là một trong những kiểu kiến trúc nhà ở phổ biến và được yêu thích tại Việt Nam. Đặc trưng của kiểu nhà này là hệ mái cao, độ dốc lớn, giúp thoát nước nhanh, hạn chế thấm dột, đồng thời đảm bảo độ bền vững theo thời gian giúp bảo vệ ngôi nhà khỏi những tác động của thời tiết như mưa, nắng.

Thiết kế nhà mái Thái có độ dốc lớn giúp nước nhanh chóng (Nguồn: Internet)
Trong những năm gần đây, nhà mái bằng tối giản, tiết kiệm chi phí là xu hướng được nhiều gia đình được lựa chọn. Với những đường nét vuông vức, kiên cố, kiểu nhà này không chỉ mang đến vẻ đẹp tinh tế mà còn đảm bảo độ bền cao. Đặc biệt, so với các loại mái khác, nhà mái bằng có chi phí xây dựng thấp hơn so với các kiểu nhà khác nhưng vẫn đáp ứng đầy đủ các tiêu chí về thẩm mỹ và công năng, phù hợp với nhiều phong cách kiến trúc hiện đại.

Nhà cấp 4 mái bằng có thiết kế vuông vức, kiên cố, toát lên vẻ đẹp hiện đại (Nguồn: Internet)
Nhà mái lệch đang trở thành xu hướng thiết kế phổ biến trong kiến trúc hiện đại, mang đến một không gian sống đẹp, nổi bật. Kiểu mái có thể lệch về một bên hoặc hai bên, tùy theo sở thích và phong cách thẩm mỹ của gia chủ. Không chỉ nổi bật về mặt kiến trúc, mái lệch còn có khả năng thoát nước nhanh, giúp hạn chế tình trạng ứ đọng khi trời mưa. Đồng thời, thiết kế này còn hỗ trợ điều hòa không khí hiệu quả, mang lại không gian sống thoáng đãng và mát mẻ quanh năm.

Thiết kế nhà mái lệch có sự phá cách độc đáo, ấn tượng (Nguồn: Internet)
>> Xem thêm:
Bản vẽ thiết kế nhà biệt thự không chỉ thể hiện sự bề thế, tinh tế mà còn khẳng định đẳng cấp của gia chủ. Những mẫu biệt thự đẹp được chú trọng trong việc tạo không gian mở, giúp kết nối hài hòa giữa các khu vực trong nhà và môi trường xung quanh. Nhờ đó, ánh sáng tự nhiên được tận dụng tối đa, mang đến cảm giác thông thoáng, thoải mái.

Thiết kế biệt thự nhà vườn ngập tràn ánh sáng tự nhiên mang lại không gian sống thoáng đãng (Nguồn: Internet)
>> Xem thêm: 50+ Mẫu nhà vườn nhỏ đẹp, đơn giản, giá rẻ, gần gũi thiên nhiên
Những mẫu thiết kế nhà cấp 4 đẹp thường hướng đến phong cách tối giản, tập trung vào sự thông thoáng nhưng vẫn đáp ứng đầy đủ công năng từ phòng khách, phòng bếp, phòng ngủ đến phòng tắm, nhà vệ sinh. Bên cạnh không gian sinh hoạt chính, ngôi nhà còn được bố trí cửa chính và các cửa sổ rộng rãi, kết hợp với khu vườn xanh mát, giúp không gian luôn tràn ngập ánh sáng tự nhiên và trong lành.

Không gian sống lý tưởng với thiết kế nhà cấp 4 hiện đại kết hợp sân vườn xanh mát (Nguồn: Internet)
>> Xem thêm:
Nhà cấp 4 mái Thái ngày càng được ưa chuộng nhờ thiết kế sang trọng, tính thẩm mỹ cao và công năng tiện ích. Kiến trúc của mẫu nhà này thường gồm hai mái chính trước – sau cùng các mái phụ, tạo nên vẻ đẹp hài hòa và bề thế. Đặc biệt, phong cách thiết kế linh hoạt, có thể kết hợp từ cổ điển, tân cổ điển đến hiện đại, phù hợp với nhiều sở thích khác nhau. Đối với những gia đình có quỹ đất rộng, việc xây dựng nhà cấp 4 mái Thái cùng không gian sân vườn xanh mát không chỉ tăng thêm giá trị thẩm mỹ mà còn mang lại cảm giác thoải mái, gần gũi với thiên nhiên.

Nhà cấp 4 mái Thái 3 phòng ngủ đang được nhiều gia đình ưa chuộng hiện nay (Nguồn: Internet)
Nhà 2 tầng là mẫu thiết kế phổ biến bao gồm tầng trệt và tầng lầu, tuy nhiên nhiều thiết kế hiện đại còn tích hợp thêm tum hoặc sân thượng để mở rộng không gian. Điểm đặc biệt của loại nhà này là sự phân chia không gian rõ ràng giữa khu vực sinh hoạt chung và phòng ngủ, đảm bảo sự riêng tư và thoải mái. Nhờ đó, phòng ngủ luôn yên tĩnh, trong khi khu vực sinh hoạt chung trở nên thoáng đãng và tiện nghi, đáp ứng nhu cầu sử dụng của mọi thành viên trong gia đình một cách tối ưu.

Mẫu nhà 2 tầng đẹp 700 triệu với thiết kế 1 tầng trệt và 1 tầng lầu (Nguồn: Internet)
>> Xem thêm:
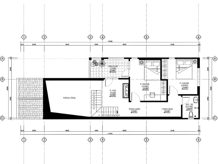
Nhà 3 tầng là lựa chọn lý tưởng cho những gia đình đông thành viên hoặc mong muốn sở hữu không gian sống rộng rãi, tiện nghi. Với thiết kế đa tầng, ngôi nhà không chỉ đáp ứng nhu cầu sinh hoạt mà còn mang đến vẻ đẹp sang trọng, hiện đại. Nhờ cách bố trí khoa học, kiểu nhà này giúp tối ưu diện tích sử dụng, tạo sự hài hòa giữa các khu vực như phòng khách, phòng ngủ và không gian sinh hoạt chung. Để đảm bảo sự yên tĩnh, phòng ngủ thường được sắp xếp ở tầng một và tầng hai, ưu tiên vị trí phía sau nhà nhằm tạo không gian nghỉ ngơi riêng tư.

Thiết kế nhà 3 tầng thường tận dụng chiều cao và chiều sâu để mở rộng không gian (Nguồn: Internet)
Thiết kế biệt thự 1 tầng đang ngày càng trở nên phổ biến bởi vẻ đẹp hiện đại, thể hiện phong cách riêng của gia chủ, tạo nên không gian sống mang dấu ấn cá nhân. Với lợi thế diện tích rộng, kiểu nhà này thường ưu tiên không gian mở, sử dụng hệ thống cửa lớn để đón ánh sáng tự nhiên, tạo ra không gian sống rộng rãi, thông thoáng.

Thiết kế biệt thự mini 1 tầng kết hợp cây xanh, hồ bơi, mang đến không gian sang trọng (Nguồn: Internet)
>> Đọc thêm:
Mẫu biệt thự 2 tầng là lựa chọn lý tưởng cho những gia đình muốn sở hữu không gian sống rộng rãi, đẳng cấp nhưng không cần xây dựng quá nhiều tầng. Thiết kế của loại hình nhà ở này thường được bố trí hợp lý, với tầng trệt là khu vực sinh hoạt chung như phòng khách, bếp và phòng ăn, trong khi tầng trên là không gian riêng tư gồm phòng ngủ, phòng làm việc hoặc phòng tắm. Ngoài ra, biệt thự 2 tầng thường đi kèm sân vườn xanh mát, nhà chòi sân vườn, hồ bơi hoặc khu vui chơi ngoài trời, mang đến không gian sống thư thái và tiện nghi cho cả gia đình.

Mẫu biệt thự 2 tầng mái Nhật với thiết kế mở, tận dụng tối đa diện tích đất (Nguồn: Internet)
Trong bối cảnh đất chật người đông tại các đô thị lớn việc thiết kế nhà diện tích nhỏ đang trở thành xu hướng hiện nay. Tuy nhiên, không gian sống nhỏ không đồng nghĩa với việc thiếu tiện nghi và thẩm mỹ. Với việc bố trí thông minh và lựa chọn nội thất phù hợp, gia chủ hoàn toàn có thể biến căn nhà nhỏ của mình thành một không gian sống lý tưởng. Bằng việc sử dụng các vật liệu chất lượng như tấm bê tông đúc sẵn DURAflex kết hợp cùng hệ thống cửa kính hiện đại mang lại không gian sống sáng sủa và rộng rãi hơn.

Thiết kế nhà có diện tích nhỏ nên có gác lửng để mở rộng thêm không gian (Nguồn: Internet)
Xem thêm:
Đối với những lô đất có diện tích vừa phải, gia chủ có thể linh hoạt lựa chọn nhiều phong cách thiết kế, từ hiện đại, cổ điển đến phong cách Bắc Âu độc đáo. Để tạo điểm nhấn và tăng tính thẩm mỹ, việc kết hợp giữa phong cách tối giản và hiện đại cùng nội thất thông minh là một lựa chọn lý tưởng. Nhằm gia tăng chất lượng cho công trình nhà ở nhiều chủ đầu tư hiện nay đã lựa chọn sử dụng tấm Cemboard DURAflex hoặc tấm xi măng giả gỗ DURAwood làm vật liệu lót sàn, ốp tường hay vách ngăn. Với độ bền cao, khả năng chịu ẩm tốt, cách âm và cách nhiệt hiệu quả, sản phẩm này không chỉ đảm bảo tính thẩm mỹ mà còn giúp bảo vệ ngôi nhà khỏi những tác động xấu từ môi trường.

Thiết kế nhà diện tích trung bình sử dụng tấm vân gỗ DURAwood để ốp tường trang trí (Nguồn: Internet)
Những ngôi nhà có diện tích rộng không chỉ đáp ứng đầy đủ các nhu cầu sinh hoạt mà còn tạo nên một không gian sống lý tưởng cho các thành viên trong gia đình. Với không gian thoáng đãng, gia chủ có thể tự do bố trí và lựa chọn đồ nội thất sao cho hài hòa, tạo nên những điểm nhấn ấn tượng, đồng thời mang lại một môi trường sống tiện nghi và thoải mái.

Thiết kế nhà có diện tích lớn, rộng rãi với đầy đủ tiện nghi (Nguồn: Internet)
>> Xem thêm:
Cân bằng là nguyên tắc quan trọng mà chủ đầu tư cần lưu ý khi thiết kế bản vẽ nhà ở. Việc áp dụng sự cân bằng này không chỉ thể hiện ở không gian mà còn ở các yếu tố như chiều cao, chiều rộng và bố cục tổng thể, giúp tạo nên một ngôi nhà hoàn chỉnh, hài hòa và nâng cao tính thẩm mỹ. Những yếu tố này đóng góp vào việc tạo ra không gian sống lý tưởng, mang lại sự thoải mái và tiện nghi cho gia đình.

Khi thiết kế nhà cần chú ý tổng thể sao cho mỗi yếu tố được sắp xếp hợp lý, hài hòa (Nguồn: Internet)
Nguyên tắc đối xứng tỉ lệ là một trong những yếu tố quan trọng trong thiết kế, giúp tạo nên sự hài hòa và cân đối cho không gian. Tương tự như nguyên tắc cân bằng, việc áp dụng nguyên tắc đối xứng tỉ lệ đòi hỏi sự đo đạc tỉ mỉ và tính toán chính xác để tránh những thiết kế thô kệch, thiếu thẩm mỹ. Nguyên tắc này còn giúp gia chủ trong việc lựa chọn phong cách kiến trúc, nội thất sao cho phù hợp, từ đó tạo nên sự kết nối thống nhất, tránh sự mâu thuẫn cho ngôi nhà.

Thiết kế nhà cần tuân thủ nguyên tắc đối xứng để mang lại sự hài hòa cho tổng thể (Nguồn: Internet)
Nguyên tắc nhấn mạnh là một trong những yếu tố quan trọng trong thiết kế nội thất, giúp tạo điểm nhấn thu hút và ấn tượng cho ngôi nhà. Khác với nguyên tắc đối xứng, nguyên tắc này chủ yếu nhấn mạnh sự sáng tạo, phá cách và mới lạ, mang đến vẻ đẹp độc đáo giúp ngôi nhà nổi bật và khác biệt so với những mẫu thiết kế thông thường.

Để giúp không gian trở nên ấn tượng cần bố trí những nội thất độc đáo, sáng tạo (Nguồn: Internet)
Trong quá trình thiết kế bản vẽ nhà đẹp, yếu tố hài hòa đóng vai trò quan trọng, giúp cân đối giữa từng chi tiết nhỏ và tổng thể kiến trúc. Sự kết hợp tinh tế giữa màu sắc, vật liệu và bố cục không gian sẽ tạo nên một ngôi nhà thông thoáng, mang lại cảm giác thư giãn, thoải mái. Khi áp dụng nguyên tắc này, công trình không chỉ đạt tính thẩm mỹ cao mà còn đảm bảo công năng sử dụng, đáp ứng nhu cầu của gia chủ.

Nguyên tắc hài hòa giúp không gian trở nên rộng rãi và dễ chịu, mang lại cảm giác thư thái (Nguồn: Internet)
Trước khi bắt đầu thiết kế, cần tiến hành khảo sát kỹ vị trí và hiện trạng của lô đất. Điều này bao gồm kiểm tra độ bằng phẳng, địa chất của đất và hướng ánh sáng, gió. Quy mô lô đất sẽ ảnh hưởng đến việc phân chia không gian, chiều cao và tổng diện tích sàn. Nếu lô đất có hình dạng đặc biệt như góc cạnh hay không vuông vức, kiến trúc sư sẽ cần đưa ra giải pháp thiết kế tối ưu. Ngoài ra, gia chủ cần đảm bảo lô đất có đầy đủ giấy tờ pháp lý và đã được cấp phép xây dựng. Trong trường hợp lô đất đang có tranh chấp, chủ nhà không nên tiến hành thi công để tránh rủi ro pháp lý và các vấn đề phát sinh sau này.
Cần xác định rõ ngôi nhà được xây dựng để phục vụ mục đích gì: làm nơi an cư lâu dài, kinh doanh cho thuê hay nghỉ dưỡng? Từ đó, lên kế hoạch phân chia công năng phù hợp. Bên cạnh đó cần xem xét số lượng người ở, độ tuổi, giới tính, nghề nghiệp, sở thích để bố trí số lượng phòng, diện tích và công năng hợp lý.
Trước khi bắt đầu thiết kế nhà, dự toán chi phí xây dựng là bước quan trọng giúp gia chủ có thể chủ động về tài chính và tránh tình trạng phát sinh chi phí ngoài kế hoạch. Bên cạnh chi phí xây dựng chính còn có nhiều khoản phát sinh khác, vì vậy gia chủ nên dự trù thêm từ 10 – 30% tổng ngân sách để đảm bảo quá trình thi công diễn ra suôn sẻ, hạn chế rủi ro và đáp ứng đầy đủ nhu cầu sinh hoạt sau khi hoàn thành ngôi nhà.

Chuẩn bị và lên kế hoạch tài chính xây nhà (Nguồn: Internet)
Một đơn vị thiết kế và thi công uy tín sẽ giúp bạn hiện thực hóa ý tưởng và kiểm soát chất lượng công trình. Chủ đầu tư nên tìm hiểu kỹ về kinh nghiệm, uy tín, năng lực của đơn vị thông qua các công trình đã thực hiện, đánh giá của khách hàng. Trao đổi kỹ lưỡng về ý tưởng thiết kế, ngân sách, tiến độ thi công để đảm bảo sự hợp tác hiệu quả và đạt được kết quả tốt nhất.
Nhiều người cho rằng thuê thiết kế nhà là tốn kém, nhưng thực tế, chi phí này chỉ chiếm khoảng 2-3% tổng chi phí xây dựng. Một bản vẽ rõ ràng giúp bạn dự toán chính xác, tránh phát sinh không đáng có và hạn chế sửa chữa trong quá trình thi công.
Nhờ vào chuyên môn và kinh nghiệm, kiến trúc sư sẽ giúp bạn tạo ra một thiết kế hài hòa, đúng sở thích và đảm bảo tỷ lệ cân đối. Nếu tự thiết kế mà không có chuyên môn, bạn có thể gặp khó khăn trong việc lên ý tưởng và tính toán chi tiết.
Bản vẽ thiết kế nhà cung cấp các thông số kỹ thuật chính xác, giúp việc thi công diễn ra thuận lợi, hạn chế sai sót và đảm bảo độ bền vững cho ngôi nhà. Điều này giúp tiết kiệm thời gian, công sức và chi phí sửa chữa sau này.

Nên có bản vẽ thiết kế nhà trước khi thi công, xây dựng công trình (Nguồn: Internet)

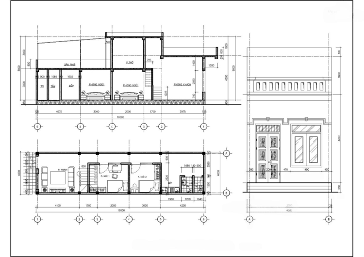
Bản thiết kế nhà cấp 4 mái Thái có gác lửng đẹp (Nguồn: Internet)
>> Xem thêm:

Bản vẽ thiết kế nhà mái bằng 1 tầng hiện đại (Nguồn: Internet)

Bản vẽ nhà cấp 4 2 phòng ngủ tối ưu diện tích (Nguồn: Internet)
>> Xem thêm:

Bản vẽ thiết kế nhà cấp 4 mái Nhật 3 phòng ngủ rộng rãi (Nguồn: Internet)
>> Xem thêm:

Bản vẽ nhà cấp 4 chữ L ấn tượng (Nguồn: Internet)

Bản vẽ thiết kế nhà cấp 4 mái bằng chữ L 100m2 với đầy đủ công năng (Nguồn: Ảnh được tạo bởi AI)
>> Xem thêm:

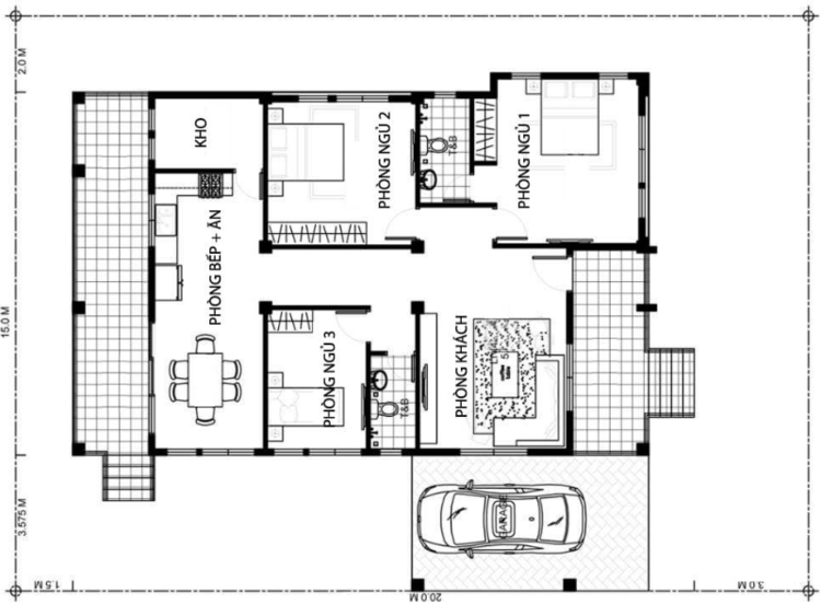
Bản vẽ nhà cấp 4 có gara để ô tô tiện lợi (Nguồn:Internet)
>> Xem thêm:

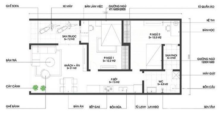
Bản vẽ thiết kế nhà 1 tầng có gác lửng đẹp, tận dụng tối đa diện tích (Nguồn: Internet)

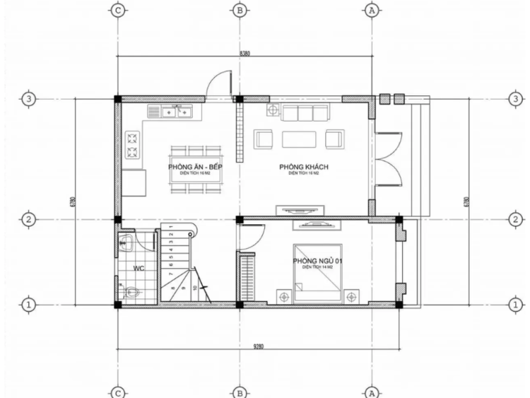
Bản vẽ thiết kế nhà 1 tầng diện tích 4x8m đơn giản, dễ hiểu (Nguồn: Internet)

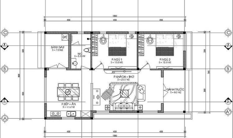
Bản vẽ thiết kế nhà đẹp 50m2 đầy đủ công năng (Nguồn: Internet)

Bản vẽ thiết kế mẫu nhà 2 tầng đẹp giá 1 tỷ (Nguồn: Internet)

Bản thiết kế nhà mái Thái 2 tầng đẹp (Nguồn: Internet)

Bản vẽ mẫu thiết kế nhà ống 2 tầng (Nguồn: Internet)

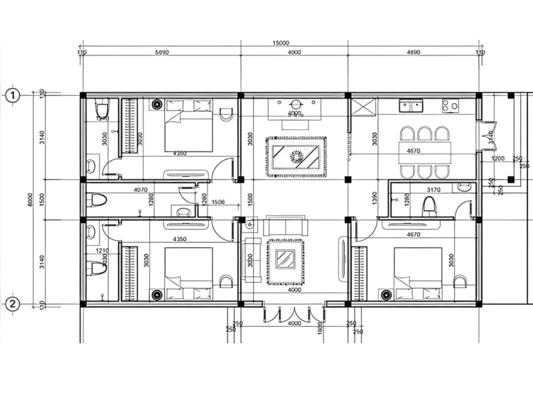
Bản vẽ thiết kế nhà 2 tầng 5x20m đơn giản, dễ hiểu (Nguồn: Internet)

Bản vẽ thiết kế nhà 2 tầng mặt tiền 6m tối ưu công năng, đảm bảo tính thẩm mỹ (Nguồn: Internet)

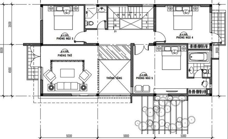
Bản vẽ thiết kế nhà 2 tầng 8x10m với bố cục hài hòa, tận dụng không gian hiệu quả (Nguồn: Internet)
Bản vẽ thiết kế nhà đóng vai trò vô cùng quan trọng trong việc hiện thực hóa ý tưởng và tối ưu công năng không gian sống. Hy vọng với những thông tin mà chúng tôi cung cấp đã giúp bạn có thêm gợi ý để chuẩn bị xây và hoàn thiện ngôi nhà mơ ước của mình. Nếu quý khách hàng quan tâm các sản phẩm như tấm xi măng DURAflex hoặc tấm DURAwood, vui lòng liên hệ DURAflex để được nhân viên hỗ trợ, báo giá cụ thể qua:
Đánh giá và nhận xét
Đánh giá trung bình
0/5
5
4
3
2
1
Chia sẻ và nhận xét về bài viết
Chia sẻ và nhận xét về bài viết
Bài viết chưa có đánh giá nào