
DURAflex đăng vào lúc 24/02/2026 - 21:53
Việc sở hữu bản vẽ nhà cấp 4 không chỉ giúp chủ nhà và đội ngũ thi công nắm rõ thiết kế tổng thể mà còn tối ưu hóa việc bố trí công năng, tạo tiền đề cho việc hoàn thiện một ngôi nhà như ý. Trong bài viết này, DURAflex sẽ giới thiệu đến bạn những mẫu bản vẽ nhà cấp 4 đẹp, đơn giản, chi tiết và các lưu ý quan trọng khi lên kế hoạch xây dựng để đảm bảo chất lượng công trình tốt nhất.
Sau đây là một số bản vẽ nhà cấp 4 đơn giản theo từng kiểu mái nhà mà các gia chủ cũng như quý thầu thợ có thể tham khảo:
Bản vẽ nhà cấp 4 mái lệch đang trở thành xu hướng thiết kế nhà ở được nhiều gia đình lựa chọn. Với thiết kế mái nhà độc đáo và hiện đại, kiểu nhà này không chỉ mang đến vẻ đẹp thẩm mỹ cao mà còn đáp ứng tối đa nhu cầu sử dụng. Bản vẽ chi tiết thường bao gồm 1 phòng khách, 2-3 phòng ngủ và khu bếp. Bố trí mặt bằng linh hoạt, kết hợp với các giải pháp tiết kiệm chi phí xây dựng, mẫu nhà mái lệch cấp 4 là sự lựa chọn hoàn hảo cho những ai mong muốn sở hữu một không gian sống tiện nghi và thoải mái.

Bản vẽ mẫu nhà cấp 4 2 phòng ngủ 4x15 thiết kế mái lệch (Nguồn: Internet)

Mô hình nhà cấp 4 2 phòng ngủ đơn giản, đẹp với thiết kế mái lệch (Nguồn: Internet)
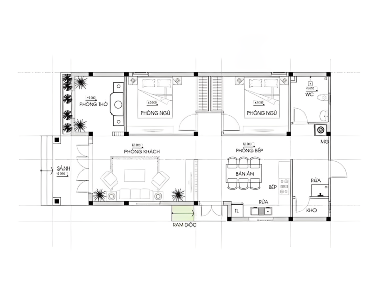
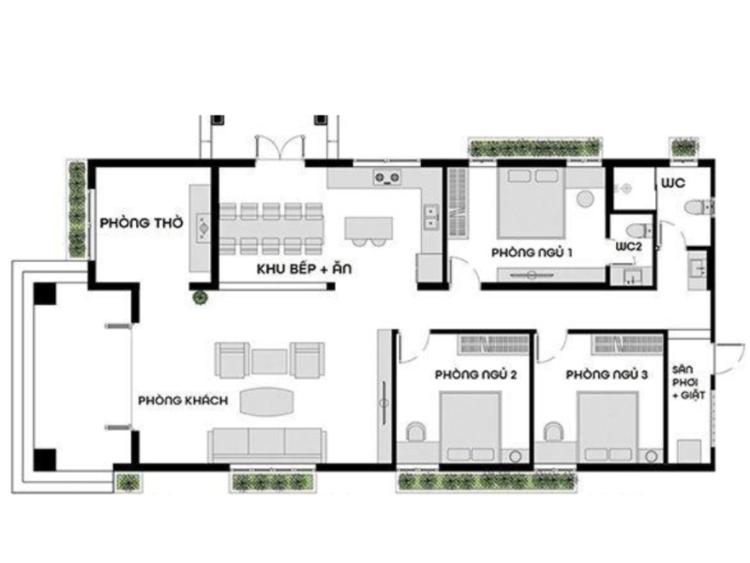
Bản vẽ mẫu nhà cấp 4 mái bằng là kết hợp hoàn hảo giữa việc tối ưu hóa không gian và công năng sử dụng. Với bố cục 3 phòng ngủ, bao gồm 1 phòng ngủ master có phòng vệ sinh khép kín, không gian trong nhà được sắp xếp hợp lý, mang đến cảm giác thoải mái, tiện nghi cho cả gia đình. Phòng khách kết hợp phòng thờ được bố trí ở phía trước, tiếp giáp mặt tiền, giúp tận dụng tối đa ánh sáng tự nhiên và tạo nên sự cân đối tổng thể. Khu vực bếp và bàn ăn được thiết kế liền kề, đảm bảo sự liền mạch và tiện lợi cho các hoạt động hàng ngày.

Bản vẽ nhà cấp 4 3 phòng ngủ mái bằng chi tiết, dễ hiểu (Nguồn: Internet)

Mô hình nhà cấp 4 3 phòng ngủ mái bằng thiết kế hiện đại, sang trọng (Nguồn: Internet)
Tìm hiểu thêm: Có bao nhiêu loại nhà ở? Tiêu chí phân loại nhà cấp 1,2,3,4,5
Nhà cấp 4 mái Nhật hiện đang là xu hướng được các gia đình ở cả khu vực thành thị và nông thôn ưa chuộng. Với thiết kế tối giản, thông minh, ngôi nhà mang đến không gian sống hiện đại, đầy đủ tiện nghi. Để sở hữu một bản vẽ nhà cấp 4 mái Nhật đẹp, chủ đầu tư cần đặc biệt chú trọng đến sự cân đối giữa màu sắc, ánh sáng, cảnh quan xung quanh và bố cục kiến trúc tổng thể của ngôi nhà.

Bản vẽ cad nhà cấp 4 mái Nhật 4 phòng ngủ (Nguồn: Internet)

Mẫu nhà cấp 4 đẹp giá rẻ 300 triệu mái Nhật hiện đại (Nguồn: Internet)
>> Xem thêm:
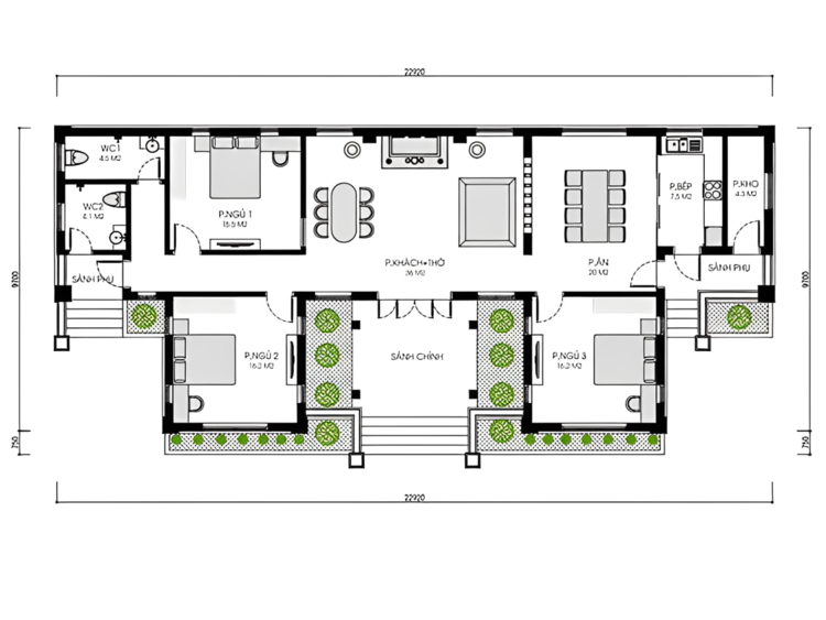
Nhà mái Thái mang lại vẻ đẹp sang trọng, phù hợp với cả vùng nông thôn lẫn thành thị nhờ thiết kế kèm theo phần mái hiên rộng, giúp không gian thoáng mát. Bản vẽ nhà cấp 4 này chi tiết bao gồm phòng khách, phòng thờ, phòng bếp, 2-3 phòng ngủ và thiết kế sân vườn xanh mát. Phòng khách được kết nối liền mạch với phòng thờ, khu vực bếp và phòng ăn, tạo sự thông thoáng và tối ưu hóa diện tích sử dụng. Sự bố trí hợp lý này giúp không gian trở nên rộng rãi hơn, đáp ứng nhu cầu của các gia đình đông thành viên.

Bản vẽ autocad nhà cấp 4 mái Thái chi tiết, đầy đủ công năng (Nguồn: Internet)

Mô hình nhà cấp 4 mái Thái 3 phòng ngủ đẹp, đầy đủ công năng (Nguồn: Internet)

Mẫu nhà cấp 4 mái Thái 4 phòng ngủ hiện đại, thời thượng (Nguồn: Internet)
>> Xem thêm:
Bản vẽ nhà cấp 4 mái tôn thường đơn giản, tối ưu hóa diện tích với các phòng chức năng cơ bản. Ngôi nhà được bố trí đầy đủ tiện nghi, bao gồm 2 phòng ngủ, phòng khách, bếp và phòng ăn, đáp ứng mọi nhu cầu sinh hoạt. Đây là giải pháp phù hợp cho các gia đình có ngân sách xây dựng hạn chế.

Bản vẽ nhà cấp 4 mái tôn dưới 100 triệu giá rẻ, tiện nghi (Nguồn: Internet)

Mẫu nhà cấp 4 đẹp 5x20 mái tôn ở nông thôn (Nguồn: Internet)
>> Xem thêm:
Sau đây là một số bản vẽ nhà cấp 4 theo từng diệc tích xây dựng mà quý gia chủ có thể tham khảo thêm cho ngôi nhà của mình!
Bản vẽ thiết kế nhà cấp 4 có diện tích khiêm tốn 4x13m được các kiến trúc sư thiết kế thông minh để đáp ứng đầy đủ nhu cầu sinh hoạt của gia đình. Sự kết hợp giữa vật liệu kính và các mảng xanh không chỉ tạo nên vẻ đẹp hiện đại mà còn tối ưu ánh sáng tự nhiên, mang đến không gian sống thoáng đãng và gần gũi với thiên nhiên. Các phòng chức năng cơ bản như phòng khách, bếp và phòng ngủ được bố trí khoa học, đảm bảo sự liên kết hài hòa giữa các không gian chung và riêng, giúp ngôi nhà trở nên thoải mái, tiện nghi dù diện tích không quá lớn.

Bản vẽ nhà cấp 4 có gác lửng 4x13m (Nguồn: Internet)

Mẫu nhà cấp 4 có gác lửng 4x13m đẹp, ấn tượng (Nguồn: Internet)
Bản vẽ mẫu nhà cấp 4 4x16m được thiết kế theo phong cách hiện đại, hướng tới sự tối giản và tinh tế. Mẫu nhà sử dụng gam màu trắng làm chủ đạo, kết hợp hài hòa với tông màu nâu gỗ và đen, tạo nên vẻ đẹp trang nhã, sang trọng. Bản vẽ bố trí 2 phòng ngủ, phòng khách, phòng bếp, và một phòng vệ sinh chung, tất cả được sắp xếp khoa học để tối ưu hóa diện tích. Thiết kế này không chỉ mang lại không gian sống tiện nghi mà còn đảm bảo sự thoải mái cho từng thành viên trong gia đình. Đây là lựa chọn lý tưởng cho gia đình nhỏ, yêu thích sự đơn giản và hiện đại.

Bản vẽ nhà cấp 4 kích thước 4x16m (Nguồn: Internet)

Mẫu nhà cấp 4 gác lửng giá 400 triệu diện tích 4x16m (Nguồn: Internet)
>> Xem thêm:
Bản vẽ mẫu nhà cấp 4 đẹp 5x20 thường được thiết kế linh hoạt, tận dụng tối đa diện tích, tạo không gian sống thoải mái cho gia đình. Thông thường, ngôi nhà sẽ bao gồm phòng khách, bếp, phòng ăn, 2-3 phòng ngủ, phòng thờ và các khu vực chức năng khác. Để đảm bảo sự thông thoáng và đón ánh sáng tự nhiên, các kiến trúc sư thường bố trí cửa sổ lớn và các khoảng thông tầng.
Ngoài ra, việc sử dụng các vật liệu xây dựng chất lượng như tấm xi măng DURAflex hoặc tấm xi măng giả gỗ DURAwood để làm ốp tường trang trí, lót mái hay lót sàn,... không chỉ giúp ngôi nhà trở nên sang trọng mà còn có tính chịu ẩm, chống mối mọt và chịu lực tốt, bảo vệ ngôi nhà khỏi các tác động của thời tiết, kéo dài tuổi thọ cho công trình.

Bản vẽ mẫu nhà cấp 4 đẹp 5x20m (Nguồn: Internet)
>> Đọc thêm:
Bản vẽ nhà cấp 4 3 phòng ngủ 100m2 được thiết kế với sự tối ưu hóa không gian, đảm bảo đầy đủ công năng cho gia đình từ 4-5 thành viên. Bố cục thường bao gồm 1 phòng khách rộng rãi làm trung tâm, liên kết với khu vực bếp ăn để tạo cảm giác thông thoáng. Các phòng ngủ được bố trí hợp lý, đảm bảo sự riêng tư và thoải mái cho từng thành viên. Thiết kế này phù hợp với các gia đình hiện đại, mang lại không gian sống tiện nghi, gọn gàng trên diện tích vừa phải.

Bản vẽ mẫu nhà cấp 4 3 phòng ngủ 100m² (Nguồn: Internet)
>> Tham khảo thêm:
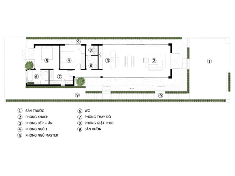
Với mặt tiền rộng 6m, bản vẽ thiết kế nhà cấp 4 mang đến không gian sống thoáng đãng, dễ dàng đón ánh sáng tự nhiên, giúp ngôi nhà luôn sáng sủa và thông thoáng. Phòng khách được bố trí ngay gần cửa chính, tạo sự tiện lợi khi đón tiếp khách và kết nối liền mạch với không gian sinh hoạt chung. Tiếp nối là khu vực bếp và phòng ăn được thiết kế gọn gàng, thuận tiện cho việc nấu nướng và dùng bữa. Các phòng ngủ được bố trí khoa học tại các góc nhà, đảm bảo sự yên tĩnh và riêng tư cho từng thành viên. Hai nhà vệ sinh được phân chia hợp lý, đáp ứng tốt nhu cầu sử dụng hằng ngày. Toàn bộ ngôi nhà được kết hợp với gam màu sáng chủ đạo, làm nổi bật phong cách thiết kế hiện đại, tinh tế và đầy tính thẩm mỹ.

Bản vẽ nhà cấp 4 mặt tiền 6m đơn giản, bố trí hợp lý (Nguồn: Internet)

Mẫu mặt tiền nhà cấp 4 đẹp hiện đại rộng 6m đẹp, kiến trúc hiện đại, sang trọng (Nguồn: Internet)
Bản vẽ mẫu nhà cấp 4 diện tích 6x12m được thiết kế tối ưu với cấu trúc hợp lý, bao gồm 2 phòng ngủ, 1 phòng khách, 1 phòng bếp ăn và 1 phòng thờ. Các phòng chức năng được bố trí dọc theo chiều dài ngôi nhà, giúp tận dụng tối đa diện tích và đảm bảo sự tiện nghi trong sinh hoạt. Mẫu thiết kế này không chỉ đảm bảo đầy đủ công năng sử dụng mà còn mang lại cảm giác rộng rãi, thoải mái cho không gian sống của gia đình.

Bản vẽ mẫu nhà cấp 4 gác lửng 6x12m (Nguồn: Internet)
Bản vẽ nhà cấp 4 7x10m thường được bố trí khoa học, tận dụng tối đa diện tích, tạo không gian sống đầy đủ tiện nghi cho gia đình. Thông thường, ngôi nhà sẽ bao gồm phòng khách, bếp ăn, 2-3 phòng ngủ, phòng thờ và các khu vực chức năng khác. Để đảm bảo sự thông thoáng và đón ánh sáng tự nhiên, các kiến trúc sư thường bố trí cửa sổ lớn và các khoảng thông tầng nhỏ. Ngoài ra, việc sử dụng các gam màu sáng và nội thất đơn giản sẽ giúp không gian trở nên rộng rãi và hiện đại hơn.

Bản vẽ nhà cấp 4 7x10m 2 phòng ngủ (Nguồn: Internet)
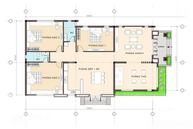
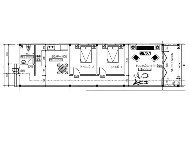
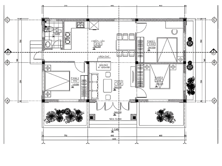
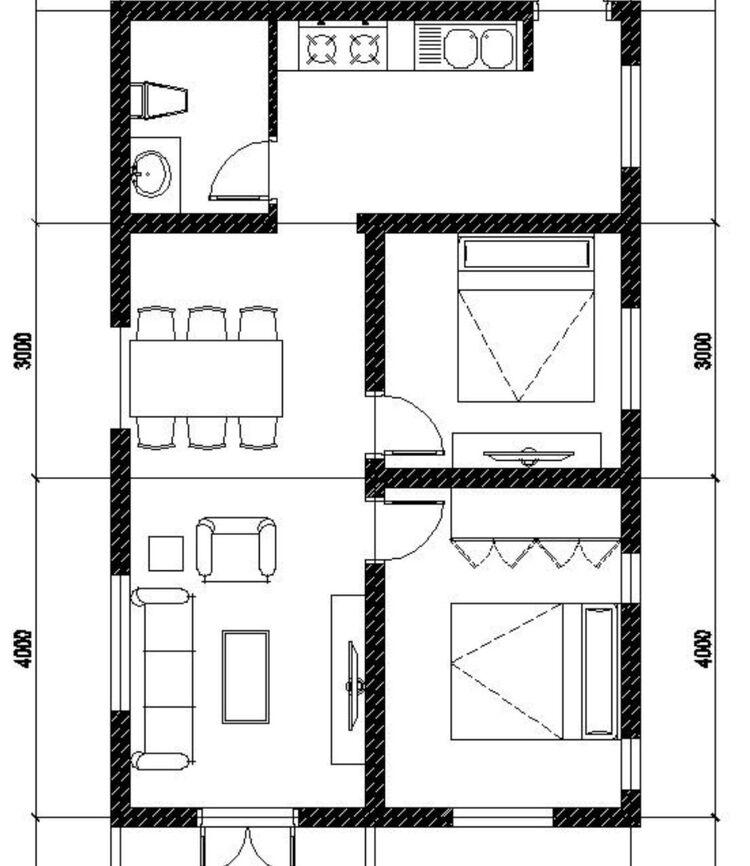
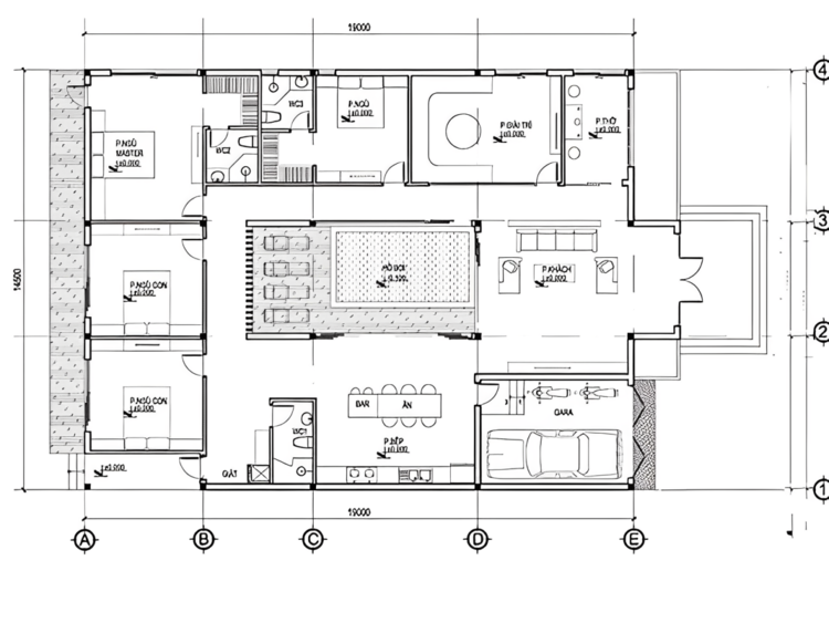
Bản vẽ nhà cấp 4 diện tích 7x12m thường được thiết kế với phong cách hiện đại, mái Nhật thanh lịch, tông màu trắng chủ đạo kết hợp mái xanh và cửa kính viền gỗ. Không gian bao gồm 3 phòng ngủ rộng rãi, 1 phòng khách lớn tích hợp phòng thờ, và khu bếp liền kề phòng ăn, tối ưu hóa công năng sử dụng. Khu vực nhà tắm và nhà vệ sinh được bố trí gọn gàng ở góc nhà, đảm bảo sự tiện lợi. Không gian xanh xung quanh mang lại cảm giác thoáng mát, gần gũi với thiên nhiên. Đây là mẫu thiết kế nhà cấp 4 lý tưởng dành cho những gia đình yêu thích sự đơn giản và tiện nghi.

Bản vẽ nhà cấp 4 7x12m chi tiết, đầy đủ công năng (Nguồn: Internet)
Với diện tích 10x10m bản vẽ nhà cấp 4 được thiết kế với bố cục hài hòa, tối ưu hóa không gian mà vẫn đảm bảo sự tiện nghi. Ngôi nhà gồm 3 phòng ngủ đặt cạnh nhau, thuận tiện cho việc sinh hoạt và chăm sóc gia đình. Phòng khách và bếp được thiết kế liền kề, tạo không gian mở thoáng đãng. Phần mái nhà này thường được thiết kế mái bằng không chỉ giúp tiết kiệm chi phí mà còn được tận dụng làm sân thượng, phù hợp để phơi đồ hoặc trồng cây xanh, mang lại sự tiện nghi và gần gũi thiên nhiên.

Bản vẽ nhà cấp 4 100m2 3 phòng ngủ (Nguồn: Internet)
Nhà cấp 4 có muôn hình vạn trạng các kiểu thiết kế khác nhau, dưới đây là một số mẫu bản vẽ nhà cấp 4 theo từng kiểu dáng nhà ở mà các quý bạn đọc có thể xem thêm!
Bản vẽ mẫu nhà cấp 4 nông thôn thường được thiết kế đơn giản, tiện nghi, phù hợp với môi trường sống vùng quê. Ngôi nhà thường có diện tích vừa phải, mái ngói hoặc mái tôn, với kết cấu chắc chắn để chịu được thời tiết khắc nghiệt. Bố cục phổ biến gồm phòng khách, 2-3 phòng ngủ, bếp và nhà vệ sinh. Thiết kế ưu tiên sự thoáng mát, tận dụng ánh sáng tự nhiên và không gian mở.
Để tối ưu chi phí xây dựng, việc sử dụng tấm bê tông đúc sẵn DURAflex luôn là sự lựa chọn hàng đầu của nhiều gia chủ. Sản phẩm được dùng để ốp tường - sàn - trần mang đến độ bền vượt trội và thẩm mỹ tinh tế. Ngoài ra, với đặc tính cách âm hiệu quả, tấm xi măng DURAflex còn được sử dụng phổ biến trong việc làm vách ngăn phòng để cách âm tường nhà, mang lại không gian riêng tư giữa các phòng với nhau.

Bản vẽ thiết kế mẫu nhà cấp 4 nông thôn 250 triệu đơn giản (Nguồn: Internet)
>> Xem thêm:
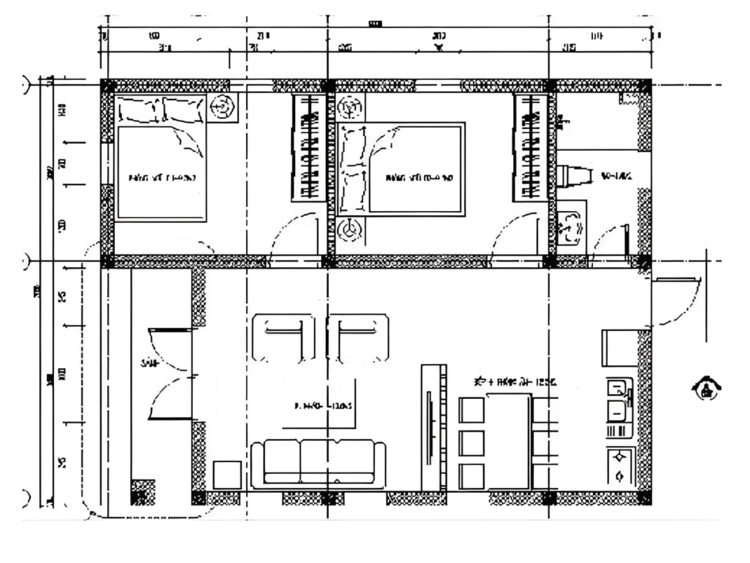
Bản vẽ nhà cấp 4 có gác lửng đang trở thành xu hướng phổ biến tại Việt Nam, giúp tận dụng tối đa không gian, mà không cần phải tốn thêm chi phí xây dựng để mở rộng diện tích. Loại hình nhà gác lửng này không chỉ xuất hiện ở các khu vực nông thôn mà còn được ưa chuộng tại thành thị, đặc biệt ở những nơi có lộ đất hạn hẹp. Sự kết hợp giữa tầng trệt và gác lửng giúp tối ưu hóa diện tích sử dụng, mang đến vẻ đẹp hiện đại, sang trọng.

Bản vẽ nhà cấp 4 có gác lửng 5x20 (Nguồn: Internet)

Mẫu nhà gác lửng 3 phòng ngủ đơn giản, đẹp mắt (Nguồn: Internet)

Mẫu nhà cấp 4 gác lửng 200 triệu thiết kế mái bằng sang trọng ở nông thôn (Nguồn: Internet)
>> Xem thêm:
Nhà cấp 4 chữ L thường có mặt tiền rộng, tạo cảm giác bề thế và sang trọng. đáp ứng nhu cầu của các gia đình hiện đại. Bên trong, các phòng chức năng được bố trí khoa học, kết nối với nhau một cách hợp lý, tạo sự tiện lợi trong sinh hoạt. Đặc biệt, góc nhà chữ L thường được tận dụng làm khoảng sân trước hoặc bên hông nhà, lý tưởng cho các gia đình đông thành viên hoặc nhiều thế hệ cùng chung sống.

Bản vẽ nhà cấp 4 chữ L mái tôn đơn giản ở nông thôn (Nguồn: Internet)

Bản vẽ thiết kế nhà cấp 4 mái bằng chữ L với đầy đủ công năng (Nguồn: Ảnh được tạo bởi AI)
>> Xem thêm:
Bản vẽ nhà cấp 4 chữ U được thiết kế độc đáo, mang đến không gian sống hiện đại và thông thoáng. Với cấu trúc nhà chữ U đặc trưng, kiểu nhà này tạo ra một khoảng sân trung tâm, giúp tối ưu hóa ánh sáng tự nhiên và không gian riêng tư. Thiết kế này không chỉ đảm bảo sự tiện nghi mà còn tạo điểm nhấn ấn tượng, đáp ứng được nhiều nhu cầu và sở thích của gia chủ.

Bản vẽ nhà cấp 4 hình chữ U (Nguồn: Internet)
Bản vẽ nhà ống cấp 4 là giải pháp linh hoạt cho những lô đất có chiều ngang hạn chế. Với thiết kế thông minh, nhà ống cấp 4 giúp tối ưu hóa diện tích sử dụng, tạo ra một không gian sống tiện nghi và hiện đại.
Để tối ưu hóa chi phí xây dựng mà vẫn đảm bảo chất lượng, tấm bê tông nhẹ DURAflex là lựa chọn hoàn hảo để lót mái chống nóng, vách ngăn phòng khách, vách ngăn phòng thờ. Vật liệu này ghi điểm nhờ độ bền cao, hiệu quả cách âm, cách nhiệt tối ưu. Đặc biệt, trọng lượng nhẹ giúp quá trình vận chuyển và lắp đặt trở nên dễ dàng, tiết kiệm đáng kể thời gian và chi phí cho công trình.

Bản vẽ thiết kế nhà ống cấp 4 đẹp (Nguồn: Internet)
>> Xem thêm:
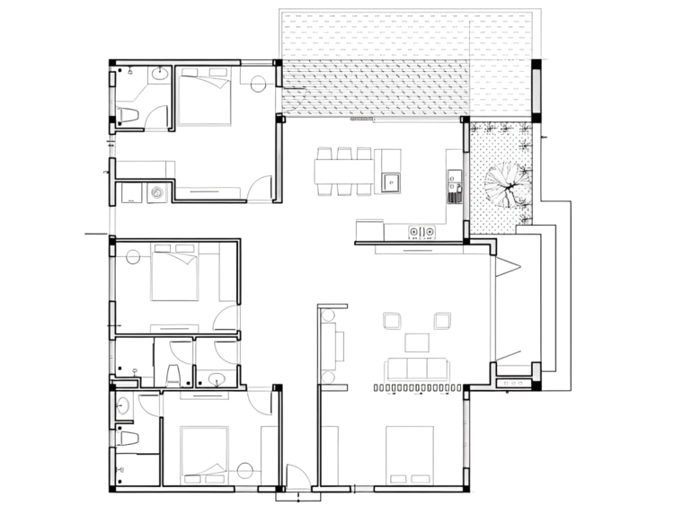
Bản vẽ mẫu nhà cấp 4 nở hậu được thiết kế với phong cách độc đáo, phù hợp cho những khu đất có hình dạng không vuông vắn. Kiểu nhà này nổi bật với mặt tiền hẹp nhưng không gian phía sau mở rộng, tạo nên sự hài hòa. Khu vực mặt tiền thường được sử dụng làm sân trước hoặc chỗ đậu xe, mang đến cảm giác thoáng đãng và tiện lợi. Phòng khách nằm ở trung tâm, kết nối linh hoạt với không gian bếp và khu vực ăn uống, giúp tối ưu hóa sự tiện nghi trong sinh hoạt hàng ngày. Phần cuối nhà được bố trí phòng ngủ và nhà vệ sinh đối diện nhau, đảm bảo sự riêng tư và tiện lợi cho các thành viên trong gia đình.

Bản vẽ mẫu nhà cấp 4 nở hậu (Nguồn: Internet)
Cùng DURAflex khám phá các mẫu bản vẽ nhà cấp 4 theo số phòng chi tiết, tiện nghi bên dưới nhé!
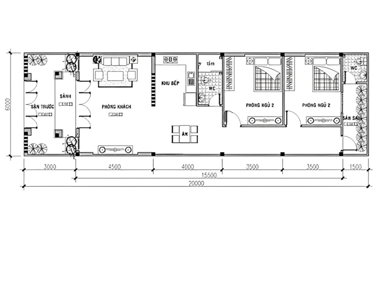
Bản vẽ mẫu nhà cấp 4 2 phòng ngủ là giải pháp hoàn hảo cho những gia đình trẻ hoặc các cặp vợ chồng mới cưới. Phòng khách rộng rãi, kết nối với bếp và ăn, tạo không gian sinh hoạt chung ấm cúng. Hai phòng ngủ được bố trí khoa học, nhằm đảm bảo sự riêng tư tối đa.
Với thiết kế nội thất thông minh, kết hợp hài hòa giữa các vật liệu xây dựng hiện đại như tấm xi măng vân gỗ DURAwood và tấm bê tông đúc sẵn DURAflex, ngôi nhà cấp 4 2 phòng ngủ trở nên vô cùng hiện đại và tiện nghi. Không gian sống được tối ưu hóa với các đồ nội thất đa năng, đáp ứng mọi nhu cầu của gia đình.

Bản vẽ mẫu nhà cấp 4 có 2 phòng ngủ 5x20 (Nguồn: Internet)
Bản vẽ nhà cấp 4 3 phòng ngủ được thiết kế đơn giản, phù hợp với nhu cầu sinh hoạt của gia đình nhỏ. Các phòng chức năng được bố trí hợp lý, đáp ứng nhu cầu cho các gia đình đông thành viên. Tùy thuộc vào diện tích lô đất và sở thích của gia chủ, bản vẽ có thể được điều chỉnh để phù hợp với từng không gian cụ thể.

Bản vẽ nhà cấp 4 3 phòng ngủ 70m2 (Nguồn: Internet)
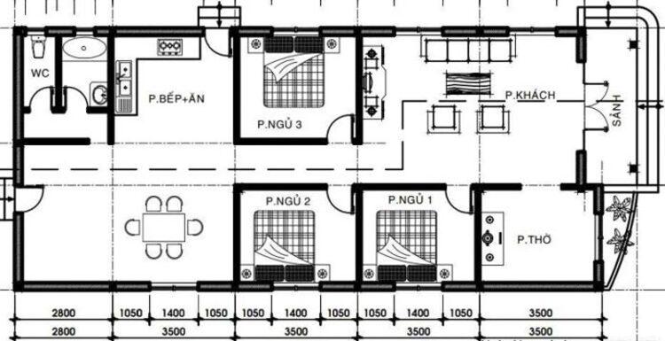
Bản vẽ nhà cấp 4 có 3 phòng ngủ, 1 phòng thờ thường được thiết kế để đáp ứng nhu cầu của gia đình đông thành viên. Phòng thờ thường được bố trí ở vị trí trung tâm phía trước, kết hợp hài hòa với không gian phòng khách rộng rãi. Khu vực bếp và bàn ăn được thiết kế theo phong cách hiện đại, tối giản nhưng vẫn đảm bảo công năng sử dụng. Bên cạnh đó, khu vực sinh hoạt chung của ngôi nhà được thiết kế ấm cúng, tiện nghi.

Bản vẽ nhà cấp 4 nông thôn 3 phòng ngủ, 1 phòng thờ (Nguồn: Internet)

Mô hình nhà cấp 4 3 phòng ngủ 300 triệu tiện nghi, phổ biến hiện nay (Nguồn: Internet)
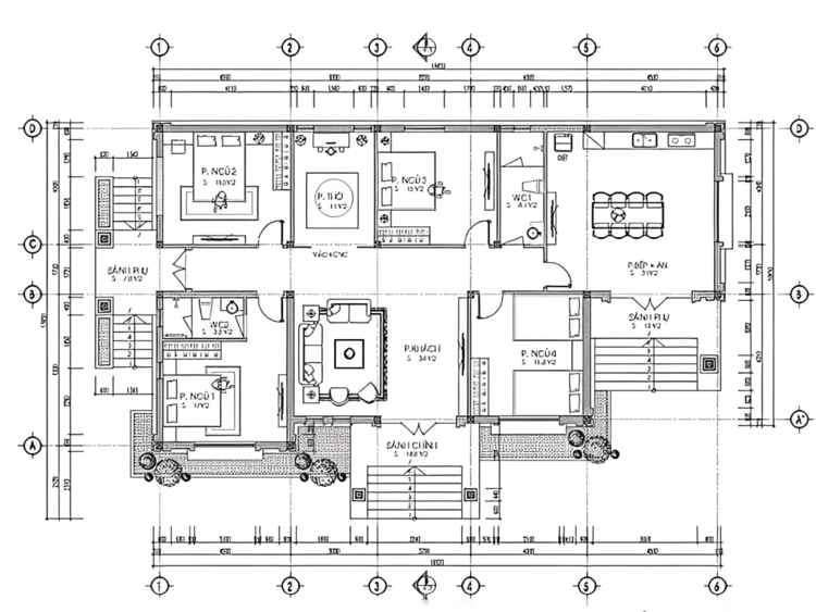
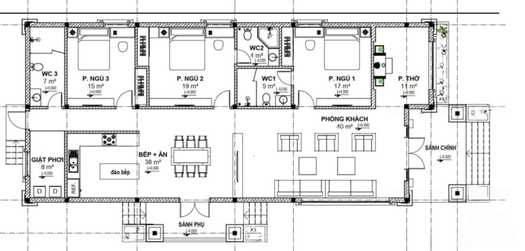
Bản vẽ thiết kế nhà cấp 4 có 4 phòng ngủ là giải pháp hiệu quả dành cho những gia đình có nhiều thế hệ cùng chung sống. Để tối ưu hóa không gian, các phòng ngủ thường được bố trí tập trung ở một khu vực, tạo sự riêng tư và thuận tiện cho từng thành viên. Không gian phòng khách kết nối trực tiếp với bếp và khu vực ăn uống, tạo nên sự thoáng đãng và liền mạch.

Bản vẽ nhà cấp 4 4 phòng ngủ 400 triệu đơn giản, tiện nghi (Nguồn: Internet)
>> Xem thêm: 50+ Mẫu nhà 2 tầng 4 phòng ngủ dưới 1 tỷ độc đáo, đẳng cấp 2026
Bản vẽ mẫu nhà cấp 4 có gara ô tô được thiết kế hiện đại, đầy đủ tiện ích. Gara thường được bố trí ở phía trước hoặc bên hông nhà, thuận tiện cho việc ra vào và bảo quản xe. Phần mái gara có thể được thiết kế liền với mái nhà chính hoặc sử dụng vật liệu riêng như tôn hoặc kính cường lực để tạo điểm nhấn thẩm mỹ.

Bản vẽ thiết kế mẫu nhà cấp 4 có gara ô tô (Nguồn: Internet)
>> Xem thêm:
Bản vẽ nhà cấp 4 có sân vườn thường được thiết kế để tận dụng tối đa không gian xanh và tạo nên một không gian sống hài hòa với thiên nhiên. Thông thường, ngôi nhà được bố trí ở phía trước, để lại một khoảng sân vườn rộng rãi phía sau hoặc một bên. Sân vườn có thể được thiết kế thành nhiều khu vực chức năng khác nhau như khu vực nghỉ ngơi, khu vực trồng cây, hoặc bố trí hồ cá nhỏ. Việc thiết kế các cửa sổ lớn trong nhà giúp đón ánh sáng tự nhiên và tạo tầm nhìn trực quan hướng ra khu vườn.

Bản vẽ nhà vườn đẹp thiết kế theo kiểu nhà cấp 4 (Nguồn: Internet)
>> Xem thêm:
Với chi phí xây dựng 500 triệu đồng, bản vẽ nhà cấp 4 đáp ứng đầy đủ các yêu cầu về công năng và tính thẩm mỹ. Thiết kế thường tập trung vào việc tối ưu hóa không gian, sử dụng vật liệu xây dựng chất lượng và bố trí các phòng chức năng một cách khoa học.
Để tiết kiệm chi phí, các kiến trúc sư ưu tiên sử dụng tấm xi măng DURAflex ốp tường trang trí nhưng vẫn đảm bảo tính thẩm mỹ cao. Sở hữu độ bền cao, khả năng chống cháy và cách nhiệt hiệu quả, DURAflex không chỉ đáp ứng yêu cầu về an toàn mà còn mang đến vẻ đẹp hiện đại, bền vững cho mọi công trình.

Bản vẽ mẫu nhà cấp 4 giá 500 triệu đẹp, đơn giản, hiện đại, giá rẻ (Nguồn: Internet)
>> Xem thêm:
Bản vẽ thiết kế nhà cấp 4 có hồ bơi kiểu Mỹ với hồ bơi thường có không gian rộng rãi toát lên vẻ đẹp hiện đại và tối giản. Ngôi nhà thường được bố trí với phòng khách, phòng bếp và phòng ngủ mở rộng, sử dụng cửa kính lớn để tận dụng ánh sáng tự nhiên. Hồ bơi được đặt ngay cạnh khu vực sinh hoạt chung, có thể nằm trong sân vườn hoặc phía sau nhà, tạo nên không gian thoáng đãng.

Bản vẽ thiết kế nhà cấp 4 có hồ bơi kiểu Mỹ (Nguồn: Internet)
Khi xây dựng nhà cấp 4, chủ đầu tư cần lưu ý những điều sau để đảm bảo độ bền vững và thẩm mỹ cho công trình:
Nếu bạn cần tư vấn thêm về các sản phẩm vật liệu xây dựng như tấm xi măng DURAflex và tấm vân gỗ DURAwood vui lòng liên hệ với chúng tôi để được hỗ trợ:

Lựa chọn đơn vị thi công nhà cấp 4 uy tín (Nguồn: Internet)
Với những gợi ý về các bản vẽ nhà cấp 4 hy vọng bạn đã tìm thấy nhiều ý tưởng để xây dựng một ngôi nhà đẹp, hiện đại và đầy đủ tiện nghi. Để có được một không gian sống hoàn hảo, đừng quên tham khảo ý kiến từ các kiến trúc sư nghiệp để tạo ra bản vẽ nhà cấp 4 phù hợp với nhu cầu và điều kiện của gia đình.
Đánh giá và nhận xét
Đánh giá trung bình
0/5
5
4
3
2
1
Chia sẻ và nhận xét về bài viết
Chia sẻ và nhận xét về bài viết
Bài viết chưa có đánh giá nào