
DURAflex đăng vào lúc 27/11/2025 - 09:00
Nhà 2 tầng mái Nhật 8x12m là lựa chọn lý tưởng cho những ai yêu thích sự gọn gàng, tinh tế nhưng vẫn đảm bảo không gian sống tiện nghi. Nếu bạn đang tìm kiếm ý tưởng cho tổ ấm tương lai, hãy cùng DURAflex khám phá ngay những mẫu thiết kế ấn tượng trong bài viết dưới đây!
Xu hướng lựa chọn các mẫu 8x12m nhà mái Nhật 2 tầng đang ngày càng được ưa chuộng bởi thiết kế hài hòa, công năng tối ưu và phù hợp với đa dạng nhu cầu sử dụng. Không chỉ gây ấn tượng bởi diện mạo thanh lịch, những mẫu nhà mái Nhật còn chinh phục gia chủ nhờ nhiều ưu điểm vượt trội:

Mẫu 8x12m nhà mái Nhật 2 tầng với ưu điểm thiết kế linh hoạt, chi phí hợp lý (Nguồn: Internet)
>> Tìm hiểu thêm:
Những mẫu 8x12m nhà mái Nhật 2 tầng theo phong cách trẻ trung thường được thiết kế với đường nét tối giản, tinh tế, kết hợp gam màu sáng như trắng, be hoặc pastel. Kiến trúc mở với nhiều ô cửa kính tạo cảm giác thông thoáng, tràn ngập ánh sáng tự nhiên, giúp không gian bên trong trở nên rộng rãi và gần gũi với thiên nhiên. Thiết kế này rất phù hợp với các gia đình trẻ, mang lại cảm giác tươi mới và năng động nhưng vẫn giữ được sự thanh lịch nhờ kiểu mái Nhật đặc trưng.

Mẫu 8x12m nhà mái Nhật 2 tầng thiết kế trẻ trung, hiện đại với tone màu trắng, xám (Nguồn: Internet)

Mẫu 8x12m nhà mái Nhật 2 tầng với khung cửa kính lớn kết hợp cây xanh hài hòa với thiên nhiên (Nguồn: Internet)
>> Đọc thêm:
Phong cách hiện đại trong mẫu 8x12m nhà mái nhật 2 tầng thường tập trung vào bố cục hình khối rõ ràng, mặt tiền đơn giản nhưng nổi bật với chất liệu như kính, thép và gỗ công nghiệp. Hệ mái Nhật thấp và dốc vừa phải tạo sự hài hòa với tổng thể kiến trúc, đồng thời mang lại hiệu quả cao trong việc chống nóng, chống thấm. Không gian sinh hoạt được bố trí khoa học với phòng khách, bếp, phòng ngủ và khu vực làm việc đều đón sáng tự nhiên tốt, phù hợp cho những ai yêu thích cuộc sống tiện nghi, hiện đại.

Mẫu 8x12m nhà mái Nhật 2 tầng hiện đại phù hợp với vùng thành thị (Nguồn: Internet)

Mẫu 8x12m nhà mái Nhật 2 tầng hiện đại có thiết kế sân vườn rộng lớn, thoáng mát (Nguồn: Internet)
>> Để nhận được tư vấn và bảng giá chi tiết vật liệu tấm xi măng DURAflex Low Carbon làm sàn - tường - vách khi xây mẫu nhà 2 tầng mái Nhật 8x12m vui lòng bấm:
>> Tham khảo thêm:
Với diện mạo sang trọng và chỉn chu, những mẫu biệt thự 2 tầng mái Nhật gây ấn tượng mạnh nhờ bố cục kiến trúc cân đối, có chiều sâu và được chăm chút kỹ lưỡng ở từng chi tiết. Từ trụ cột vững chắc, bậc tam cấp cao ráo cho đến không gian sân vườn bao quanh, tất cả tạo nên một tổng thể hài hòa và đẳng cấp. Kiểu thiết kế biệt thự này phù hợp với những gia đình yêu thích sự thoải mái, đề cao tính thẩm mỹ và muốn có một không gian sống gần gũi với thiên nhiên nhưng vẫn đầy đủ tiện nghi.

Mẫu 8x12m nhà mái Nhật 2 tầng kiểu biệt thự sang trọng, bề thế (Nguồn: Internet)

Mẫu 8x12m nhà mái Nhật 2 tầng kiểu biệt thự dễ dàng ứng dụng với chi phí hợp lý (Nguồn: Internet)
>> Các mẫu nhà khác:
Khác với các mẫu nhà cấp 4, nhà 1 trệt 1 lầu 4 phòng ngủ 8x12 mái Nhật là giải pháp tối ưu cho những gia đình có nhiều thế hệ cùng sinh sống. Không gian được bố trí hợp lý, thường bao gồm một phòng ngủ tầng trệt thuận tiện cho người lớn tuổi và ba phòng còn lại ở tầng trên, đảm bảo sự riêng tư và tiện lợi. Ngoài ra, khu vực sinh hoạt chung được thiết kế rộng rãi, thoáng mát, có thể kết hợp thêm phòng làm việc hoặc phòng thờ tùy theo nhu cầu. Đây là lựa chọn lý tưởng cho những ai tìm kiếm sự tiện nghi và thoải mái trong không gian sống hàng ngày.

Mẫu 8x12m nhà mái Nhật 2 tầng 4 phòng ngủ phù hợp với những gia đình đông thành viên (Nguồn: Internet)

Mẫu nhà 2 tầng 4 phòng ngủ dưới 1 tỷ diện tích 8x12 mái Nhật đầy đủ công năng cho gia đình nhiều thế hệ (Nguồn: Internet)
>> Xem thêm:
Với xu hướng sở hữu ô tô ngày càng phổ biến, những mẫu 8x12m nhà mái Nhật 2 tầng có gara ô tô ngày càng được ưa chuộng. Gara được bố trí gọn gàng bên hông hoặc ngay trong tầng trệt của ngôi nhà, đảm bảo sự thuận tiện mà không phá vỡ tổng thể kiến trúc. Thiết kế thông minh giúp tiết kiệm diện tích mà vẫn mang đến sự tiện nghi tối đa trong sinh hoạt hàng ngày, đặc biệt phù hợp với các gia đình sống tại khu đô thị hoặc vùng ngoại ô.

Mẫu nhà 2 tầng chữ L 100m2 mái Nhật có gara ô tô tiện lợi, hiện đại (Nguồn: Internet)

Mẫu 8x12m nhà mái Nhật 2 tầng có gara ô tô rộng rãi, phần cửa kính lớn giúp đón ánh sáng tự nhiên (Nguồn: Internet)
>> Có thể bạn quan tâm:
Phối cảnh 3D mẫu nhà 8x12m mái Nhật 2 tầng mang đến cái nhìn tổng thể hài hòa, hiện đại và đầy cuốn hút. Thiết kế nổi bật với mái Nhật dốc nhẹ, tạo cảm giác thanh thoát, sang trọng nhưng vẫn đảm bảo khả năng chống nóng, thoát nước tốt. Mặt tiền được phối hợp hài hòa giữa gam màu trung tính và chất liệu như đá ốp, kính cường lực, mang đến sự tinh tế và đẳng cấp. Không gian sân vườn bao quanh giúp tổng thể ngôi nhà trở nên thoáng đãng, gần gũi thiên nhiên. Phối cảnh 3D không chỉ giúp chủ đầu tư dễ hình dung bố cục công trình mà còn là cơ sở quan trọng để triển khai thi công chính xác, tiết kiệm chi phí và thời gian.

Phối cảnh 3D toàn cảnh mẫu 8x12m nhà mái Nhật 2 tầng đẹp (Nguồn: Internet)

Phối cảnh 3D mẫu 8x12m nhà mái Nhật 2 tầng chữ L nhìn từ trên xuống (Nguồn: Internet)
>> Đọc thêm:
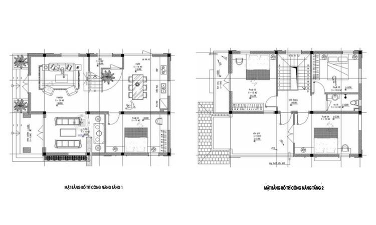
Bản vẽ nhà 2 tầng mái Nhật 8x12 được thiết kế khoa học, tối ưu không gian sử dụng và đảm bảo đầy đủ công năng cho gia đình từ 4-6 thành viên. Tầng 1 bố trí phòng khách rộng rãi liên thông với phòng bếp, tạo sự thông thoáng và tiện nghi trong sinh hoạt. Khu vực này còn có thêm 1 phòng ngủ và 1 nhà vệ sinh chung, phù hợp cho người lớn tuổi hoặc khách đến chơi nhà. Tầng 2 gồm 3 phòng ngủ, 1 phòng thờ trang nghiêm hướng ra ban công, cùng 2 nhà vệ sinh được phân bổ hợp lý để đảm bảo sự riêng tư và thuận tiện. Với lối kiến trúc mái Nhật nhẹ nhàng, thanh thoát, kết hợp cùng bố cục mặt bằng hợp lý, mẫu nhà này không chỉ đẹp mắt mà còn đáp ứng tốt nhu cầu sinh hoạt hiện đại.

Bản vẽ thiết kế nhà 2 tầng mái Nhật 8x12 đầy đủ công năng, tối ưu diện tích (Nguồn: Internet)

Bản vẽ nhà 2 tầng mái Nhật 8x12 được thiết kế khoa học, đầy đủ tiện nghi (Nguồn: Internet)
>>> Xem thêm:
Khi lên kế hoạch xây dựng nhà 2 tầng mái Nhật 8x12m, việc xác định chi phí một cách sát thực là điều rất quan trọng. Dưới đây là những yếu tố chính ảnh hưởng trực tiếp đến chi phí mà bạn cần cân nhắc kỹ lưỡng trước khi bắt tay vào xây dựng.
Chi phí xây 8x12m nhà mái Nhật 2 tầng sẽ thay đổi tùy theo khu vực bạn chọn để thi công. Tại các thành phố lớn hoặc khu vực trung tâm, chi phí nhân công và vật liệu thường cao hơn do mức sống và giá dịch vụ cao hơn mặt bằng chung. Ngược lại, tại vùng nông thôn, giá có thể thấp hơn nhưng nếu địa điểm xây dựng xa trung tâm, việc vận chuyển vật liệu khó khăn cũng sẽ khiến tổng chi phí tăng lên. Vì vậy, vị trí địa lý là yếu tố đầu tiên cần xem xét trong bài toán ngân sách.

Vị trí xây dựng ảnh hưởng lớn đến chi phí xây dựng nhà 2 tầng mái Nhật 8x12m (Nguồn: Internet)
>> Xem thêm:
Kiến trúc và phong cách thiết kế là yếu tố quyết định mức độ phức tạp trong thi công, từ đó ảnh hưởng trực tiếp đến chi phí. Những mẫu 8x12m nhà mái Nhật 2 tầng thiết kế theo phong cách hiện đại, tối giản thường tiết kiệm hơn so với phong cách cổ điển hay tân cổ điển với nhiều chi tiết trang trí cầu kỳ. Mỗi phong cách đều mang đến vẻ đẹp riêng, tuy nhiên chủ đầu tư cần cân nhắc kỹ giữa yếu tố thẩm mỹ và chi phí để chọn được phương án phù hợp.
Mức đầu tư cho nội thất có thể tạo nên sự chênh lệch lớn trong tổng chi phí xây nhà. Tùy thuộc vào nhu cầu và gu thẩm mỹ của gia chủ, phần nội thất có thể đơn giản hoặc sang trọng với các thiết bị hiện đại. Các hạng mục như phòng khách, bếp, phòng ngủ, nhà vệ sinh đều cần được dự toán kỹ. Nếu chưa có kinh nghiệm lựa chọn nội thất phù hợp ngân sách, bạn nên tham khảo ý kiến của kiến trúc sư hoặc đơn vị thi công để có phương án hài hòa giữa thẩm mỹ và tài chính.
Thời điểm xây 8x12m nhà mái Nhật 2 tầng cũng ảnh hưởng không nhỏ đến chi phí. Mùa cao điểm xây dựng thường rơi vào những tháng đầu năm hoặc gần cuối năm, lúc này giá vật liệu và chi phí nhân công có xu hướng tăng do nhu cầu lớn. Nếu có thể chủ động lựa chọn thời điểm thi công, bạn nên cân nhắc thi công vào mùa thấp điểm để tiết kiệm được một khoản chi phí đáng kể mà vẫn đảm bảo chất lượng công trình.

Thi công 8x12m nhà mái Nhật 2 tầng vào mùa cao điểm sẽ khiến chi phí nhân công và vật liệu tăng cao (Nguồn: Internet)
>> Các mẫu nhà khác:
Lựa chọn vật liệu xây dựng chính là yếu tố quan trọng quyết định đến chi phí và chất lượng công trình. Tuy nhiên, nếu bạn đầu tư vào vật liệu chất lượng, không chỉ đảm bảo tính thẩm mỹ mà còn giúp ngôi nhà bền vững hơn, giảm thiểu chi phí bảo trì về lâu dài.
Một trong những lựa chọn tuyệt vời trong thi công nhà 2 tầng mái Nhật 8x12m chính là tấm xi măng DURAflex Low Carbon và tấm xi măng giả gỗ DURAwood Low Carbon. Với những đặc tính nổi bật như khả năng chịu ẩm, cách âm, cách nhiệt, chống cháy và chịu lực tốt, hai sản phẩm này sẽ giúp nâng cao độ bền của công trình.
Tấm bê tông nhẹ DURAflex Low Carbon, với thành phần thấp carbon, không chỉ thân thiện với môi trường mà còn giúp tiết kiệm chi phí dài hạn. Trong khi tấm DURAwood Low Carbon mang đến vẻ đẹp tự nhiên của gỗ nhưng lại vượt trội hơn về độ bền và khả năng chống lại sự tác động của thời tiết, đồng thời giúp giảm thiểu chi phí duy trì, bảo dưỡng.
>> Để nhận được tư vấn và bảng giá chi tiết vật liệu tấm xi măng DURAflex Low Carbon làm sàn - tường - vách khi xây mẫu nhà 2 tầng mái Nhật 8x12m vui lòng bấm:
>> Đọc thêm:
Khi xây dựng một ngôi 8x12m nhà mái Nhật 2 tầng, chi phí sẽ được phân chia rõ ràng theo từng hạng mục chính. Dưới đây là các yếu tố quan trọng cần lưu ý để bạn có thể dự toán và chuẩn bị ngân sách hợp lý:
Tổng hợp các yếu tố trên sẽ giúp bạn có cái nhìn tổng quan về chi phí cần chuẩn bị cho ngôi nhà 2 tầng mái Nhật 8x12m, từ đó có thể đưa ra kế hoạch tài chính hợp lý và đảm bảo tiến độ thi công.

Tùy vào nhu cầu của gia chủ sẽ có những mức chi phí xây 8x12m nhà mái Nhật 2 tầng khác nhau (Nguồn: Internet)
>> Xem thêm:
Dưới đây là những yếu tố cần lưu ý để giúp bạn tiết kiệm chi phí và tránh phát sinh trong quá trình xây dựng:
Việc chuẩn bị kỹ lưỡng từ bản vẽ cho đến dự toán chi phí là bước đầu tiên không thể thiếu. Nếu bạn có kinh nghiệm trong xây dựng, bạn hoàn toàn có thể tự chuẩn bị kế hoạch này. Tuy nhiên, nếu không, hãy nhờ đến sự trợ giúp của các nhà thầu uy tín. Họ sẽ cung cấp cho bạn thông tin chi tiết từ bản vẽ đến dự toán chi phí, đảm bảo kế hoạch phù hợp với nhu cầu và ngân sách của bạn. Những nhà thầu có kinh nghiệm sẽ giúp bạn hoàn thành bước này một cách nhanh chóng và chính xác.

Xây dựng kế hoạch một cách khó học giúp bạn tiết kiệm chi phí khi xây 8x12m nhà mái Nhật 2 tầng (Nguồn: Internet)
>> Tham khảo thêm:
Nhà thầu giàu kinh nghiệm sẽ giúp bạn tránh được những chi phí phát sinh không đáng có và đảm bảo chất lượng công trình. Họ không chỉ giúp bạn hoàn thiện công trình đúng tiến độ mà còn đảm bảo các công đoạn được thực hiện theo đúng tiêu chuẩn, với chế độ bảo hành rõ ràng. Điều này giúp bạn an tâm hơn về chất lượng công trình và giảm bớt lo lắng về những vấn đề phát sinh sau khi hoàn thiện.
Thiết kế đơn giản sẽ giúp giảm bớt chi phí và thời gian thi công mẫu 8x12m nhà mái Nhật 2 tầng. Những mẫu nhà với ít chi tiết phức tạp sẽ tiết kiệm hơn rất nhiều so với những công trình yêu cầu nhiều yếu tố cầu kỳ, như phong cách tân cổ điển với hoa văn, đường nét phức tạp. Các thiết kế đơn giản không chỉ tiết kiệm chi phí mà còn giúp công trình được hoàn thành nhanh chóng hơn.

Nếu chi phí ít, bạn nên lựa chọn những thiết kế nhà 2 tầng mái Nhật 8x12m tối giản (Nguồn: Internet)
>> Đọc thêm:
Ngoài việc lựa chọn vật liệu phù hợp với từng hạng mục, bạn cũng nên cân nhắc đến các sản phẩm có khả năng tiết kiệm chi phí dài hạn mà vẫn đảm bảo chất lượng công trình. Một trong những lựa chọn đáng chú ý hiện nay chính là tấm cemboard DURAflex Low Carbon và tấm xi măng DURAwood Low Carbon. Các sản phẩm này không chỉ có giá trị sử dụng lâu dài mà còn giúp giảm chi phí bảo trì nhờ vào độ bền vượt trội và khả năng chịu được điều kiện thời tiết khắc nghiệt. Sản phẩm phù hợp cho các hạng mục như vách ngăn, tường, hoặc trần nhà, nhờ vào tính năng chịu ẩm, cách nhiệt và chống cháy tốt. Sự kết hợp giữa hai sản phẩm này sẽ giúp tối ưu hóa chi phí mà vẫn giữ được chất lượng công trình ở mức cao.
Giám sát tiến độ thi công
Kiểm soát tiến độ thi công là yếu tố then chốt để tránh phát sinh chi phí và tiết kiệm thời gian. Việc kéo dài thời gian thi công không chỉ làm tăng chi phí nhân công mà còn gây lãng phí tài nguyên. Đảm bảo tiến độ thực hiện đúng kế hoạch giúp bạn tiết kiệm được nhiều chi phí phụ phát sinh và đảm bảo chất lượng công trình.
Mẫu nhà mái Nhật 2 tầng 8x12m không chỉ mang lại vẻ đẹp hiện đại mà còn đảm bảo tính bền vững và tối ưu chi phí xây dựng. Để có một công trình vững chãi và lâu dài, việc lựa chọn vật liệu chất lượng là vô cùng quan trọng. Các giải pháp xây dựng hiệu quả, như sử dụng vật liệu từ các nhà cung cấp uy tín, sẽ giúp bạn tiết kiệm chi phí mà vẫn đảm bảo độ bền. Đừng quên khám phá những lựa chọn tối ưu từ DURAflex, giúp gia tăng chất lượng công trình của bạn một cách vượt trội.
Đánh giá và nhận xét
Đánh giá trung bình
0/5
5
4
3
2
1
Chia sẻ và nhận xét về bài viết
Chia sẻ và nhận xét về bài viết
Bài viết chưa có đánh giá nào